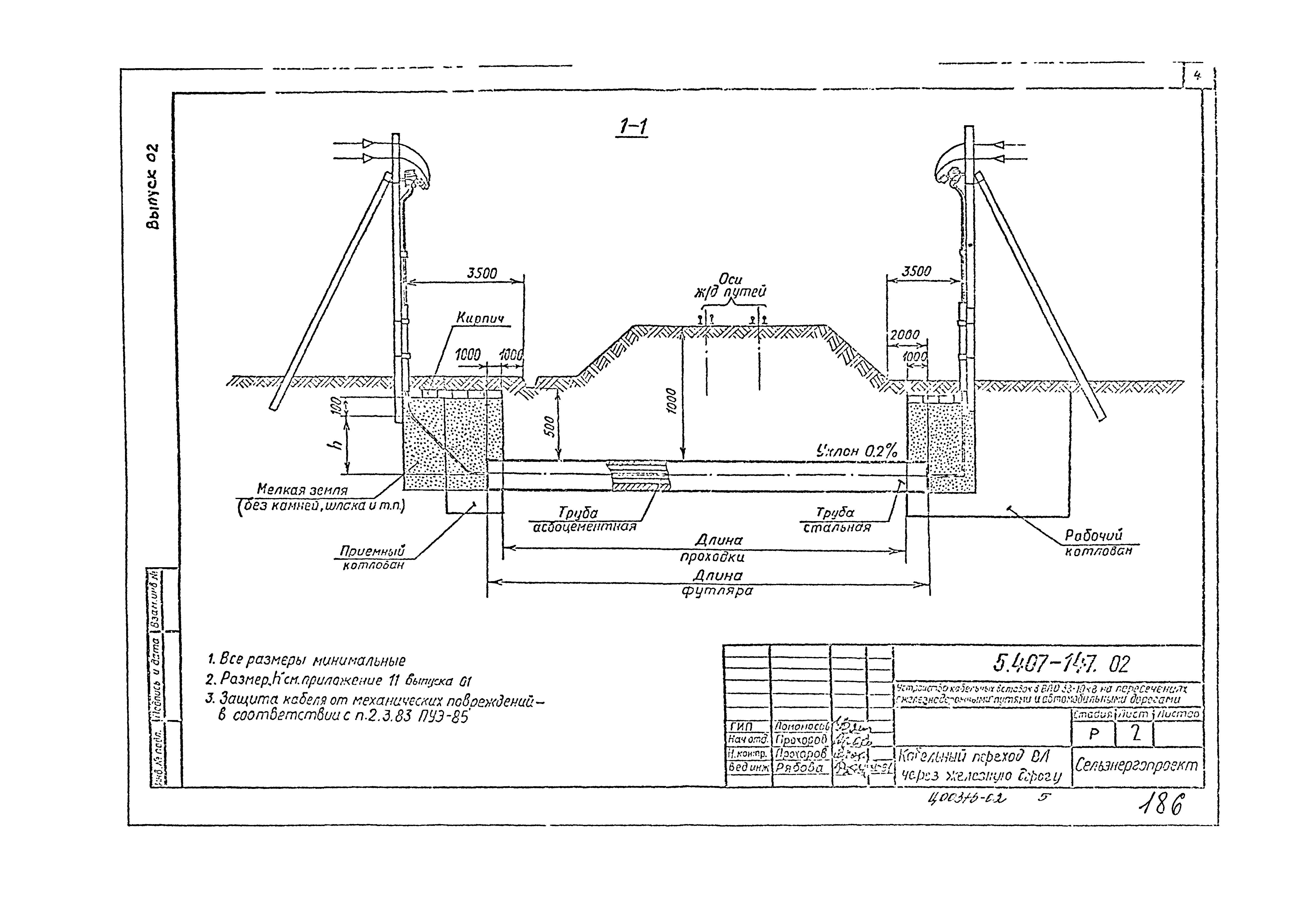
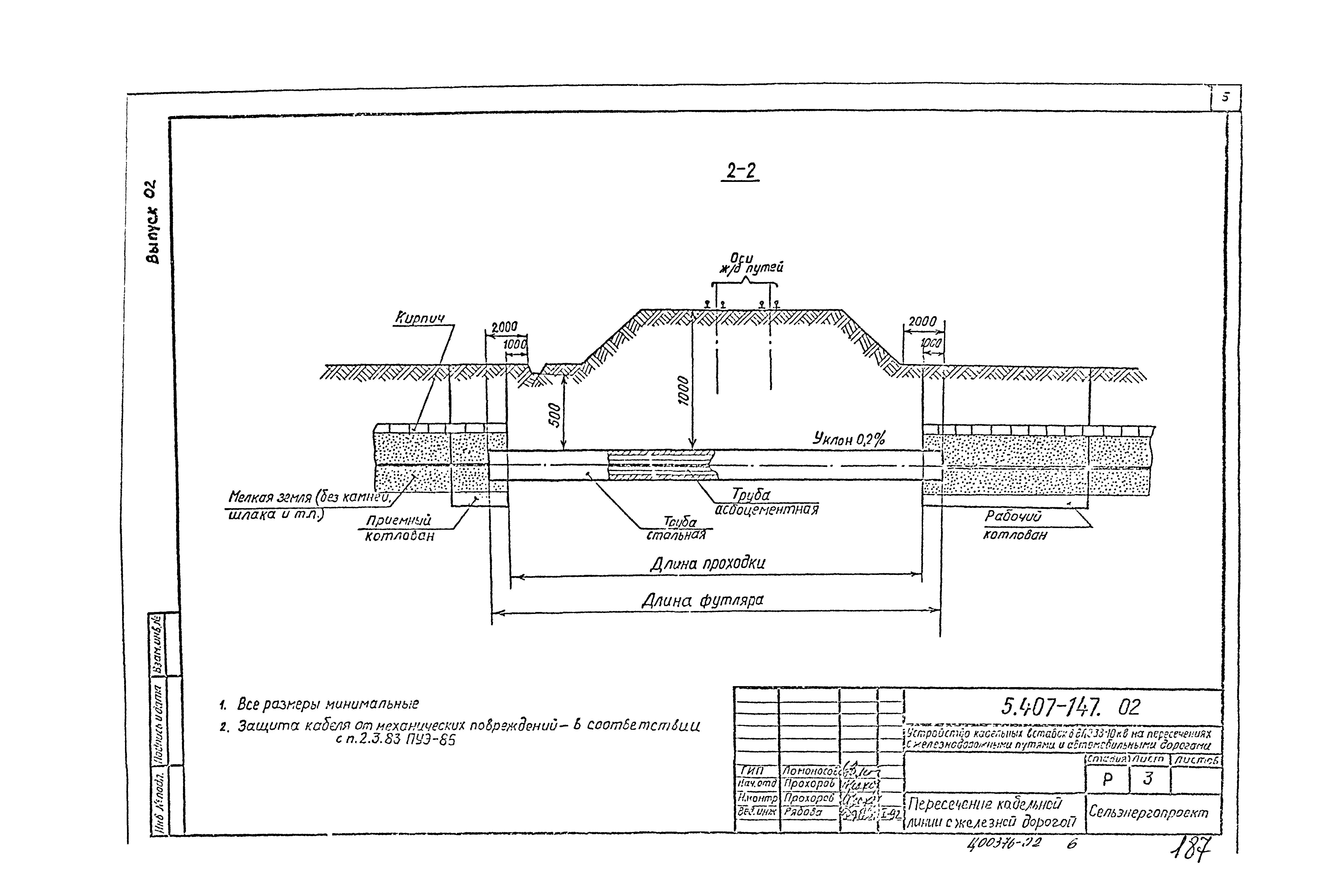
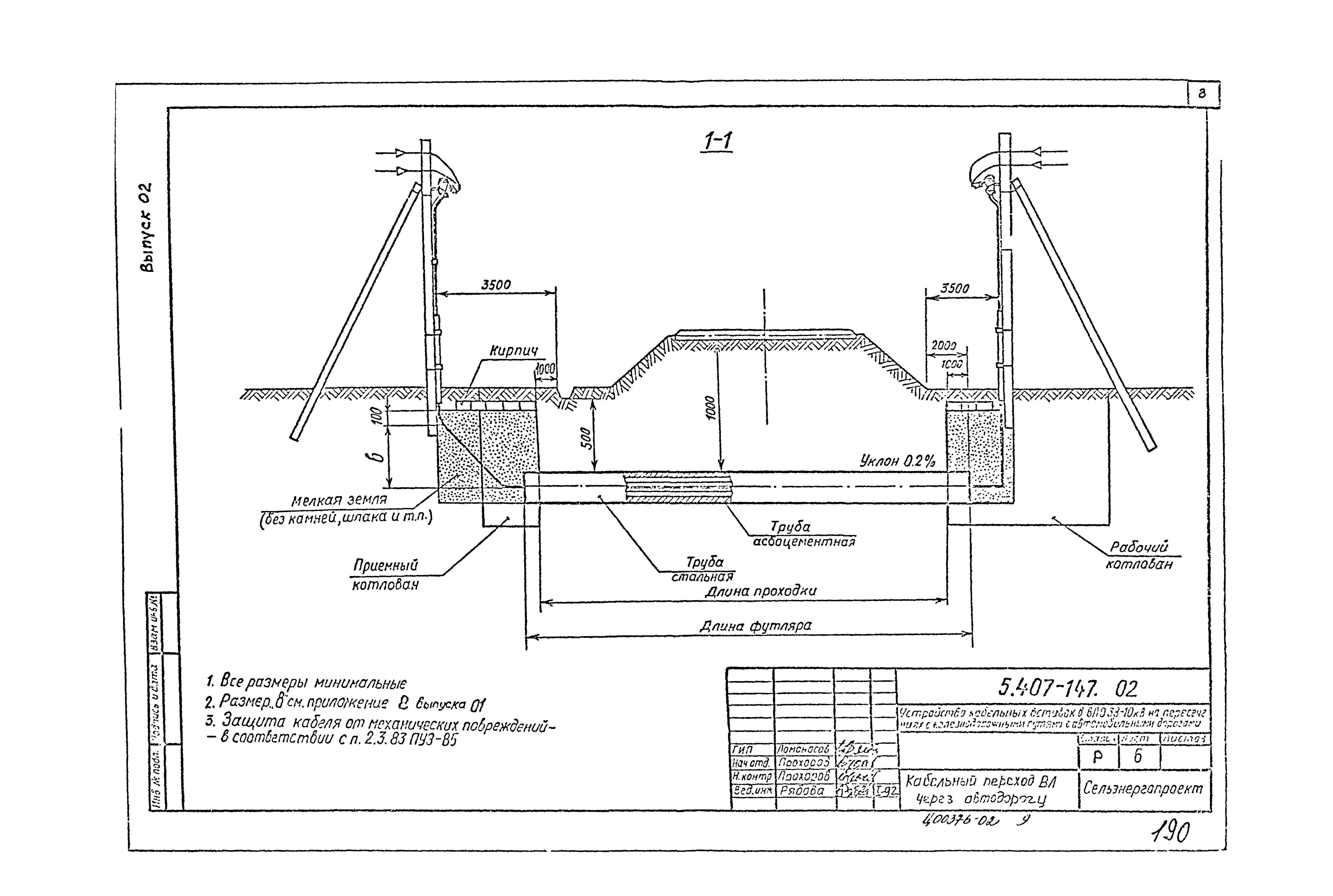
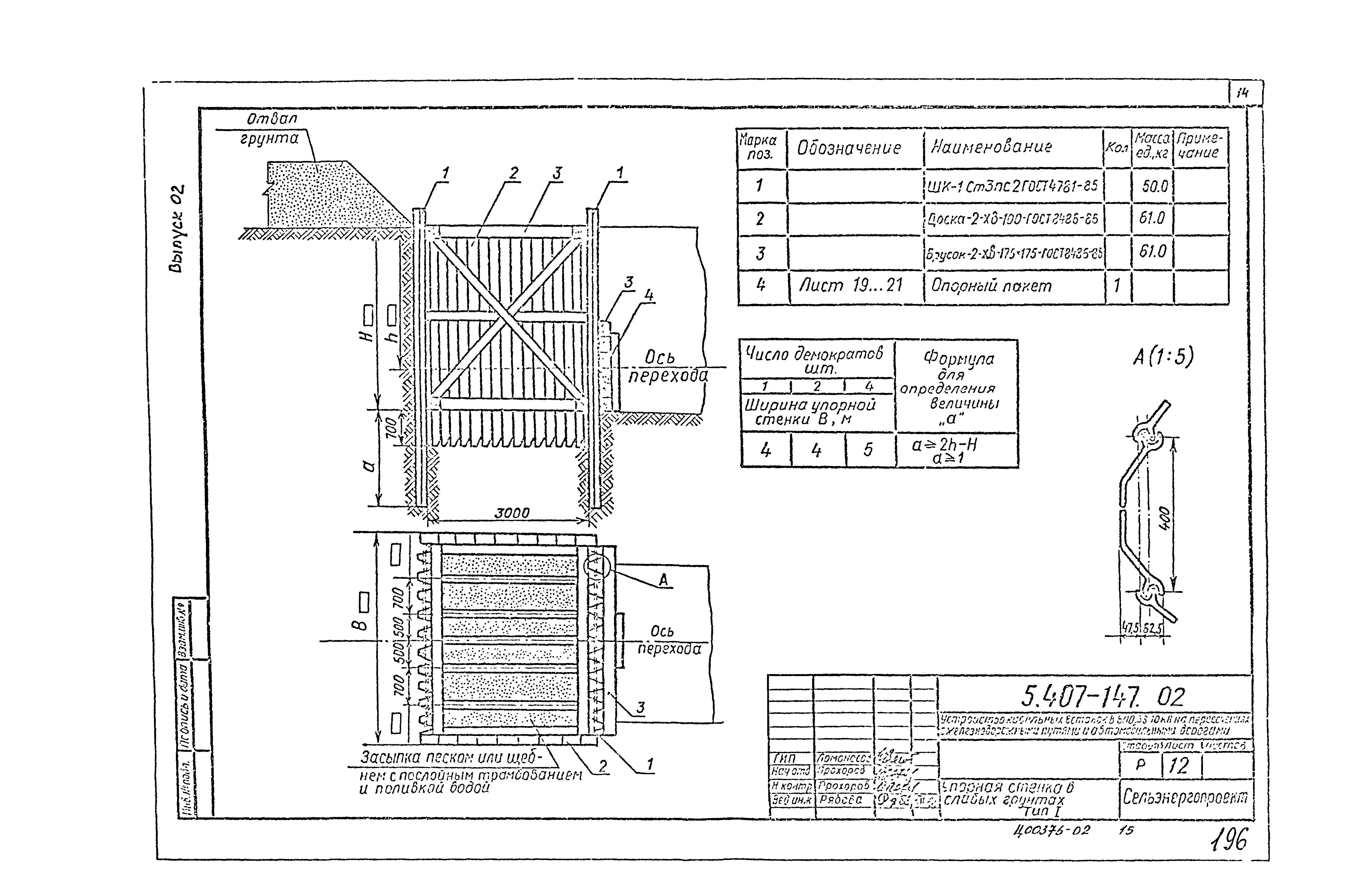
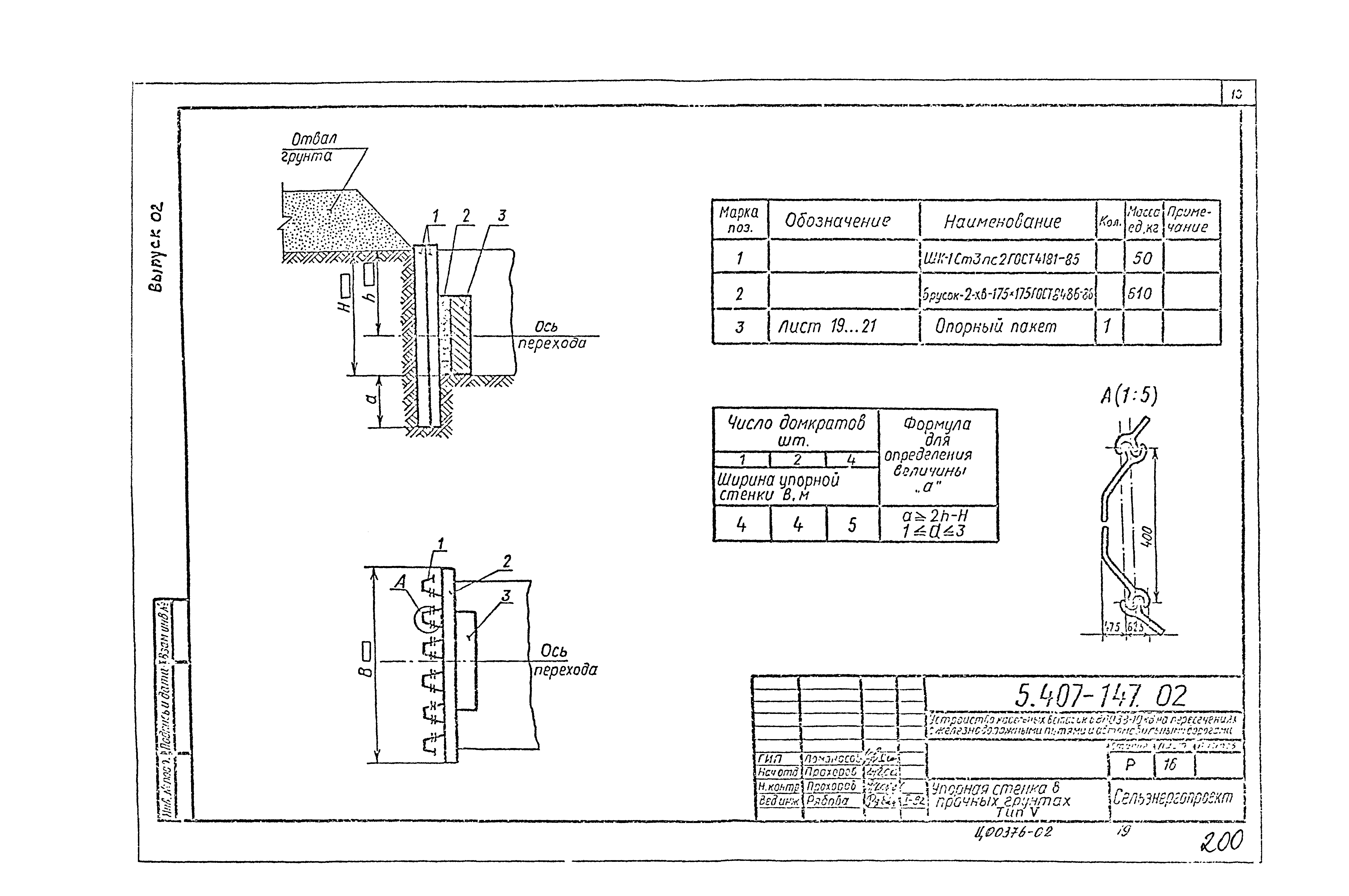
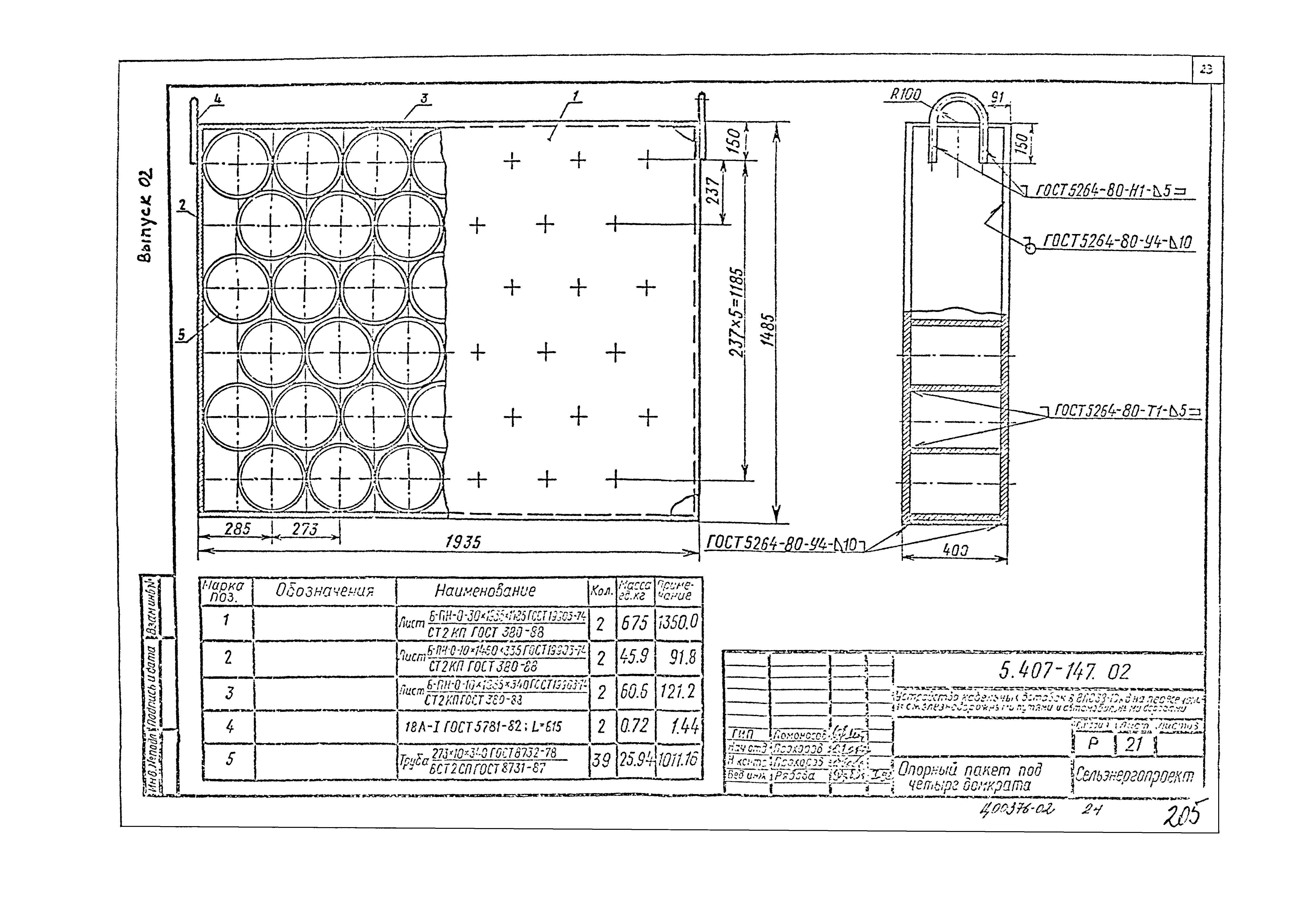
Скачать Серия 5.407-147 Выпуск 0-2. Схемы пересечений. Материалы для проектированияДата актуализации: 01.01.2021
|
| Обозначение: | Серия 5.407-147 |
| Обозначение англ: | Series 5.407-147 |
| Статус: | не определен законодательством |
| Название рус.: | Выпуск 0-2. Схемы пересечений. Материалы для проектирования |
| Дата добавления в базу: | 01.09.2013 |
| Дата актуализации: | 01.01.2021 |
| Дата введения: | 01.03.1992 |
| Дата окончания срока действия: | 30.06.2003 |
| Разработан: | Сельэнергопроект Минэнерго СССР |
| Утверждён: | 25.10.1991 Минэнерго СССР (USSR Minenergo ) |































