Скачать Серия 5.407-85 Выпуск 1. Монтажные чертежи. Чертежи изделийДата актуализации: 01.01.2021
|
| Обозначение: | Серия 5.407-85 |
| Обозначение англ: | Series 5.407-85 |
| Статус: | не определен законодательством |
| Название рус.: | Выпуск 1. Монтажные чертежи. Чертежи изделий |
| Дата добавления в базу: | 01.09.2013 |
| Дата актуализации: | 01.01.2021 |
| Дата введения: | 01.01.1988 |
| Дата окончания срока действия: | 30.06.2003 |
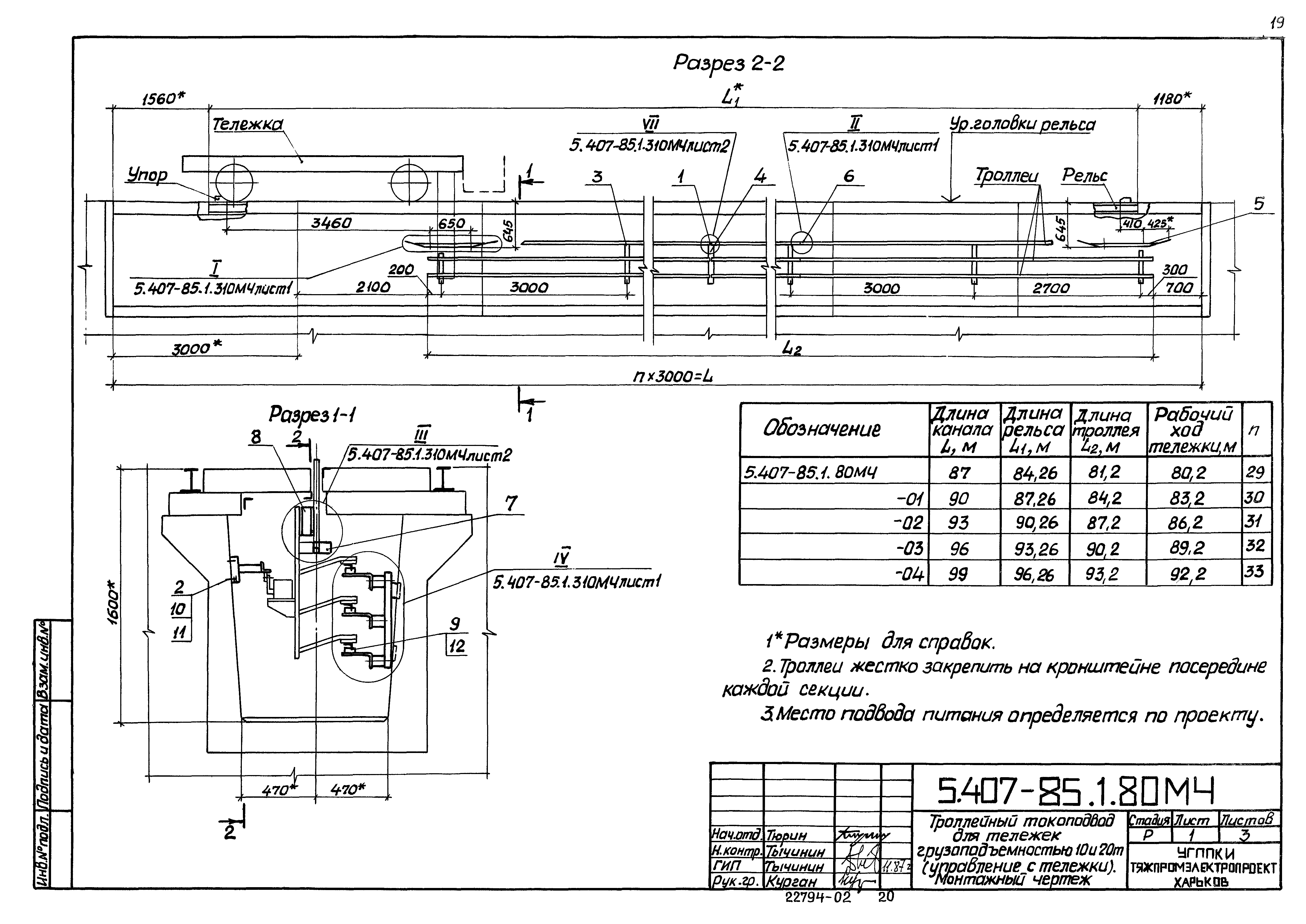
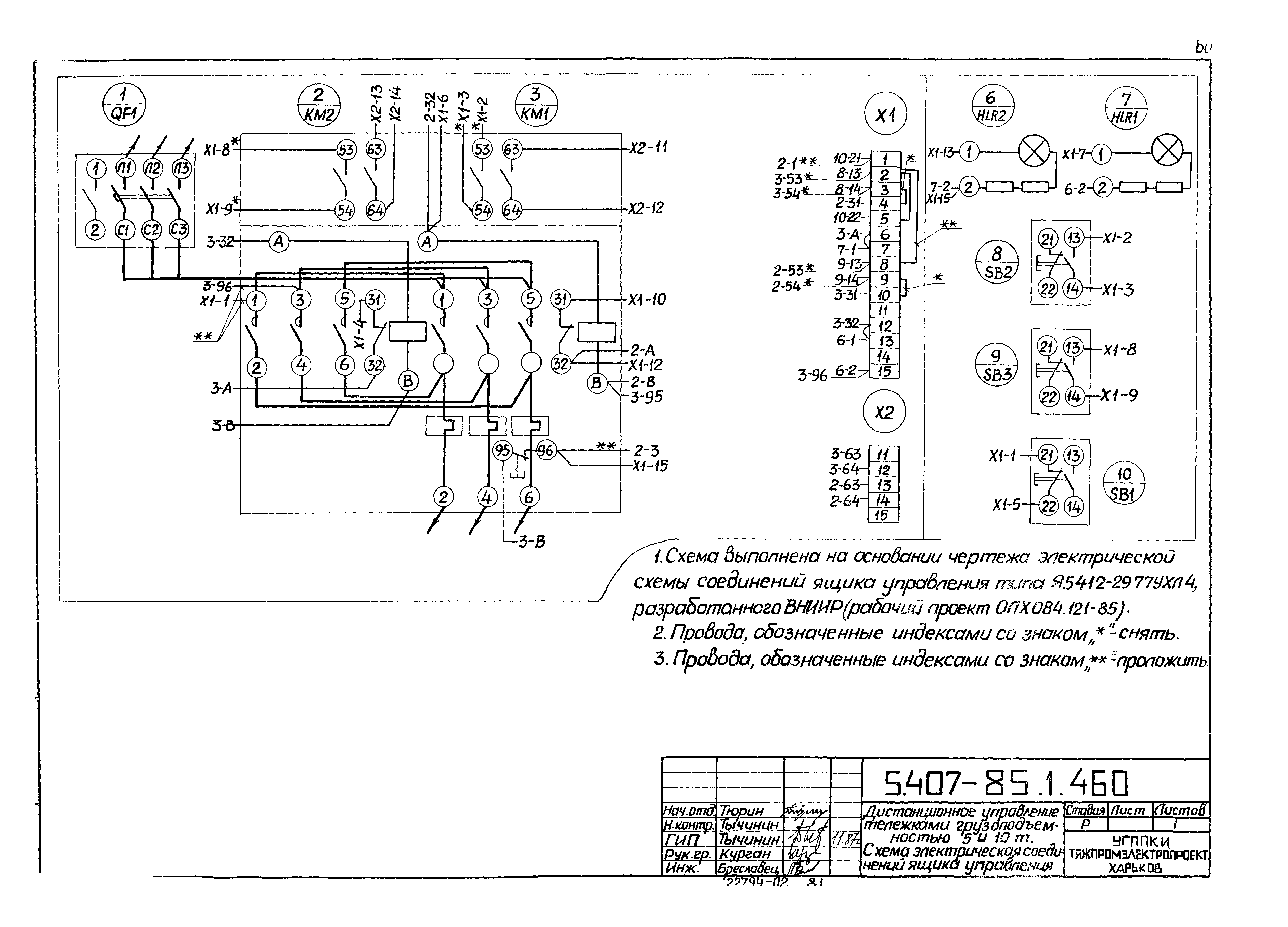
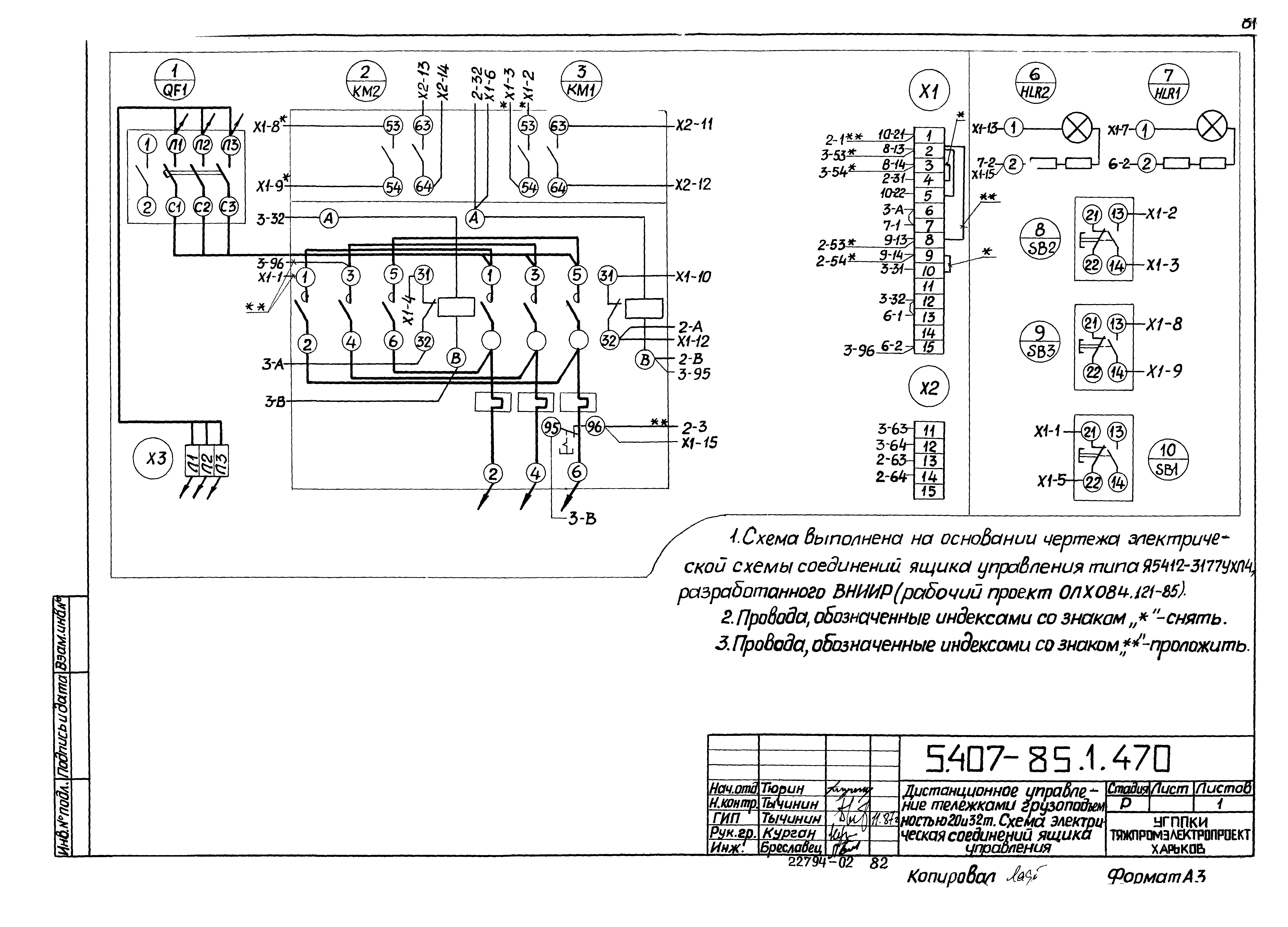
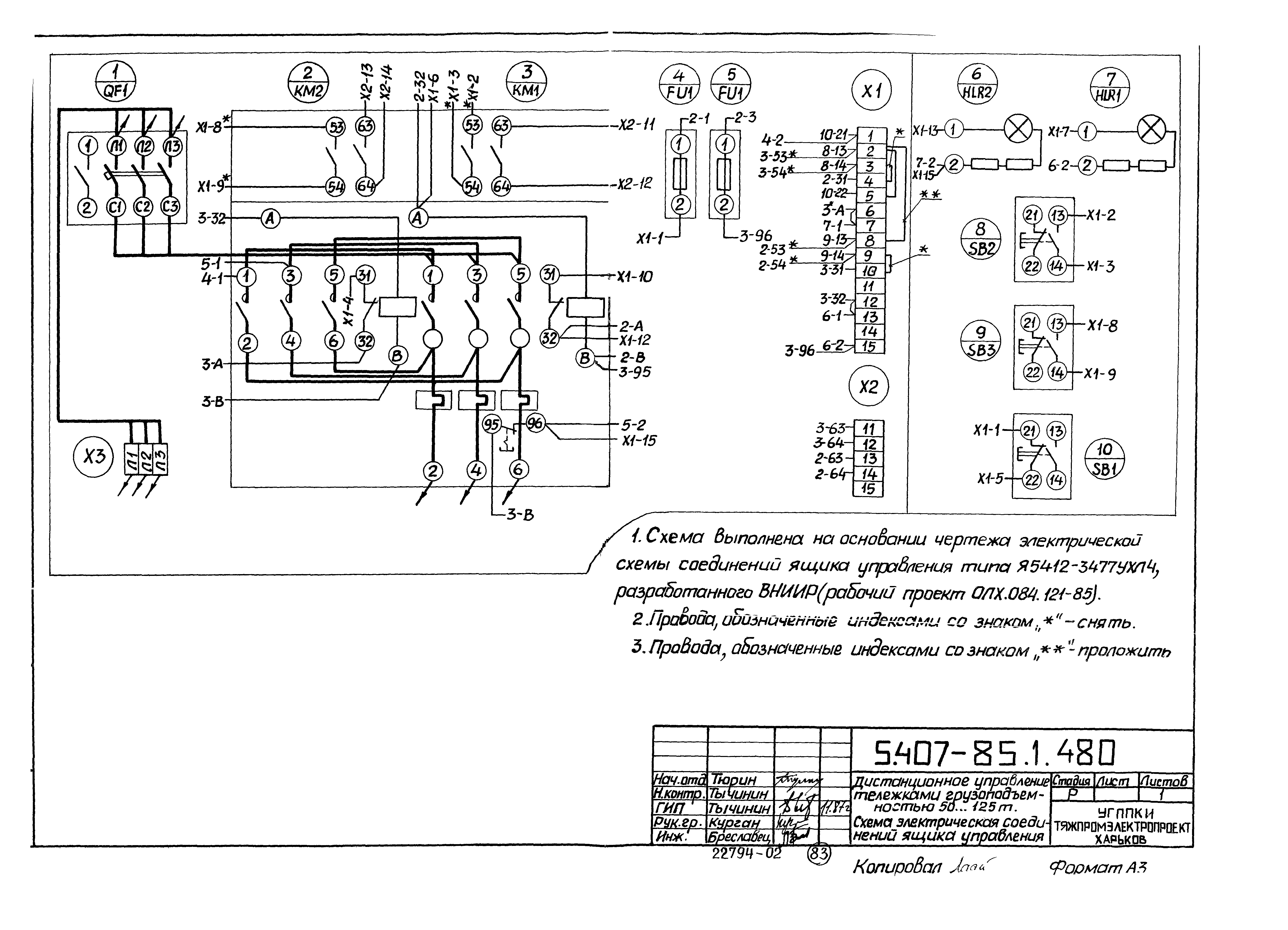
| Оглавление: | 5.407-85.1.10МЧ Троллейный токоподвод для тележки грузоподъемностью 5 т (управление с тележки). Монтажный чертеж 5.407-85.1.20МЧ Троллейный токоподвод для тележки грузоподъемностью 5 т (управление с тележки). Монтажный чертеж 5.407-85.1.30МЧ Троллейный токоподвод для тележки грузоподъемностью 5 т (управление с тележки). Монтажный чертеж 5.407-85.1.40МЧ Троллейный токоподвод для тележки грузоподъемностью 5 т (управление с тележки). Монтажный чертеж 5.407-85.1.50МЧ Троллейный токоподвод для тележек грузоподъемностью 10 и 20 т (управление с тележки). Монтажный чертеж 5.407-85.1.60МЧ Троллейный токоподвод для тележек грузоподъемностью 10 и 20 т (управление с тележки). Монтажный чертеж 5.407-85.1.70МЧ Троллейный токоподвод для тележек грузоподъемностью 10 и 20 т (управление с тележки). Монтажный чертеж 5.407-85.1.80МЧ Троллейный токоподвод для тележек грузоподъемностью 10 и 20 т (управление с тележки). Монтажный чертеж 5.407-85.1.90МЧ Троллейный токоподвод для тележки грузоподъемностью 32 т (управление с тележки). Монтажный чертеж 5.407-85.1.100МЧ Троллейный токоподвод для тележки грузоподъемностью 32 т (управление с тележки). Монтажный чертеж 5.407-85.1.110МЧ Троллейный токоподвод для тележки грузоподъемностью 32 т (управление с тележки). Монтажный чертеж 5.407-85.1.120МЧ Троллейный токоподвод для тележки грузоподъемностью 32 т (управление с тележки). Монтажный чертеж 5.407-85.1.130МЧ Троллейный токоподвод для тележек грузоподъемностью 50 и 63 т (управление с тележки). Монтажный чертеж 5.407-85.1.140МЧ Троллейный токоподвод для тележек грузоподъемностью 50 и 63 т (управление с тележки). Монтажный чертеж 5.407-85.1.150МЧ Троллейный токоподвод для тележек грузоподъемностью 50 и 63 т (управление с тележки). Монтажный чертеж 5.407-85.1.160МЧ Троллейный токоподвод для тележек грузоподъемностью 50 и 63 т (управление с тележки). Монтажный чертеж 5.407-85.1.170МЧ Троллейный токоподвод для тележки грузоподъемностью 80 т (управление с тележки). Монтажный чертеж 5.407-85.1.180МЧ Троллейный токоподвод для тележки грузоподъемностью 80 т (управление с тележки). Монтажный чертеж 5.407-85.1.190МЧ Троллейный токоподвод для тележки грузоподъемностью 80 т (управление с тележки). Монтажный чертеж 5.407-85.1.200МЧ Троллейный токоподвод для тележки грузоподъемностью 80 т (управление с тележки). Монтажный чертеж 5.407-85.1.210МЧ Троллейный токоподвод для тележек грузоподъемностью 100 и 125 т (управление с тележки). Монтажный чертеж 5.407-85.1.220МЧ Троллейный токоподвод для тележек грузоподъемностью 100 и 125 т (управление с тележки). Монтажный чертеж 5.407-85.1.230МЧ Троллейный токоподвод для тележек грузоподъемностью 100 и 125 т (управление с тележки). Монтажный чертеж 5.407-85.1.240МЧ Троллейный токоподвод для тележек грузоподъемностью 100 и 125 т (управление с тележки). Монтажный чертеж 5.407-85.1.250МЧ Троллейный токоподвод для тележки грузоподъемностью 5 т (дистанционное управление). Монтажный чертеж 5.407-85.1.260МЧ Троллейный токоподвод для тележек грузоподъемностью 10 и 20 т (дистанционное управление). Монтажный чертеж 5.407-85.1.270МЧ Троллейный токоподвод для тележки грузоподъемностью 32 т (дистанционное управление). Монтажный чертеж 5.407-85.1.280МЧ Троллейный токоподвод для тележек грузоподъемностью 50 и 63 т (дистанционное управление). Монтажный чертеж 5.407-85.1.290МЧ Троллейный токоподвод для тележки грузоподъемностью 80 т (дистанционное управление). Монтажный чертеж 5.407-85.1.300МЧ Троллейный токоподвод для тележек грузоподъемностью 100 и 125 т (дистанционное управление). Монтажный чертеж 5.407-85.1.310МЧ Узлы крепления конструкций в канале. Монтажный чертеж 5.407-85.1.320 Кронштейн 5.407-85.1.321 Скоба 5.407-85.1.322 Угольник 5.407-85.1.330 Стойка 5.407-85.1.340 Кронштейн 5.407-85.1.350 Стойка 5.407-85.1.360 Линейка 5.407-85.1.370 Линейка 5.407-85.1.380 Отключающее устройство 5.407-85.1.390 Кронштейн 5.407-85.1.400 Отключающее устройство 5.407-85.1.410 Кронштейн 5.407-85.1.420 Держатель 5.407-85.1.430 Уголок 5.407-85.1.440 Козырек 5.407-85.1.450 Швеллер 5.407-85.1.460 Дистанционное управление тележками грузоподъемностью 5 и 10 т. Схема электрическая соединений ящика управления 5.407-85.1.470 Дистанционное управление тележками грузоподъемностью 20 и 32 т. Схема электрическая соединений ящика управления 5.407-85.1.480 Дистанционное управление тележками грузоподъемностью 50 … 125 т. Схема электрическая соединений ящика управления |
| Разработан: | Украинский Тяжпромэлектропроект |
| Утверждён: | 30.11.1987 Минмонтажспецстрой СССР (USSR Minmontazhspetsstroy ) |
| Издан: | ЦИТП Госстроя СССР (CITP, Gosstroy (USSR) 1988 г. ) |

















































































