Скачать Серия 5.407-31 Ящики с зажимами для контрольных проводов и кабелей. Чертежи изделийДата актуализации: 01.01.2021
|
| Обозначение: | Серия 5.407-31 |
| Обозначение англ: | Series 5.407-31 |
| Статус: | не определен законодательством |
| Название рус.: | Ящики с зажимами для контрольных проводов и кабелей. Чертежи изделий |
| Дата добавления в базу: | 01.09.2013 |
| Дата актуализации: | 01.01.2021 |
| Дата введения: | 01.01.1983 |
| Дата окончания срока действия: | 30.06.2003 |
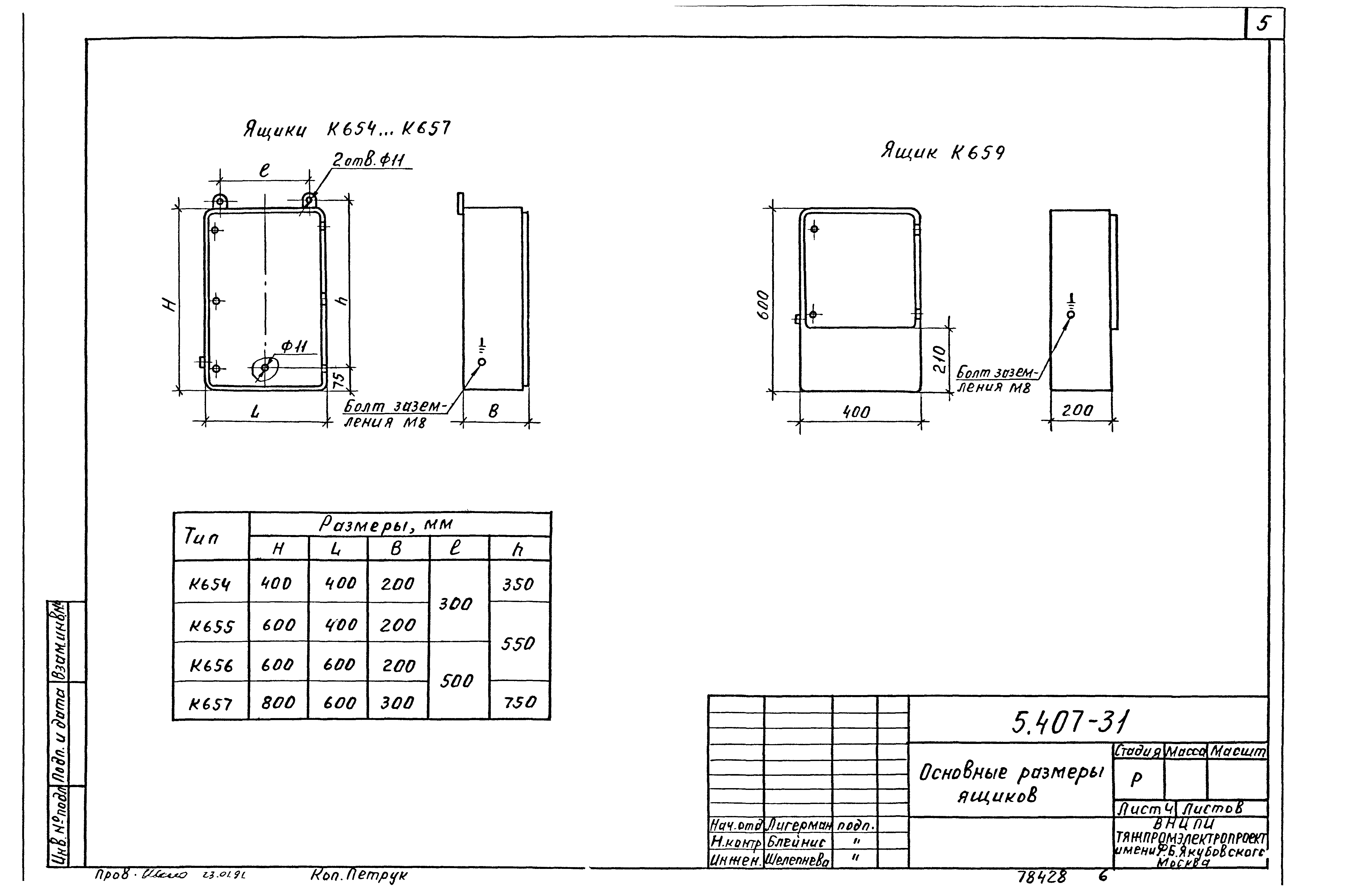
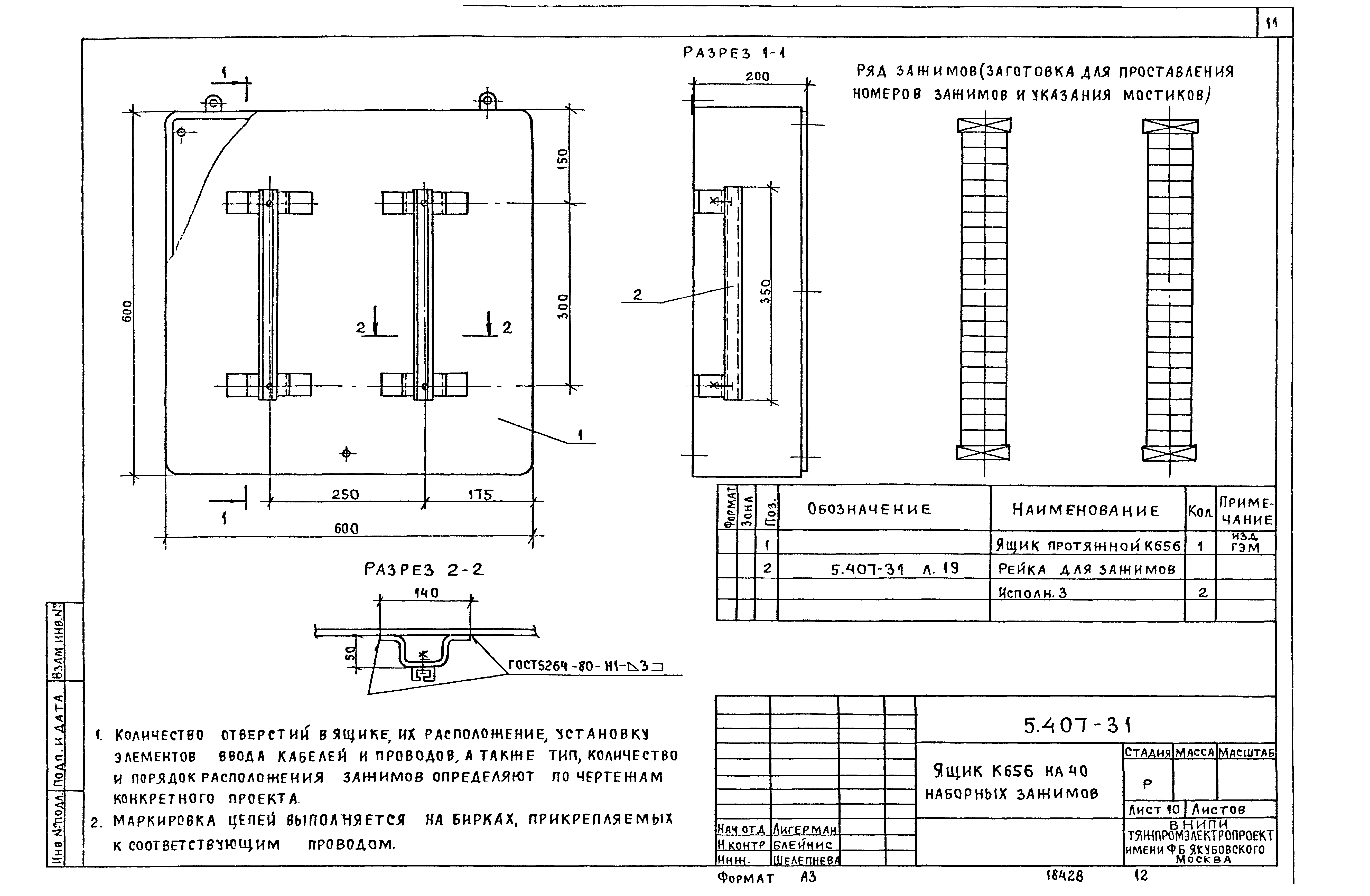
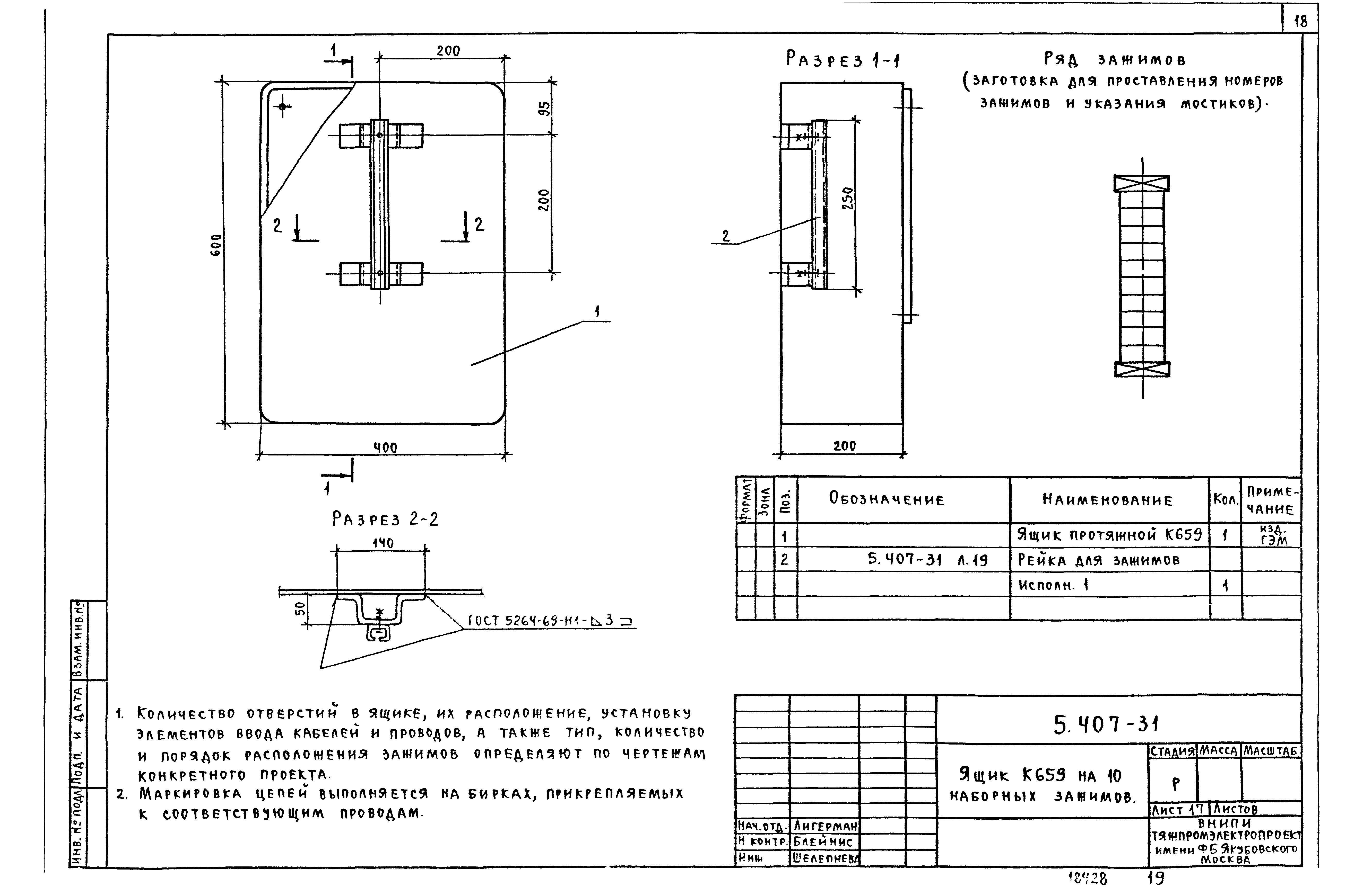
| Оглавление: | Общие указания Таблица выбора чертежей Основные размеры ящиков Примеры установки ящиков с зажимами Ящик К654 на 10 наборных зажимов Ящик К654 на 15 наборных зажимов Ящик К655 на 20 наборных зажимов Ящик К655 на 30 наборных зажимов Ящик К656 на 40 наборных зажимов Ящик К656 на 50 наборных зажимов Ящик К656 на 60 наборных зажимов Ящик К656 на 70 наборных зажимов Ящик К657 на 80 наборных зажимов Ящик К657 на 90 наборных зажимов Ящик К657 на 100 наборных зажимов Ящик К659 на 10 наборных зажимов Ящик К659 на 15 наборных зажимов Рейка для зажимов. Исполнение 1 … 3 Рейка для зажимов. Исполнение 4 … 9 Ведомость изделий и материалов |
| Разработан: | ВНИПИ Тяжпромэлектропроект им. Ф.Б. Якубовского |
| Утверждён: | 27.09.1982 Минмонтажспецстрой СССР (USSR Minmontazhspetsstroy ) |
| Издан: | ГП ЦПП (1996 г. ) |






















