Скачать Серия 5.407-92 Выпуск 2. Чертежи изделийДата актуализации: 01.01.2021
|
| Обозначение: | Серия 5.407-92 |
| Обозначение англ: | Series 5.407-92 |
| Статус: | не определен законодательством |
| Название рус.: | Выпуск 2. Чертежи изделий |
| Дата добавления в базу: | 01.09.2013 |
| Дата актуализации: | 01.01.2021 |
| Дата введения: | 01.01.1988 |
| Дата окончания срока действия: | 30.06.2003 |
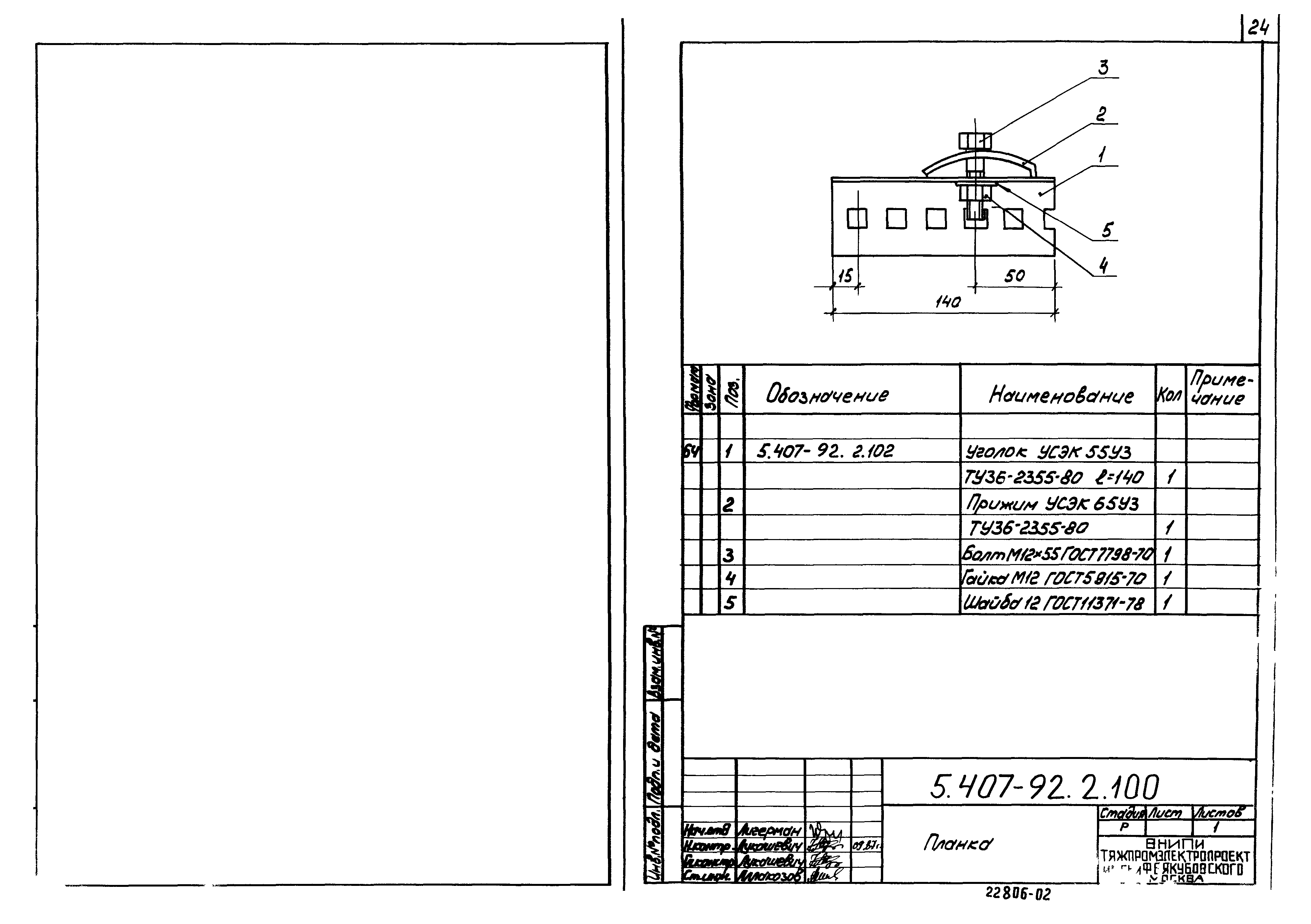
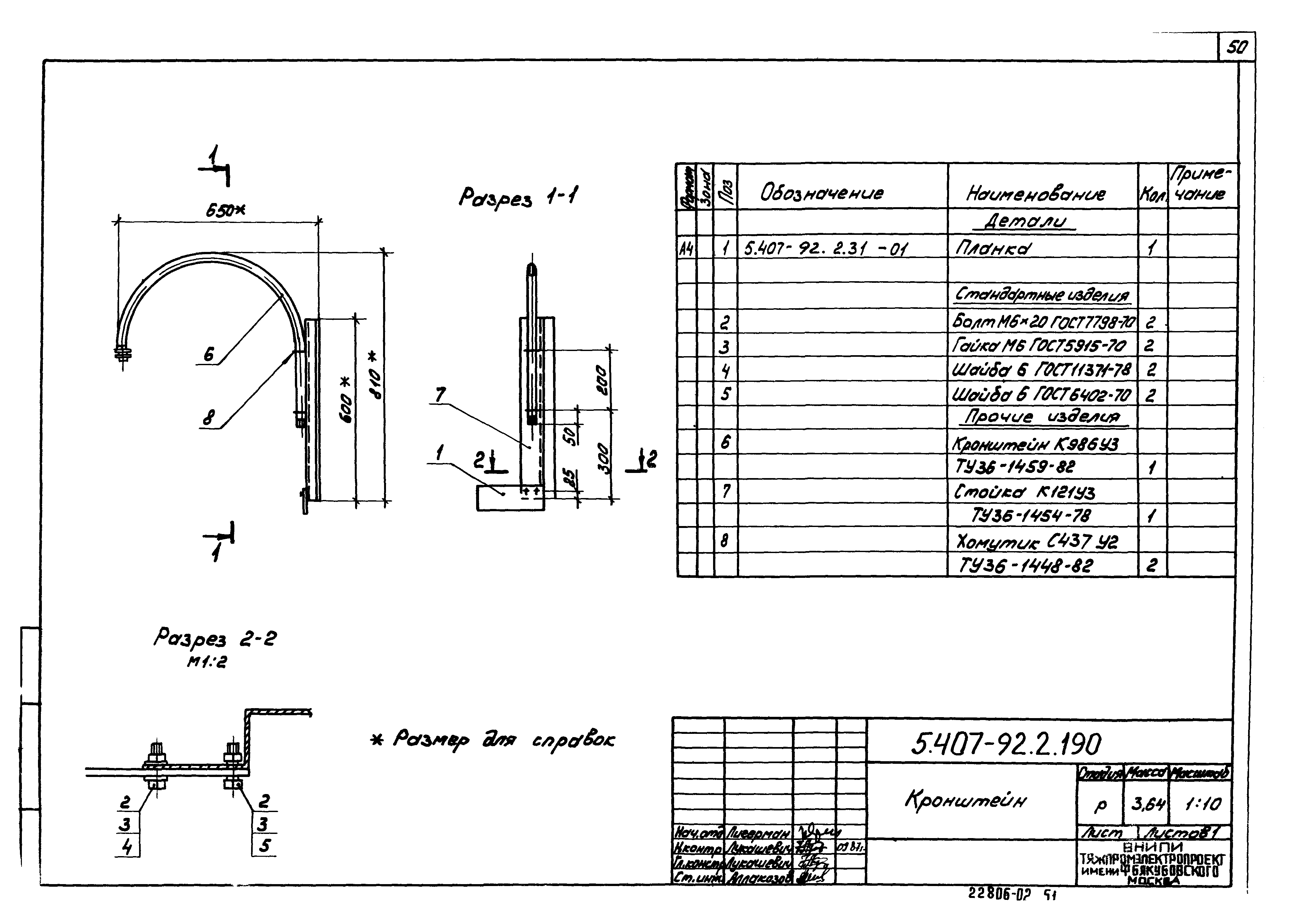
| Оглавление: | 5.407-92.2.10 Подвес для установки светильника с лампой накаливания 5.407-92.2.10 СБ Подвес для установки светильника с лампой накаливания. Сборочный чертеж 5.407-92.2.20 Основание 5.407-92.2.30 Подвес 5.407-92.2.31 Планка для установки розеток типа РШ-ц-20-0-01-10/220, РШ-ц-30-0-Н-25/380 УХЛ4 5.407-92.2.40 Подвес для установки светильника с РЛВД 5.407-92.2.40СБ Подвес для установки светильника с РЛВД. Сборочный чертеж 5.407-92.2.250 Скоба 5.407-92.2.60 Кронштейн для установки светильника с лампой накаливания 5.407-92.2.60 СБ Кронштейн для установки светильника с лампой накаливания. Сборочный чертеж 5.407-92.2.70 Кронштейн 5.407-92.2.80 Стойка 5.407-92.2.90 Стойка 5.407-92.2.100 Планка 5.407-92.2.101 Шпилька 5.407-92.2.110 Кронштейн для установки светильника с РЛВД 5.407-92.2.110 СБ Кронштейн для установки светильника с РЛВД. Сборочный чертеж 5.407-92.2.120 Кронштейн 5.407-92.2.130 Кронштейн для установки светильников с лампой накаливания и РЛВД 5.407-92.2.130 СБ Кронштейн для установки светильников с лампой накаливания и РЛВД. Сборочный чертеж 5.407-92.2.140 Кронштейн для установки двух светильников с РЛВД 5.407-92.2.140 СБ Кронштейн для установки двух светильников с РЛВД. Сборочный чертеж 5.407-92.2.150 Подвес для установки светильника с лампой накаливания 5.407-92.2.150 СБ Подвес для установки светильника с лампой накаливания. Сборочный чертеж 5.407-92.2.160 Основание 5.407-92.2.170 Подвес для установки светильника с РЛВД 5.407-92.2.170 СБ Подвес для установки светильника с РЛВД. Сборочный чертеж 5.407-92.2.180 Кронштейн для установки светильника с лампой накаливания 5.407-92.2.180 СБ Кронштейн для установки светильника с лампой накаливания. Сборочный чертеж 5.407-92.2.190 Кронштейн 5.407-92.2.200 Кронштейн для установки светильника с РЛВД 5.407-92.2.200 СБ Кронштейн для установки светильника с РЛВД. Сборочный чертеж 5.407-92.2.210 Кронштейн 5.407-92.2.220 Кронштейн для установки светильников с лампой накаливания и РЛВД 5.407-92.2.220 СБ Кронштейн для установки светильников с лампой накаливания и РЛВД. Сборочный чертеж 5.407-92.2.230 Кронштейн для установки двух светильников с РЛВД 5.407-92.2.230 СБ Кронштейн для установки двух светильников с РЛВД. Сборочный чертеж 5.407-92.2.240 Кронштейн для установки светильника с лампой накаливания 5.407-92.2.240 СБ Кронштейн для установки светильника с лампой накаливания. Сборочный чертеж 5.407-92.2.250 Кронштейн для установки светильника с РЛВД 5.407-92.2.250 СБ Кронштейн для установки светильника с РЛВД. Сборочный чертеж 5.407-92.2.260 Кронштейн для установки светильников с лампой накаливания и РЛВД 5.407-92.2.260 СБ Кронштейн для установки светильников с лампой накаливания и РЛВД. Сборочный чертеж 5.407-92.2.270 Кронштейн для установки двух светильников с РЛВД 5.407-92.2.270 СБ Кронштейн для установки двух светильников с РЛВД. Сборочный чертеж 5.407-92.2.280 Подвес для установки светильника с лампой накаливания 5.407-92.2.280 СБ Подвес для установки светильника с лампой накаливания. Сборочный чертеж 5.407-92.2.290 Подвес для установки светильника с РЛВД 5.407-92.2.290 СБ Подвес для установки светильника с РЛВД. Сборочный чертеж |
| Разработан: | ВНИПИ Тяжпромэлектропроект им. Ф.Б. Якубовского |
| Утверждён: | 20.11.1987 Минмонтажспецстрой СССР (USSR Minmontazhspetsstroy ) |















































































