Скачать Серия 5.407-112 Выпуск 0. Материалы для проектированияДата актуализации: 01.01.2021
|
| Обозначение: | Серия 5.407-112 |
| Обозначение англ: | Series 5.407-112 |
| Статус: | не определен законодательством |
| Название рус.: | Выпуск 0. Материалы для проектирования |
| Дата добавления в базу: | 01.09.2013 |
| Дата актуализации: | 01.01.2021 |
| Дата введения: | 01.01.1990 |
| Дата окончания срока действия: | 30.06.2003 |
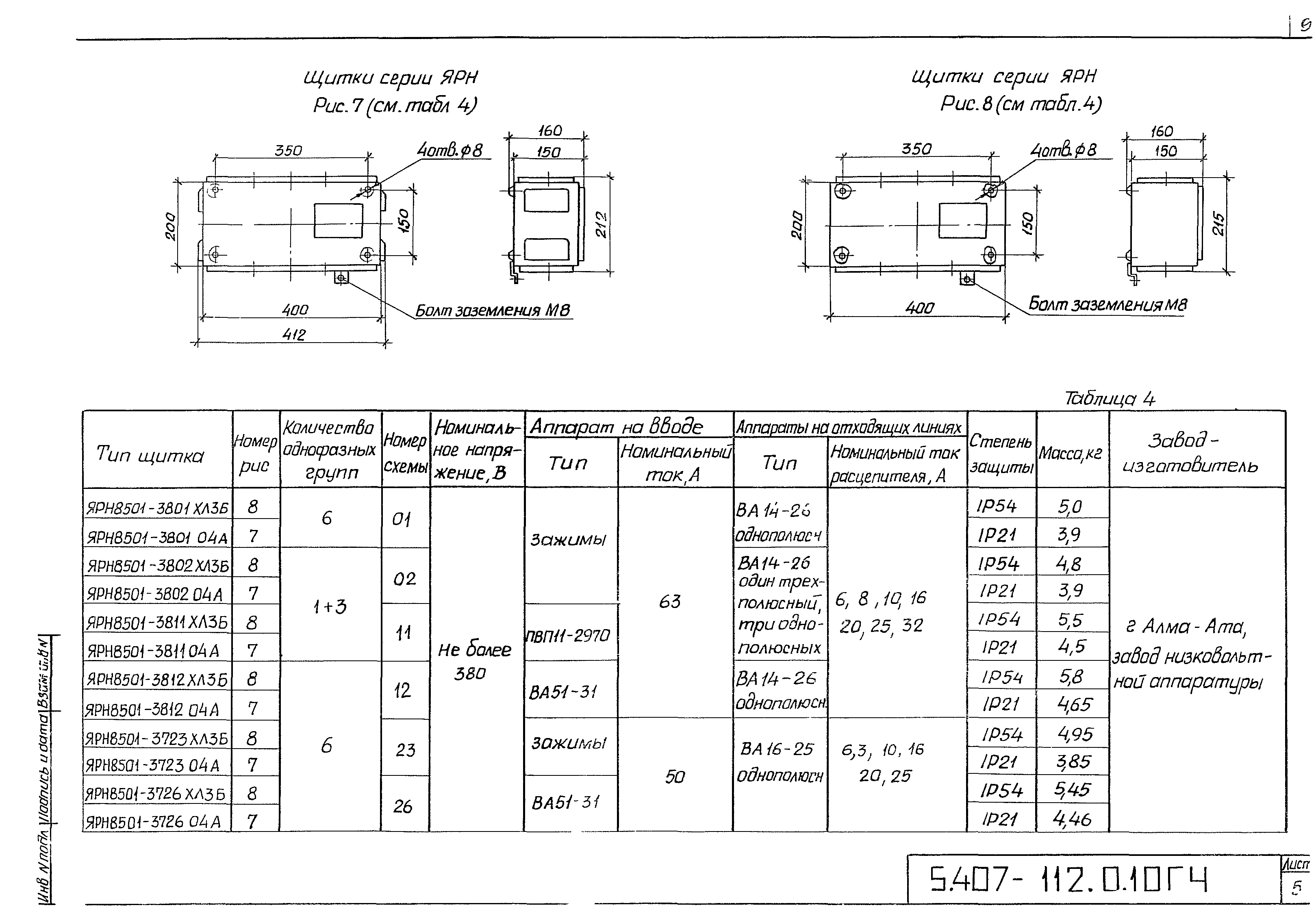
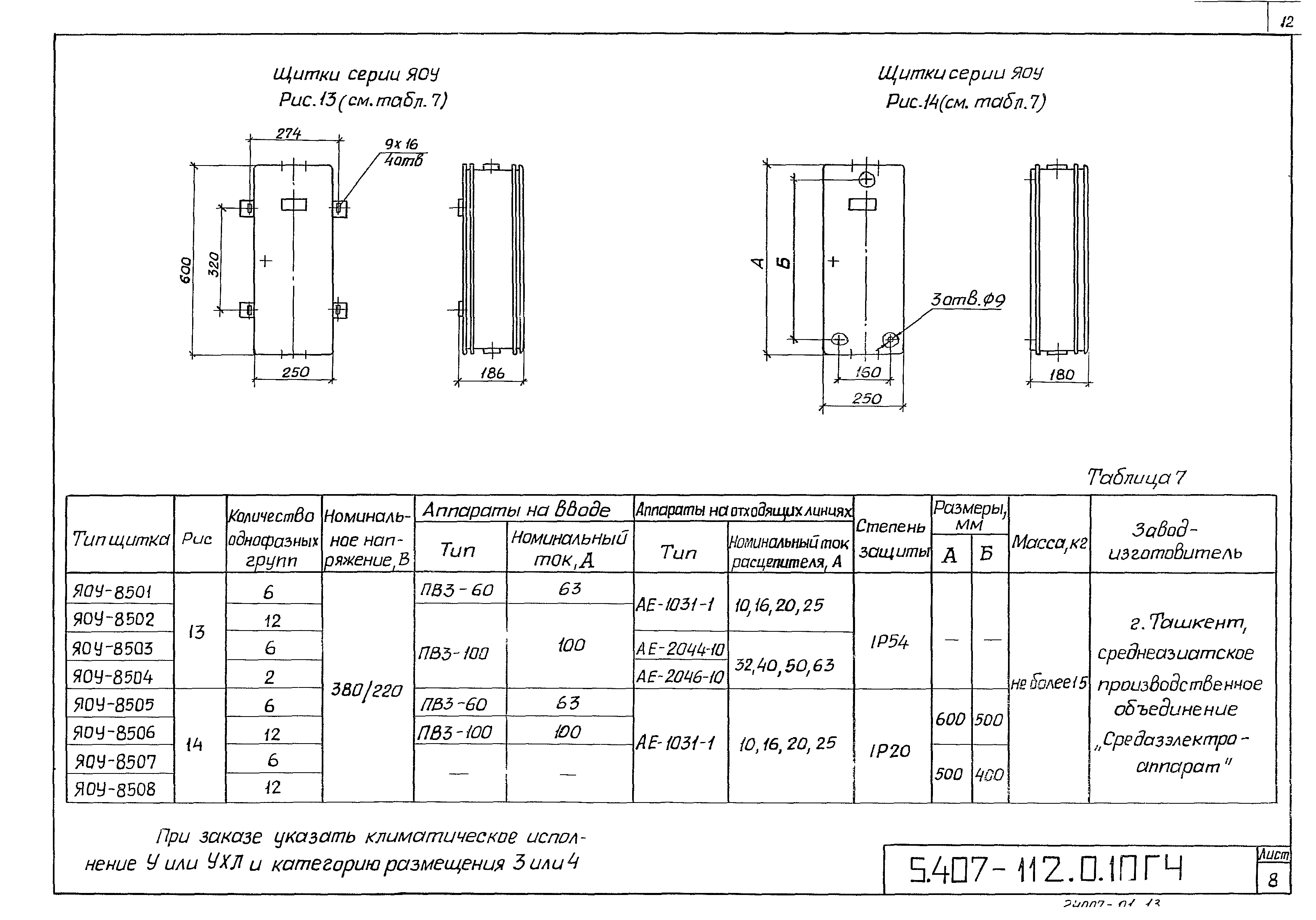
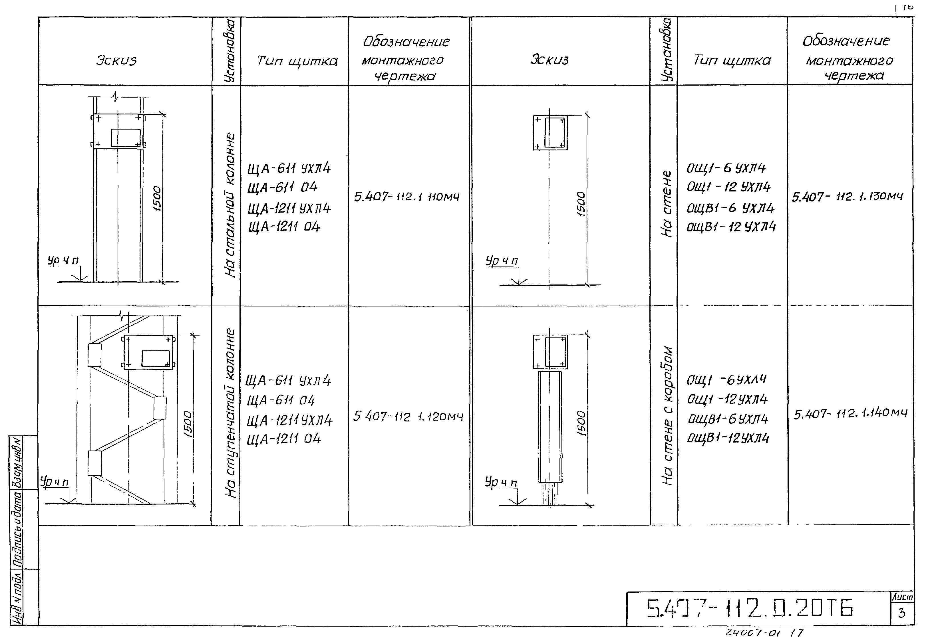
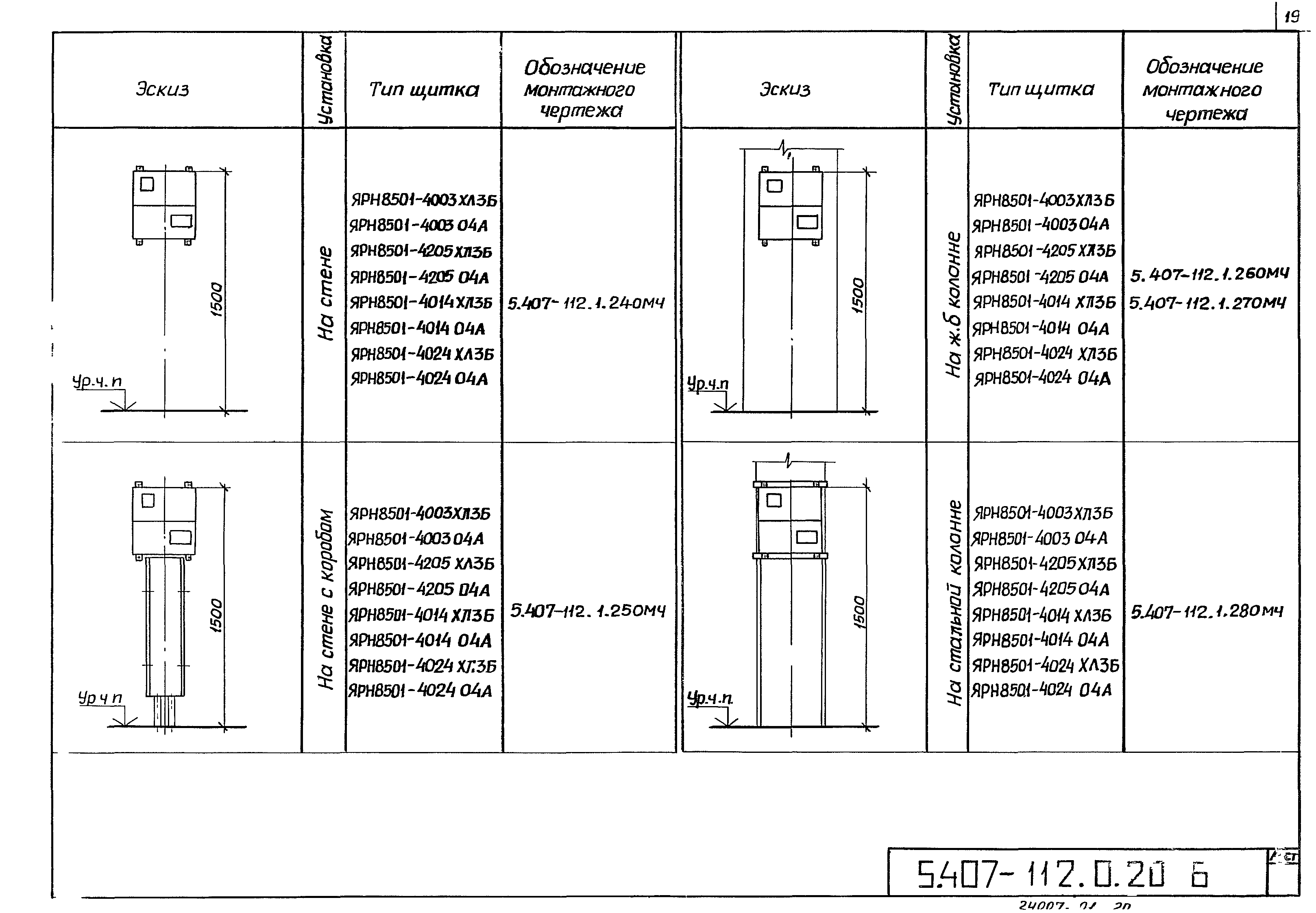
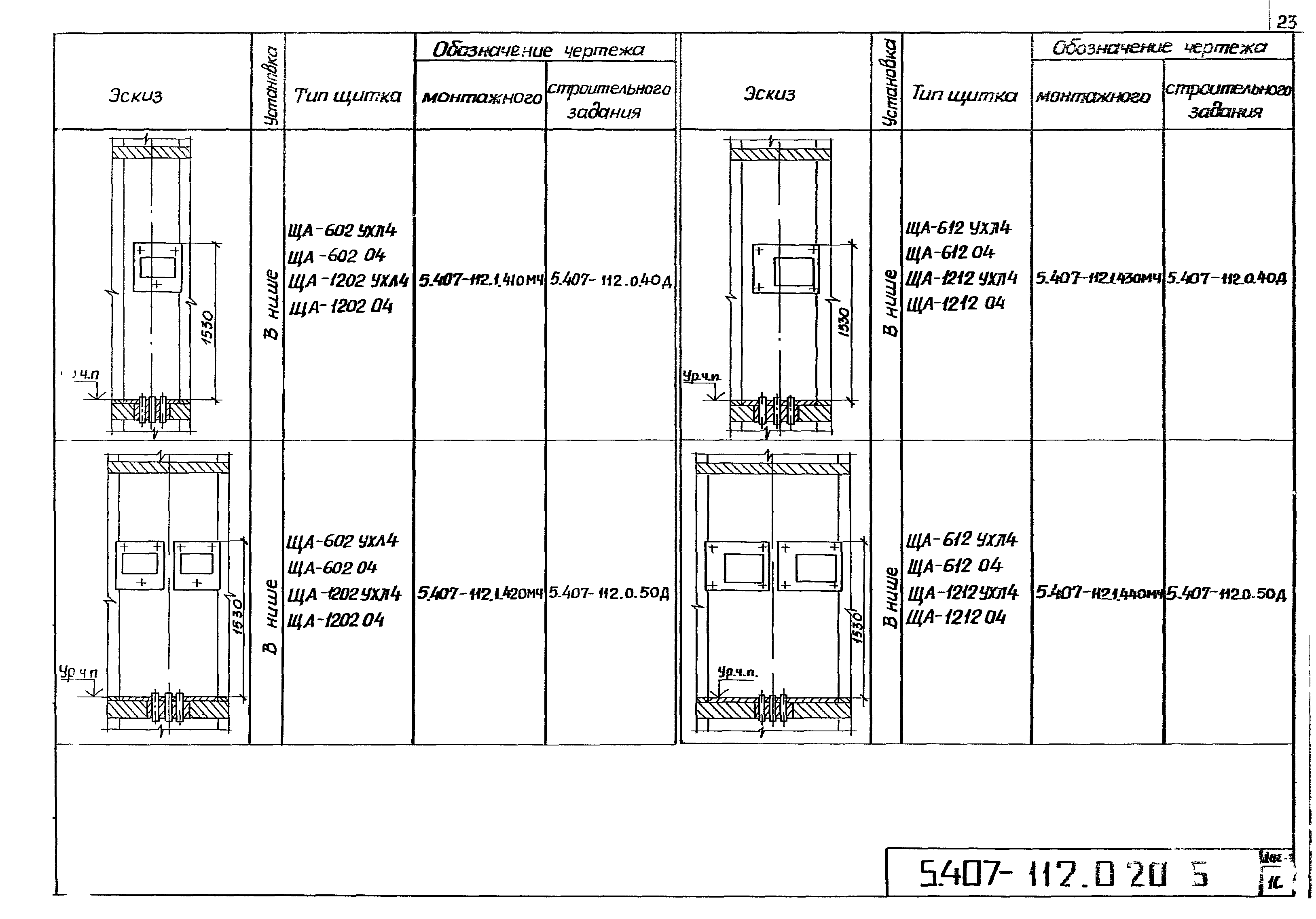
| Оглавление: | 5.407-112.0.ПЗ Пояснительная записка 5.407-112.0.10ГЧ Щитки и ящики. Габаритный чертеж 5.407-112.0.20ТБ Таблица выбора чертежей 5.407-112.0.30Д Ведомость потребности в оборудовании, изделиях и материалах 5.407-112.0.40Д Строительное задание на нишу для одного щитка 5.407-112.0.50Д Строительное задание на нишу для двух щитков 5.407-112.0.60Д Расположение щитков освещения в цехе (Пример) |
| Разработан: | Украинский Тяжпромэлектропроект |
| Утверждён: | 14.02.1989 НПО Электромонтаж ММСС СССР |
| Издан: | ЦИТП Госстроя СССР (CITP, Gosstroy (USSR) 1989 г. ) |































