Скачать Серия 5.407-140 Выпуск 1. Узлы и изделия. Рабочие чертежиДата актуализации: 01.01.2021
|
| Обозначение: | Серия 5.407-140 |
| Обозначение англ: | Series 5.407-140 |
| Статус: | не определен законодательством |
| Название рус.: | Выпуск 1. Узлы и изделия. Рабочие чертежи |
| Дата добавления в базу: | 01.09.2013 |
| Дата актуализации: | 01.01.2021 |
| Дата введения: | 01.08.1991 |
| Дата окончания срока действия: | 30.06.2003 |
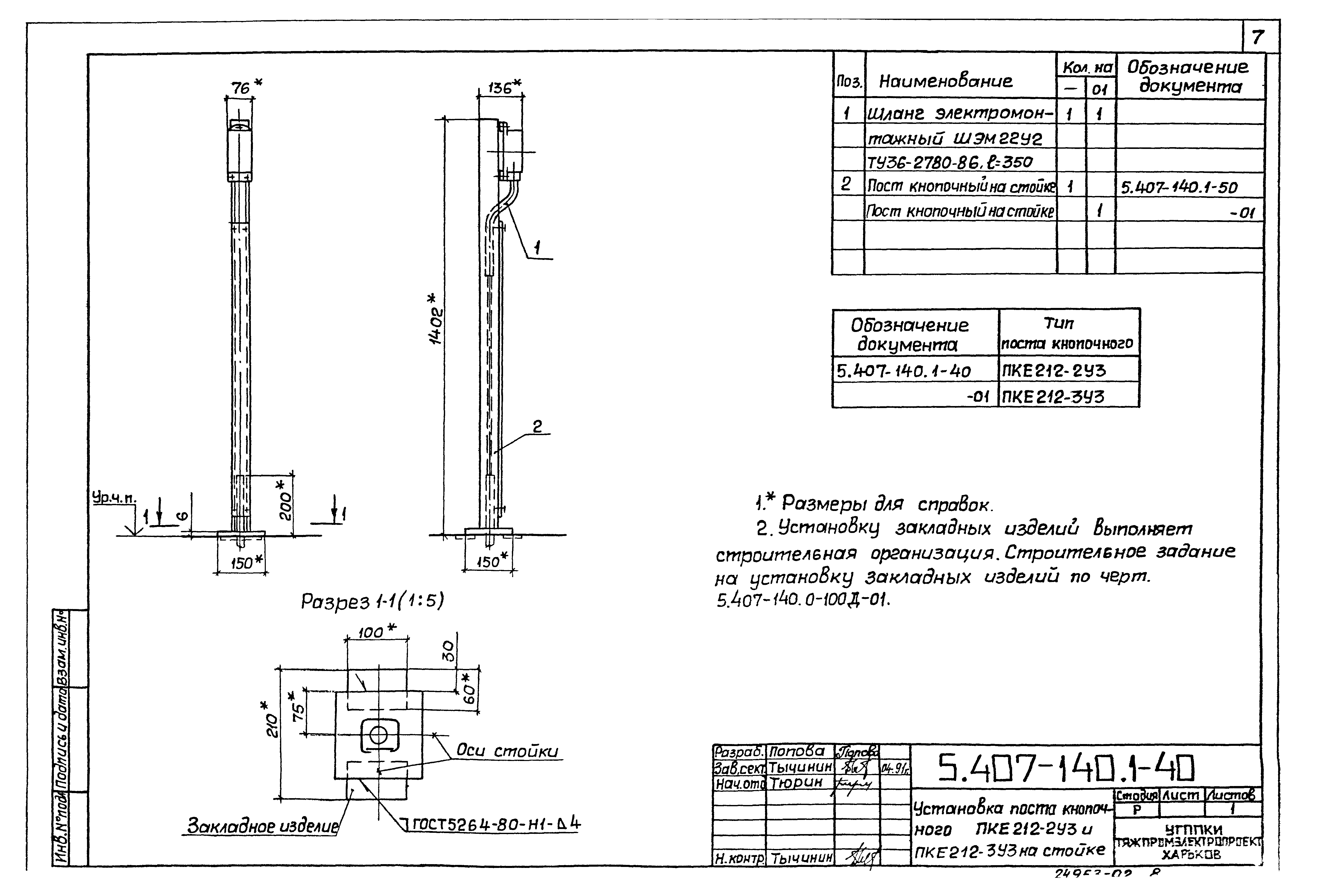
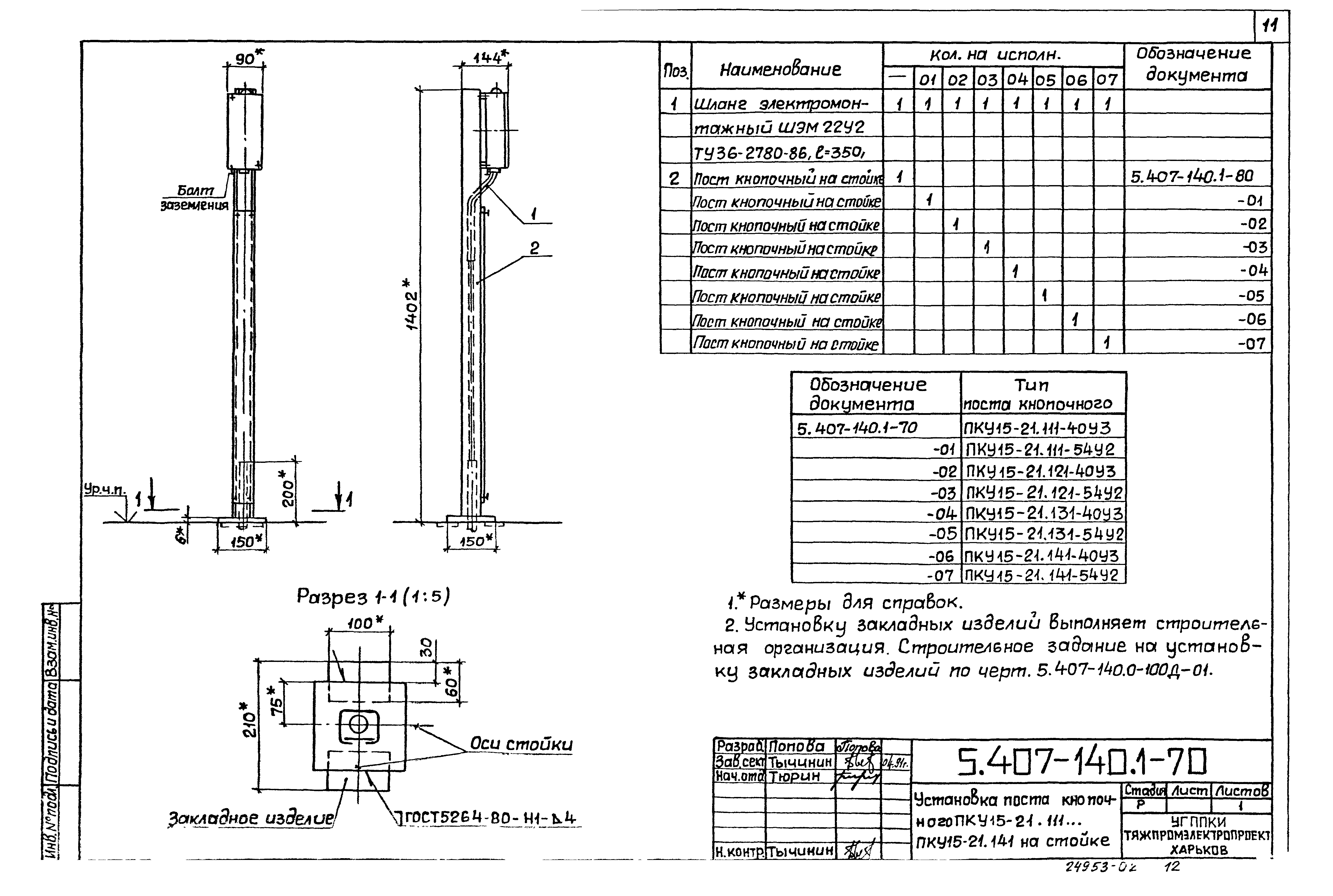
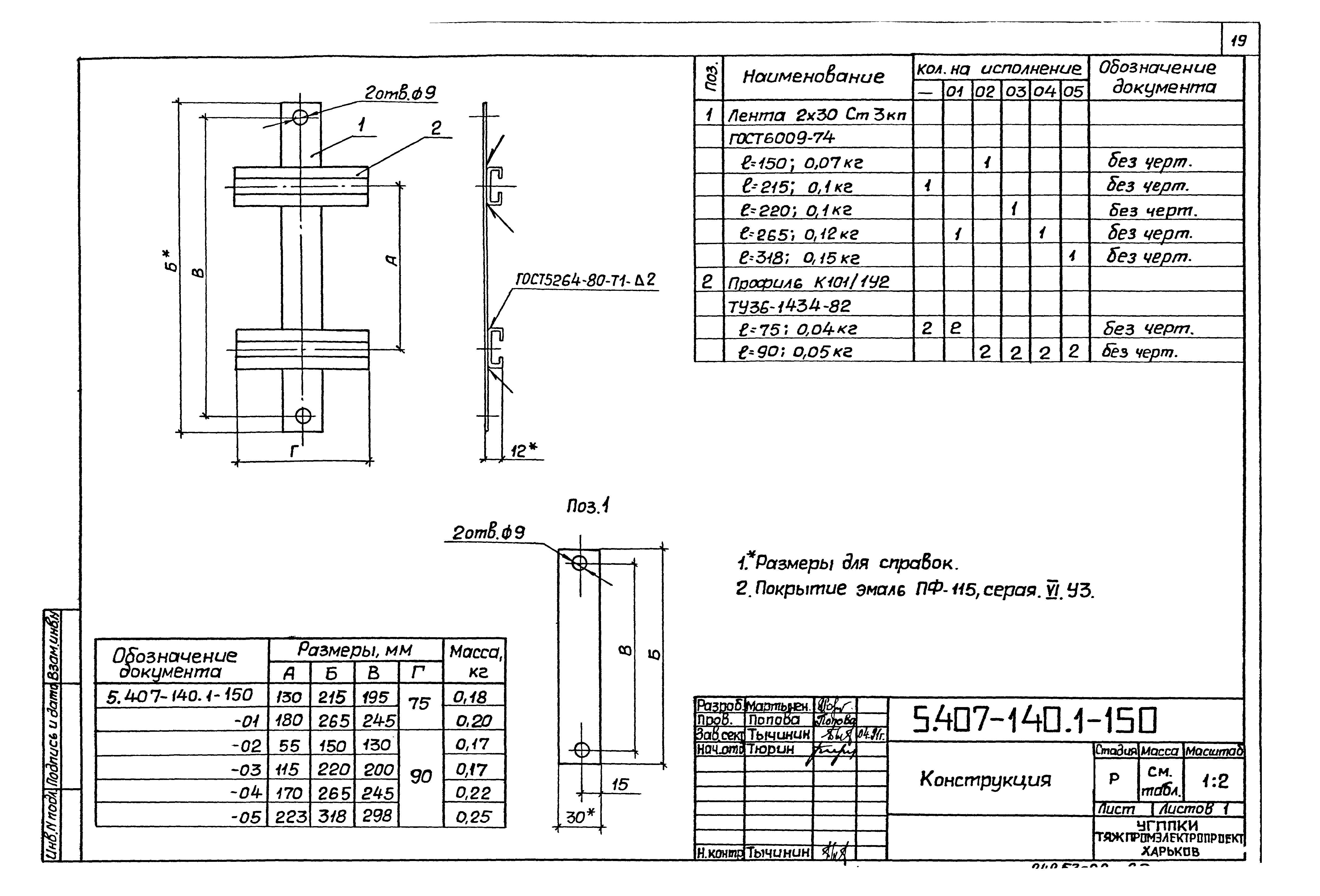
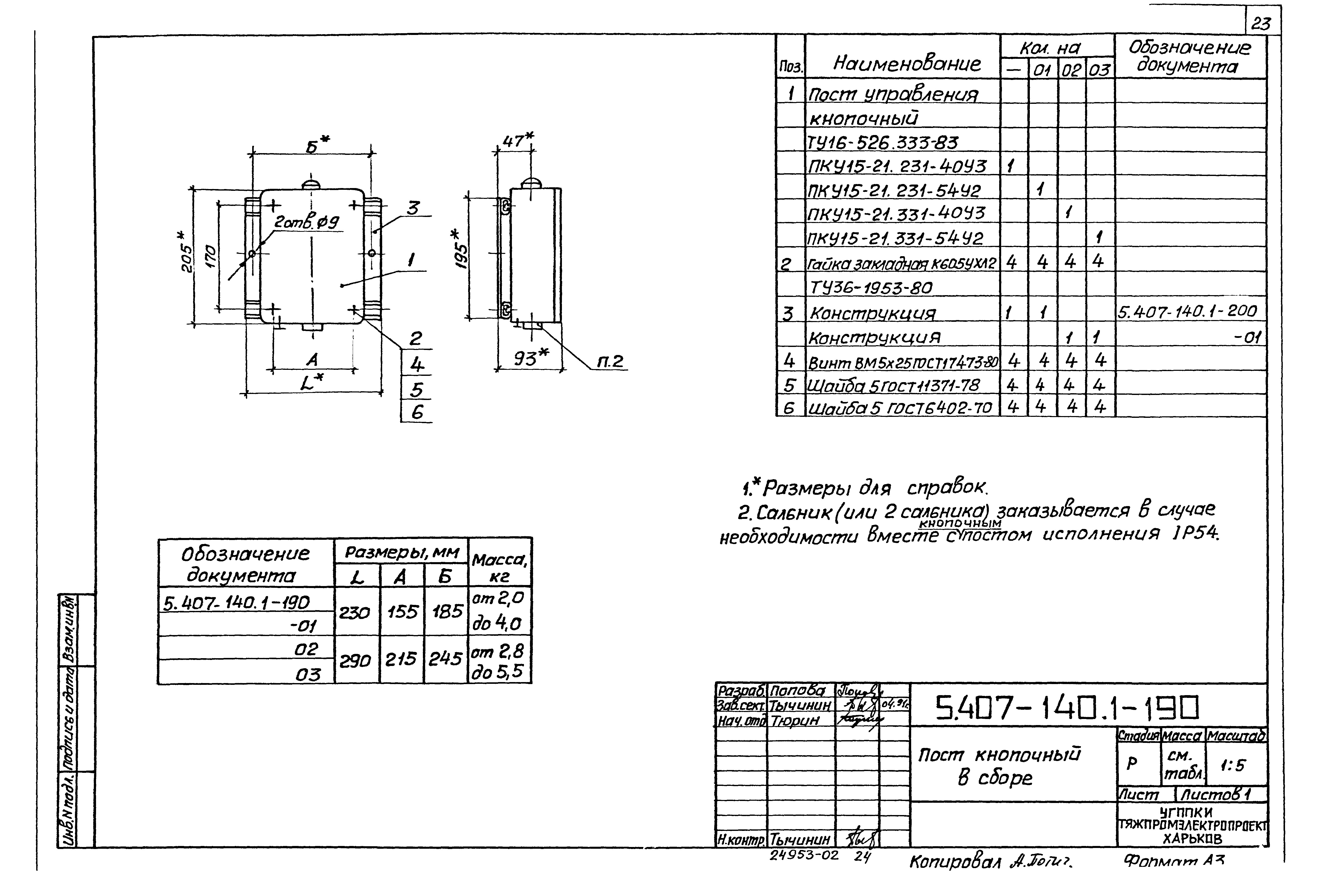
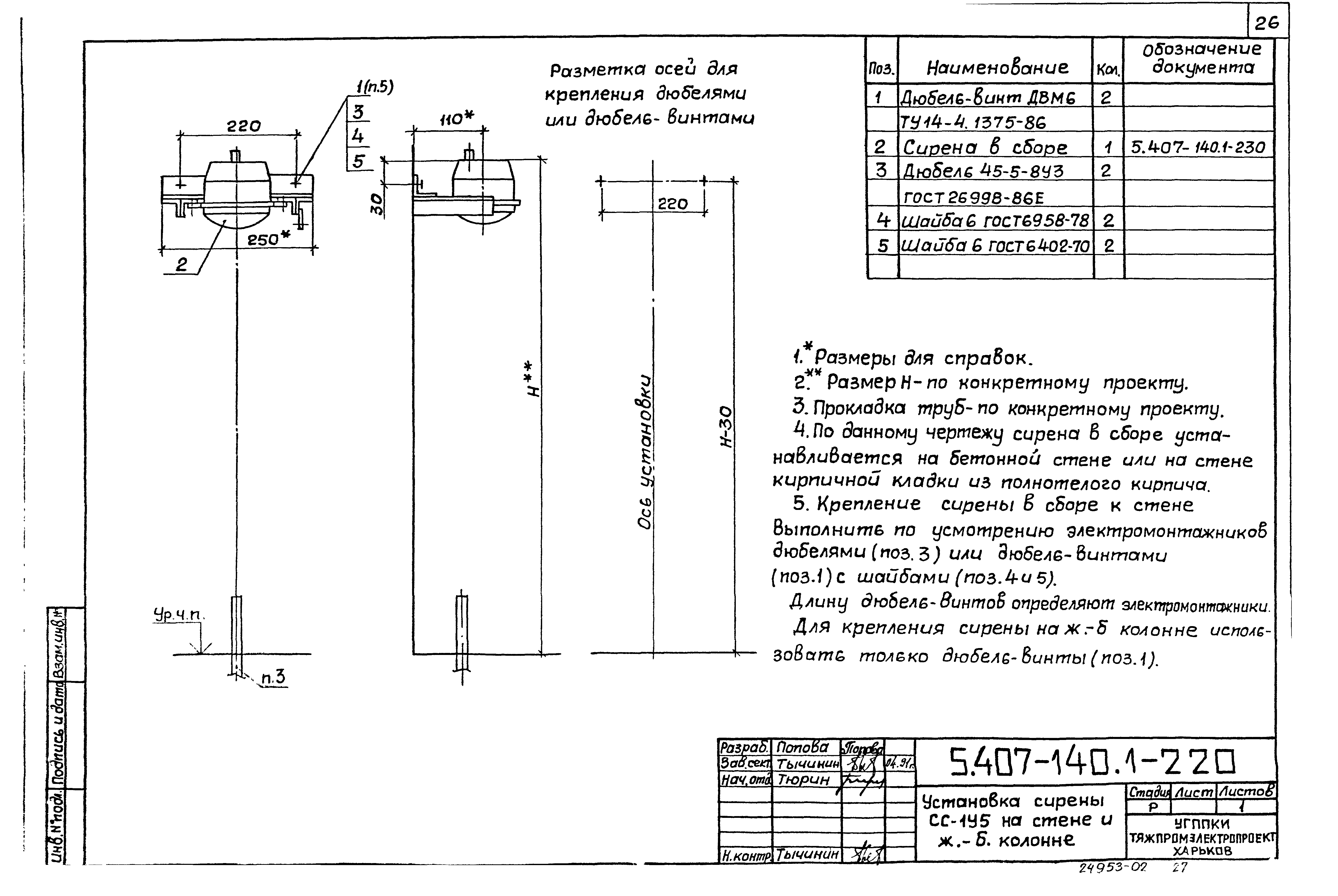
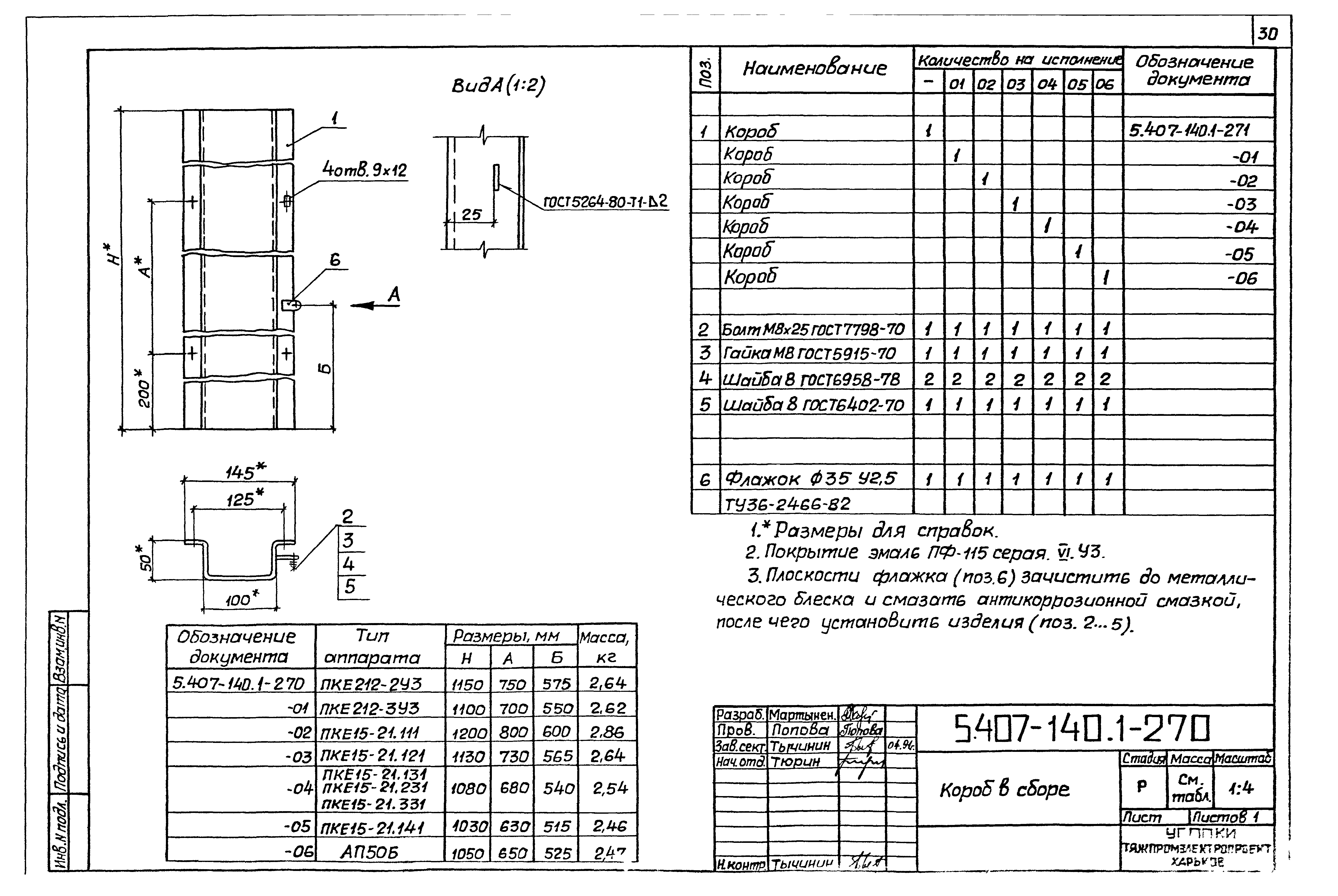
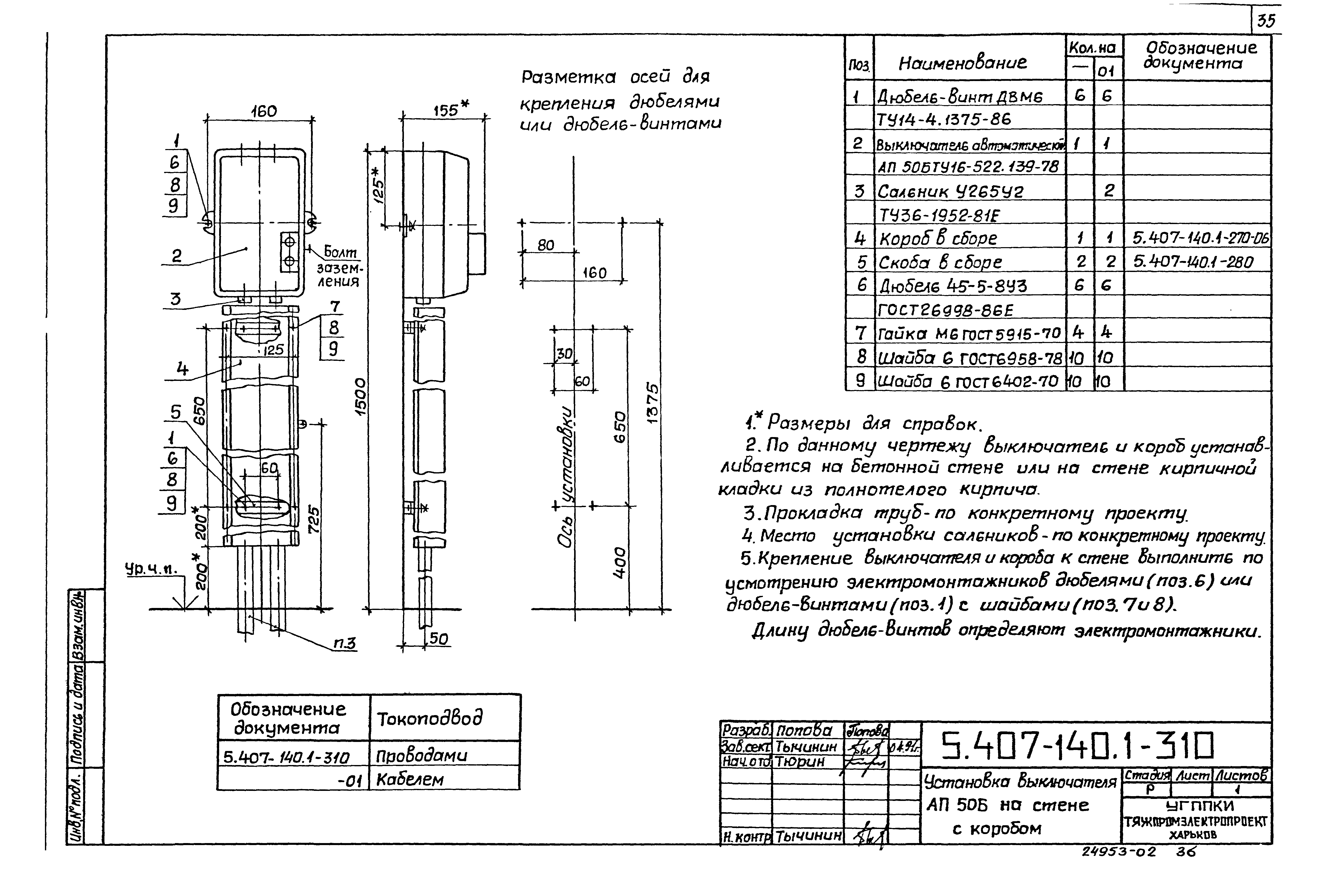
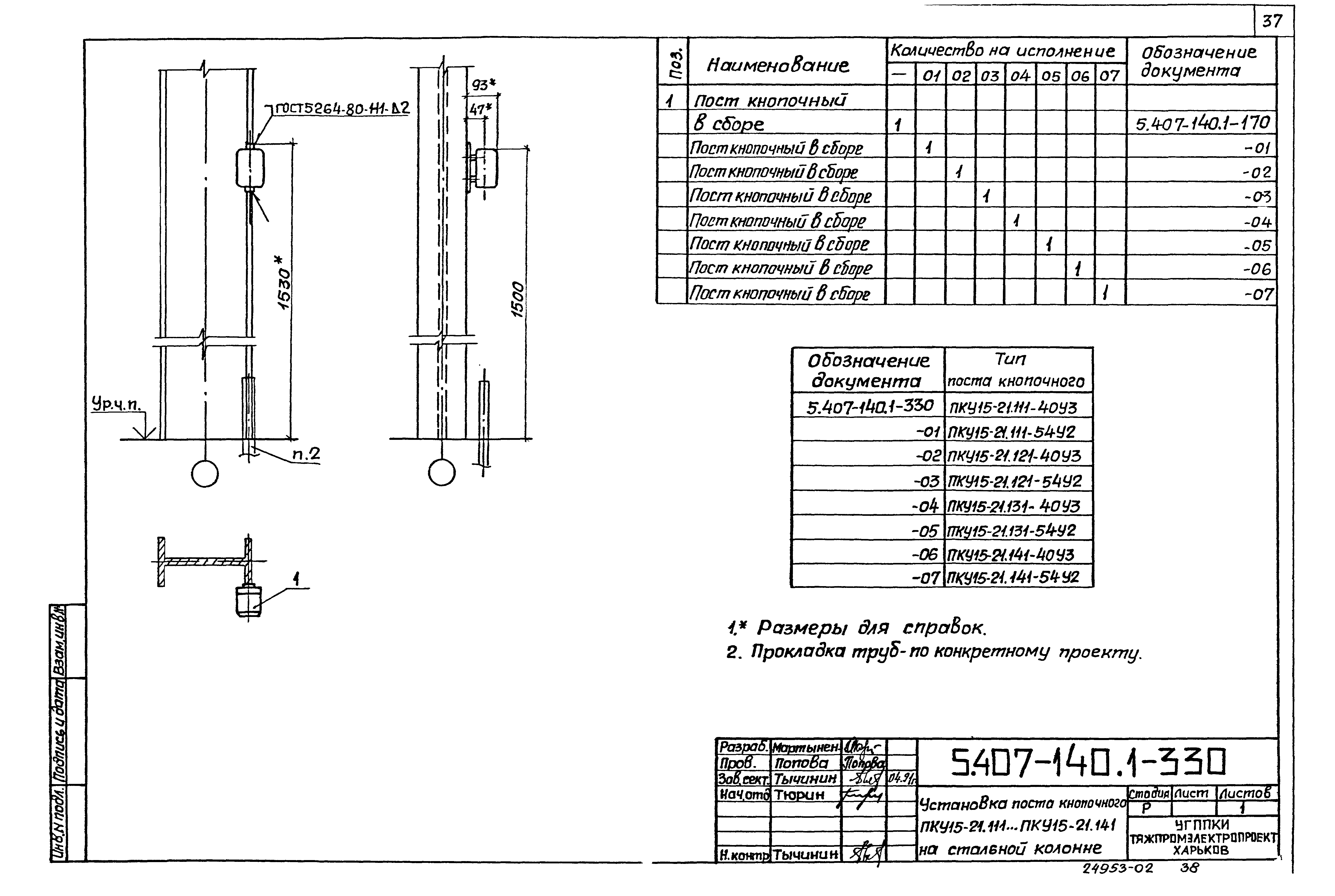
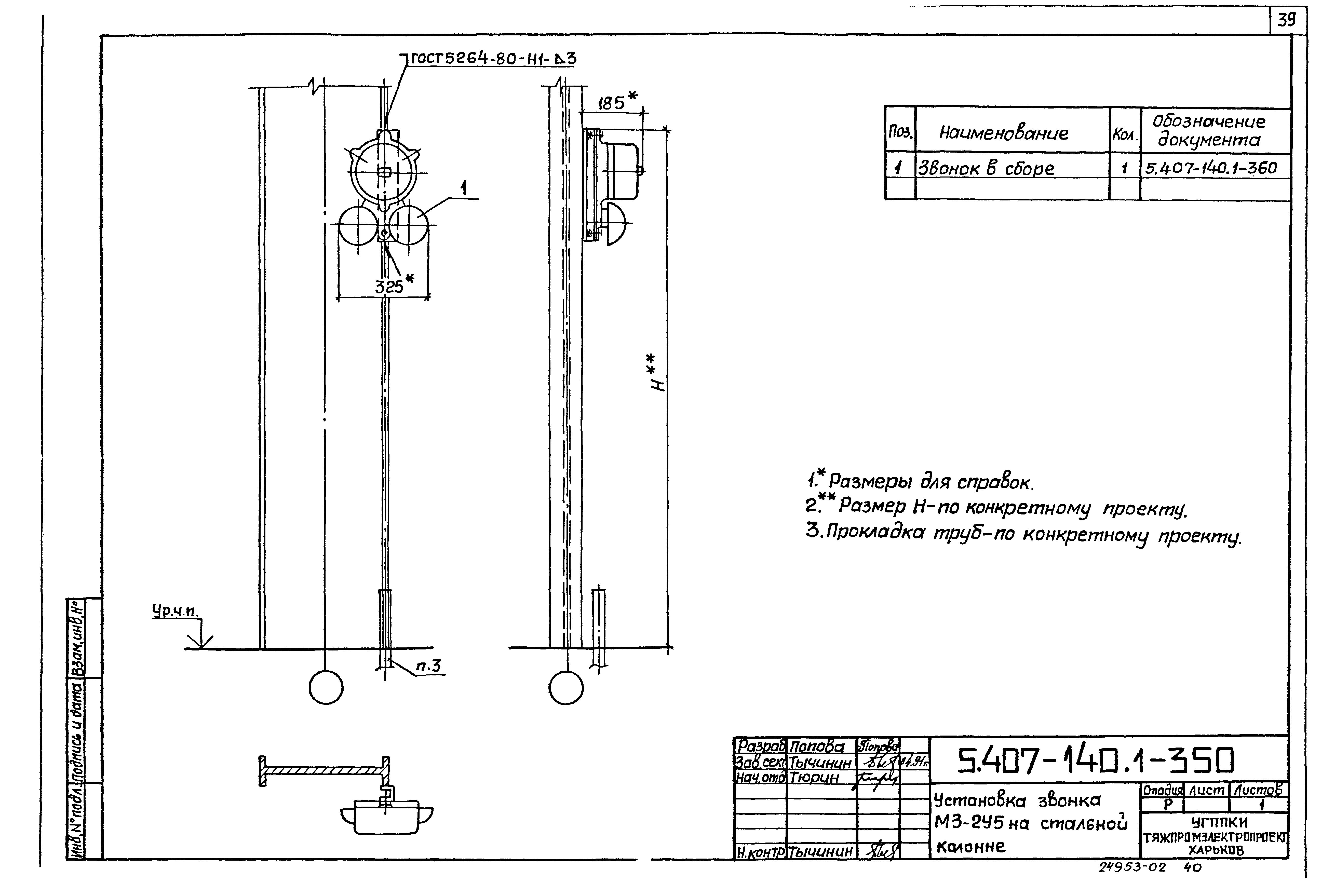
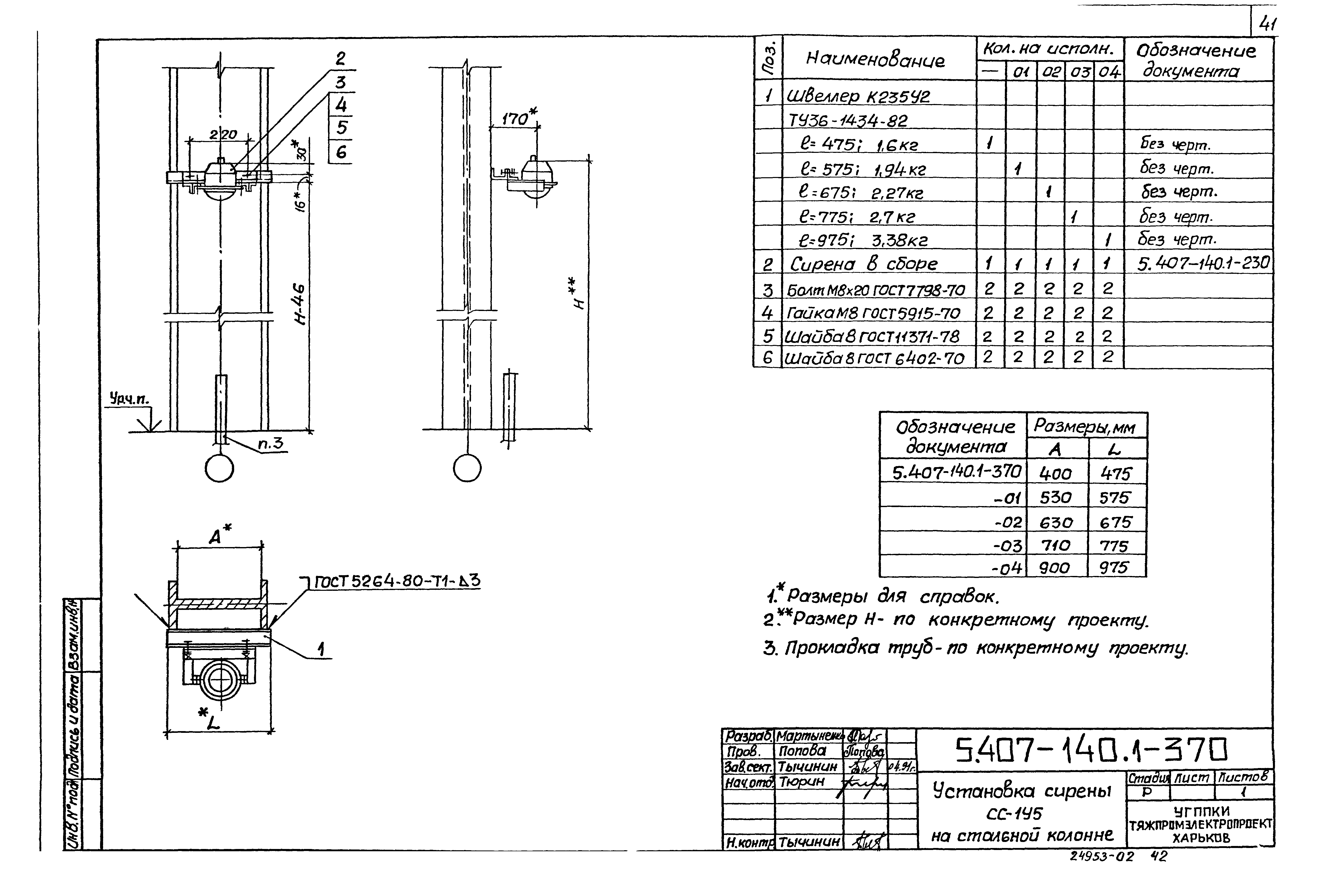
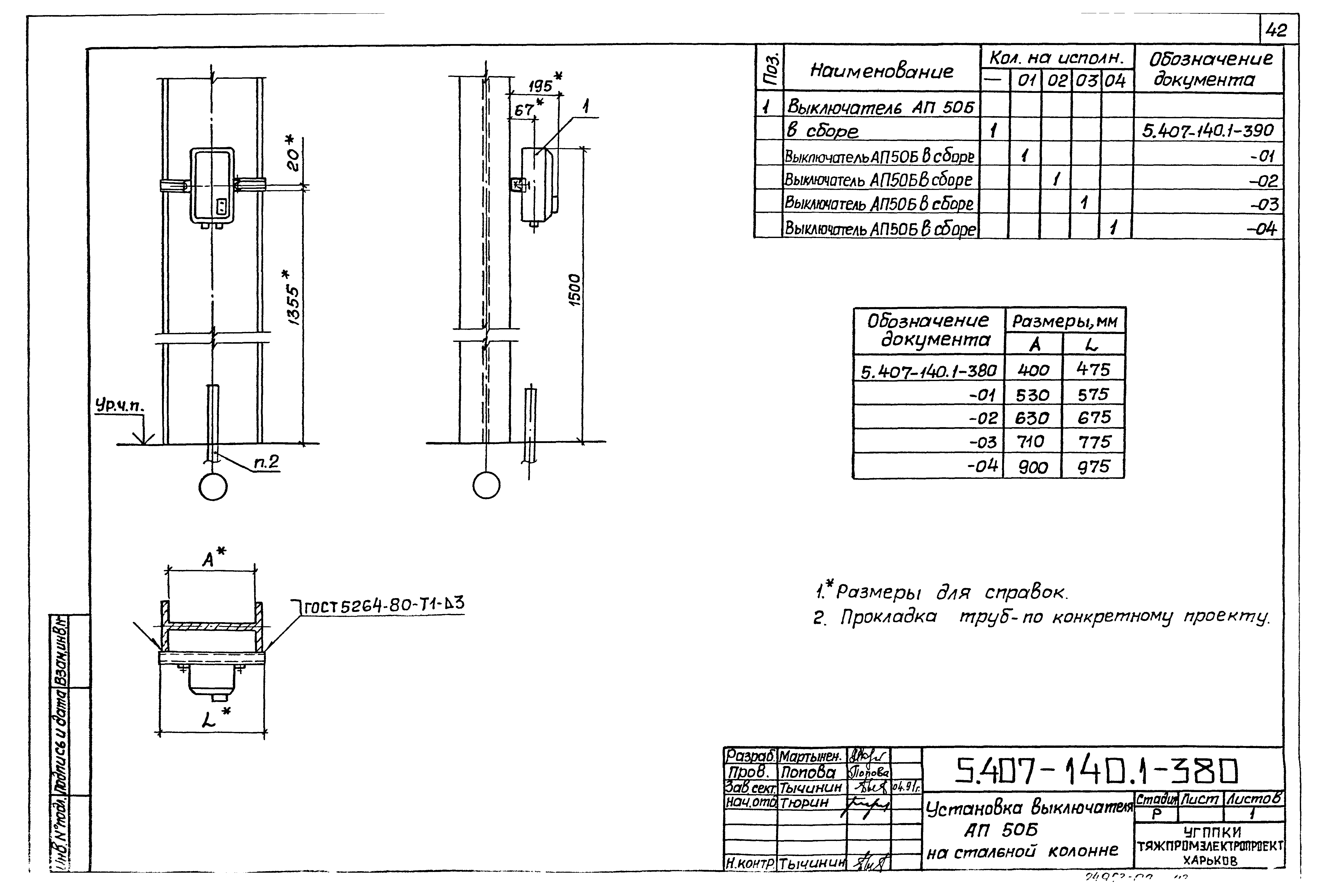
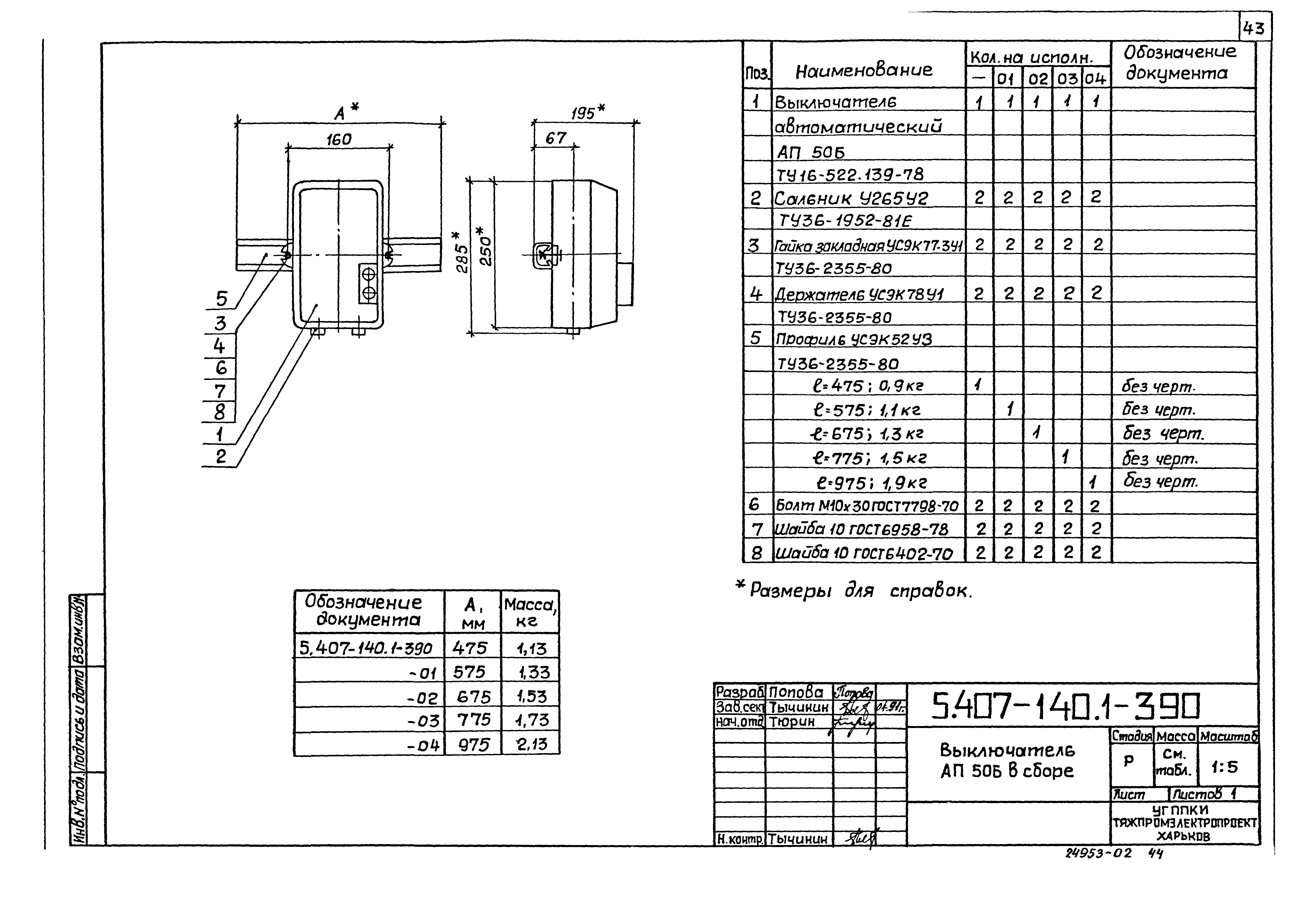
| Оглавление: | 5.407-140.1-10 Установка двух постов ПКЕ 112-2У3 и переключателя ПП2-10/Н2М3Б или двух постов ПКЕ 112-3У3 на стойке 5.407-140.1-20 Два поста ПКЕ 112-2У3 с переключателем ПП2-10/Н2М3Б или два поста ПКЕ 112-3У3 на стойке 5.407-140.1-30 Стойка 5.407-140.1-40 Установка поста кнопочного ПКЕ212-2У3 и ПКЕ212-3У3 на стойке 5.407-140.1-50 Пост кнопочный на стойке 5.407-140.1-51 Крышка 5.407-140.1-60 Стойка 5.407-140.1-70 Установка поста кнопочного ПКУ15-21.111 … ПКУ15-21.141 на стойке 5.407-140.1-80 Пост кнопочный на стойке 5.407-140.1-90 Стойка 5.407-140.1-100 Установка поста кнопочного ПКУ15-21.231 и ПКУ15-21.331 на стойке 5.407-140.1-110 Пост кнопочный на стойке 5.407-140.1-120 Стойка 5.407-140.1-130 Установка поста кнопочного ПКЕ212-2У3 и ПКЕ212-3У3 на стене и ж.-б. колонне 5.407-140.1-140 Пост кнопочный в сборе 5.407-140.1-150 Конструкция 5.407-140.1-160 Установка поста кнопочного ПКУ15-21.111 … ПКУ15-21.141 на стене и ж.-б. колонне 5.407-140.1-170 Пост кнопочный в сборе 5.407-140.1-180 Установка поста кнопочного ПКУ15-21.231 и ПКУ15-21.331 на стене и ж.-б. колонне 5.407-140.1-190 Пост кнопочный в сборе 5.407-140.1-200 Конструкция 5.407-140.1-210 Установка звонка М3-2У5 на стене и ж.-б. колонне 5.407-140.1-220 Установка сирены СС-1У5 на стене и ж.-б. колонне 5.407-140.1-230 Сирена в сборе 5.407-140.1-240 Конструкция 5.407-140.1-250 Установка выключателя АП50Б на стене и ж.-б. колонне 5.407-140.1-260 Установка поста кнопочного ПКЕ212-2У3 и ПКЕ212-3У3 на стене с коробом 5.407-140.1-270 Короб в стене 5.407-140.1-271 Короб 5.407-140.1-280 Скоба в сборе 5.407-140.1-281 Скоба 5.407-140.1-290 Установка поста кнопочного ПКУ15-21.111 … ПКУ15-21.141 на стене с коробом 5.407-140.1-300 Установка поста кнопочного ПКУ15-21.231, ПКУ15-21.331 на стене с коробом 5.407-140.1-310 Установка выключателя АП50Б на стене с коробом 5.407-140.1-320 Установка поста кнопочного ПКЕ212-2У3 и ПКЕ212-3У3 на стальной колонне 5.407-140.1-330 Установка поста кнопочного ПКУ15-21.111 … ПКУ15-21.141 на стальной колонне 5.407-140.1-340 Установка поста кнопочного ПКУ15-21.231 и ПКУ15-21.331 на стальной колонне 5.407-140.1-350 Установка звонка Мз-2У5 на стальной колонне 5.407-140.1-360 Звонок в сборе 5.407-140.1-370 Установка сирены СС-1У5 на стальной колонне 5.407-140.1-380 Установка выключателя АП 50Б на стальной колонне 5.407-140.1-390 Выключатель А 50Б в сборе 5.407-140.1-400 Установка поста кнопочного ПКЕ 212-2У3 и ПКЕ 212-3У3 на стальной колонне 5.407-140.1-410 Установка поста кнопочного ПКУ15-21.111 … ПКУ15-21.141 на стальной колонне 5.407-140.1-420 Установка поста кнопочного ПКУ15-21.231 и ПКУ15-21.331 на стальной колонне 5.407-140.1-430 Установка звонка М3-2У5 на стальной колонне 5.407-140.1-440 Установка сирены СС-1У5 на стальной колонне 5.407-140.1-450 Установка выключателя АП 50Б на стальной колонне |
| Разработан: | Украинский Тяжпромэлектропроект |
| Утверждён: | 01.04.1991 ВНИПИ Тяжпромэлектропроект |
| Издан: | ГУП ЦПП (CPP GUP 2000 г. ) |
| Заменяет собой: |

















































