Скачать Серия 5.407-117 Выпуск 0. Материалы для проектированияДата актуализации: 01.01.2021
|
| Обозначение: | Серия 5.407-117 |
| Обозначение англ: | Series 5.407-117 |
| Статус: | не определен законодательством |
| Название рус.: | Выпуск 0. Материалы для проектирования |
| Дата добавления в базу: | 01.09.2013 |
| Дата актуализации: | 01.01.2021 |
| Дата введения: | 01.04.1990 |
| Дата окончания срока действия: | 30.06.2003 |
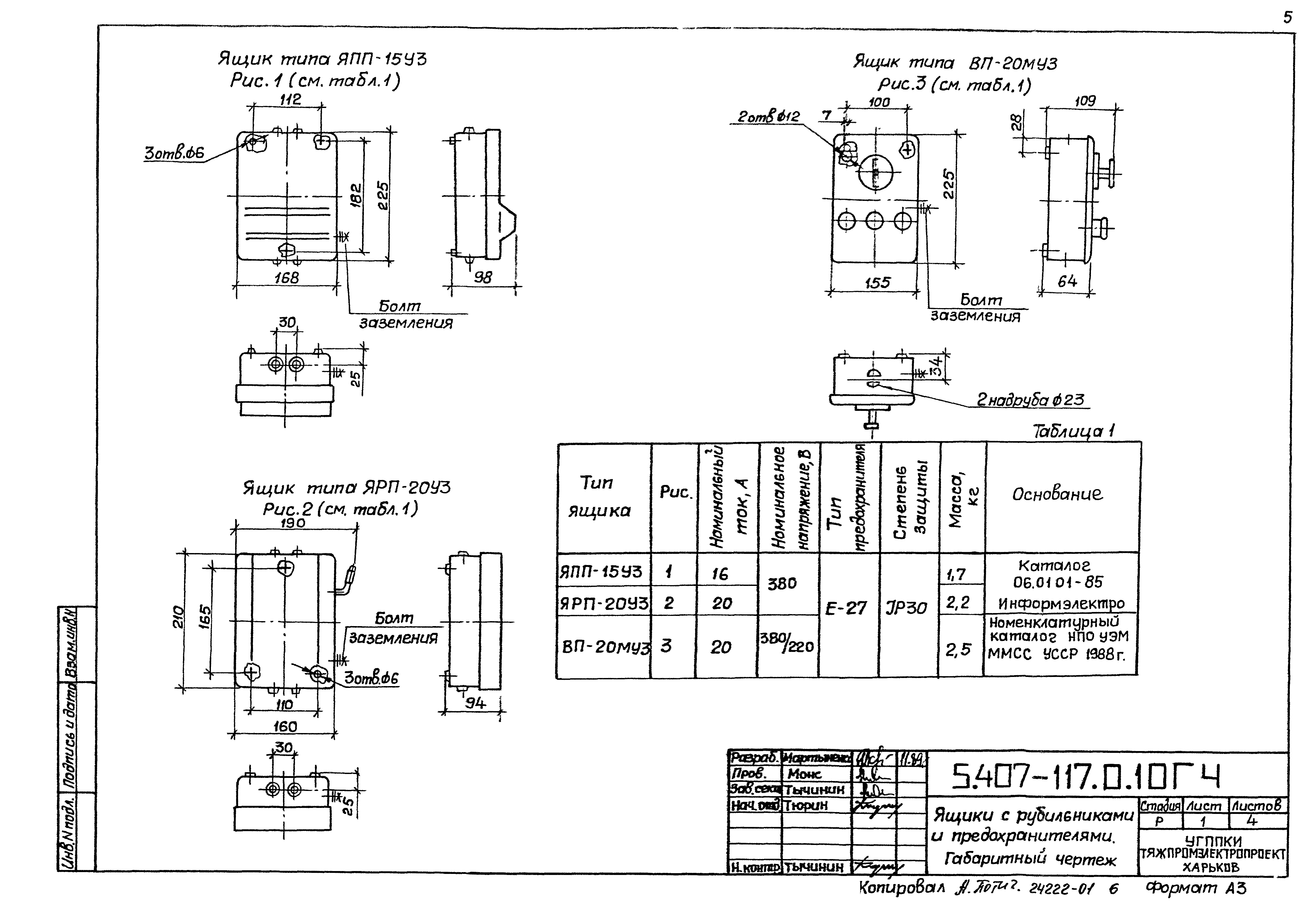
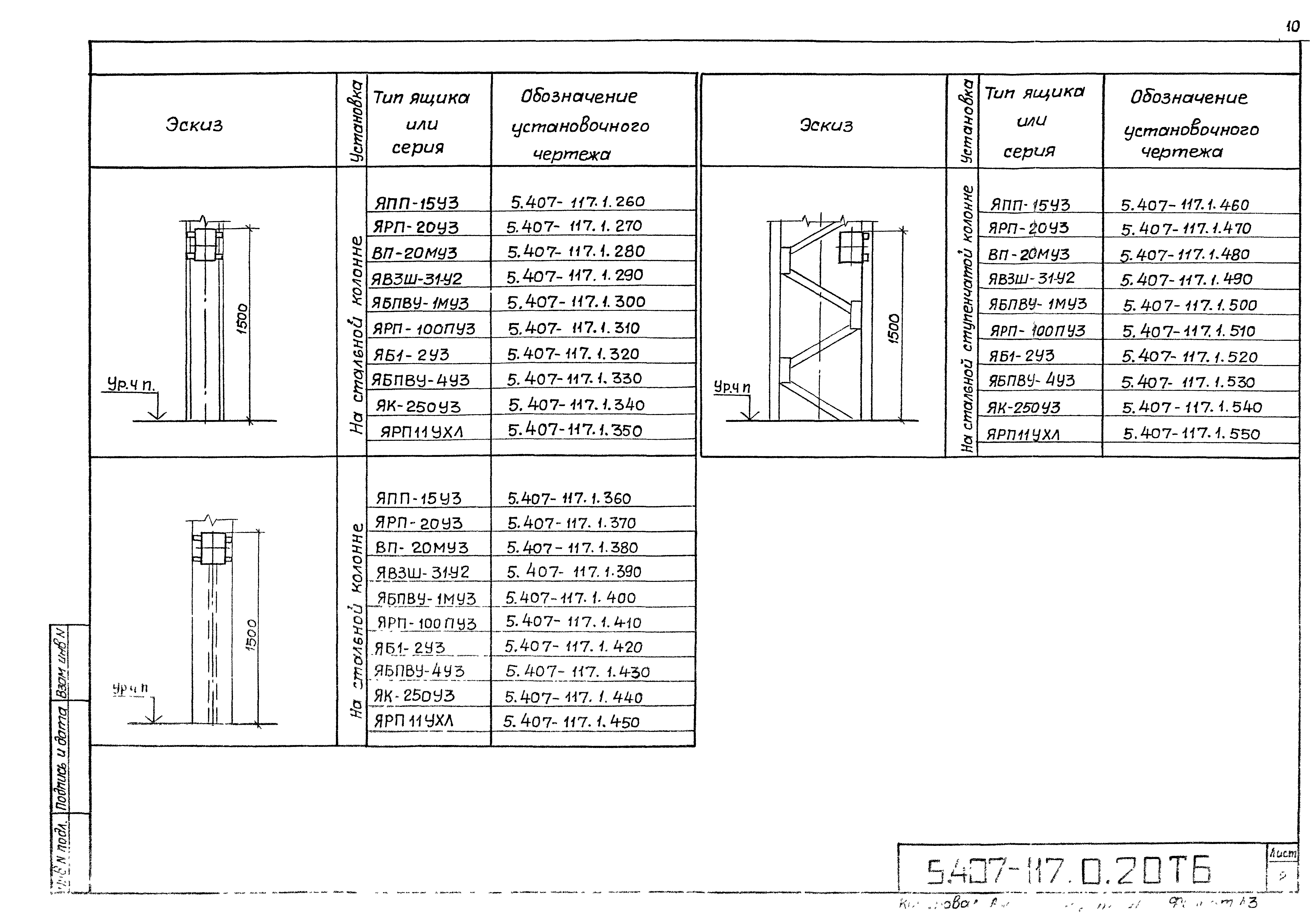
| Оглавление: | 5.407-117.0.ПЗ Пояснительная записка 5.407-117.0.10ГЧ Ящики с рубильниками и предохранителями. Габаритный чертеж 5.407-117.0.20ТБ Таблица выбора чертежей 5.407-117.0.30В Ведомость потребности в оборудовании, изделиях и материалах 5.407-117.0.40ПР Расположение силовых ящиков в цехе (Пример) |
| Разработан: | Украинский Тяжпромэлектропроект |
| Утверждён: | 13.04.1989 НПО Электромонтаж ММСС СССР |
| Издан: | ГУП ЦПП (CPP GUP 1997 г. ) |

















