Скачать Серия 5.407-117 Выпуск 1. Узлы и изделия. Рабочие чертежиДата актуализации: 01.01.2021
|
| Обозначение: | Серия 5.407-117 |
| Обозначение англ: | Series 5.407-117 |
| Статус: | не определен законодательством |
| Название рус.: | Выпуск 1. Узлы и изделия. Рабочие чертежи |
| Дата добавления в базу: | 01.09.2013 |
| Дата актуализации: | 01.01.2021 |
| Дата введения: | 01.04.1990 |
| Дата окончания срока действия: | 30.06.2003 |
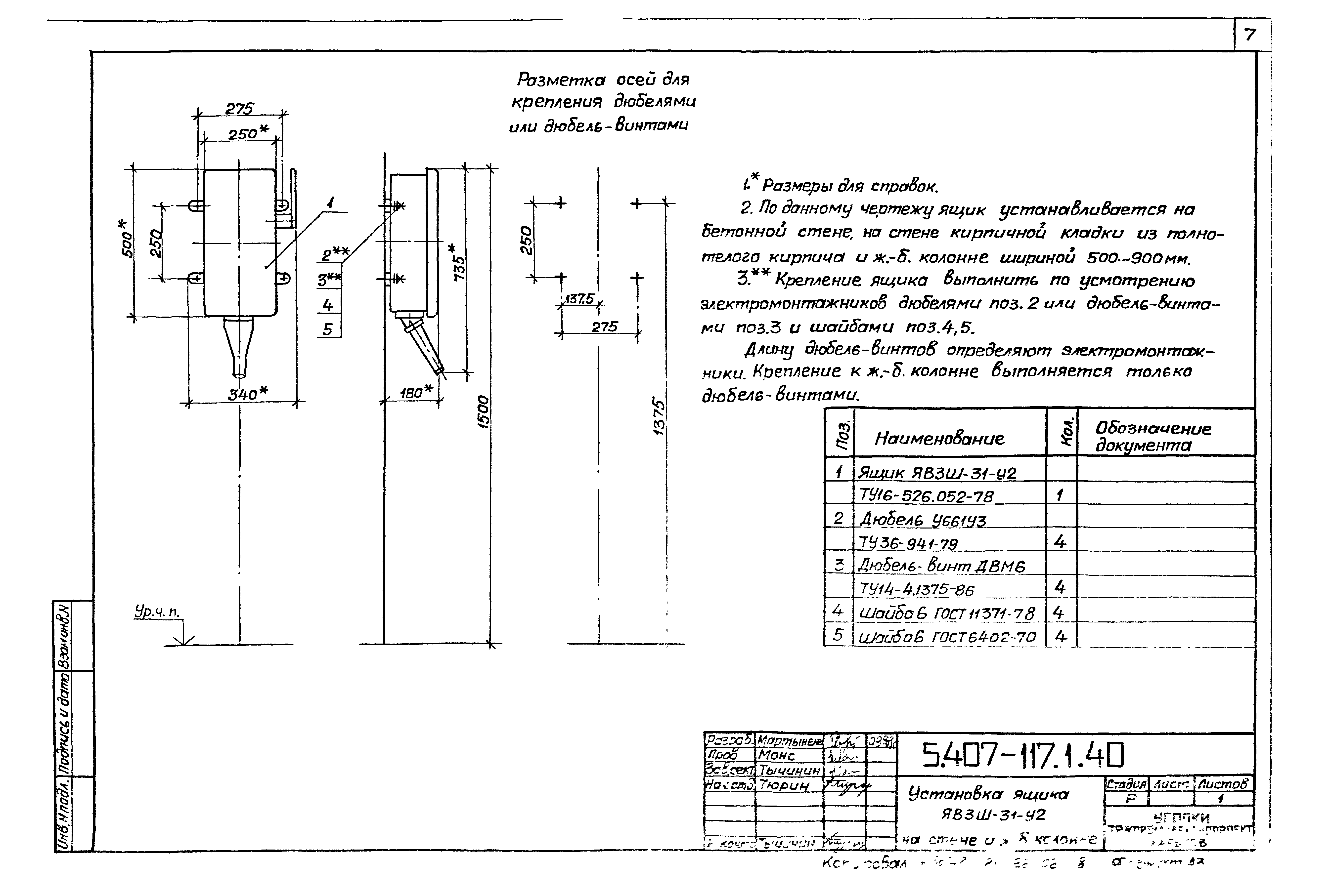
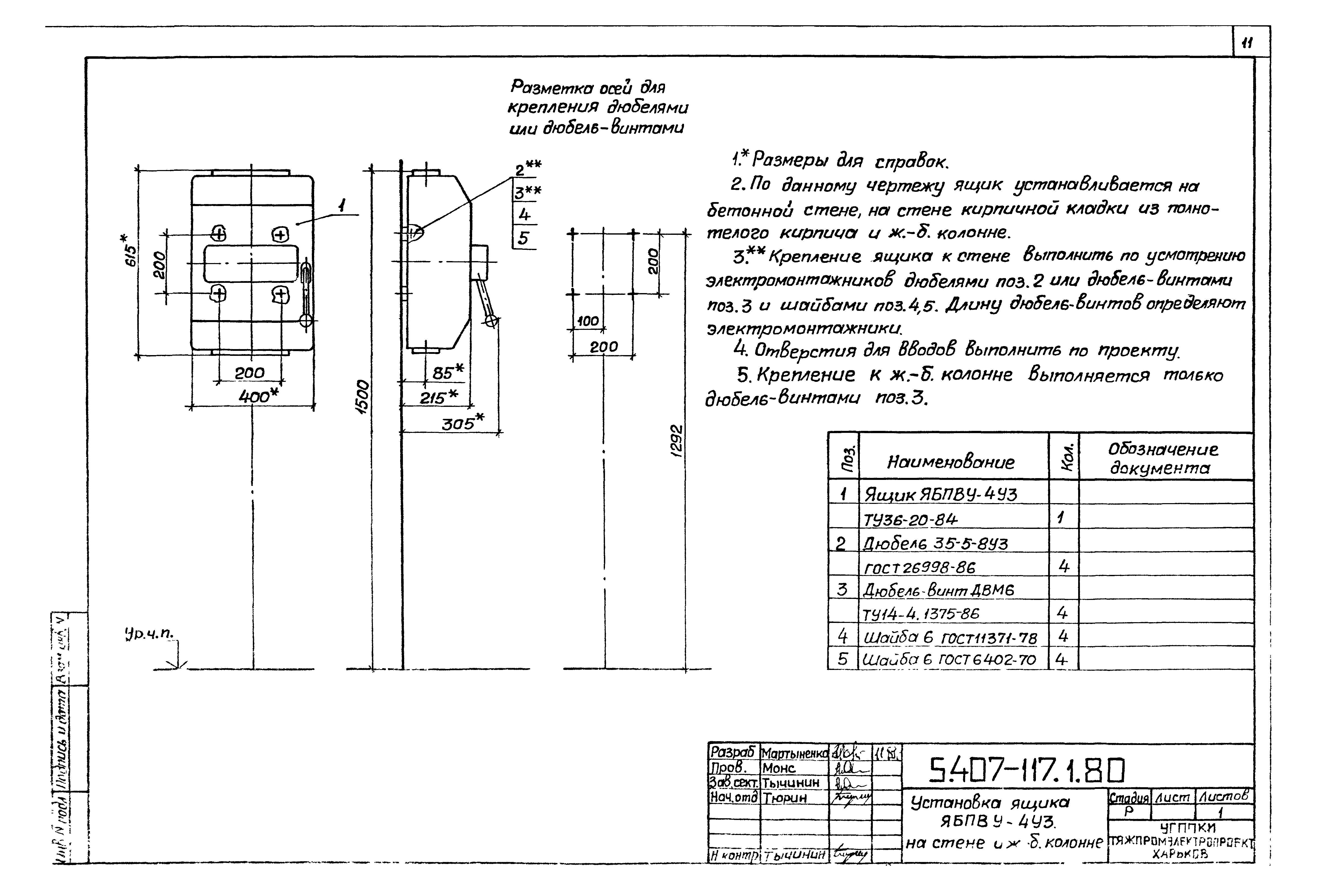
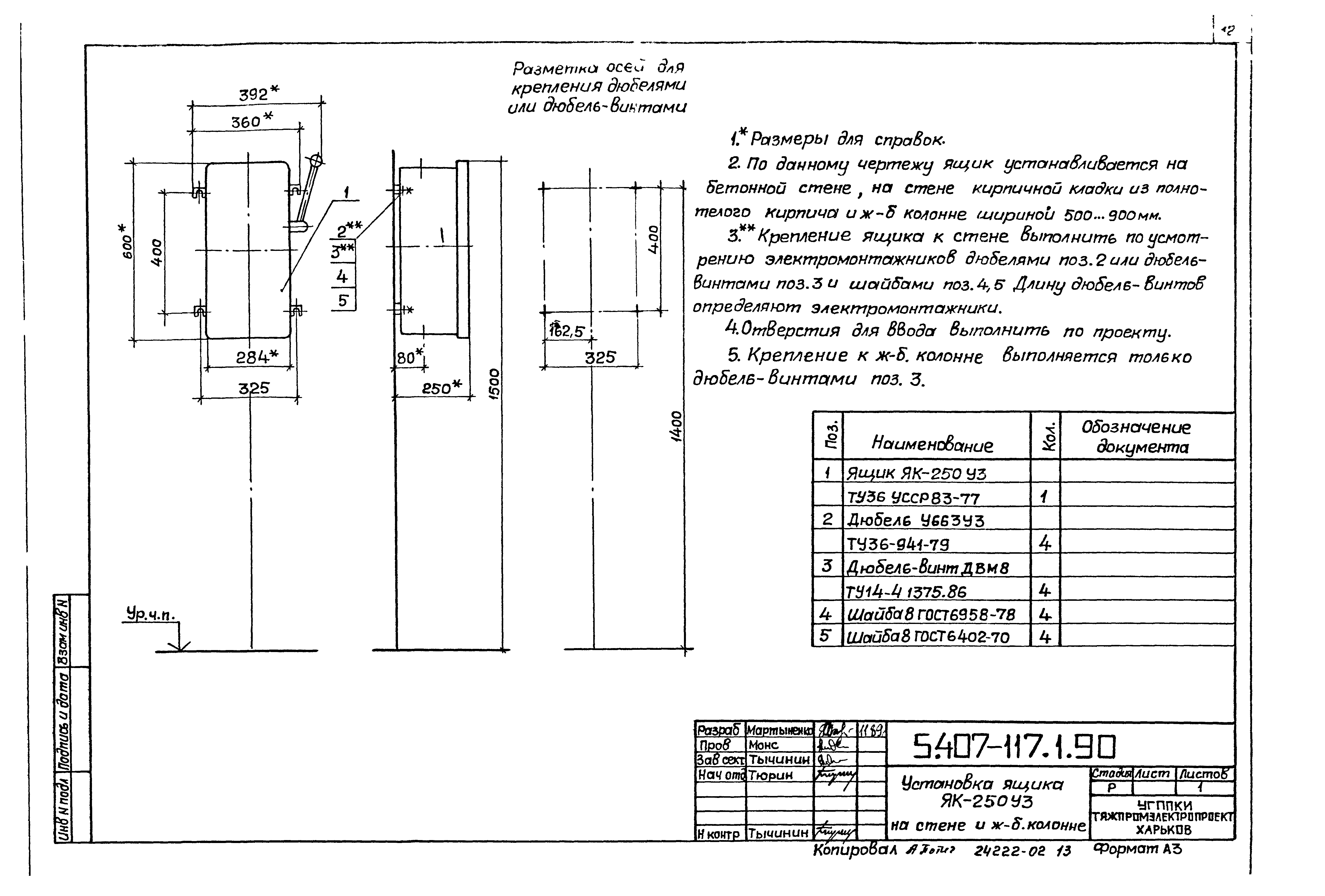
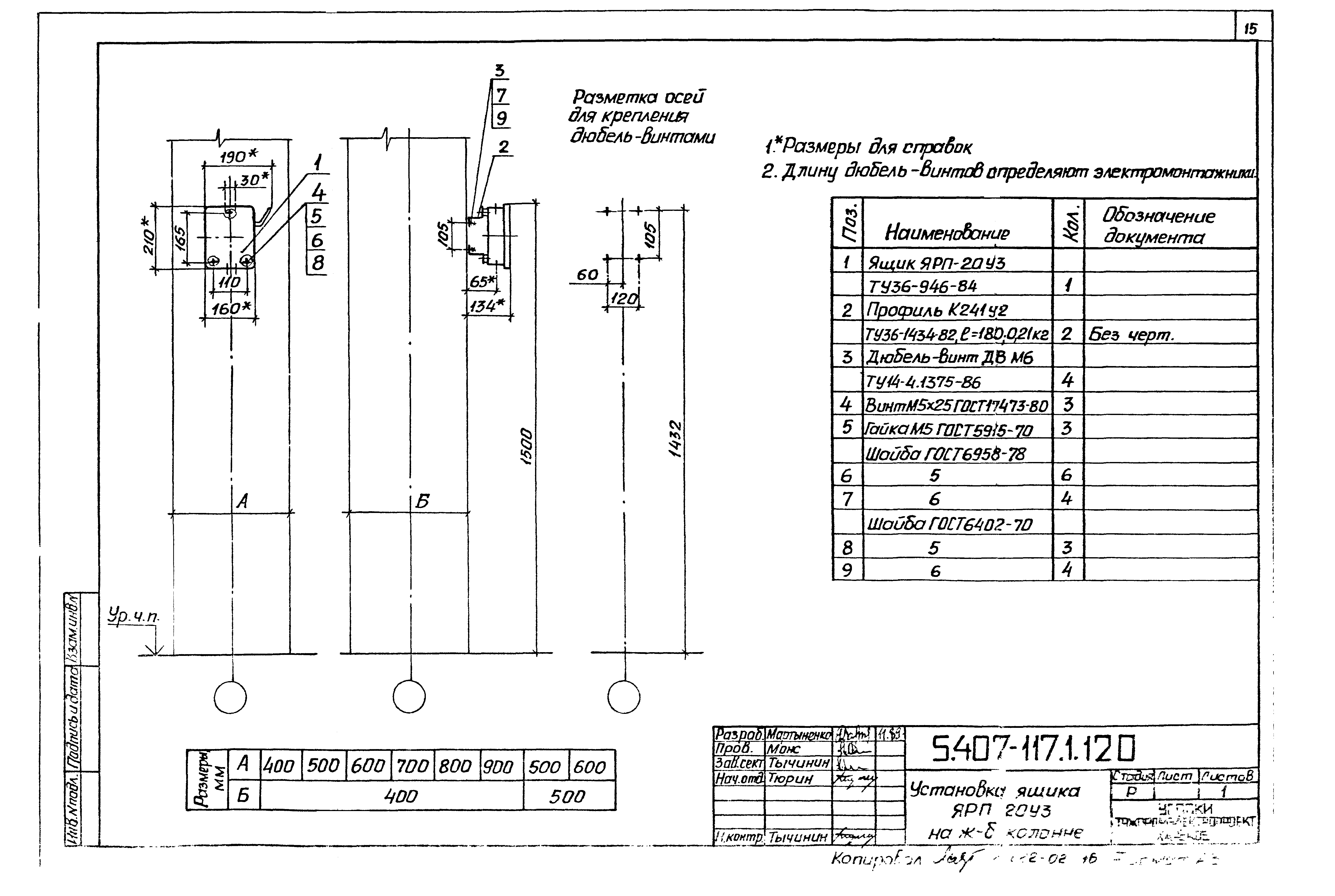
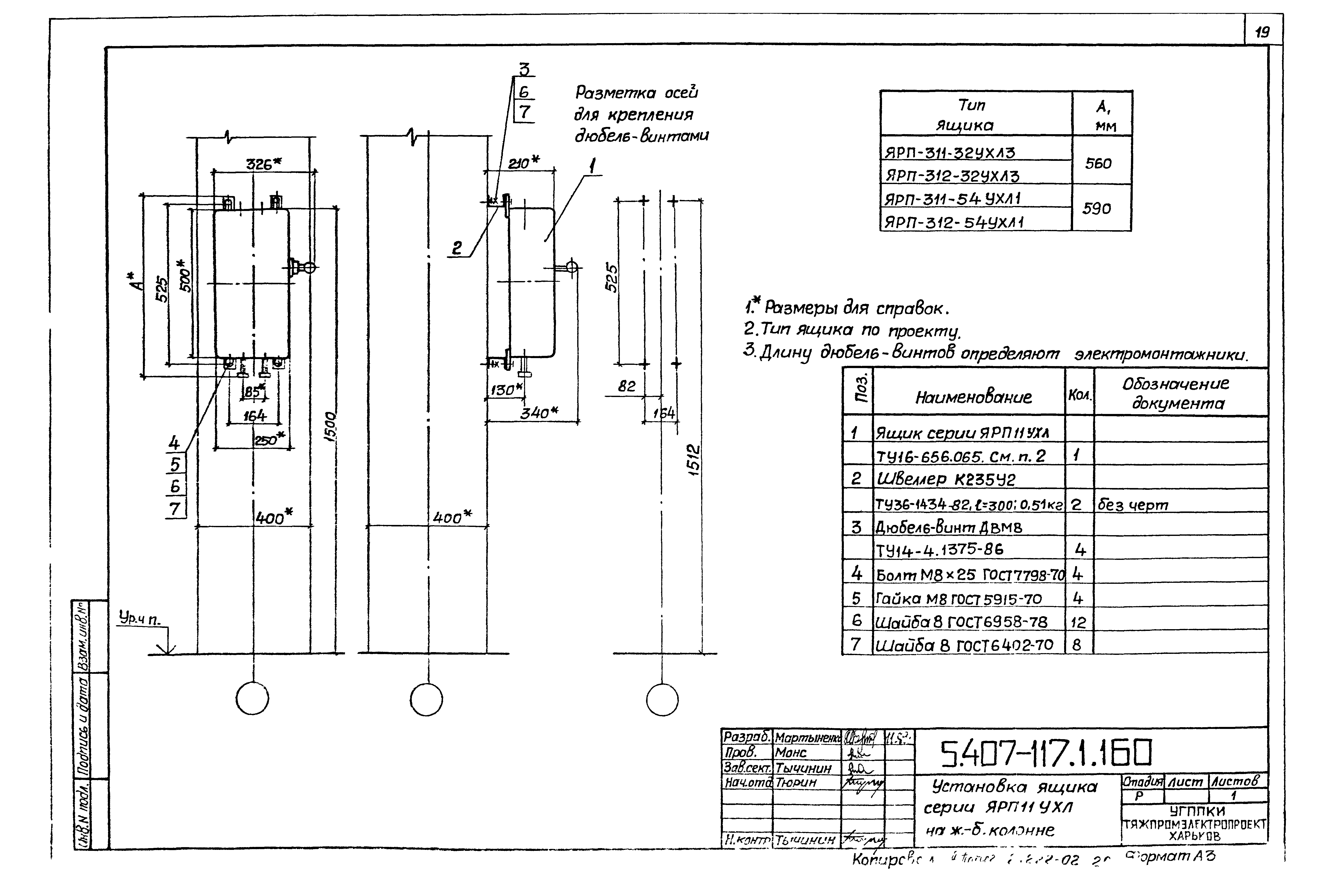
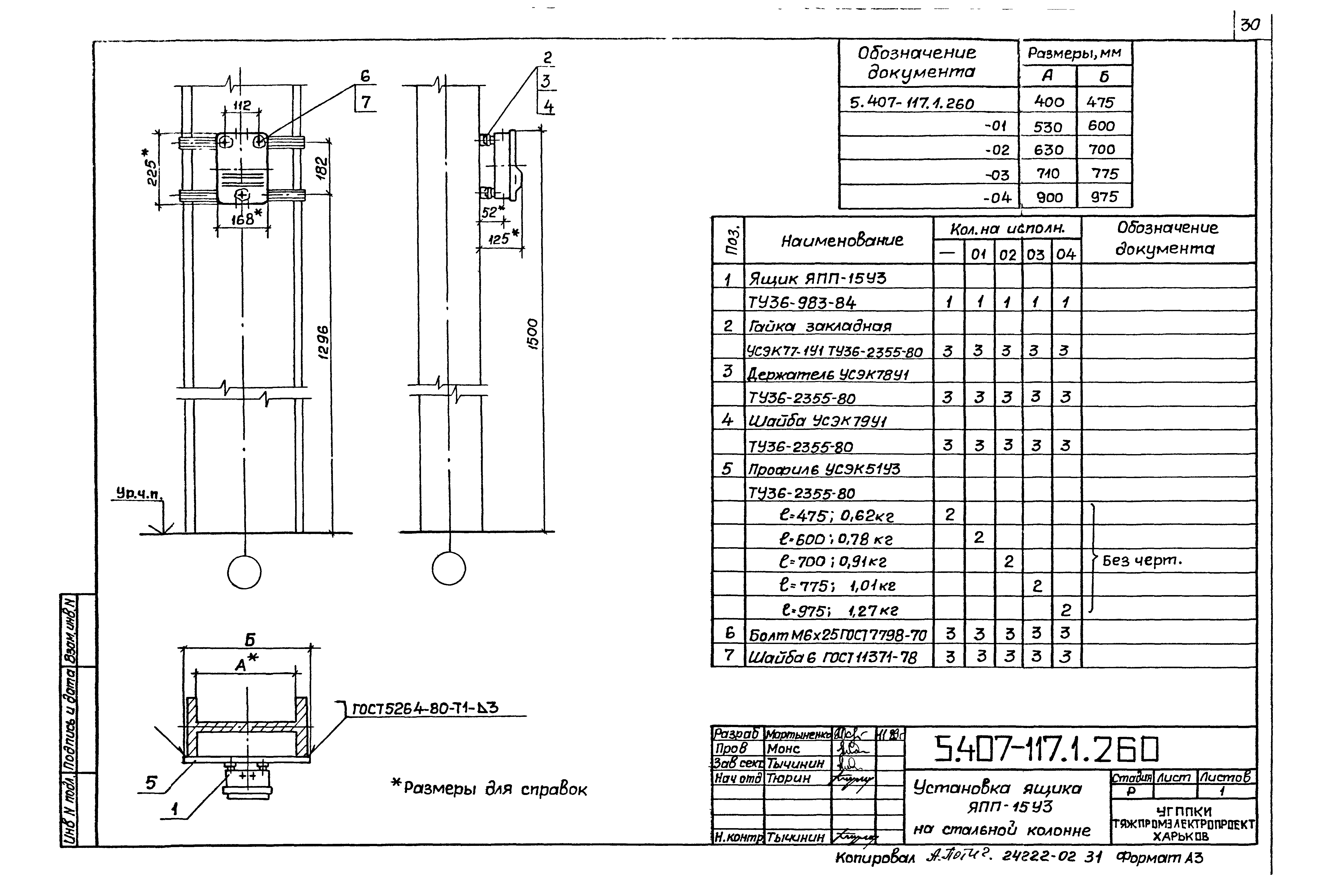
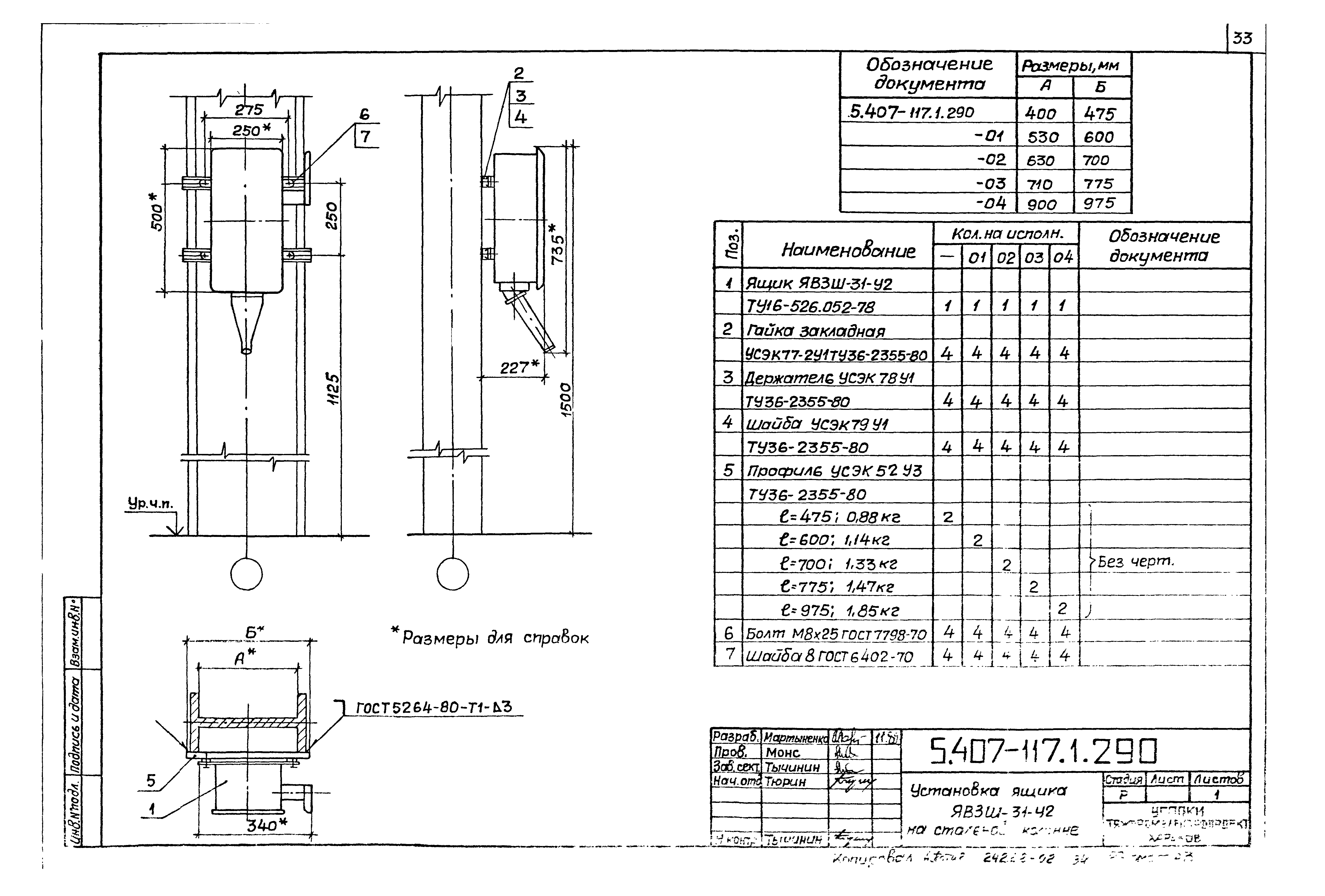
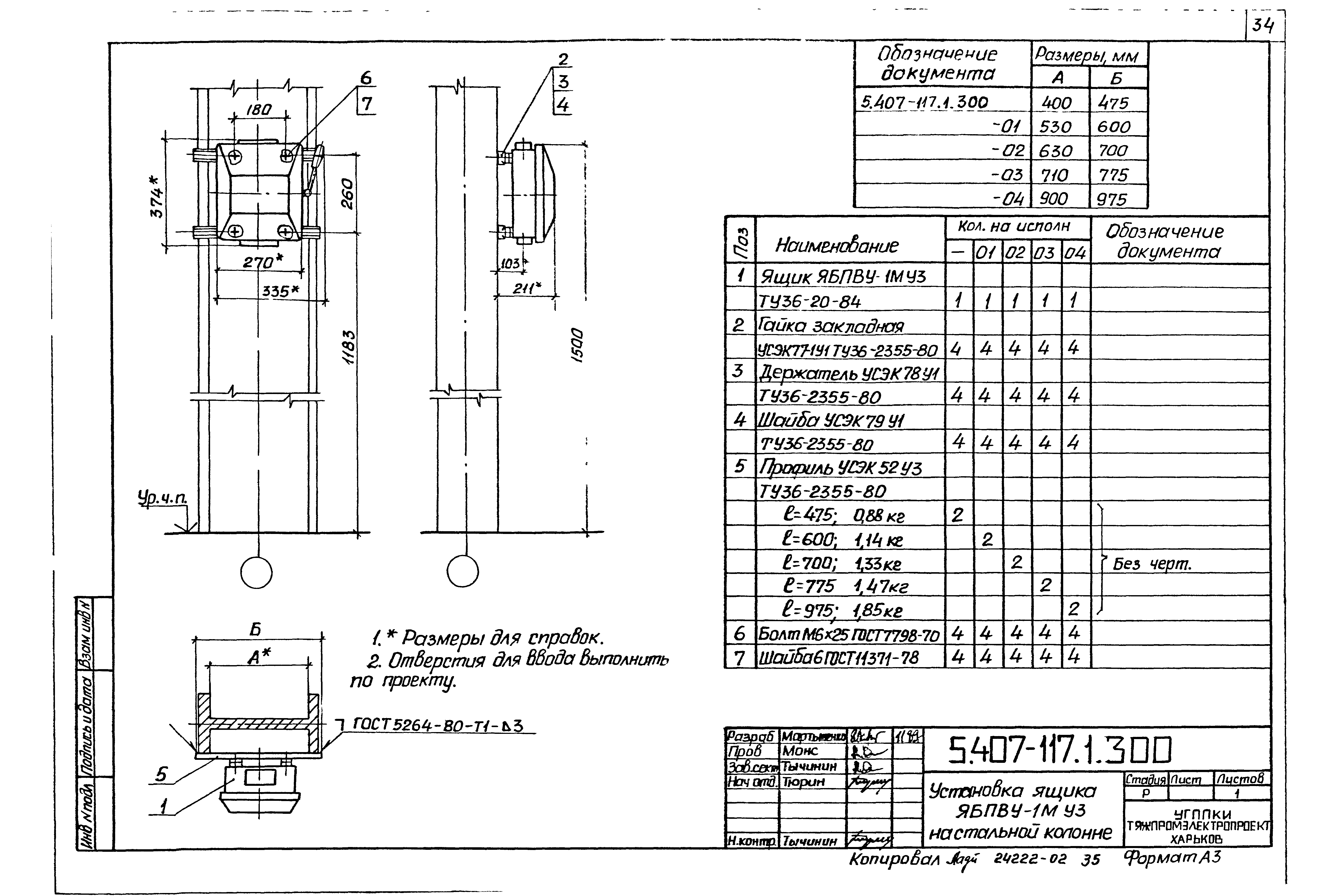
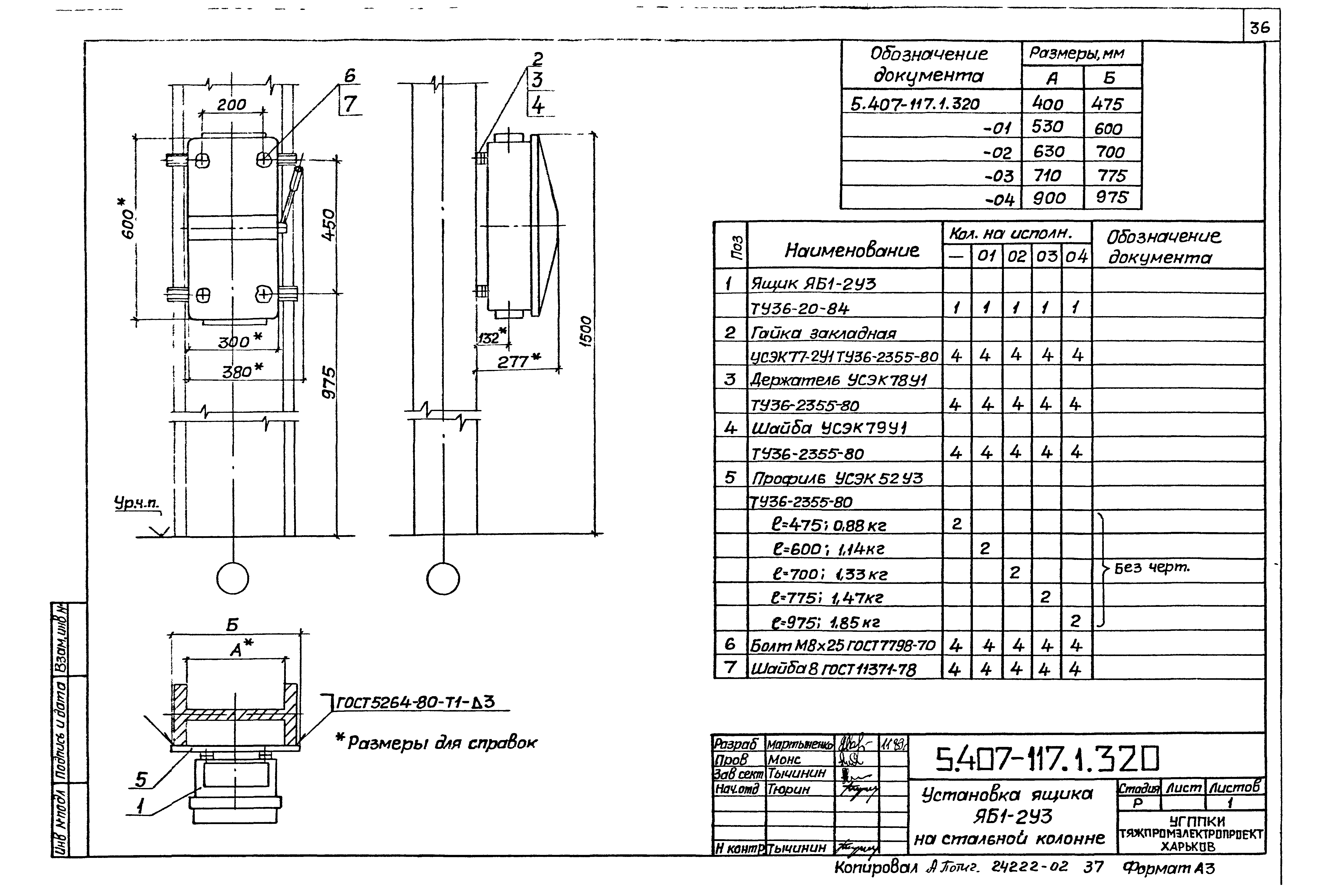
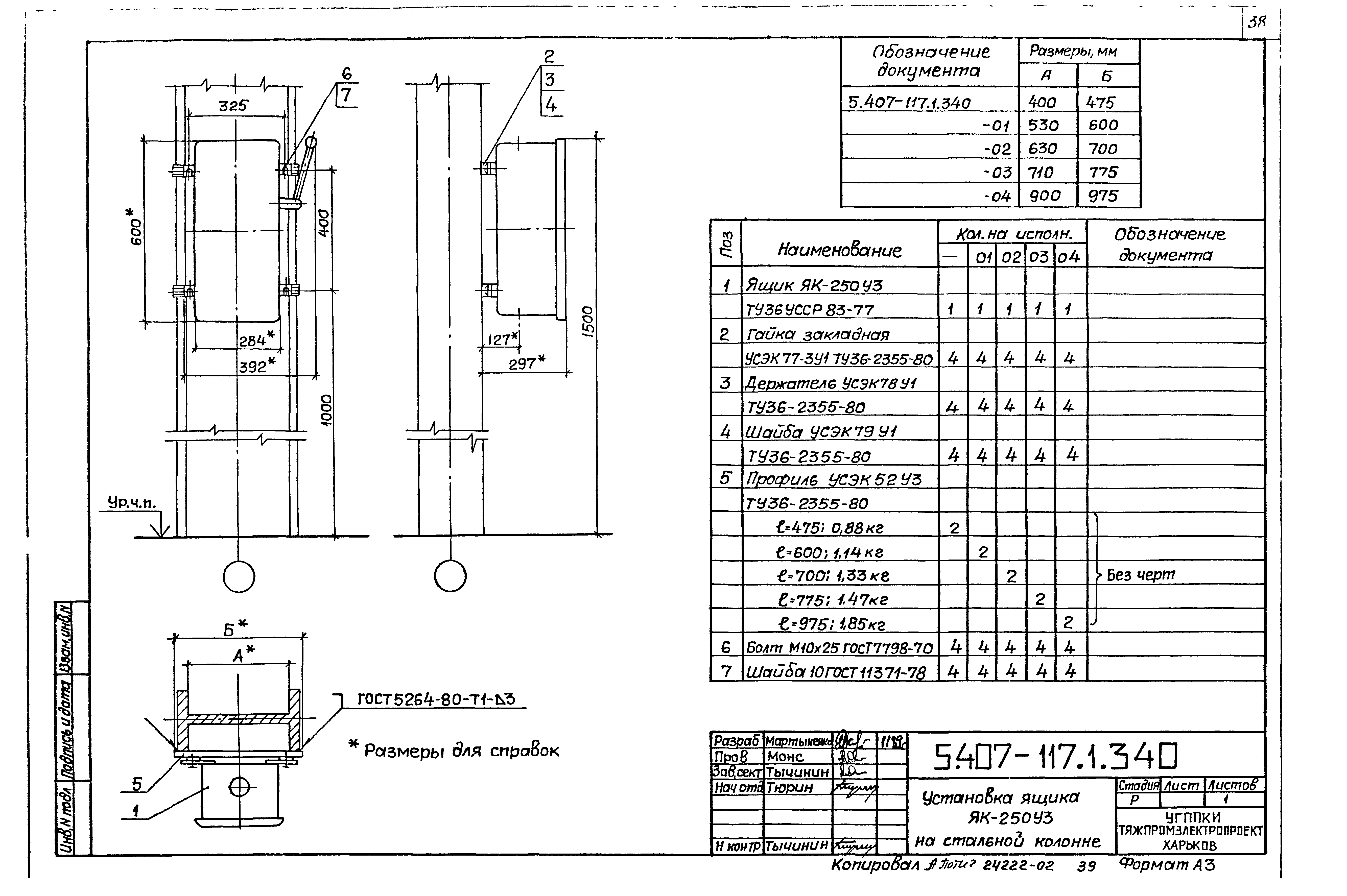
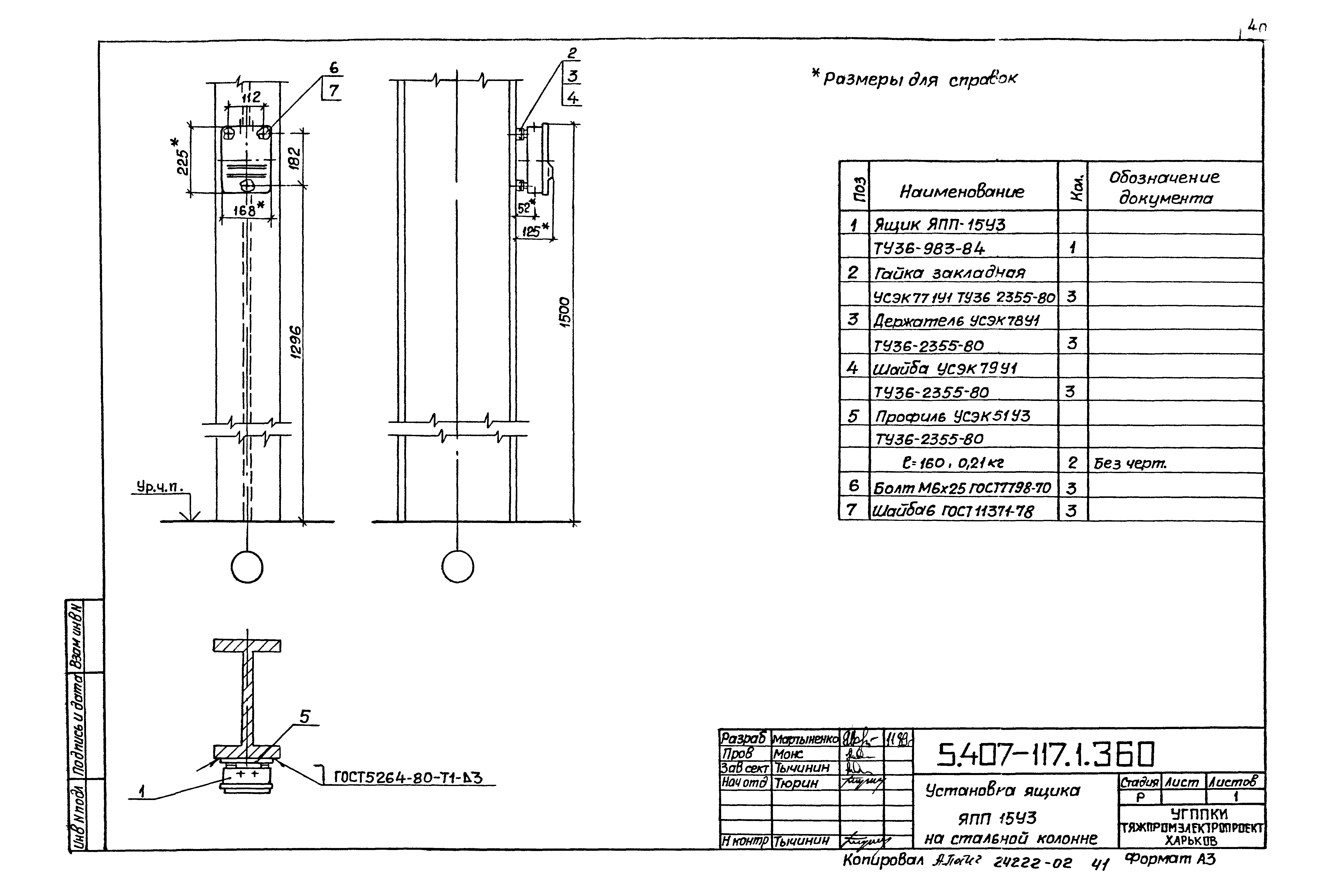
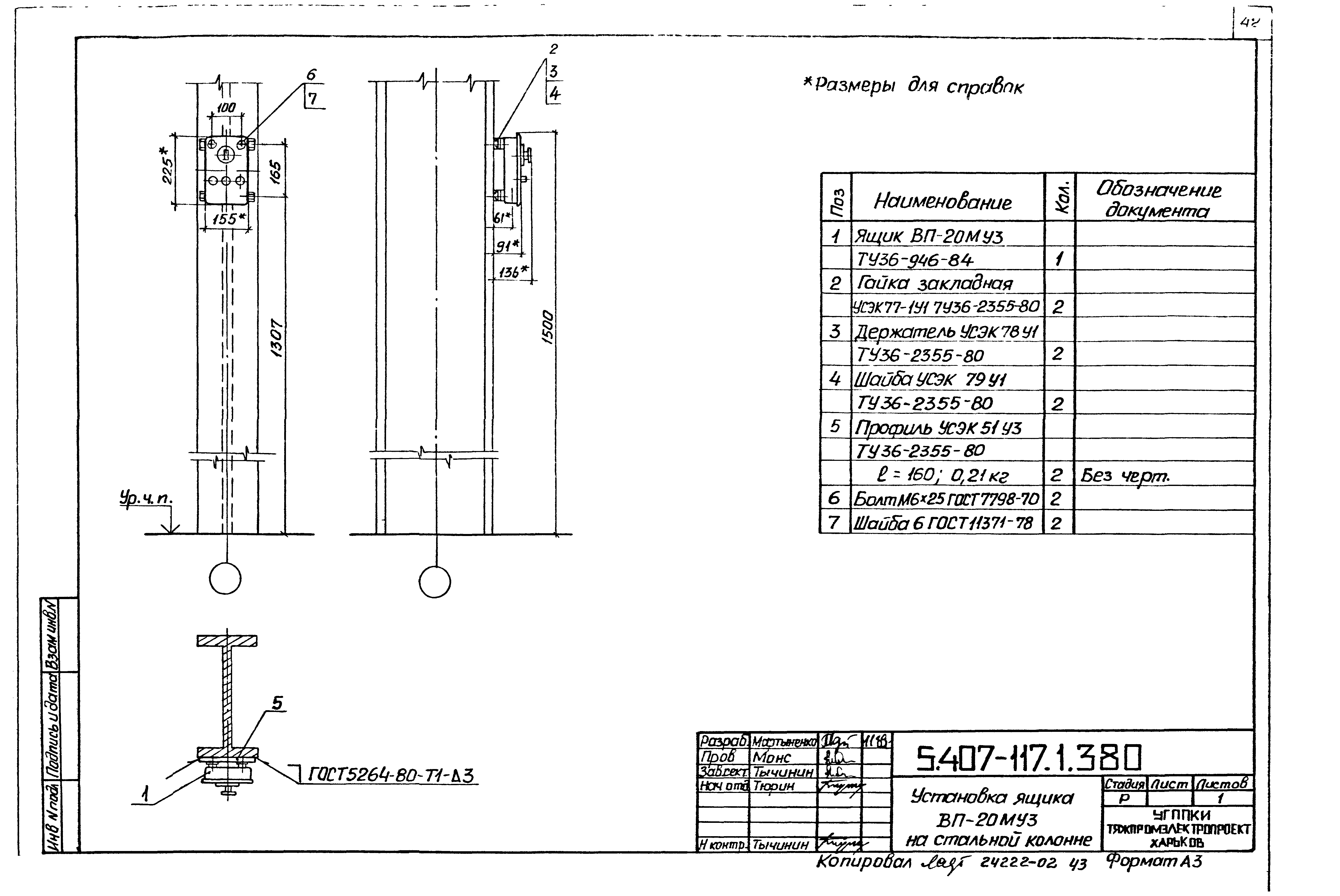
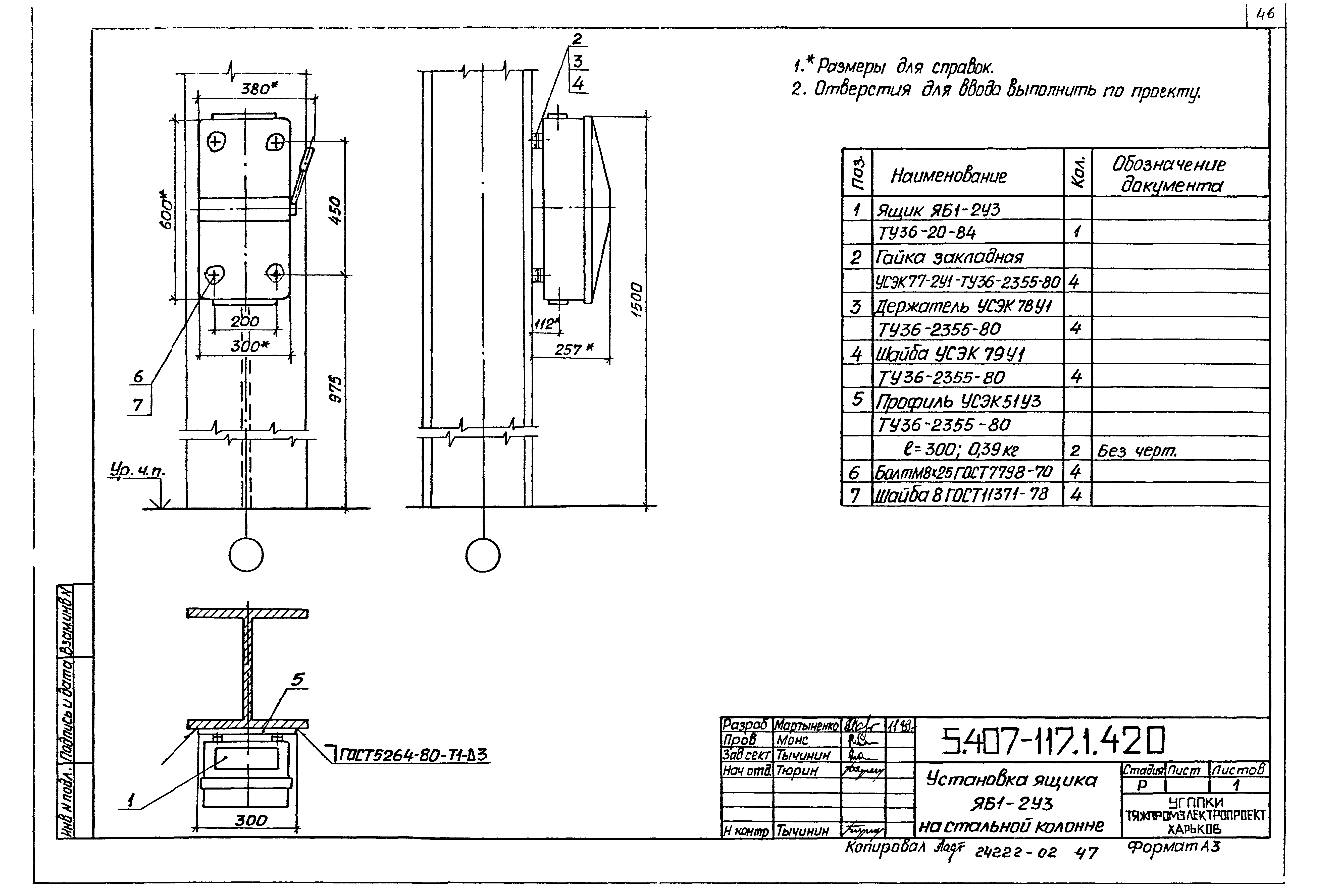
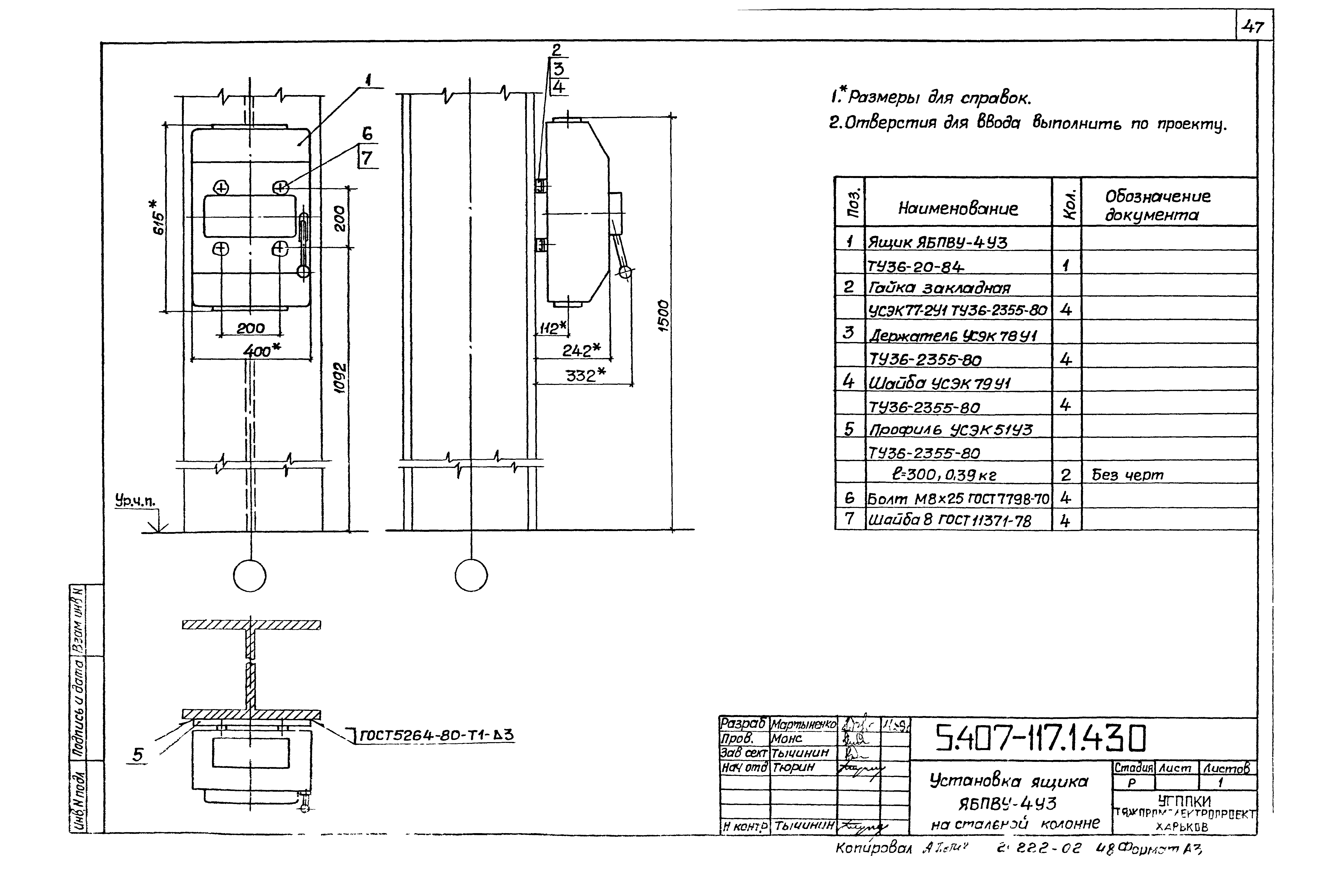
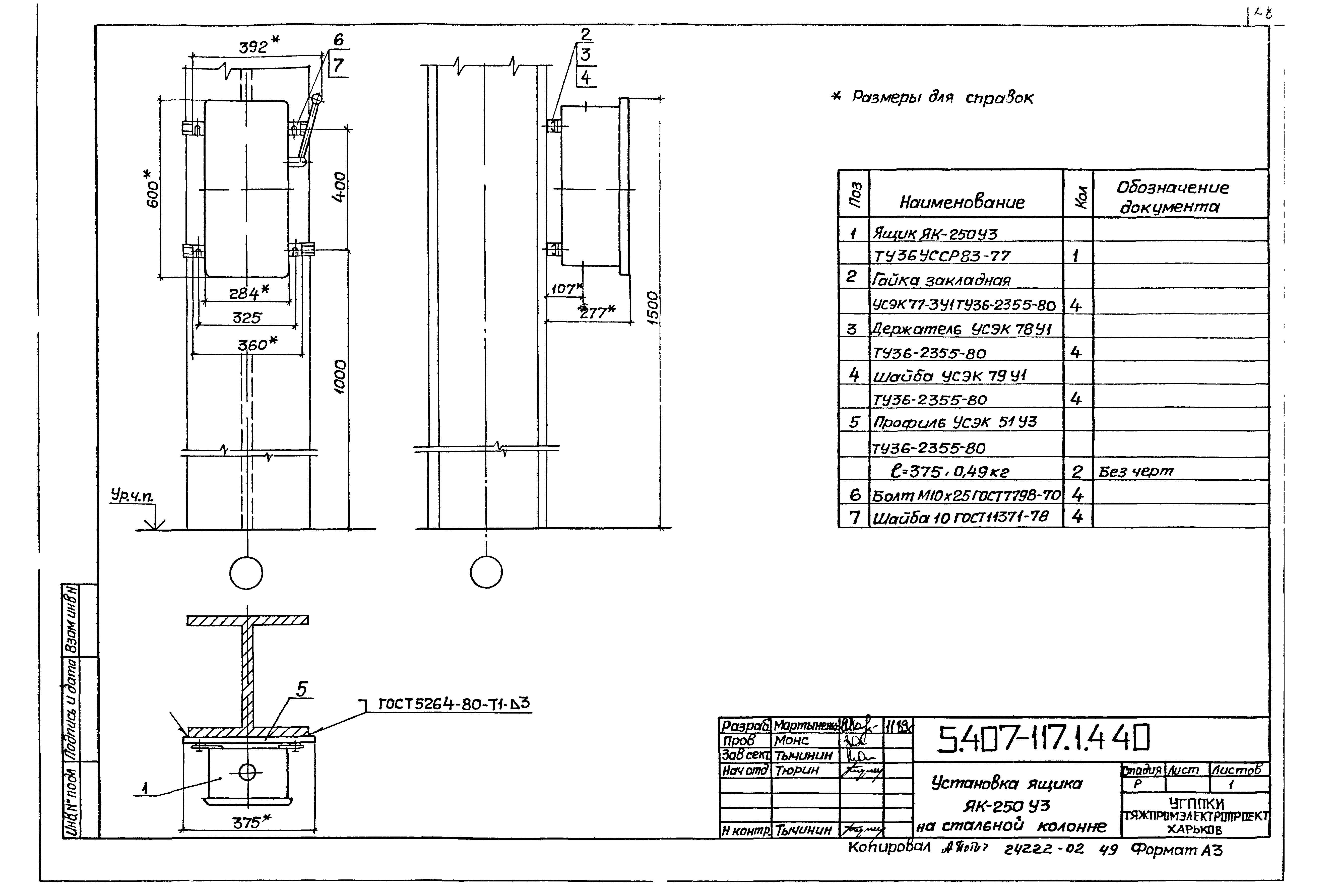
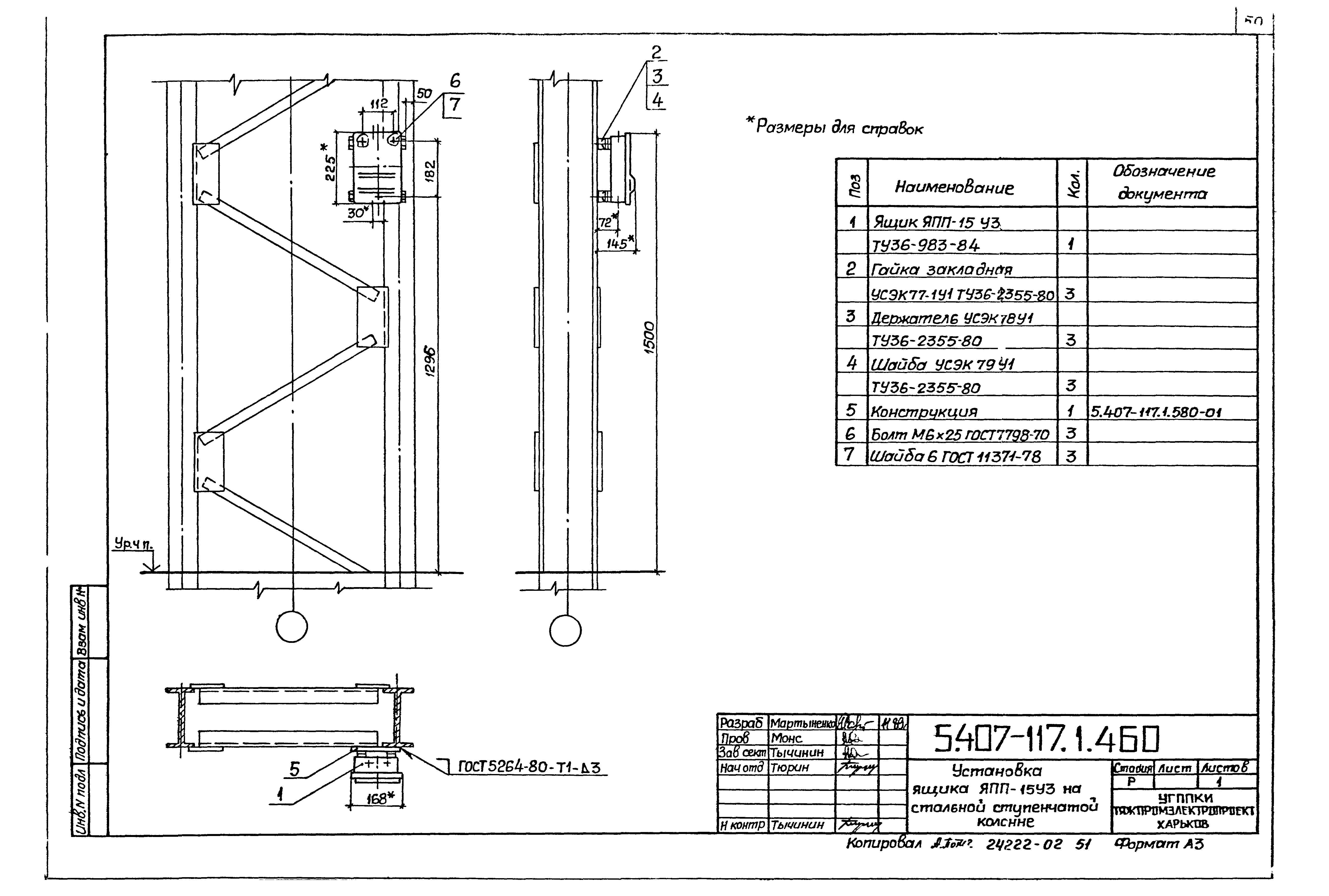
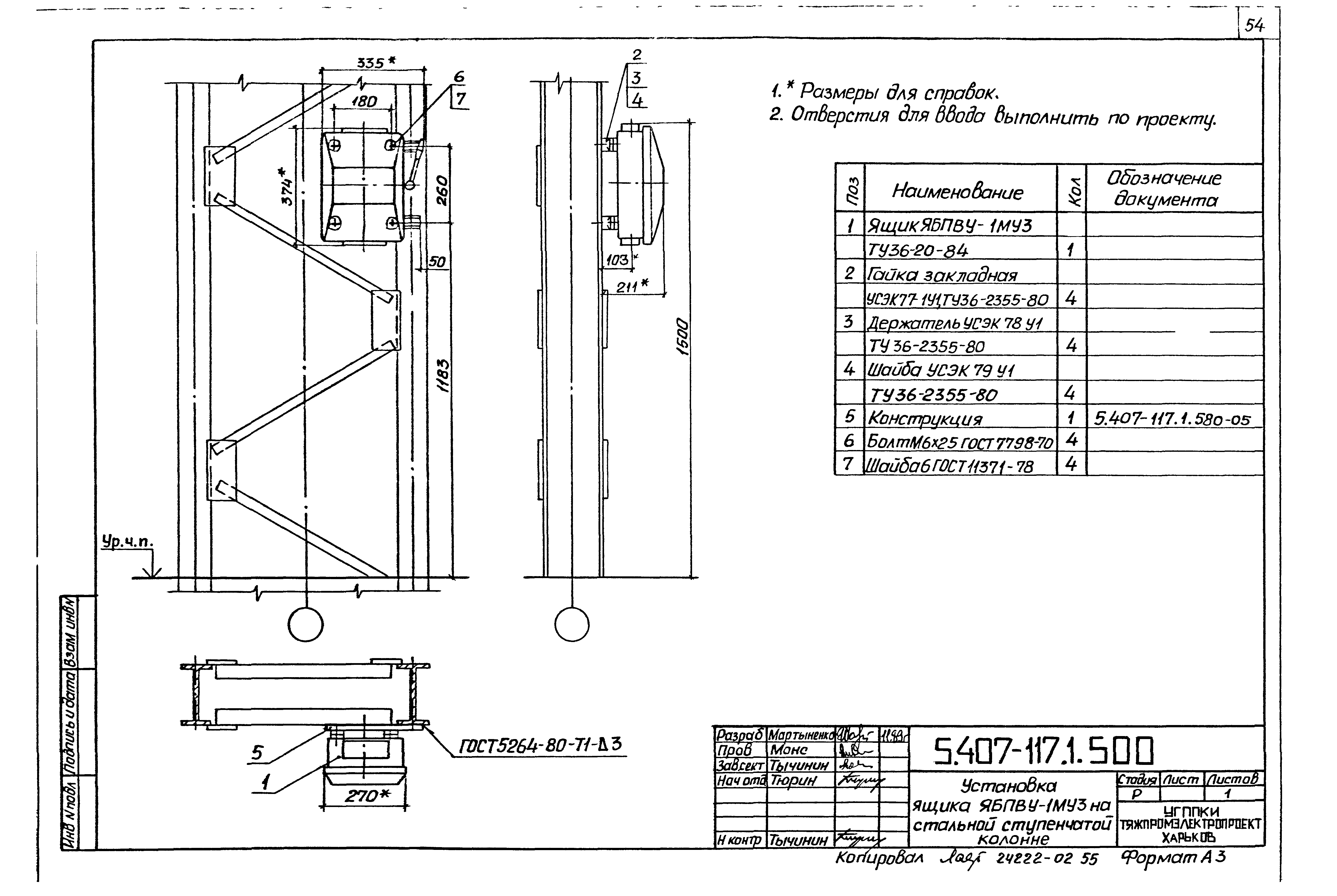
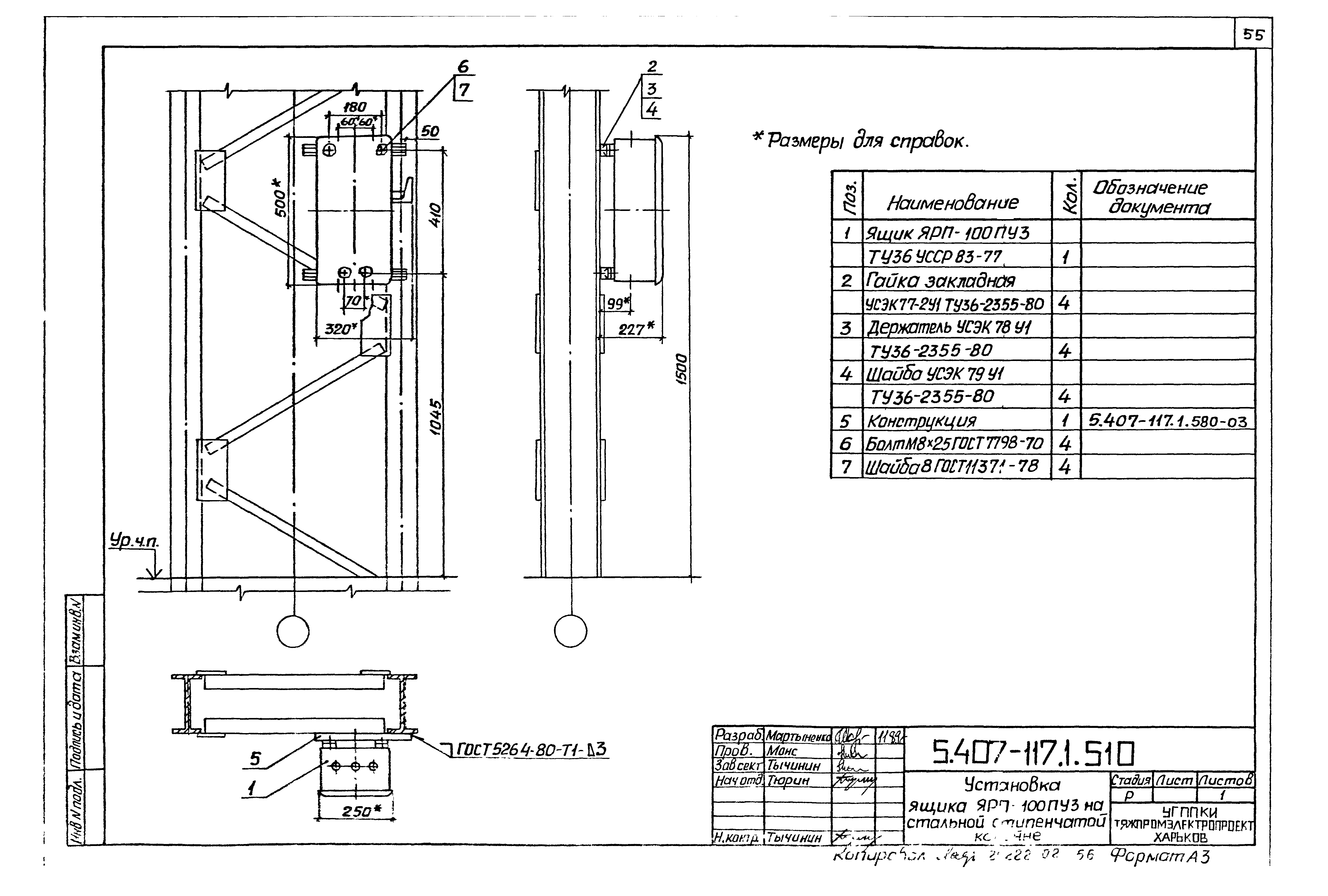
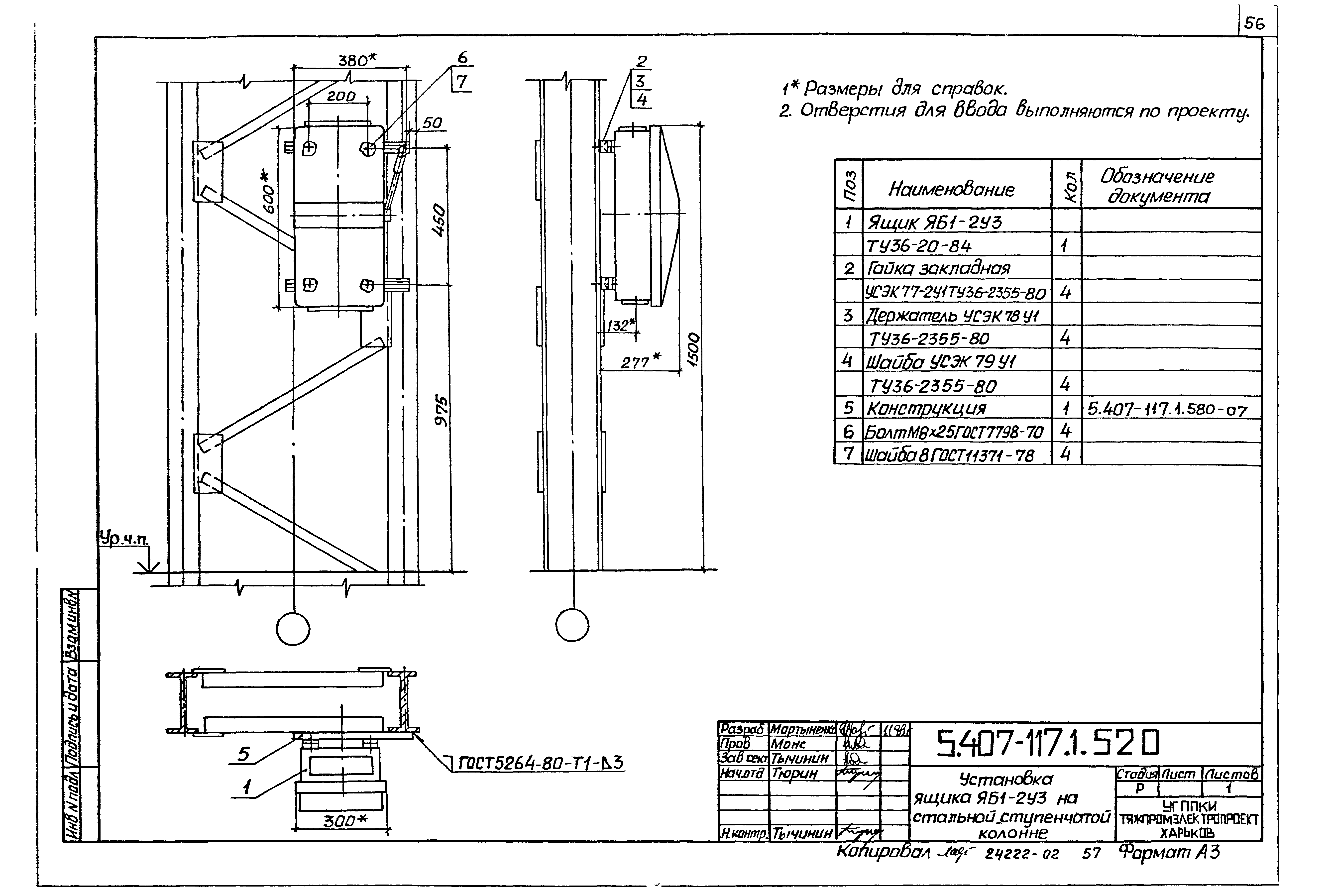
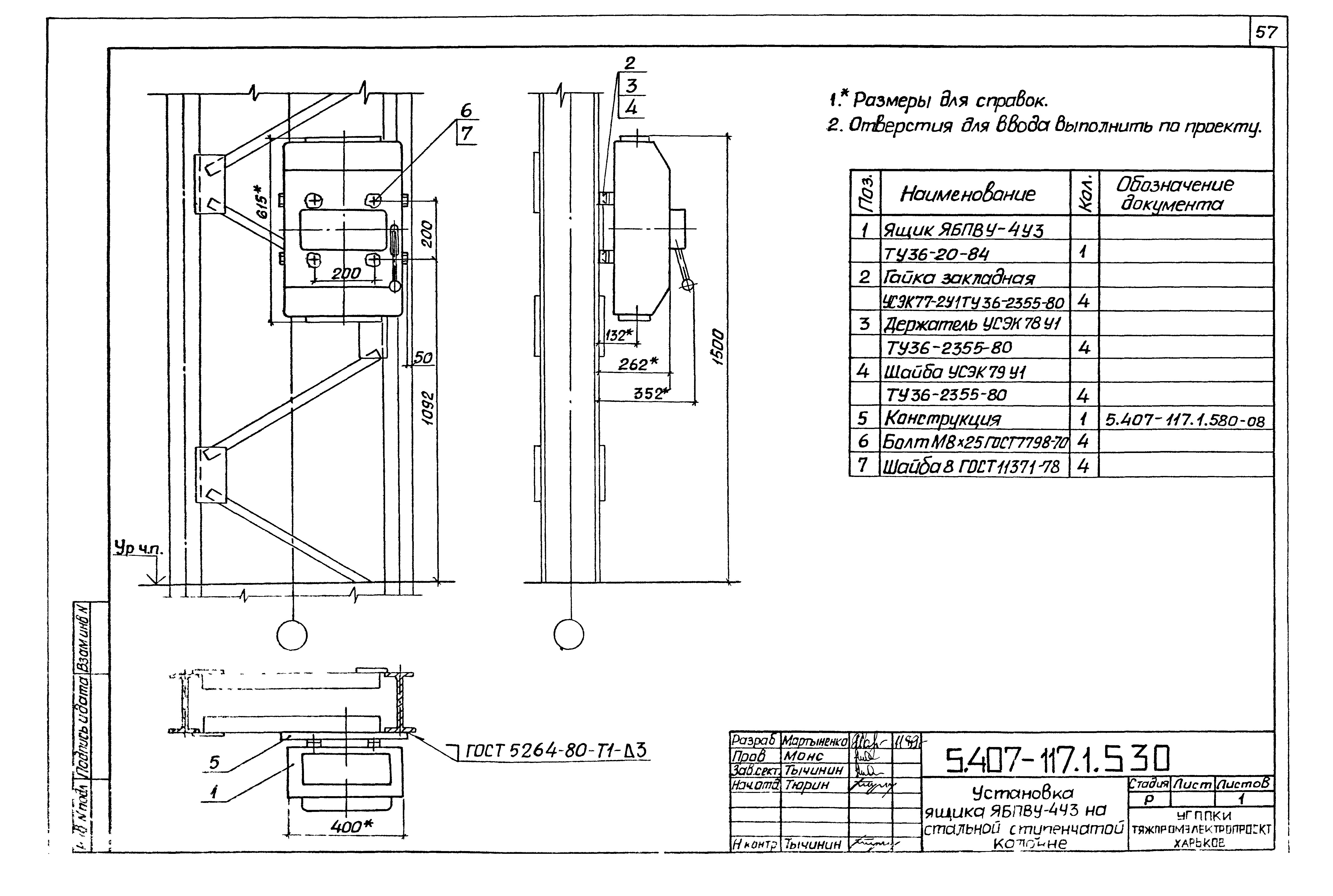
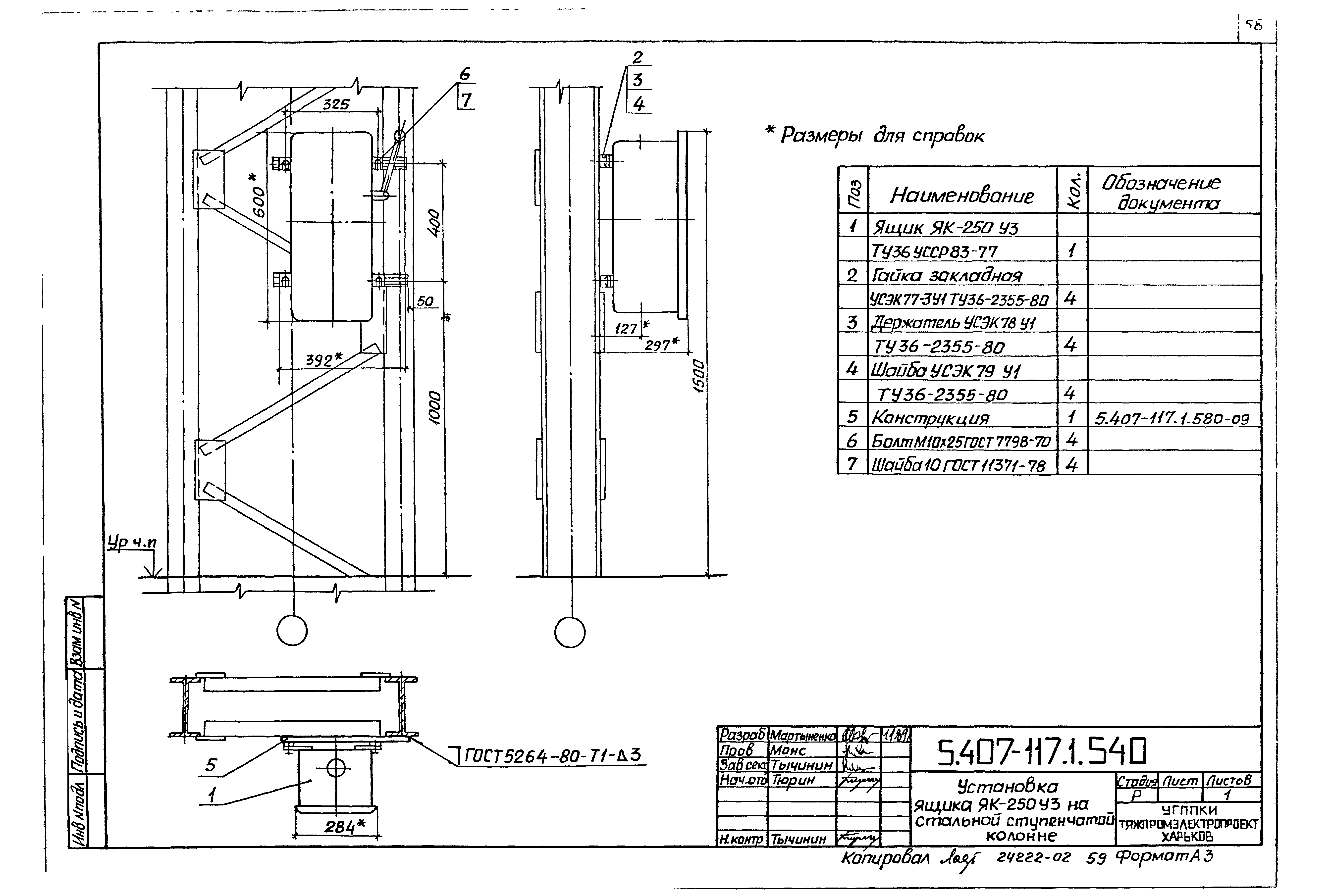
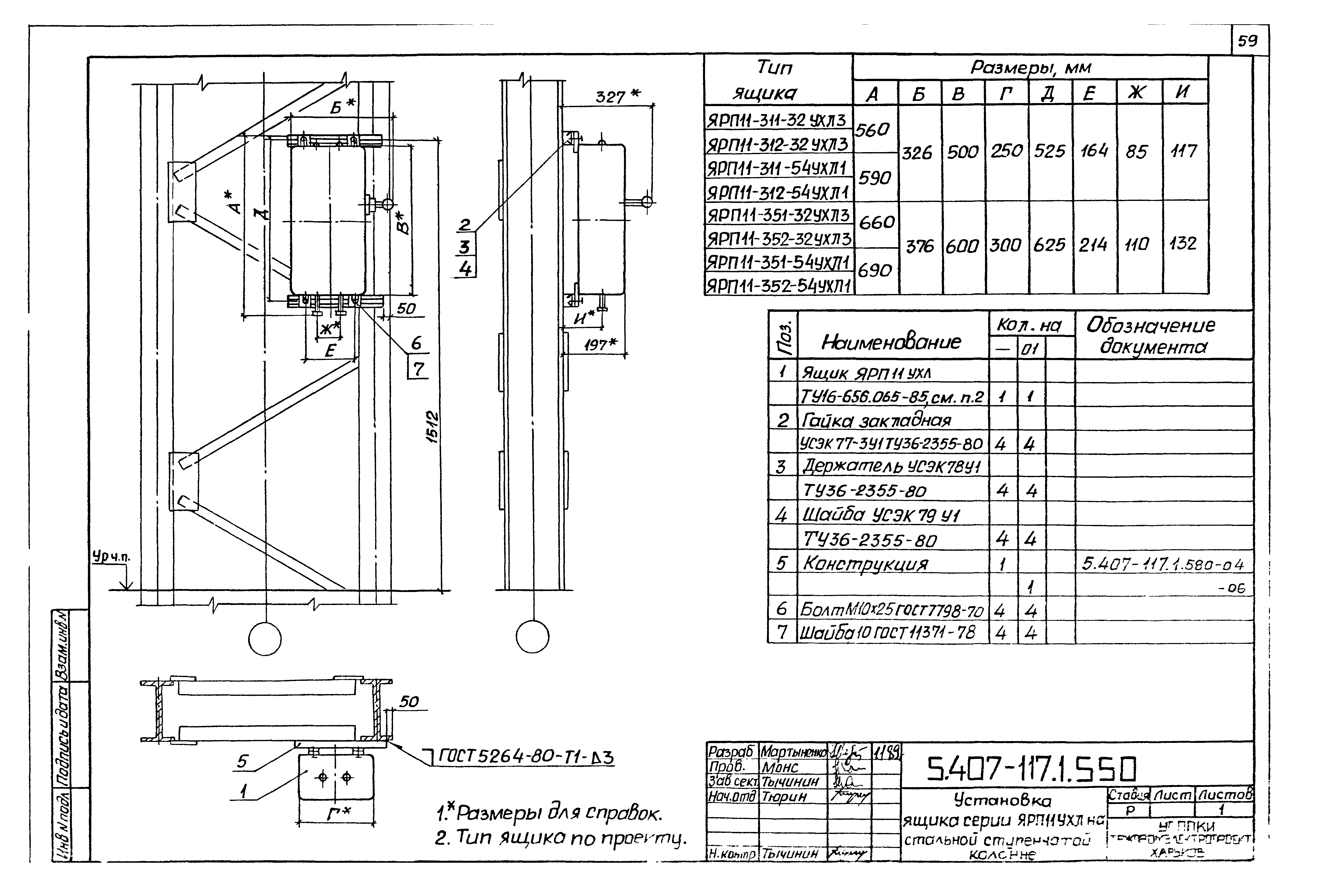
| Оглавление: | 5.407-117.1.10 Установка ящика ЯПП-15У3 на стене 5.407-117.1.20 Установка ящика ЯРП-20У3 на стене 5.407-117.1.30 Установка ящика ВП-20МУ3 на стене 5.407-117.1.40 Установка ящика ЯВ3Ш-31-У2 на стене и ж.-б. колонне 5.407-117.1.50 Установка ящика ЯБПВУ-1МУ3 на стене и ж.-б. колонне 5.407-117.1.60 Установка ящика ЯРП-100ПУ3 на стене и ж.-б. колонне 5.407-117.1.70 Установка ящика ЯБ1-2У3 на стене и ж.-б. колонне 5.407-117.1.80 Установка ящика ЯБПВУ-4У3 на стене и ж.-б. колонне 5.407-117.1.90 Установка ящика ЯК-250У3 на стене и ж.-б. колонне 5.407-117.1.100 Установка ящика серии ЯРП11 УХЛ на стене и ж.-б. колонне 5.407-117.1.110 Установка ящика ЯПП-15У3 на ж.-б. колонне 5.407-117.1.120 Установка ящика ЯРП-20У3 на ж.-б. колонне 5.407-117.1.130 Установка ящика ВП-20МУ3 на ж.-б. колонне 5.407-117.1.140 Установка ящика ЯВЗШ-31-У2 на ж.-б. колонне 5.407-117.1.150 Установка ящика ЯК-250У3 на ж.-б. колонне 5.407-117.1.160 Установка ящика серии ЯРП11УХЛ на ж.-б. колонне 5.407-117.1.170 Установка ящика ЯПП-15У3 на стене с коробом 5.407-117.1.180 Установка ящика ЯРП-20У3 на стене с коробом 5.407-117.1.190 Установка ящика ВП-20МУ3 на стене с коробом 5.407-117.1.200 Установка ящика ЯБПВУ-1МУ3 на стене с коробом 5.407-117.1.210 Установка ящика ЯРП-100ПУ3 на стене с коробом 5.407-117.1.220 Установка ящика ЯБ1-2У3 на стене с коробом 5.407-117.1.230 Установка ящика ЯБПВУ-4У3 на стене с коробом 5.407-117.1.240 Установка ящика ЯК-250У3 на стене с коробом 5.407-117.1.250 Установка ящика серии ЯРП11УХЛ на стене с коробом 5.407-117.1.260 Установка ящика ЯПП-15У3 на стальной колонне 5.407-117.1.270 Установка ящика ЯРП-20У3 на стальной колонне 5.407-117.1.280 Установка ящика ВП-20МУ3 на стальной колонне 5.407-117.1.290 Установка ящика ЯВ3Ш-31-У2 на стальной колонне 5.407-117.1.300 Установка ящика ЯБПВУ-1МУ3 на стальной колонне 5.407-117.1.310 Установка ящика ЯРП-100ПУ3 на стальной колонне 5.407-117.1.320 Установка ящика ЯБ1-2У3 на стальной колонне 5.407-117.1.330 Установка ящика ЯБПВУ-4У3 на стальной колонне 5.407-117.1.340 Установка ящика ЯК-250 У3 на стальной колонне 5.407-117.1.350 Установка ящика серии ЯРП11УХЛ на стальной колонне 5.407-117.1.360 Установка ящика ЯПП-15 УЗ на стальной колонне 5.407-117.1.370 Установка ящика ЯРП-20У3 на стальной колонне 5.407-117.1.380 Установка ящика ВП-20МУ3 на стальной колонне 5.407-117.1.390 Установка ящика ЯВ3Ш-31-У2 на стальной колонне 5.407-117.1.400 Установка ящика ЯБПВУ-1МУ3 на стальной колонне 5.407-117.1.410 Установка ящика ЯРП-100ПУ3 на стальной колонне 5.407-117.1.420 Установка ящика ЯБ1-2У3 на стальной колонне 5.407-117.1.430 Установка ящика ЯБПВУ-4У3 на стальной колонне 5.407-117.1.440 Установка ящика ЯК-250 У3 на стальной колонне 5.407-117.1.450 Установка ящика серии ЯРП11УХЛ на стальной колонне 5.407-117.1.460 Установка ящика ЯПП-15УЗ на стальной ступенчатой колонне 5.407-117.1.470 Установка ящика ЯРП-20УЗ на стальной ступенчатой колонне 5.407-117.1.480 Установка ящика ВП-20МУЗ на стальной ступенчатой колонне 5.407-117.1.490 Установка ящика ЯВЗШ-31-У2 на стальной ступенчатой колонне 5.407-117.1.500 Установка ящика ЯБПВУ-1МУ3 на стальной ступенчатой колонне 5.407-117.1.510 Установка ящика ЯРП-100ПУ3 на стальной ступенчатой колонне 5.407-117.1.520 Установка ящика ЯБ1-2У3 на стальной ступенчатой колонне 5.407-117.1.530 Установка ящика ЯБПВУ-4У3 на стальной ступенчатой колонне 5.407-117.1.540 Установка ящика ЯК-250У3 на стальной ступенчатой колонне 5.407-117.1.550 Установка ящика серии ЯРП11УХЛ на стальной ступенчатой колонне 5.407-117.1.560 Короб 5.407-117.1.561 Короб 5.407-117.1.570 Скоба в сборе 5.407-117.1.571 Скоба 5.407-117.1.580 Конструкция |
| Разработан: | Украинский Тяжпромэлектропроект |
| Утверждён: | 13.04.1989 НПО Электромонтаж ММСС СССР |
| Издан: | ГУП ЦПП (CPP GUP 1997 г. ) |
































































