Скачать Серия 5.904-29 Установка эжекторов низкого давления. Рабочие чертежиДата актуализации: 01.01.2021
|
| Обозначение: | Серия 5.904-29 |
| Обозначение англ: | Series 5.904-29 |
| Статус: | не определен законодательством |
| Название рус.: | Установка эжекторов низкого давления. Рабочие чертежи |
| Дата добавления в базу: | 01.09.2013 |
| Дата актуализации: | 01.01.2021 |
| Дата введения: | 15.07.1986 |
| Дата окончания срока действия: | 30.06.2003 |
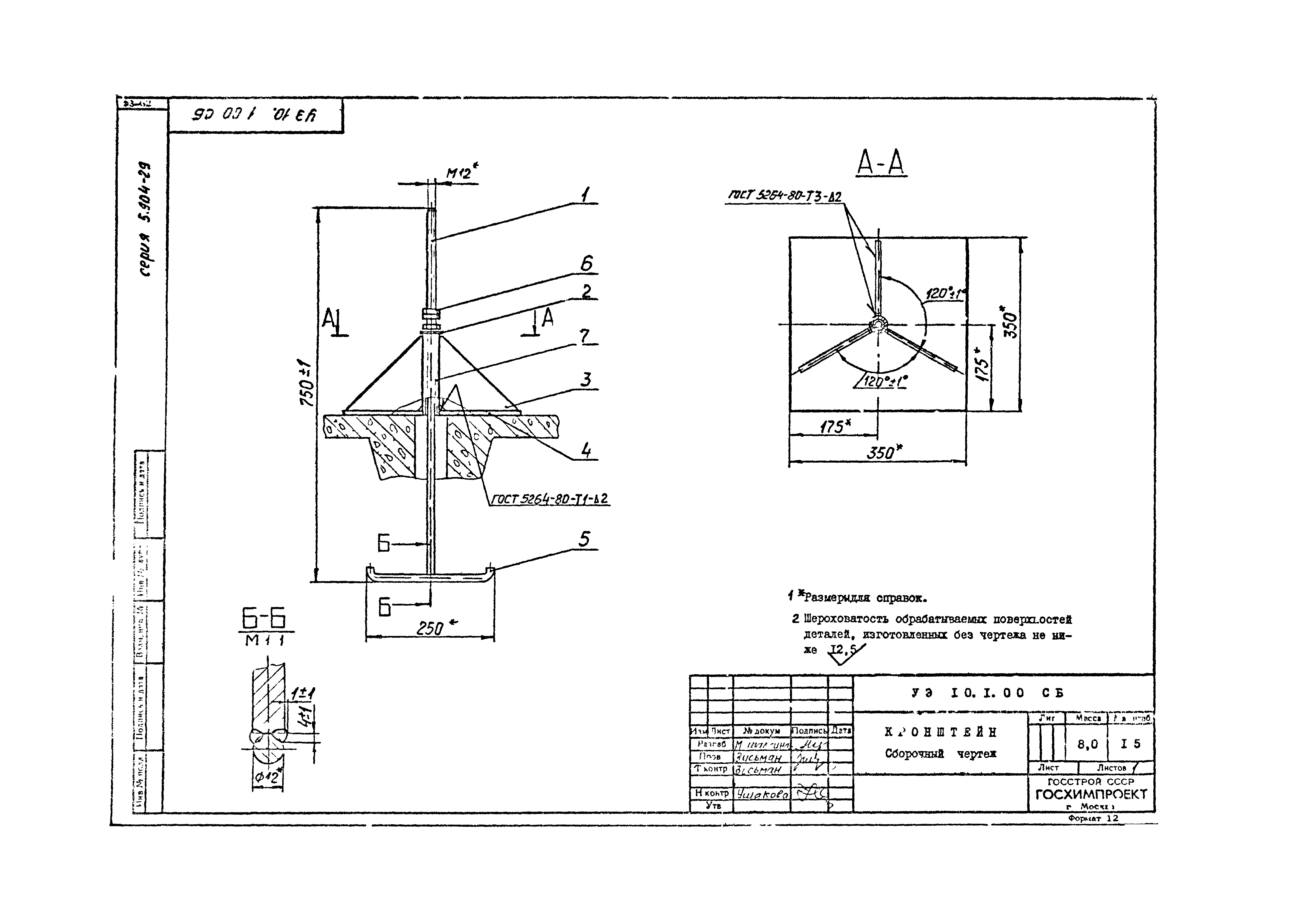
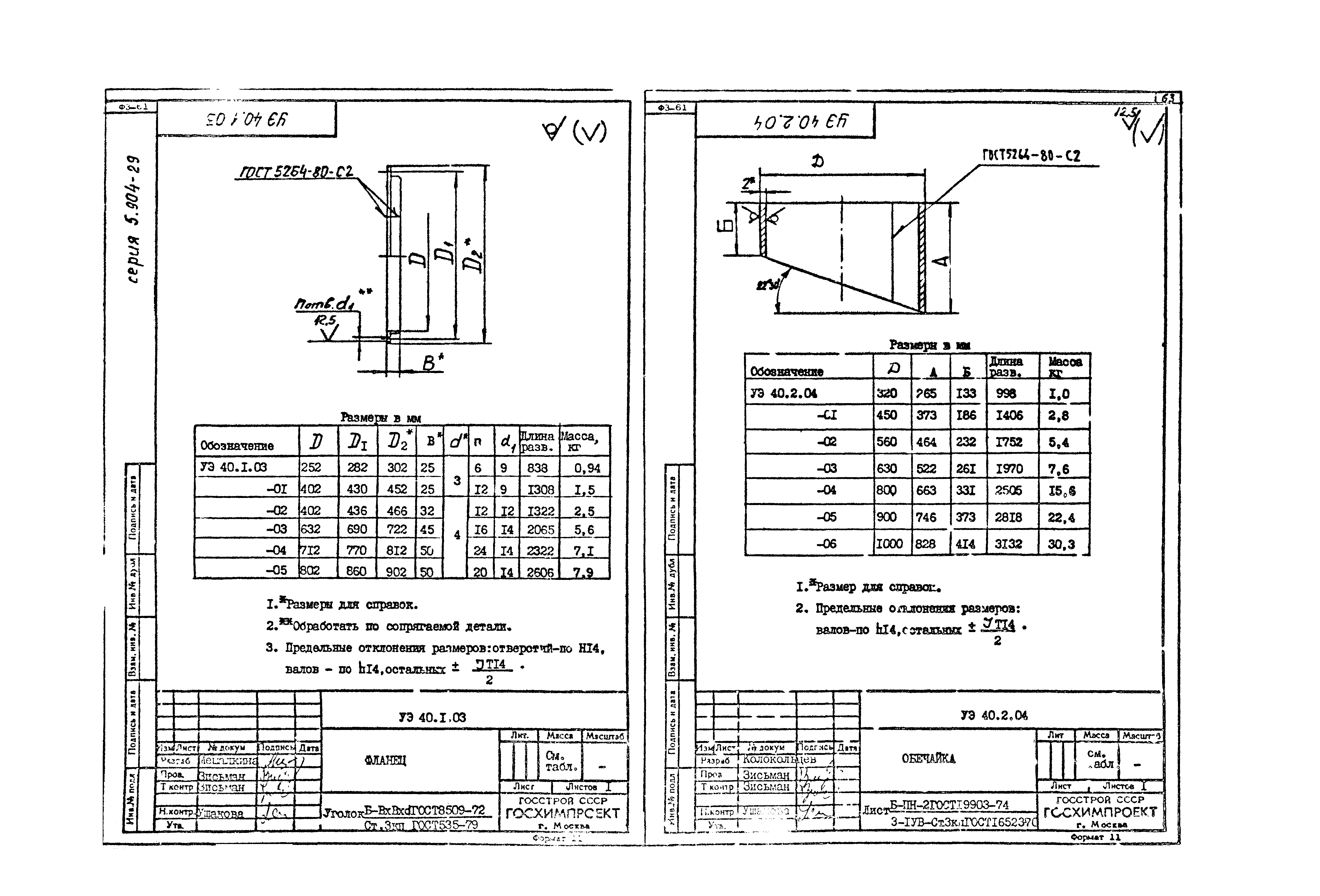
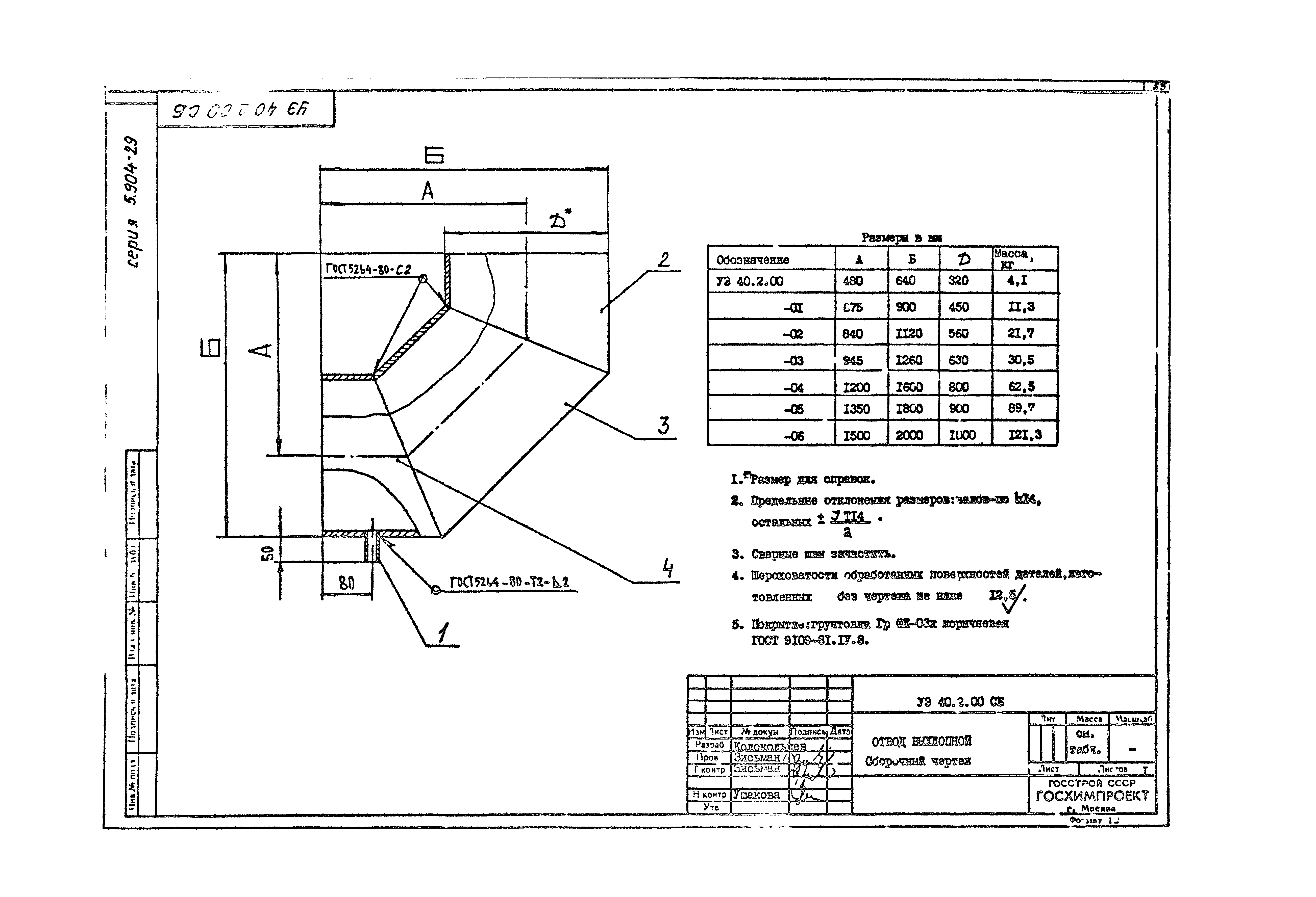
| Оглавление: | УЭ 00.0.00 ТО Установка эжекторов низкого давления. Техническое описание УЭ 10.0.00 Вертикальная установка эжектора на покрытии промышленных зданий. Спецификация УЭ 10.0.00 СБ Вертикальная установка эжектора на покрытии промышленных зданий. Сборочный чертеж УЭ 10.1.00 Кронштейн. Спецификация УЭ 10.1.05 Штырь УЭ 10.1.00 СБ Кронштейн. Сборочный чертеж УЭ 10.1.01 Тяга УЭ 10.1.04 Плита УЭ 10.1.03 Косынка УЭ 10.2.00 Цапфа. Спецификация УЭ 10.0.01 Тяга УЭ 10.2.00 СБ Цапфа. Сборочный чертеж УЭ 10.2.01 Скоба УЭ 10.3.00 Патрубок. Спецификация УЭ 10.3.00 СБ Патрубок. Сборочный чертеж УЭ 10.3.01 Фланец УЭ 10.3.03 Фланец УЭ 10.4.00 Опора. Спецификация УЭ 10.4.04 Фланец УЭ 10.4.00 СБ Опора. Сборочный чертеж УЭ 10.4.01 Фланец УЭ 10.4.03 Ребро УЭ 10.0.02 Прокладка УЭ 10.0.03 Прокладка УЭ 10.0.04 Шайба УЭ 20.1.08 Раскос УЭ 20.0.00 Установка эжектора на кронштейне. Спецификация УЭ 20.0.00 СБ Установка эжектора на кронштейне. Сборочный чертеж УЭ 20.0.01 Шайба УЭ 20.1.00 Кронштейн. Спецификация УЭ 20.1.00 СБ Кронштейн. Сборочный чертеж УЭ 20.1.02 Уголок УЭ 20.1.09 Уголок УЭ 20.1.05 Ребро УЭ 20.1.06 Косынка УЭ 20.1.07 Косынка УЭ 30.0.00 Установка эжектора на полу. Спецификация УЭ 30.0.00 СБ Установка эжектора на полу. Сборочный чертеж УЭ 30.1.07 Косынка УЭ 30.1.00 Стойка. Спецификация УЭ 30.1.00 СБ Стойка. Сборочный чертеж УЭ 40.0.00 Горизонтальная установка эжектора на покрытии промышленных зданий. Спецификация УЭ 40.0.00 СБ Горизонтальная установка эжектора на покрытии промышленных зданий. Сборочный чертеж УЭ 40.1.00 Отвод опорный. Спецификация УЭ 40.1.00 СБ Отвод опорный. Сборочный чертеж УЭ 40.1.01 Обечайка УЭ 40.1.02 Обечайка УЭ 40.1.03 Фланец УЭ 40.2.04 Обечайка УЭ 40.2.00 Отвод выхлопной. Спецификация УЭ 40.2.00 СБ Отвод выхлопной. Сборочный чертеж УЭ 40.2.02 Обечайка УЭ 40.2.03 Обечайка УЭ 40.3.00 Опора. Спецификация УЭ 40.3.00 СБ Опора. Сборочный чертеж УЭ 40.0.01 Хомут УЭ 40.3.02 Уголок УЭ 40.3.03 Стойка УЭ 40.3.04 Стойка УЭ 40.0.02 Прокладка УЭ 40.0.03 Прокладка |
| Разработан: | ГПИ Госхимпроект Госстроя СССР |
| Утверждён: | 12.06.1986 Главпроект Госстроя СССР (34) |









































































