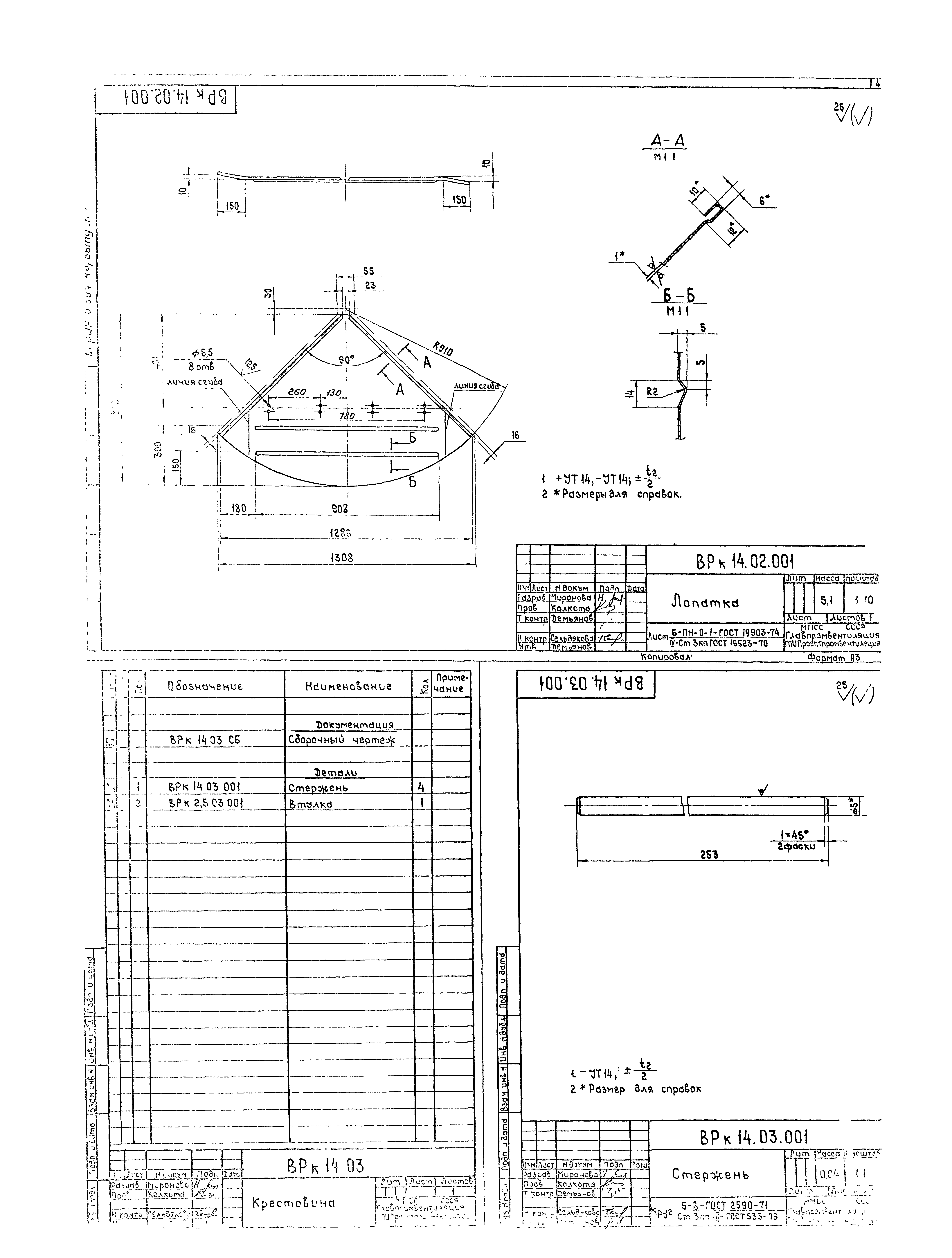
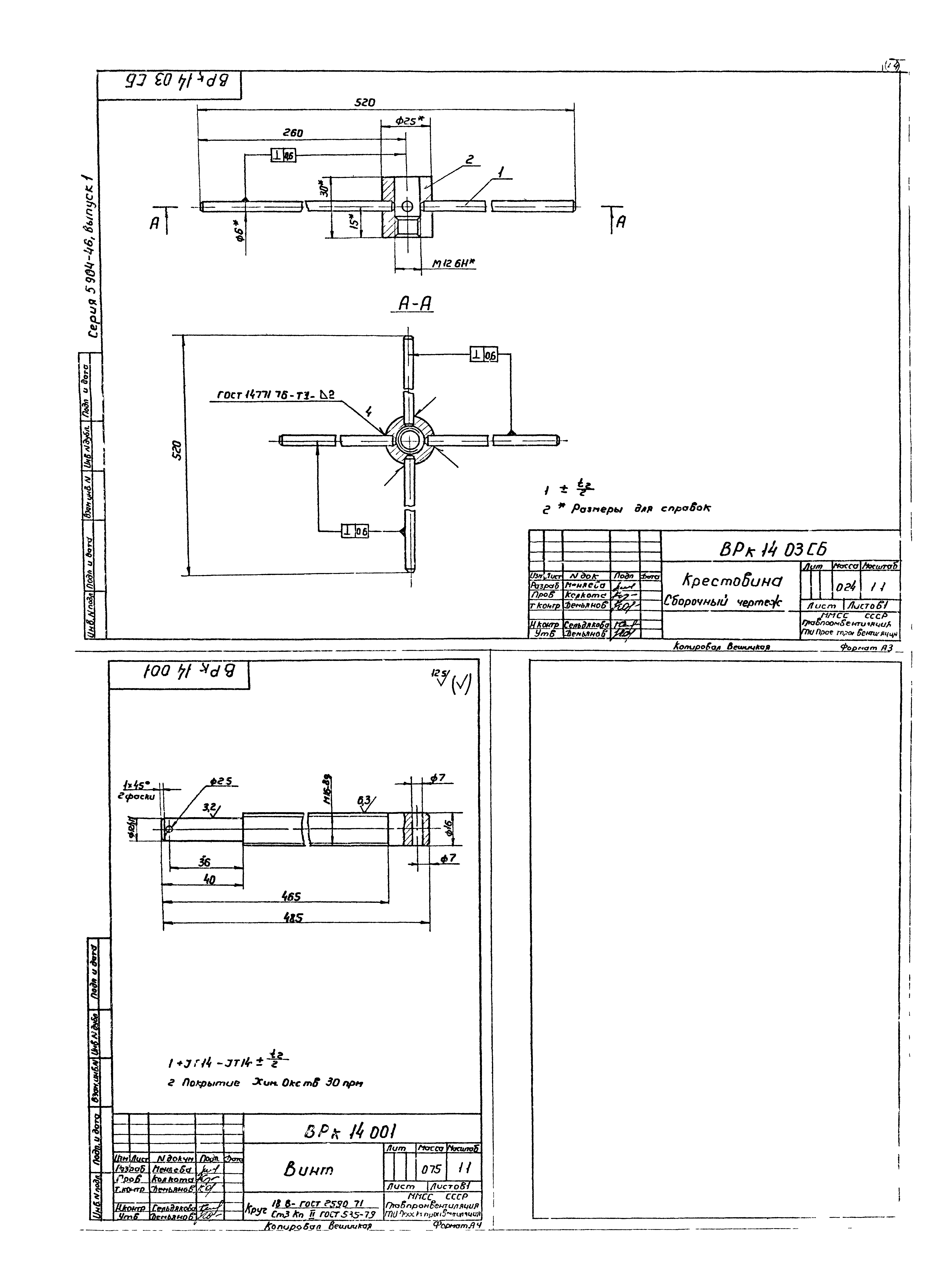
Скачать Серия 5.904-46 Выпуск 1. Рабочие чертежиДата актуализации: 01.01.2021 Серия 5.904-46
Выпуск 1. Рабочие чертежи| Обозначение: | Серия 5.904-46 | | Обозначение англ: | Series 5.904-46 | | Статус: | не определен законодательством | | Название рус.: | Выпуск 1. Рабочие чертежи | | Дата добавления в базу: | 01.09.2013 | | Дата актуализации: | 01.01.2021 | | Дата введения: | 01.08.1988 | | Дата окончания срока действия: | 30.06.2003 | | Разработан: | ГПИ Проектпромвентиляция
| | Утверждён: | 14.03.1988 Госстрой СССР (Государственный комитет Совета Министров СССР по делам строительства) (USSR Gosstroy 14)
|
                                           
|