Скачать Серия 5.904-75.94 Выпуск 1-1. Соединительная секция для приточной камеры 2ПК10. Рабочие чертежиДата актуализации: 01.01.2021
|
| Обозначение: | Серия 5.904-75.94 |
| Обозначение англ: | Series 5.904-75.94 |
| Статус: | не определен законодательством |
| Название рус.: | Выпуск 1-1. Соединительная секция для приточной камеры 2ПК10. Рабочие чертежи |
| Дата добавления в базу: | 01.09.2013 |
| Дата актуализации: | 01.01.2021 |
| Дата введения: | 30.06.1994 |
| Дата окончания срока действия: | 30.06.2003 |
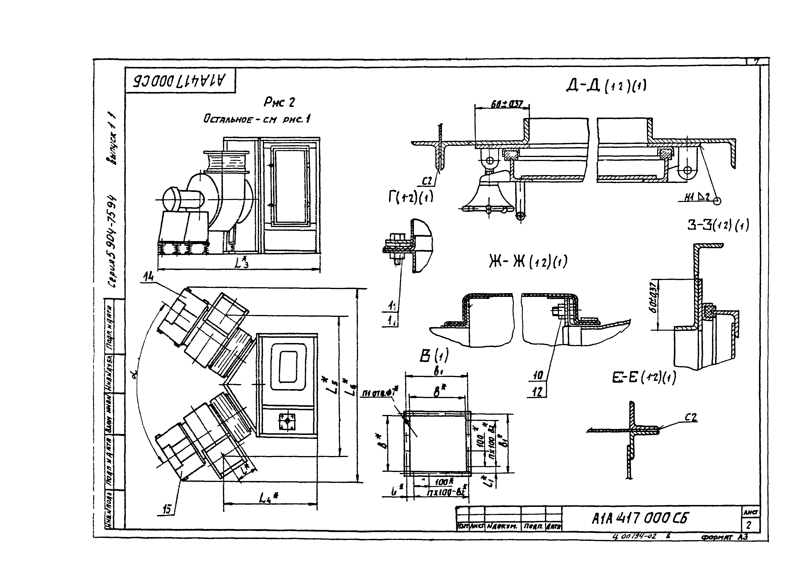
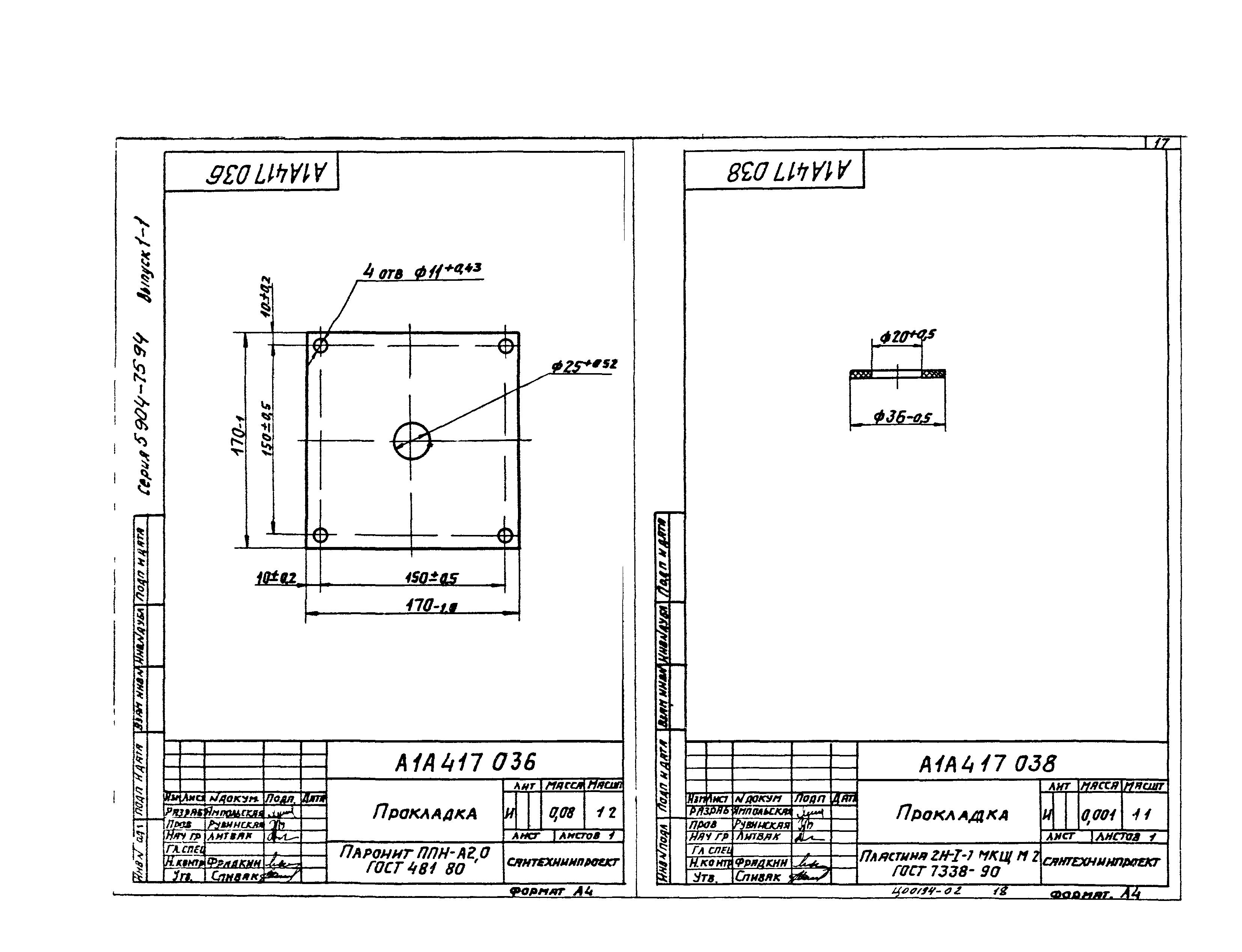
| Оглавление: | А1А417.000 ТО Секция соединительная для приточной камеры 2ПК10. Техническое описание А1А417.000 Секция соединительная для приточной камеры 2ПК10 А1А417.000 СБ Секция соединительная для приточной камеры 2ПК10 А1А417.010 Панель передняя А1А417.010 СБ Панель передняя А1А417.011 Стойка А1А417.032 Полка А1А417.012 Поперечина А1А417.013 Профиль А1А417.017 Стенка А1А417.031 Стенка А1А4170.20 Панель задняя А1А417.020 СБ Панель задняя А1А417.030 Панель верхняя А1А417.030 СБ Панель верхняя А1А417.037 Пробка А1А417.041 Планка А1А417.035 Плита А1А417.039 Бобышка А1А417.036 Прокладка А1А417.038 Прокладка А1А417.040 Панель торцевая А1А417.040 СБ Панель торцевая А1А417.047 Стенка А1А417.057 Конфузор А1А417.050 Конфузор А1А417.050 СБ Конфузор А1А417.055 Фланец А1А417.056 Фланец А1А417.060 Решетка ограждающая А1А417.060 СБ Решетка ограждающая А1А417.075 Полка А1А417.061 Кольцо А1А417.063 Фланец А1А417.72 Панель торцевая А1А417.72 СБ Панель торцевая А1А417.073 Крышка А1А417.074 Профиль А1А417.080 Сектор А1А417.080 СБ Сектор |
| Разработан: | ГПКНИИ Сантехниипроект |
| Утверждён: | 25.02.1994 Главпроект Госстроя России (9-3-2/34) |





























