Скачать Серия 5.904-75.94 Выпуск 1-6. Соединительная секция для приточной камеры 2ПК80. Рабочие чертежиДата актуализации: 01.01.2021
|
| Обозначение: | Серия 5.904-75.94 |
| Обозначение англ: | Series 5.904-75.94 |
| Статус: | не определен законодательством |
| Название рус.: | Выпуск 1-6. Соединительная секция для приточной камеры 2ПК80. Рабочие чертежи |
| Дата добавления в базу: | 01.09.2013 |
| Дата актуализации: | 01.01.2021 |
| Дата введения: | 30.06.1994 |
| Дата окончания срока действия: | 30.06.2003 |
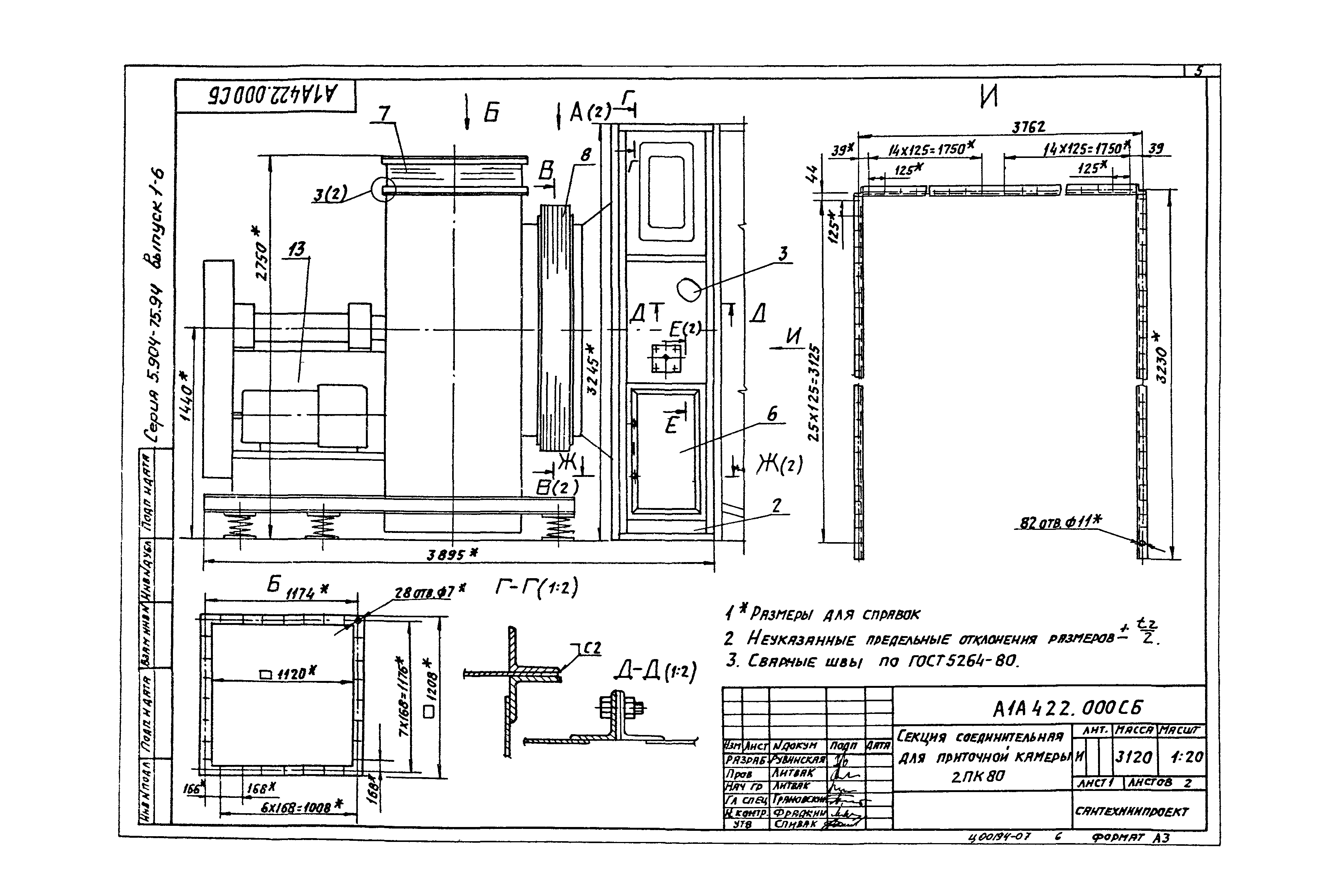
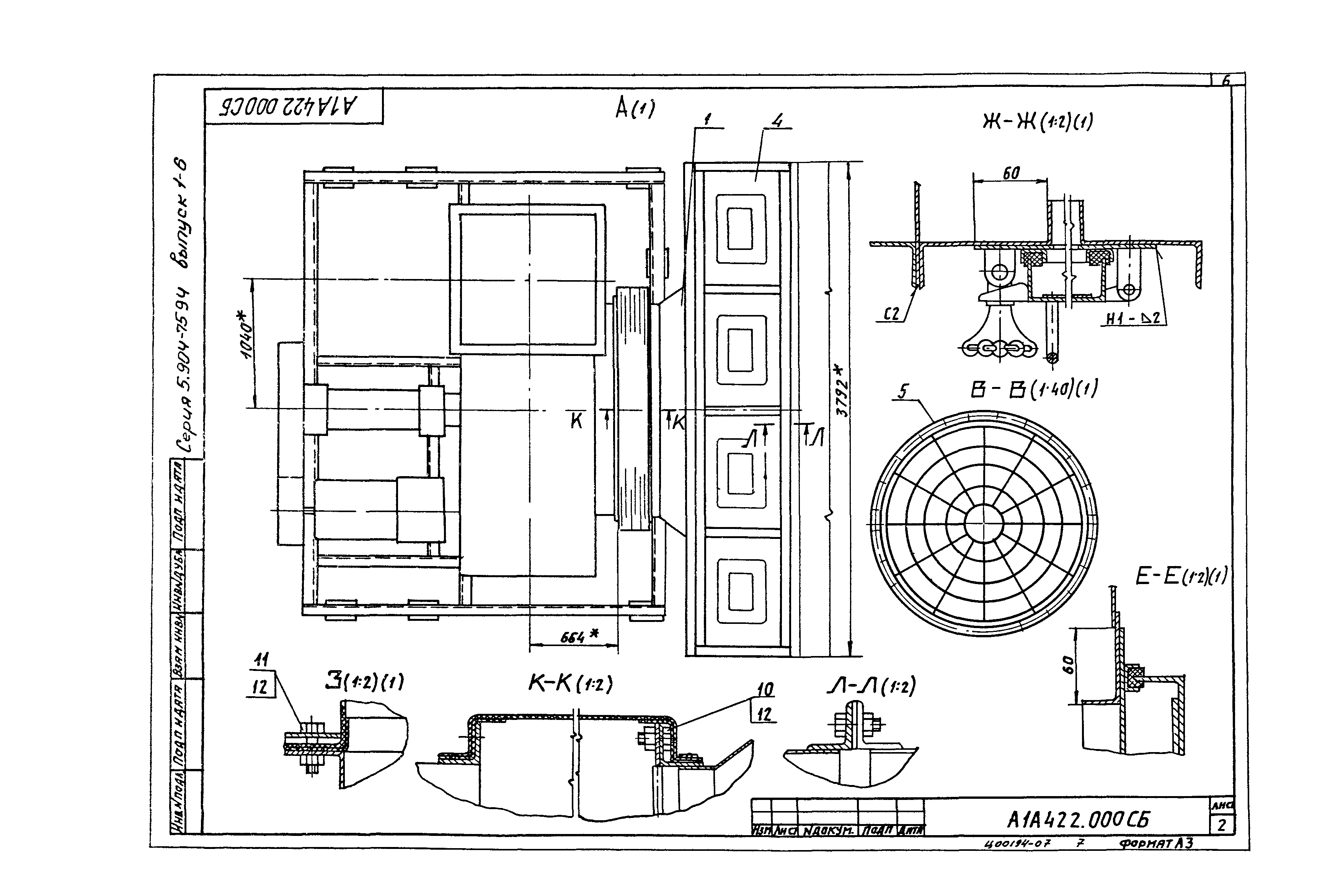
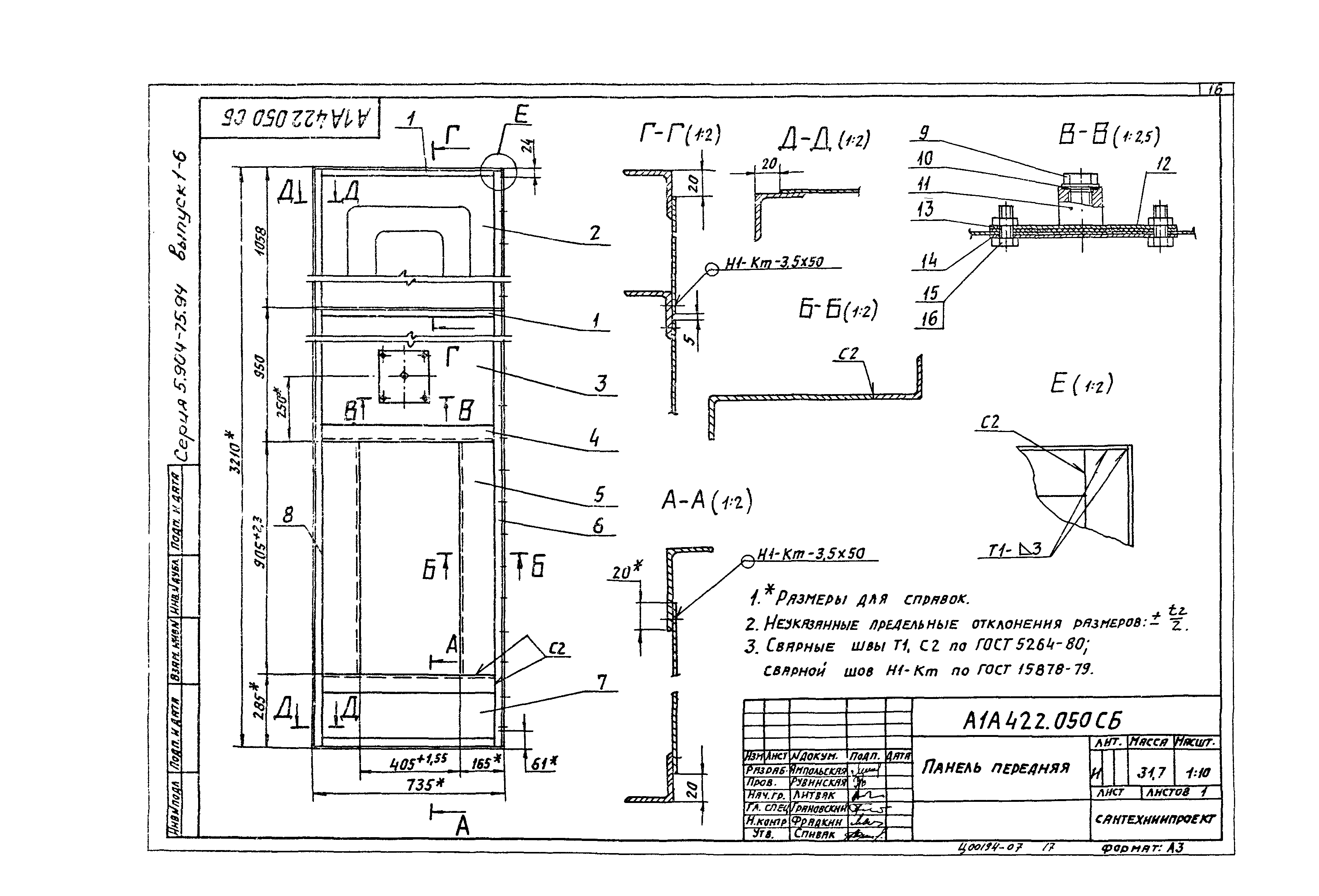
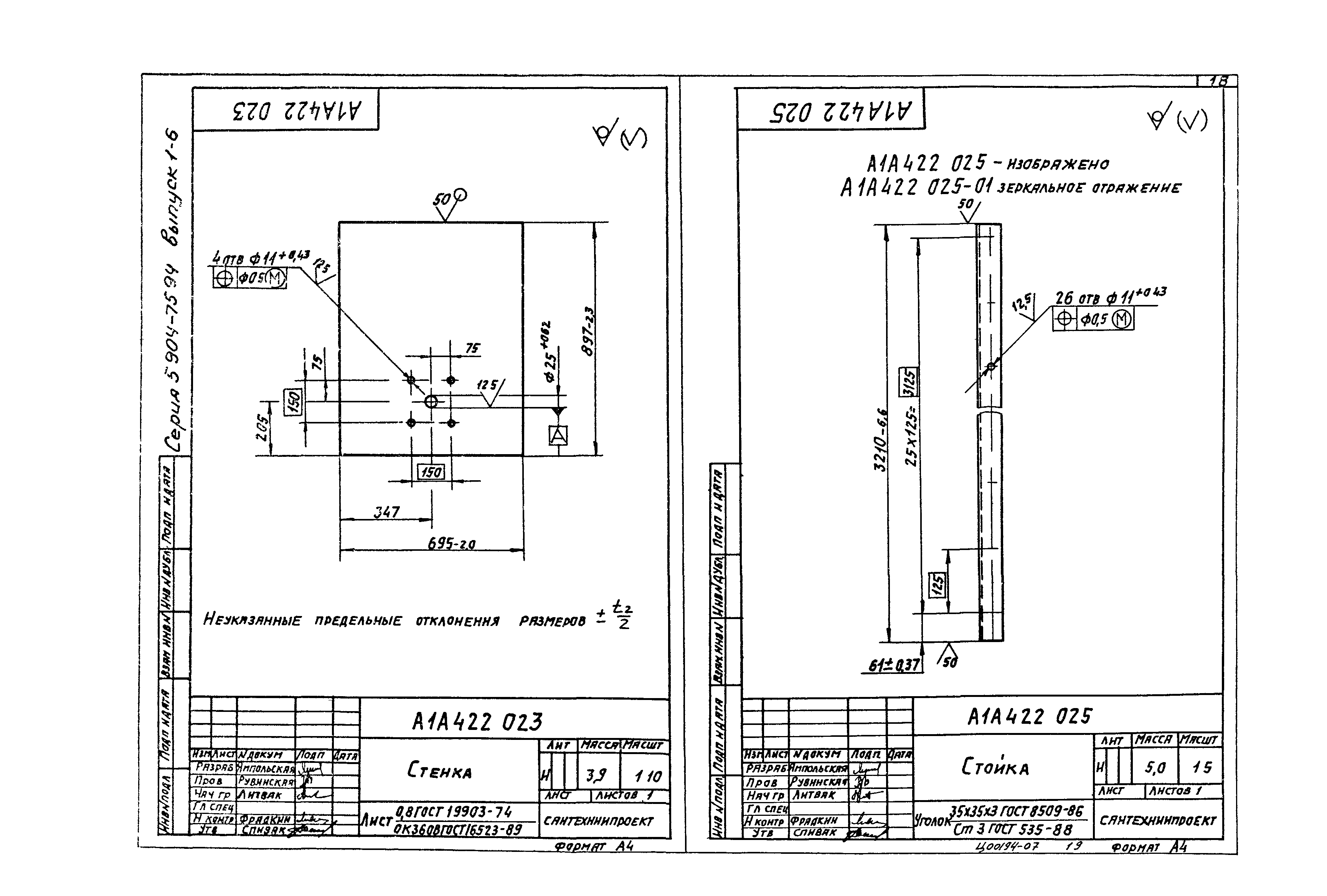
| Оглавление: | А1А422.000-ТО Секция соединительная для приточной камеры 2ПК80. Техническое описание А1А422.000 Секция соединительная для приточной камеры 2ПК80 А1А422.010 Панель торцевая А1А422.000 СБ Секция соединительная для приточной камеры 2ПК80 А1А422.010 СБ Панель торцевая А1А422.020 Конфузор А1А422.030 Сектор верхний А1А422.020 СБ Конфузор А1А422.005 Фланец А1А422.006 Фланец А1А422.007 Конфузор А1А422.030 СБ Сектор верхний А1А422.009 Лист А1А422.015 Поперечина А1А422.040 Сектор нижний А1А422.050 Панель передняя А1А422.060 Панель задняя А1А422.040 СБ Сектор нижний А1А422.050 СБ Панель передняя А1А422.021 Поперечина А1А422.024 Профиль А1А422.023 Стенка А1А422.025 Стойка А1А422.022 Стенка А1А422.037 Полка А1А422.029 Прокладка А1А422.032 Прокладка А1А422.031 Бобышка А1А422.033 Плита А1А422.028 Пробка А1А422.034 Планка А1А422.060 СБ Панель задняя А1А422.070 Панель верхняя А1А422.080 Решетка ограждающая А1А422.070 СБ Панель верхняя А1А422.080 СБ Решетка ограждающая А1А422.041 Кольцо А1А422.044 Фланец |
| Разработан: | ГПКНИИ Сантехниипроект |
| Утверждён: | 25.02.1994 Главпроект Госстроя России (9-3-2/34) |



























