Скачать Серия 7.904-1 Выпуск 0. Указания по применениюДата актуализации: 01.01.2021
|
| Обозначение: | Серия 7.904-1 |
| Обозначение англ: | Series 7.904-1 |
| Статус: | не определен законодательством |
| Название рус.: | Выпуск 0. Указания по применению |
| Дата добавления в базу: | 01.09.2013 |
| Дата актуализации: | 01.01.2021 |
| Дата введения: | 30.04.1991 |
| Дата окончания срока действия: | 30.06.2003 |
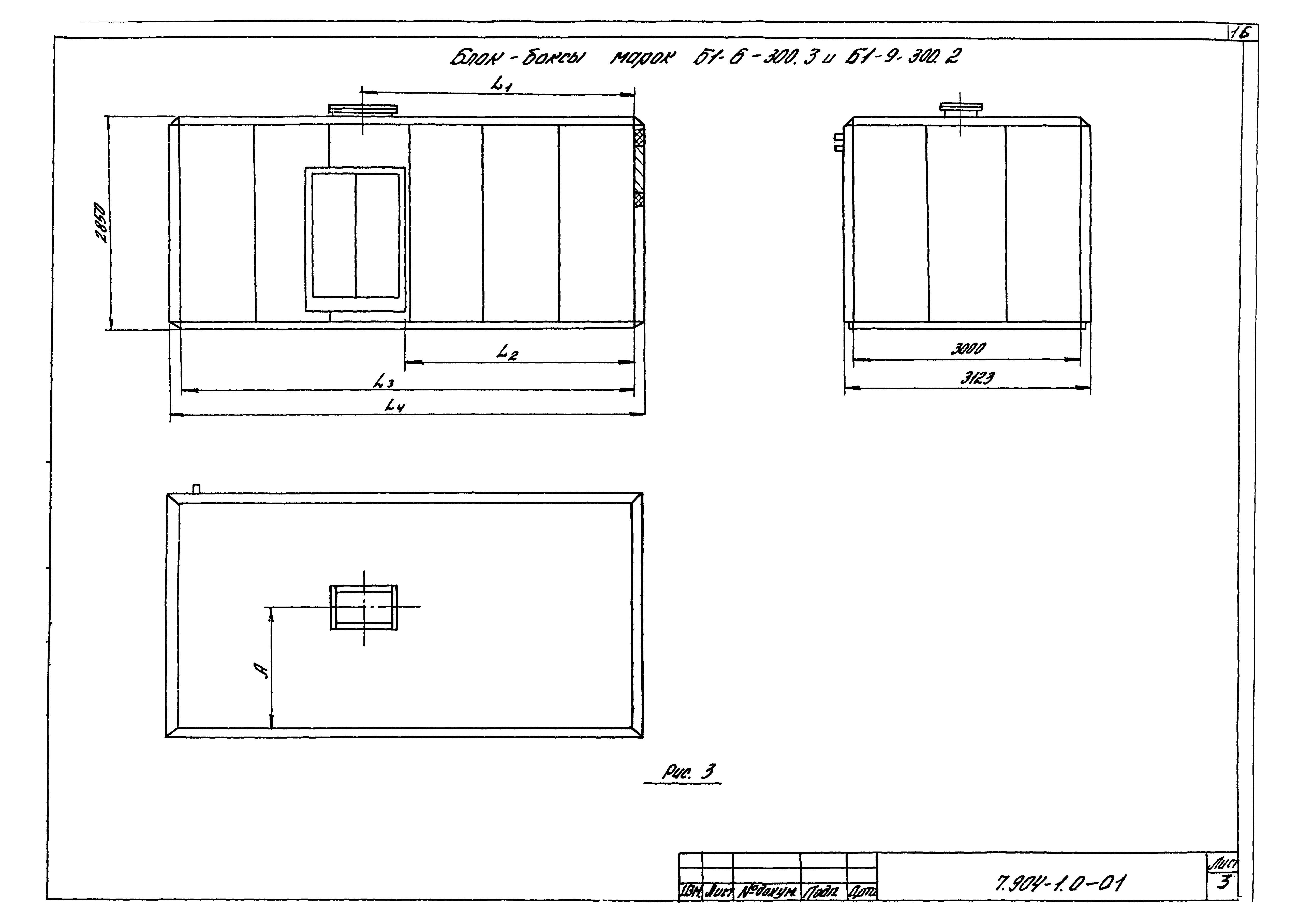
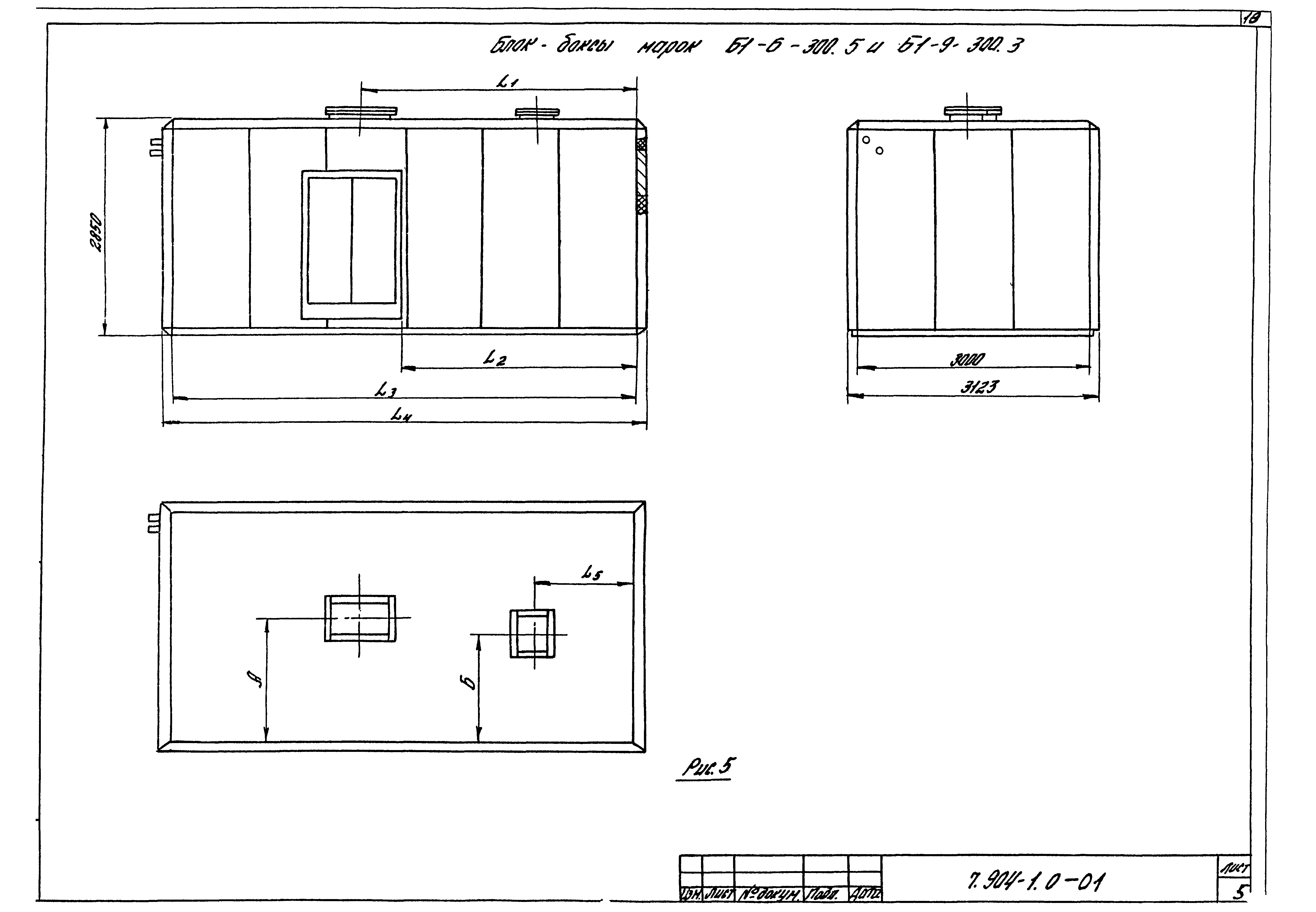
| Оглавление: | 7.904-1.0-ПЗ Пояснительная записка 7.904-1.0-01 Строительные конструкции блок-бокса 7.904-1.0-02 Компоновочные решения и комплектация блок-бокса |
| Разработан: | АО ЦНИИпромзданий ГПКНИИ Сантехниипроект |
| Утверждён: | 05.06.1989 НПО Промвентиляция (5-3) |
| Издан: | ГП ЦПП (1996 г. ) |



















































