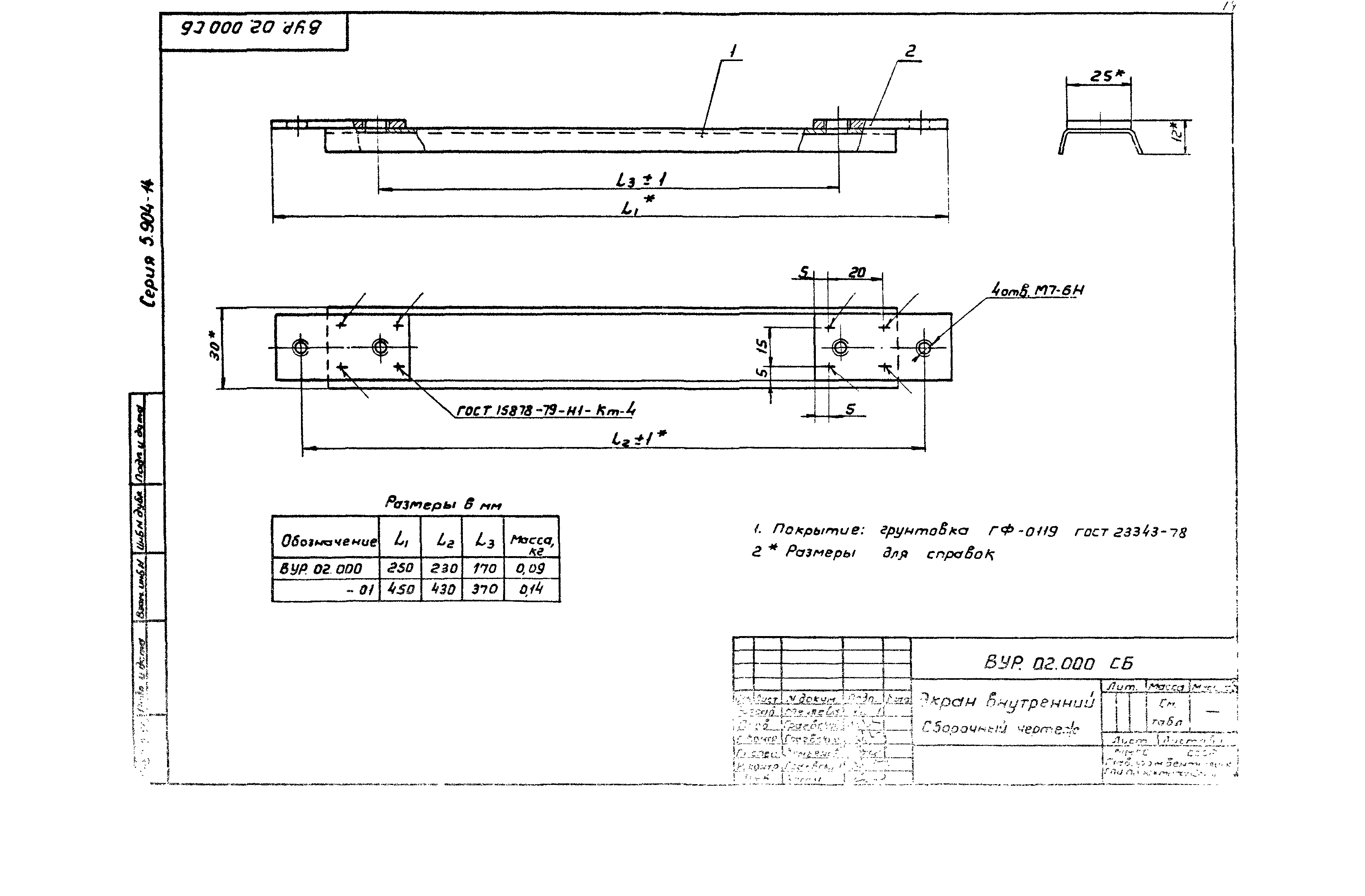
Скачать Серия 5.904-14 Вытяжное устройство общеобменных вентиляционных систем типа ВУР. Указания по выбору и расчету и рабочие чертежиДата актуализации: 01.01.2021 Серия 5.904-14
Вытяжное устройство общеобменных вентиляционных систем типа ВУР. Указания по выбору и расчету и рабочие чертежи| Обозначение: | Серия 5.904-14 | | Обозначение англ: | Series 5.904-14 | | Статус: | не определен законодательством | | Название рус.: | Вытяжное устройство общеобменных вентиляционных систем типа ВУР. Указания по выбору и расчету и рабочие чертежи | | Дата добавления в базу: | 01.09.2013 | | Дата актуализации: | 01.01.2021 | | Дата введения: | 15.07.1982 | | Дата окончания срока действия: | 30.06.2003 | | Разработан: | Проектпромвентиляция
| | Утверждён: | 30.06.1982 Главпромстройпроект Госстроя СССР (38)
|
              
|