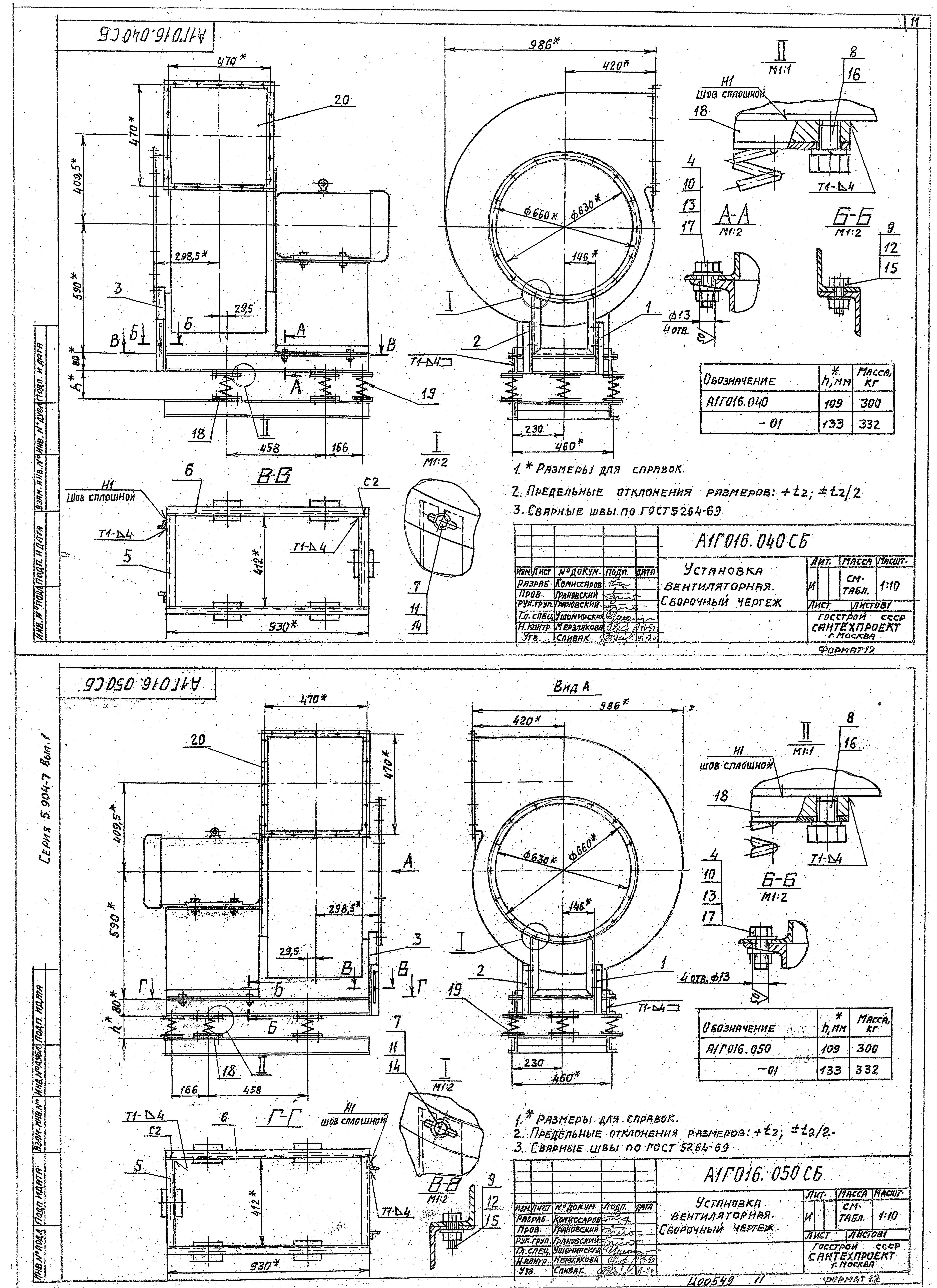
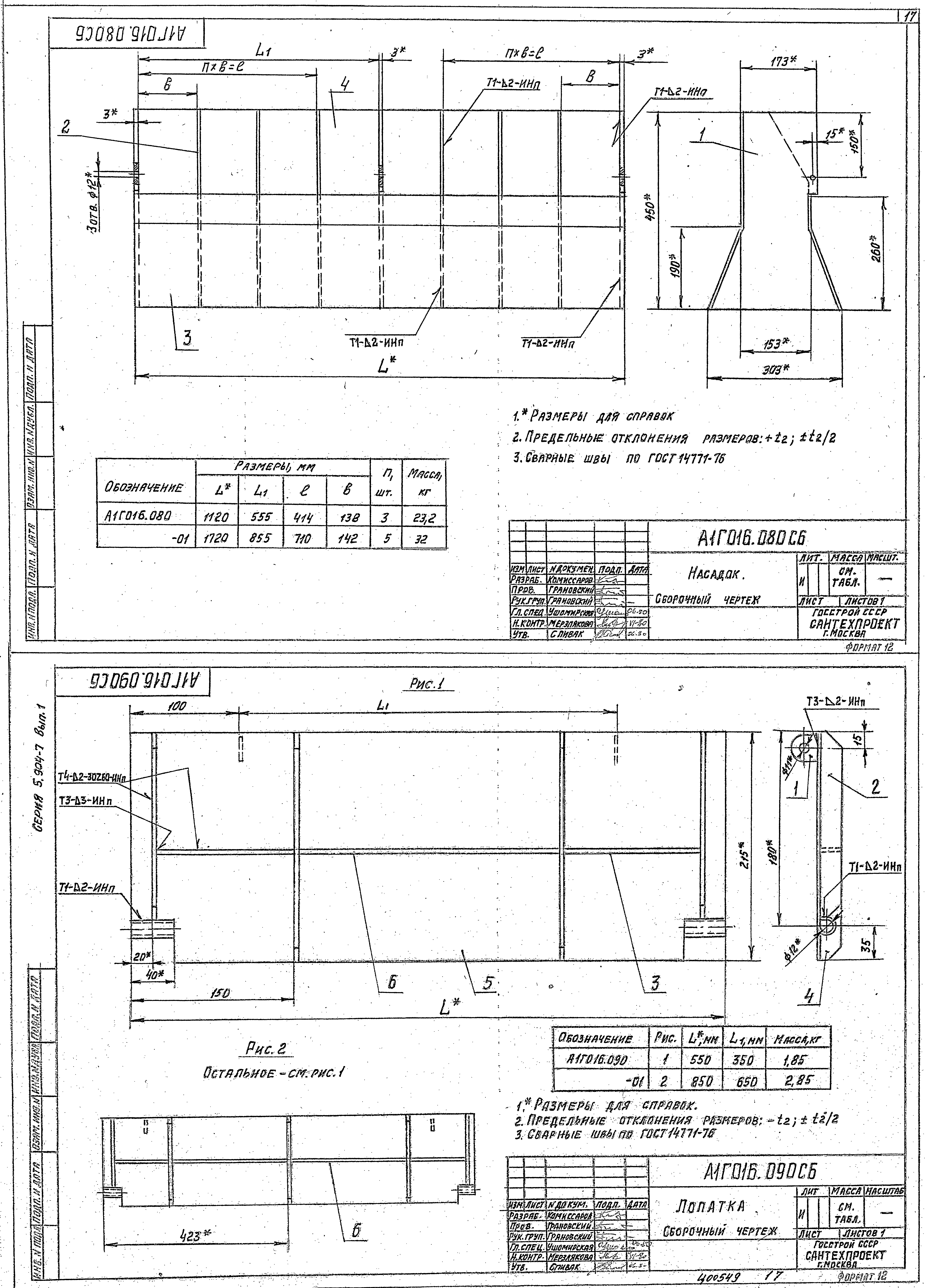
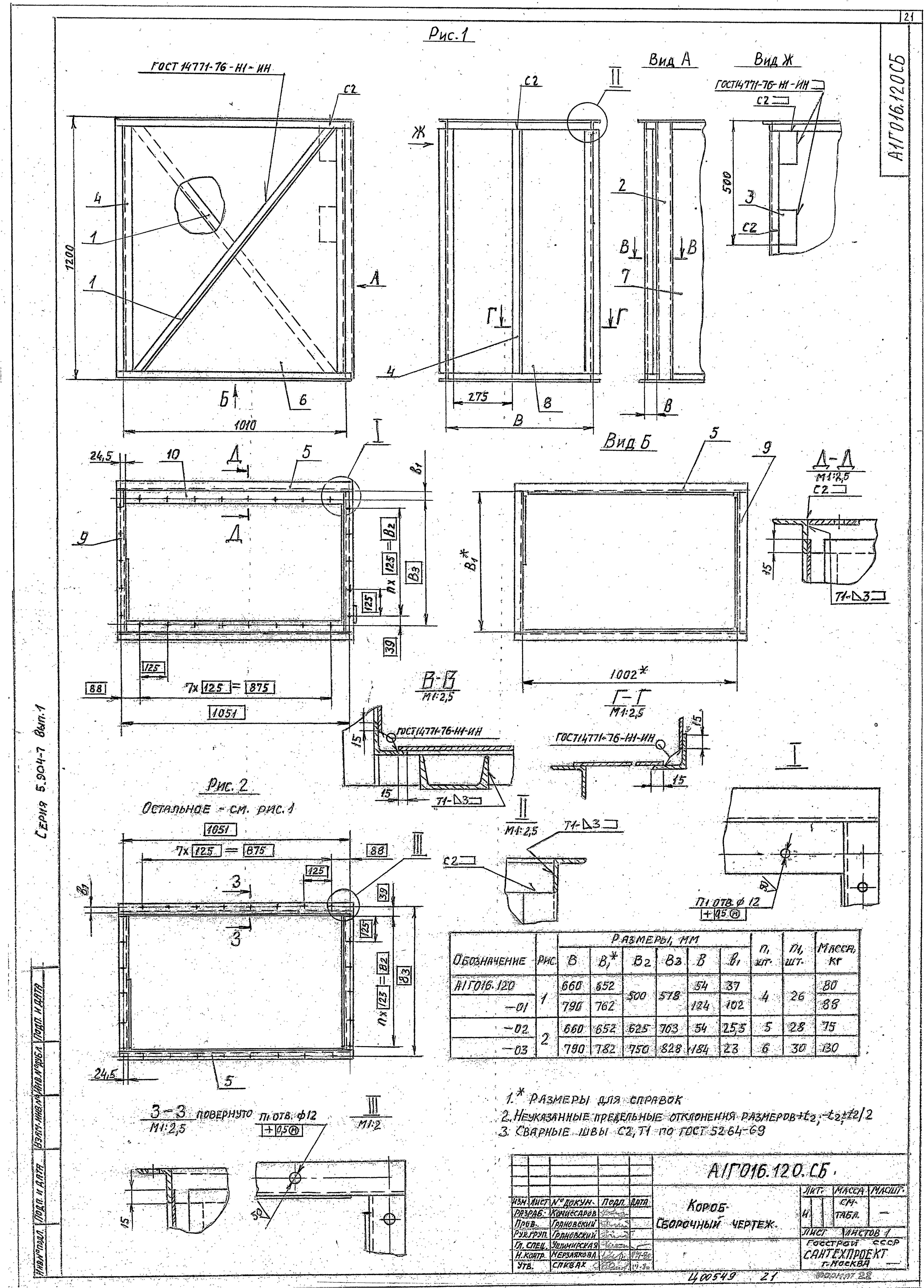
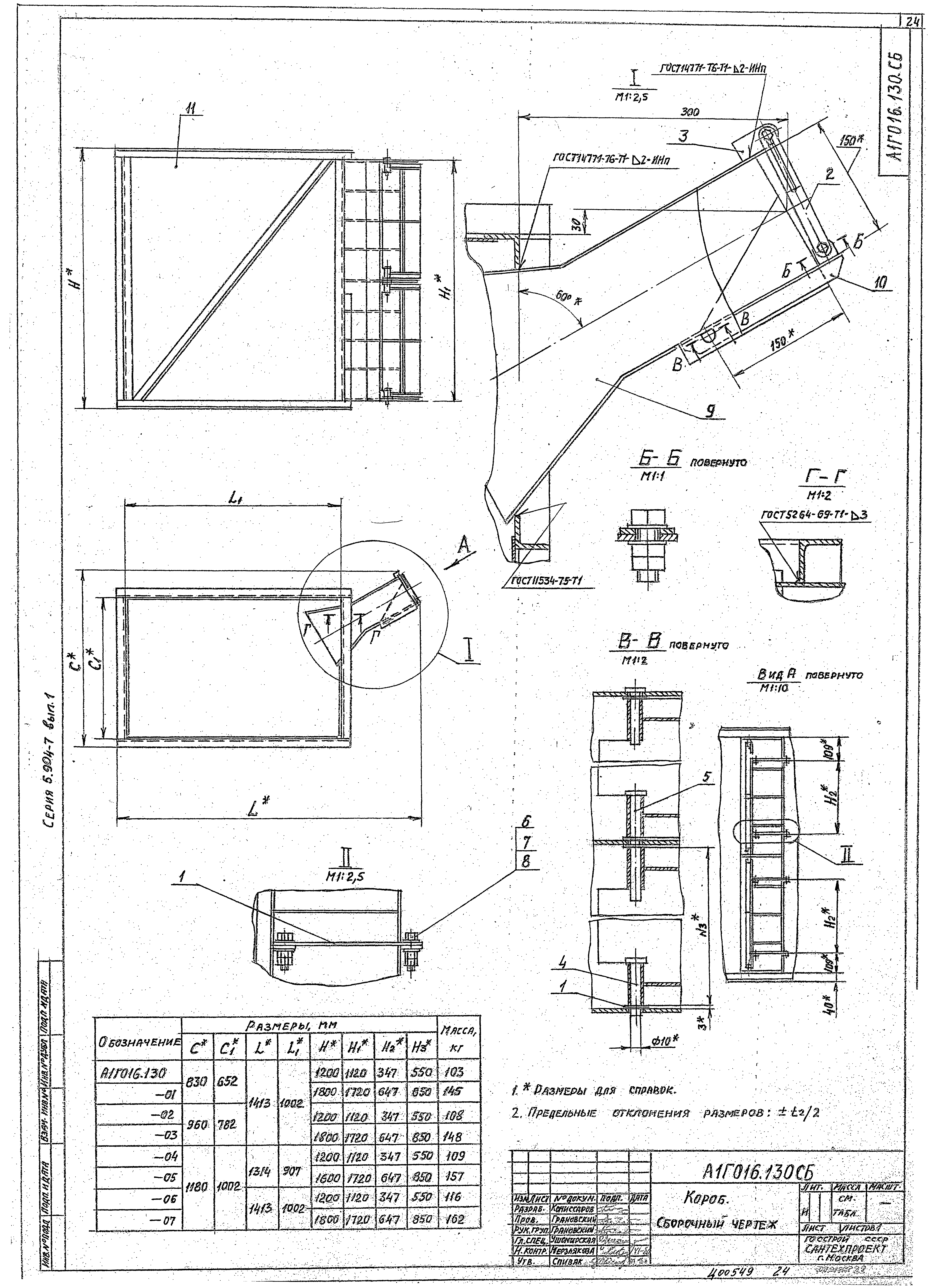
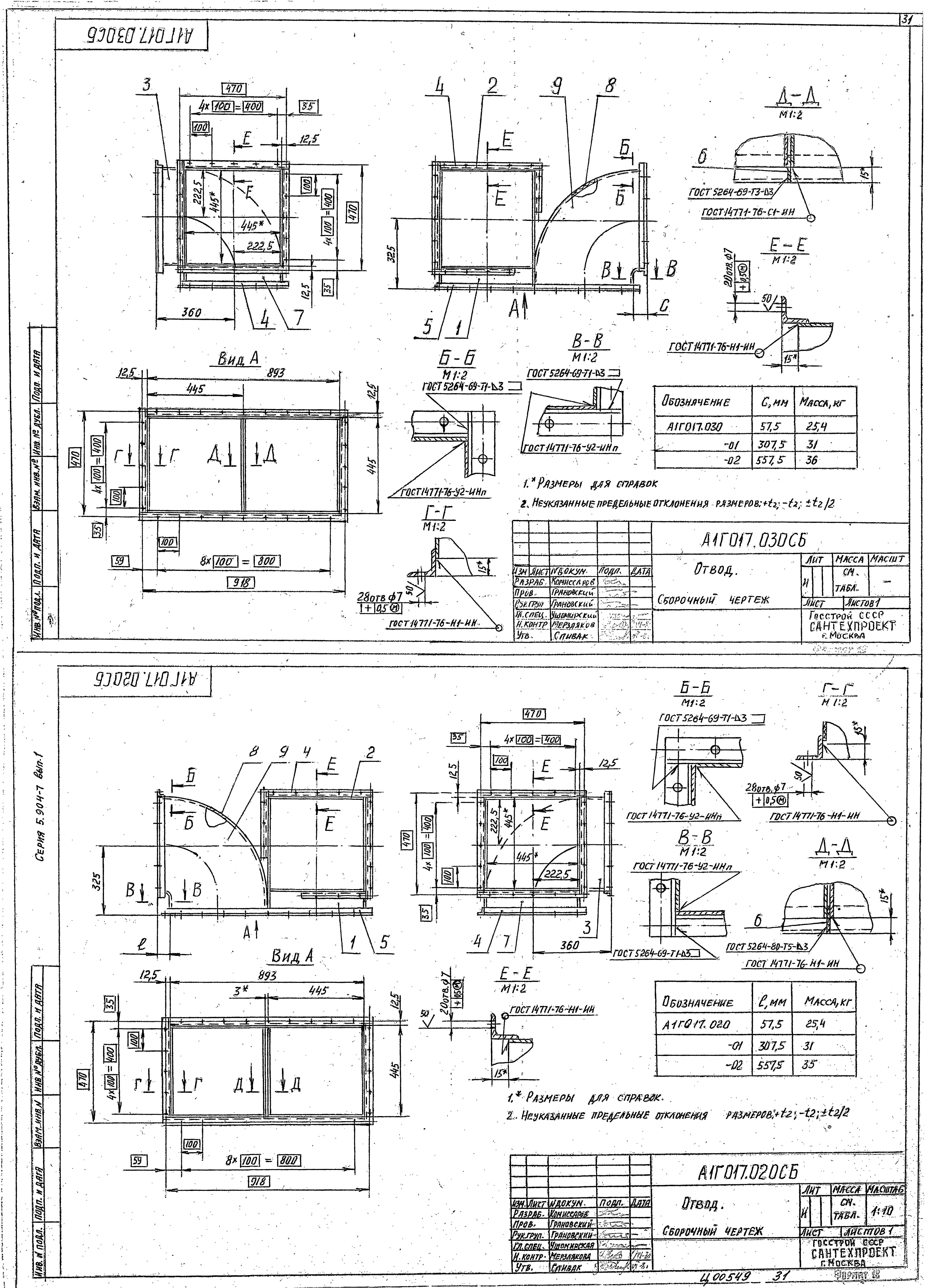
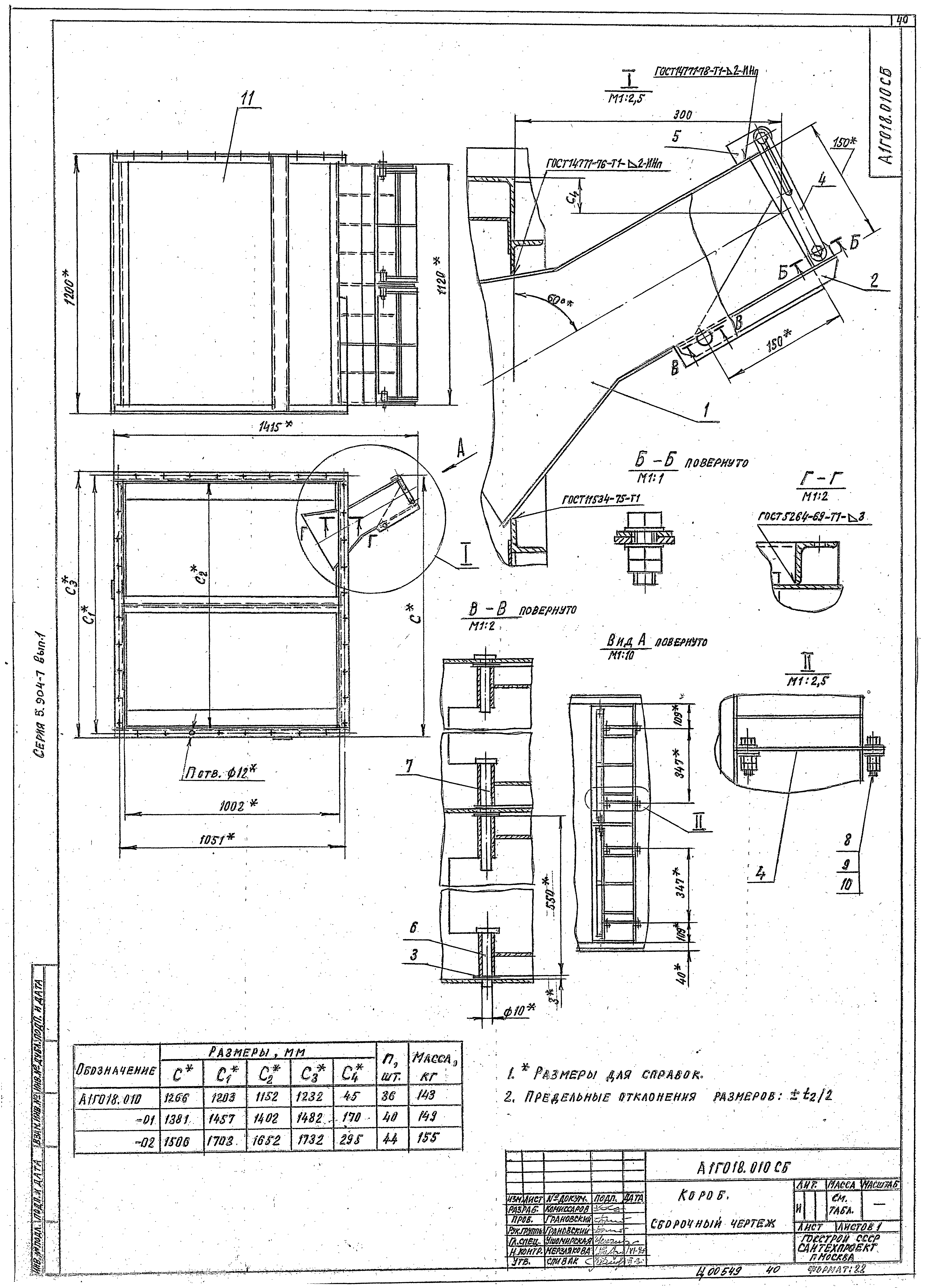
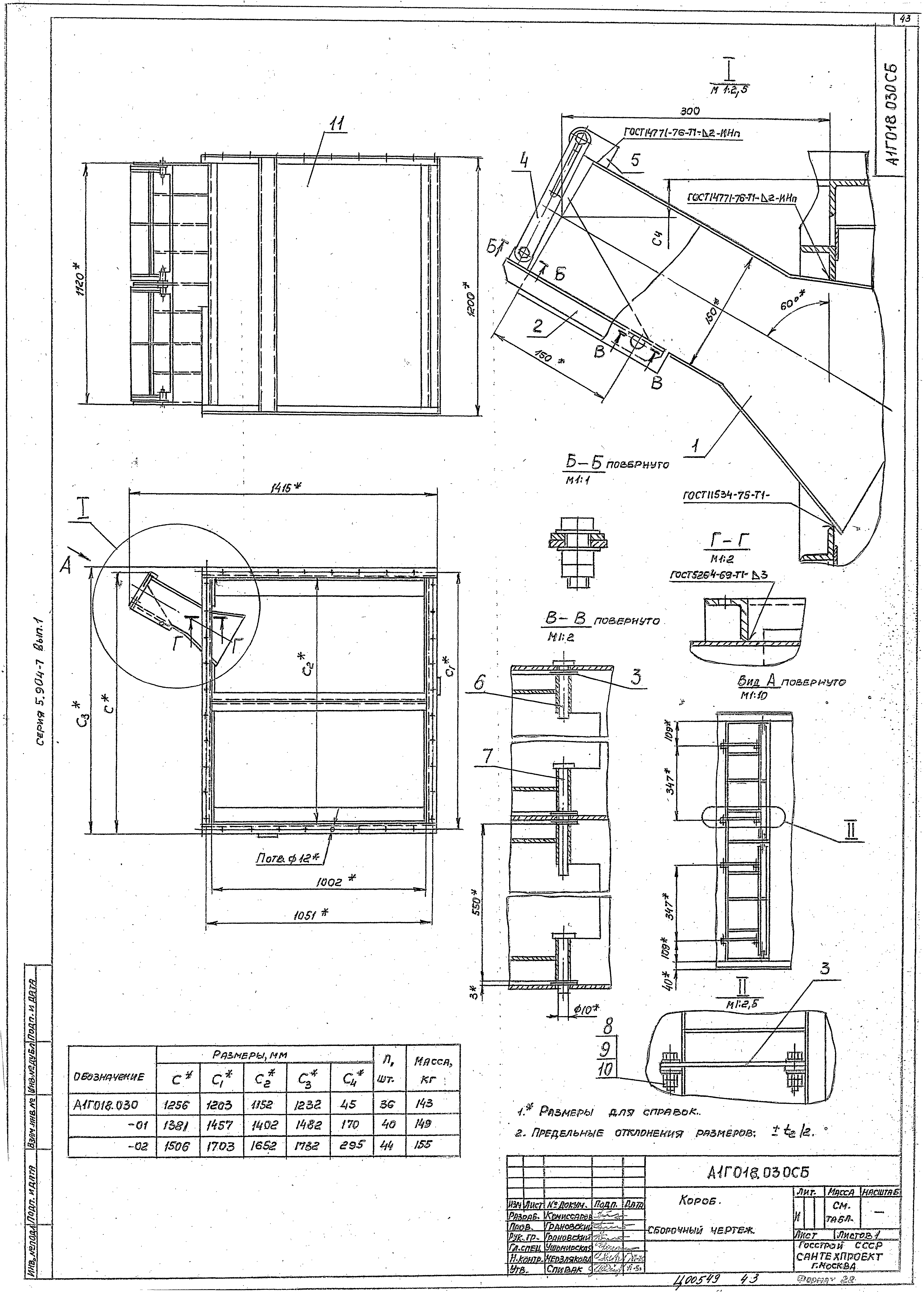
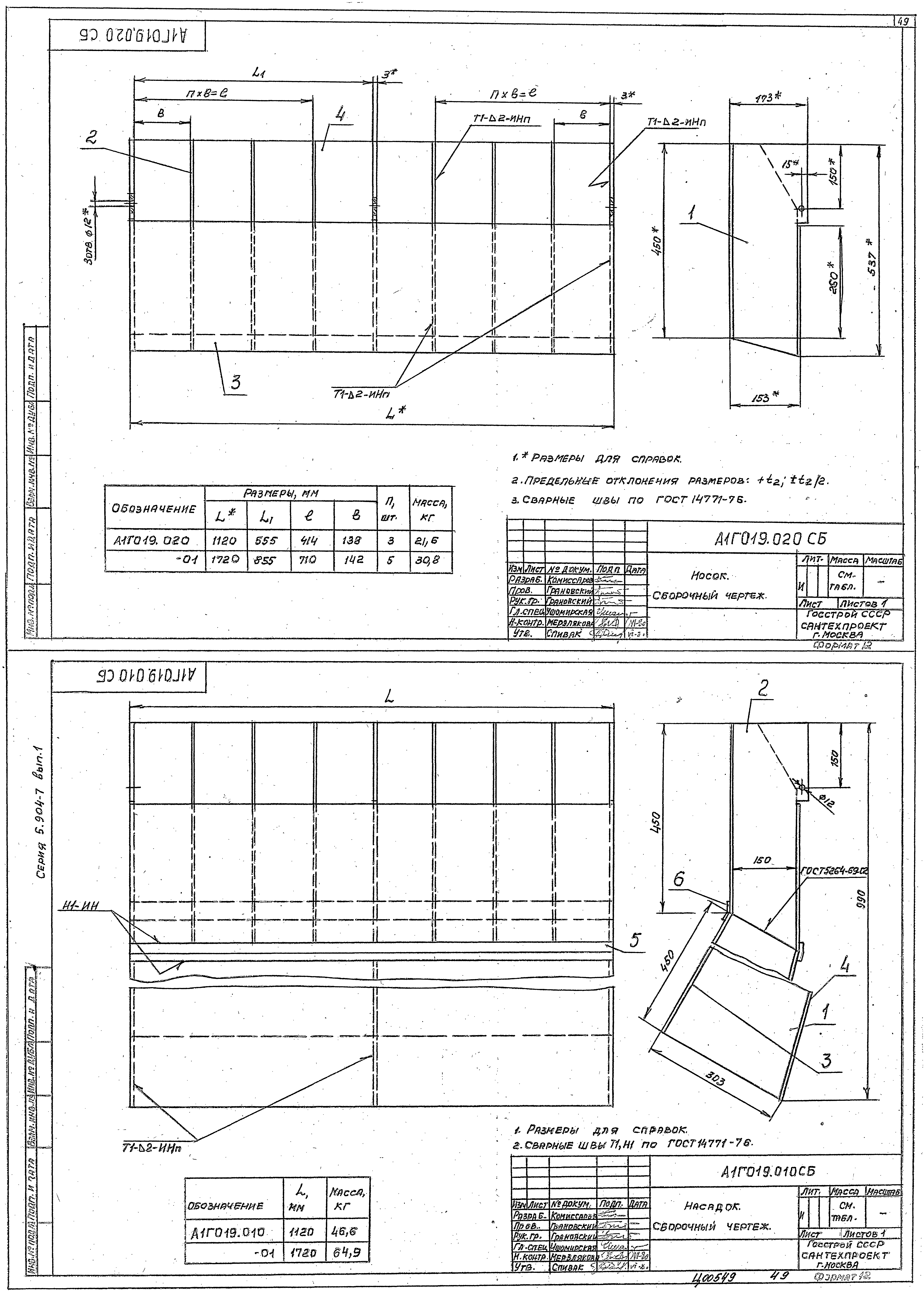
Скачать Серия 5.904-7 Выпуск 1. Конструкции завес. Рабочие чертежиДата актуализации: 01.01.2021
|
| Обозначение: | Серия 5.904-7 |
| Обозначение англ: | Series 5.904-7 |
| Статус: | не определен законодательством |
| Название рус.: | Выпуск 1. Конструкции завес. Рабочие чертежи |
| Дата добавления в базу: | 01.09.2013 |
| Дата актуализации: | 01.01.2021 |
| Дата введения: | 01.07.1981 |
| Дата окончания срока действия: | 30.06.2003 |
| Разработан: | ГПИ Сантехпроект Госстроя СССР |
| Утверждён: | 23.06.1981 Главпромстройпроект Госстроя СССР (44) |



































































