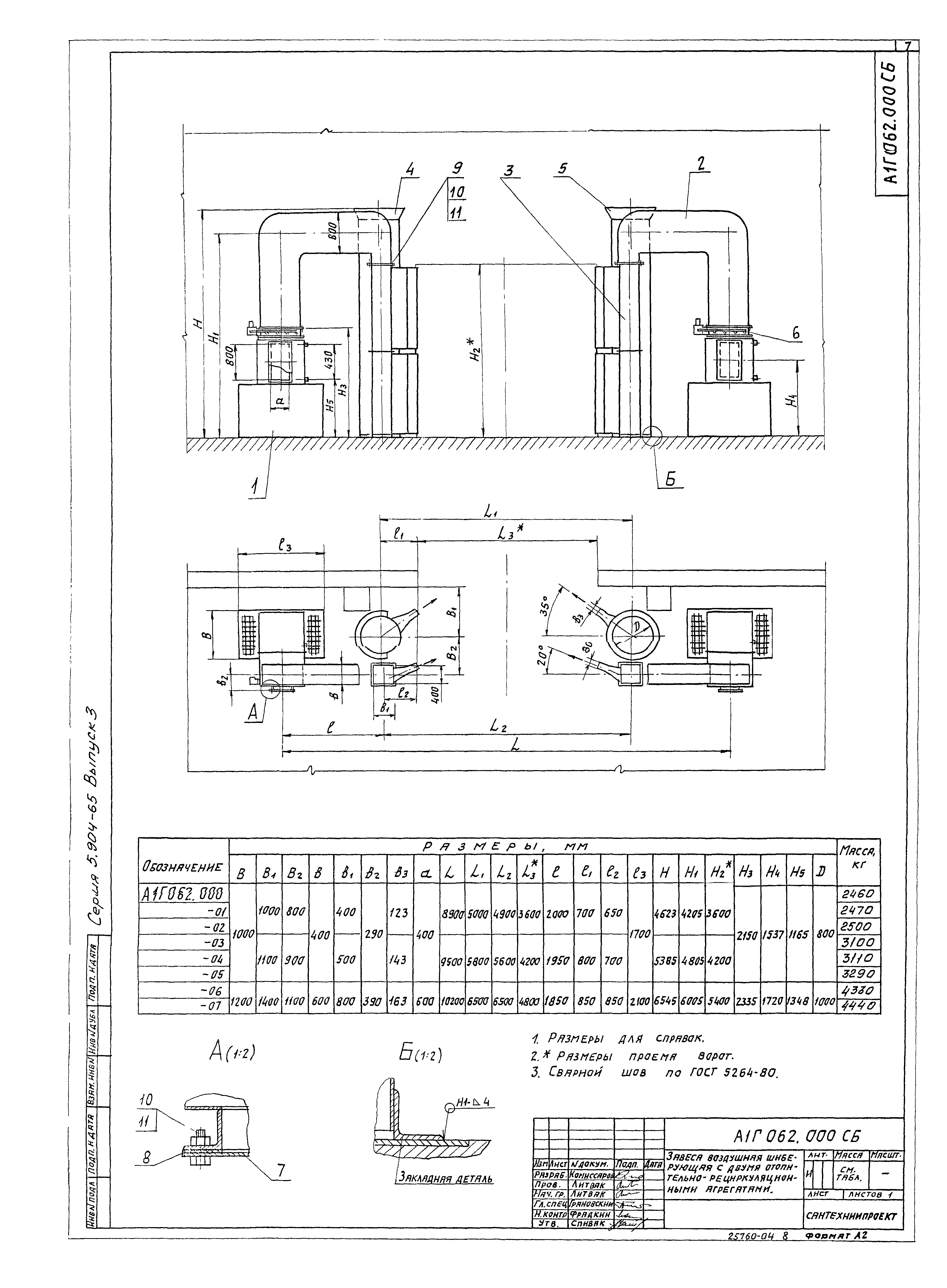
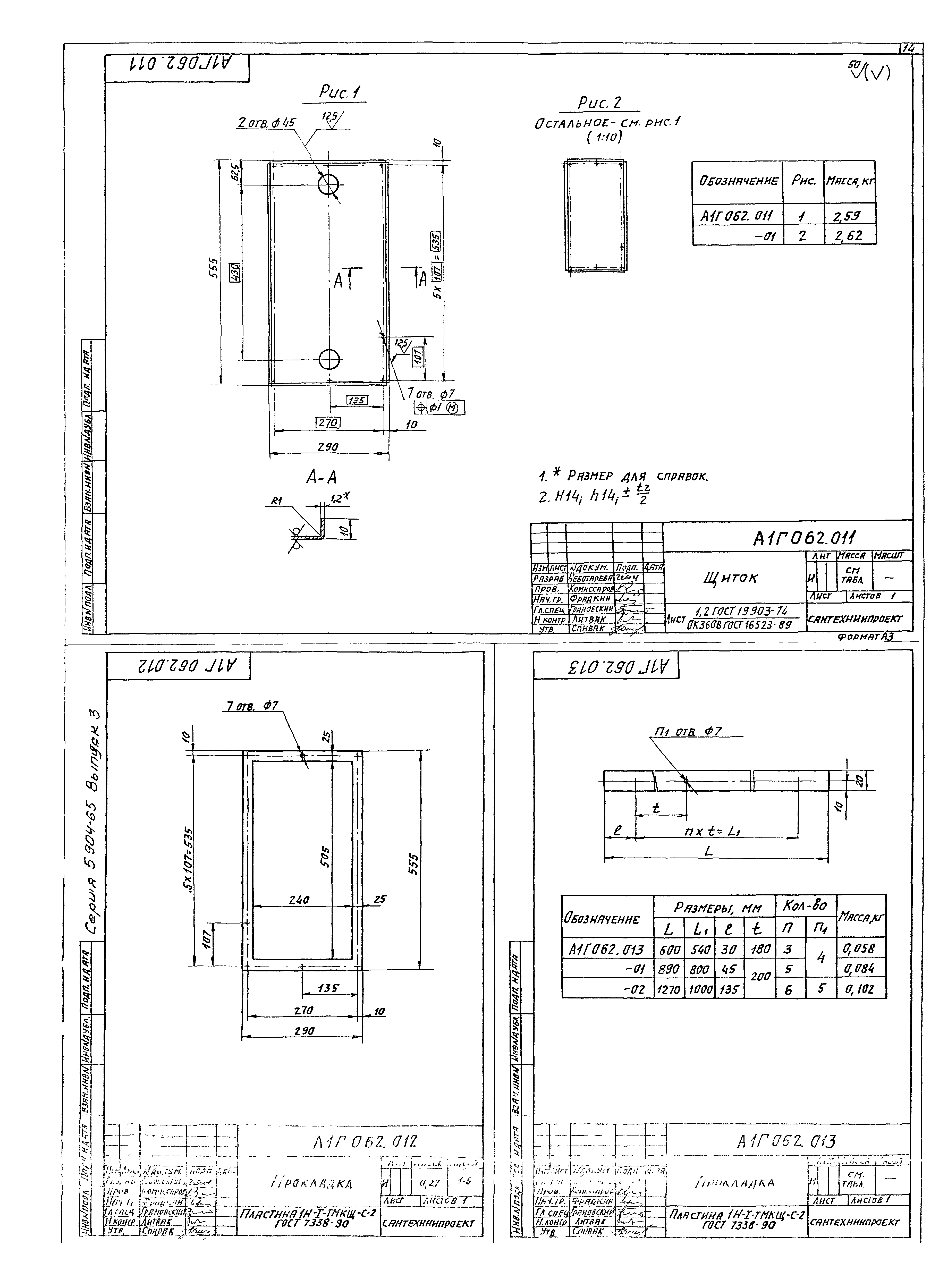
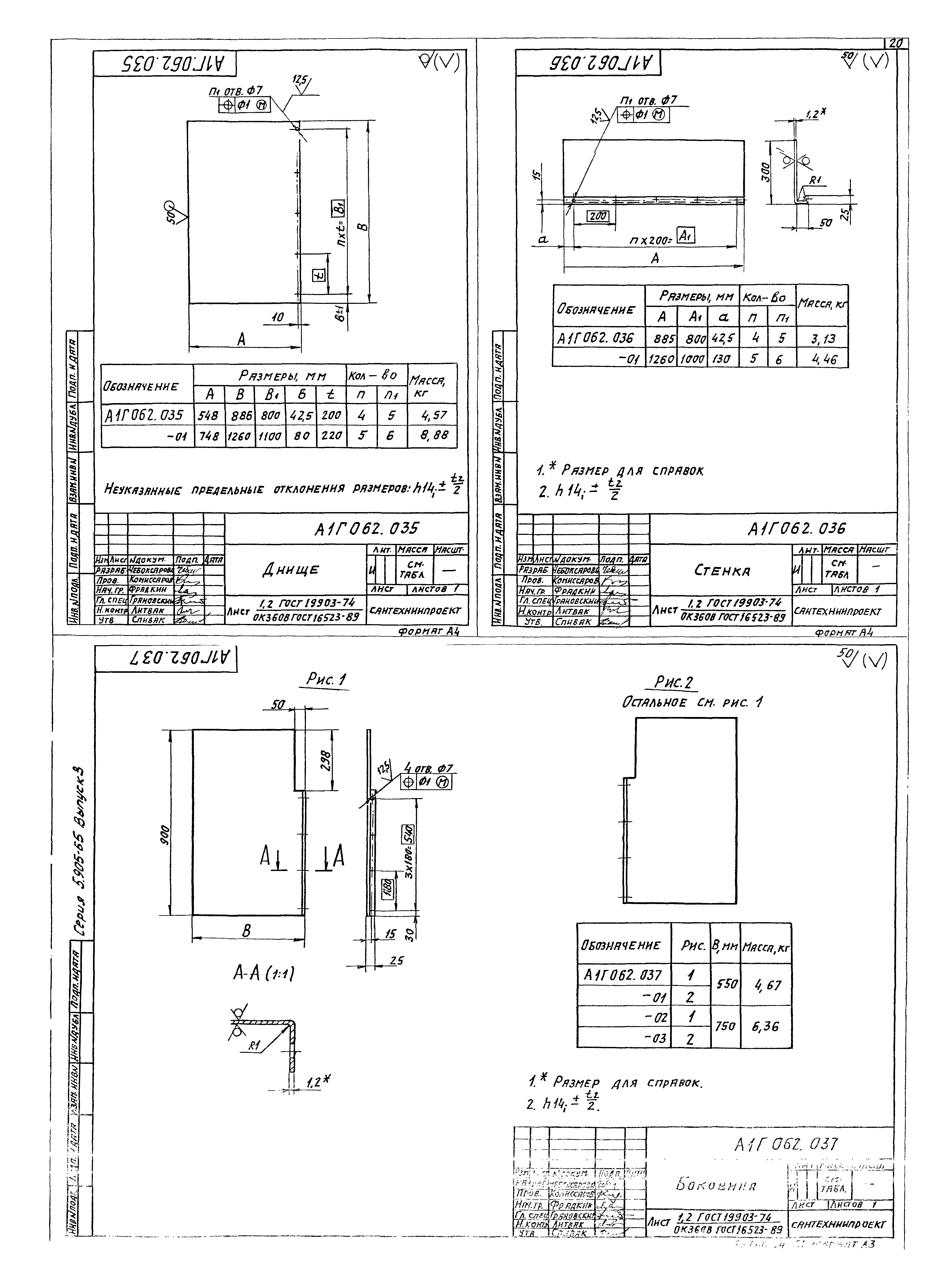
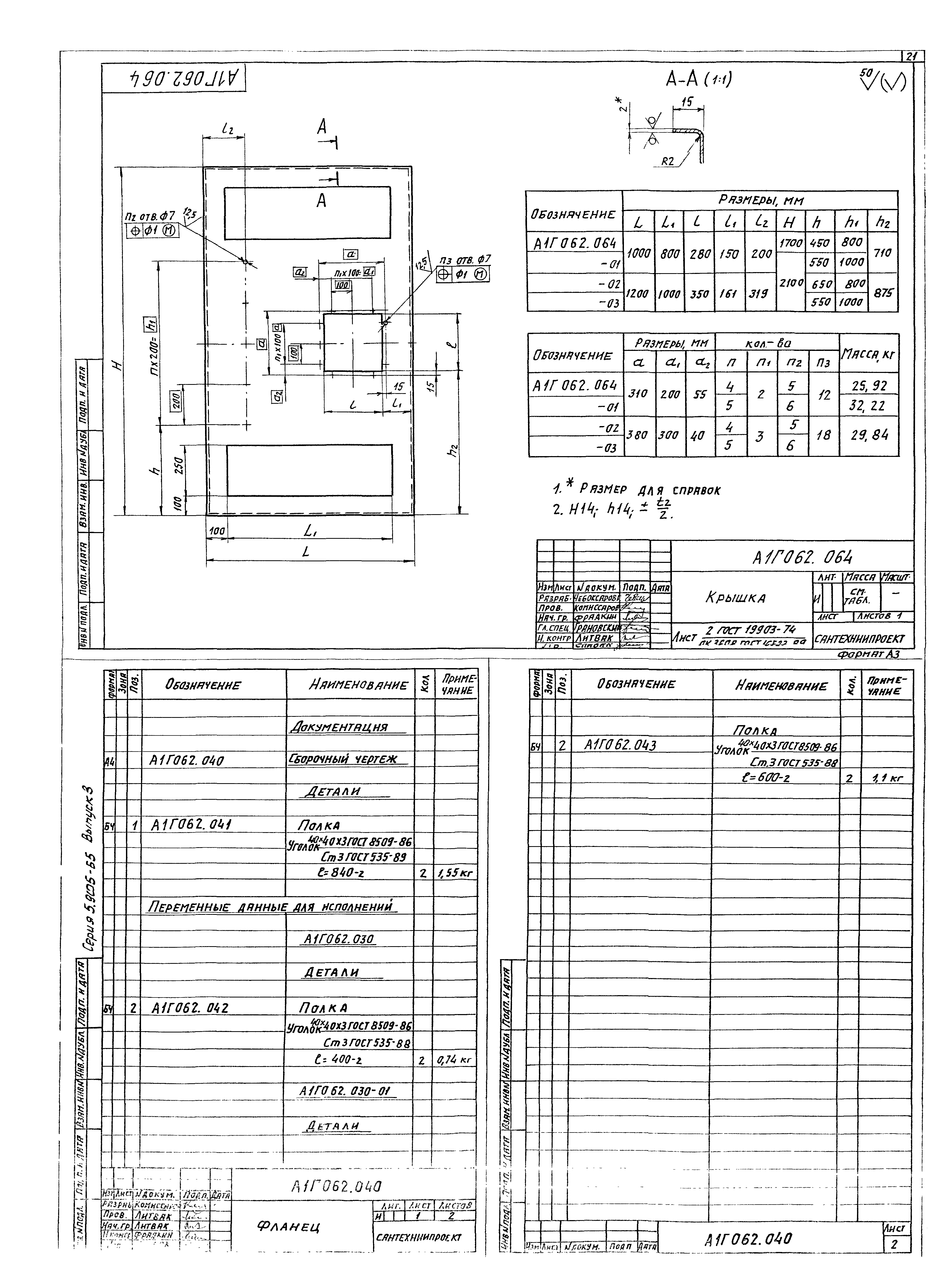
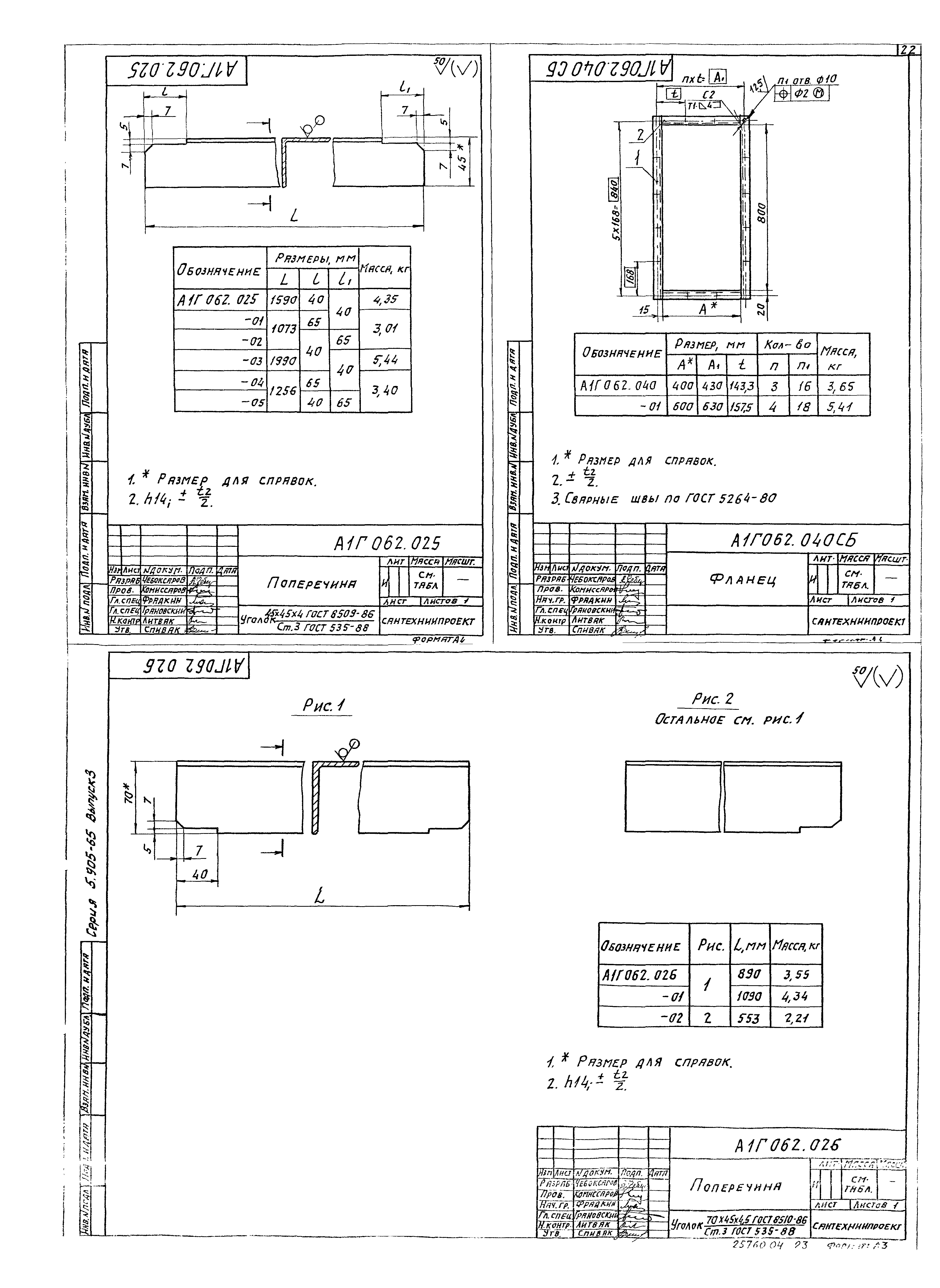
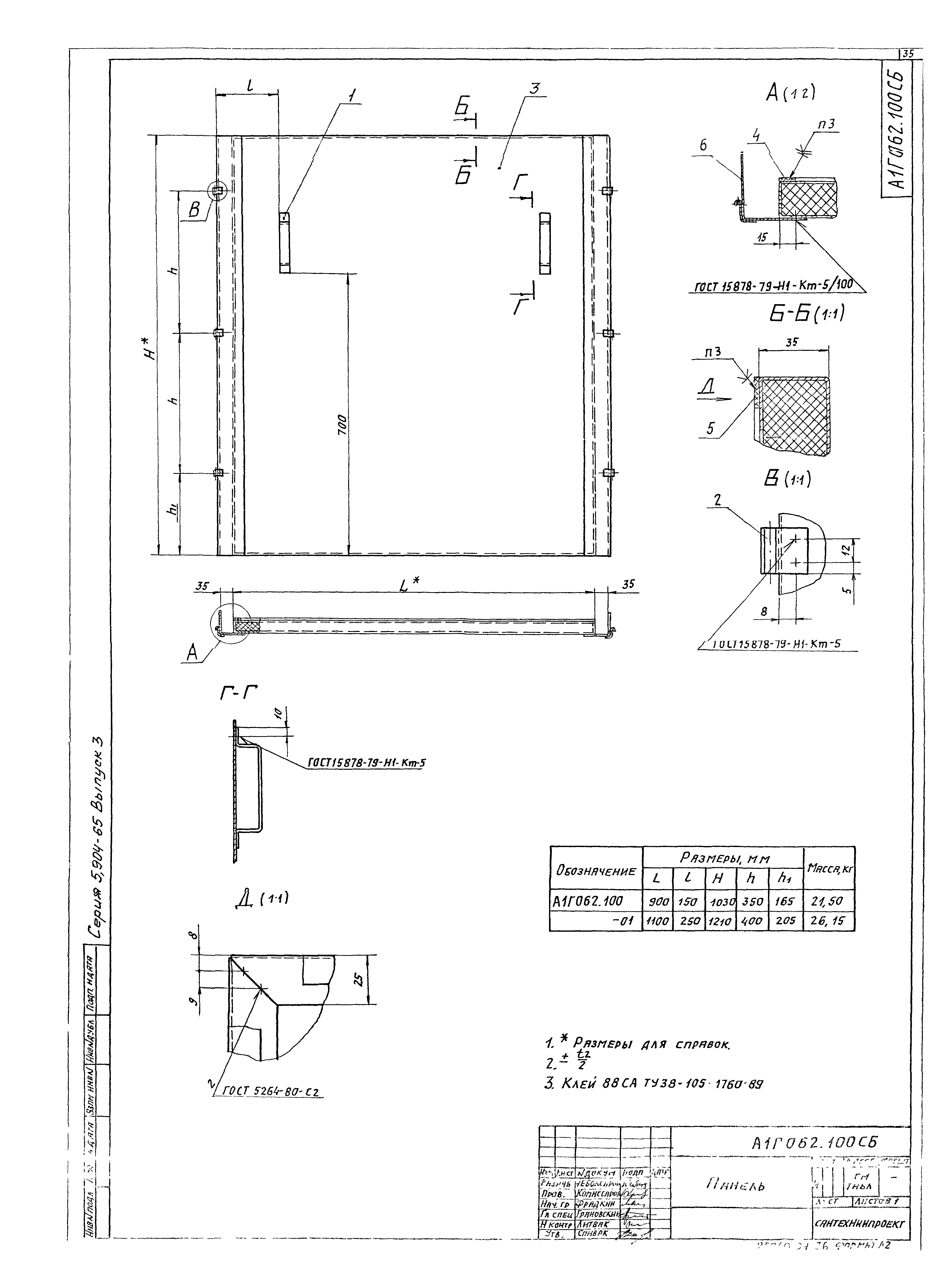
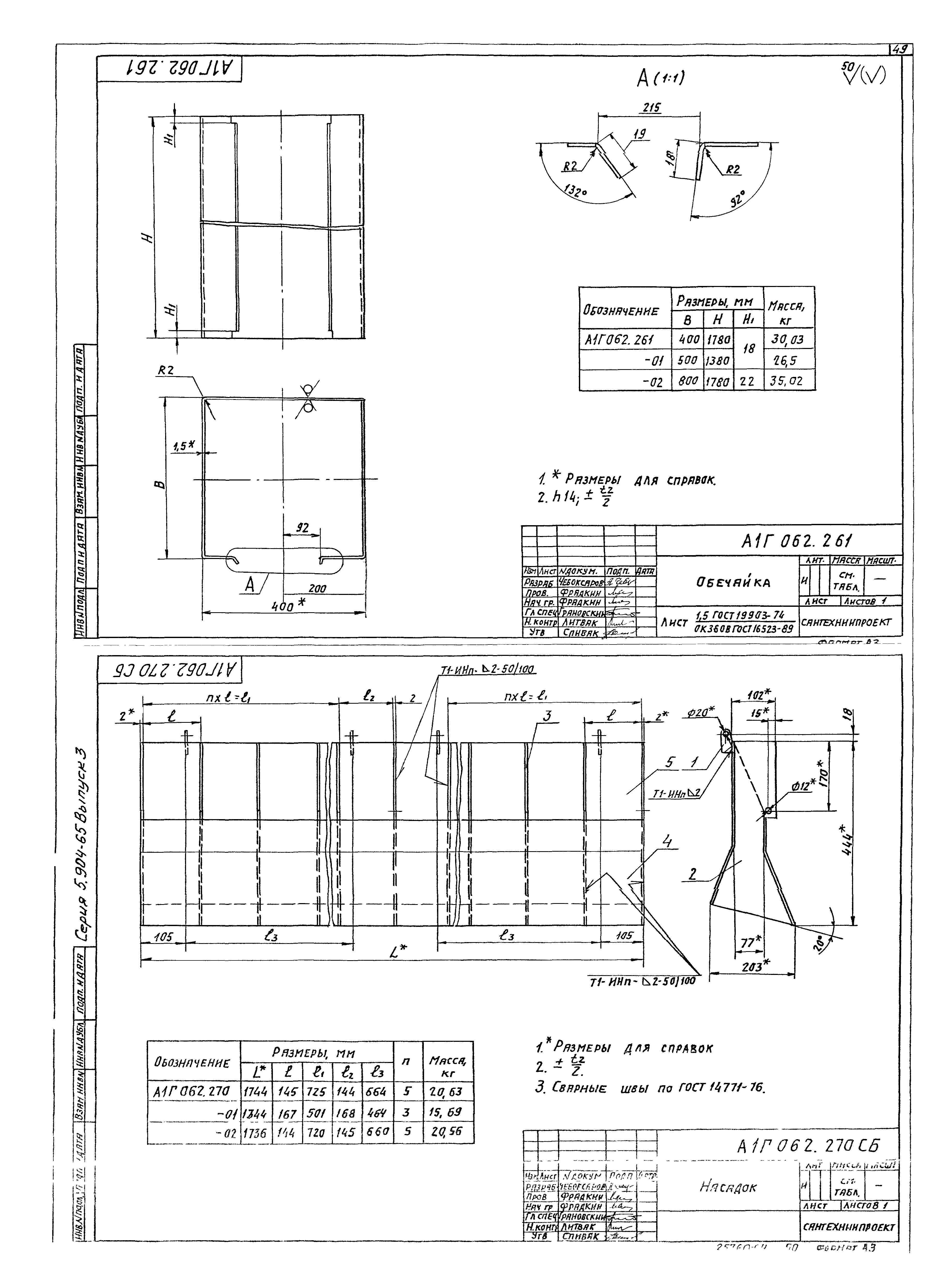
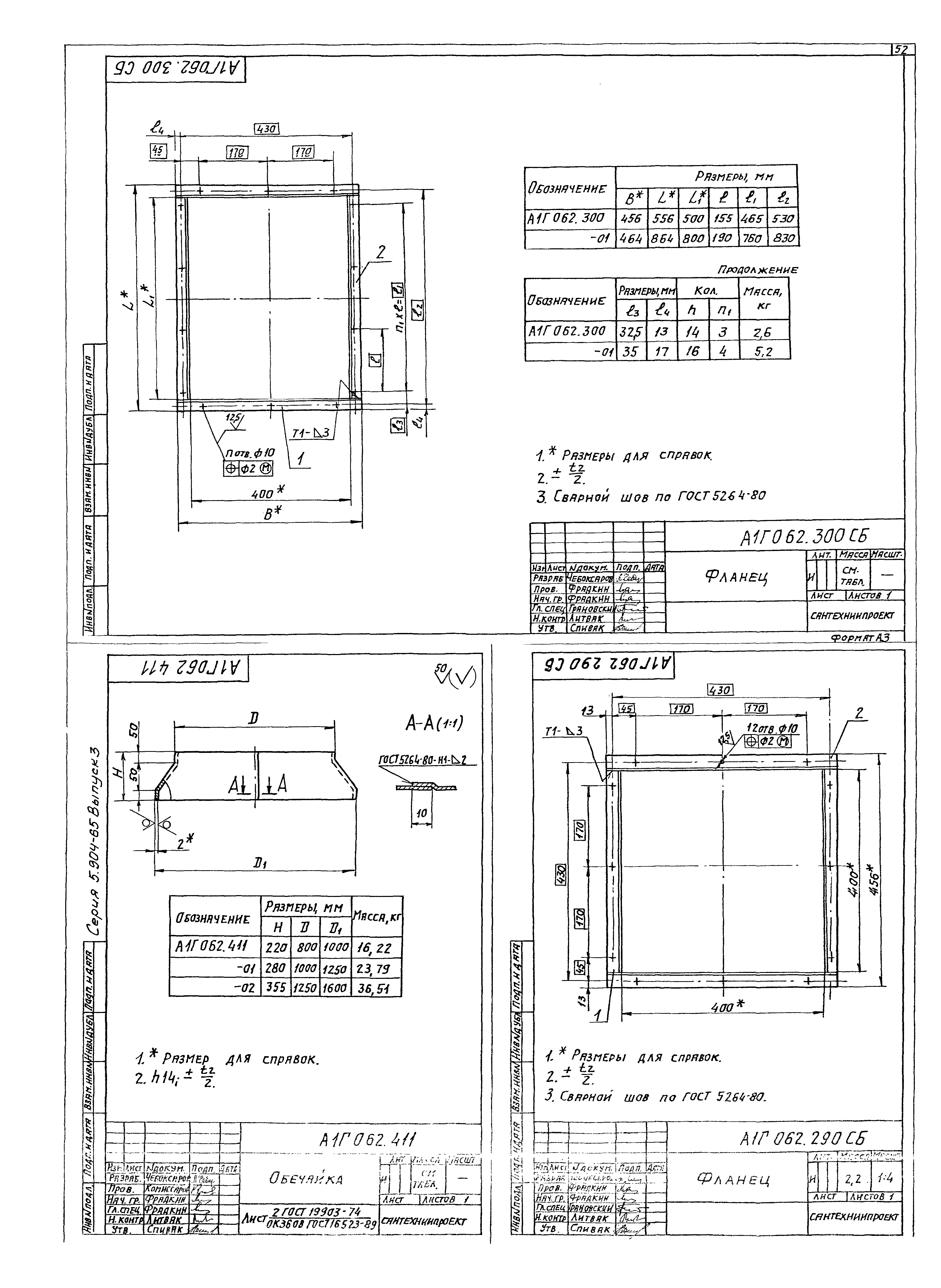
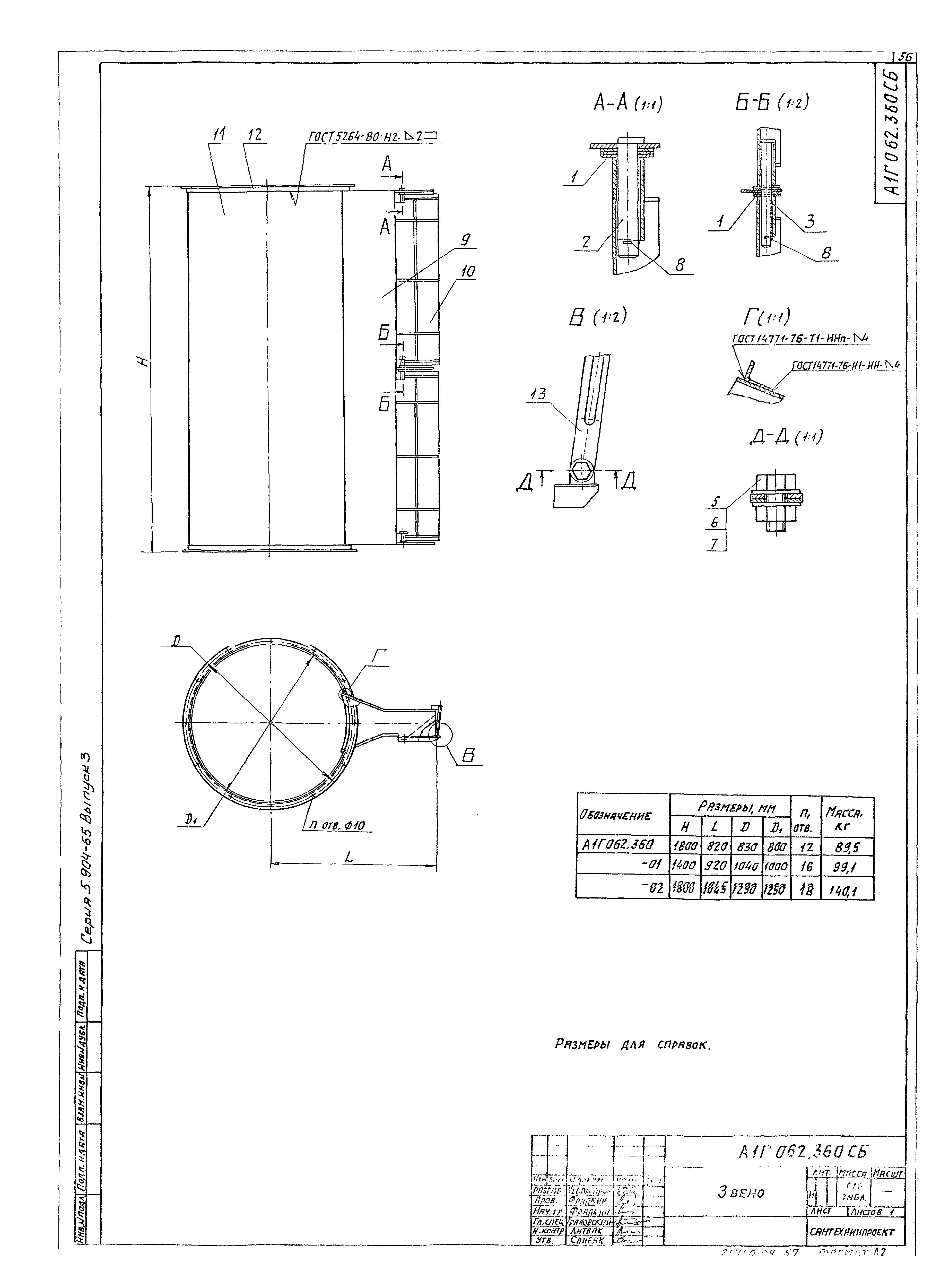
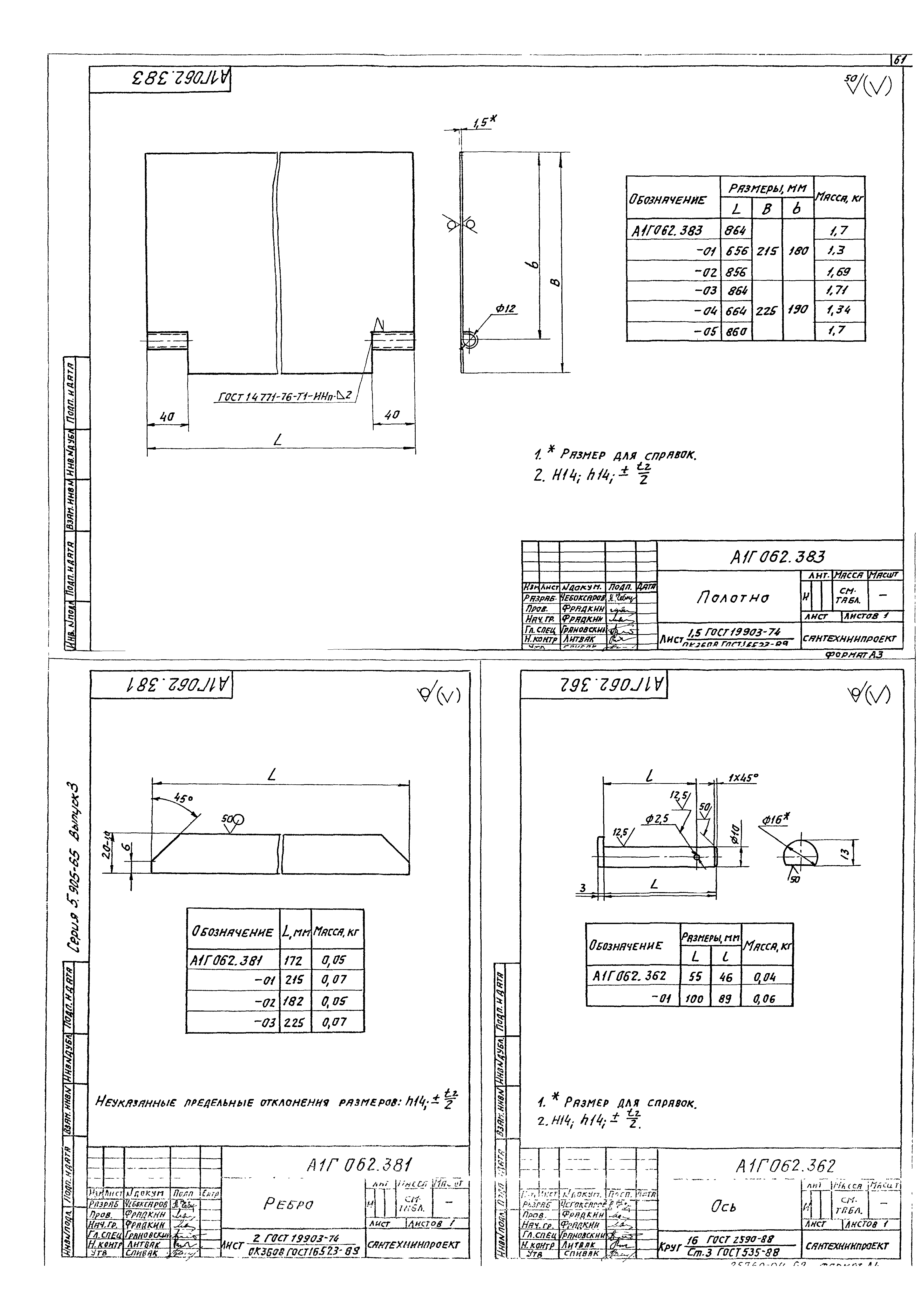
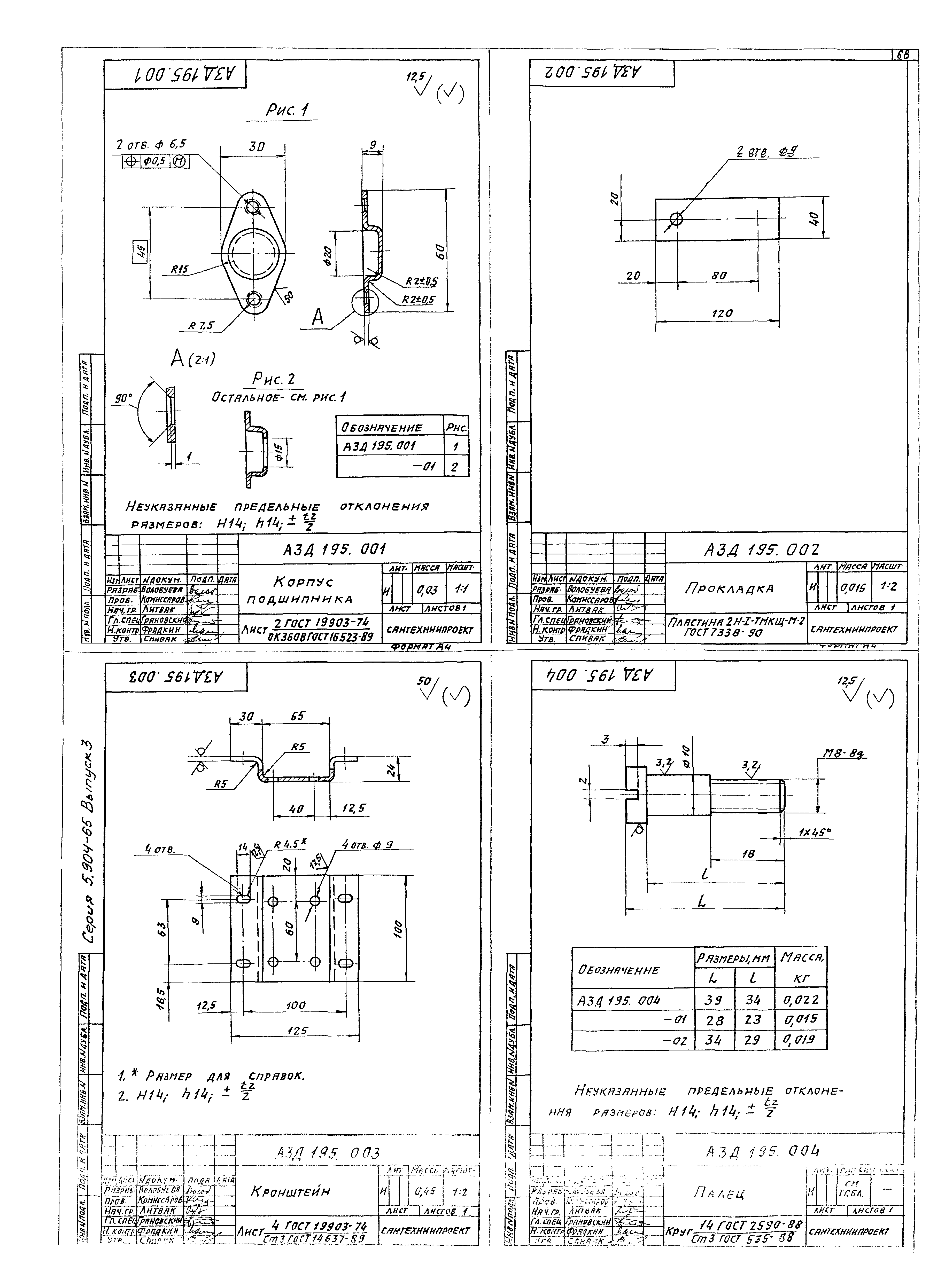
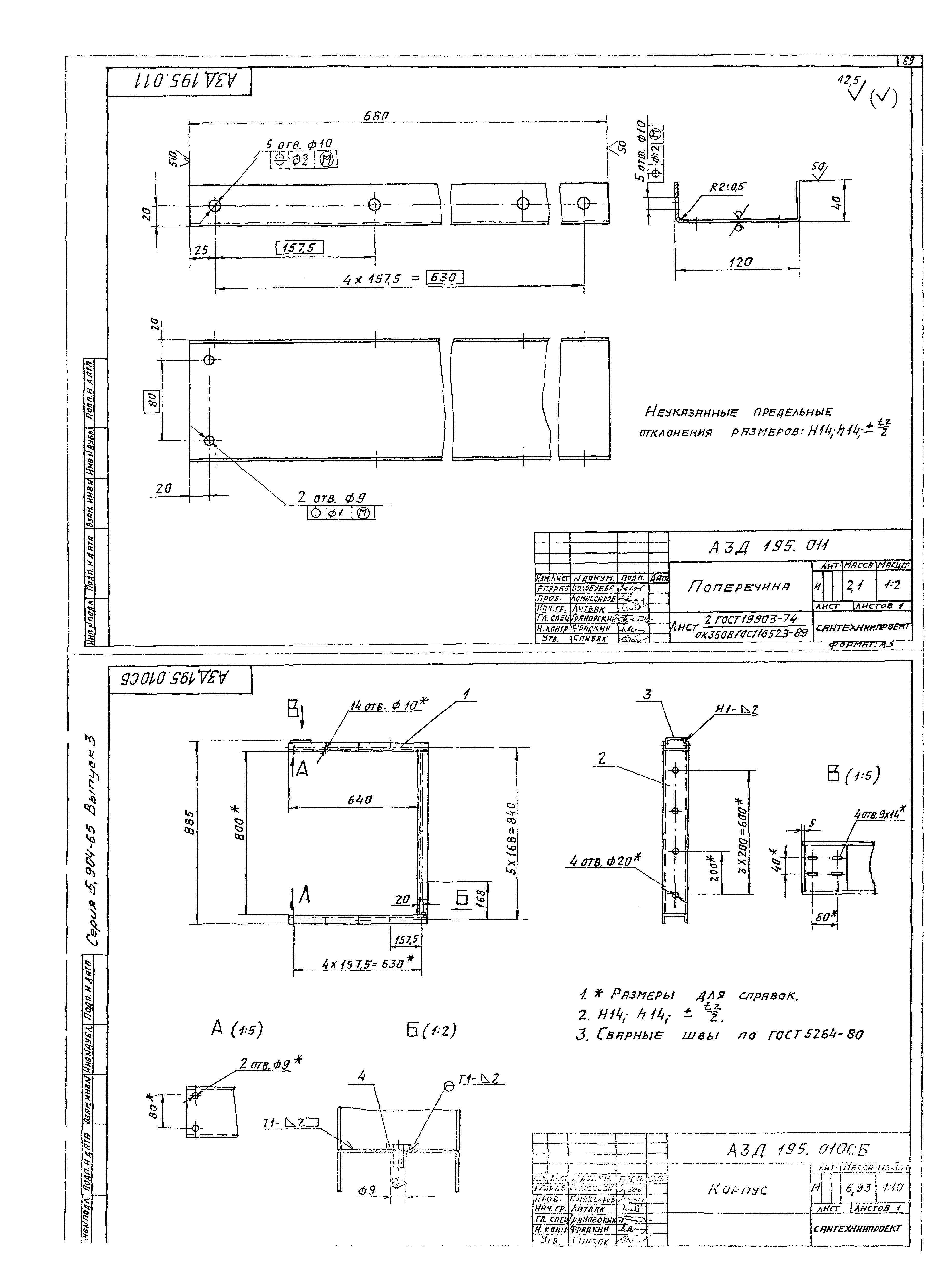
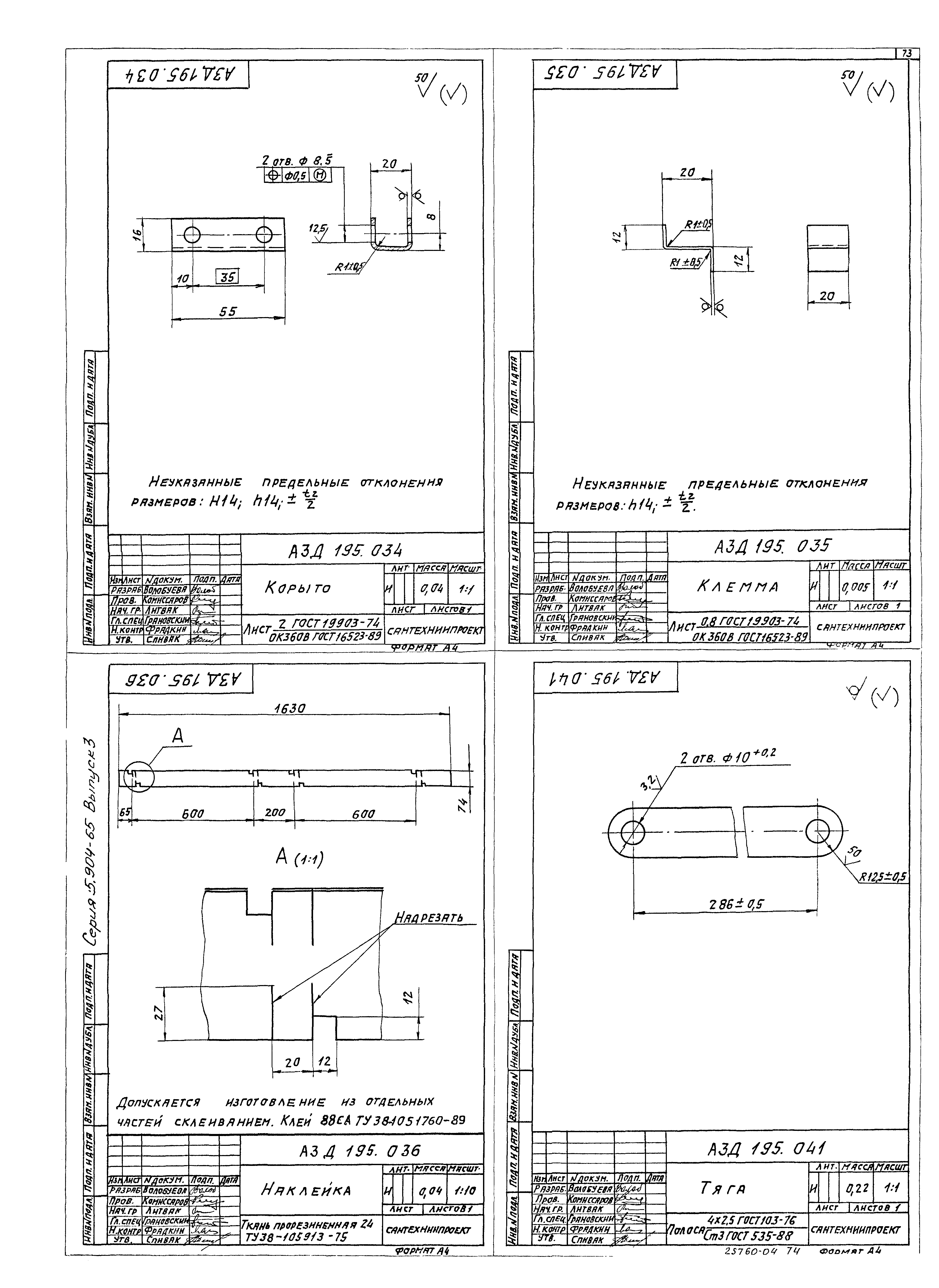
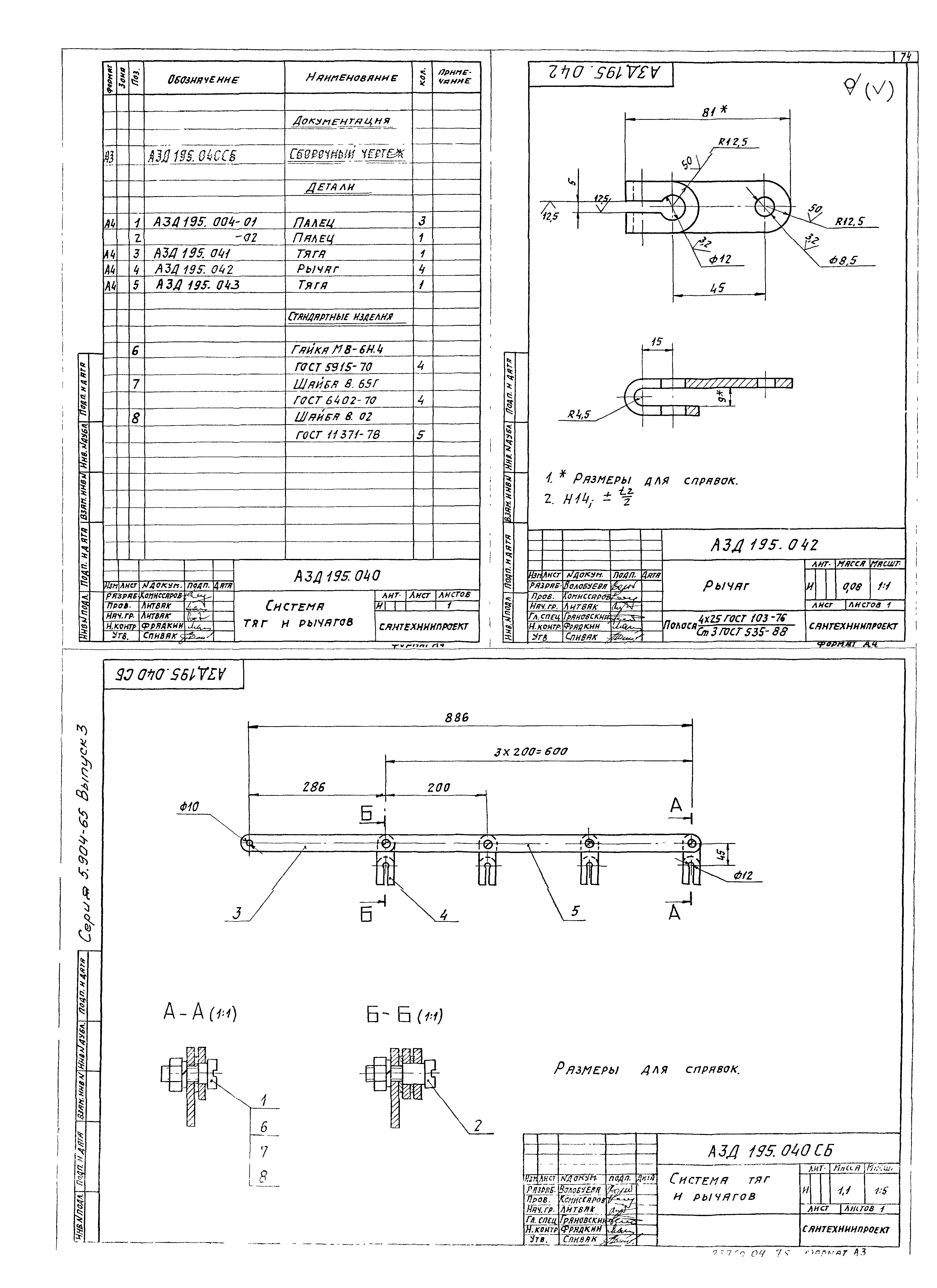
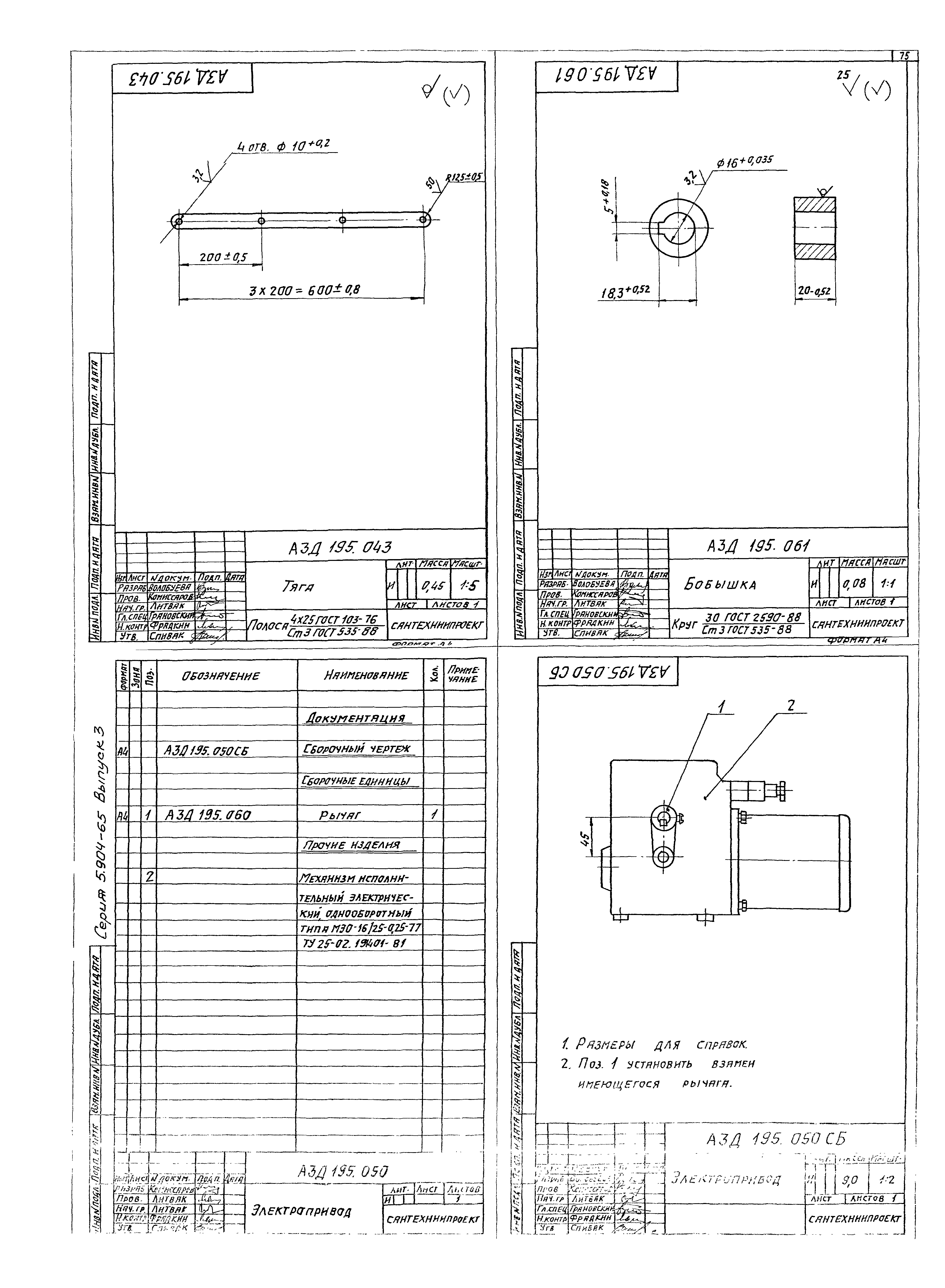
Скачать Серия 5.904-65 Выпуск 3. Шиберующие воздушные завесы с двумя отопительно-рециркуляционным агрегатом. Рабочие чертежиДата актуализации: 01.01.2021
|
| Обозначение: | Серия 5.904-65 |
| Обозначение англ: | Series 5.904-65 |
| Статус: | не определен законодательством |
| Название рус.: | Выпуск 3. Шиберующие воздушные завесы с двумя отопительно-рециркуляционным агрегатом. Рабочие чертежи |
| Дата добавления в базу: | 01.09.2013 |
| Дата актуализации: | 01.01.2021 |
| Дата введения: | 20.03.1993 |
| Дата окончания срока действия: | 30.06.2003 |
| Разработан: | Сантехниипроект Госстроя России |
| Утверждён: | 29.10.1992 ГПКНИИ Сантехниипроект (18) |
| Издан: | ГП ЦПП (1995 г. ) |












































































