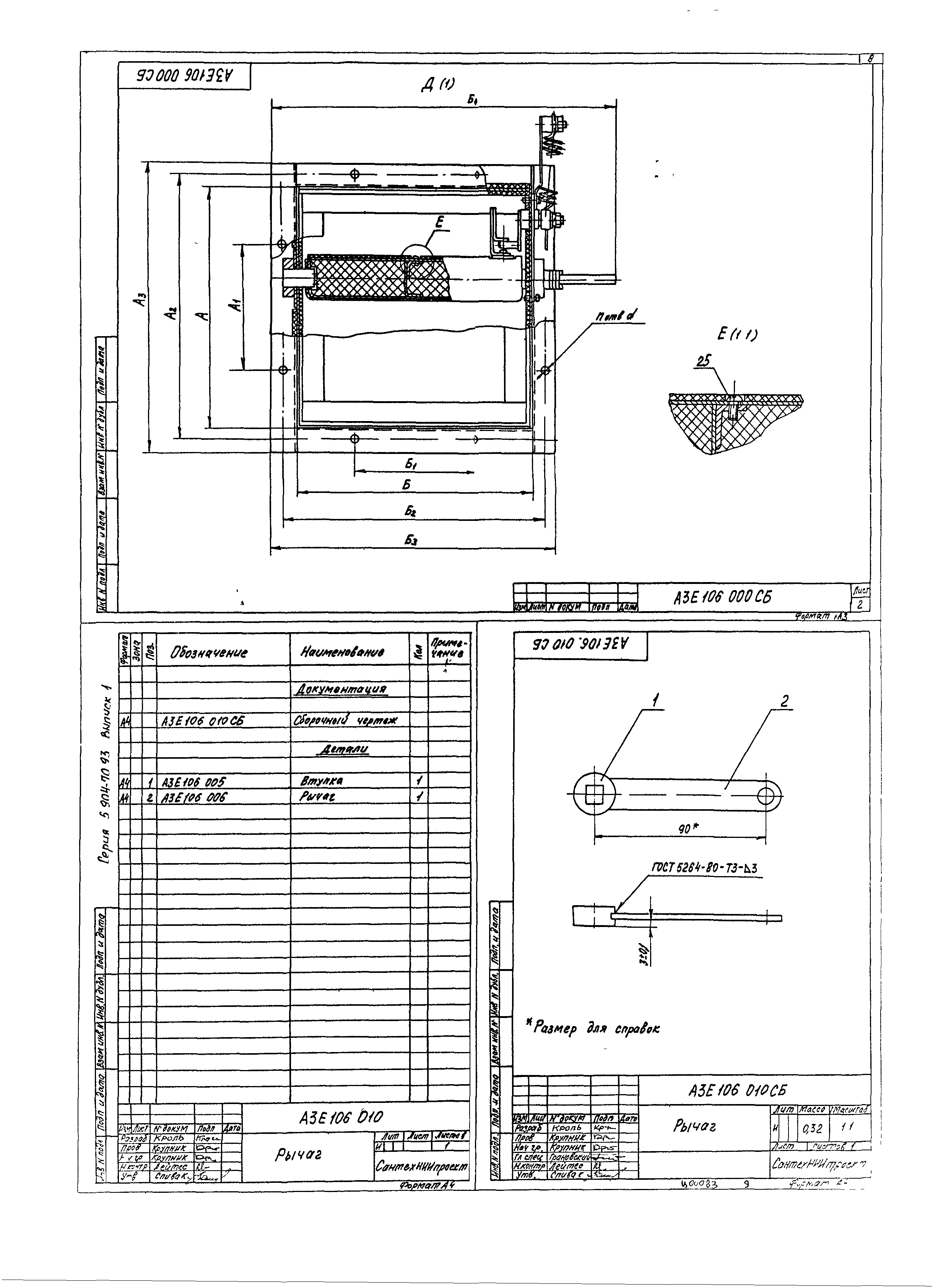
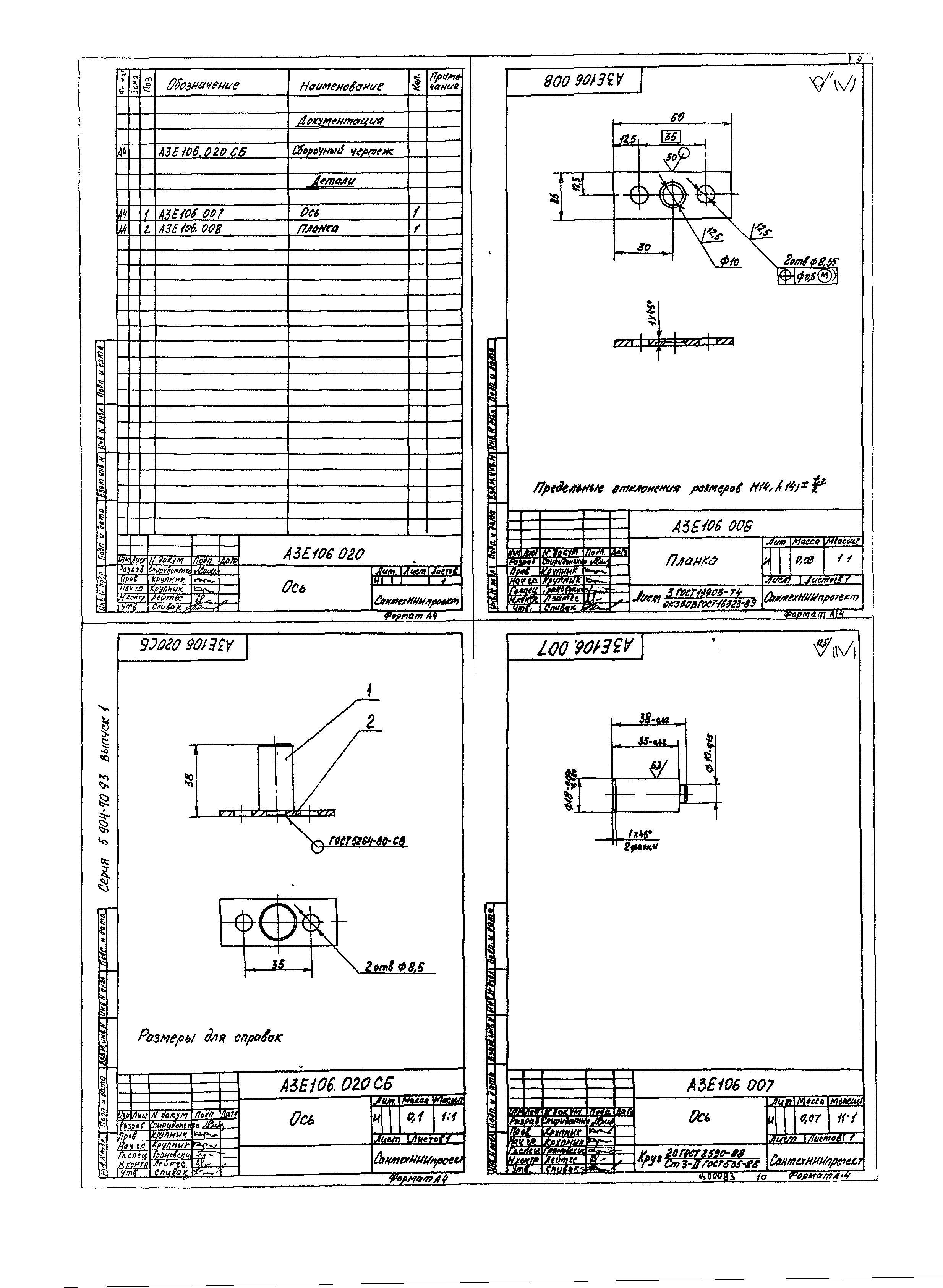
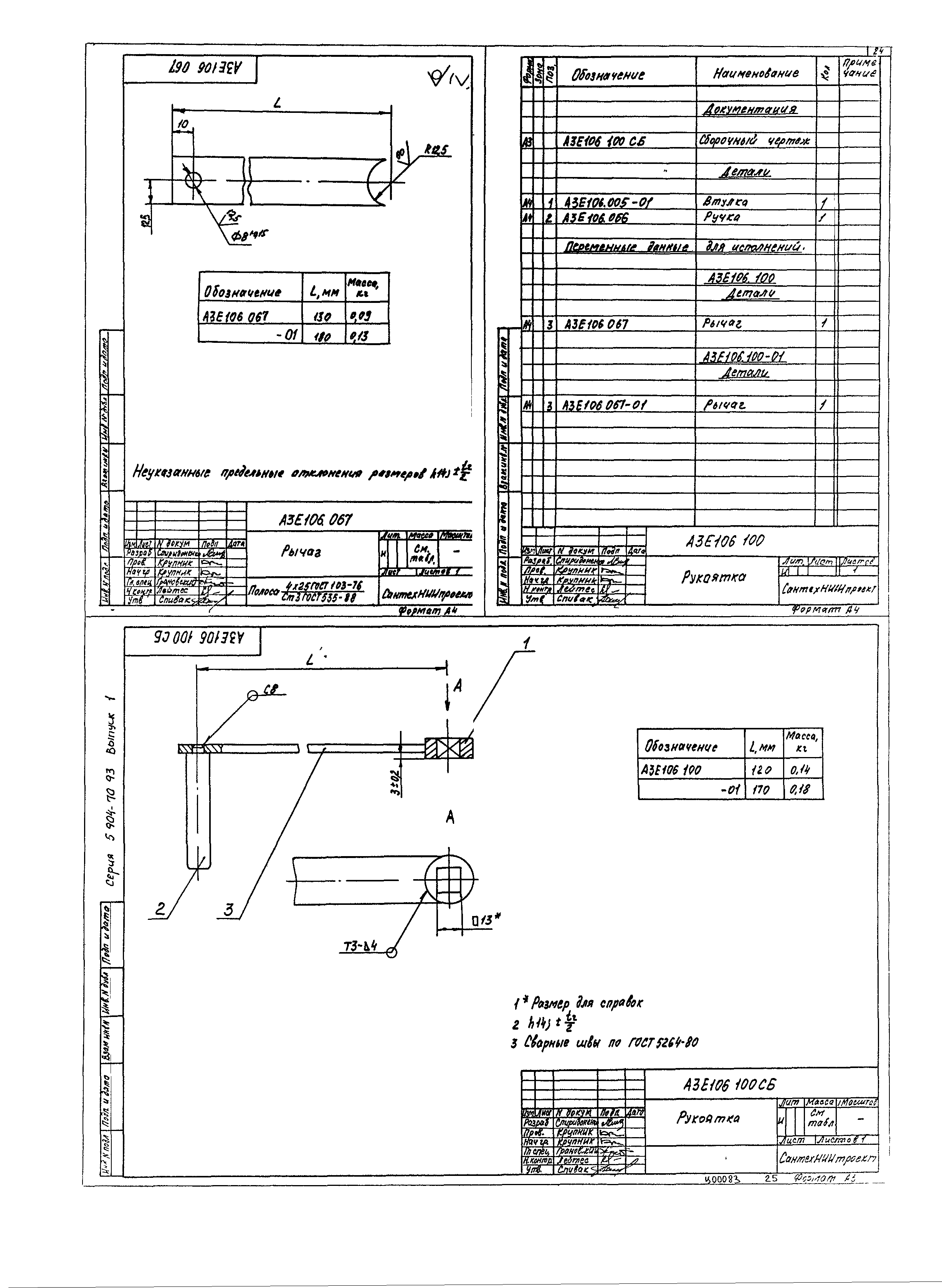
Скачать Серия 5.904-70.93 Выпуск 1. Клапаны. Рабочие чертежиДата актуализации: 01.01.2021 Серия 5.904-70.93
Выпуск 1. Клапаны. Рабочие чертежи| Обозначение: | Серия 5.904-70.93 | | Обозначение англ: | Series 5.904-70.93 | | Статус: | не определен законодательством | | Название рус.: | Выпуск 1. Клапаны. Рабочие чертежи | | Дата добавления в базу: | 01.09.2013 | | Дата актуализации: | 01.01.2021 | | Дата введения: | 01.09.1993 | | Дата окончания срока действия: | 30.06.2003 | | Разработан: | ГПКНИИ Сантехниипроект
| | Утверждён: | 16.06.1993 Главпроект Госстроя России (932/124)
|
                         
|