Скачать Серия 5.907-1 Выпуск 2. Постаменты. Рабочие чертежиДата актуализации: 01.01.2021
|
| Обозначение: | Серия 5.907-1 |
| Обозначение англ: | Series 5.907-1 |
| Статус: | не определен законодательством |
| Название рус.: | Выпуск 2. Постаменты. Рабочие чертежи |
| Дата добавления в базу: | 01.09.2013 |
| Дата актуализации: | 01.01.2021 |
| Дата введения: | 01.10.1986 |
| Дата окончания срока действия: | 30.06.2003 |
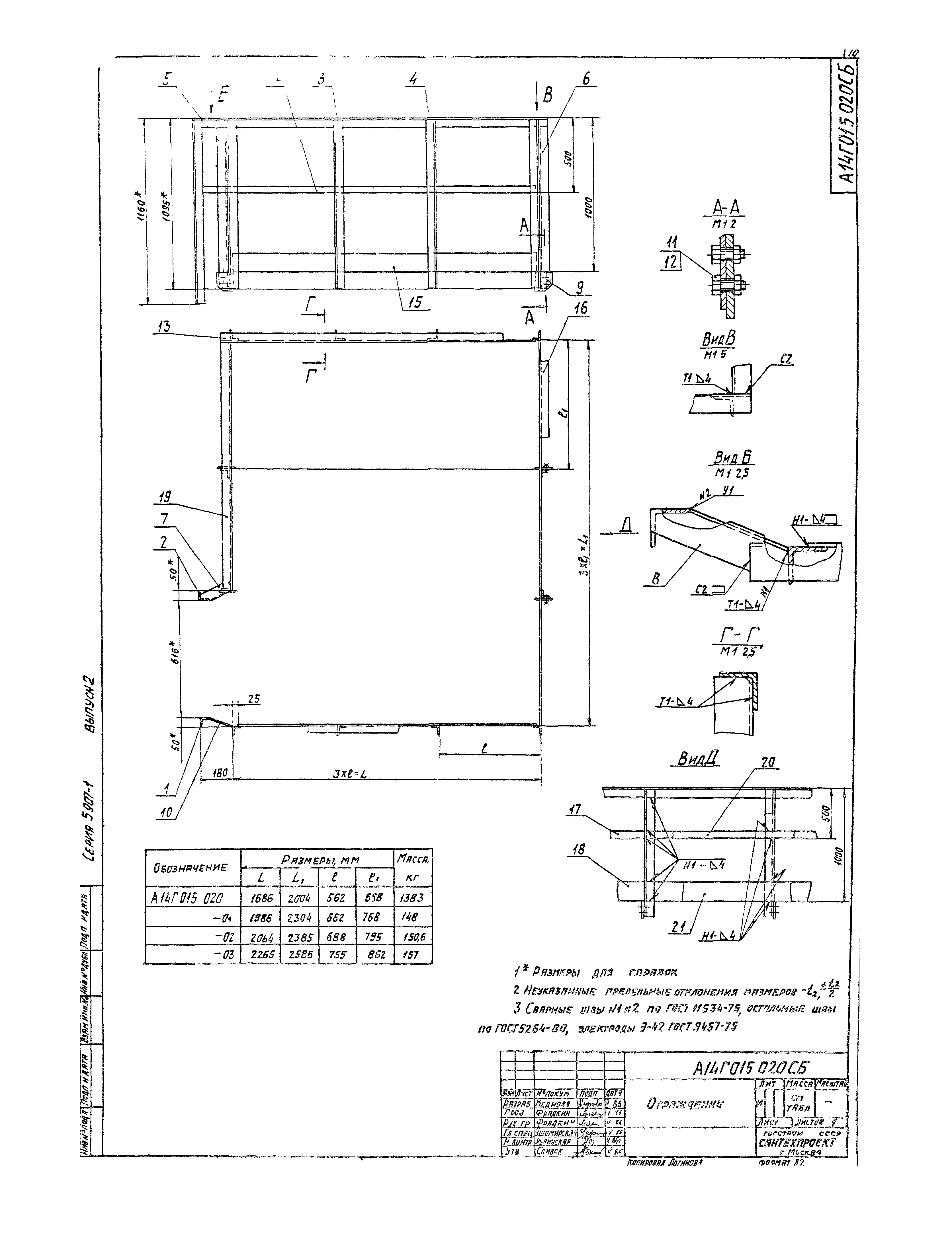
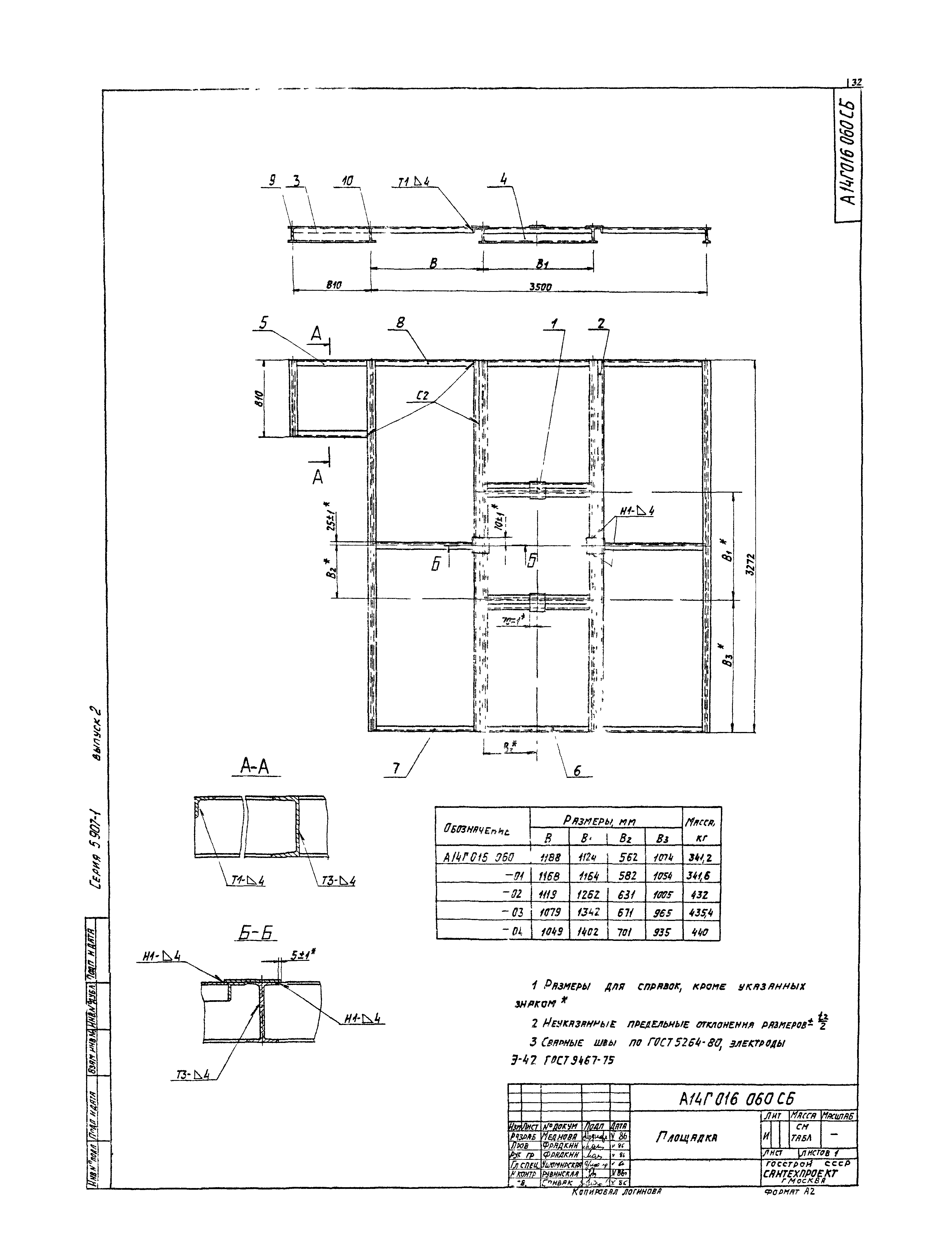
| Оглавление: | А14Г015.000 Д Технические требования А14Г015.000 Постаменты под сухие циклоны СИОТ-М и СИОТ М1 А14Г015.000 СБ Постаменты под сухие циклоны СИОТ-М и СИОТ М1 А14Г015.010 Лестница А14Г015.010 СБ Лестница А14Г015.013 Полоса А14Г015.020 Ограждение А14Г015.020 СБ Ограждение А14Г015.021 Стойка А14Г015.022 Стойка А14Г015.023 Стяжка А14Г015.024 Ребро А14Г015.070 Опора А14Г015.002 Уголок А14Г015.070 СБ Опора А14Г015.072 Лист А14Г015.073 Лист подкладной А14Г015.071 Ребро А14Г015.011 Полоса А14Г015.080 Площадка А14Г015.105 Ребро А14Г015.080 СБ Площадка А14Г015.082 Двутавр А14Г015.083 Уголок А14Г015.084 Уголок А14Г015.100 Портал А14Г015.106 Ребро А14Г015.100 СБ Портал А14Г015.101 Лапа А14Г015.102 Ребро А14Г015.103 Ребро А14Г015.104 Шайба А14Г016.000 Постаменты под сухие циклоны СИОТ-М и СИОТ М1 (высокие) А14Г016.000 СБ Постаменты под сухие циклоны СИОТ-М и СИОТ М1 (высокие) А14Г016.010 Лестница А14Г016.010 СБ Лестница А14Г016.011 Перила А14Г016.012 Уголок А14Г016.013 Уголок А14Г016.019 Полоса А14Г016.020 Ограждение А14Г016.034 Ребро А14Г016.076 Ребро А14Г016.001 Уголок А14Г016.020 СБ Ограждение А14Г016.060 Площадка А14Г016.060 СБ Площадка А14Г016.083 Стяжка А14Г016.064 Уголок А14Г016.065 Уголок А14Г016.070 Портал А14Г016.075 Ребро А14Г016.070 СБ Портал А14Г016.071 Лапа А14Г016.072 Ребро А14Г016.073 Ребро А14Г016.074 Шайба |
| Разработан: | Сантехниипроект Госстроя России |
| Утверждён: | 01.08.1986 Главпроект Госстроя СССР (48) |




































