Скачать Серия 5.904-15 Выпуск 1-3. Аспиратор СИОТ № 6,3. Рабочие чертежиДата актуализации: 01.01.2021
|
| Обозначение: | Серия 5.904-15 |
| Обозначение англ: | Series 5.904-15 |
| Статус: | не определен законодательством |
| Название рус.: | Выпуск 1-3. Аспиратор СИОТ № 6,3. Рабочие чертежи |
| Дата добавления в базу: | 01.10.2014 |
| Дата актуализации: | 01.01.2021 |
| Дата введения: | 15.06.1982 |
| Дата окончания срока действия: | 30.06.2003 |
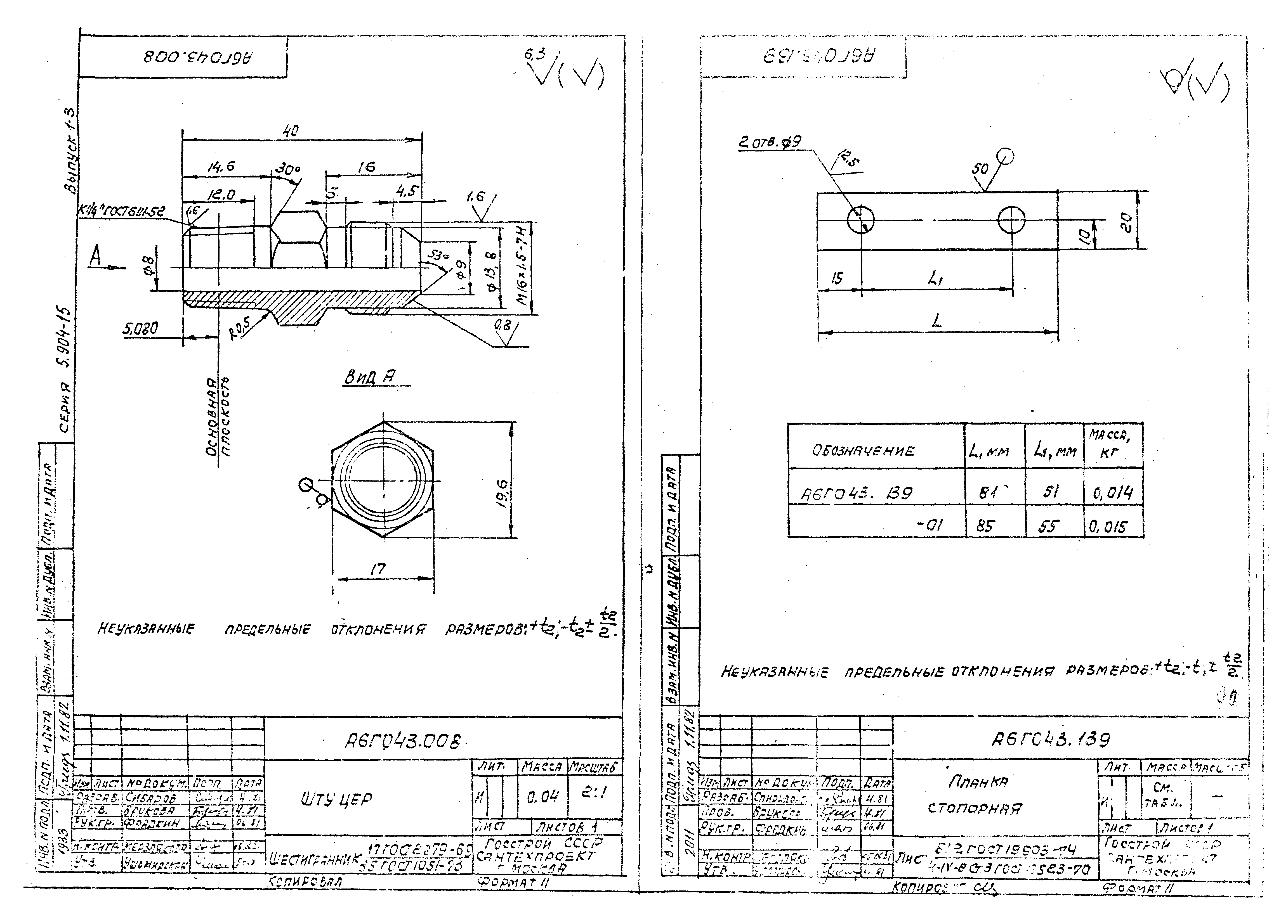
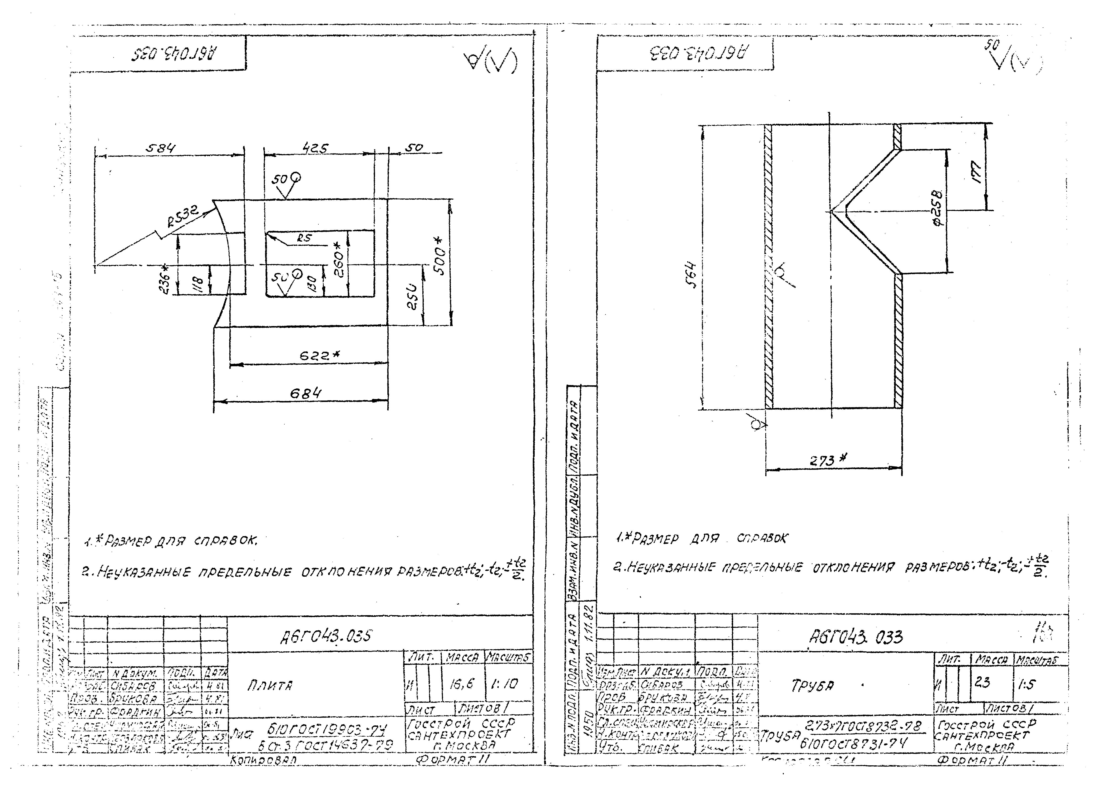
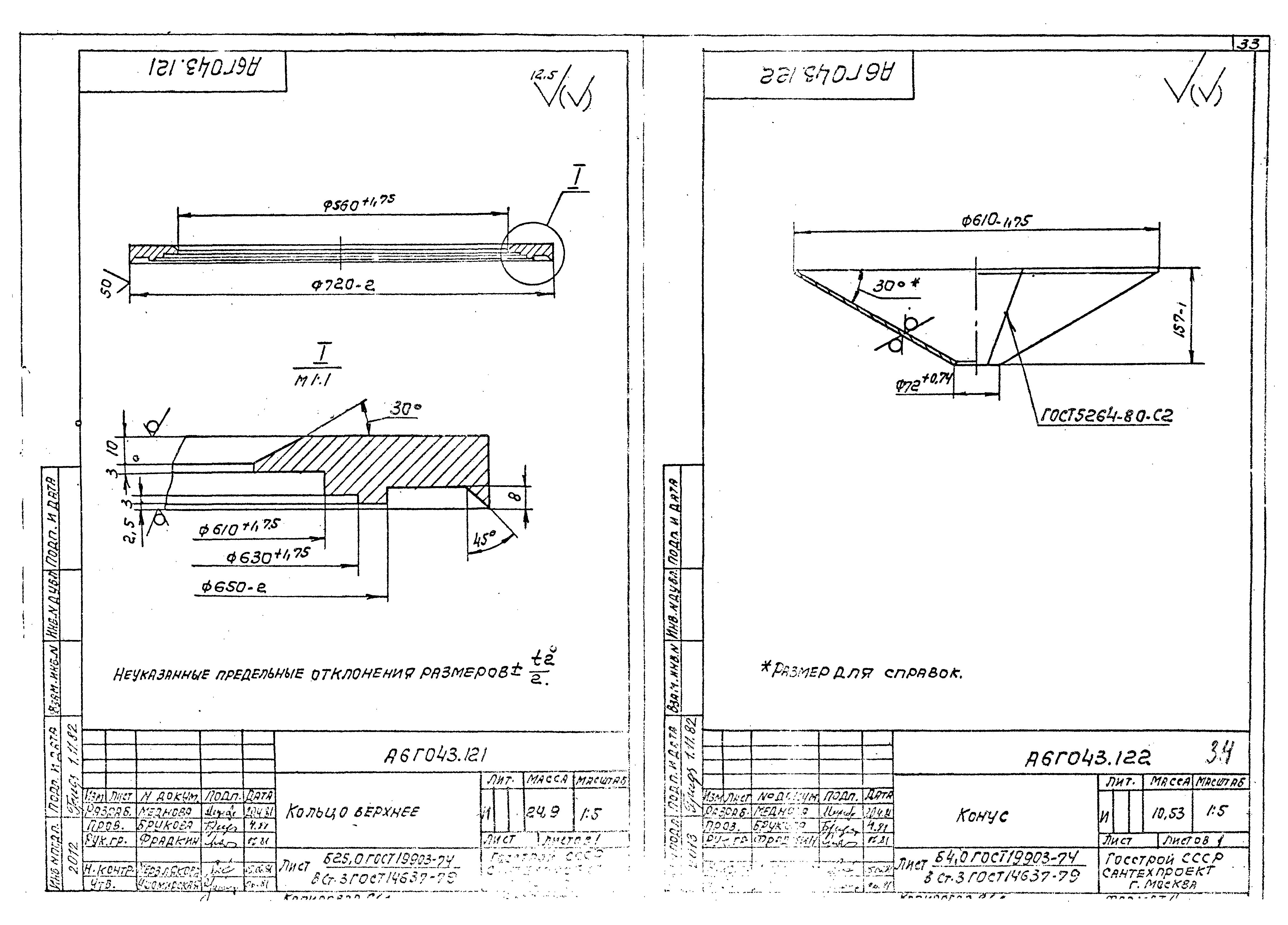
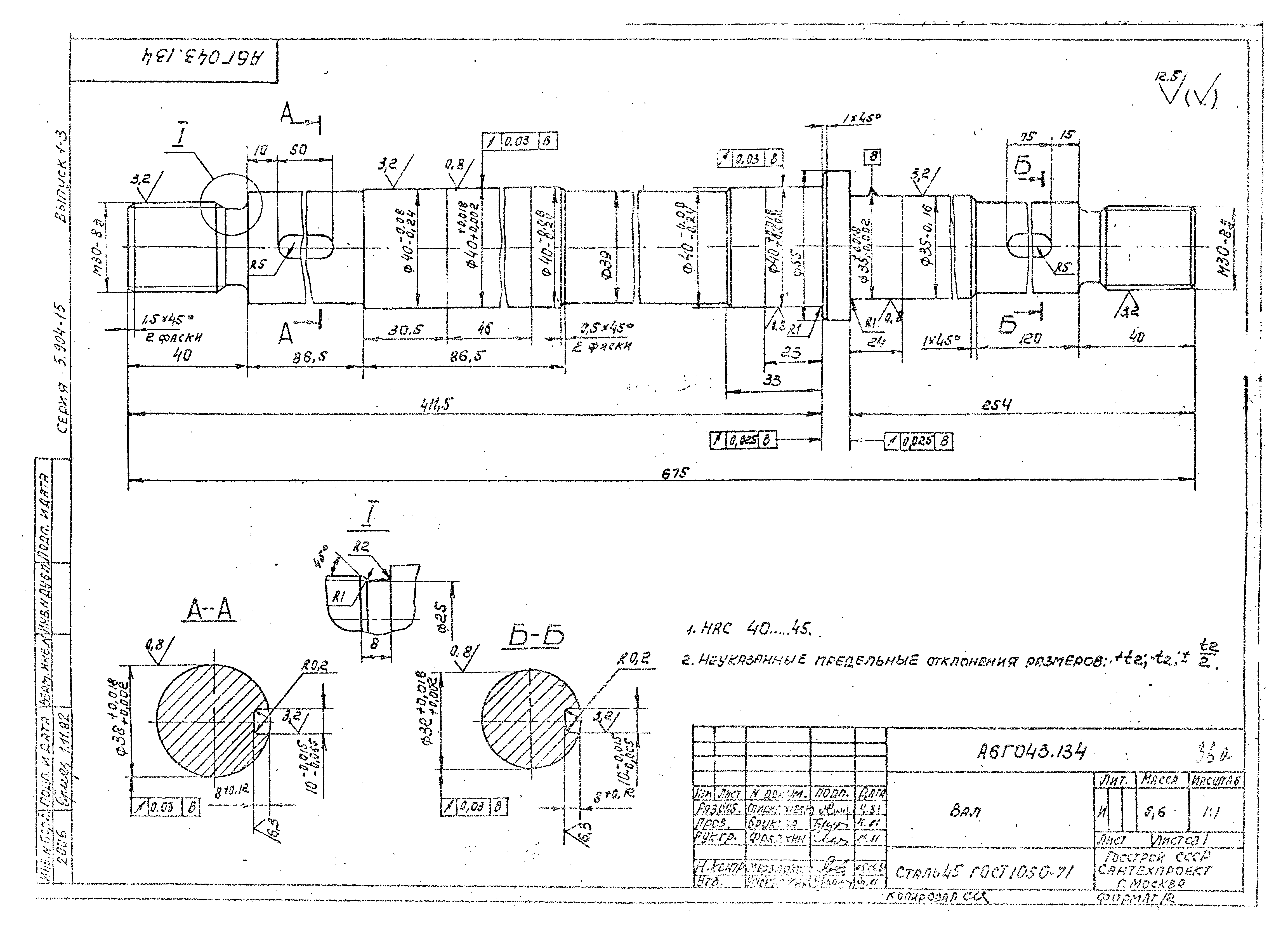
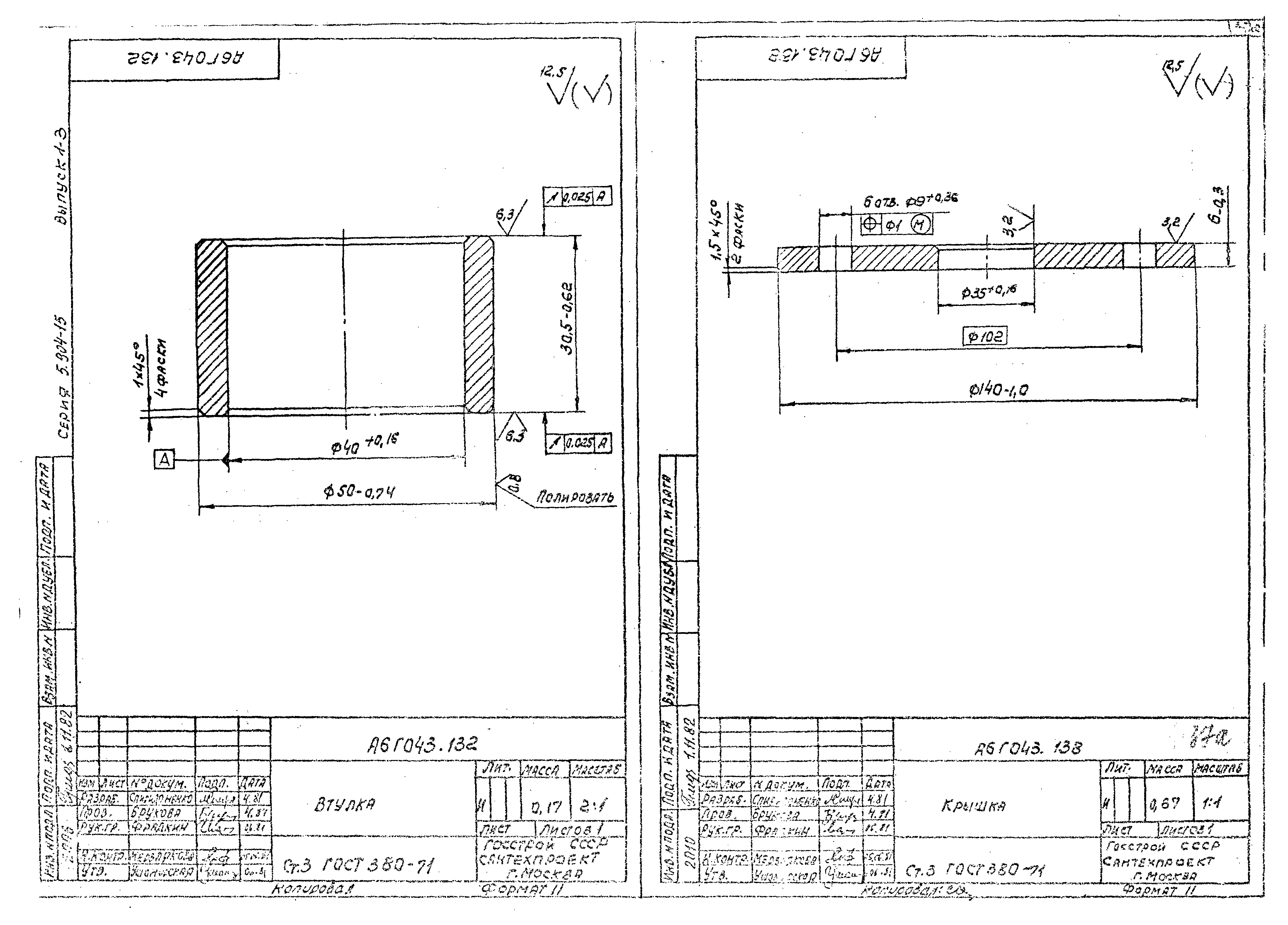
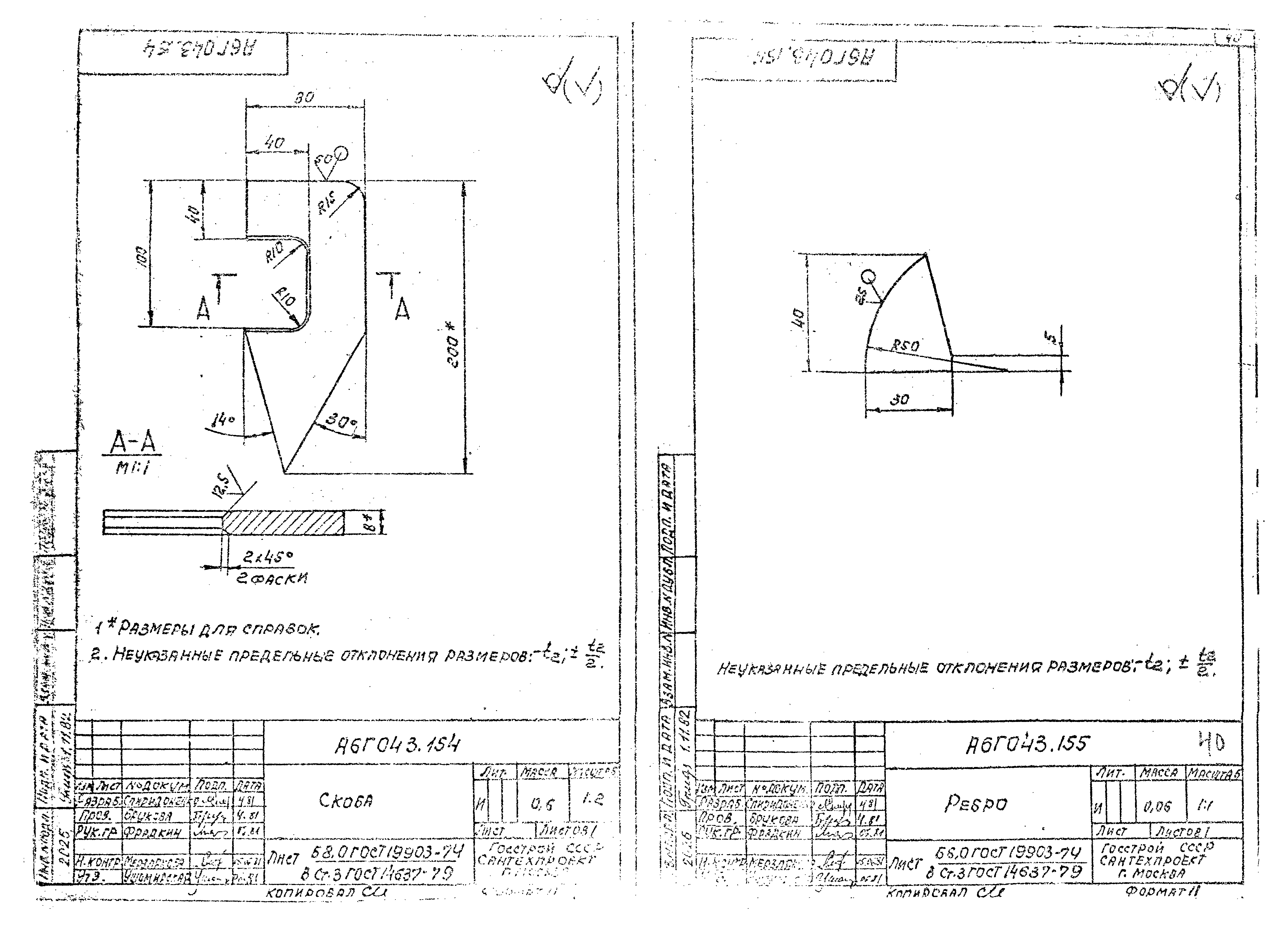
| Оглавление: | Содержание А6Г043.000ТО Техническое описание А6Г043.000 Аспиратор СИОТ №6, 3 А6Г043.000СБ Аспиратор СИОТ №6, 3. Сборочный чертеж А6Г043.005 Крышка А6Г043.006 Прокладка А6Г043.003 Шайба торцевая А6Г043.004 Планка стопорная А6Г043.001 Винт натяжной А6Г043.007 Прокладка А6Г043.008 Штуцер А6Г043.139 Планка стопорная А6Г043.010СБ Поддон. Сборочный чертеж А6Г043.010 Поддон А6Г043.020 Патрубок сливной А6Г043.011 Ребро А6Г043.012 Обечайка А6Г043.013 Фланец верхний А6Г043.014 Фланец нижний А6Г043.015 Ребро А6Г043.016 Конус А6Г043.017 Кольцо А6Г043.018Ребро А6Г043.030 Корпус А6Г043.022 Патрубок А6Г043.020СБ Патрубок сливной. Сборочный чертеж А6Г043.030СБ Корпус. Сборочный чертеж А6Г043.045 Пластина А6Г043.046 Косынка упорная А6Г043.032 Заглушка А6Г043.034 Патрубок А6Г043.035 Плита А6Г043.033 Труба А6Г043.041 Ребро А6Г043.038 Фланец А6Г043.039 Фланец А6Г043.042 Обечайка А6Г043.044 Обечайка А6Г043.043 Ребро А6Г043.040 Трубопровод А6Г043.048 Заглушка А6Г043.040СБ Трубопровод. Сборочный чертеж А6Г043.049 Труба А6Г043.051 Труба А6Г043.052 Труба А6Г043.053 Труба А6Г043.050 Стакан А6Г043.140 Электродвигатель А6Г043.051 Фланец А6Г043.050СБ Стакан. Сборочный чертеж А6Г043.060 Люк смотровой А6Г043.070 Крышка А6Г043.080 Защелка А6Г043.090 Винт прижимной А6Г043.060СБ Люк смотровой. Сборочный чертеж А6Г043.061 Ось А6Г043.062 Прокладка А6Г043.063 Косынка А6Г043.064 Дуга А6Г043.075 Лист А6Г043.070СБ Крышка. Сборочный чертеж А6Г043.071 Рамка А6Г043.072 Ручка А6Г043.073 Бобышка А6Г043.074 Петля А6Г043.081 Полоса А6Г043.080СБ Защелка. Сборочный чертеж А6Г043.091 Винт А6Г043.090СБ Винт прижимной. Сборочный чертеж А6Г043.100 Шарнир А6Г043.110 Плита А6Г043.120 Ротор А6Г043.104 Втулка А6Г043.100СБ Шарнир. Сборочный чертеж А6Г043.101 Ребро А6Г043.102 Ушко А6Г043.103 Ось А6Г043.111 Уголок А6Г043.112 Косынка А6Г043.113 Плита А6Г043.110СБ Плита. Сборочный чертеж А6Г043.120СБ Ротор. Сборочный чертеж А6Г043.121 Кольцо верхнее А6Г043.122 Конус А6Г043.125 Ступица А6Г043.124 Лопатка А6Г043.130 Узел подшипниковый А6Г043.150 Патрубок телескопический А6Г043.160 Воздуховод А6Г043.130СБ Узел подшипниковый. Сборочный чертеж А6Г043.131 Шкив А6Г043.134 Вал А6Г043.136 Втулка А6Г043.135 Прокладка А6Г043.132 Втулка А6Г043.138 Крышка А6Г043.137 Корпус А6Г043.133 Крышка А6Г043.002 Шкив А6Г043.154 Скоба А6Г043.155 Ребро А6Г043.150СБ Патрубок телескопический. Сборочный чертеж А6Г043.123 Кольцо нижнее А6Г043.152 Обечайка А6Г043.151 Конус А6Г043.153 Полукольцо А6Г043.163 Захват А6Г043.164 Ушко А6Г043.160СБ Воздуховод. Сборочный чертеж А6Г043.170 Маслопровод А6Г043.180 Маслопровод А6Г043.161 Обечайка А6Г043.162 Фланец А6Г043.170СБ Маслопровод. Сборочный чертеж А6Г043.180СБ Маслопровод. Сборочный чертеж А6Г043.171 Ниппель А6Г043.172 Гайка накидная А6Г043.181 Труба А6Г043.173 Труба |
| Разработан: | Сантехпроект Госстроя СССР |
| Утверждён: | 08.06.1982 Главпромстройпроект Госстроя СССР (34) |















































































