Скачать Серия 5.904-15 Выпуск 1-5. Аспиратор СИОТ № 10. Рабочие чертежиДата актуализации: 01.01.2021
|
| Обозначение: | Серия 5.904-15 |
| Обозначение англ: | Series 5.904-15 |
| Статус: | не определен законодательством |
| Название рус.: | Выпуск 1-5. Аспиратор СИОТ № 10. Рабочие чертежи |
| Дата добавления в базу: | 01.10.2014 |
| Дата актуализации: | 01.01.2021 |
| Дата введения: | 15.06.1982 |
| Дата окончания срока действия: | 30.06.2003 |
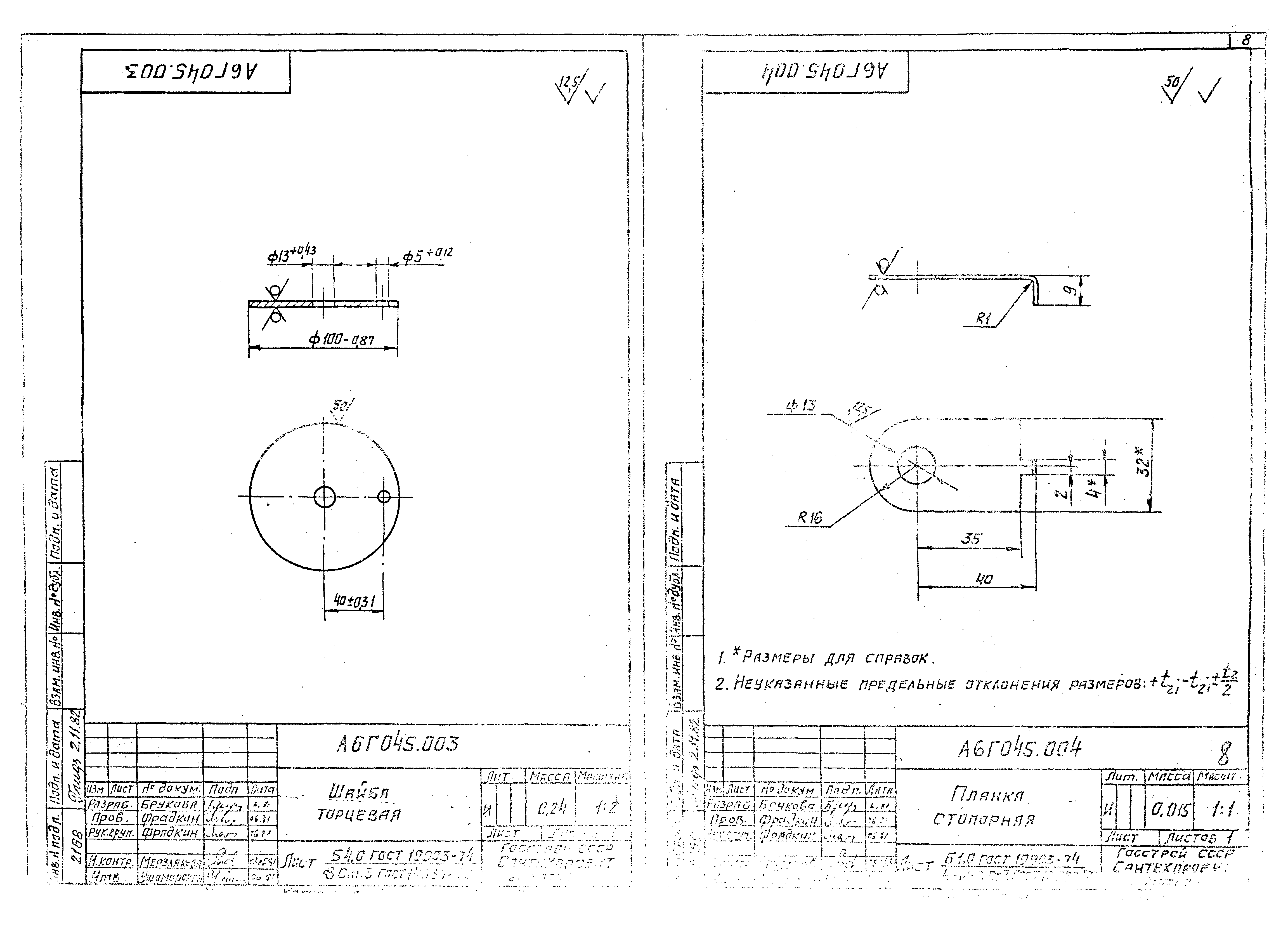
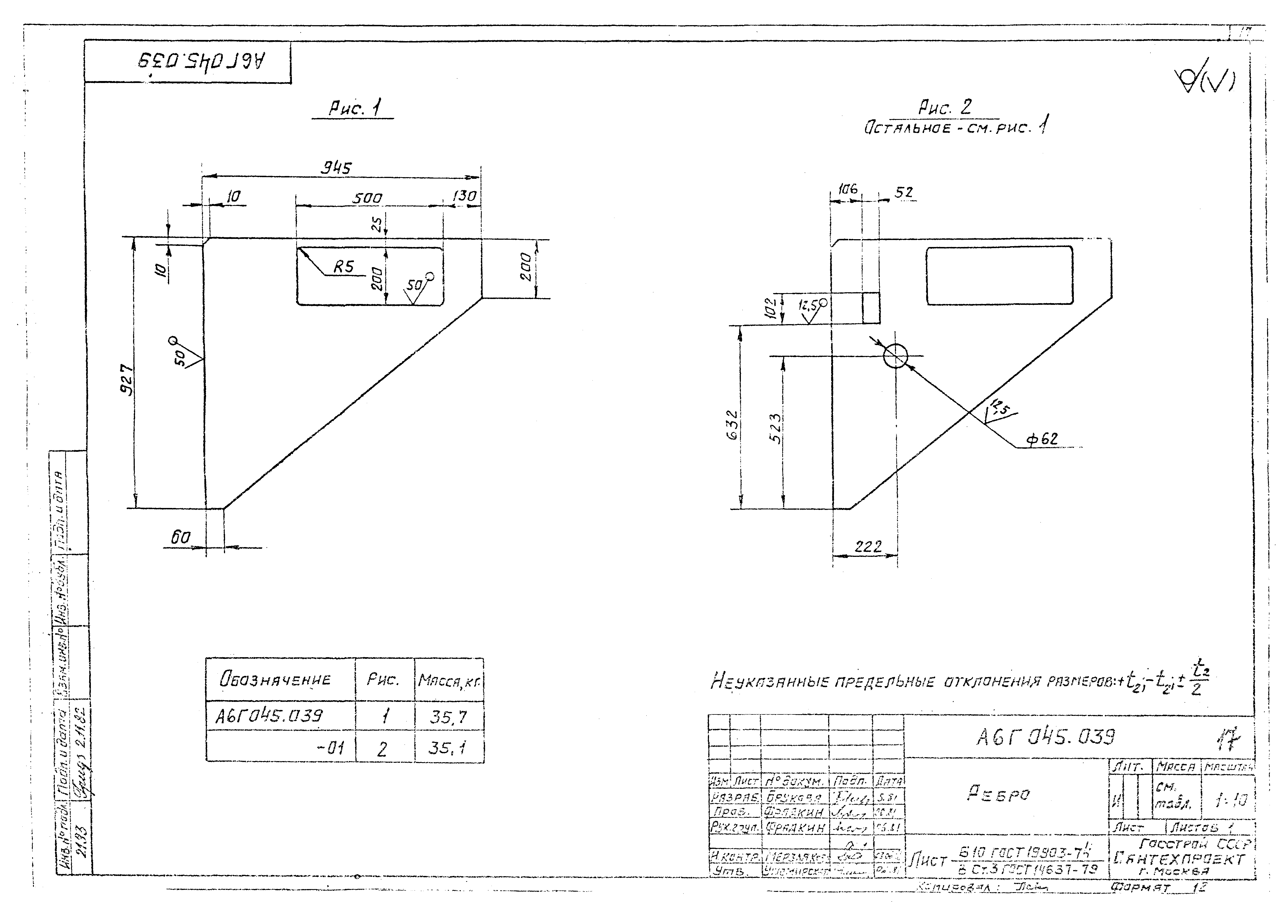
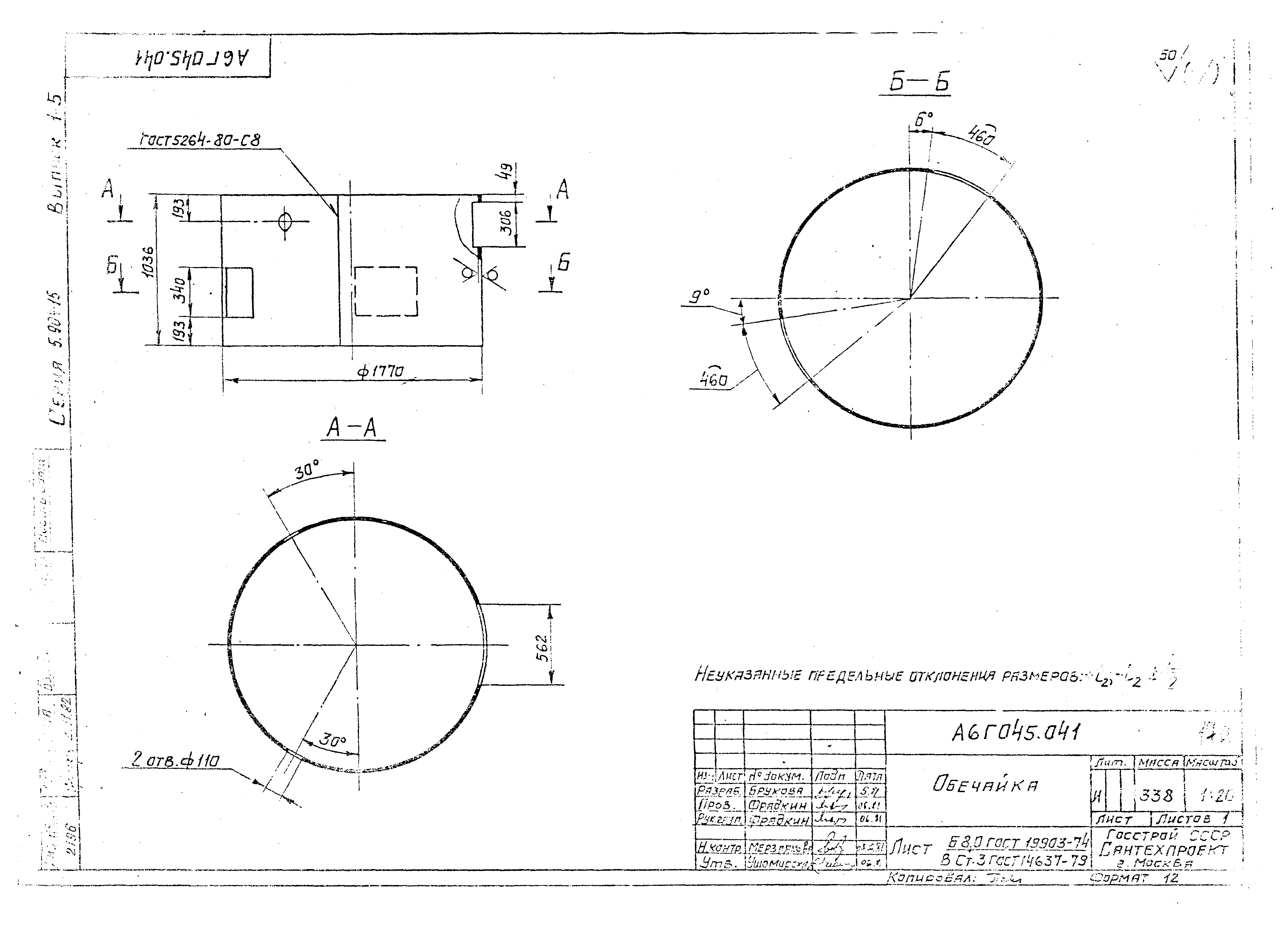
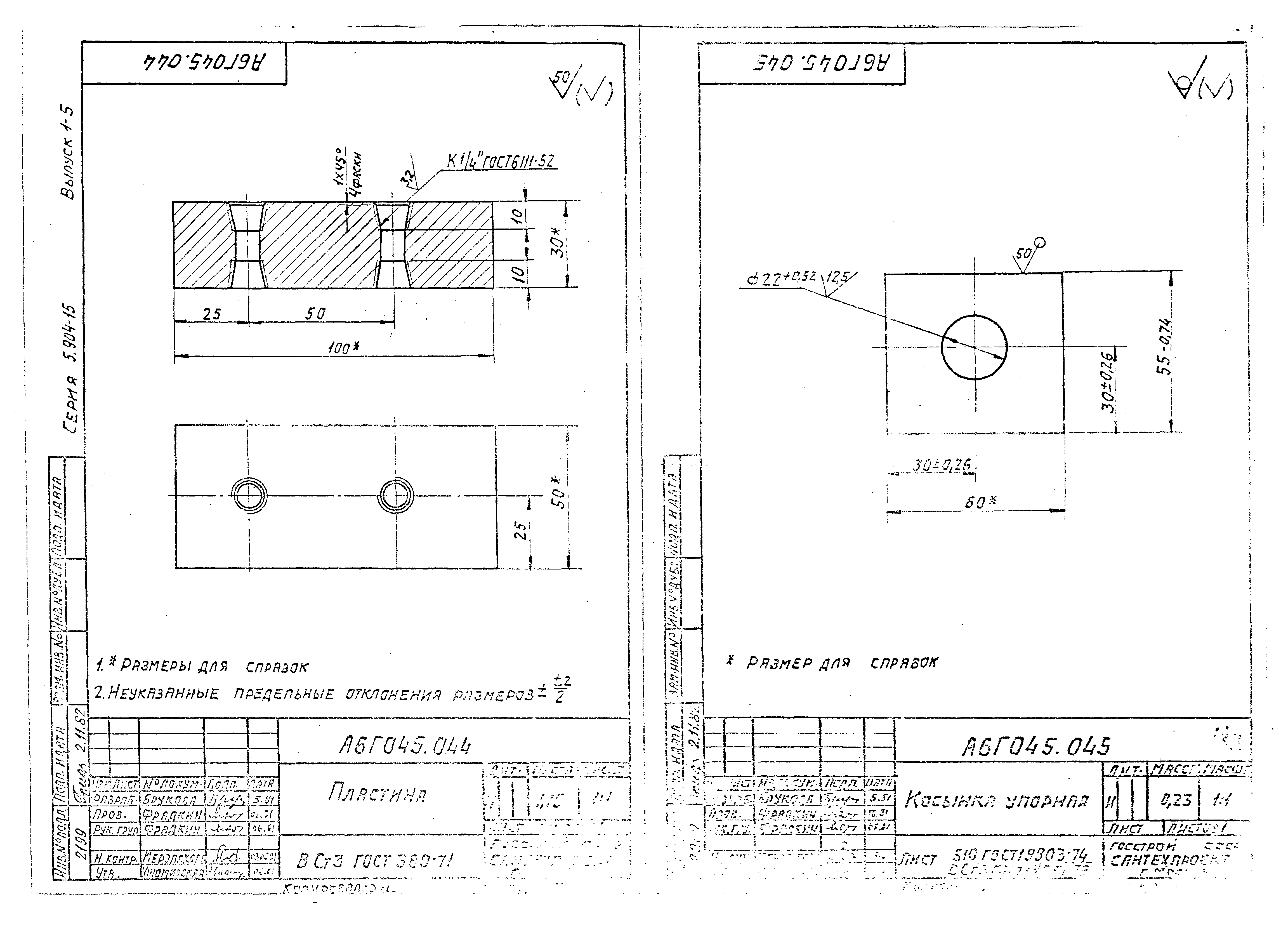
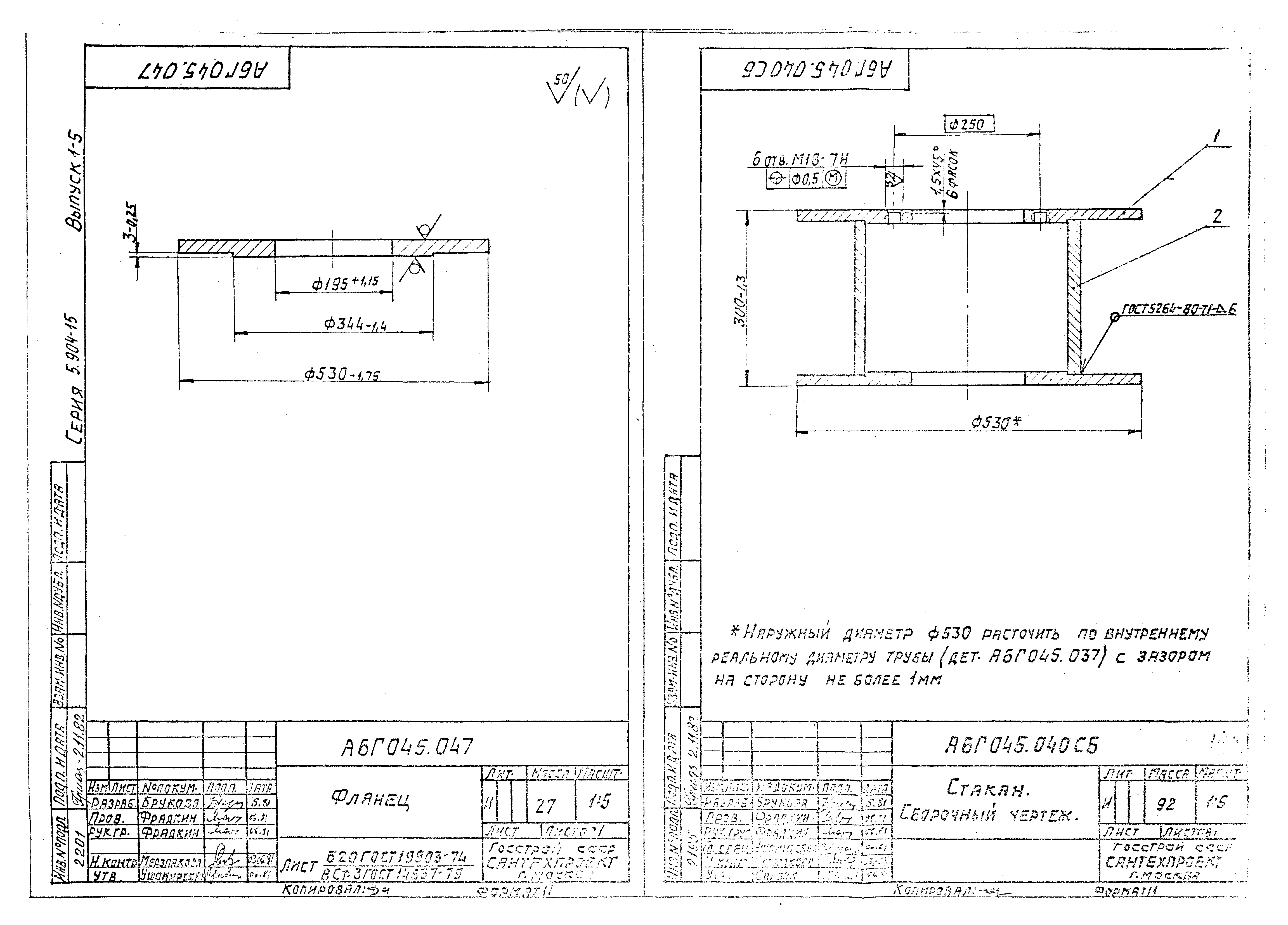
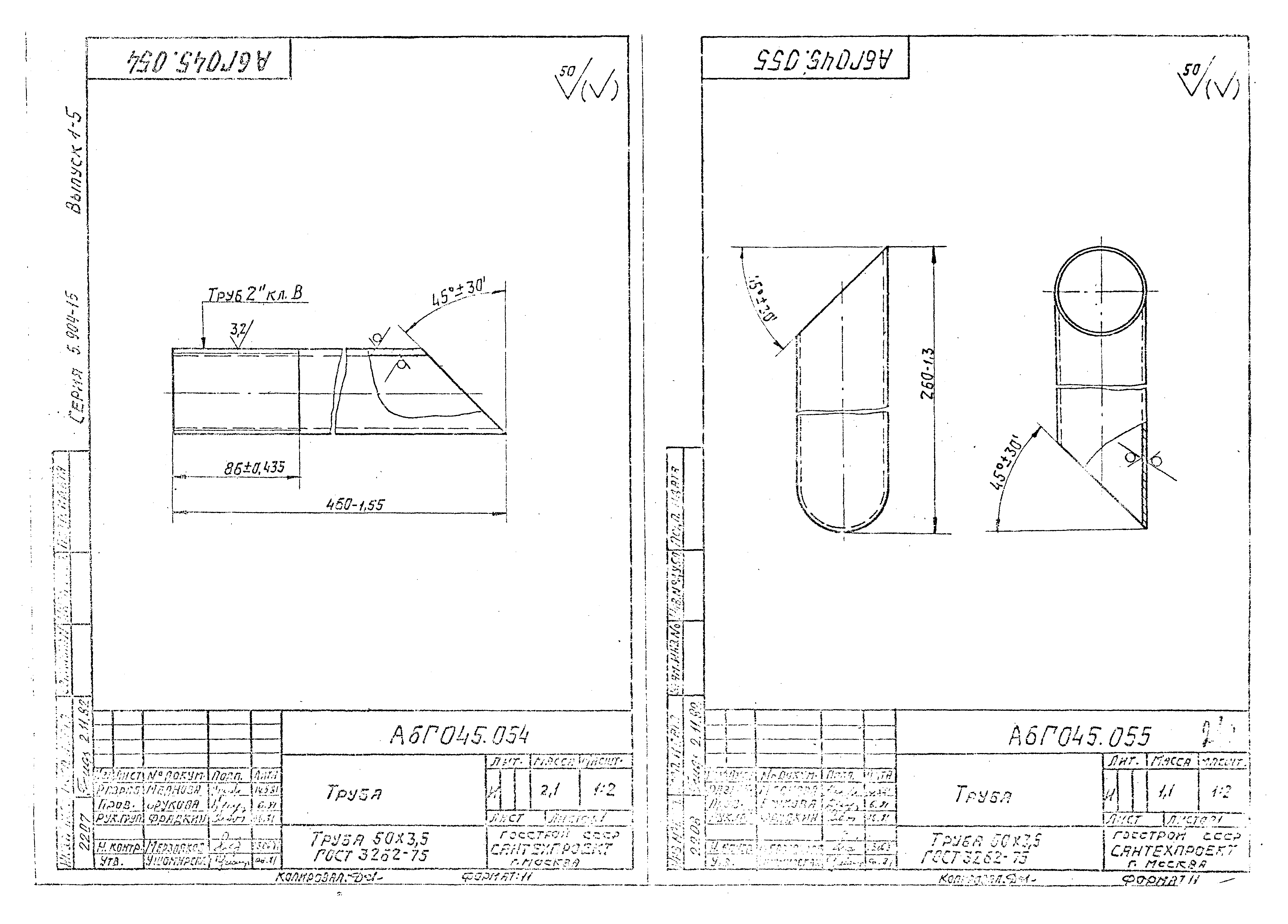
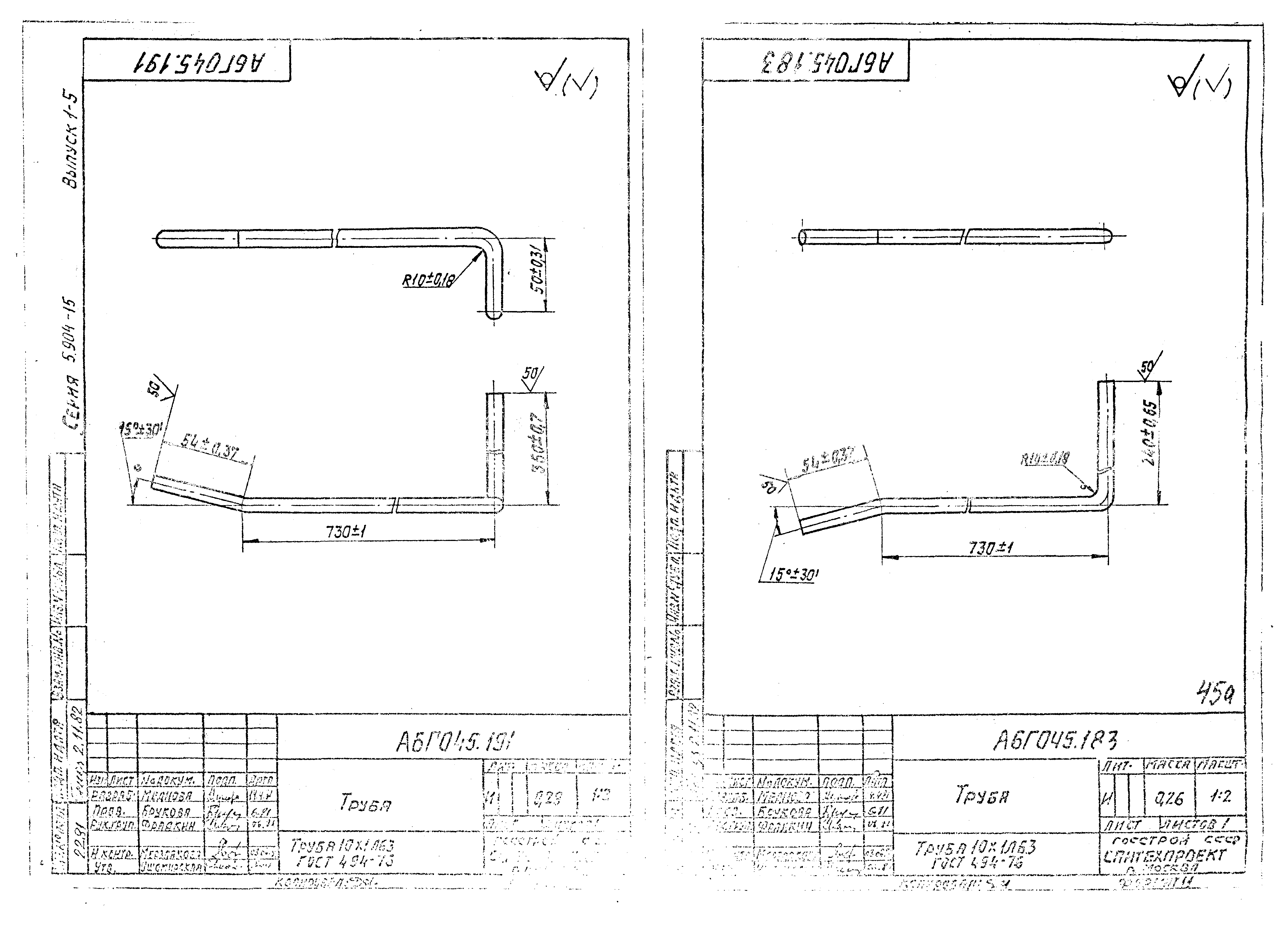
| Оглавление: | Содержание А6Г045.000.ТО Техническое описание А6Г045.000 Аспиратор СИОТ №10 А6Г045.000СБ Аспиратор СИОТ №10. Сборочный чертеж А6Г045.001 Винт натяжной А6Г045.007 Прокладка А6Г045.002 Шкив А6Г045.003 Шайба торцевая А6Г045.004 Планка стопорная А6Г045.005 Крышка А6Г045.006 Прокладка А6Г045.010СБ Поддон. Сборочный чертеж А6Г045.010 Поддон А6Г045.020 Патрубок сливной А6Г045.011 Ребро А6Г045.012 Обечайка А6Г045.013 Фланец верхний А6Г045.014 Фланец нижний А6Г045.015 Ребро А6Г045.016 Конус А6Г045.017 Кольцо А6Г045.018 Ребро А6Г045.171 Обечайка А6Г045.172 Фланец А6Г045.021 Патрубок А6Г045.020СБ Патрубок сливной. Сборочный чертеж А6Г045.030СБ Корпус. Сборочный чертеж А6Г045.030 Корпус А6Г045.032 Плита А6Г045.036 Фланец А6Г045.037 Труба А6Г045.038 Фланец А6Г045.039 Ребро А6Г045.041 Обечайка А6Г045.042 Ребро А6Г045.043 Обечайка А6Г045.044 Пластина А6Г045.045 Косынка упорная А6Г045.008 Штуцер А6Г045.040 Стакан А6Г045.047 Фланец А6Г045.040СБ Стакан. Сборочный чертеж А6Г045.050 Трубопровод А6Г045.051 Заглушка А6Г045.050СБ Трубопровод. Сборочный чертеж А6Г045.052 Труба А6Г045.053 Труба А6Г045.054 Труба А6Г045.055 Труба А6Г045.060 Патрубок А6Г045.061 Лист А6Г045.060СБ Патрубок. Сборочный чертеж А6Г045.114 Втулка А6Г045.070 Люк смотровой А6Г045.080 Крышка А6Г045.090 Защелка А6Г045.100 Винт прижимной А6Г045.070СБ Люк смотровой. Сборочный чертеж А6Г045.074 Дуга А6Г045.071 Ось А6Г045.072 Прокладка А6Г045.073 Косынка А6Г045.085 Лист А6Г045.080СБ Крышка. Сборочный чертеж А6Г045.082 Ручка А6Г045.081 Рамка А6Г045.083 Бобышка А6Г045.084 Петля А6Г045.091 Полоса А6Г045.090СБ Защелка. Сборочный чертеж А6Г045.101 Винт А6Г045.100СБ Винт прижимной. Сборочный чертеж А6Г045.110 Шарнир А6Г045.110СБ Шарнир. Сборочный чертеж А6Г045.111 Ребро А6Г045.112 Ушко А6Г045.113 Ось А6Г045.121 Уголок А6Г045.122 Косынка А6Г045.123 Плита А6Г045.120 Плита А6Г045.120СБ Плита. Сборочный чертеж А6Г045.130 Ротор А6Г045.130СБ Ротор. Сборочный чертеж А6Г045.131 Кольцо верхнее А6Г045.134 Кольцо нижнее А6Г045.132 Конус А6Г045.135 Ступица А6Г045.133 Лопатка А6Г045.140 Узел подшипниковый А6Г045.143 Крышка А6Г045.149 Планка стопорная А6Г045.140СБ Узел подшипниковый. Сборочный чертеж А6Г045.148 Крышка А6Г045.145 Прокладка А6Г045.141 Шкив А6Г045.144 Вал А6Г045.142 Втулка А6Г045.146 Втулка А6Г045.147 Корпус А6Г045.160 Патрубок телескопический А6Г045.163 Полукольцо А6Г045.164 Скоба А6Г045.165 Ребро А6Г045.161 Конус А6Г045.162 Обечайка А6Г045.160СБ Патрубок телескопический. Сборочный чертеж А6Г045.150 Электродвигатель А6Г045.170 Воздуховод А6Г045.180 Маслопровод А6Г045.190 Маслопровод А6Г045.173 Захват А6Г045.174 Ушко А6Г045.170СБ Воздуховод. Сборочный чертеж А6Г045.180СБ Маслопровод. Сборочный чертеж А6Г045.190СБ Маслопровод. Сборочный чертеж А6Г045.181 Ниппель А6Г045.182 Гайка накидная А6Г045.191 Труба А6Г045.183 Труба |
| Разработан: | Сантехпроект Госстроя СССР |
| Утверждён: | 08.06.1982 Главпромстройпроект Госстроя СССР (34) |















































































