Скачать Серия 5.904-44 Выпуск 3. Фильтры воздушные. Рабочие чертежиДата актуализации: 01.01.2021
|
| Обозначение: | Серия 5.904-44 |
| Обозначение англ: | Series 5.904-44 |
| Статус: | не определен законодательством |
| Название рус.: | Выпуск 3. Фильтры воздушные. Рабочие чертежи |
| Дата добавления в базу: | 01.09.2013 |
| Дата актуализации: | 01.01.2021 |
| Дата введения: | 20.07.1988 |
| Дата окончания срока действия: | 30.06.2003 |
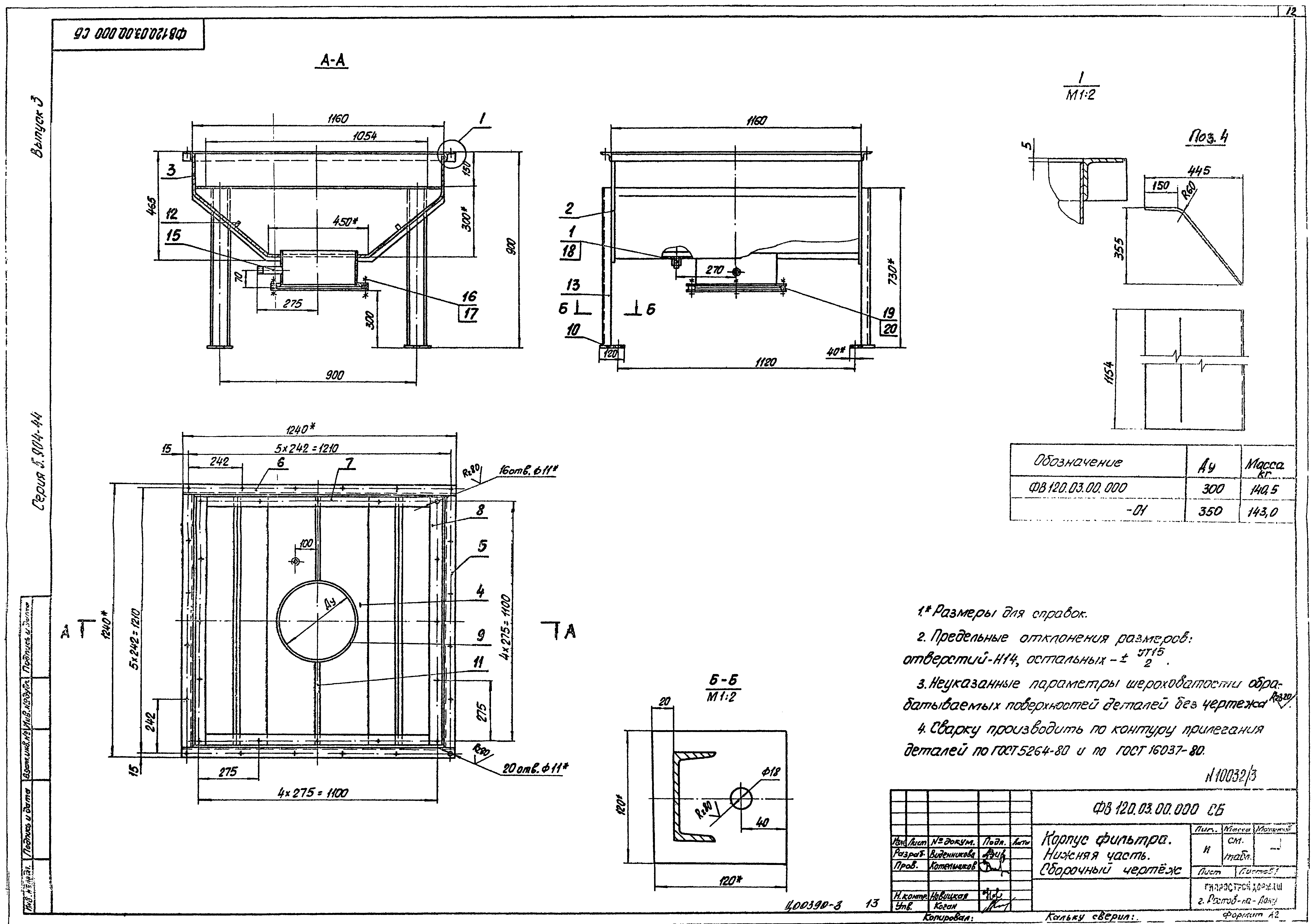
| Оглавление: | Рекомендации по применению ФВ 63.00.00.000 ВС Фильтр воздушный. Ведомость спецификаций ФВ 120.00.00.000 Фильтр воздушный. Спецификация ФВ 120.01.00.000 Дверка фильтра. Спецификация ФВ 120.01.00.005 Ушко ФВ 120.00.00.000 ТО Фильтры воздушные. Техническое описание ФВ 120.00.00.000 ВС Фильтр воздушный. Ведомость спецификаций ФВ 120.00.00.000 ВП Фильтр воздушный. Ведомость покупных изделий ФВ 120.00.00.000 СБ Фильтр воздушный. Сборочный чертеж ФВ 120.01.00.000 СБ Дверка фильтра. Сборочный чертеж ФВ 120.02.00.000 Корпус фильтра. Верхняя часть. Спецификация ФВ 120.02.00.003 Лист боковой ФВ 120.02.00.007 Патрубок ФВ 120.02.00.000 СБ Корпус фильтра. Верхняя часть. Сборочный чертеж ФВ 120.02.00.013 Штуцер ФВ 120.03.00.000 Корпус фильтра. Нижняя часть. Спецификация ФВ 120.03.00.000 СБ Корпус фильтра. Нижняя часть. Сборочный чертеж ФВ 120.03.00.001 Втулка ФВ 120.03.00.002 Лист боковой ФВ 120.03.00.004 Лист нижний ФВ 120.03.00.003 Рамка ФВ 120.04.00.000 Рамка. Спецификация ФВ 120.05.00.000 Щеколда. Спецификация ФВ 120.04.00.000 СБ Рамка. Сборочный чертеж ФВ 120.05.00.000 СБ Щеколда. Сборочный чертеж ФВ 63.00.00.000 Фильтр воздушный. Спецификация ФВ 63.01.00.000 Корпус фильтра. Верхняя часть. Спецификация ФВ 63.00.00.000 СБ Фильтр воздушный. Сборочный чертеж ФВ 63.01.00.000 Корпус фильтра. Верхняя часть. Сборочный чертеж ФВ 63.02.00.000 Корпус фильтра. Нижняя часть. Спецификация ФВ 63.03.00.000 Рамка. Спецификация ФВ 63.02.00.000 СБ Корпус фильтра. Нижняя часть. Сборочный чертеж ФВ 63.00.00.000 ВП Фильтр воздушный. Ведомость покупных изделий ФВ 63.03.00.000 СБ Рамка. Сборочный чертеж ФВ 63.02.00.002 Лист нижний ФВ 24.00.00.000 Фильтр воздушный. Спецификация ФВ 24.01.00.000 Дверка фильтра. Спецификация ФВ 24.02.00.000 Корпус фильтра. Верхняя часть. Спецификация ФВ 24.00.00.000 ВС Фильтр воздушный. Ведомость спецификаций ФВ 24.00.00.000 ВП Фильтр воздушный. Ведомость покупных изделий ФВ 24.00.00.000 СБ Фильтр воздушный. Сборочный чертеж ФВ 24.01.00.000 СБ Дверка фильтра. Сборочный чертеж ФВ 24.03.00.009 Обрамление ФВ 24.02.00.000 СБ Корпус фильтра. Верхняя часть. Сборочный чертеж ФВ 24.03.00.000 Корпус фильтра. Нижняя часть. Спецификация ФВ 24.04.00.000 Рамка. Спецификация ФВ 24.04.00.000 СБ Рамка. Сборочный чертеж ФВ 24.03.00.000 СБ Корпус фильтра. Нижняя часть. Сборочный чертеж |
| Разработан: | Гипростройдормаш |
| Утверждён: | 20.07.1988 Минстройдормаш (Minstroydormash 346) |




























