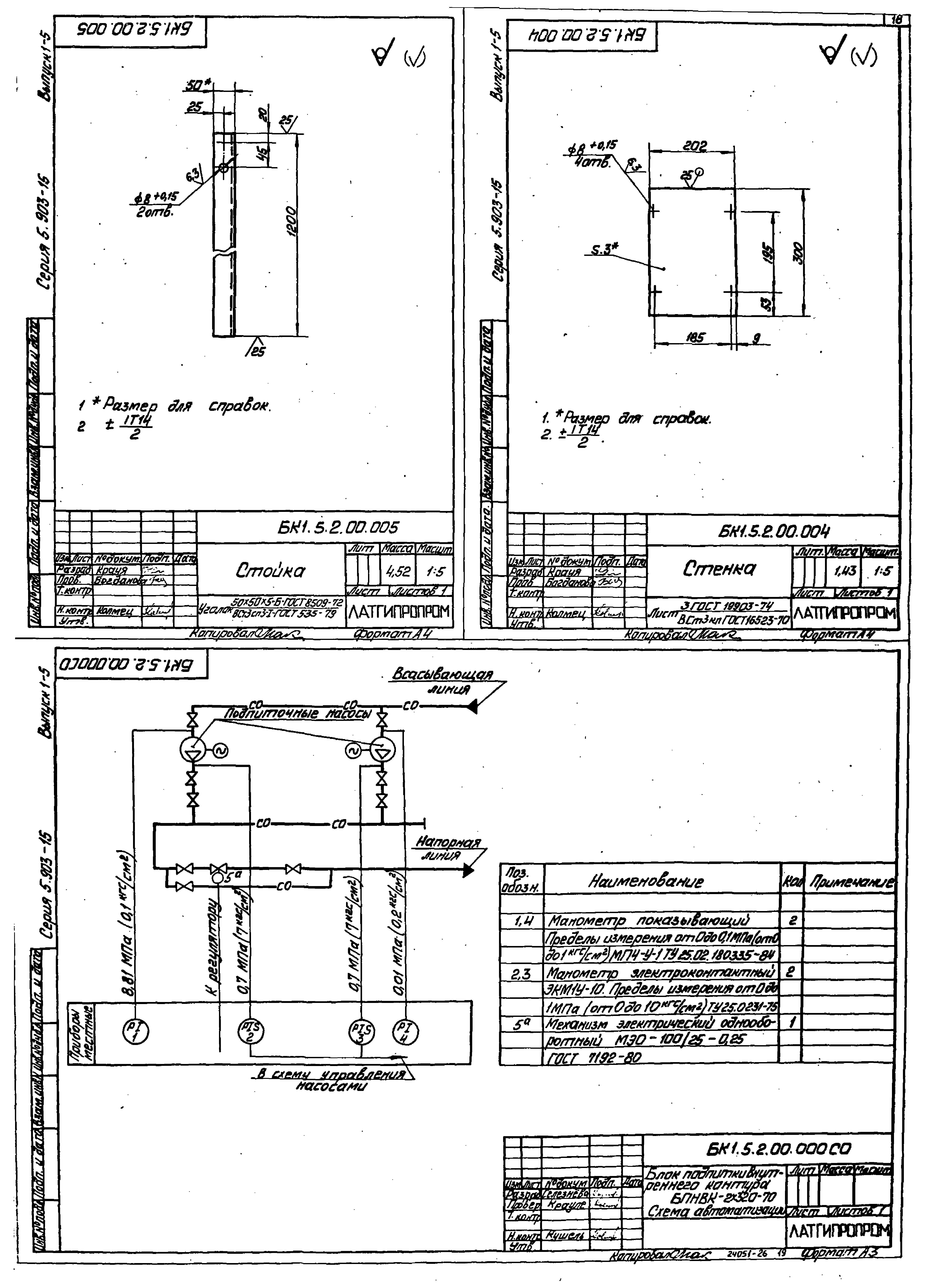
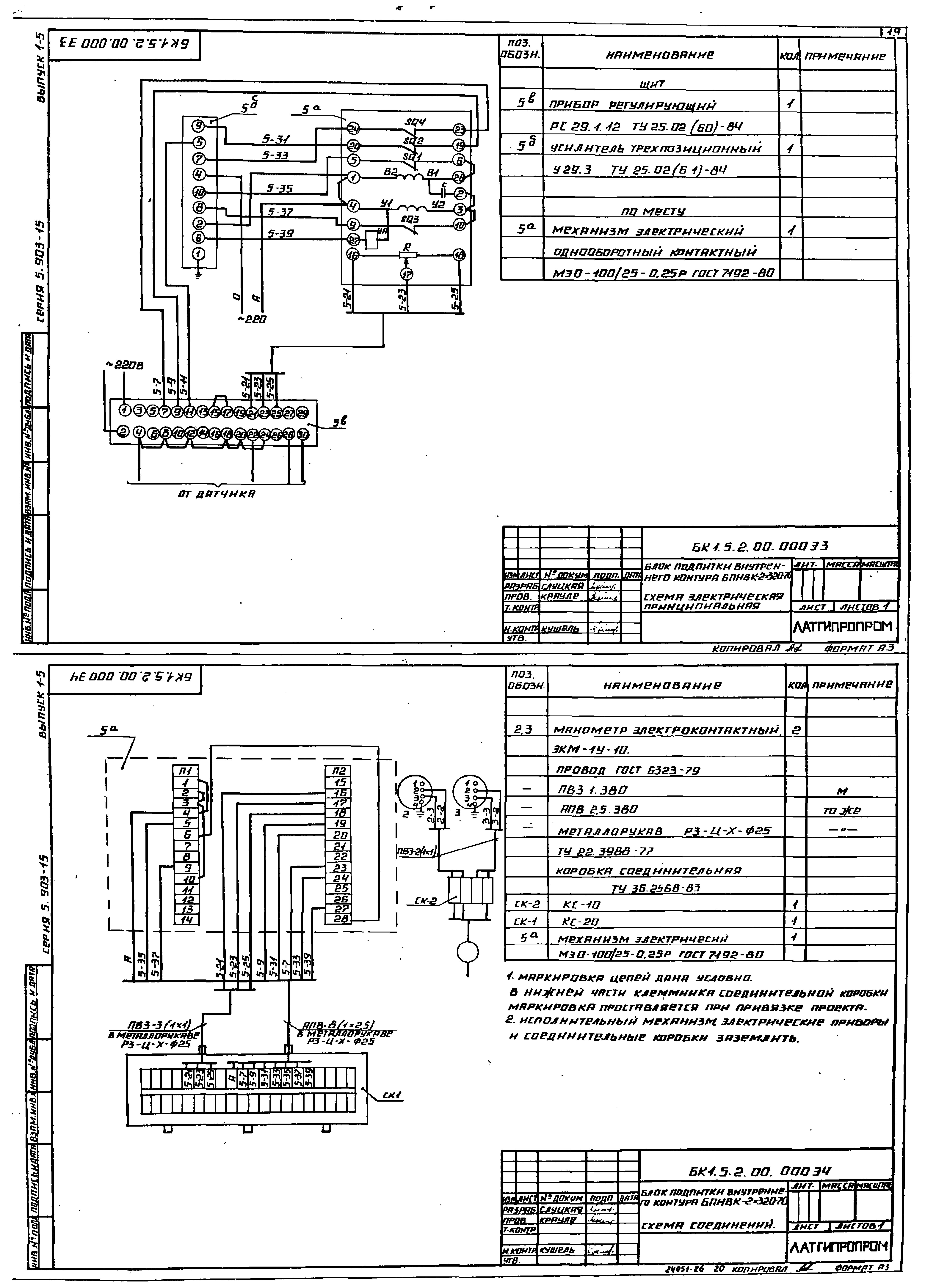
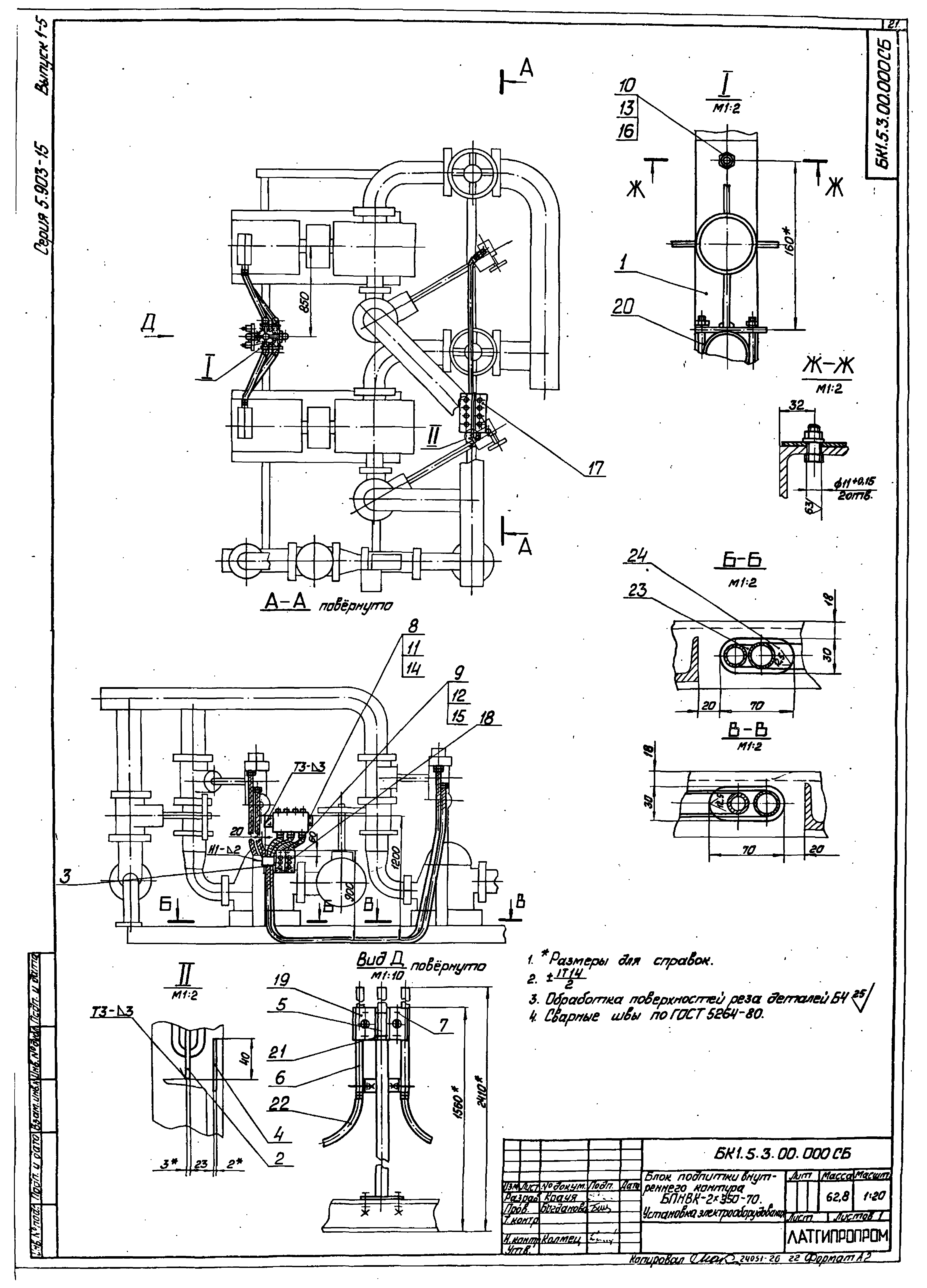
Скачать Серия 5.903-15 Выпуск 1-5. Блок подпитки внутреннего контура БПНВК-2х320-70. Рабочие чертежиДата актуализации: 01.01.2021 Серия 5.903-15
Выпуск 1-5. Блок подпитки внутреннего контура БПНВК-2х320-70. Рабочие чертежи| Обозначение: | Серия 5.903-15 | | Обозначение англ: | Series 5.903-15 | | Статус: | не определен законодательством | | Название рус.: | Выпуск 1-5. Блок подпитки внутреннего контура БПНВК-2х320-70. Рабочие чертежи | | Дата добавления в базу: | 01.09.2013 | | Дата актуализации: | 01.01.2021 | | Дата введения: | 01.01.1990 | | Дата окончания срока действия: | 30.06.2003 | | Разработан: | Латгипропром
| | Утверждён: | 22.11.1989 ММСС СССР
|
                         
|