Скачать Серия 5.903-15 Выпуск 3-5. Блок рециркуляционных насосов БРН-3х250-32. Рабочие чертежиДата актуализации: 01.01.2021
|
| Обозначение: | Серия 5.903-15 |
| Обозначение англ: | Series 5.903-15 |
| Статус: | не определен законодательством |
| Название рус.: | Выпуск 3-5. Блок рециркуляционных насосов БРН-3х250-32. Рабочие чертежи |
| Дата добавления в базу: | 01.09.2013 |
| Дата актуализации: | 01.01.2021 |
| Дата введения: | 01.01.1990 |
| Дата окончания срока действия: | 30.06.2003 |
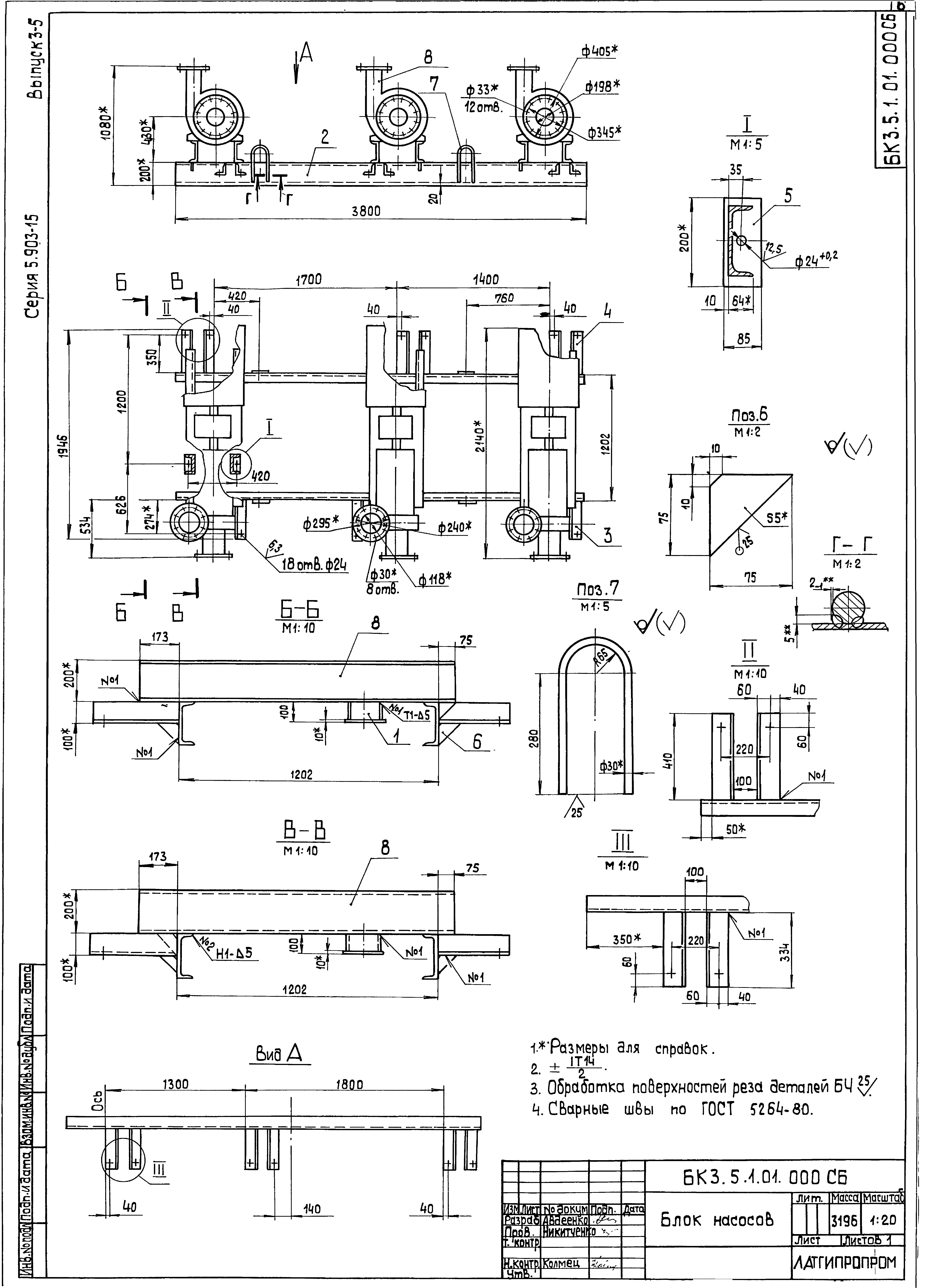
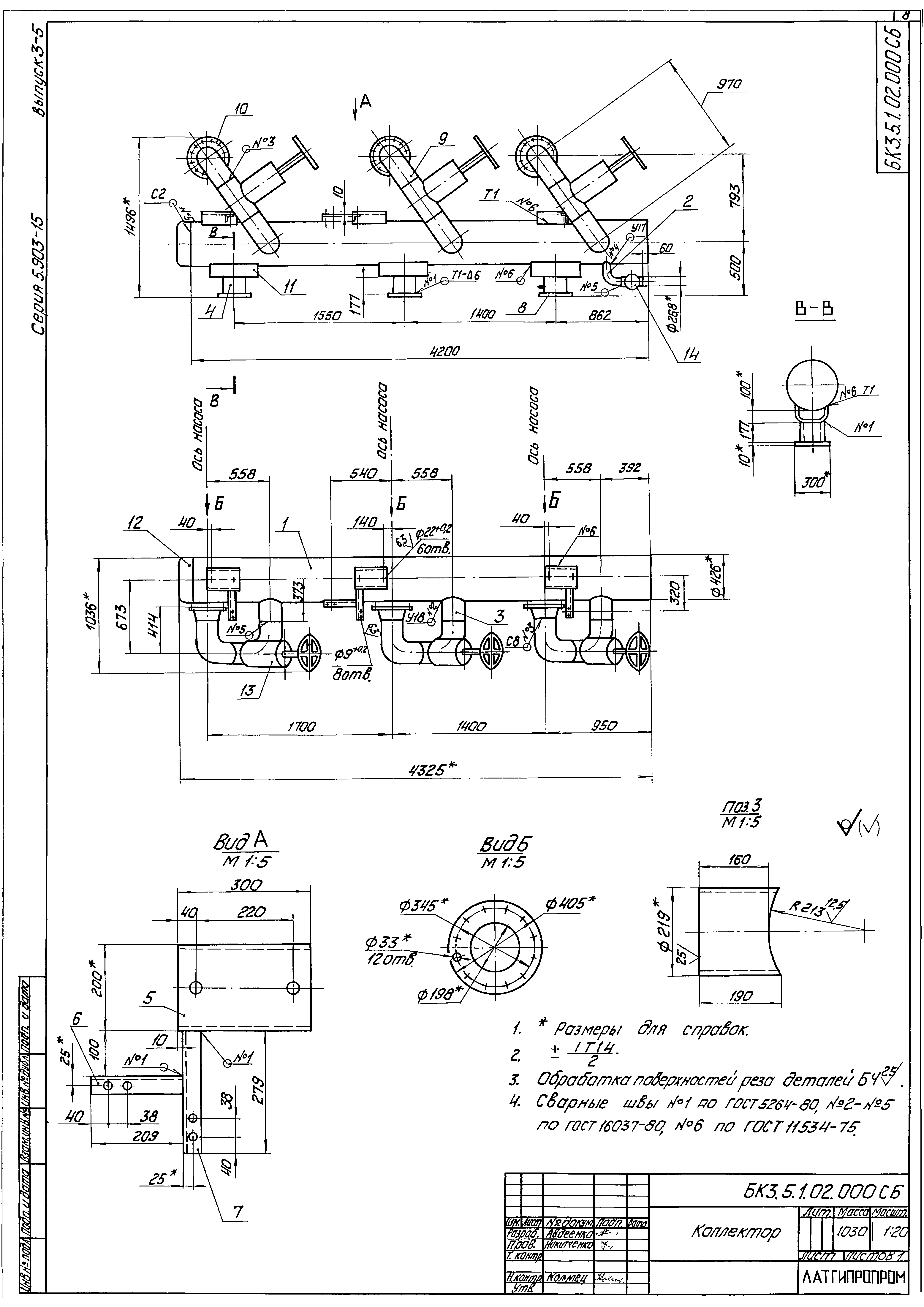
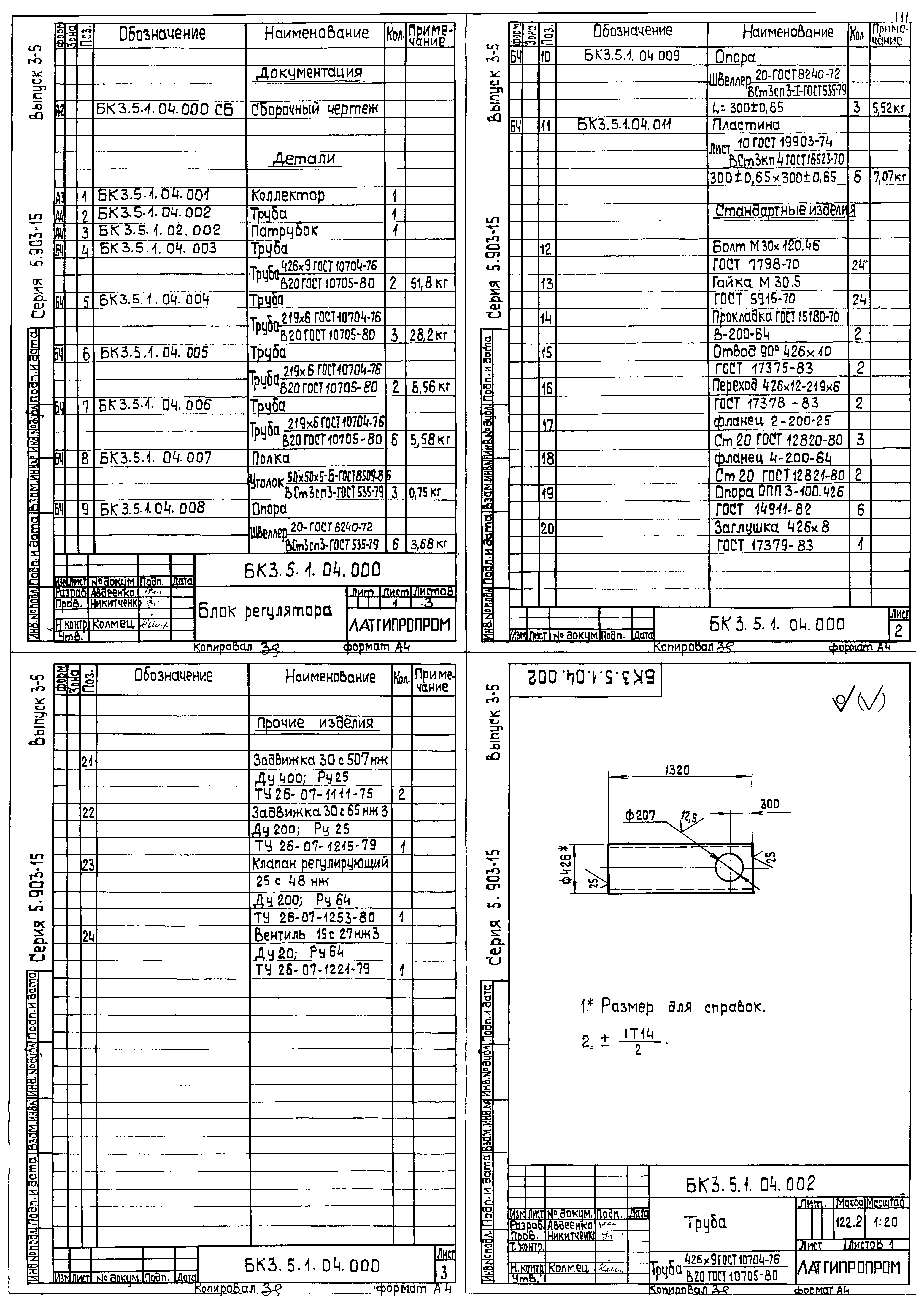
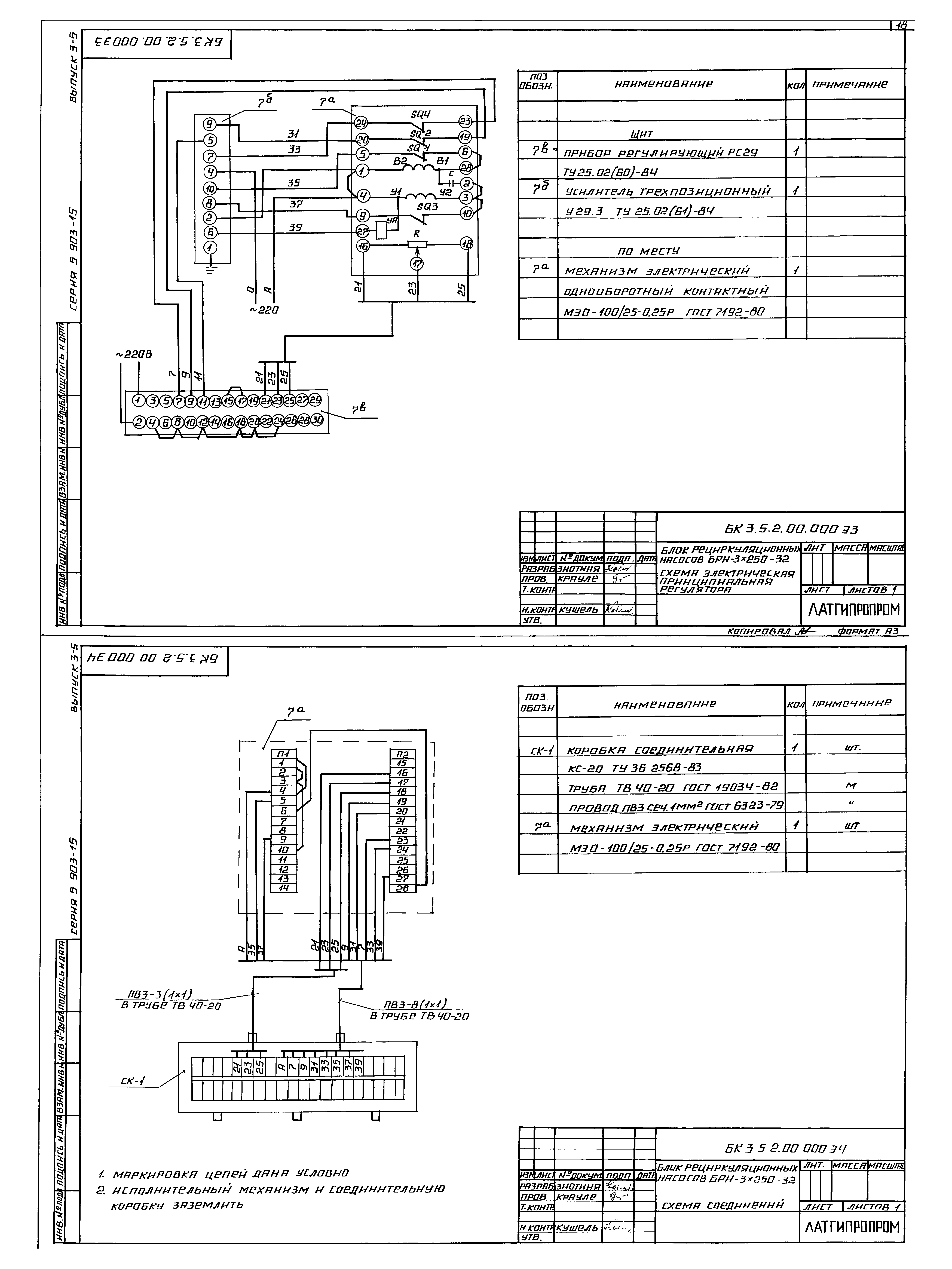
| Оглавление: | Блок Рециркуляционных насосов БРН-3х250-32 БК3.5.1.00.000 Блок БРН-3х250-32 БК3.5.1.00.000 Г3 Блок БРН-3х250-32. Схема принципиальная БК3.5.1.00.000 СБ Блок БРН-3х250-32 БК3.5.1.00.001 Планка БК3.5.1.01.000 Блок насосов БК3.5.1.01.000 СБ Блок насосов БК3.5.1.01.000 Блок насосов БК3.5.1.02.000 Коллектор БК3.5.1.02.001 Коллектор БК3.5.1.02.000 СБ Коллектор БК3.5.1.02.002 Патрубок БК3.5.1.03.000 Колено БК3.5.1.03.001 Труба БК3.5.1.03.000 СБ Колено БК3.5.1.04.000 Блок регулятора БК3.5.1.04.002 Труба БК3.5.1.04.000 СБ Блок регулятора БК3.5.1.04.001 Коллектор БК3.5.1.05.000 Трубопровод БК1.2.1.11.001 Воронка БК 3.5.1.05.000 СБ Трубопровод БК3.5.1.05.001 Труба БК3.5.1.05.002 Труба БК3.5.1.06.000 Опора БК3.5.1.06.000 СБ Опора Установка приборов контроля м автоматизации блока БРН-3х250-32 БК3.5.2.00.000 Блок БРН-3х250-32. Установка приборов контроля и автоматизации БК3.5.2.00.000 СБ Блок БРН-3х250-32. Установка приборов контроля и автоматизации БК3.5.2.00.000 Э3 Блок БРН-3х250-32. Установка приборов контроля и автоматизации БК3.5.2.00.000 Э4 Блок БРН-3х250-32. Схема соединений БК3.3.2.00.001 Тяга БК3.3.2.00.002 Шильник БК3.3.2.01.000 Вилка БК3.3.2.01.000 СБ Вилка БК3.5.2.02.000 Основание БК3.5.2.02.000 СБ Основание БК3.3.2.03.000 Тяга БК3.3.2.03.000 СБ Тяга БК3.3.2.04.000 Стрелка БК3.3.2.04.000 СБ Стрелка Установка электрообуродования блока БРН-3х250-32 БК3.5.3.00.000 Блок БРН-3Х250-32.Установка электрооборудования БК3.5.3.00.000 СБ Блок БРН-3Х250-32.Установка электрооборудования БК3.5.3.01.000 Штатив БК3.5.3.01.000 СБ Штатив Теплоизоляция блока БРН-3Х250-32 БК3.5.4.00.000 ТИ Блок БРН-3Х250-32. Ведомость теплоизоляционных конструкций БК3.5.4.00.000 ВМ Блок БРН-3Х250-32. Ведомость теплоизоляционных материалов БК3.5.4.00.000 ВО Блок БРН-3Х250-32. Ведомость объемов теплоизоляционных работ |
| Разработан: | Латгипропром |
| Утверждён: | 22.11.1989 ММСС СССР |
























