Скачать Серия 5.903-15 Выпуск 5-0. Блоки тягодутьевых машин. Указания по применению и изготовлениюДата актуализации: 01.01.2021
|
| Обозначение: | Серия 5.903-15 |
| Обозначение англ: | Series 5.903-15 |
| Статус: | не определен законодательством |
| Название рус.: | Выпуск 5-0. Блоки тягодутьевых машин. Указания по применению и изготовлению |
| Дата добавления в базу: | 01.10.2014 |
| Дата актуализации: | 01.01.2021 |
| Дата введения: | 22.11.1989 |
| Дата окончания срока действия: | 30.06.2003 |
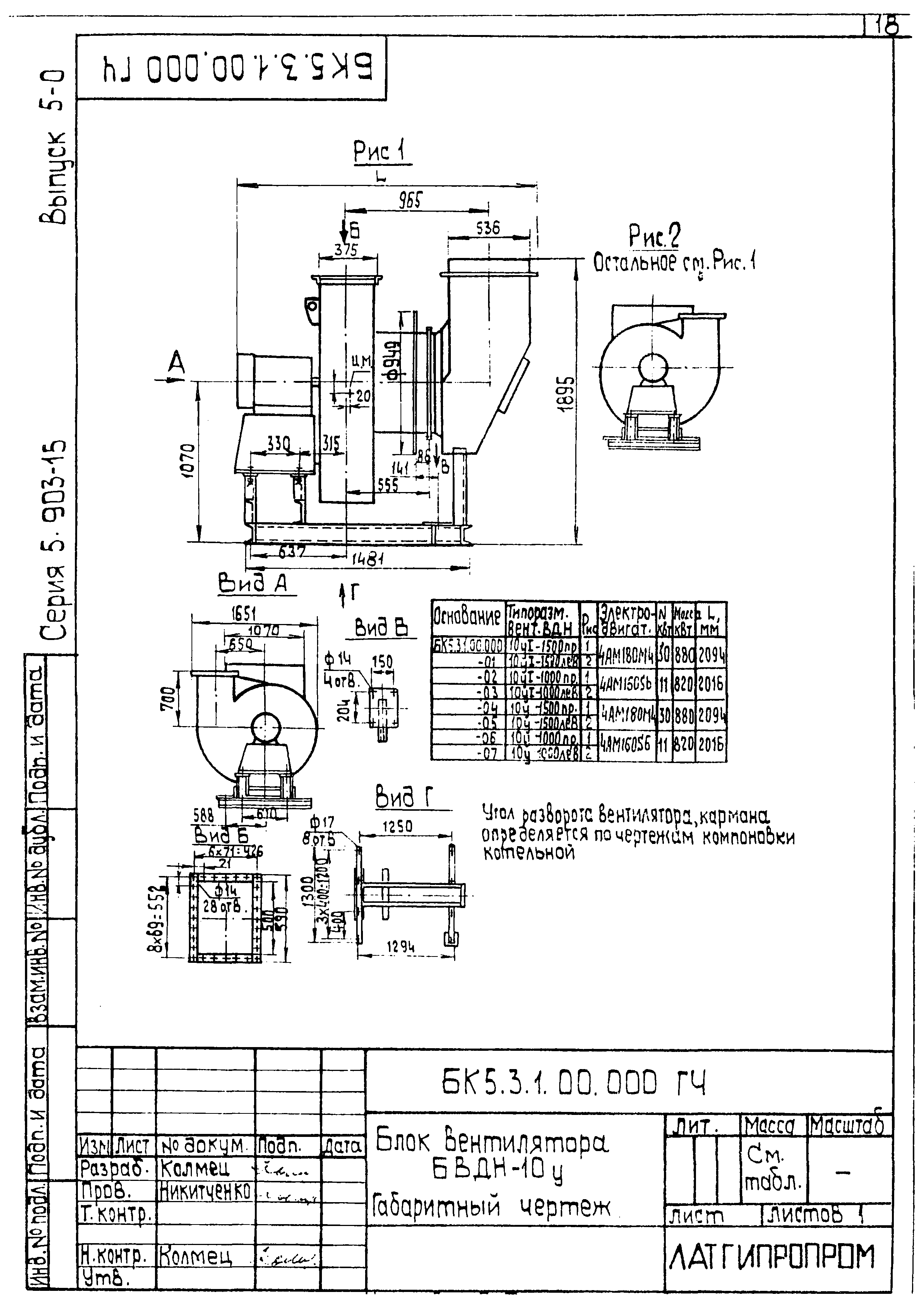
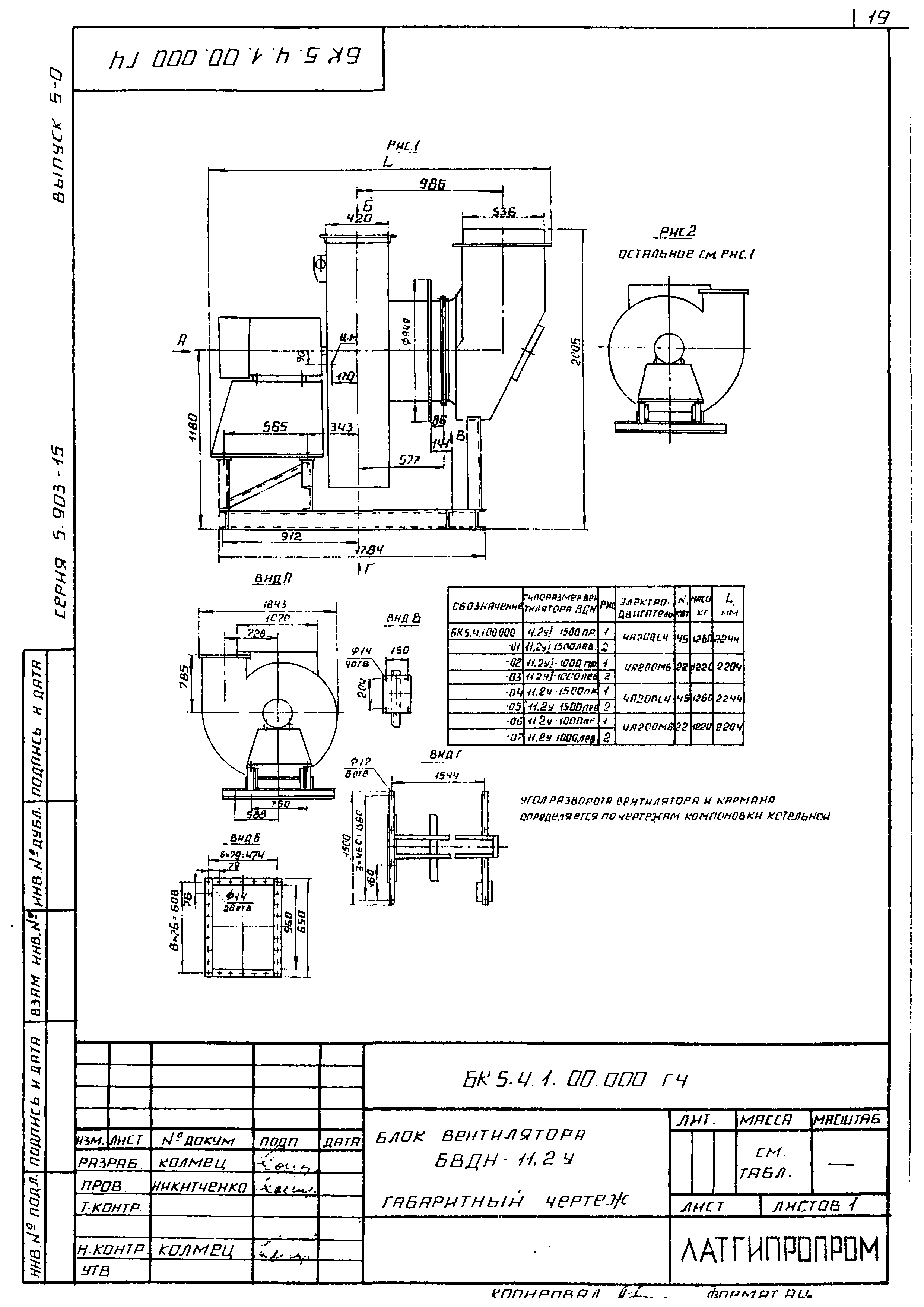
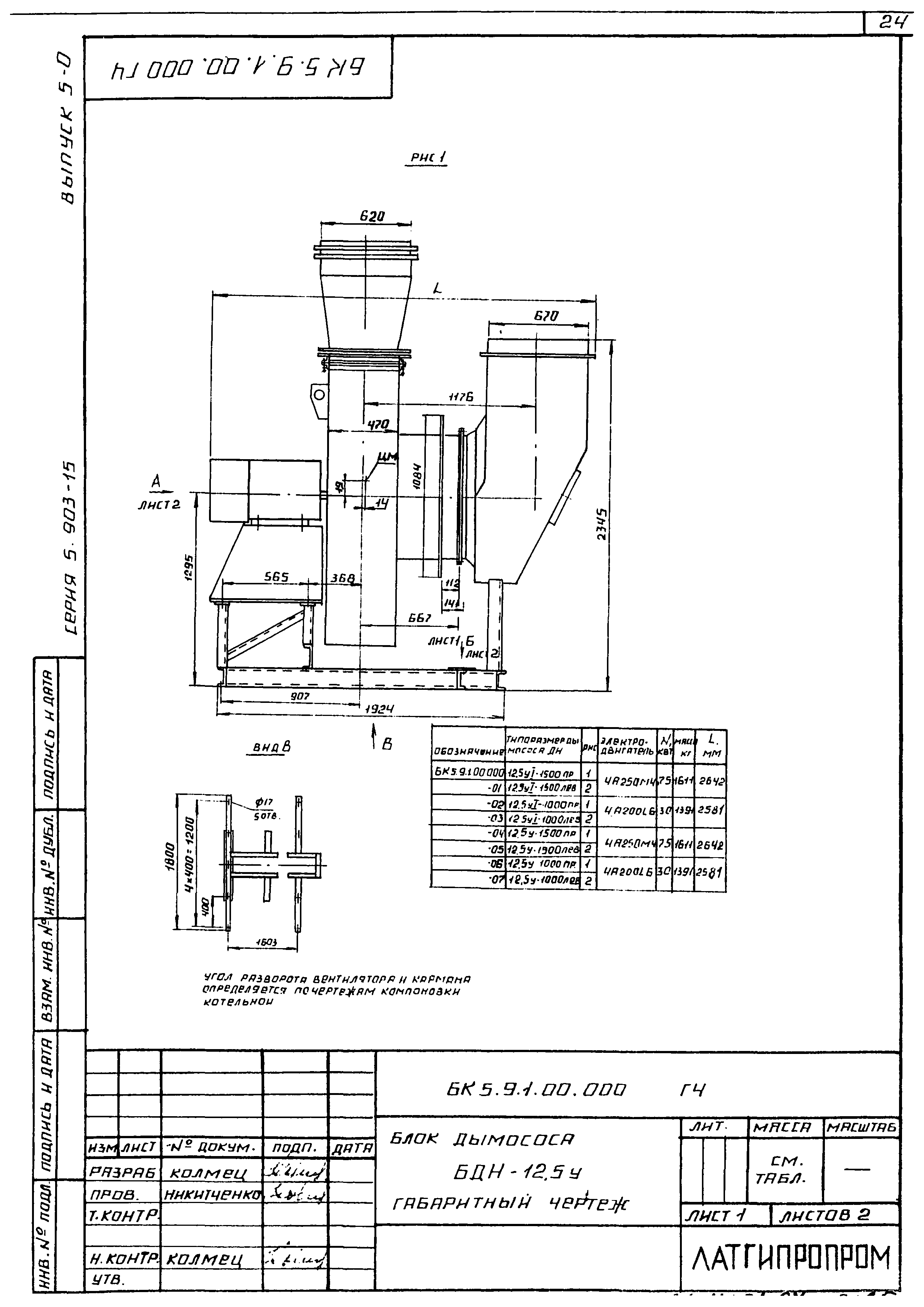
| Оглавление: | Содержание альбома Опись альбома Указания по применению и изготовлению 1. Общая часть 2. Назначение и описание конструкций 3. Рекомендации для подбора 4. Требования к транспортировке 5. Требования к оборудованию и материалам 6. Требования к сборке блока Приложение 1. Блок вентилятора БВДН-8у. Габаритный чертеж Приложение 2. Блок вентилятора БВДН-9у. Габаритный чертеж Приложение 3. Блок вентилятора БВДН-10у. Габаритный чертеж Приложение 4. Блок вентилятора БВДН-11,2у. Габаритный чертеж Приложение 5. Блок вентилятора БВДН-12,5у. Габаритный чертеж Приложение 6. Блок вентилятора БДН-9у. Габаритный чертеж Приложение 7. Блок вентилятора БДН-10у. Габаритный чертеж Приложение 8. Блок вентилятора БДН-11,2у. Габаритный чертеж Приложение 9. Блок вентилятора БДН-12,5у. Габаритный чертеж Лист регистрации изменений |
| Разработан: | Латгипропром |
| Утверждён: | 22.11.1989 ММСС СССР |


























