Скачать Серия 5.903-15 Выпуск 5-3. Блок вентилятора БВДН-10у. Рабочие чертежиДата актуализации: 01.01.2021
|
| Обозначение: | Серия 5.903-15 |
| Обозначение англ: | Series 5.903-15 |
| Статус: | не определен законодательством |
| Название рус.: | Выпуск 5-3. Блок вентилятора БВДН-10у. Рабочие чертежи |
| Дата добавления в базу: | 01.09.2013 |
| Дата актуализации: | 01.01.2021 |
| Дата введения: | 01.01.1990 |
| Дата окончания срока действия: | 30.06.2003 |
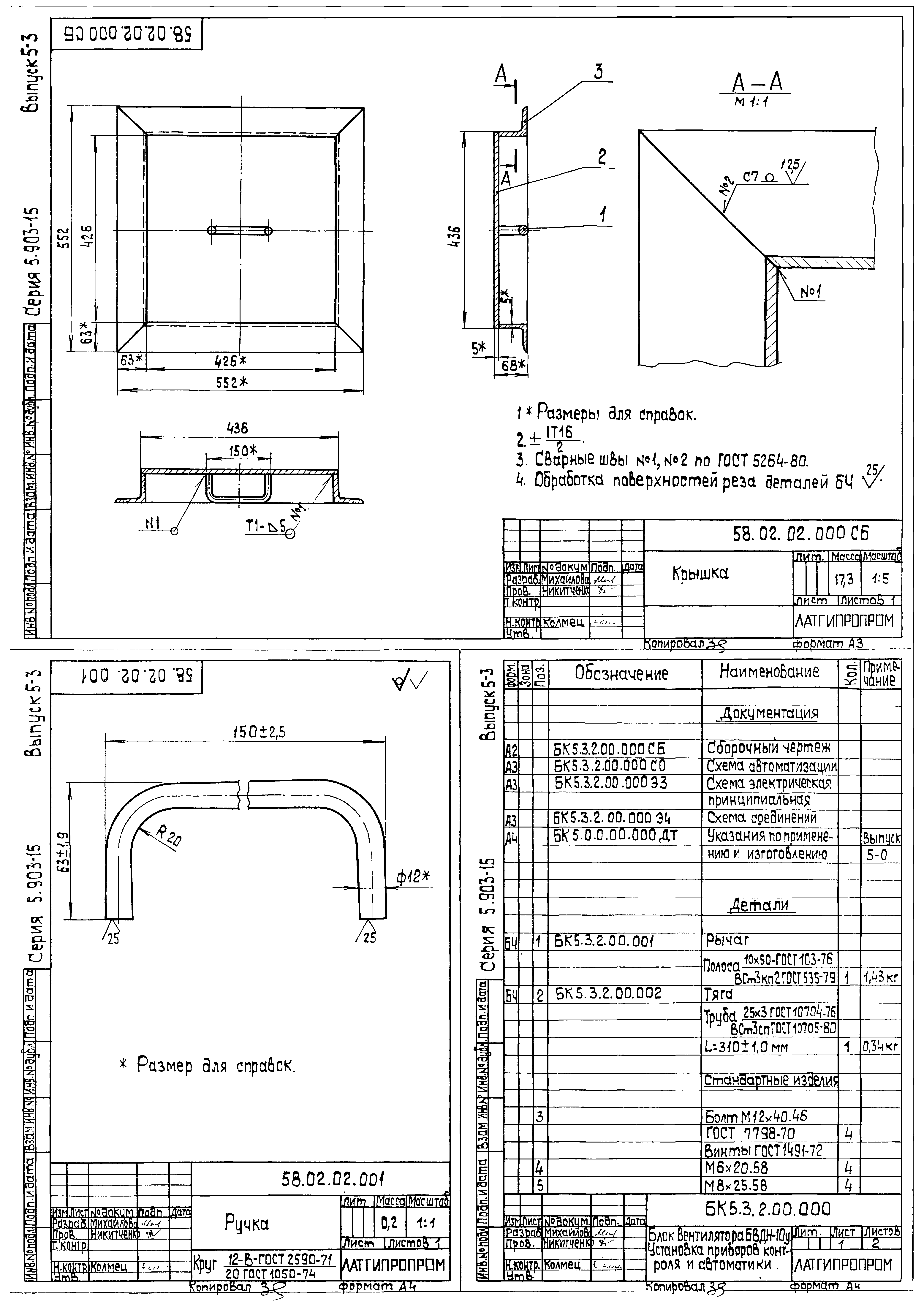
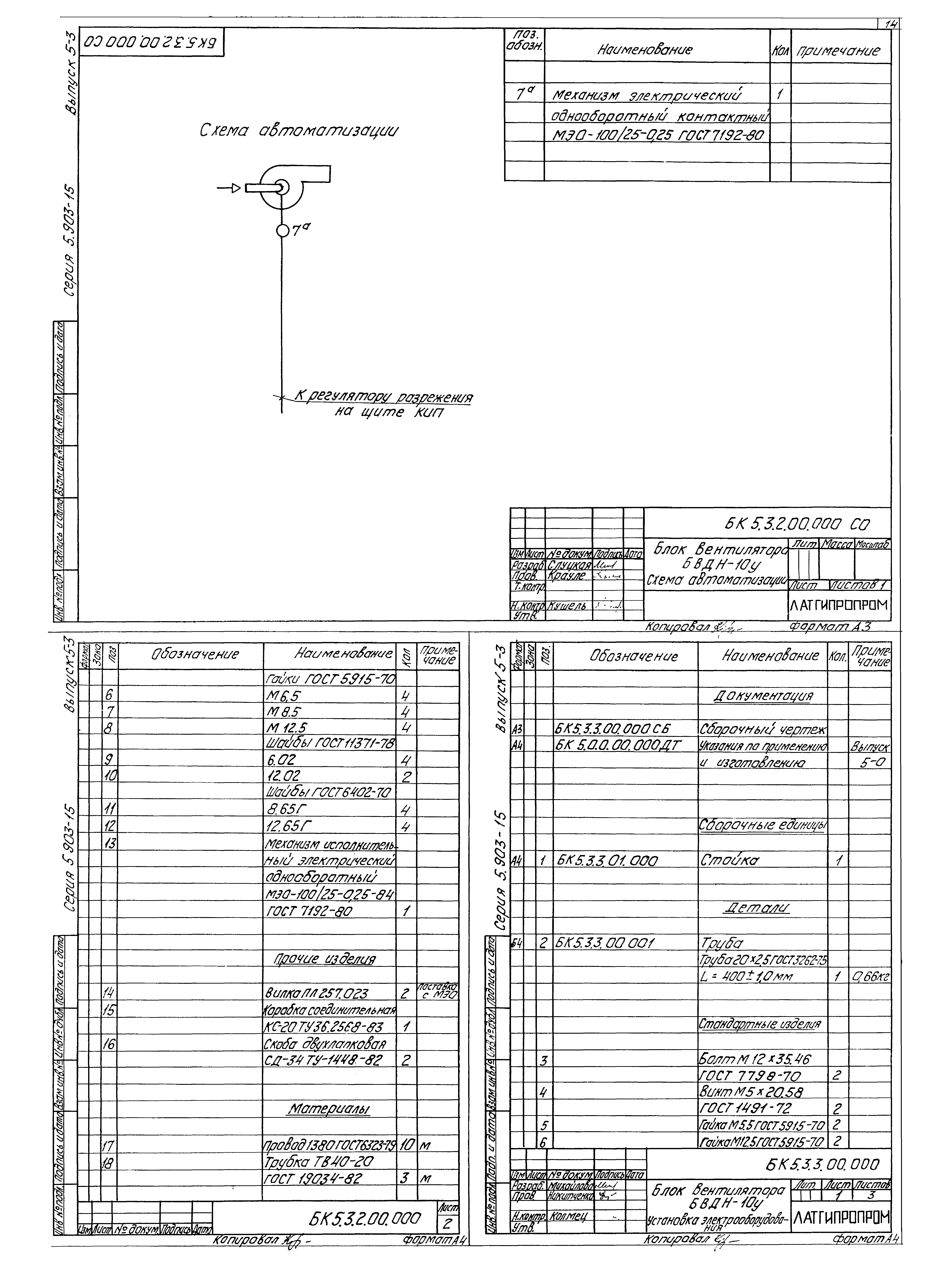
| Оглавление: | Блок вентилятора БВДН-10у БК5.3.1.00.000 Блок вентилятора БВДН-10у БК5.3.1.00.000 СБ Блок вентилятора БВДН-10у БК5.3.1.00.000 Блок вентилятора БВДН-10у БК5.3.1.01.000 Рама 64.30.02.000 Карман БК5.3.1.01.000 СБ Рама 64.30.02.000 СБ Карман 64.30.02.001 Стенка 64.30.02.002 Стенка 64.30.02.003 Полуконус 64.30.02.004 Фланец 64.30.02.005 Боковина 64.30.02.006 Конус 64.30.02.007 Удлинитель 58.02.00.000 Люк лаза 58.02.00.000 СБ Люк лаза 58.02.00.001 Прокладка 58.02.01.000 Фланец 58.02.01.000 СБ Фланец 58.02.02.000 Крышка 58.02.02.000 СБ Крышка 58.02.02.001 Ручка Установка приборов контроля и автоматики блока вентилятора БВДН-10у БК5.3.2.00.000 Блок вентилятора БВДН-10у. Установка приборов контроля и автоматики БК5.3.2.00.000 СБ Блок вентилятора БВДН-10у. Установка приборов контроля и автоматики БК5.3.2.00.000 Э3 Блок вентилятора БВДН-10у. Схема электрическая принципиальная управления БК5.3.2.00.000 Э4 Блок вентилятора БВДН-10у. Схема соединений БК5.3.2.00.000 С0 Блок вентилятора БВДН-10у. Схема автоматизации БК5.3.2.00.000 Блок вентилятора БВДН-10у. Установка приборов контроля и автоматики Установка электрооборудования блока вентилятора БВДН-10у БК5.3.300.000 Блок вентилятора БВДН-10у. Установка электрооборудования БК5.3.3.00.000 СБ Блок вентилятора БВДН-10у. Установка электрооборудования БК5.3.3.01.000 Стойка БК5.3.3.01.000 СБ Стойка |
| Разработан: | Латгипропром |
| Утверждён: | 22.11.1989 ММСС СССР |
















