Скачать Серия 5.903-15 Выпуск 5-6. Блок дымососа БДН-9у. Рабочие чертежиДата актуализации: 01.01.2021
|
| Обозначение: | Серия 5.903-15 |
| Обозначение англ: | Series 5.903-15 |
| Статус: | не определен законодательством |
| Название рус.: | Выпуск 5-6. Блок дымососа БДН-9у. Рабочие чертежи |
| Дата добавления в базу: | 01.09.2013 |
| Дата актуализации: | 01.01.2021 |
| Дата введения: | 01.01.1990 |
| Дата окончания срока действия: | 30.06.2003 |
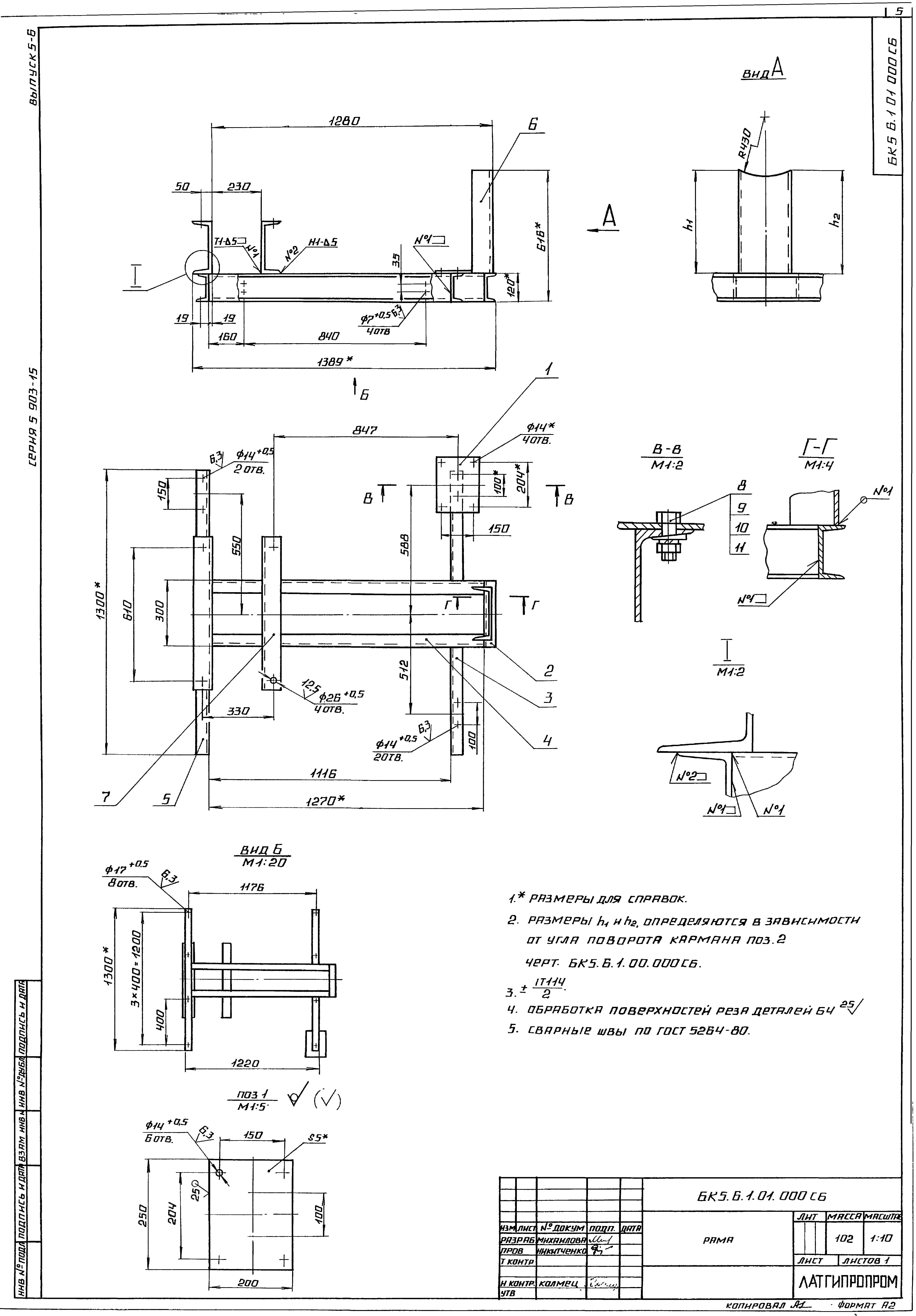
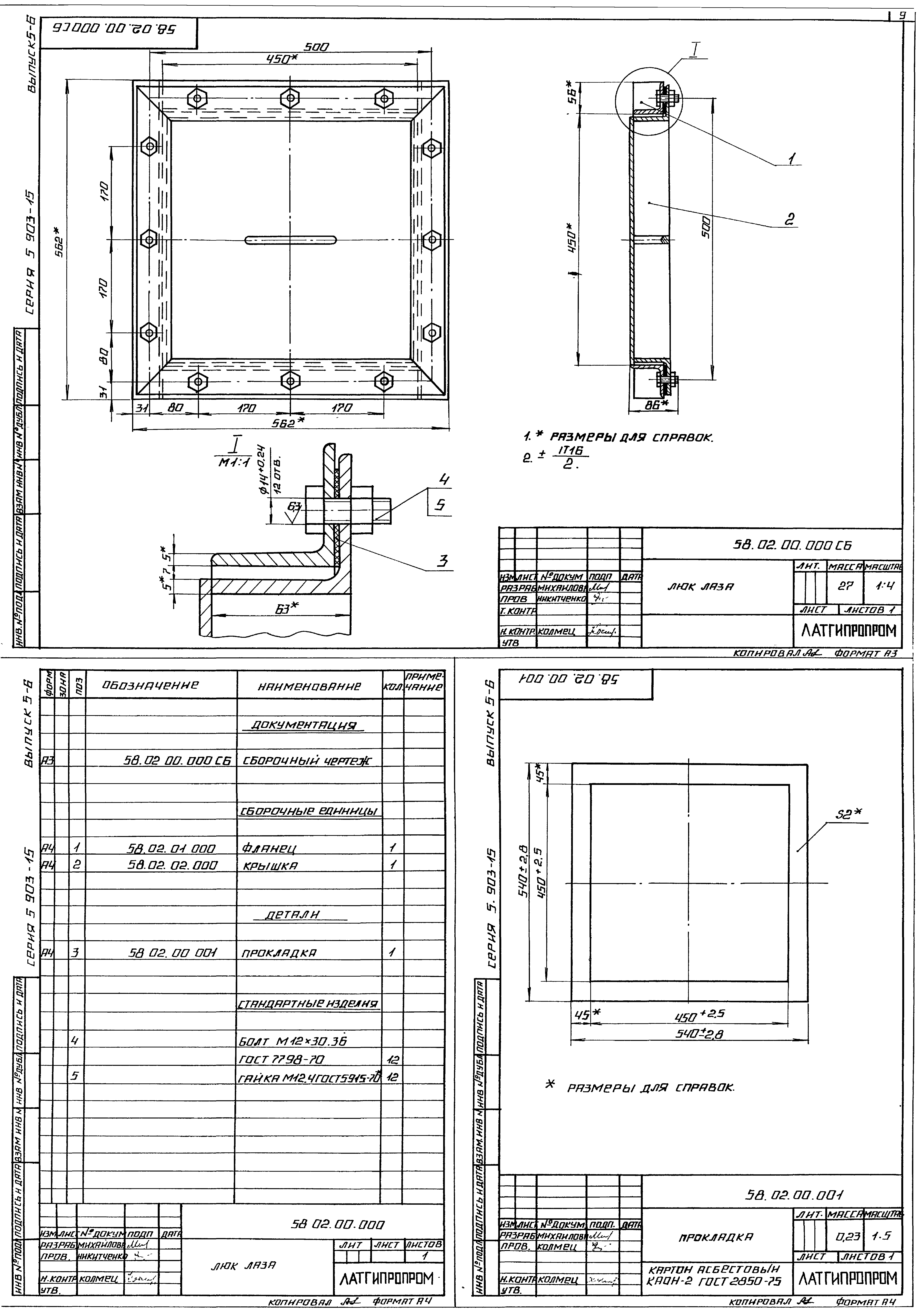
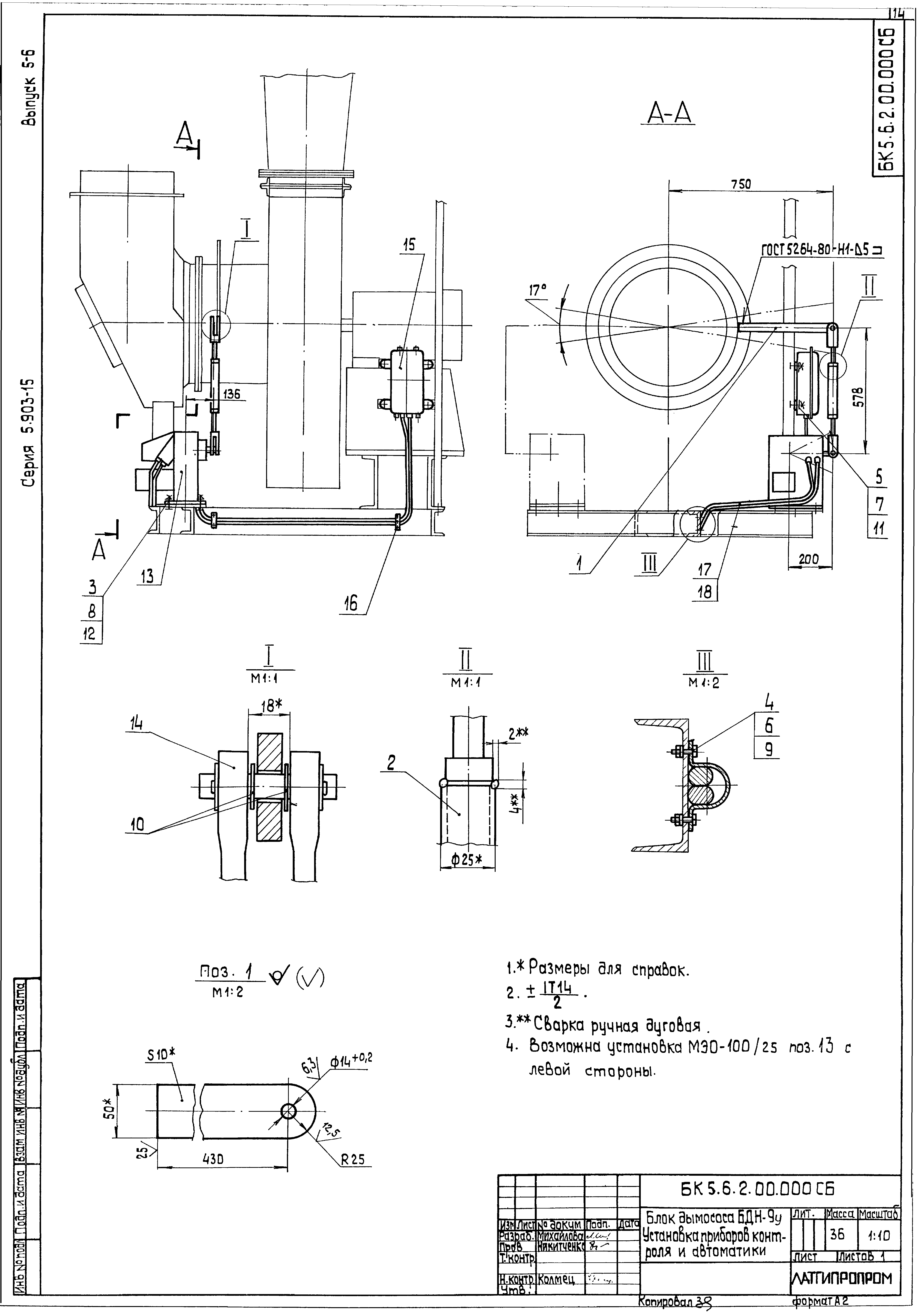
| Оглавление: | Блок дымососа БДН-9у БК5.6.1.00.000 Блок дымососа БДН-9у БК5.6.1.00.000 СБ Блок дымососа БДН-9у БК5.6.1.00.000 Блок дымососа БДН-9у БК5.6.1.01.000 Рама 65.29.01.000 Карман БК5.6.1.01.000 СБ Рама 65.29.01.000 СБ Карман 65.29.01.001 Боковина 65.29.01.003 Стенка 65.29.01.004 Полуконус 65.29.01.005 Конус 65.29.01.002 Стенка 65.29.01.006 Удлинитель 65.29.01.007 Фланец 58.02.00.000 Люк лаза 58.02.00.000 СБ Люк лаза 58.02.00.001 Прокладка 58.02.01.000 Фланец 58.02.01.000 СБ Фланец 58.02.02.000 Крышка 58.02.02.01 Ручка 58.02.02.000 СБ Крышка БК5.6.1.02.000 Переход БК5.6.1.02.100 Переход БК5.6.1.02.000 СБ Переход БК5.6.1.02.100 СБ Переход Установка приборов контроля и автоматики блока БДН-9у БК5.6.2.00.000 Блок дымососа БДН-9у. Установка приборов контроля и автоматики БК5.6.2.00.000 СО Блок дымососа БДН-9у. Схема автоматизации БК5.6.2.00.000 СБ Блок дымососа БДН-9у. Установка приборов контроля и автоматики БК5.6.2.00.000 Э3 Блок дымососа БДН-9у. Схема электрическая принципиальная регулятора БК5.6.2.00.000 Э4 Блок дымососа БДН-9у. Схема соединений Установка электрооборудования блока БДН-9у БК5.6.3.00.000 Блок дымососа БДН-9у. Установка электрооборудования БК5.6.3.00.000 СБ Блок дымососа БДН-9у. Установка электрооборудования БК5.2.3.01.00 Стойка БК5.2.3.01.00 СБ Стойка |
| Разработан: | Латгипропром |
| Утверждён: | 22.11.1989 ММСС СССР |

















