Скачать Серия 5.903-15 Выпуск 5-7. Блок дымососа БДН-10у. Рабочие чертежиДата актуализации: 01.01.2021
|
| Обозначение: | Серия 5.903-15 |
| Обозначение англ: | Series 5.903-15 |
| Статус: | не определен законодательством |
| Название рус.: | Выпуск 5-7. Блок дымососа БДН-10у. Рабочие чертежи |
| Дата добавления в базу: | 01.09.2013 |
| Дата актуализации: | 01.01.2021 |
| Дата введения: | 01.01.1990 |
| Дата окончания срока действия: | 30.06.2003 |
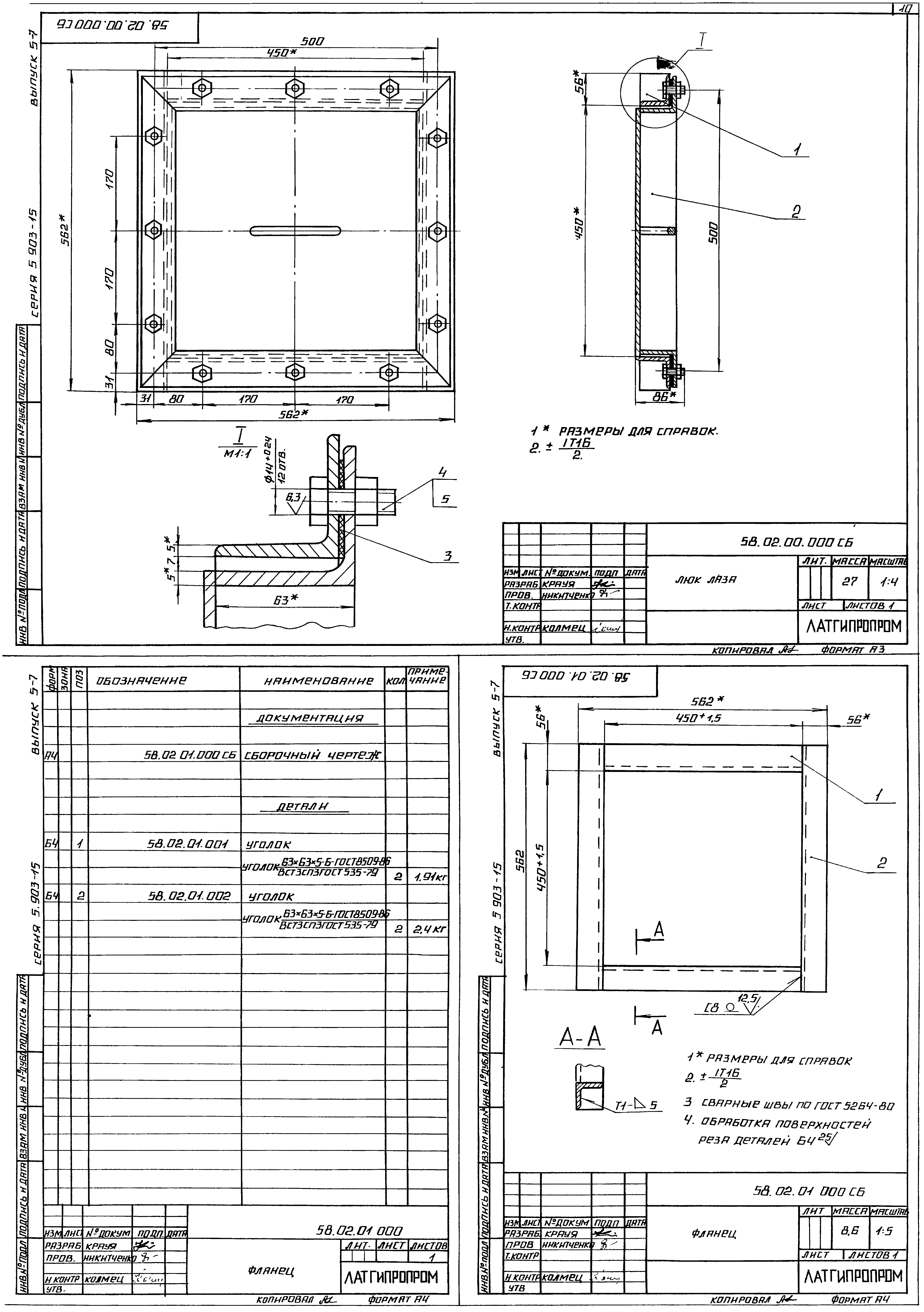
| Оглавление: | Блок дымососа БДН-10у БК5.7.1.00.000 Блок дымососа БДН-10у БК5.7.1.00.000 СБ Блок дымососа БДН-10у БК5.7.1.00.000 Блок дымососа БДН-10у БК5.3.1.01.000 Рама БК5.3.1.01.000 СБ Рама 65.29.02.000 Карман 65.29.02.000 СБ Карман 65.29.02.004 Фланец 65.29.02.001 Стенка 65.29.02.002 Стенка 65.29.02.003 Полуконус 65.29.02.005 Боковина 65.29.02.006 Конус 65.29.02.007 Удлинитель 58.02.00.001 Люк лаза 58.02.00.001 СБ Люк лаза 58.02.01.000 Фланец 58.02.01.000 СБ Фланец 58.02.02.000 Крышка 58.02.02.001 Ручка 58.02.02.000 СБ Крышка БК5.7.1.01.000 СБ Переход БК5.7.1.01.100 СБ Переход БК5.7.1.01.000 Переход Установка приборов контроля и автоматики блока БДН-10у БК5.7.2.00.000 Блок дымососа БДН-10у. Установка приборов контроля и автоматики БК5.7.2.00.000 СО Блок дымососа БДН-10у. Схема автоматизации БК5.7.2.00.000 СБ Блок дымососа БДН-10у. Установка приборов контроля и автоматики БК5.7.2.00.000 Э3 Блок дымососа БДН-10у. Схема электрическая принципиальная регулятора БК5.7.2.00.000 Э4 Блок дымососа БДН-10у. Схема соединений Установка электрооборудования блока БДН-10у БК5.7.3.00.000 Блок дымососа БДН-10у. Установка электрооборудования БК5.3.3.01.000 Стойка БК5.7.3.00.000 СБ Блок дымососа БДН-10у. Установка электрооборудования БК5.3.3.01.000 СБ Стойка |
| Разработан: | Латгипропром |
| Утверждён: | 22.11.1989 ММСС СССР |

















