Скачать Серия 5.903-15 Выпуск 5-9. Блок дымососа БДН-12,5у. Рабочие чертежиДата актуализации: 01.01.2021
|
| Обозначение: | Серия 5.903-15 |
| Обозначение англ: | Series 5.903-15 |
| Статус: | не определен законодательством |
| Название рус.: | Выпуск 5-9. Блок дымососа БДН-12,5у. Рабочие чертежи |
| Дата добавления в базу: | 01.10.2014 |
| Дата актуализации: | 01.01.2021 |
| Дата введения: | 22.11.1989 |
| Дата окончания срока действия: | 30.06.2003 |
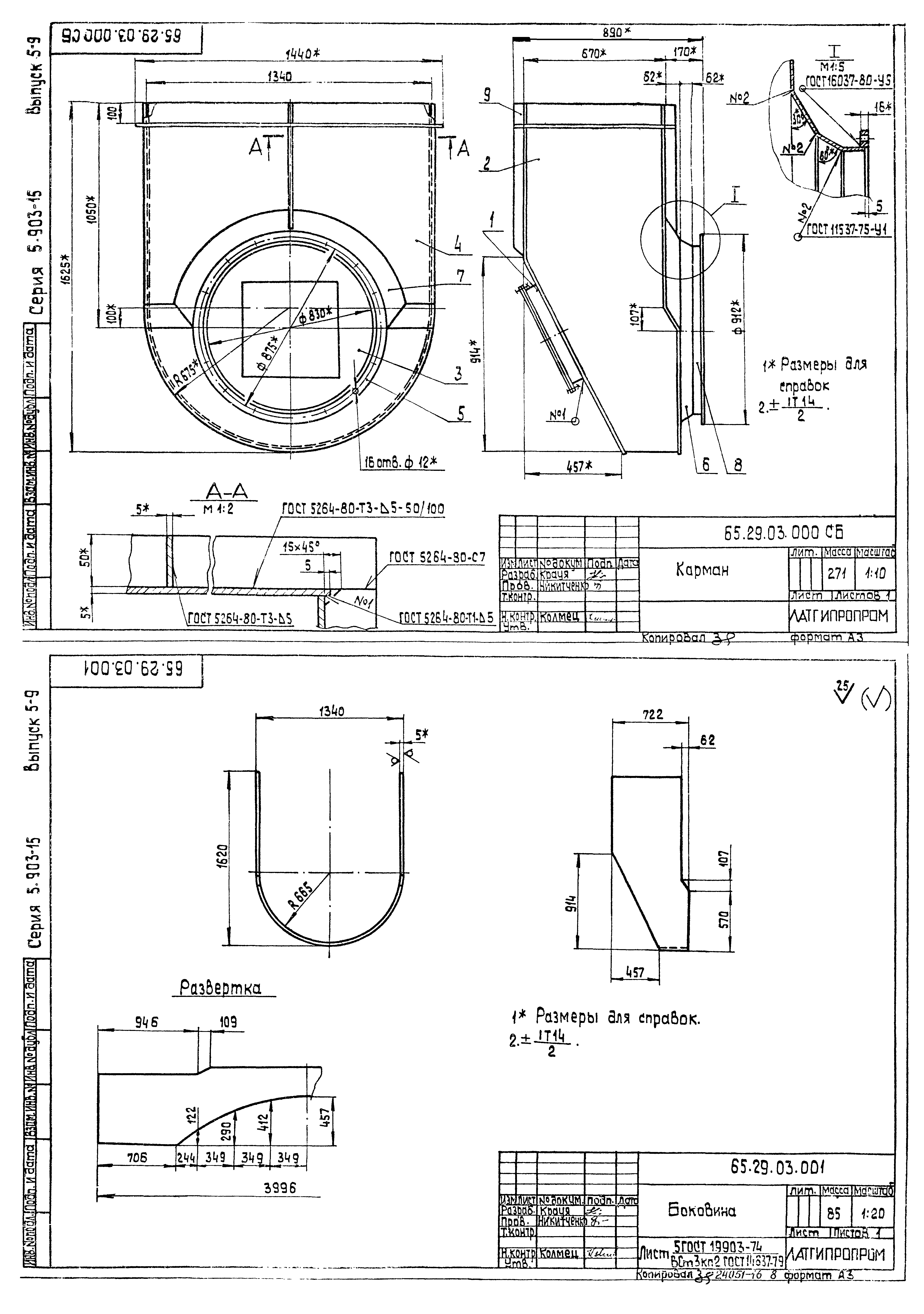
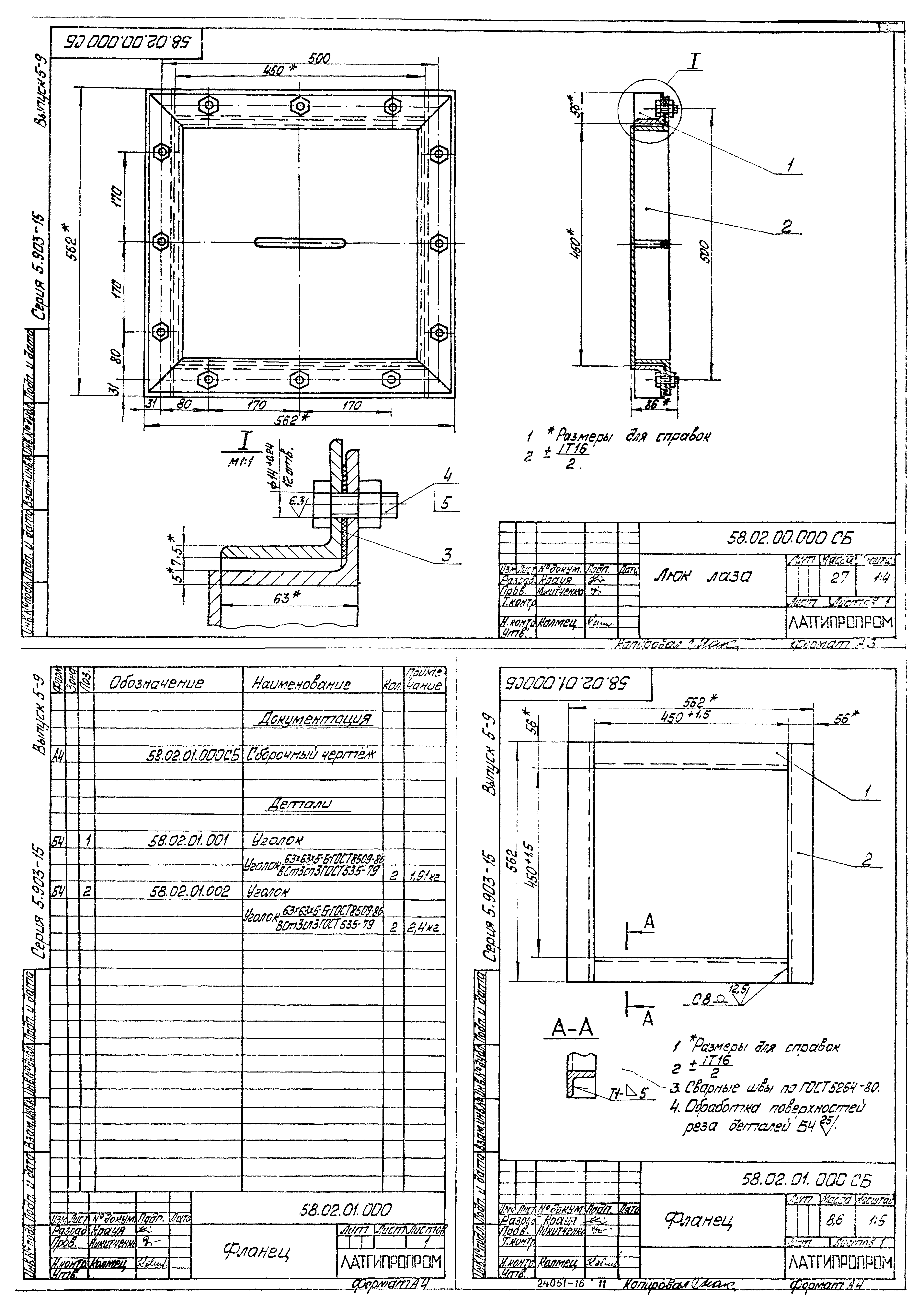
| Оглавление: | Блок дымососа БДН-12,5у БК5.9.1.00.000 Блок дымососа БДН-12,5у БК5.9.1.00.000СБ Блок дымососа БДН-12,5у БК5.9.1.00.000 Блок дымососа БДН-12,5у БК5.5.1.01.000 Рама 65.29.03.000 Карман 65.29.03.007 Удлинитель БК5.5.1.01.000СБ Рама 65.29.03.000СБ Карман 65.29.03.001 Боковина 65.29.03.002 Стенка 65.29.03.003 Стенка 65.29.03.004 Фланец 65.29.03.005 Конус 65.29.03.006 Полуконус 58.02.00.000 Люк лаза 58.02.00.001 Прокладка 58.02.00.000СБ Люк лаза 58.02.01.000 Фланец 58.02.01.000СБ Фланец 58.02.02.000 Крышка 58.02.02.001 Ручка 58.02.02.000СБ Крышка БК5.9.1.01.000СБ Переход БК5.9.1.01.100 Переход БК5.9.1.01.000 Переход Установка приборов контроля и автоматики блока дымососа БДН-12,5у БК5.9.2.00.000 Блок дымососа БДН-12,5у. Установка приборов контроля и автоматики БК5.8.2.00.000СО Блок дымососа БДН-12,5у. Схема автоматизации БК5.9.2.00.000СБ Блок дымососа БДН-12,5у. Установка приборов контроля и автоматики БК5.8.2.00.000ЭЗ Блок дымососа БДН-12,5у. Схема электрическая принципиальная регулятора БК5.8.2.00.000ЭЧ Блок дымососа БДН-12,5у. Схема соединений Установка электрооборудования блока дымососа БДН-12,5у БК5.9.3.00.000 Блок дымососа БДН-12,5у. Установка электрооборудования БК5.9.3.00.000СБ Блок дымососа БДН-12,5у. Установка электрооборудования БК5.9.3.00.000 Блок дымососа БДН-12,5у. Установка электрооборудования БК5.5.3.01.000 Стойка БК5.5.3.01.000СБ Стойка |
| Разработан: | Латгипропром |
| Утверждён: | 22.11.1989 ММСС СССР |
| Издан: | ЦИТП Госстроя СССР (CITP, Gosstroy (USSR) 1990 г. ) |
















