Скачать Серия 5.903-15 Выпуск 2-0. Блоки сетевых насосов. Указания по применению и изготовлениюДата актуализации: 01.01.2021
|
| Обозначение: | Серия 5.903-15 |
| Обозначение англ: | Series 5.903-15 |
| Статус: | не определен законодательством |
| Название рус.: | Выпуск 2-0. Блоки сетевых насосов. Указания по применению и изготовлению |
| Дата добавления в базу: | 01.09.2013 |
| Дата актуализации: | 01.01.2021 |
| Дата введения: | 01.03.1990 |
| Дата окончания срока действия: | 30.06.2003 |
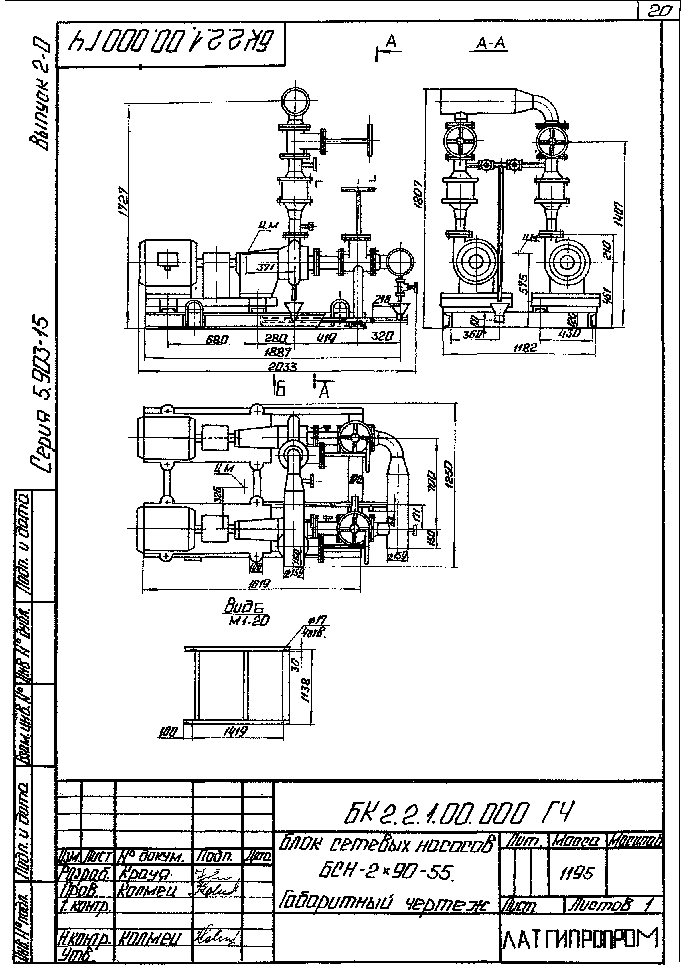
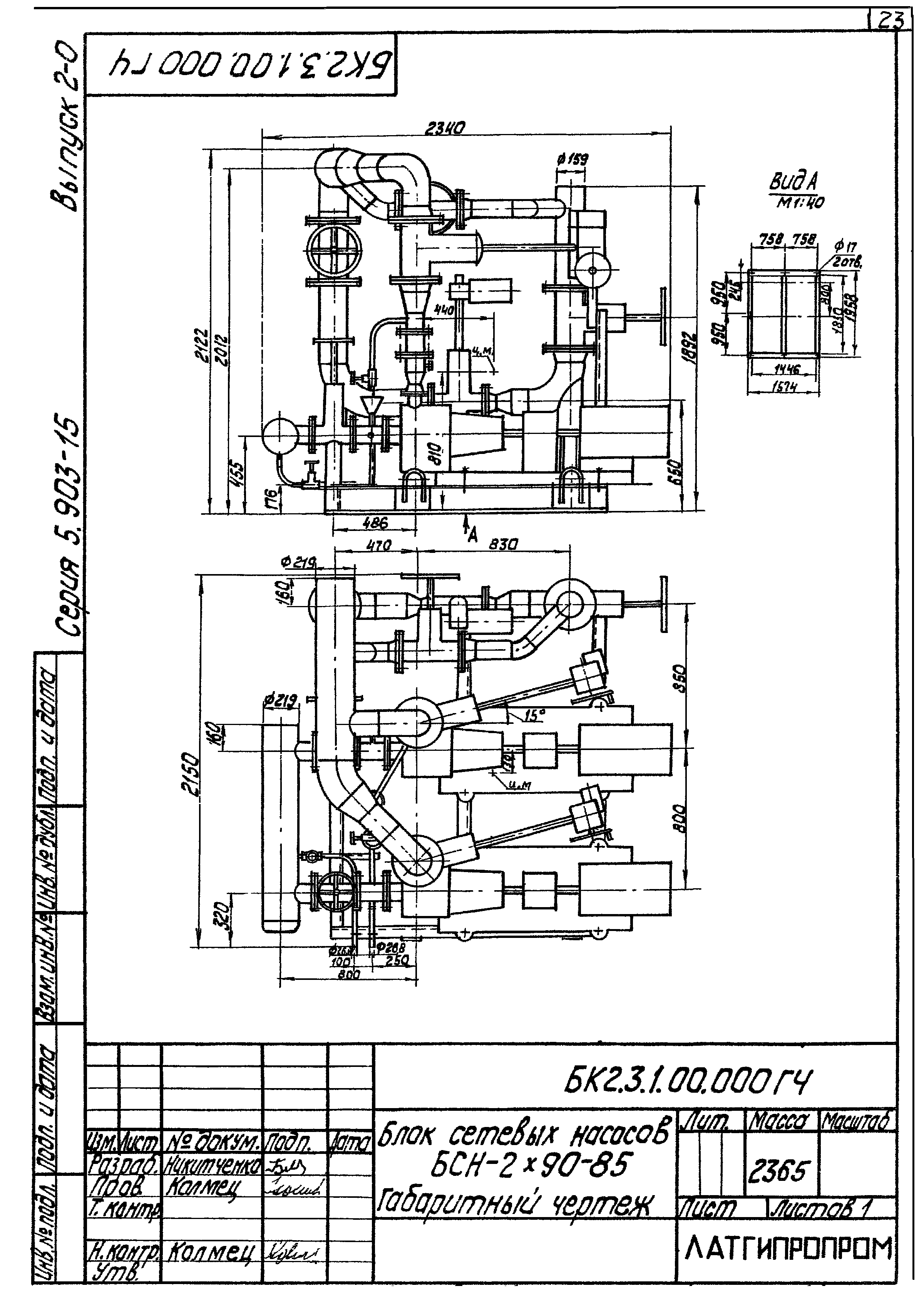
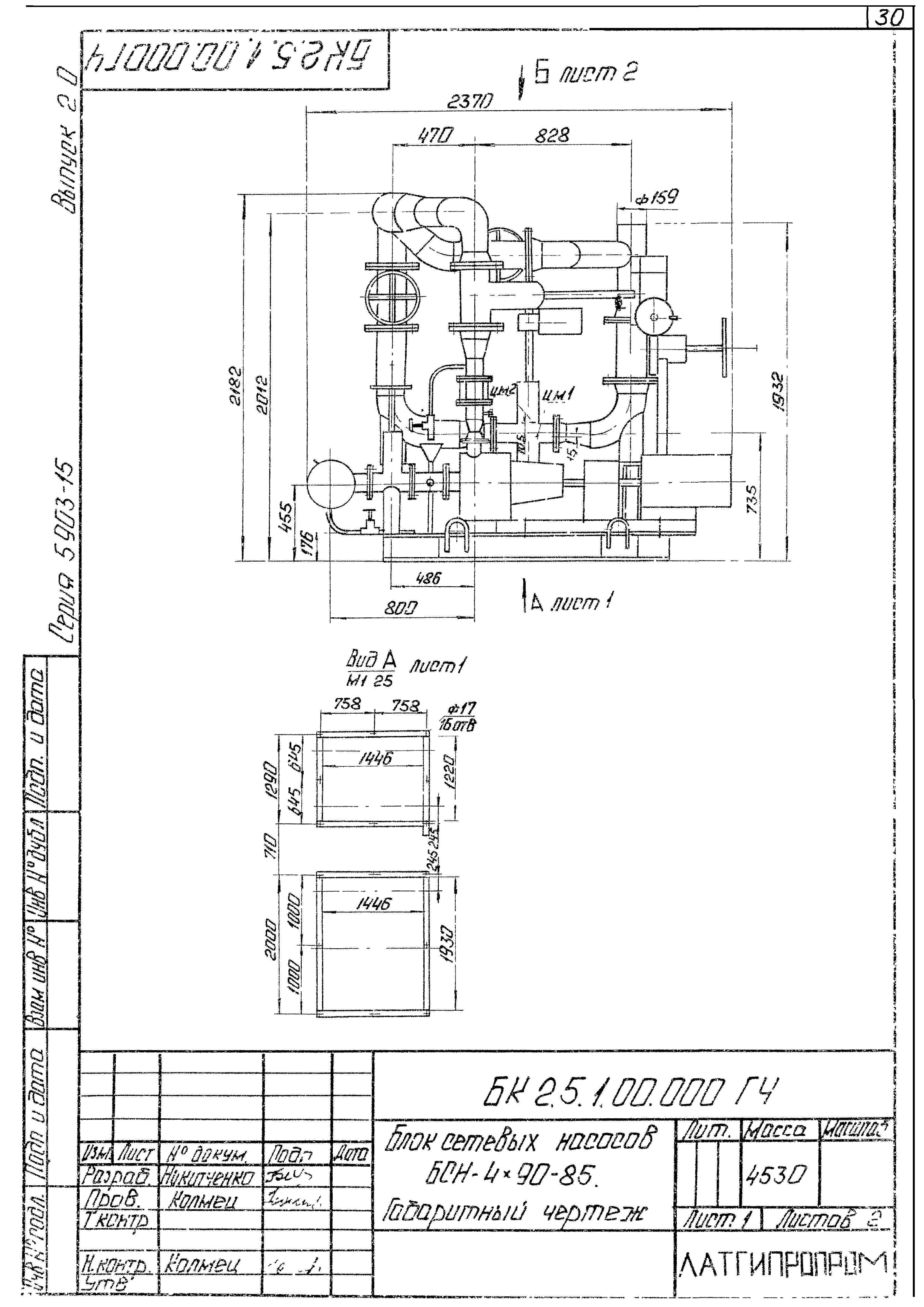
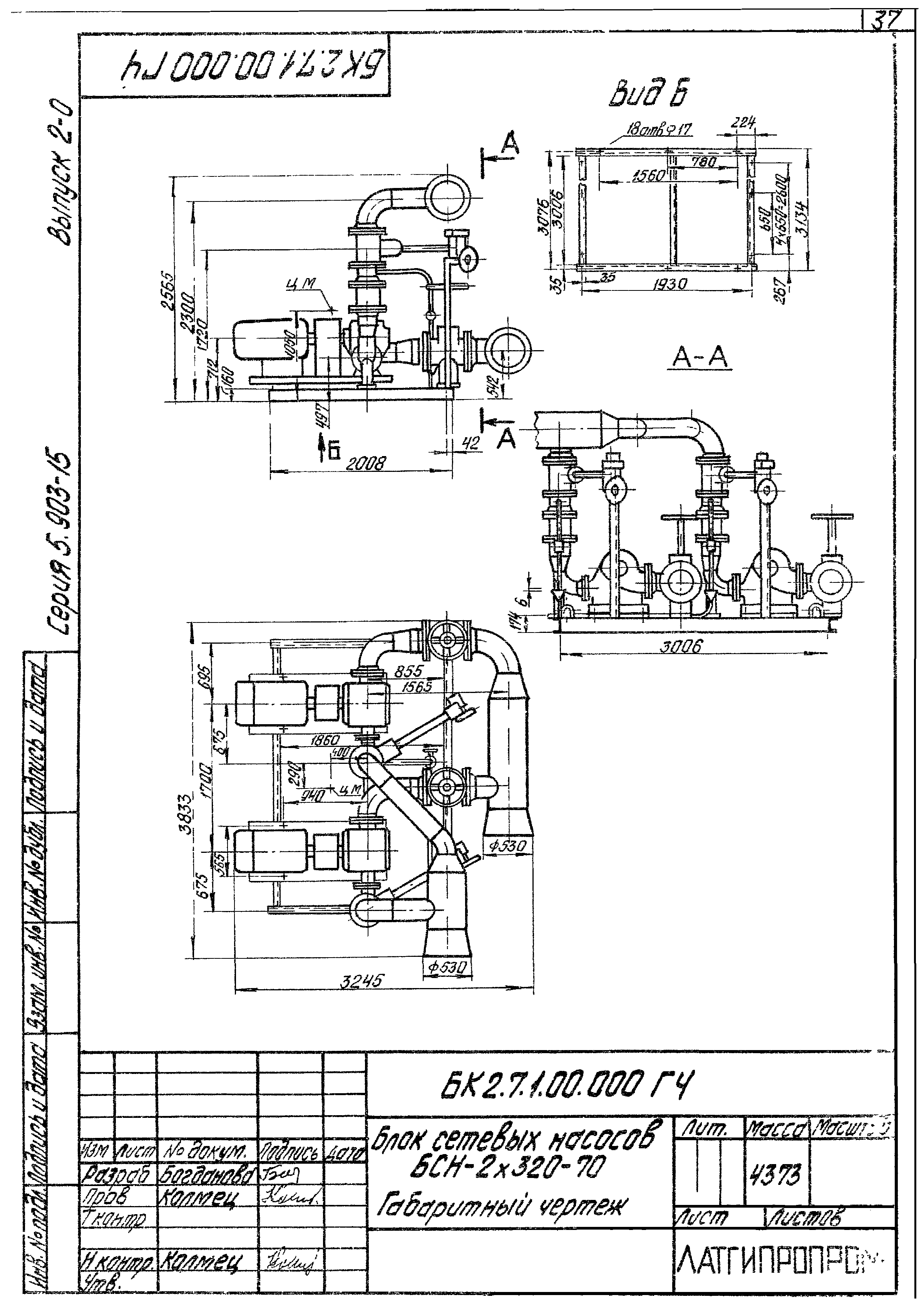
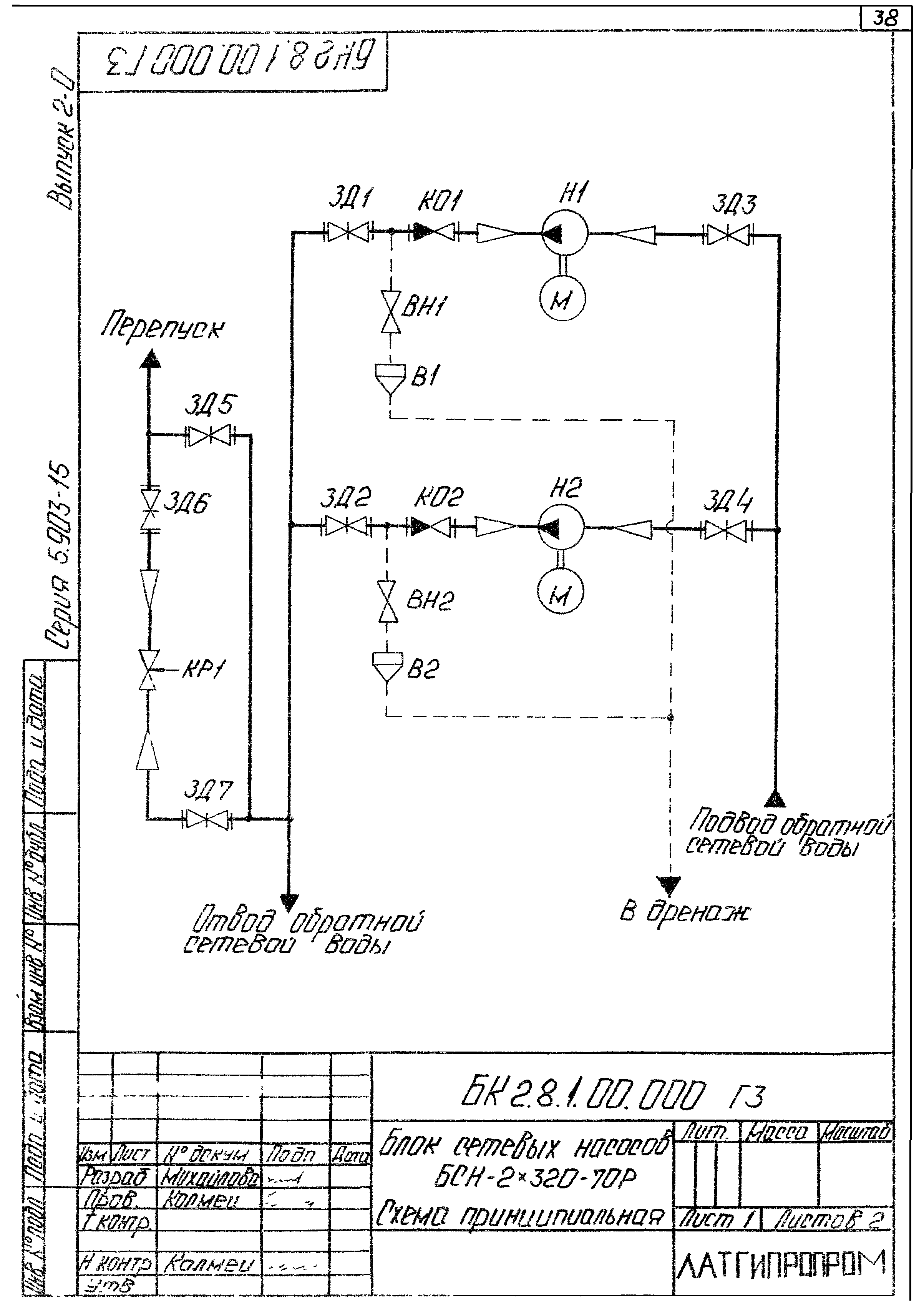
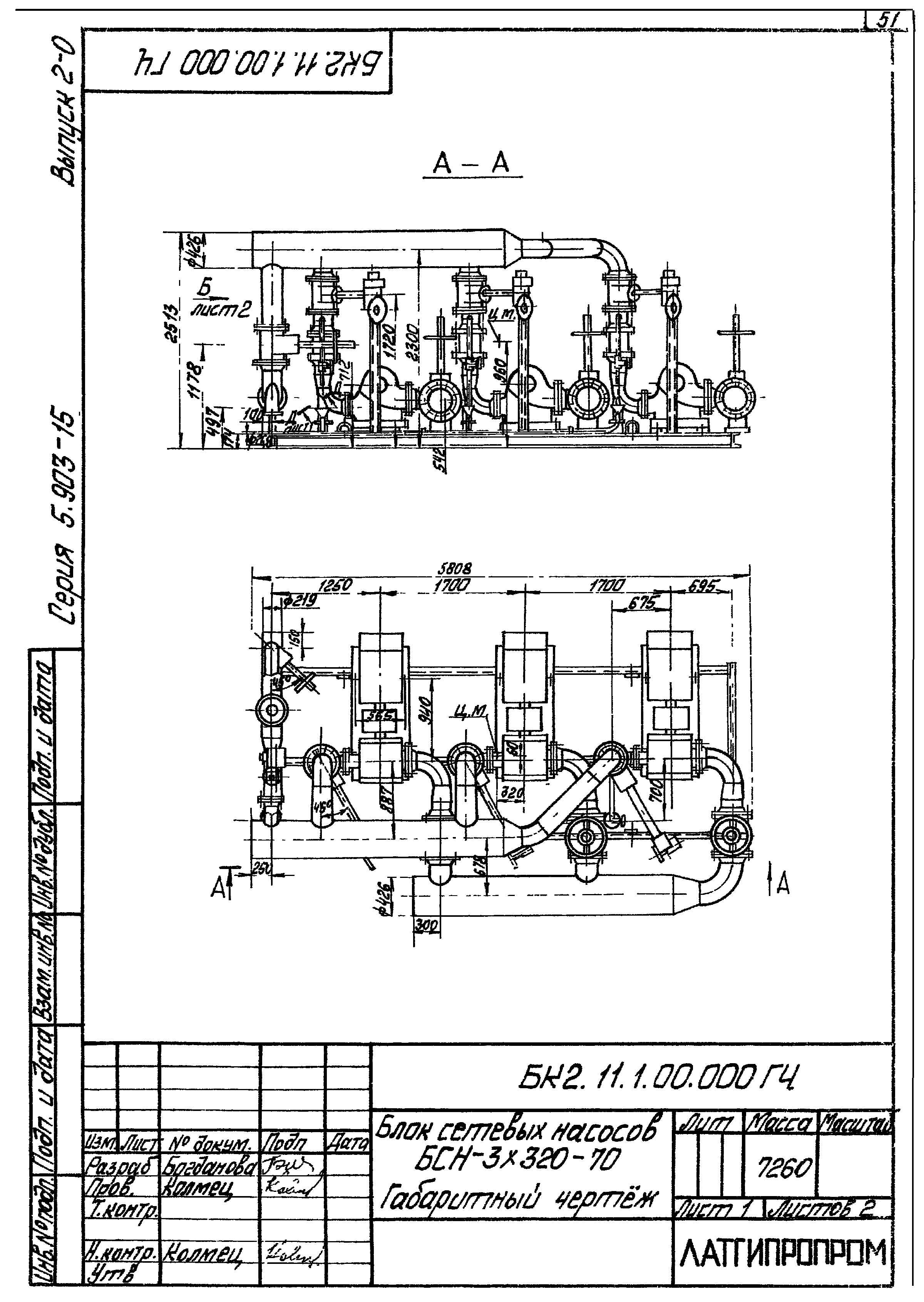
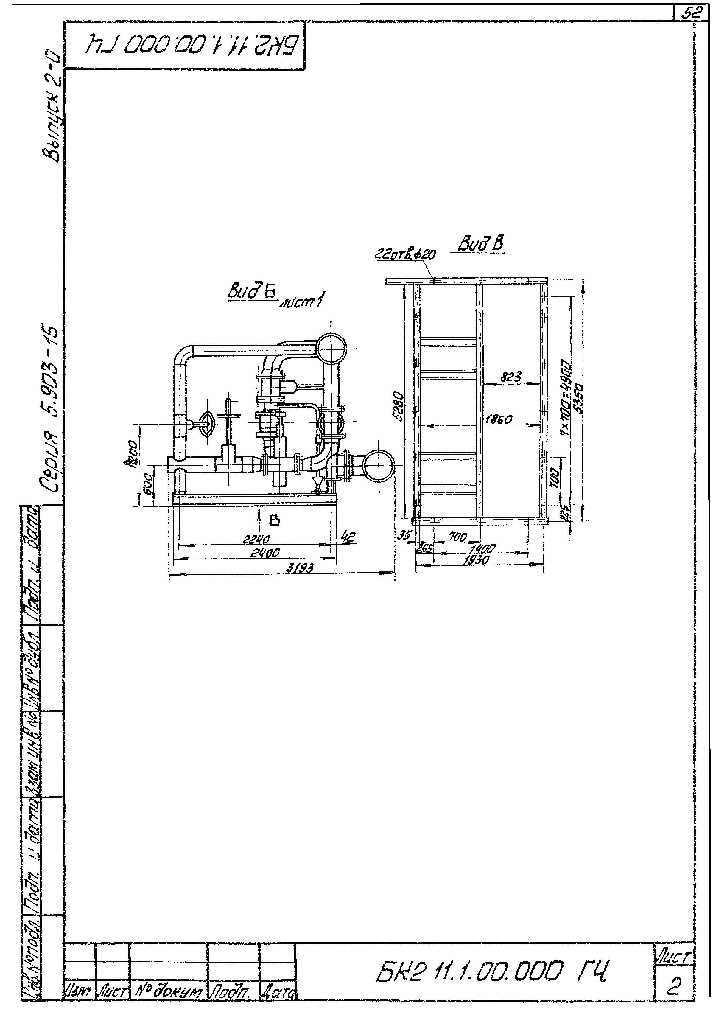
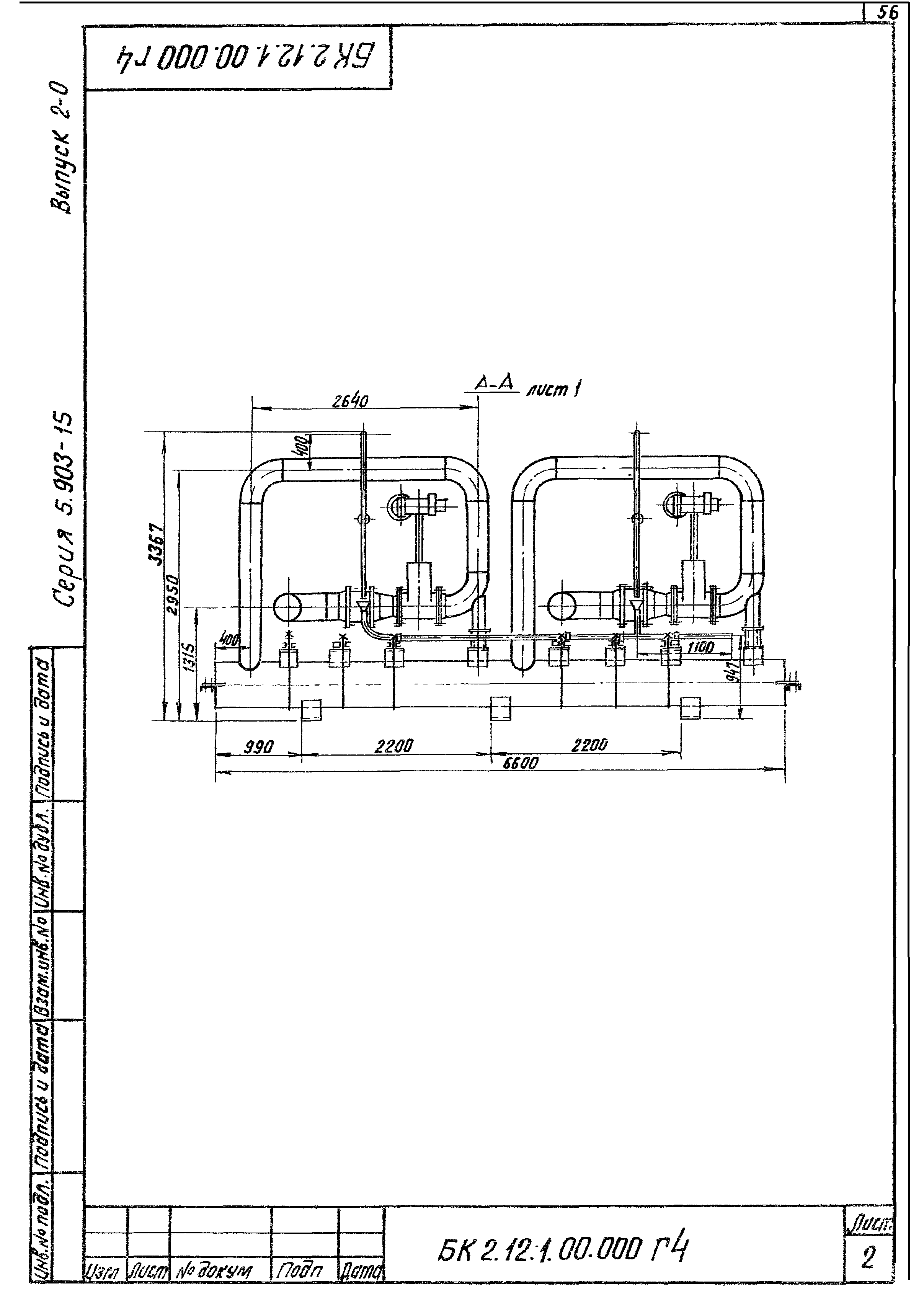
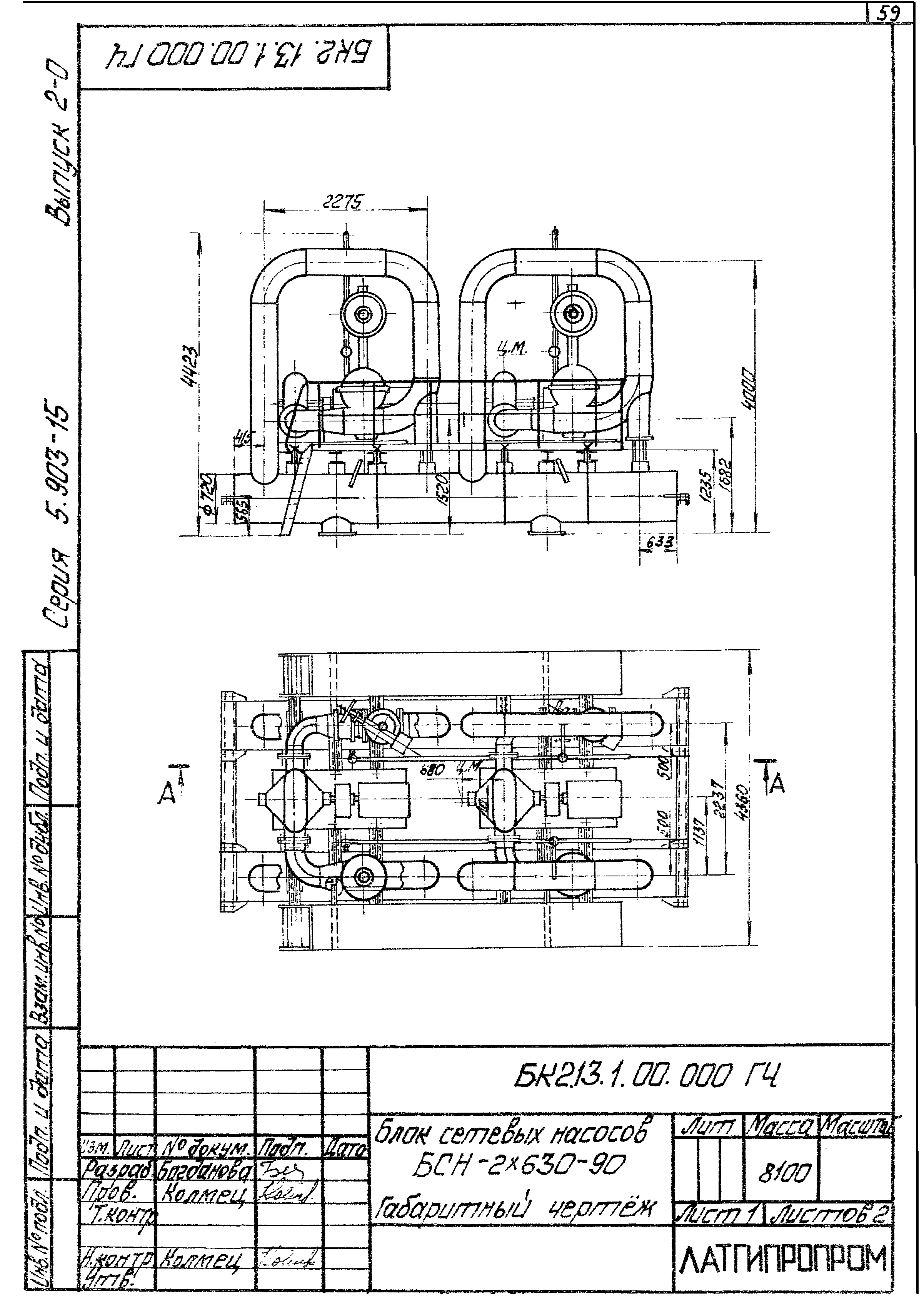
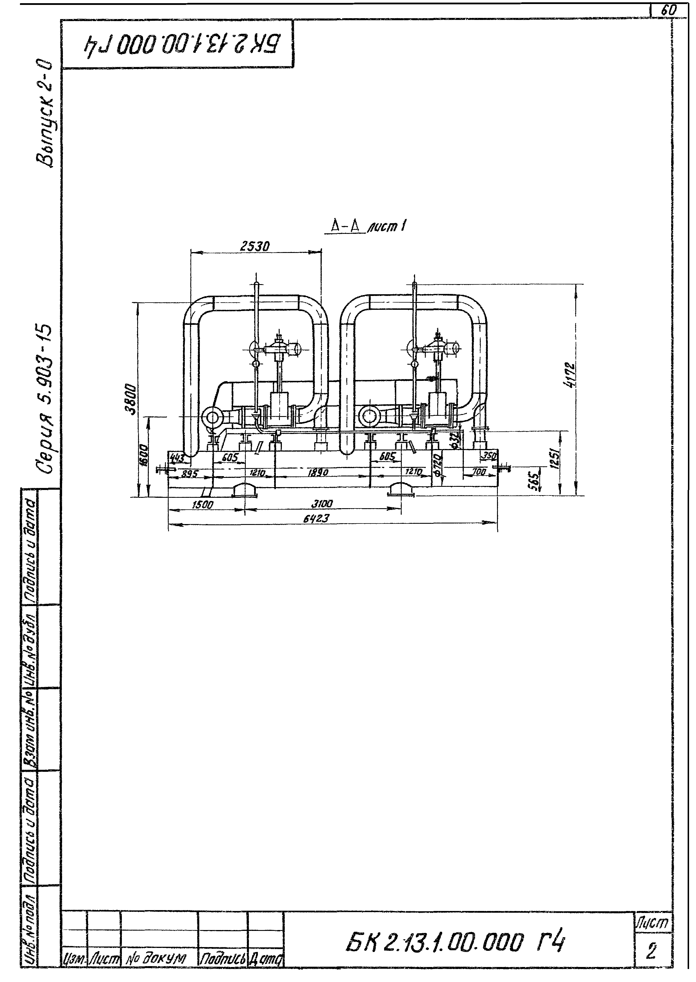
| Оглавление: | 1. Общая часть 2. Назначение и описание конструкции 3. Рекомендации для подбора 4. Требования к транспортировке 5. Требования к оборудованию и материалам 6. Требования к сборке блока Приложение 1. Блок БСН-2х45-55. Схема принципиальная Приложение 2. Блок БСН-2х45-55. Габаритный чертеж Приложение 3. Блок БСН-2х90-55. Схема принципиальная Приложение 4. Блок БСН-2х90-55. Габаритный чертеж Приложение 5. Блок БСН-2х90-85. Схема принципиальная Приложение 6. Блок БСН-2х90-85. Габаритный чертеж Приложение 7. Блок БСН-3х90-85. Схема принципиальная Приложение 8. Блок БСН-3х90-85. Габаритный чертеж Приложение 9. Блок БСН-4х90-85. Схема принципиальная Приложение 10. Блок БСН-4х90-85. Габаритный чертеж Приложение 11. Блок БСН-2х320-50. Схема принципиальная Приложение 12. Блок БСН-2х320-50. Габаритный чертеж Приложение 13. Блок БСН-2х320-70. Схема принципиальная Приложение 14. Блок БСН-2х320-70. Габаритный чертеж Приложение 15. Блок БСН-2х320-70Р. Схема принципиальная Приложение 16. Блок БСН-2х320-70Р. Габаритный чертеж Приложение 17. Блок БСН-3х200-95. Схема принципиальная Приложение 18. Блок БСН-3х200-95. Габаритный чертеж Приложение 19. Блок БСН-2х400-105. Схема принципиальная Приложение 20. Блок БСН-2х400-105. Габаритный чертеж Приложение 21. Блок БСН-3х320-70. Схема принципиальная Приложение 22. Блок БСН-3х320-70. Габаритный чертеж Приложение 23. Блок БСН-2х500-65. Схема принципиальная Приложение 24. Блок БСН-2х500-65. Габаритный чертеж Приложение 25. Блок БСН-2х630-90. Схема принципиальная Приложение 26. Блок БСН-2х630-90. Габаритный чертеж Приложение 27. Блок БСН-3х400-105. Схема принципиальная Приложение 28. Блок БСН-3х400-105. Габаритный чертеж Приложение 29. Блок БСН-2х1250-125. Схема принципиальная Приложение 30. Блок БСН-2х1250-125. Габаритный чертеж Приложение 31. Блок БСН-3х1250-125. Схема принципиальная Приложение 32. Блок БСН-3х1250-125. Габаритный чертеж Лист регистрации изменений |
| Разработан: | Латгипропром |
| Утверждён: | 14.02.1990 ММСС СССР |








































































