Скачать Серия 5.903-15 Выпуск 2-1. Блок сетевых насосов БСН-2х45-55. Рабочие чертежиДата актуализации: 01.01.2021
|
| Обозначение: | Серия 5.903-15 |
| Обозначение англ: | Series 5.903-15 |
| Статус: | не определен законодательством |
| Название рус.: | Выпуск 2-1. Блок сетевых насосов БСН-2х45-55. Рабочие чертежи |
| Дата добавления в базу: | 01.09.2013 |
| Дата актуализации: | 01.01.2021 |
| Дата введения: | 01.03.1990 |
| Дата окончания срока действия: | 30.06.2003 |
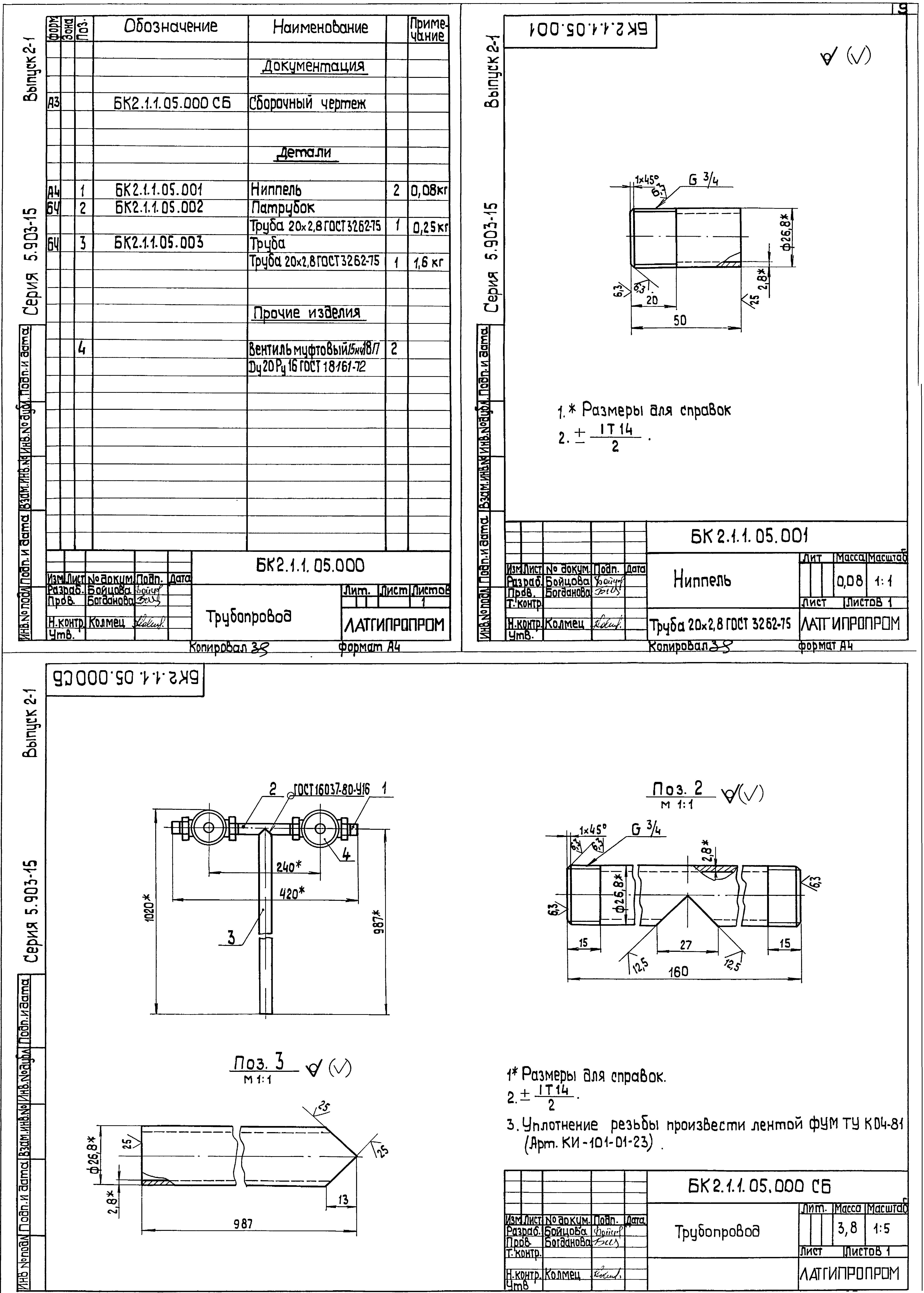
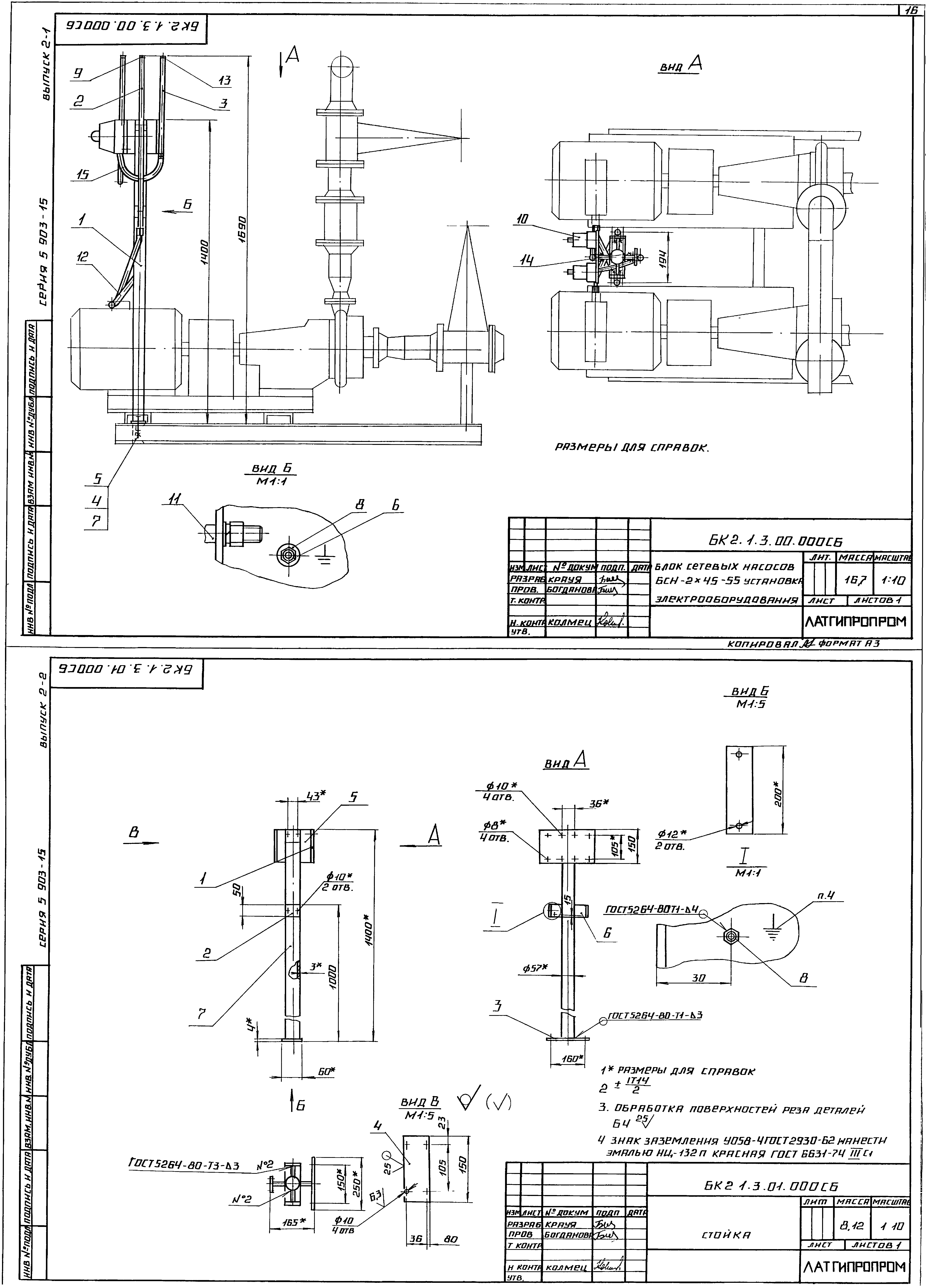
| Оглавление: | БК2.1.1.00.000 Блок БСН-2х45-55 БК2.1.1.00.000 ГЗ Блок БСН-2х45-55. Схема принципиальная БК2.1.1.00.000 СБ Блок БСН-2х45-55 БК2.1.1.01.000 Рама БК2.1.1.01.000 СБ Рама БК2.1.1.00.001 Скоба БК2.2.1.01.001 Петля БК2.1.1.02.000 СБ Трубопровод БК2.1.1.02.000 Трубопровод БК2.1.1.03.000 Трубопровод БК2.1.1.03.000 СБ Трубопровод БК2.1.1.03.001 Воронка БК2.1.1.04.000 Трубопровод БК2.1.1.04.000 СБ Трубопровод БК2.1.1.05.000 Трубопровод БК2.1.1.05.001 Ниппель БК2.1.1.05.000 СБ Трубопровод БК2.1.1.06.000 Труба БК2.1.1.06.000 СБ Труба БК2.1.1.07.000 Труба БК2.1.1.07.000 СБ Труба БК2.1.1.08.000 СБ Трубопровод БК2.1.1.08.000 Трубопровод БК2.1.2.00.000 Блок БСН-2х45-55. Установка приборов контроля и автоматизации БК2.1.2.00.000 СБ Блок БСН-2х45-55. Установка приборов контроля и автоматизации БК2.1.2.00.001 Труба БК2.1.2.00.002 Труба БК2.1.2.00.000 СО Блок БСН-2х45-55. Схема автоматизации БК2.1.2.00.000 Э4 Блок БСН-2х45-55. Схема соединений БК2.1.2.01.000 Стойка БК2.1.2.01.000 СБ Стойка БК2.1.2.01.001 Плита БК2.1.2.01.002 Плита БК2.1.3.00.000 Блок БСН-2х45-55. Установка электрооборудования БК2.1.3.00.000 СБ Блок БСН-2х45-55. Установка электрооборудования БК2.1.3.01.000 СБ Стойка БК2.1.3.01.000 Стойка БК2.1.3.01.001 Основание БК2.1.3.01.002 Планка БК2.1.3.01.003 Плита БК2.1.4.00.000 ТИ Ведомость теплоизоляционных конструкций БК2.1.4.00.000 ВМ Ведомость теплоизоляционных материалов БК2.1.4.00.000 ВО Ведомость объемов теплоизоляционных работ |
| Разработан: | Латгипропром |
| Утверждён: | 14.02.1990 ММСС СССР |



















