Скачать Серия 5.903-15 Выпуск 2-11. Блок сетевых насосов БСН-3х320-70. Рабочие чертежиДата актуализации: 01.01.2021
|
| Обозначение: | Серия 5.903-15 |
| Обозначение англ: | Series 5.903-15 |
| Статус: | не определен законодательством |
| Название рус.: | Выпуск 2-11. Блок сетевых насосов БСН-3х320-70. Рабочие чертежи |
| Дата добавления в базу: | 01.09.2013 |
| Дата актуализации: | 01.01.2021 |
| Дата введения: | 01.03.1990 |
| Дата окончания срока действия: | 30.06.2003 |
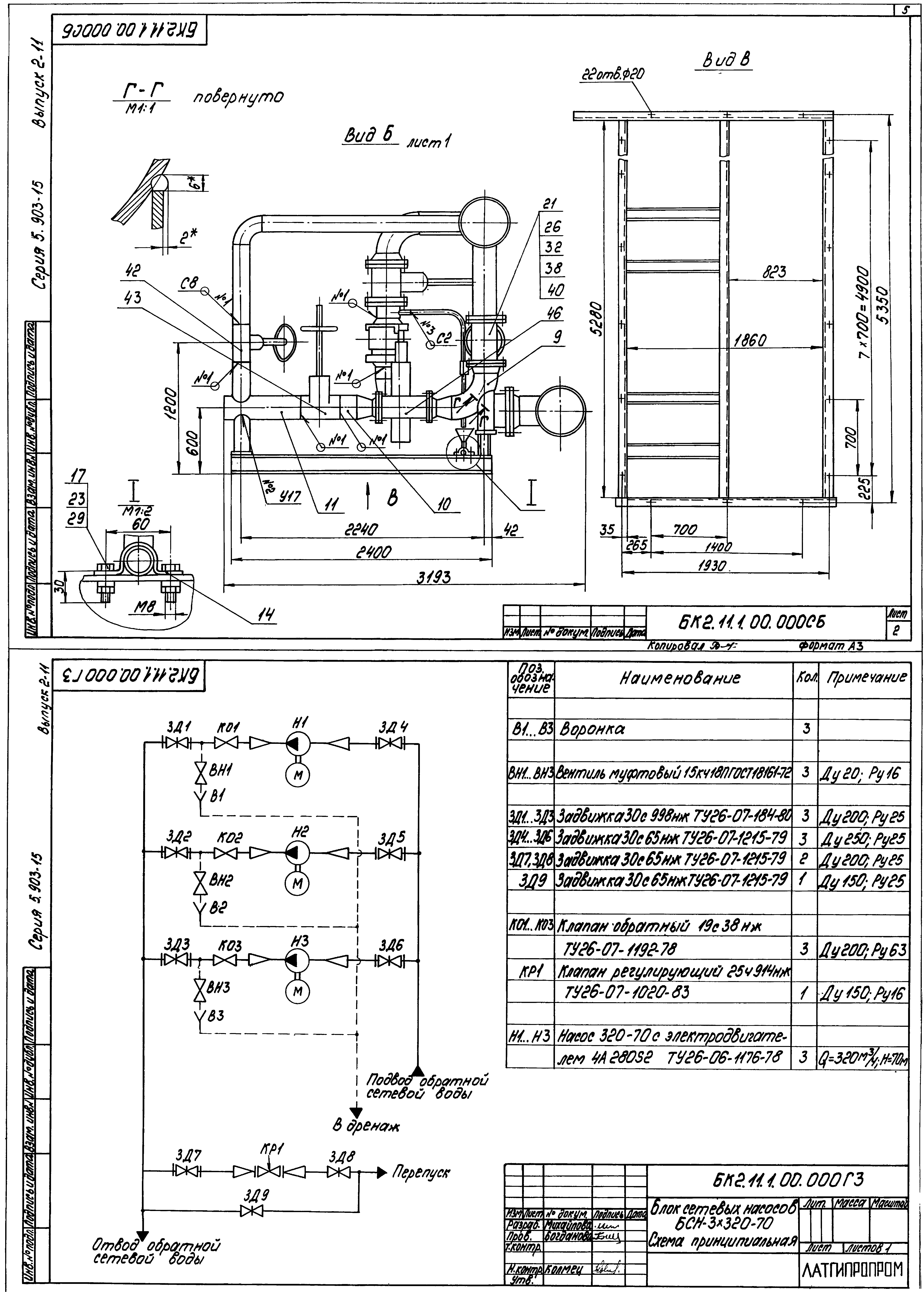
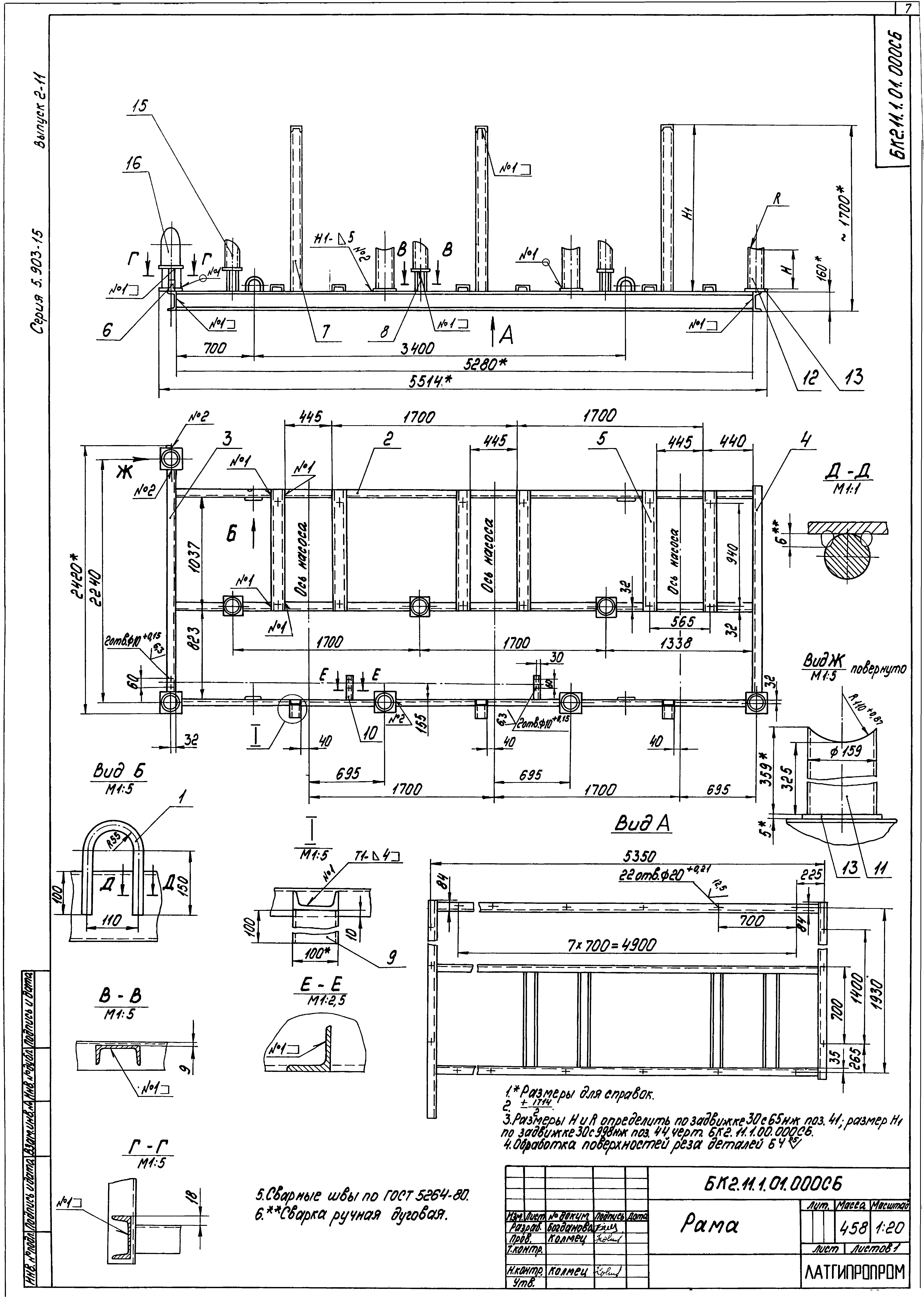
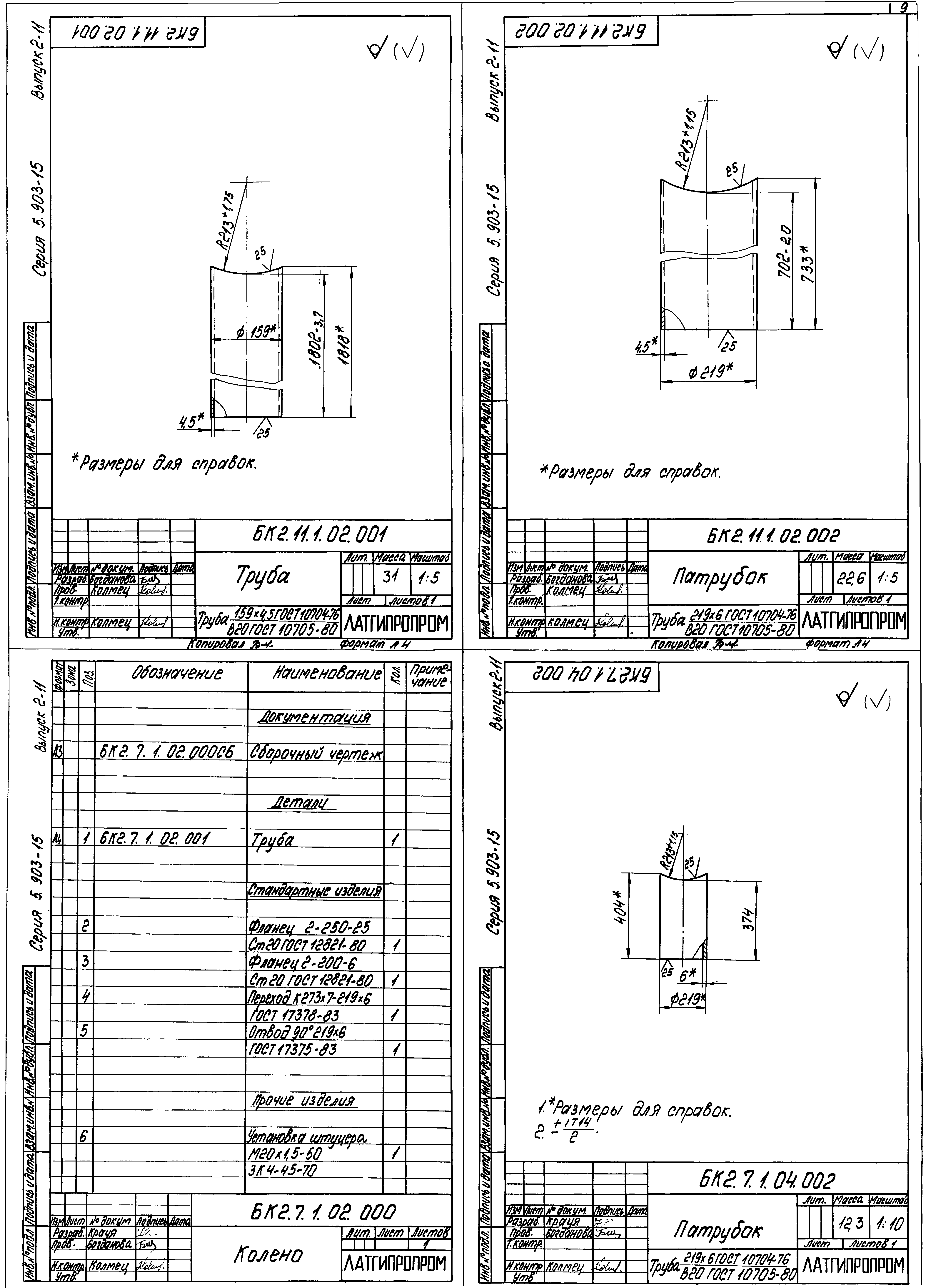
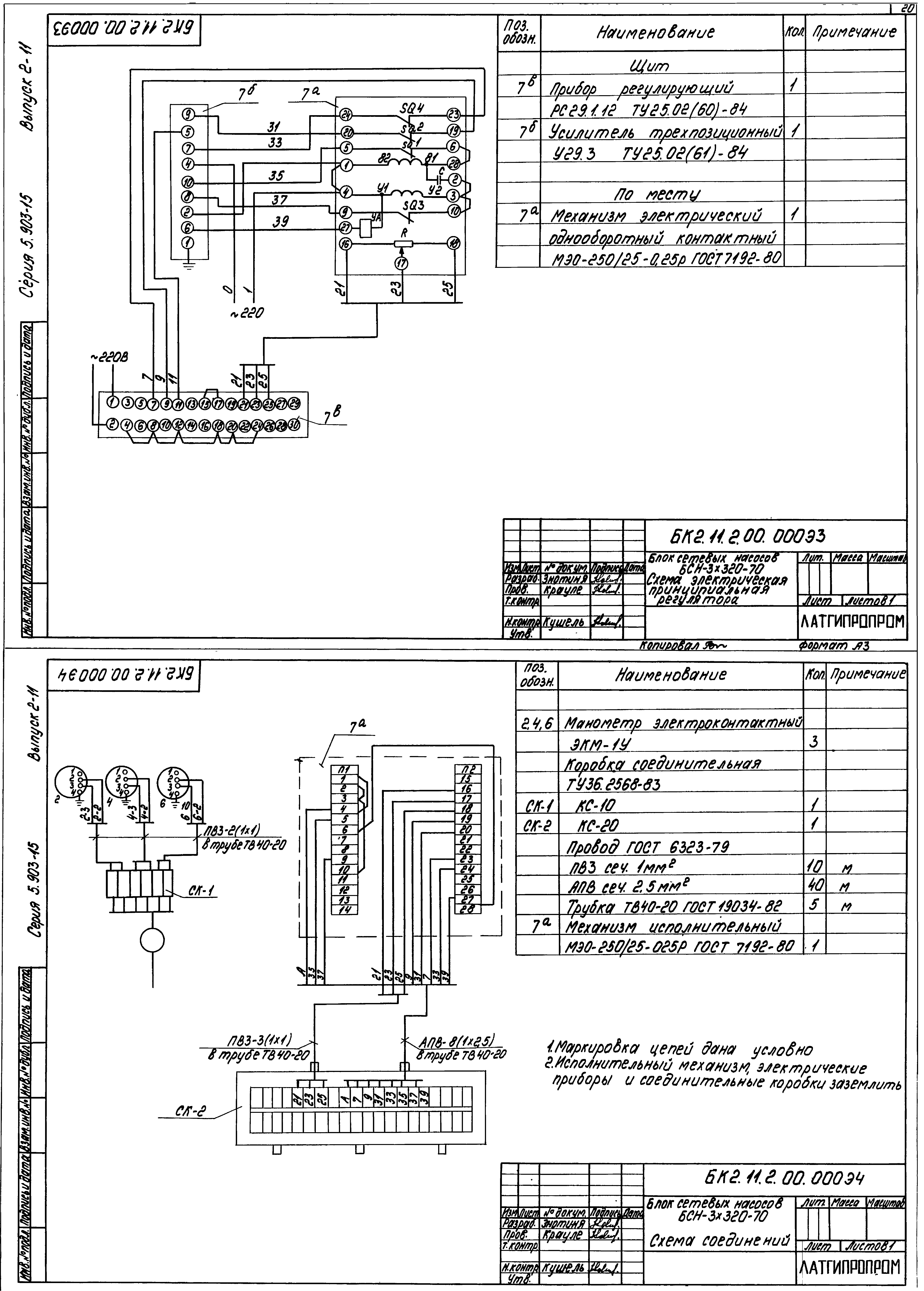
| Оглавление: | БК2.11.1.00.000 Блок БСН-3х320-70 БК2.1.1.00.001 Скоба БК2.11.1.00.000 СБ Блок БСН-3х320-70 БК2.11.1.00.000 ГЗ Блок БСН-3х320-70. Схема принципиальная БК2.11.1.01.000 Рама БК2.11.1.02.003 Труба БК2.11.1.01.000 СБ Рама БК2.11.1.02.000 Коллектор БК2.11.1.02.000 СБ Коллектор БК2.11.1.02.001 Труба БК2.11.1.02.002 Патрубок БК2.7.1.02.000 Колено БК2.7.1.04.002 Патрубок БК2.7.1.02.000 СБ Колено БК2.7.1.02.001 Труба БК2.11.1.03.000 Коллектор БК2.11.1.03.000 СБ Коллектор БК2.11.1.03.001 Труба БК2.7.1.05.000 Труба БК2.7.1.05.000 СБ Труба БК2.7.1.05.001 Патрубок БК2.7.1.06.000 СБ Колено БК2.7.1.06.000 Колено БК2.7.1.06.001 Патрубок БК2.7.1.07.000 Трубопровод БК2.7.1.07.002 Патрубок БК2.7.1.07.000 СБ Трубопровод БК2.7.1.07.001 Патрубок БК2.11.1.04.000 Трубопровод БК1.2.1.12.001 Воронка БК2.11.1.04.000 СБ Трубопровод БК2.11.1.04.001 Труба БК2.11.1.05.000 Колено БК2.11.1.04.002 Патрубок БК2.11.1.05.000 СБ Колено БК2.11.1.06.000 Переход БК2.11.1.06.000 СБ Переход БК2.11.1.07.000 Тройник БК2.11.1.07.000 СБ Тройник БК2.11.1.07.001 Труба БК2.11.1.07.002 Патрубок БК2.11.2.00.000 Блок БСН-3х320-70. Установка приборов контроля и автоматики БК2.11.2.00.000 СБ Блок БСН-3х320-70. Установка приборов контроля и автоматики БК2.11.2.00.000 Блок БСН-3х320-70. Установка приборов контроля и автоматики БК2.11.2.00.000 СО Блок БСН-3х320-70. Схема автоматизации БК2.11.2.00.000 Э3 Блок БСН-3х320-70. Схема электрическая принципиальная регулятора БК2.11.2.00.000 Э4 Блок БСН-3х320-70. Схема соединений БК2.11.2.00.002 Основание БК2.11.2.00.003 Основание БК2.11.2.00.001 Труба БК2.11.2.01.000 Стойка БК2.11.2.01.000 СБ Стойка БК2.11.3.00.000 Блок БСН-3х320-70. Установка электрооборудования БК2.11.3.00.000 СБ Блок БСН-3х320-70. Установка электрооборудования БК2.11.3.00.000 Блок БСН-3х320-70. Установка электрооборудования БК2.11.3.00.001 Основание БК2.11.3.00.000 Э5 Блок БСН-3х320-70. Схема электрическая подключений БК2.11.3.00.000 Э3 Блок БСН-3х320-70. Схема электрическая принципиальная управления БК2.11.3.00.002 Основание БК2.11.3.01.000 Стойка БК2.11.3.02.000 Стойка БК2.11.3.01.000 СБ Стойка БК2.11.3.02.000 СБ Стойка БК2.11.3.02.000 Стойка БК2.11.4.00.000 ВО Блок БСН-3х320-70. Ведомость объемов теплоизоляционных работ БК2.11.4.00.000 ТИ Блок БСН-3х320-70. Ведомость теплоизоляционных конструкций БК2.11.4.00.000 ВМ Блок БСН-3х320-70. Ведомость теплоизоляционных материалов |
| Разработан: | Латгипропром |
| Утверждён: | 14.02.1990 ММСС СССР |































