Скачать Серия 5.903-15 Выпуск 4-1. Блок насосов подпитки БПН-2х20-30. Рабочие чертежиДата актуализации: 01.01.2021
|
| Обозначение: | Серия 5.903-15 |
| Обозначение англ: | Series 5.903-15 |
| Статус: | не определен законодательством |
| Название рус.: | Выпуск 4-1. Блок насосов подпитки БПН-2х20-30. Рабочие чертежи |
| Дата добавления в базу: | 01.09.2013 |
| Дата актуализации: | 01.01.2021 |
| Дата введения: | 01.03.1990 |
| Дата окончания срока действия: | 30.06.2003 |
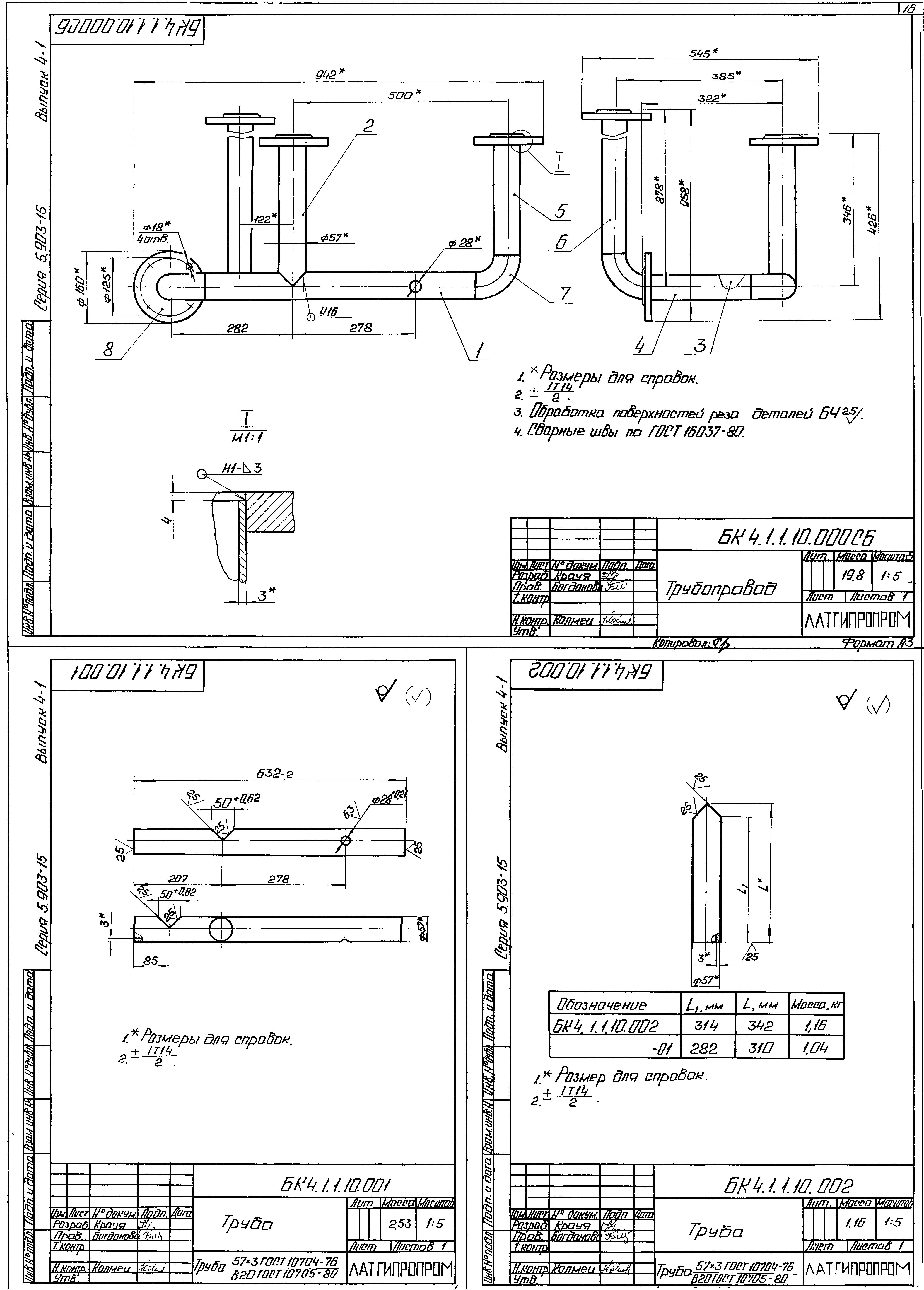
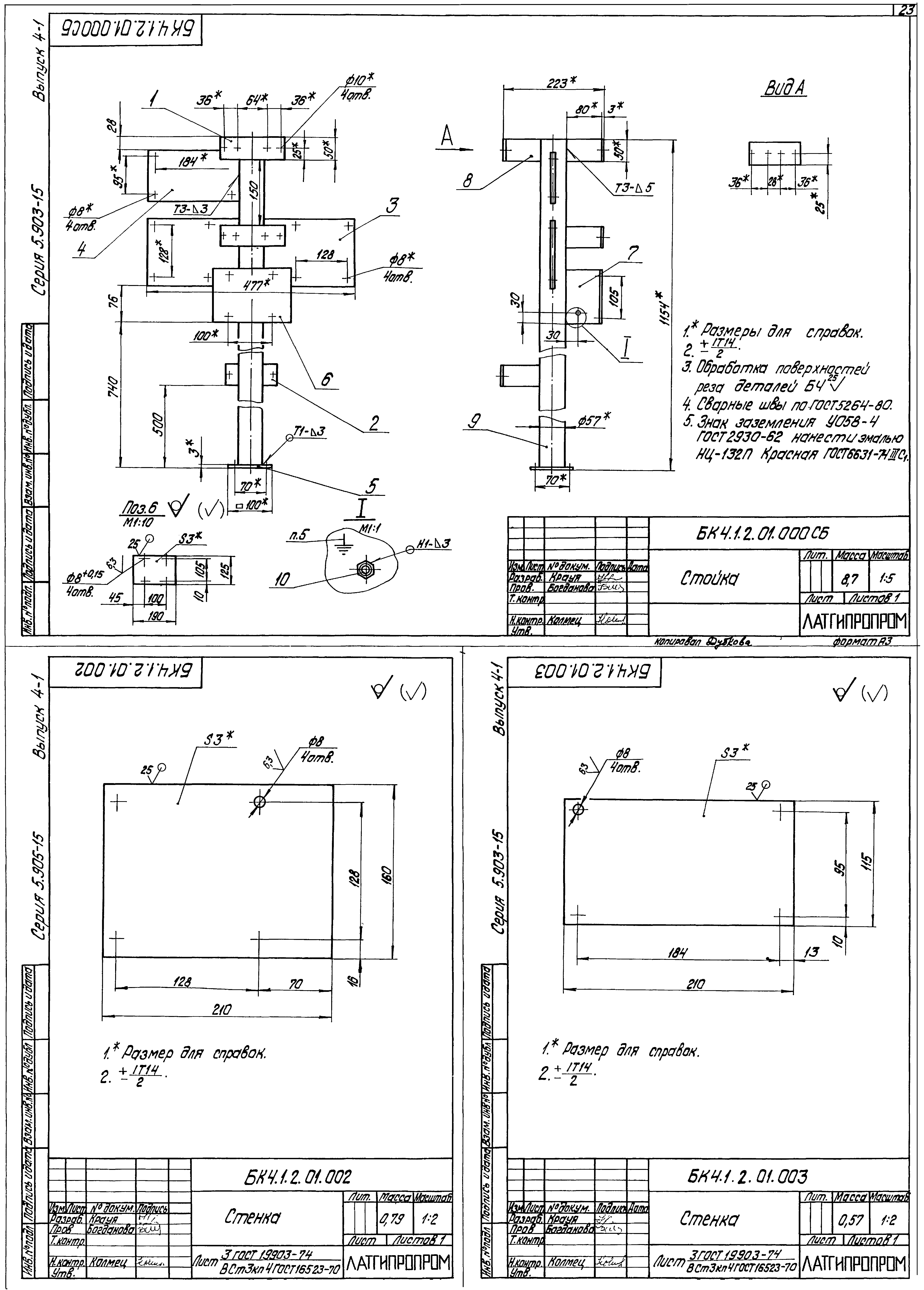
| Оглавление: | БК4.1.1.00.000 Блок БПН-2х20-30 БК4.1.1.00.001 Хомут БК4.1.1.00.000 СБ Блок БПН-2х20-30 БК4.1.1.00.000 ГЗ Блок БПН-2х20-30. Схема принципиальная БК4.1.1.01.000 Рама БК4.1.1.01.000 СБ Рама БК4.1.1.01.001 Петля БК4.1.1.02.000 Колено БК4.1.1.02.000 СБ Колено БК4.1.1.03.000 Трубопровод БК4.1.1.03.000 СБ Трубопровод БК4.1.1.03.001 Патрубок БК4.1.1.03.002 Патрубок БК4.1.1.04.00 Труба БК4.1.1.04.00 СБ Труба БК4.1.1.05.000 СБ Колено БК4.1.1.05.000 Колено БК4.1.1.06.000 СБ Труба БК4.1.1.07.000 Трубопровод БК4.1.1.07.001 Патрубок БК4.1.1.07.000 СБ Трубопровод БК4.1.1.07.002 Труба БК4.1.1.07.003 Колено БК4.1.1.07.004 Патрубок БК1.2.1.12.001 Воронка БК4.1.1.08.000 Трубопровод БК4.1.1.08.001 Труба БК4.1.1.08.000 СБ Трубопровод БК4.1.1.08.002 Труба БК4.1.1.08.003 Труба БК4.1.1.09.000 Труба БК4.1.1.09.000 СБ Труба БК4.1.1.10.000 Трубопровод БК4.1.1.10.000 СБ Трубопровод БК4.1.1.10.001 Труба БК4.1.1.10.002 Труба БК4.1.1.11.000 Трубопровод БК4.1.1.11.001 Труба БК4.1.1.11.000 СБ Трубопровод БК4.1.1.11.002 Патрубок БК4.1.2.00.000 Блок БПН-2х20-30. Установка приборов контроля и автоматики БК4.1.2.00.000 СБ Блок БПН-2х20-30. Установка приборов контроля и автоматики БК4.1.2.00.000 СО Блок БПН-2х20-30. Схема автоматизации БК4.1.2.00.000 Э3 Блок БПН-2х20-30. Схема автоматизации БК4.1.2.00.000 Э4 Блок БПН-2х20-30. Схема соединений БК4.1.2.00.001 Труба БК4.1.2.00.002 Труба БК4.1.2.00.003 Плита БК4.1.2.01.000 Стойка БК4.1.2.01.001 Стенка БК4.1.2.01.000 СБ Стойка БК4.1.2.01.002 Стенка БК4.1.2.01.003 Стенка БК4.1.3.00.000 Блок БПН-2х20-30. Установка электрооборудования БК4.1.3.00.000 СБ Блок БПН-2х20-30. Установка электрооборудования БК4.1.4.00.000 ТИ Блок БПН-2х20-30. Ведомость теплоизоляционных конструкций БК4.1.4.00.000 ВМ Блок БПН-2х20-30. Ведомость теплоизоляционных материалов БК4.1.4.00.000 ВО Блок БПН-2х20-30. Ведомость объемов теплоизоляционных работ |
| Разработан: | Латгипропром |
| Утверждён: | 14.02.1990 ММСС СССР |


























