Скачать Серия 5.903-15 Выпуск 4-4. Блок насосов подпитки БПН-3х45-55. Рабочие чертежиДата актуализации: 01.01.2021
|
| Обозначение: | Серия 5.903-15 |
| Обозначение англ: | Series 5.903-15 |
| Статус: | не определен законодательством |
| Название рус.: | Выпуск 4-4. Блок насосов подпитки БПН-3х45-55. Рабочие чертежи |
| Дата добавления в базу: | 01.09.2013 |
| Дата актуализации: | 01.01.2021 |
| Дата введения: | 01.03.1990 |
| Дата окончания срока действия: | 30.06.2003 |
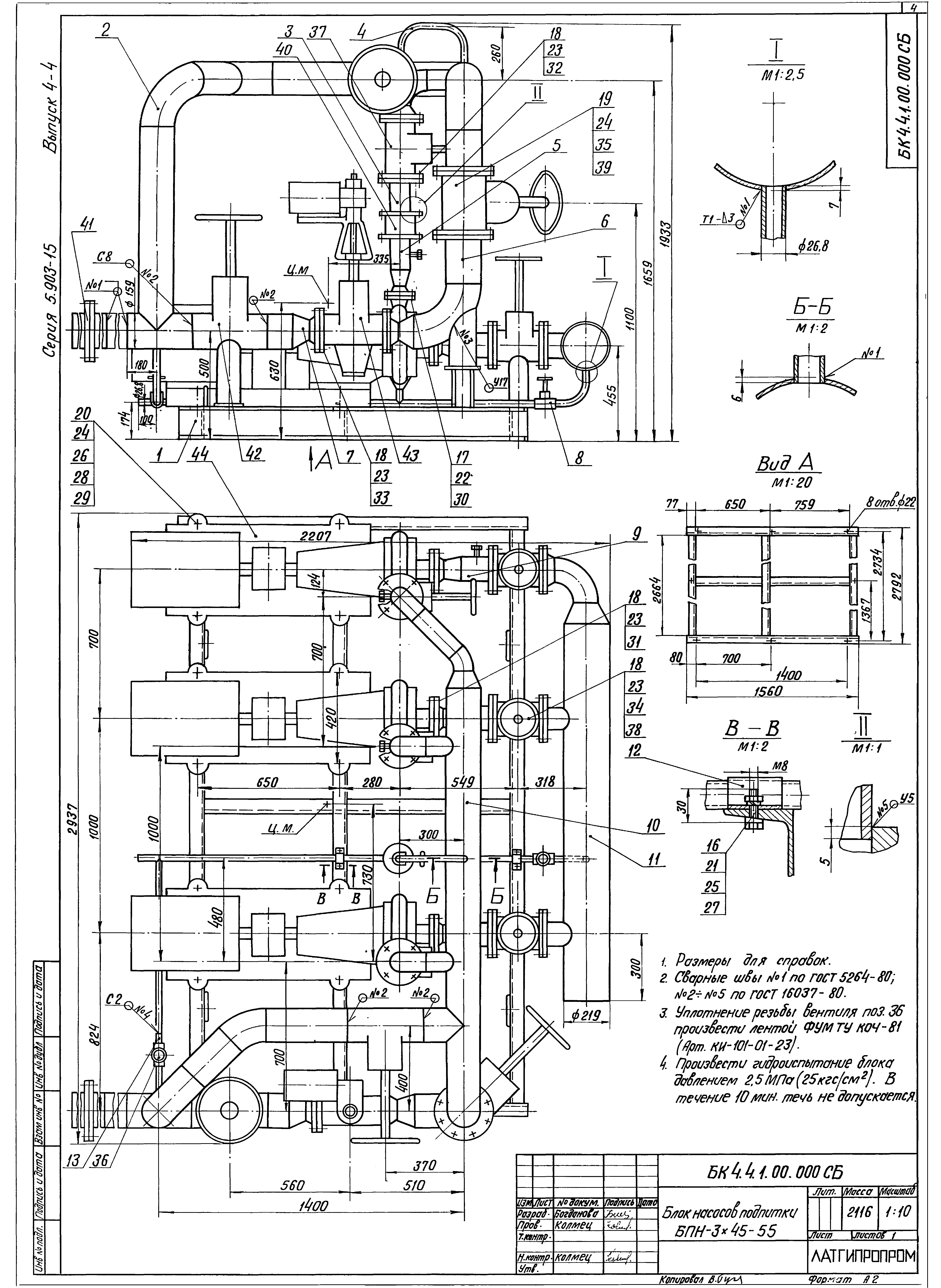
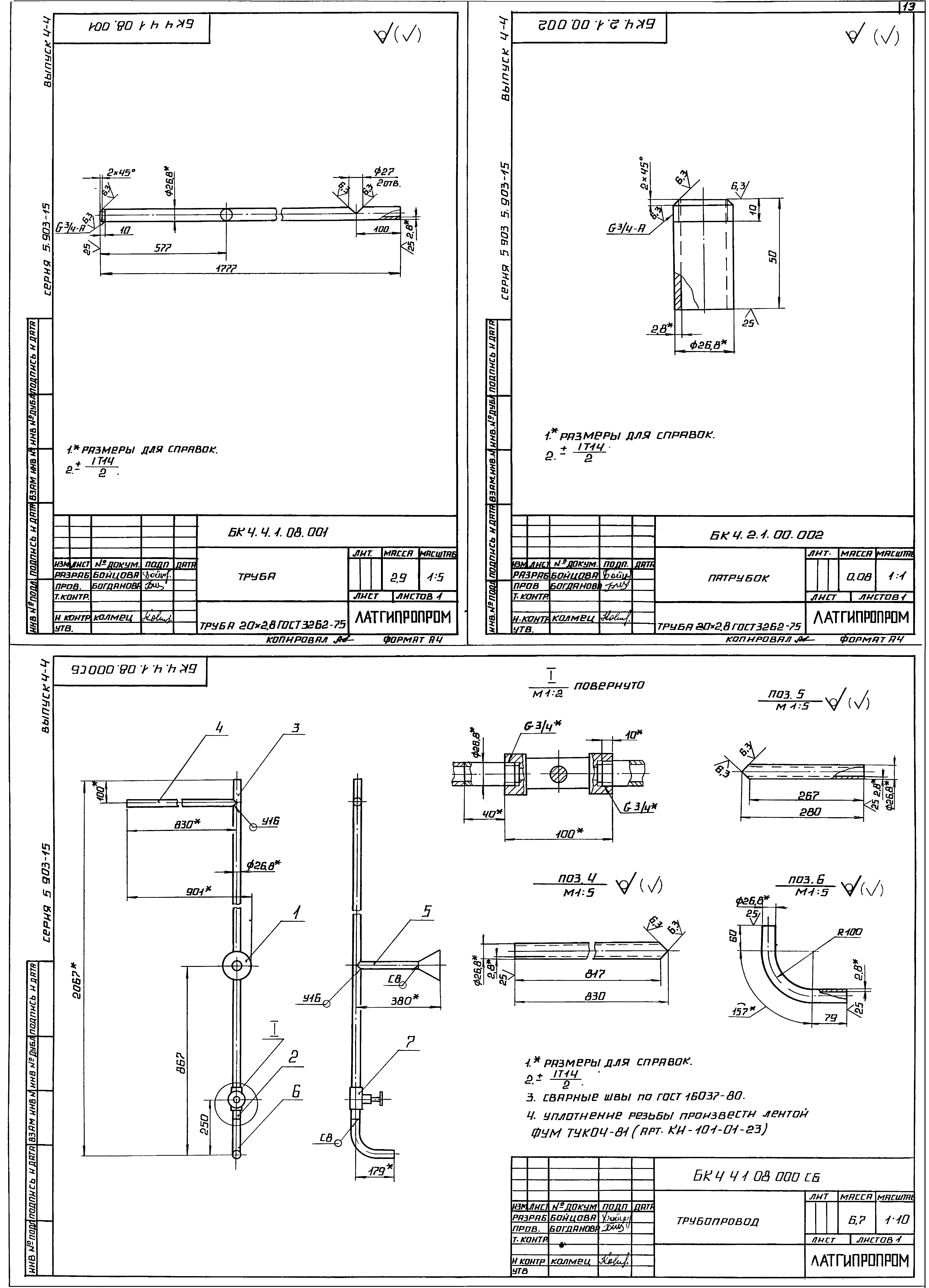
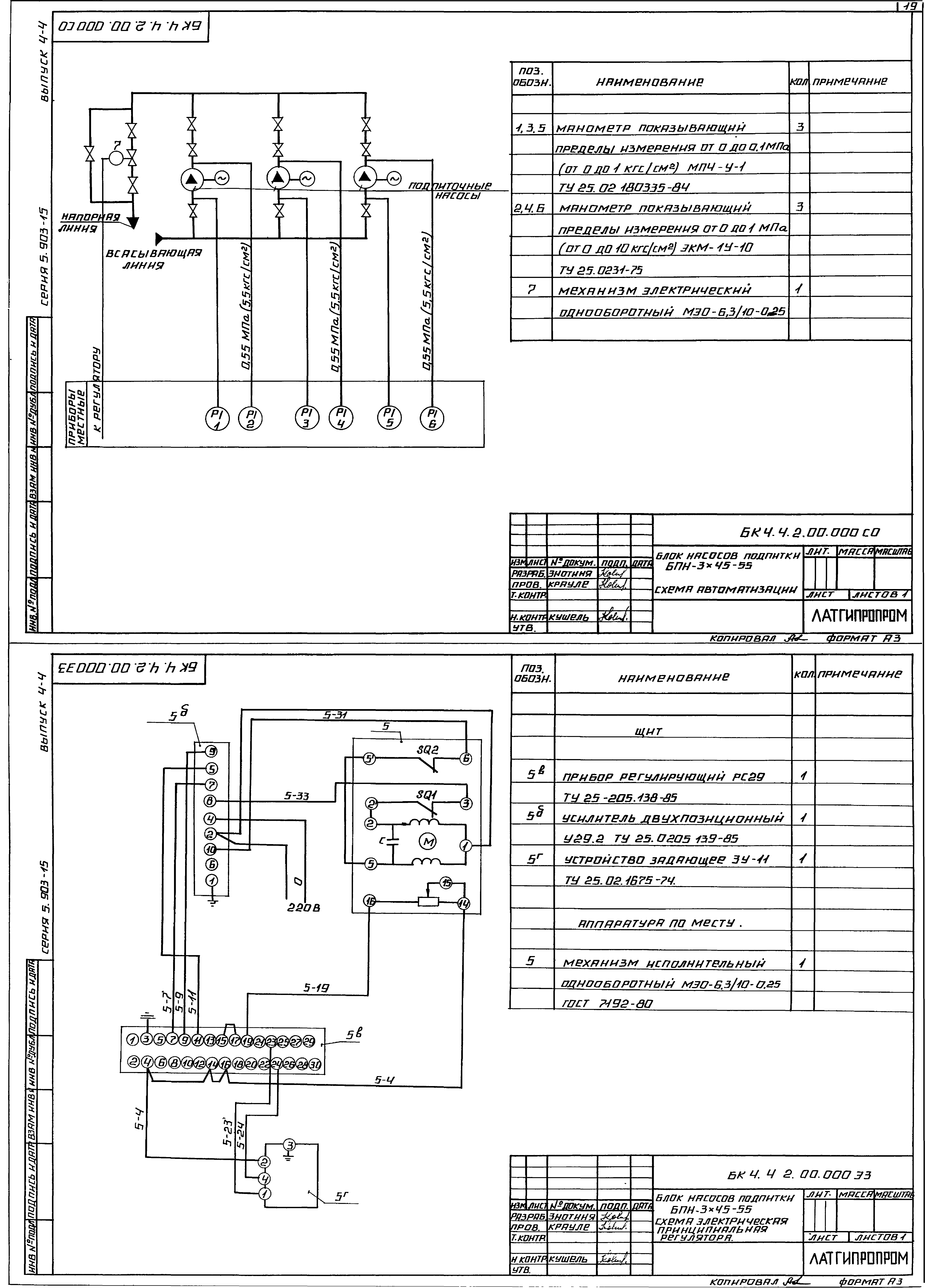
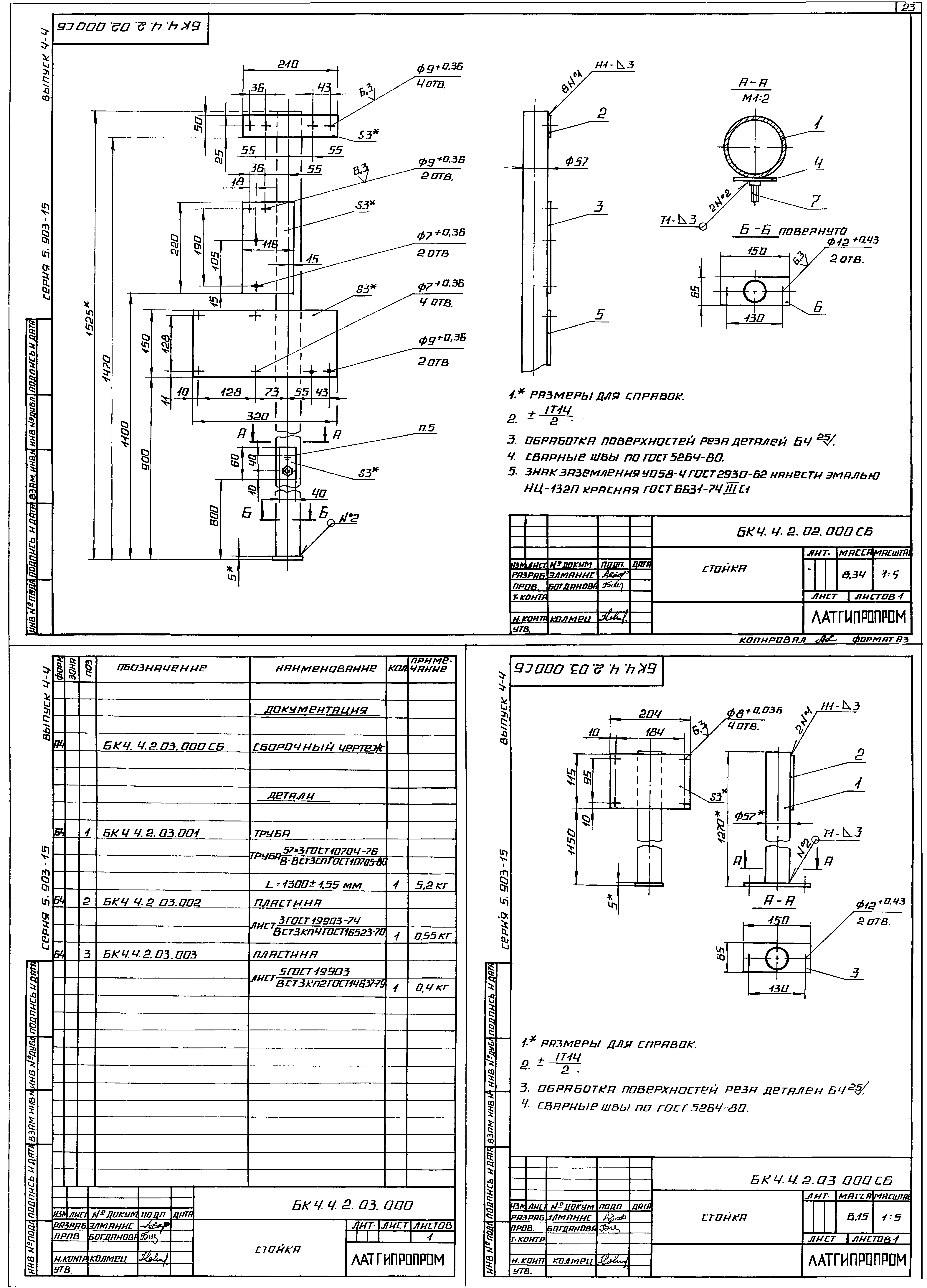
| Оглавление: | БК4.4.1.00.000 Блок БПН-3х45-55 БК2.1.00.001 Скоба БК4.4.1.00.000 СБ Блок БПН-3х45-55 БК4.4.1.00.000 ГЗ Блок БПН-3х45-55. Схема принципиальная БК4.4.1.00.001 Патрубок БК4.4.1.01.000 Рама БК4.4.1.01.000 СБ Рама БК4.4.1.01.000 Рама БК4.4.1.01.001 Полка БК2.2.1.01.001 Петля БК4.4.1.02.000 Трубопровод БК4.4.1.02.001 Патрубок БК4.4.1.02.000 СБ Трубопровод БК4.4.1.03.000 Труба БК4.4.1.03.000 СБ Труба БК4.4.1.04.000 Трубопровод БК4.4.1.04.000 СБ Трубопровод БК4.4.1.04.001 Патрубок БК4.4.1.04.002 Патрубок БК4.4.1.05.000 Труба БК4.4.1.05.000 СБ Труба БК4.4.1.05.01 Патрубок БК4.4.1.06.000 Колено БК4.4.1.06.000 СБ Колено БК4.4.1.07.000 Труба БК4.4.1.07.000 СБ Труба БК4.4.1.08.000 Трубопровод БК2.8.1.07.003 Воронка БК4.4.1.08.001 Труба БК4.2.1.00.002 Патрубок БК4.4.1.08.000 СБ Трубопровод БК4.4.1.09.000 СБ Трубопровод БК4.4.1.09.000 Трубопровод БК4.4.1.10.000 Трубопровод БК4.4.1.10.000 СБ Трубопровод БК4.4.1.10.000 Трубопровод БК4.4.1.10.001 Труба БК4.4.1.11.000 СБ Трубопровод БК4.4.1.11.000 Трубопровод БК4.4.2.00.000 Блок БПН-3х45-55. Установка приборов контроля и автоматизации БК4.4.2.00.000 СБ Блок БПН-3х45-55. Установка приборов контроля и автоматизации БК4.4.2.00.000 СО Блок БПН-3х45-55. Схема автоматизации БК4.4.2.00.000 ЭЗ Блок БПН-3х45-55. Схема электрическая принципиальная регулятора БК4.4.2.00.000 Э4 Блок БПН-3х45-55. Схема соединений БК4.4.2.00.001 Труба БК4.4.2.00.002 Труба БК4.4.2.00.003 Труба БК4.4.2.00.004 Лоток БК4.4.2.01.000 Стойка БК4.4.2.01.000 СБ Стойка БК4.4.2.02.000 Стойка БК4.4.2.02.000 СБ Стойка БК4.4.2.03.000 Стойка БК4.4.2.03.000 СБ Стойка БК4.4.3.00.000 СБ Блок БПН-3х45-55. Установка электрооборудования БК4.4.3.00.000 Блок БПН-3х45-55. Установка электрооборудования БК4.4.4.00.000 ТИ Блок БПН-3х45-55. Ведомость теплоизоляционных конструкций БК4.4.4.00.000 ВМ Блок БПН-3х45-55. Ведомость теплоизоляционных материалов БК4.4.4.00.000 ВО Блок БПН-3х45-55. Ведомость объемов теплоизоляционных работ |
| Разработан: | Латгипропром |
| Утверждён: | 14.02.1990 ММСС СССР |



























