Скачать Серия 5.903-15 Выпуск 4-9. Блок насосов подпитки БПН-3х500-65. Рабочие чертежиДата актуализации: 01.01.2021
|
| Обозначение: | Серия 5.903-15 |
| Обозначение англ: | Series 5.903-15 |
| Статус: | не определен законодательством |
| Название рус.: | Выпуск 4-9. Блок насосов подпитки БПН-3х500-65. Рабочие чертежи |
| Дата добавления в базу: | 01.09.2013 |
| Дата актуализации: | 01.01.2021 |
| Дата введения: | 01.03.1990 |
| Дата окончания срока действия: | 30.06.2003 |
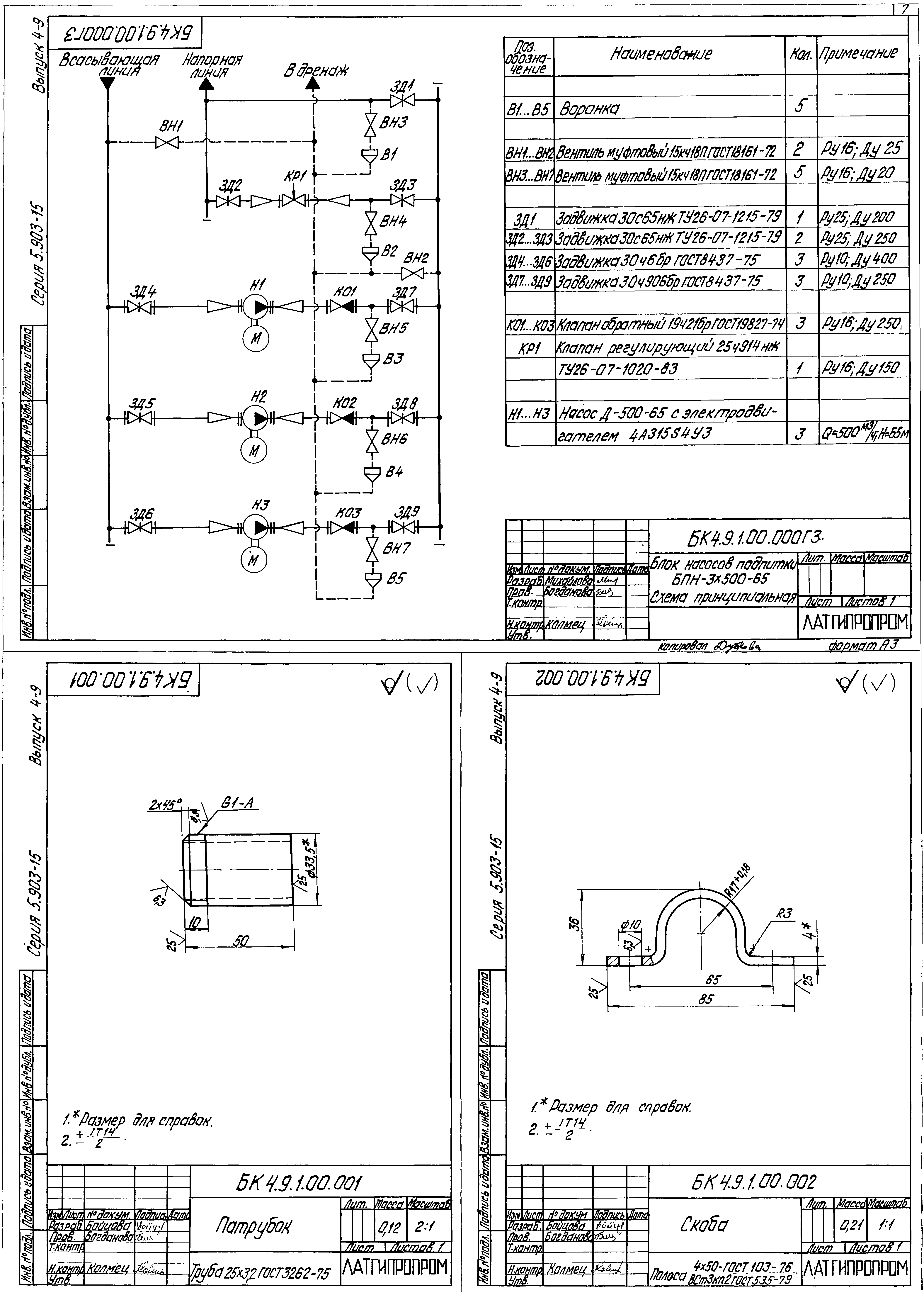
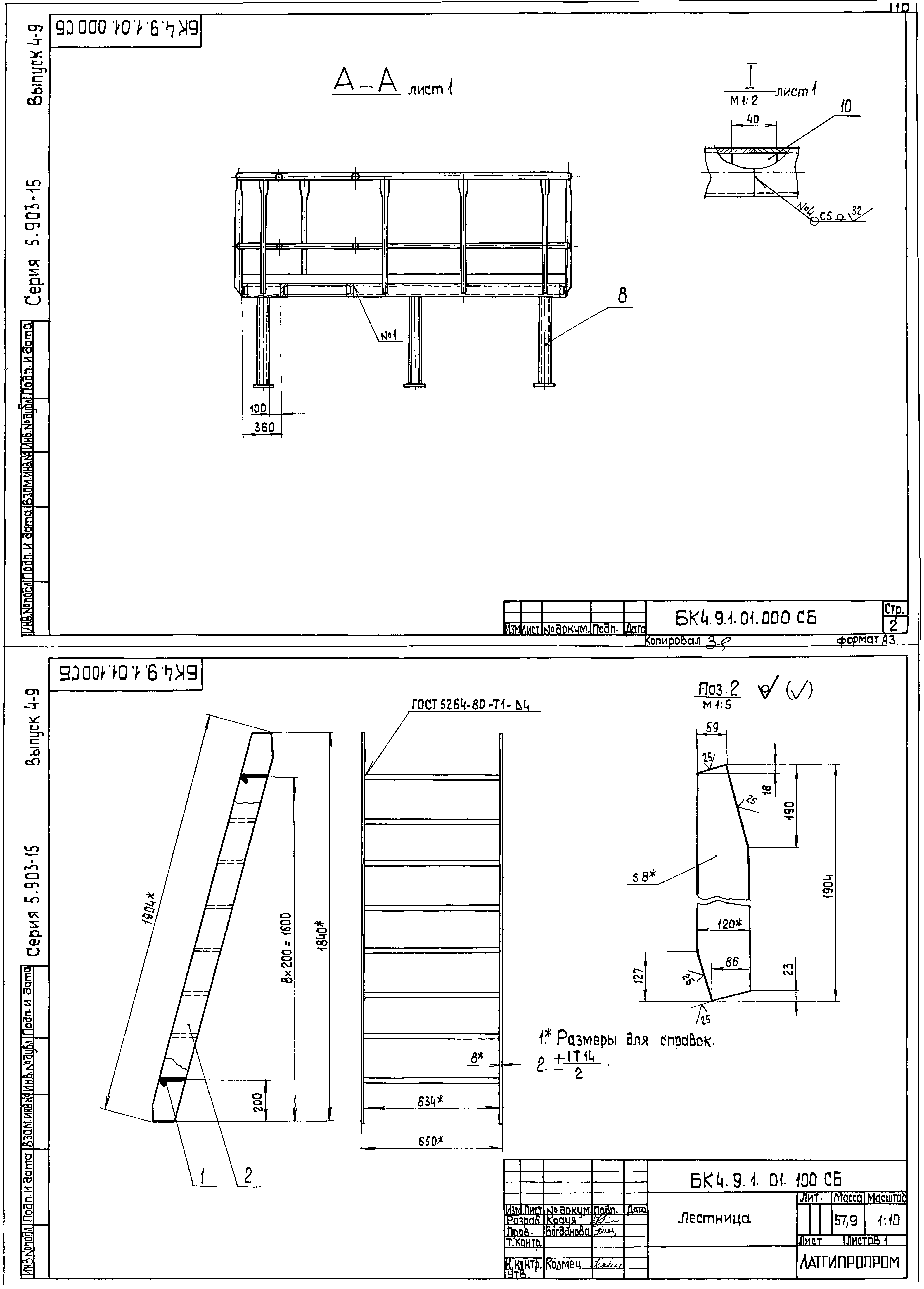
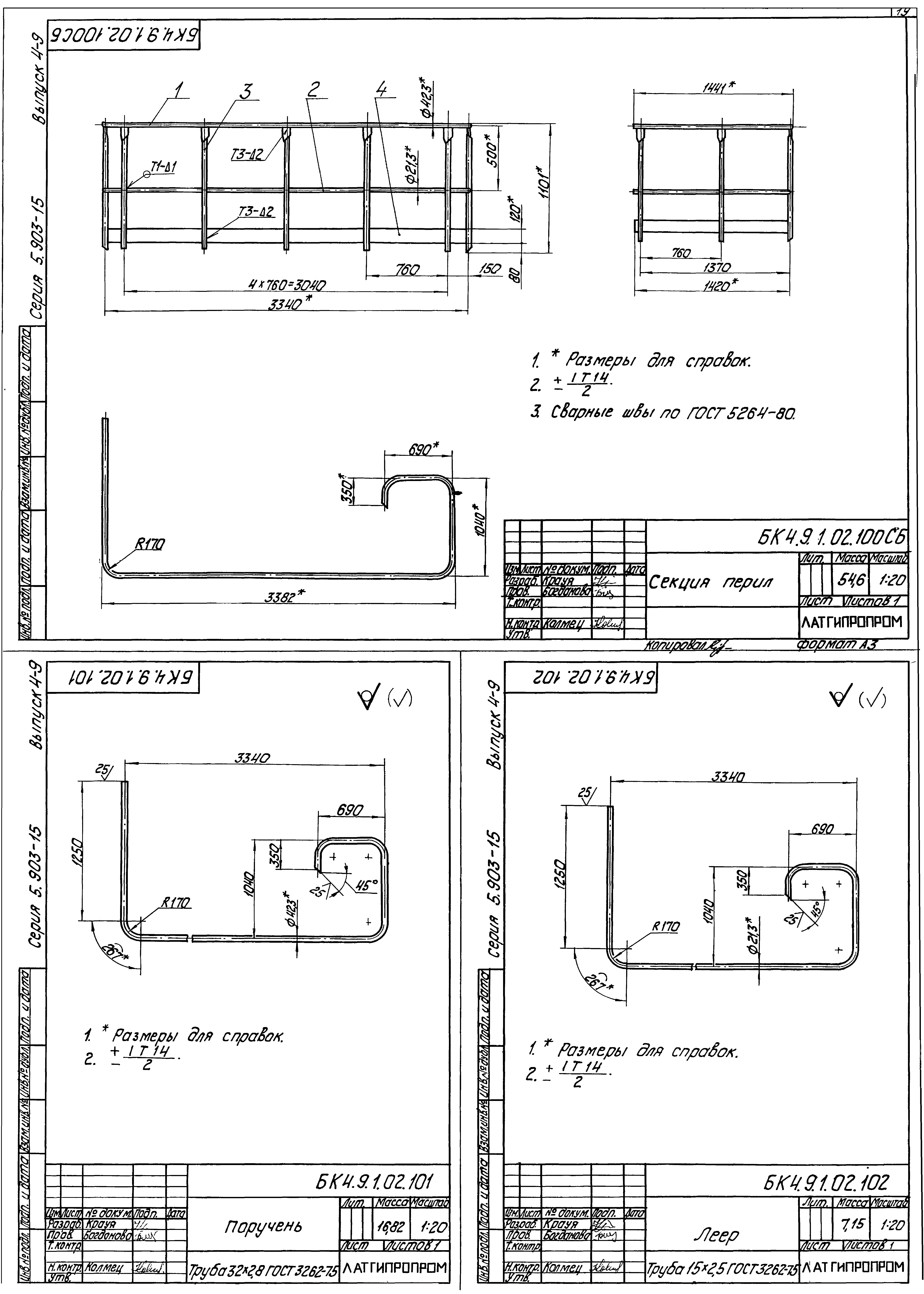
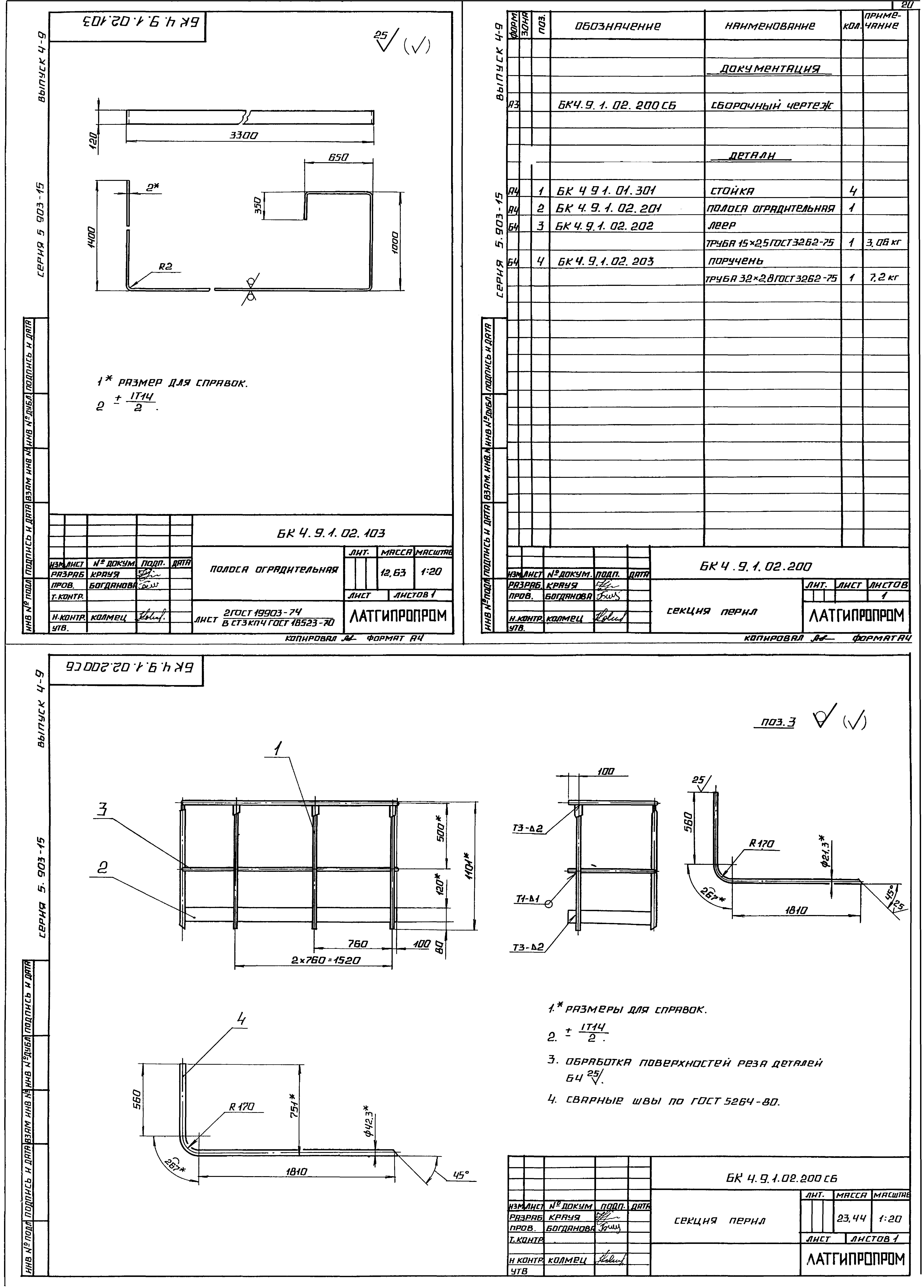
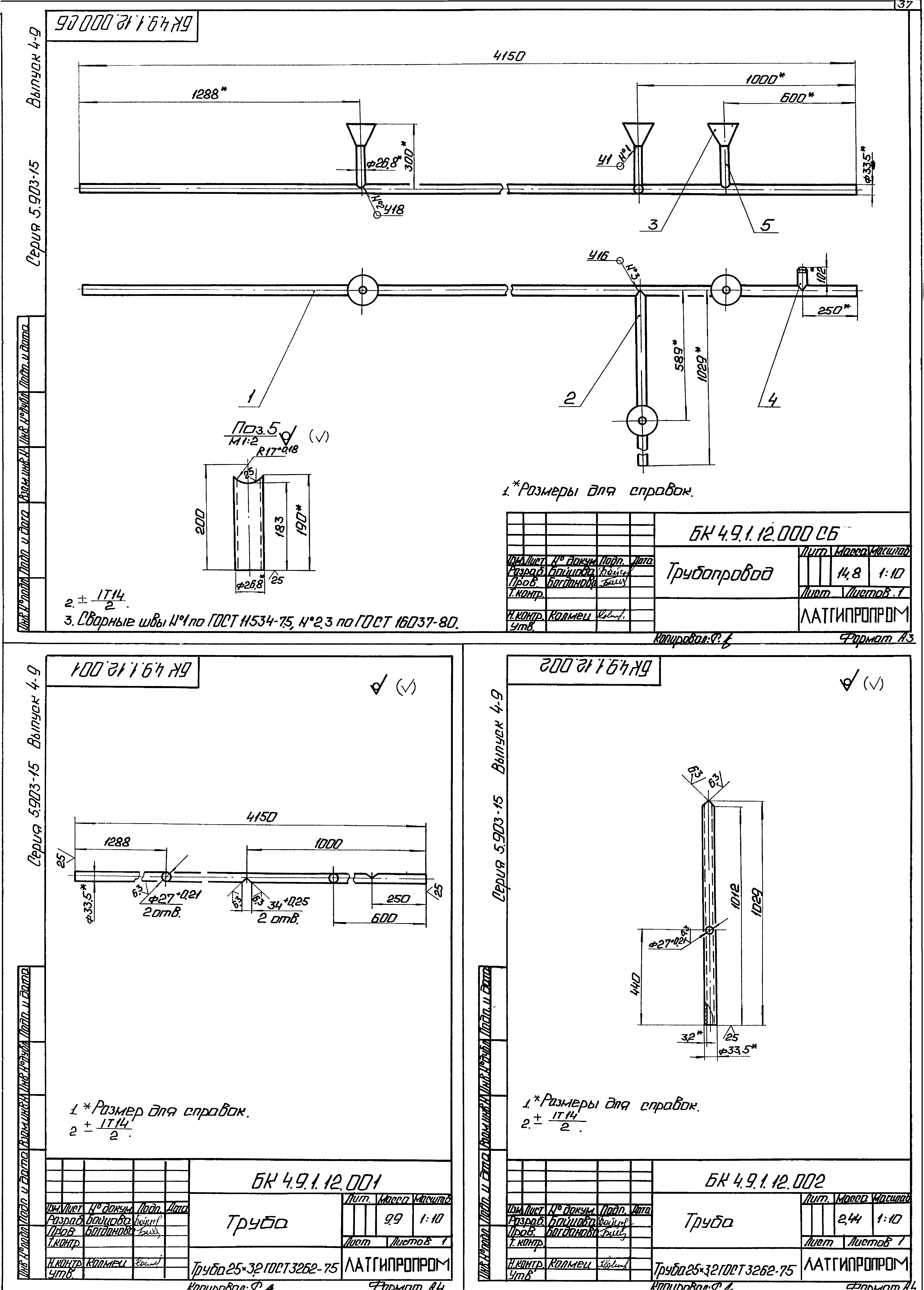
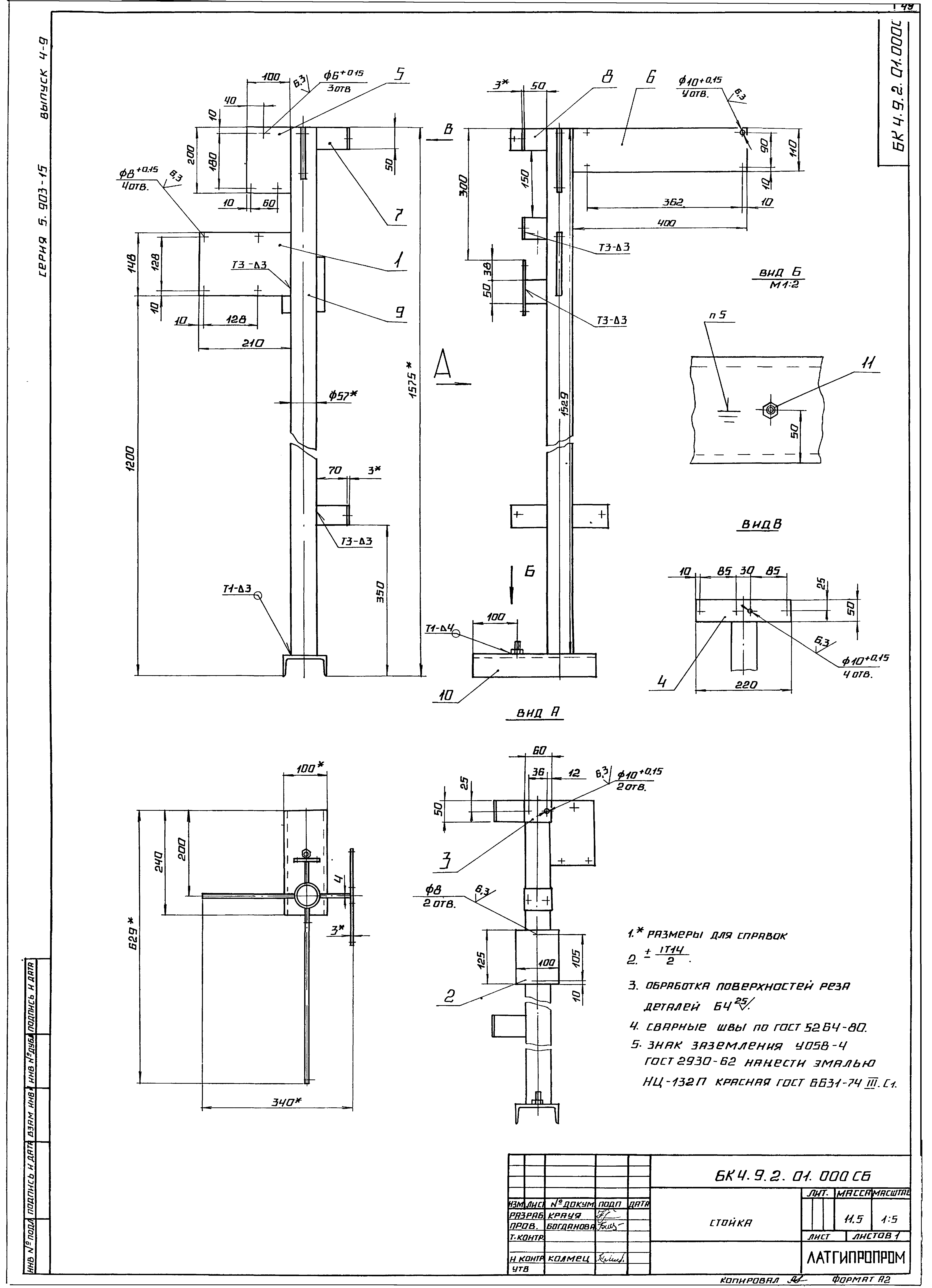
| Оглавление: | БК4.9.1.00.000 Блок БПН-3х500-65. БК4.9.1.00.000 СБ Блок БПН-3х500-65. БК4.9.1.00.000 ГЗ Блок БПН-3х500-65. Схема принципиальная БК4.9.1.00.001 Патрубок БК4.9.1.00.002 Скоба БК4.9.1.00.003 Хомут БК4.9.1.00.004 Хомут БК4.9.1.01.000 Площадка БК4.9.1.01.000 СБ Площадка БК4.9.1.01.100 СБ Лестница БК4.9.1.01.100 Лестница БК4.9.1.01.101 Ступенька БК4.9.1.01.200 Секция перил БК4.9.1.01.200 СБ Секция перил БК4.9.1.01.201 Стойка БК4.9.1.01.202 Поручень БК4.9.1.01.300 СБ Секция перил БК4.9.1.01.300 Секция перил БК4.9.1.01.301 Стойка БК4.9.1.01.302 Поручень БК4.9.1.01.303 Леер БК4.9.1.01.304 Полоса оградительная БК4.9.1.01.400 Секция перил БК4.9.1.01.400 СБ Секция перил БК4.9.1.01.500 Секция перил БК4.9.1.01.501 Полоса оградительная БК4.9.1.01.500 СБ Секция перил БК4.9.1.01.600 СБ Секция перил БК4.9.1.01.600 Секция перил БК4.9.1.01.700 Стойка БК4.9.1.01.700 СБ Стойка БК4.9.1.02.000 Площадка БК4.9.1.02.100 Секция перил БК4.9.1.02.000 СБ Площадка БК4.9.1.02.100 СБ Секция перил БК4.9.1.02.101 Поручень БК4.9.1.02.102 Леер БК4.9.1.02.103 Полоса оградительная БК4.9.1.02.200 Секция перил БК4.9.1.02.200 СБ Секция перил БК4.9.1.02.201 Полоса оградительная БК4.9.1.02.300 Настил БК4.9.1.02.300 СБ Настил БК4.9.1.02.400 Стойка БК4.9.1.02.400 СБ Стойка БК4.9.1.02.500 Стойка БК4.9.1.02.500 СБ Стойка БК4.9.1.03.000 СБ Трубопровод БК4.9.1.03.000 Трубопровод БК4.9.1.03.001 Труба БК4.9.1.03.002 Патрубок БК4.9.1.03.003 Труба БК4.9.1.03.004 Патрубок БК4.9.1.03.005 Патрубок БК4.9.1.03.006 Патрубок БК4.9.1.03.007 Петля БК4.9.1.04.000 Трубопровод БК4.9.1.04.000 СБ Трубопровод БК4.9.1.05.000 Трубопровод БК4.9.1.05.000 СБ Трубопровод БК4.9.1.05.001 Труба БК4.9.1.05.002 Труба БК4.9.1.06.000 Труба БК4.9.1.06.000 СБ Труба БК4.9.1.06.001 Труба БК4.9.1.07.000 Колено БК4.9.1.07.000 СБ Колено БК4.9.1.08.000 Трубопровод БК4.9.1.08.000 СБ Трубопровод БК4.9.1.08.001 Петля БК4.9.1.08.002 Опора БК4.9.1.08.003 Труба БК4.9.1.08.004 Труба БК4.9.1.08.100 Опора БК4.9.1.08.100 СБ Опора БК4.9.1.08.200 Трубопровод БК4.9.1.08.200 СБ Трубопровод БК4.9.1.09.000 Трубопровод БК4.9.1.09.000 СБ Трубопровод БК4.9.1.09.001 Труба БК4.9.1.10.000 Колено БК4.9.1.10.000 СБ Колено БК4.9.1.11.000 Трубопровод БК4.9.1.11.000 СБ Трубопровод БК4.9.1.11.002 Патрубок БК4.9.1.11.001 Патрубок БК4.9.1.12.000 Трубопровод БК4.9.1.12.000 СБ Трубопровод БК4.9.1.12.001 Труба БК4.9.1.12.002 Труба БК4.9.1.12.003 Воронка БК4.9.1.12.004 Патрубок БК4.9.1.13.000 Колено БК4.9.1.14.000 Колено БК4.9.1.13.000 СБ Колено БК4.9.1.14.000 СБ Колено БК4.9.1.15.000 Колено БК4.9.1.15.000 СБ Колено БК4.9.1.16.000 Трубопровод БК4.9.1.16.000 СБ Трубопровод БК4.9.1.16.001 Труба БК4.9.1.17.000 Трубопровод БК4.9.1.17.000 СБ Трубопровод БК4.9.1.17.001 Труба БК4.9.1.18.000 Колено БК4.9.1.18.000 СБ Колено БК4.9.1.19.000 СБ Трубопровод БК4.9.1.19.000 Трубопровод БК4.9.2.00.000 Блок БПН-3х500-65. Установка приборов контроля и автоматики БК4.9.2.00.000 СБ Блок БПН-3х500-65. Установка приборов контроля и автоматики БК4.9.2.00.000 СО Блок БПН-3х500-65. Схема автоматизации БК4.9.2.00.000 Э3 Блок БПН-3х500-65. Схема электрическая принципиальная регулятора БК4.9.2.00.000 Э4 Блок БПН-3х500-65. Схема соединений БК4.9.2.00.001 Трубка БК4.9.2.00.002 Труба БК4.9.2.00.003 Труба БК4.9.2.01.000 Стойка БК4.9.2.02.000 Кронштейн БК4.9.2.01.000 СБ Стойка БК4.9.2.02.000 СБ Кронштейн БК4.9.2.03.000 Стойка БК4.9.2.03.000 СБ Стойка БК4.9.3.00.000 Блок БПН-3х500-65. Установка электрооборудования БК4.9.3.00.000 Э5 Блок БПН-3х500-65. Схема электрическая подключений. Задвижки БК4.9.3.00.000 СБ Блок БПН-3х500-65. Установка электрооборудования БК4.9.3.00.000 Э3 Блок БПН-3х500-65. Схема электрическая управления принципиальная. Задвижки БК4.9.4.00.000 ТИ Блок БПН-3х500-65. Ведомость теплоизоляционных конструкций БК4.9.4.00.000 ВМ Блок БПН-3х500-65. Ведомость теплоизоляционных материалов БК4.9.4.00.000 ВО Блок БПН-3х500-65. Ведомость объемов теплоизоляционных работ |
| Разработан: | Латгипропром |
| Утверждён: | 14.02.1990 ММСС СССР |
























































