Скачать Серия 5.903-15 Выпуск 4-10. Блок насосов подпитки БПН-3х800-57. Рабочие чертежиДата актуализации: 01.01.2021
|
| Обозначение: | Серия 5.903-15 |
| Обозначение англ: | Series 5.903-15 |
| Статус: | не определен законодательством |
| Название рус.: | Выпуск 4-10. Блок насосов подпитки БПН-3х800-57. Рабочие чертежи |
| Дата добавления в базу: | 01.10.2014 |
| Дата актуализации: | 01.01.2021 |
| Дата введения: | 14.02.1990 |
| Дата окончания срока действия: | 30.06.2003 |
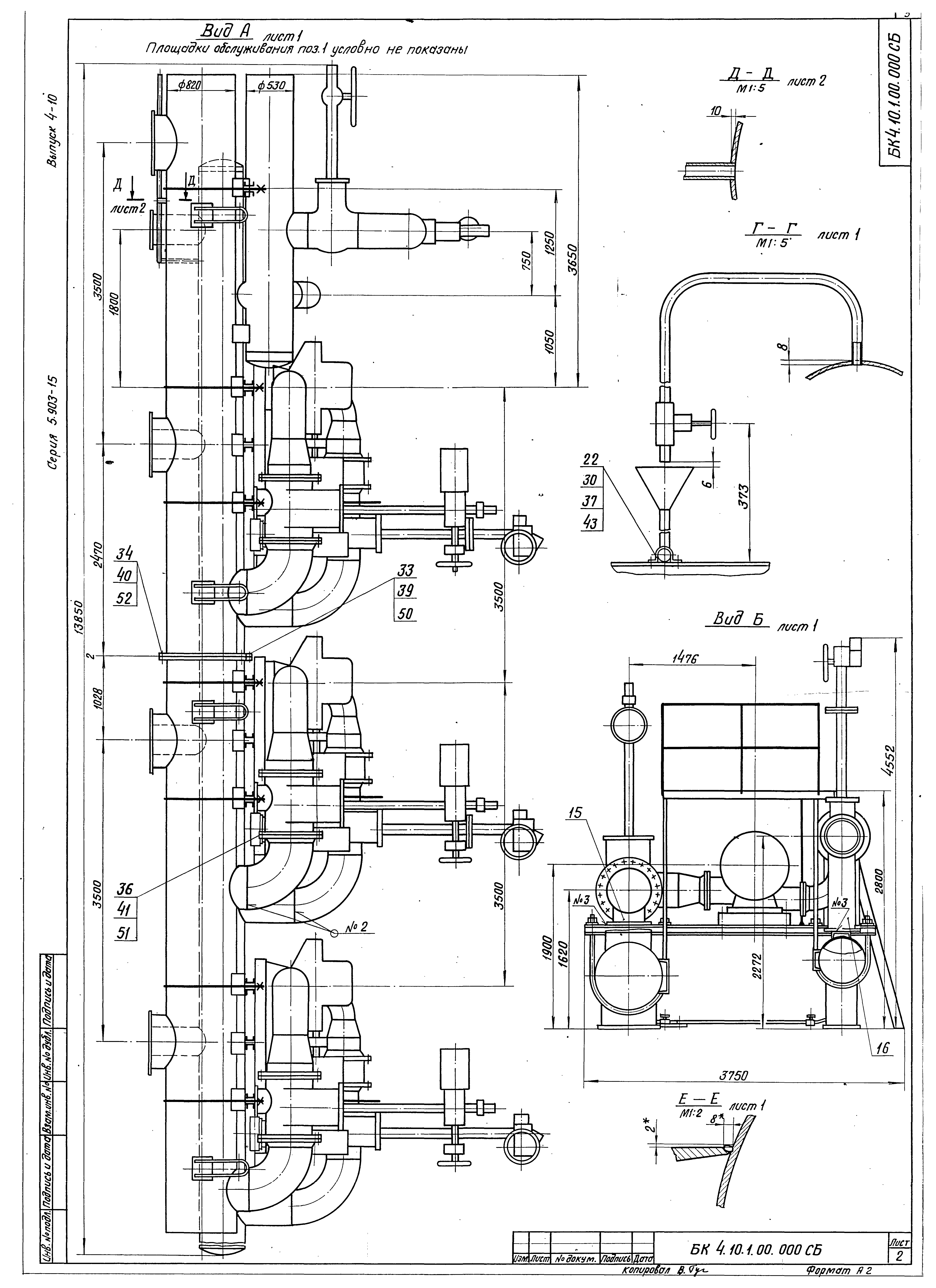
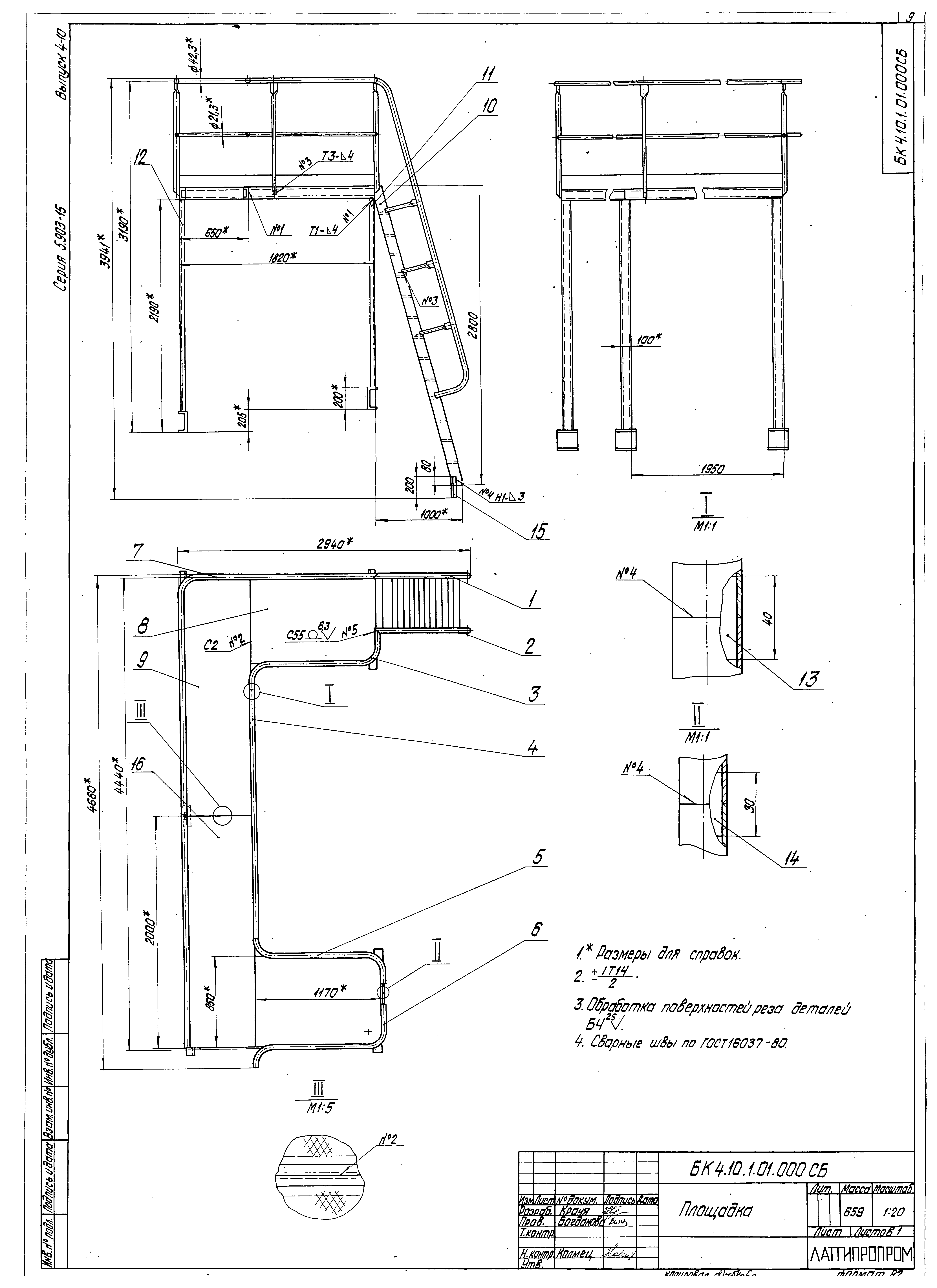
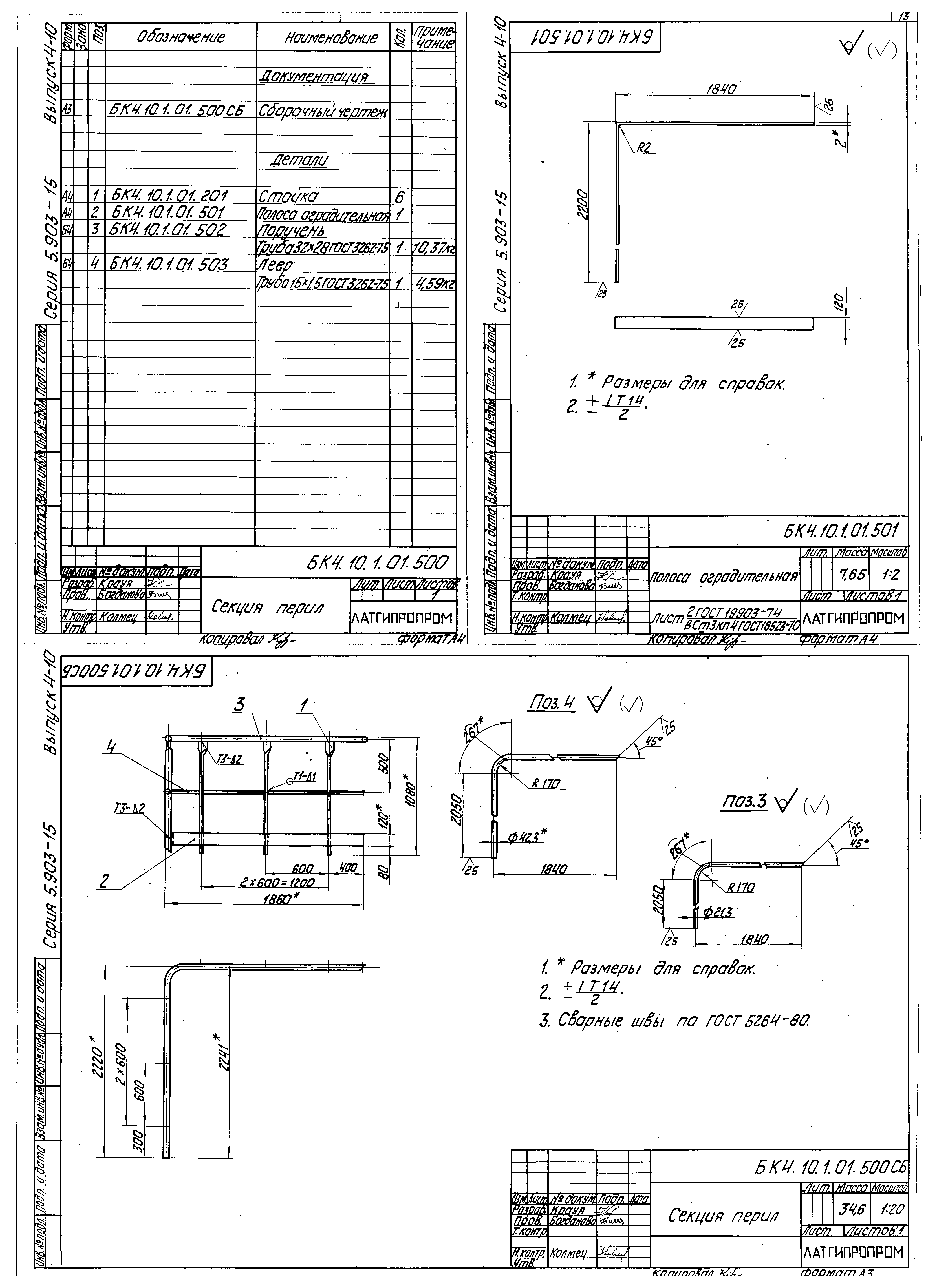
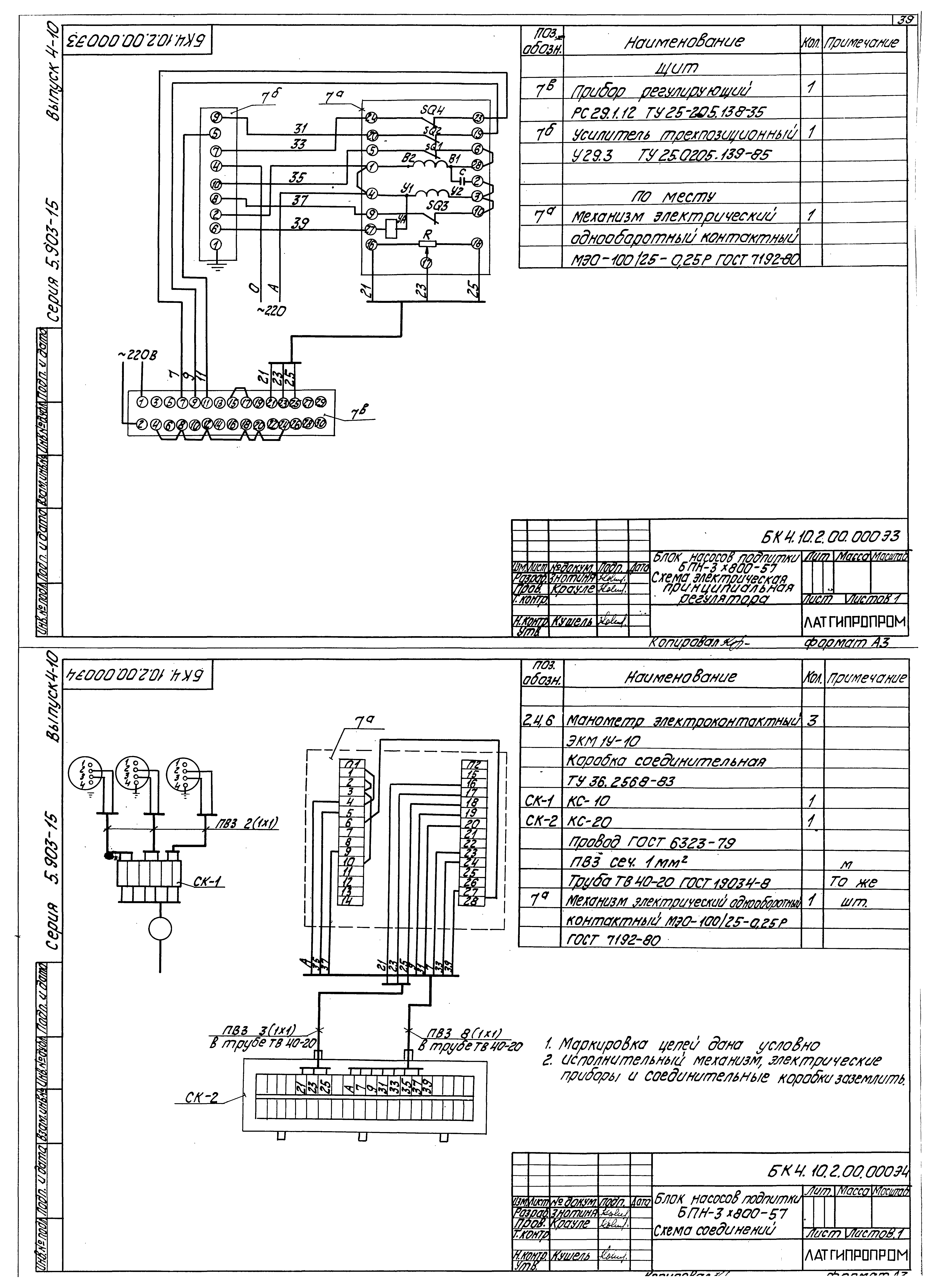
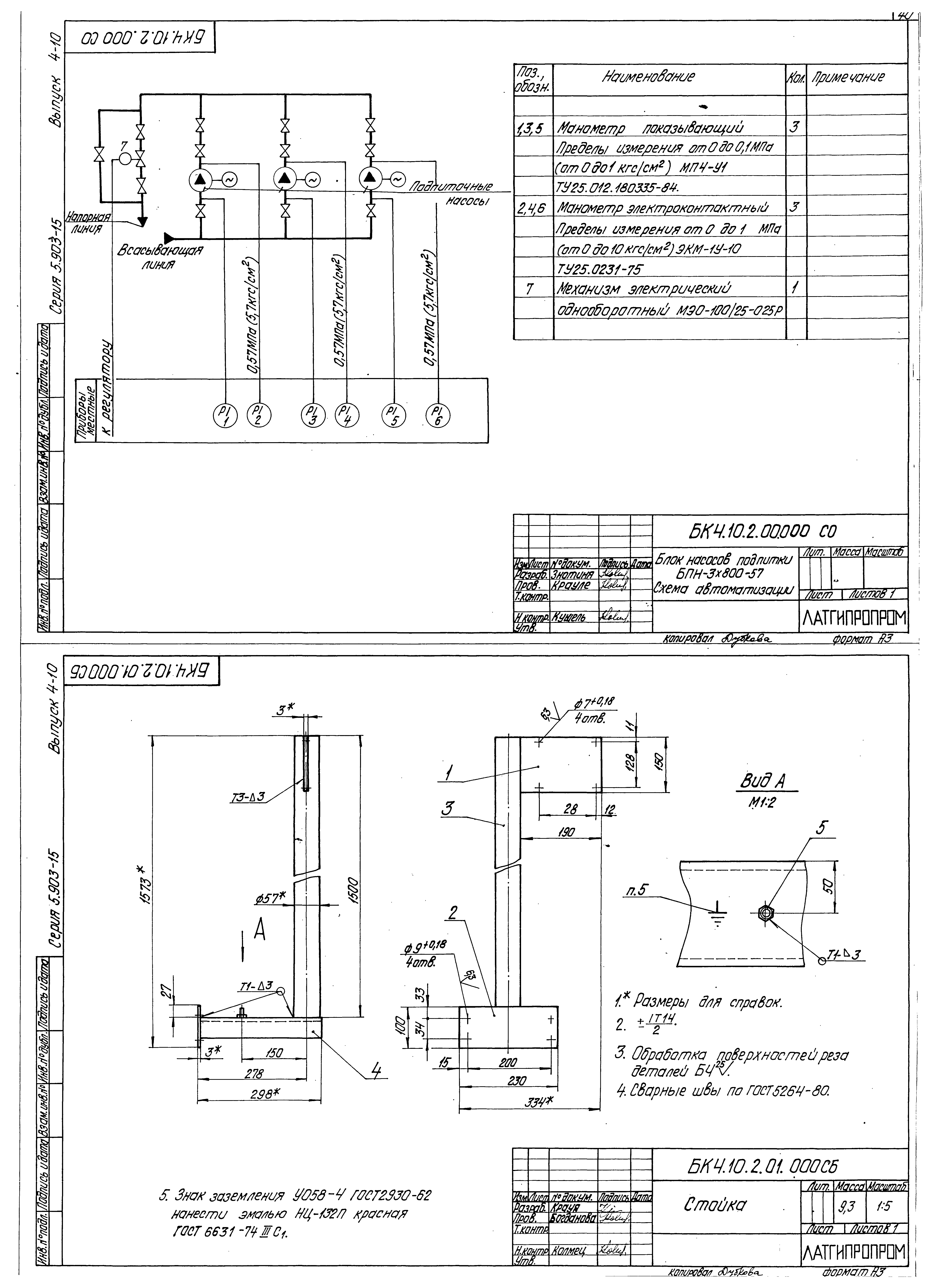
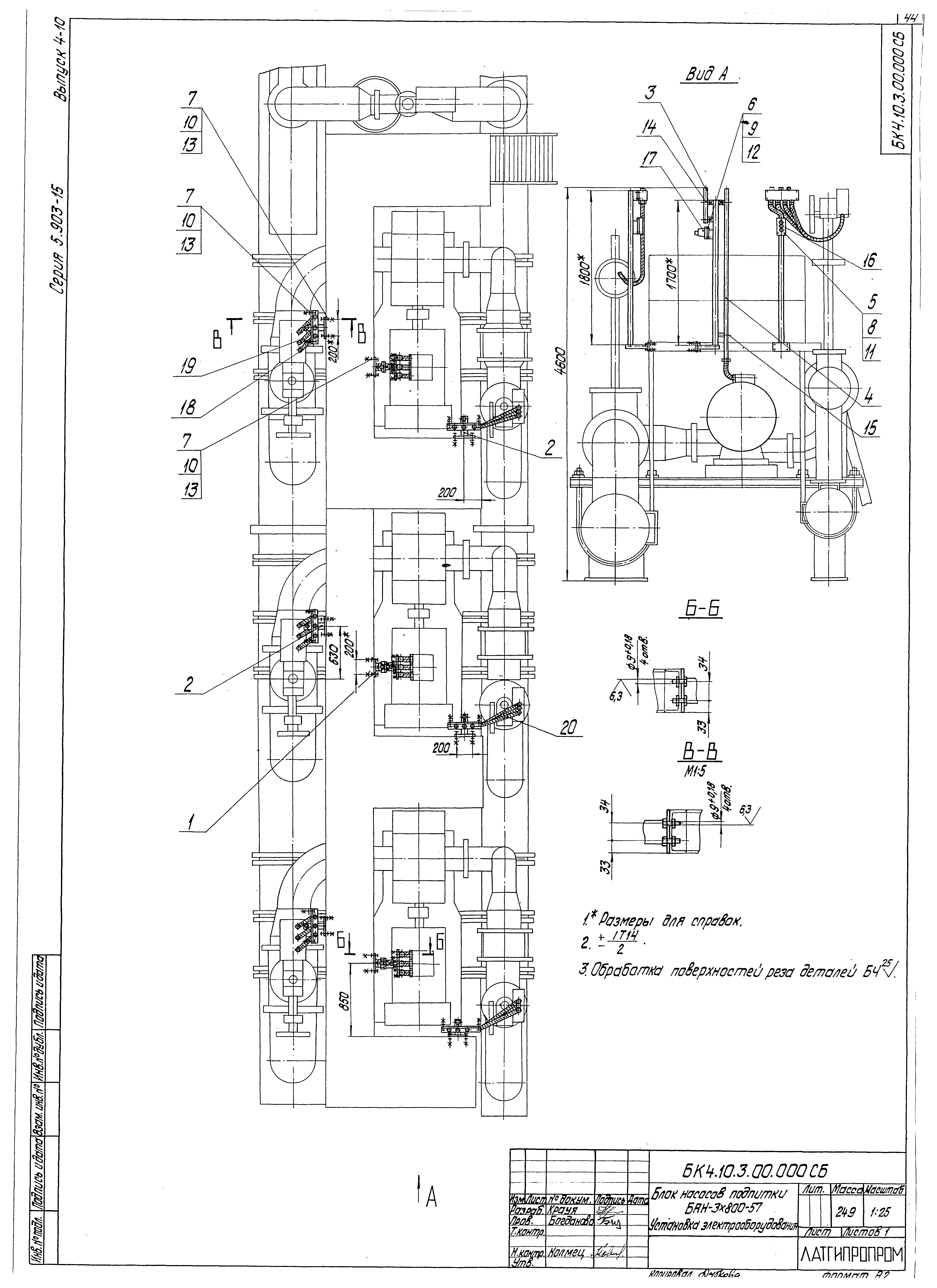
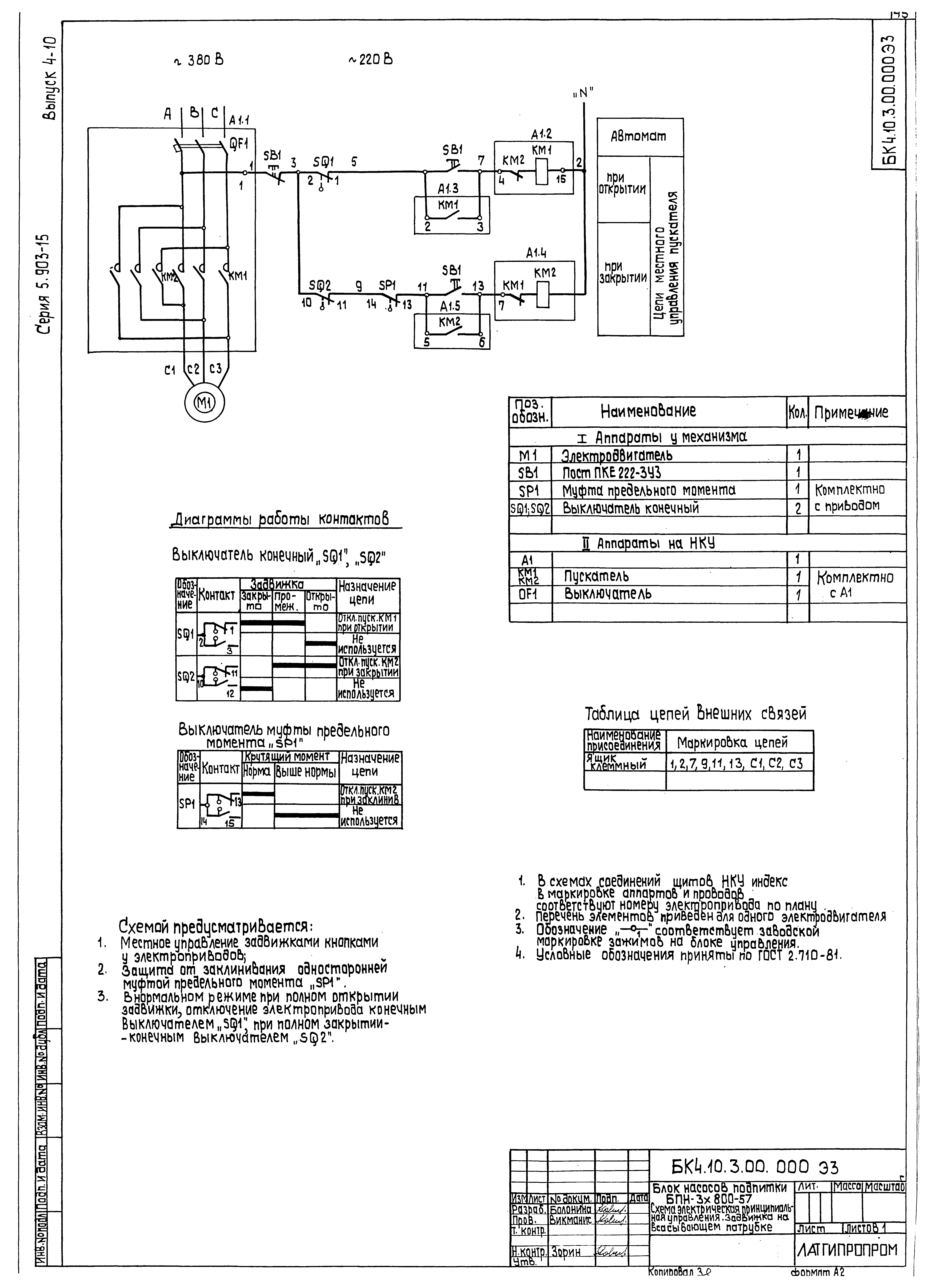
| Оглавление: | Блок насосов подпитки БПН-3х800-57 БК4.10.1.00.000 Блок БПН-3х800-57 БК4.10.1.00.000СБ Блок БПН-3х800-57 БК4.10.1.00.000ГЗ Блок БПН-3х800-57. Схема принципиальная БК4.10.1.00.001 Балка БК4.10.1.00.002 Патрубок БК4.10.1.00.003 Скоба БК4.10.1.00.004 Балка БК4.10.1.00.005 Хомут БК4.10.1.00.006 Хомут БК4.10.1.01.000 Площадка БК4.10.1.01.100 Секция перил БК4.10.1.01.100СБ Секция перил БК4.10.1.01.000СБ Площадка БК4.10.1.01.101 Стойка БК4.10.1.01.200 Секция перил БК4.10.1.01.200СБ Секция перил БК4.10.1.01.201 Стойка БК4.10.1.01.202 Полоса оградительная БК4.10.1.01.300 Секция перил БК4.10.1.01.300СБ Секция перил БК4.10.1.01.400 Секция перил БК4.10.1.01.401 Полоса оградительная БК4.10.1.01.400СБ Секция перил БК4.10.1.01.500 Секция перил БК4.10.1.01.501 Полоса оградительная БК4.10.1.01.500СБ Секция перил БК4.10.1.01.600 Настил БК4.10.1.01.600СБ Настил БК4.10.1.01.700 Настил БК4.10.1.01.700СБ Настил БК4.10.1.01.800СБ Лестница БК4.10.1.01.800 Лестница БК4.10.1.01.801 Ступенька БК4.10.1.01.900 Стойка БК4.10.1.01.900СБ Стойка БК4.10.1.02.000 Трубопровод БК4.10.1.02.001 Петля БК4.10.1.02.002 Труба БК4.10.1.02.000СБ Трубопровод БК4.10.1.02.003 Патрубок БК4.10.1.03.000 Трубопровод БК4.10.1.03.000СБ Трубопровод БК4.10.1.04.000 Трубопровод БК4.10.1.04.001 Труба БК4.10.1.05.000 Трубопровод БК4.10.1.04.000СБ Трубопровод БК4.10.1.05.000СБ Трубопровод БК4.10.1.05.001 Труба БК4.10.1.06.000 Колено БК4.10.1.06.000СБ Колено БК4.10.1.07.000 Трубопровод БК4.10.1.07.000СБ Трубопровод БК4.10.1.07.001 Заглушка БК4.10.1.07.002 Труба БК4.10.1.08.000СБ Трубопровод БК4.10.1.08.000 Трубопровод БК4.10.1.09.000 Трубопровод БК4.10.1.09.000СБ Трубопровод БК4.10.1.09.001 Труба БК4.10.1.10.000 Трубопровод БК4.10.1.10.002 Патрубок БК4.10.1.10.000СБ Трубопровод БК4.10.1.10.001 Воронка БК4.10.1.10.003 Труба БК4.10.1.11.000 Колено БК4.10.1.11.000СБ Колено БК4.10.1.12.000 Колено БК4.10.1.12.000СБ Колено БК4.10.1.13.000 Колено БК4.10.1.13.000СБ Колено БК4.10.1.14.000СБ Трубопровод БК4.10.1.14.000 Трубопровод БК4.10.1.14.001 Труба БК4.10.1.15.000 Опора БК4.10.1.15.000СБ Опора БК4.10.1.16.000 Опора БК4.10.1.16.000СБ Опора БК4.10.1.17.000 Площадка БК4.10.1.17.000СБ Площадка БК4.10.1.17.000 Площадка БК4.10.1.17.100 Стойка БК4.10.1.17.100СБ Стойка БК4.10.1.17.200 Секция перил БК4.10.1.17.200СБ Секция перил БК4.10.1.18.000 Колено БК4.10.1.18.000СБ Колено Установка приборов контроля и автоматики блока БПН-3х800-57 БК4.10.2.00.000 Блок БПН-3х800-57. Установка приборов контроля и автоматики БК4.10.2.00.001 Труба БК4.10.2.00.000СБ Блок БПН-3х800-57. Установка приборов контроля и автоматики БК4.10.2.00.000Э3 Блок БПН-3х800-57. Схема электрическая принципиальная регулятора БК4.10.2.00.000Э4 Блок БПН-3х800-57. Схема соединений БК4.10.2.00.000СО Блок БПН-3х800-57. Схема автоматизации БК4.10.2.01.000СБ Стойка БК4.10.2.01.000 Стойка БК4.10.2.02.000 Стойка БК4.10.2.02.000СБ Стойка БК4.10.2.03.000 Стойка БК4.10.2.03.000СБ Стойка Установка электрооборудования блока БПН-3х800-57 БК4.10.3.00.000 Блок БПН-3х800-57. Установка электрооборудования БК4.10.3.01.000 Стойка БК4.10.3.00.000СБ Блок БПН-3х800-57. Установка электрооборудования БК4.10.3.00.000Э3 Блок БПН-3х800-57. Схема электрическая принципиальная управления. Задвижка на всасывающем патрубке БК4.10.3.00.000Э3.1 Блок БПН-3х800-57. Схема электрическая принципиальная управления. Задвижка на напорном патрубке БК4.10.3.00.000Э5 Блок БПН-3х800-57. Схема электрическая подключений. Задвижка на всасывающем патрубке БК4.10.3.00.000Э5.1 Блок БПН-3х800-57. Схема электрическая подключений. Задвижка на напорном патрубке БК4.10.3.01.000СБ Стойка БК4.10.3.02.000СБ Стойка БК4.10.3.01.000 Стойка БК4.10.3.02.000 Стойка Теплоизоляция блока БПН-3х800-57 БК4.10.4.00.000ВО Блок БПН-3х800-57. Ведомость объемов теплоизоляционных работ БК4.10.4.00.000ТИ Блок БПН-3х800-57. Ведомость теплоизоляционных работ БК4.10.4.00.000ВМ Блок БПН-3х800-57. Ведомость теплоизоляционных материалов |
| Разработан: | Латгипропром |
| Утверждён: | 14.02.1990 ММСС СССР |




















































