Скачать Серия 5.903-15 Выпуск 8-3. Блок парового коллектора БПК-32,0. Рабочие чертежиДата актуализации: 01.01.2021
|
| Обозначение: | Серия 5.903-15 |
| Обозначение англ: | Series 5.903-15 |
| Статус: | не определен законодательством |
| Название рус.: | Выпуск 8-3. Блок парового коллектора БПК-32,0. Рабочие чертежи |
| Дата добавления в базу: | 01.09.2013 |
| Дата актуализации: | 01.01.2021 |
| Дата введения: | 01.03.1990 |
| Дата окончания срока действия: | 30.06.2003 |
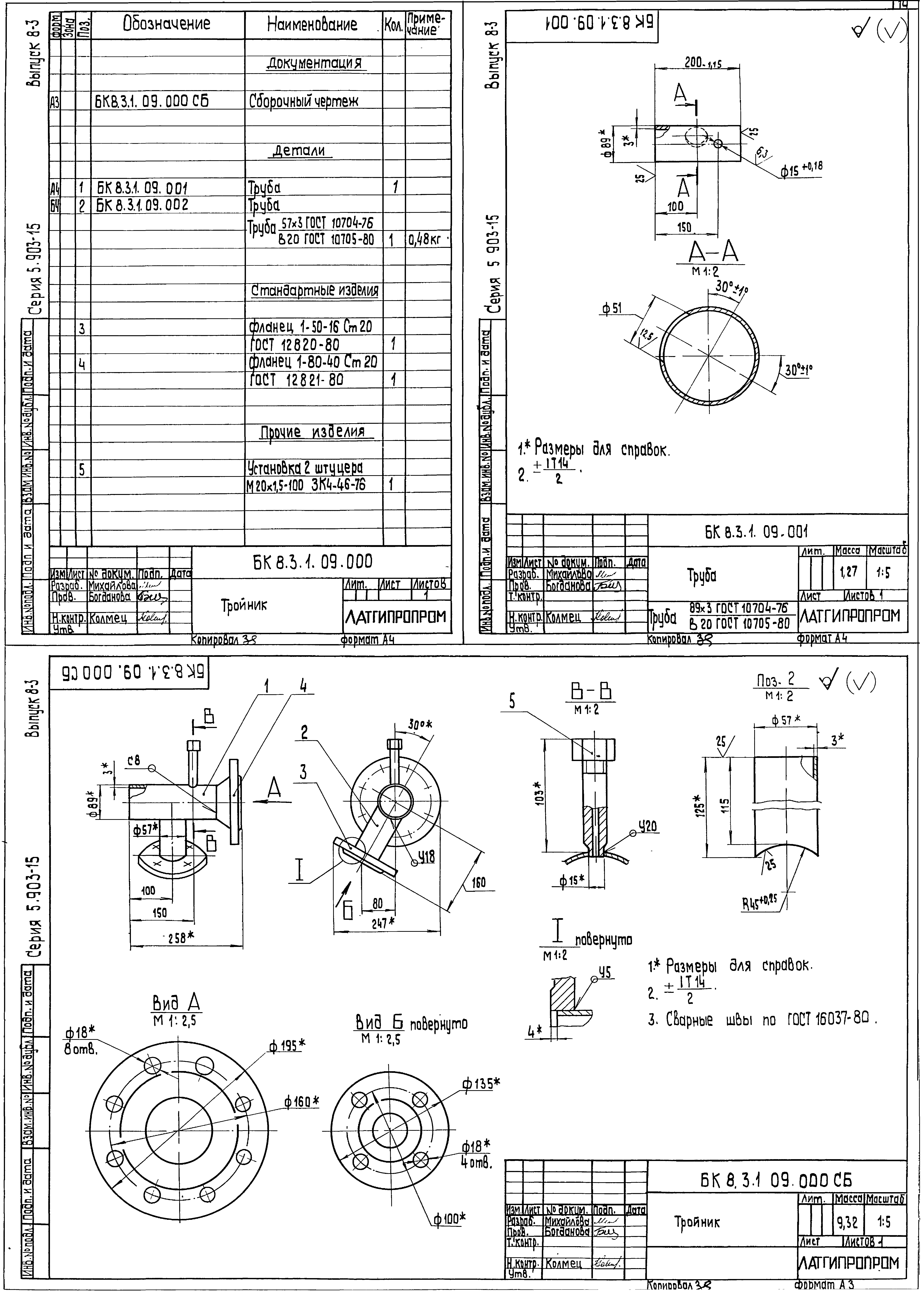
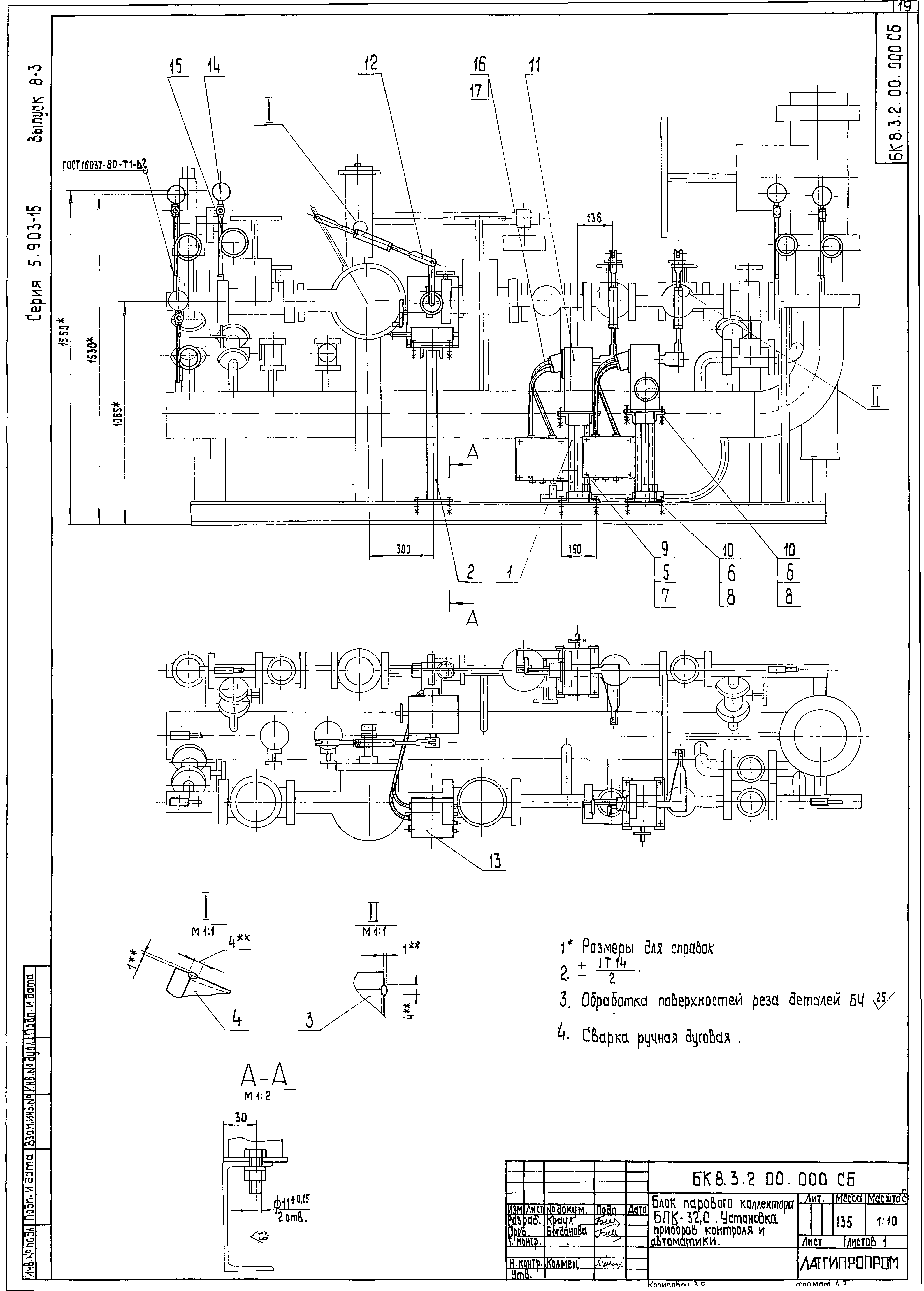
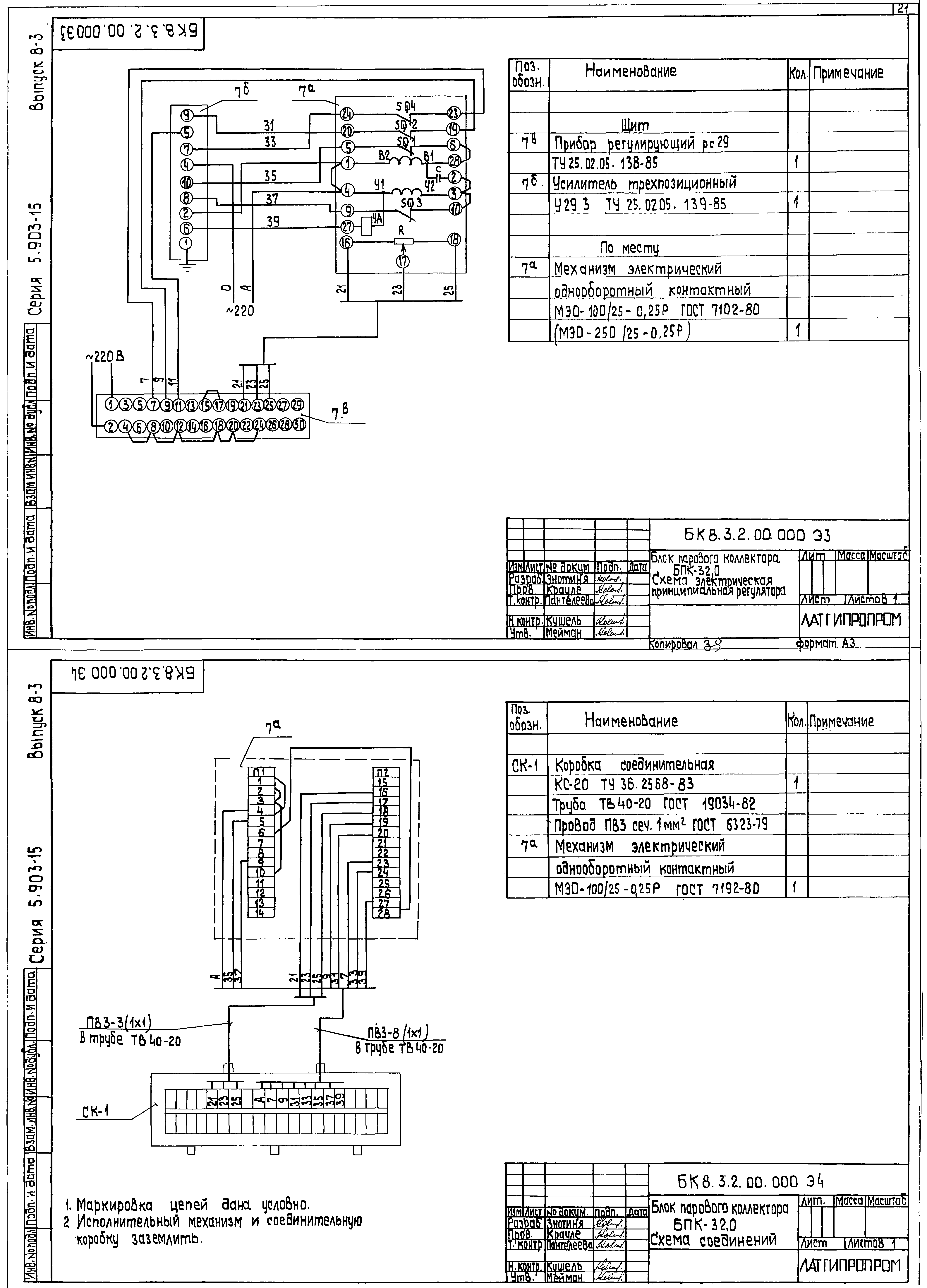
| Оглавление: | БК8.3.1.00.000 Блок БПК-32,0 БК8.3.1.00.000 ГЗ Блок БПК-32,0. Схема принципиальная БК8.3.1.00.000 СБ Блок БПК-32,0 БК8.3.1.00.000 Блок БПК-32,0 БК8.3.1.01.000 Рама БК8.3.1.01.0001 Петля БК8.3.1.01.000 СБ Рама БК8.3.1.02.000 Коллектор БК8.3.1.02.001 Труба БК8.3.1.02.000 СБ Коллектор БК8.3.1.02.002 Труба БК8.3.1.02.003 Труба БК8.3.1.03.000 СБ Трубопровод БК8.3.1.03.000 Трубопровод БК8.3.1.03.001 Труба БК8.3.1.04.000 Труба БК8.3.1.04.000 СБ Труба БК8.3.1.05.000 СБ Труба БК8.3.1.05.000 Труба БК8.3.1.06.000 Труба БК8.3.1.06.000 СБ Труба БК8.3.1.07.000 Патрубок БК8.3.1.07.000 СБ Патрубок БК8.3.1.08.000 Тройник БК8.3.1.08.001 Труба БК8.3.1.08.000 СБ Тройник БК8.3.1.09.000 Тройник БК8.3.1.09.001 Труба БК8.3.1.09.000 СБ Тройник БК8.3.1.10.000 Патрубок БК8.3.1.10.000 СБ Патрубок БК8.3.1.11.000 СБ Тройник БК8.3.1.11.000 Тройник БК8.3.1.12.000 Трубопровод БК8.3.1.12.000 СБ Трубопровод БК8.3.1.12.001 Труба БК8.3.1.13.000 Трубопровод БК8.3.1.13.000 СБ Трубопровод БК8.3.1.13.100 СБ Трубопровод БК8.3.1.13.000 Трубопровод БК8.3.1.13.101 Труба БК8.3.2.00.000 Блок БПК-32,0. Установка приборов контроля и автоматики БК8.3.2.00.000 СБ Блок БПК-32,0. Установка приборов контроля и автоматики БК8.3.2.00.000 СО Блок БПК-32,0. Схема автоматизации БК8.3.2.00.000 Э3 Блок БПК-32,0. Схема электрическая принципиальная регулятора БК8.3.2.00.000 Э4 Блок БПК-32,0. Схема соединений БК8.3.2.00.000 Блок БПК-32,0. Установка приборов контроля и автоматики БК8.1.2.01.000 Стойка БК8.1.2.01.000 СБ Стойка БК8.1.2.01.000 Стойка БК8.2.2.01.000 Стойка БК8.2.2.01.000 СБ Стойка БК8.2.2.01.000 Стойка БК8.3.4.00.000 ВО Блок БПК-32,0. Ведомость объемов теплоизоляционных работ БК8.3.4.00.000 ТИ Блок БПК-32,0. Ведомость объемов теплоизоляционных конструкций БК8.3.4.00.000 ВМ Блок БПК-32,0. Ведомость объемов теплоизоляционных материалов |
| Разработан: | Латгипропром |
| Утверждён: | 14.02.1990 ММСС СССР |


























