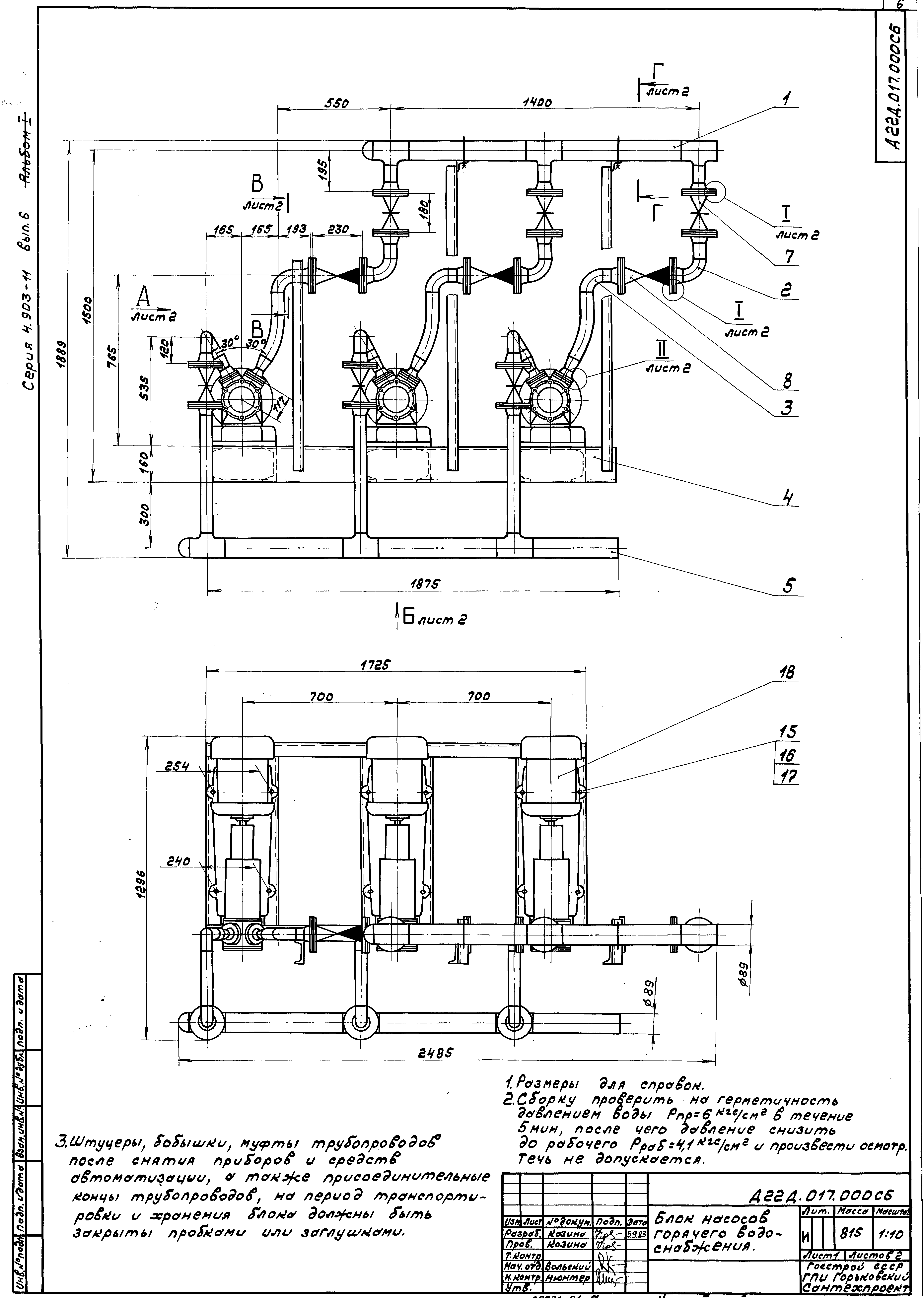
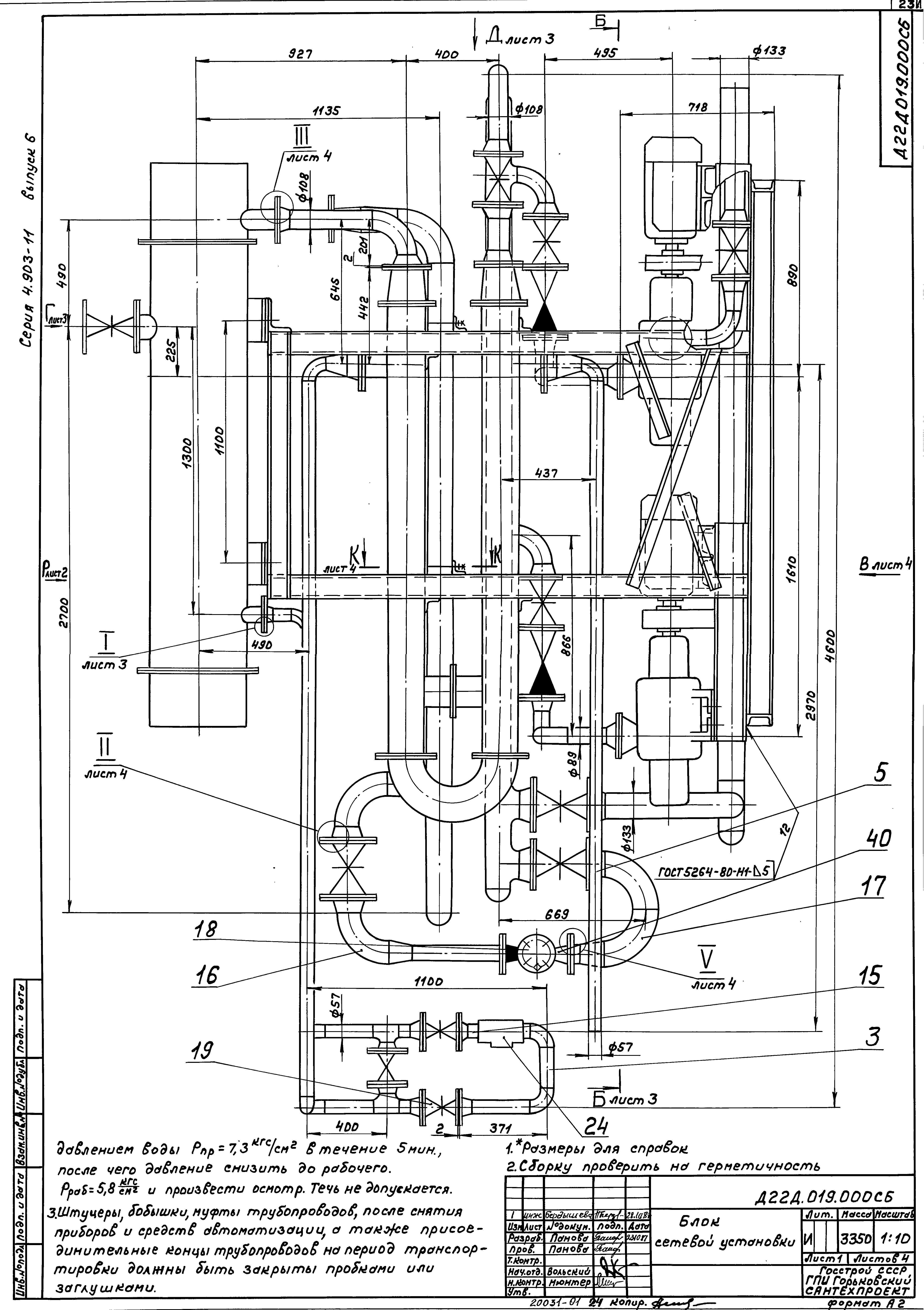
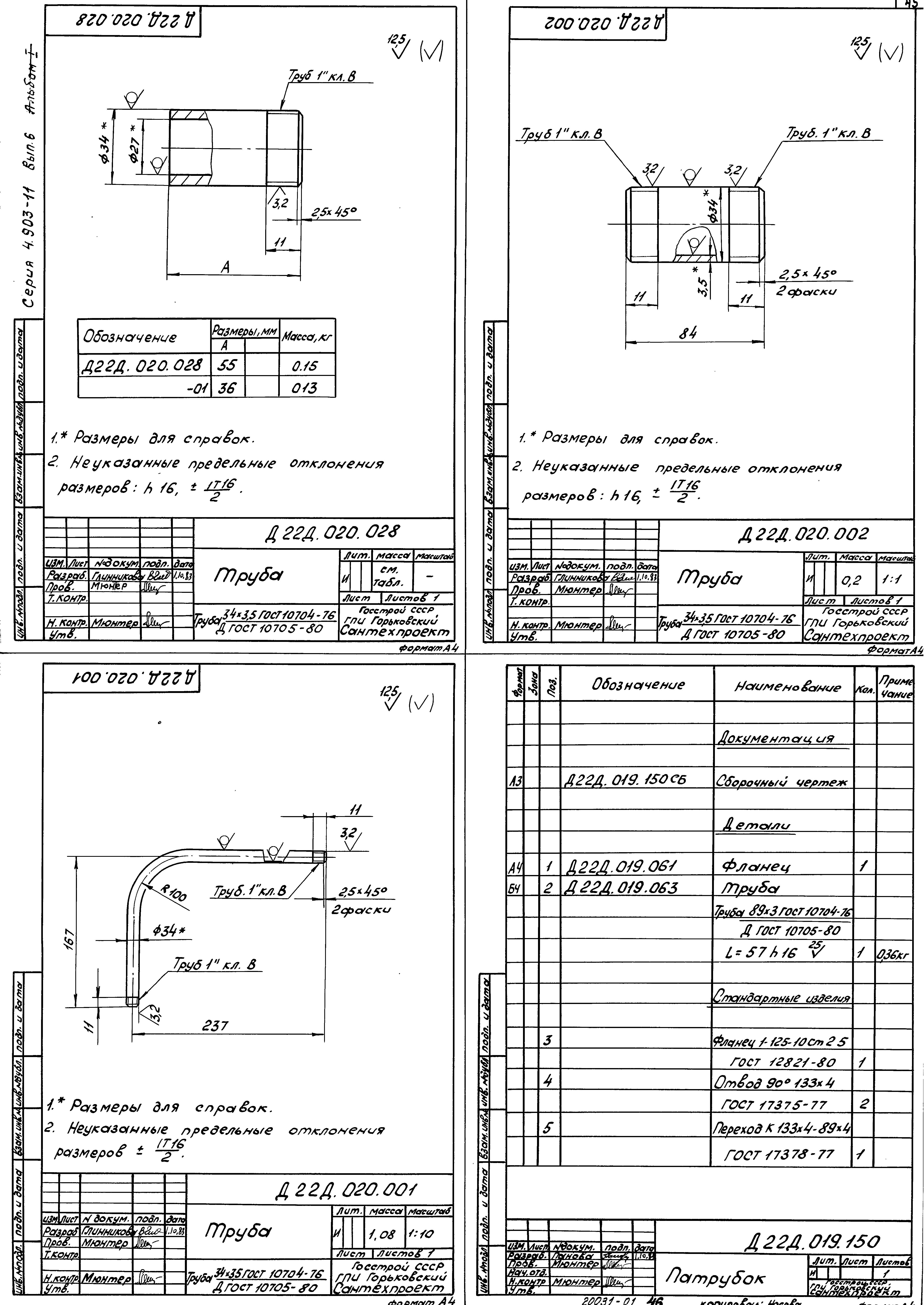
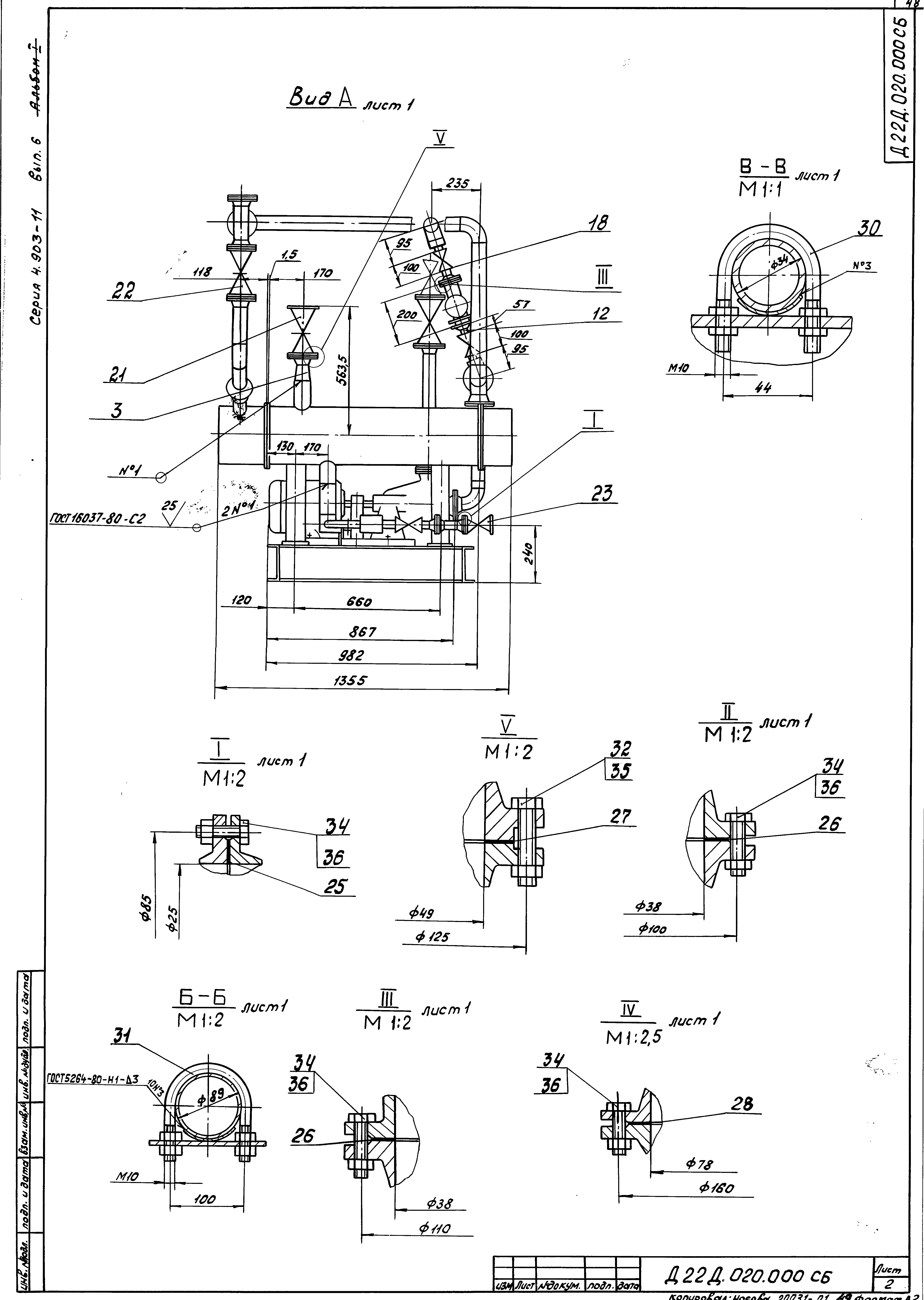
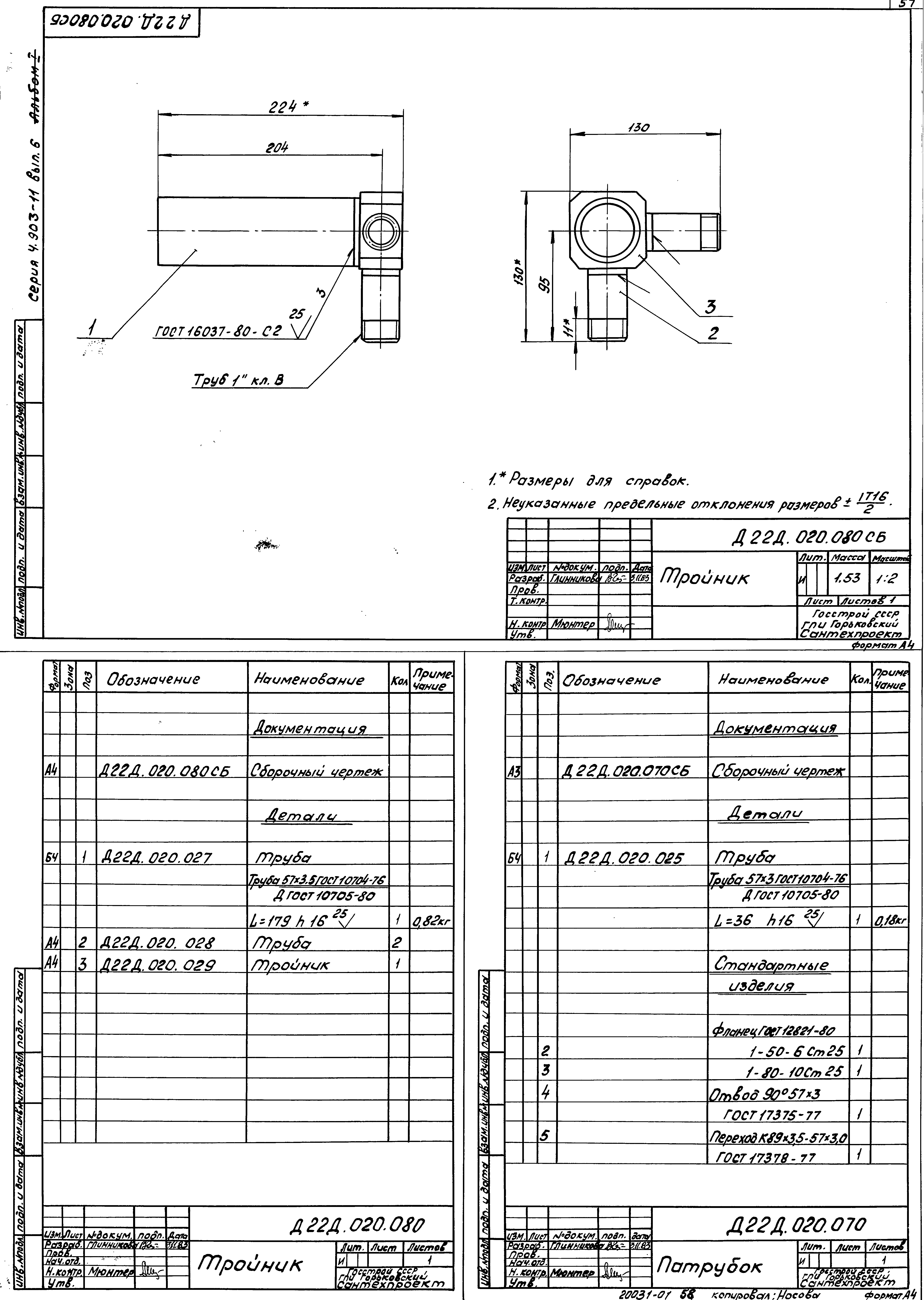
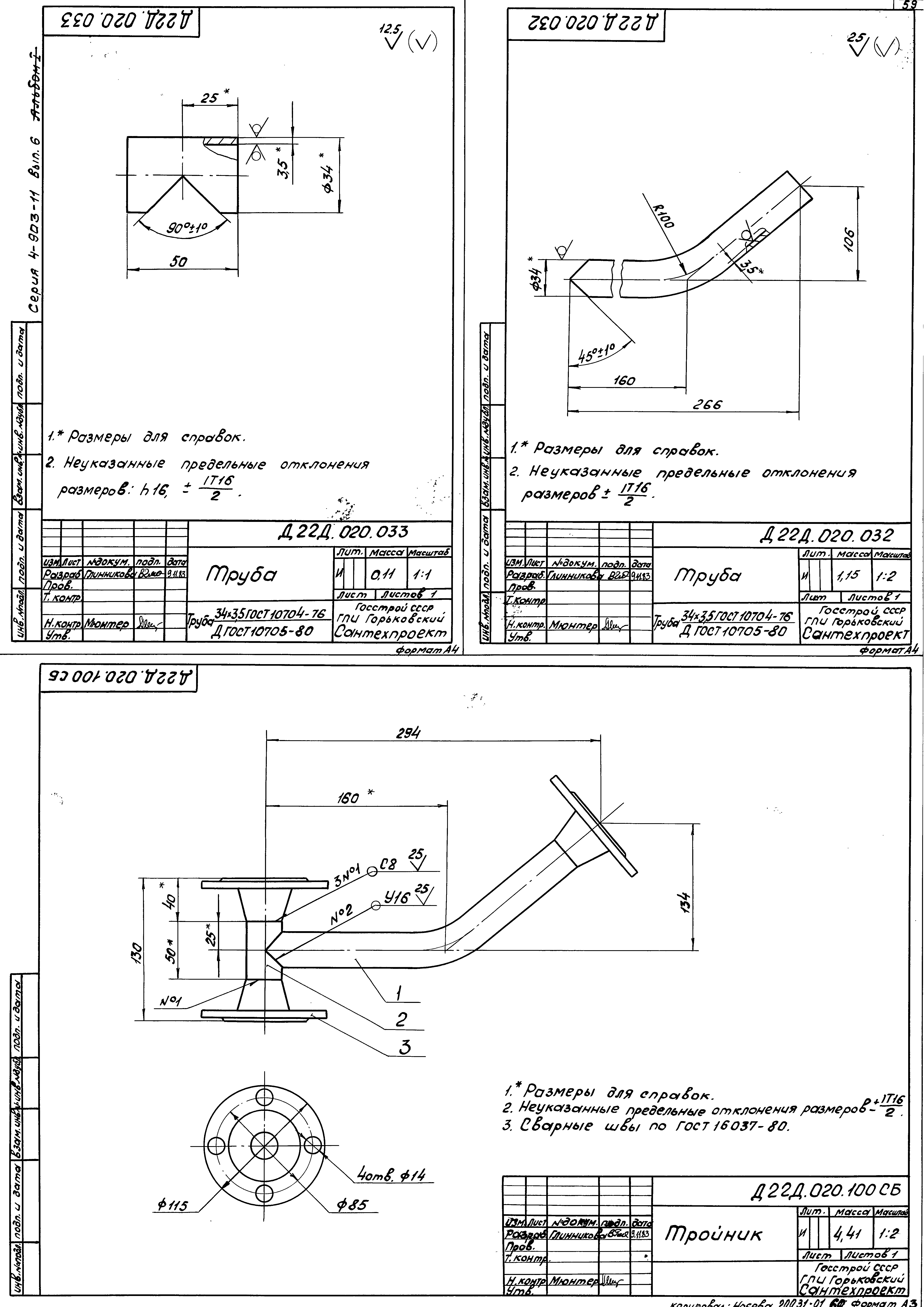
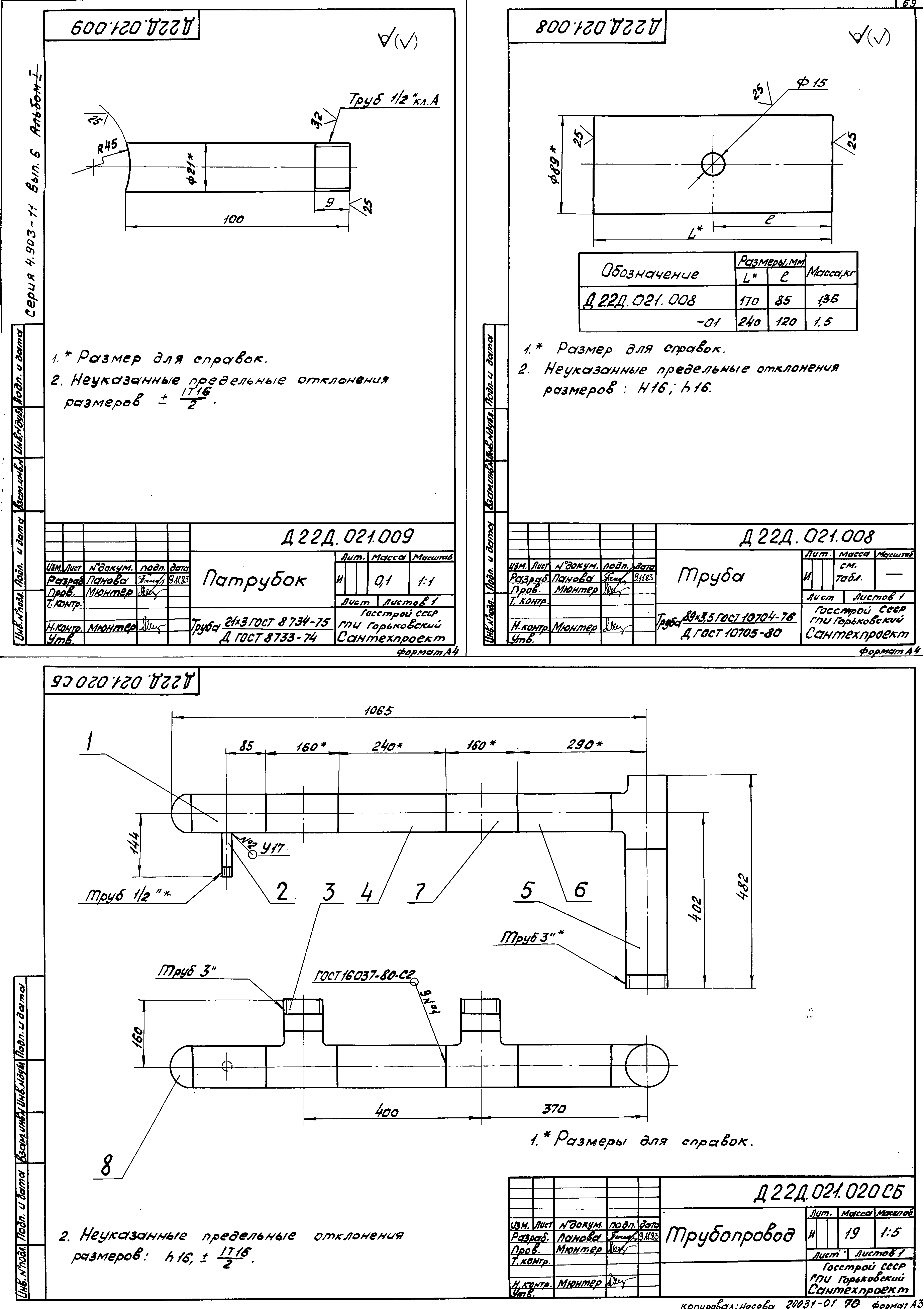
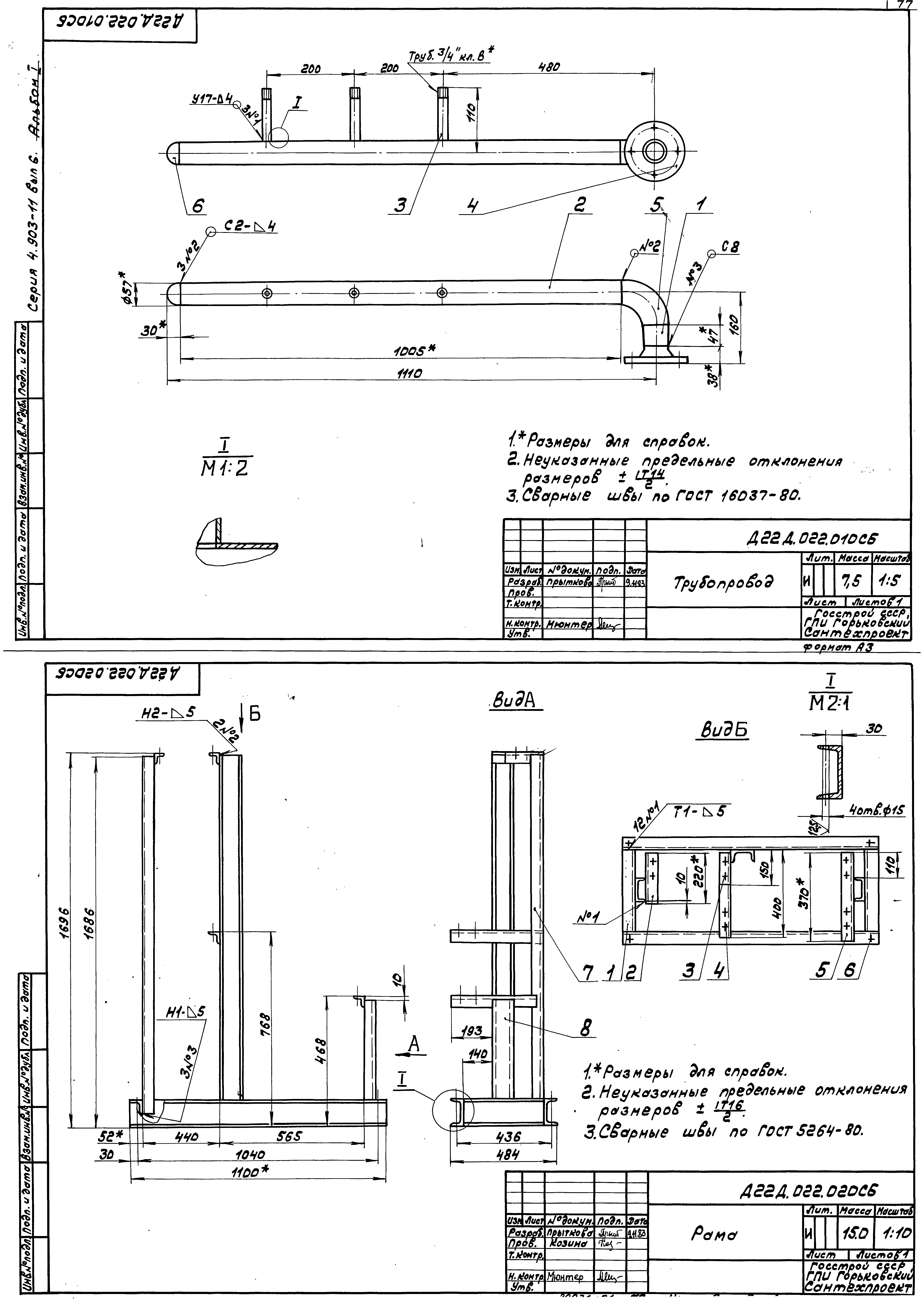
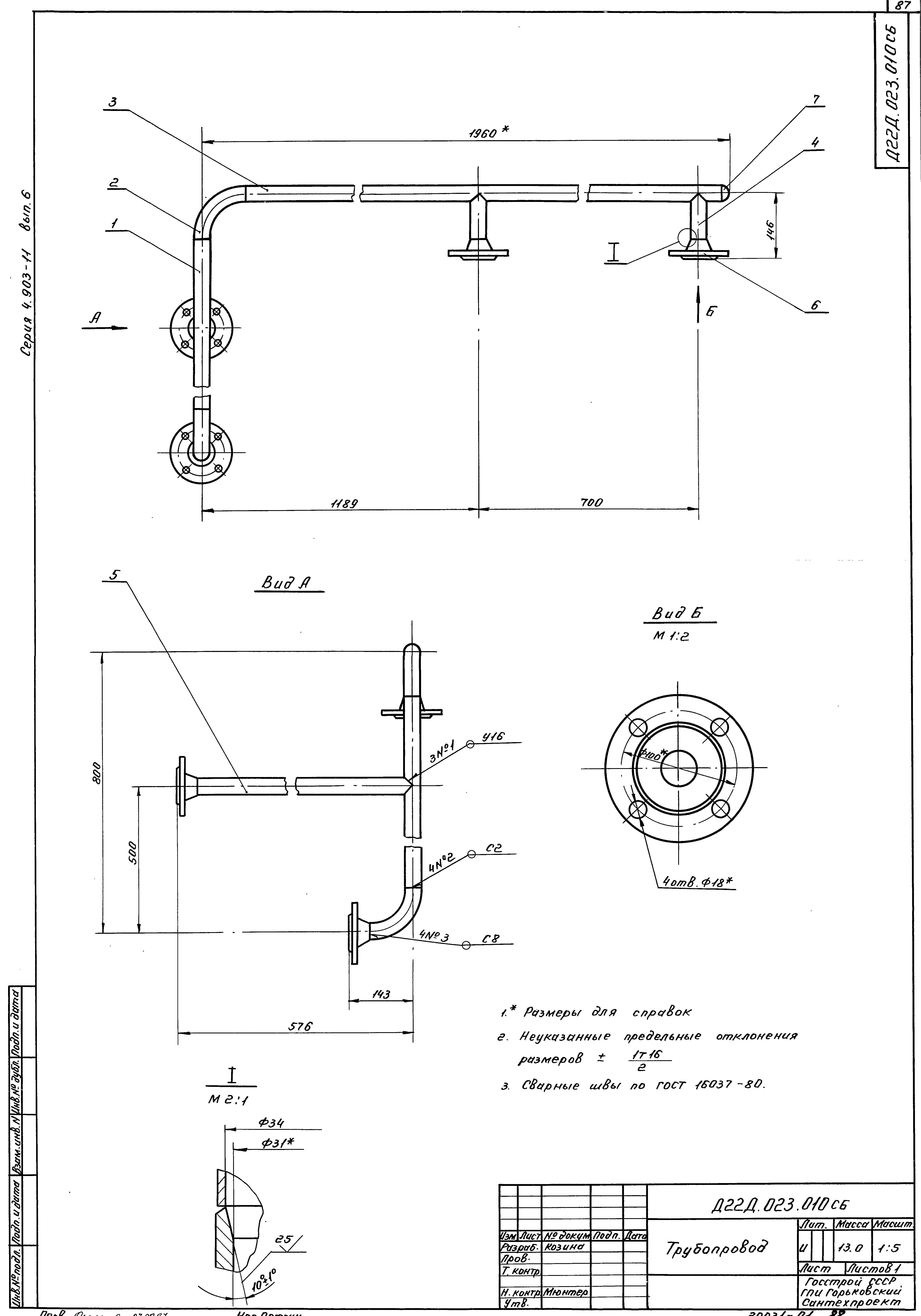
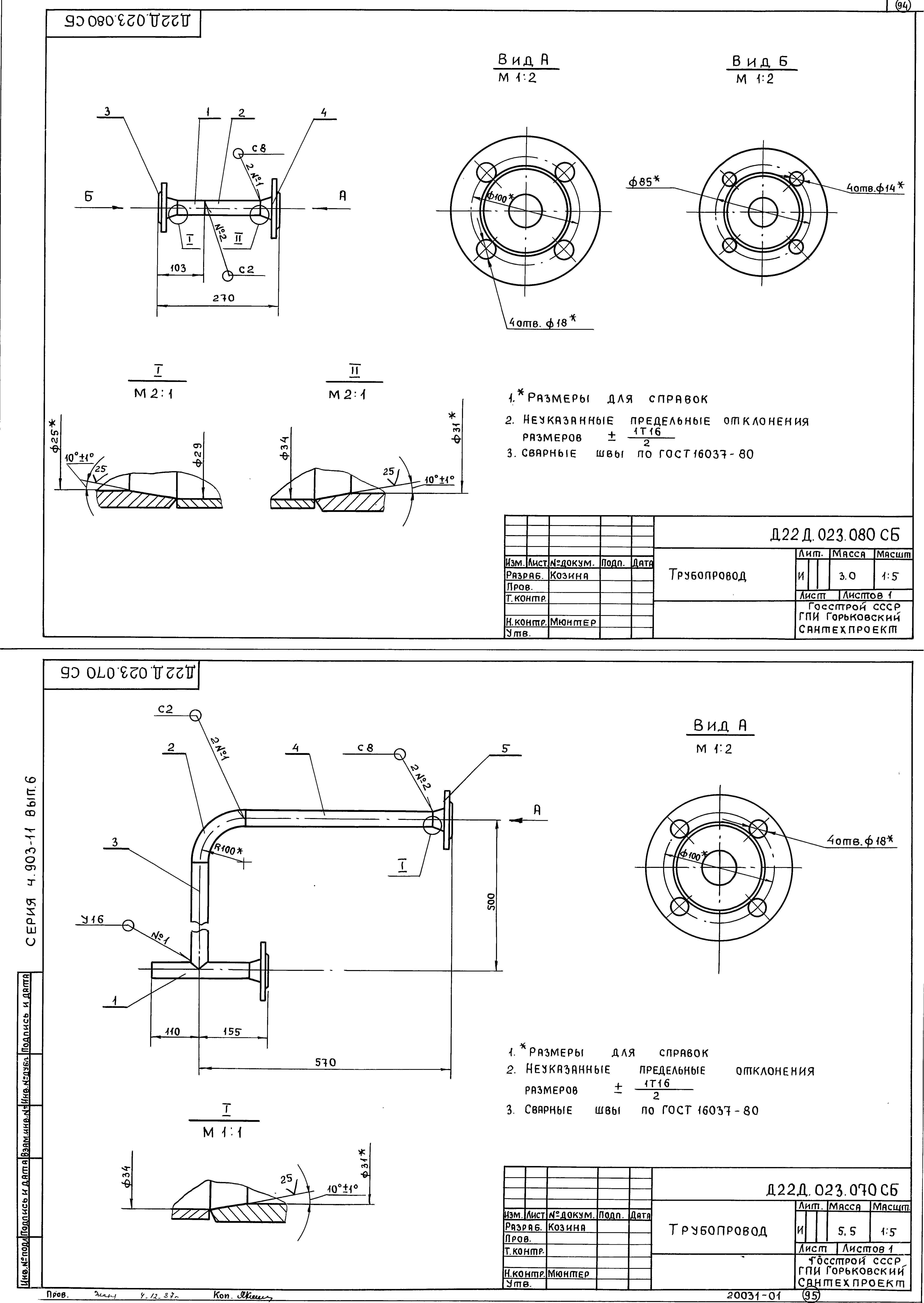
Скачать Серия 4.903-11 Выпуск 6. Блоки оборудования котельной с котлами типа Е-1/9-1Дата актуализации: 01.01.2021 Серия 4.903-11
Выпуск 6. Блоки оборудования котельной с котлами типа Е-1/9-1| Обозначение: | Серия 4.903-11 | | Обозначение англ: | Series 4.903-11 | | Статус: | не определен законодательством | | Название рус.: | Выпуск 6. Блоки оборудования котельной с котлами типа Е-1/9-1 | | Дата добавления в базу: | 01.09.2013 | | Дата актуализации: | 01.01.2021 | | Дата введения: | 01.09.1984 | | Дата окончания срока действия: | 30.06.2003 | | Разработан: | Горьковский Сантехпроект
| | Утверждён: | 03.07.1984 Минсельхоз СССР (USSR Minselkhoz 52-ЭГ)
|
                                                                                             
|