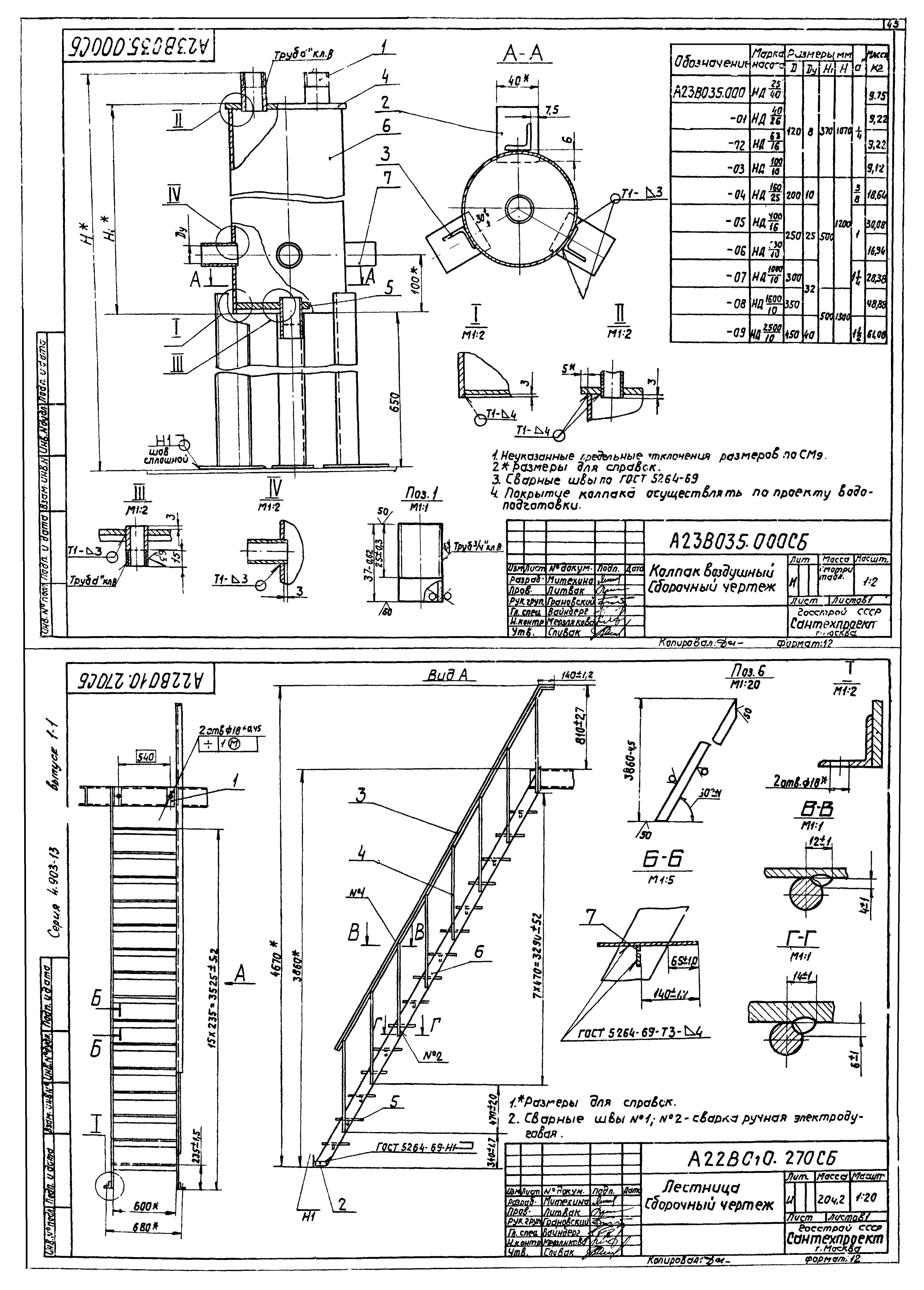
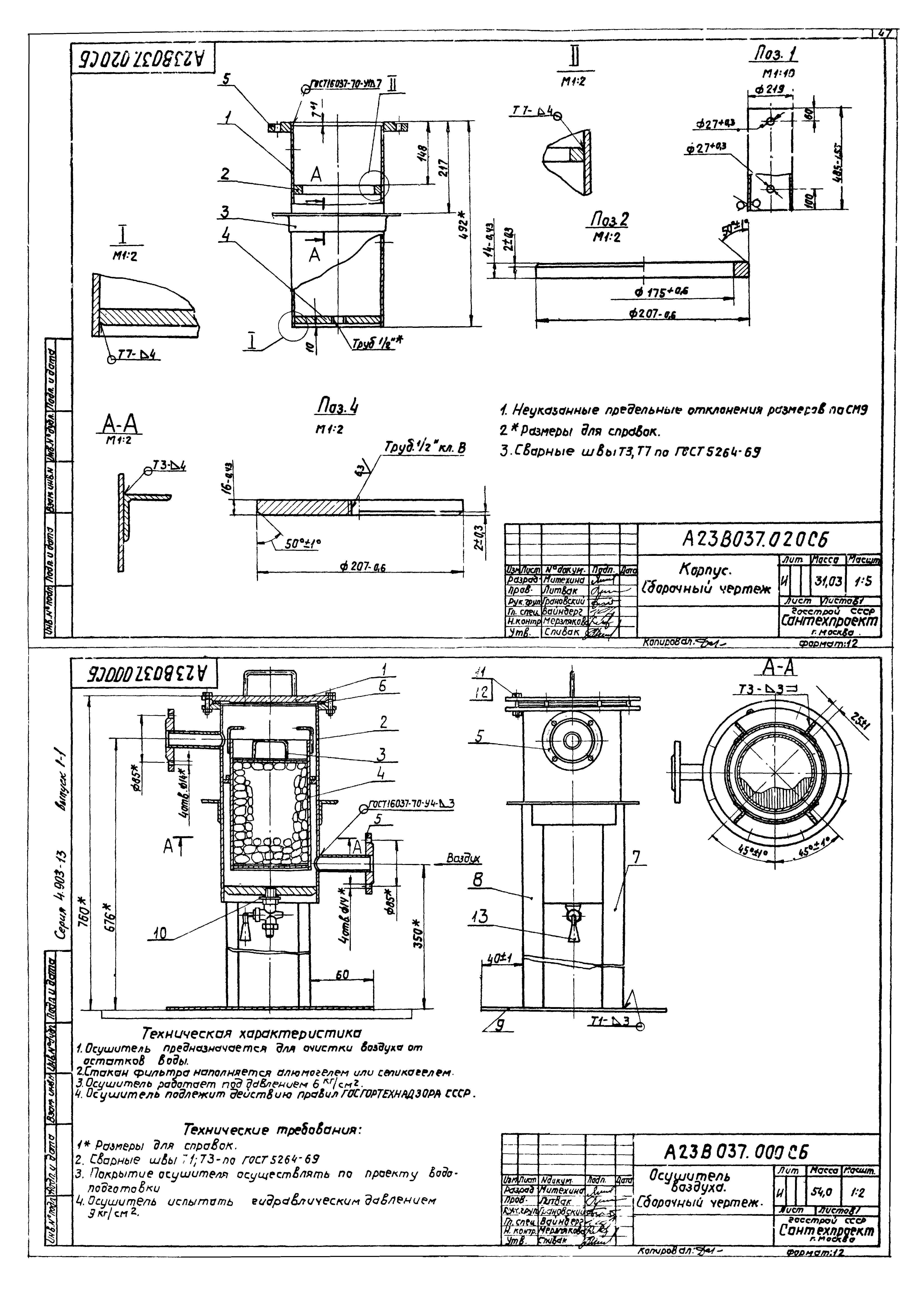
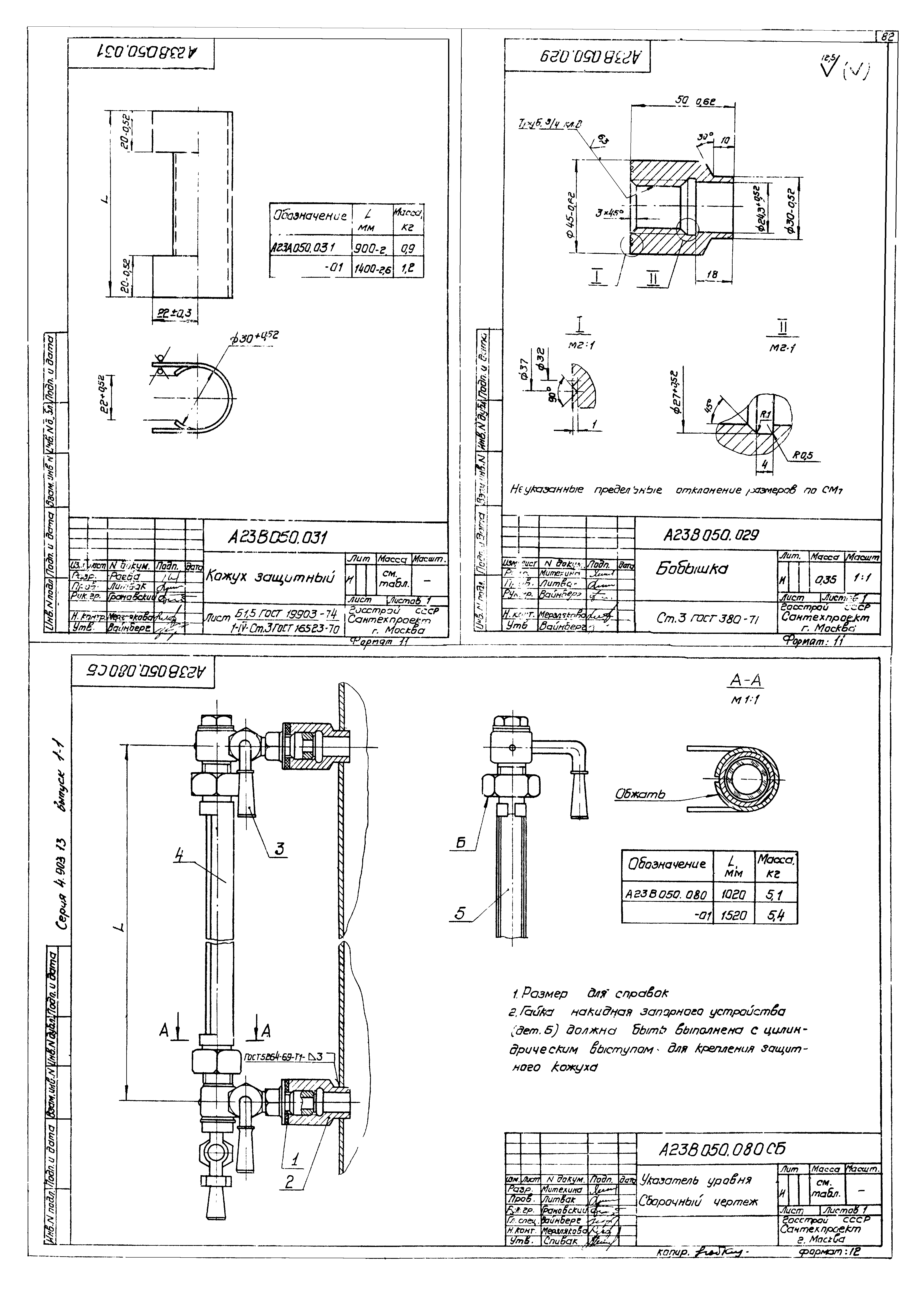
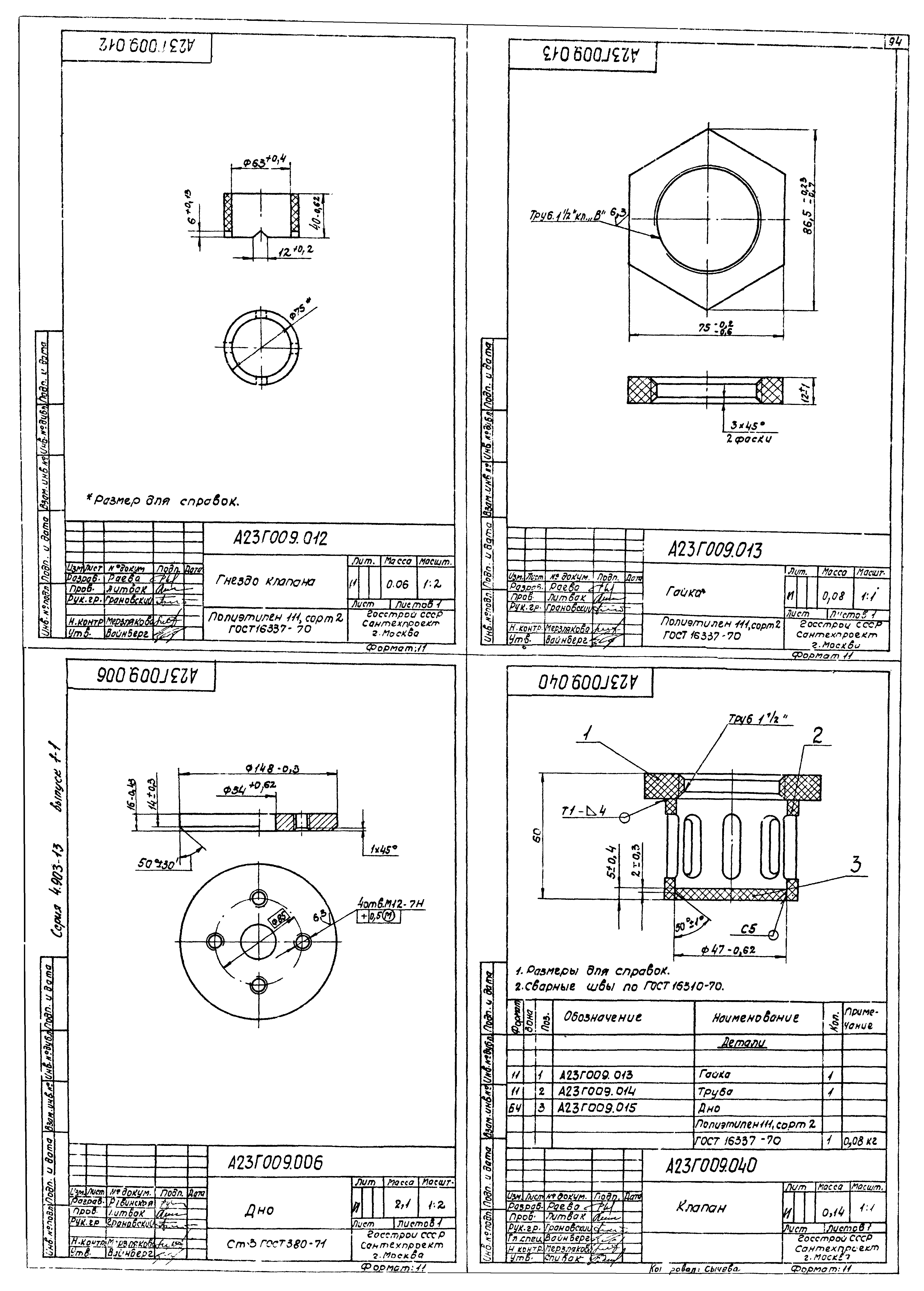
Скачать Серия 4.903-13 Выпуск 1-1. Вспомогательное оборудование для систем водоподготовки. Рабочие чертежиДата актуализации: 01.01.2021
|
| Обозначение: | Серия 4.903-13 |
| Обозначение англ: | Series 4.903-13 |
| Статус: | не определен законодательством |
| Название рус.: | Выпуск 1-1. Вспомогательное оборудование для систем водоподготовки. Рабочие чертежи |
| Дата добавления в базу: | 01.09.2013 |
| Дата актуализации: | 01.01.2021 |
| Дата введения: | 15.05.1978 |
| Дата окончания срока действия: | 30.06.2003 |
| Разработан: | Сантехниипроект Госстроя России |
| Утверждён: | 24.04.1978 ГПИ Сантехпроект (59) |





































































































