Скачать Серия 5.903-10 Выпуск 2-3. Альбом 1. Блоки взрыхления и регенерации. Блок взрыхления БВ-1. Рабочие чертежиДата актуализации: 01.01.2021
|
| Обозначение: | Серия 5.903-10 |
| Обозначение англ: | Series 5.903-10 |
| Статус: | не определен законодательством |
| Название рус.: | Выпуск 2-3. Альбом 1. Блоки взрыхления и регенерации. Блок взрыхления БВ-1. Рабочие чертежи |
| Дата добавления в базу: | 01.09.2013 |
| Дата актуализации: | 01.01.2021 |
| Дата введения: | 01.03.1990 |
| Дата окончания срока действия: | 30.06.2003 |
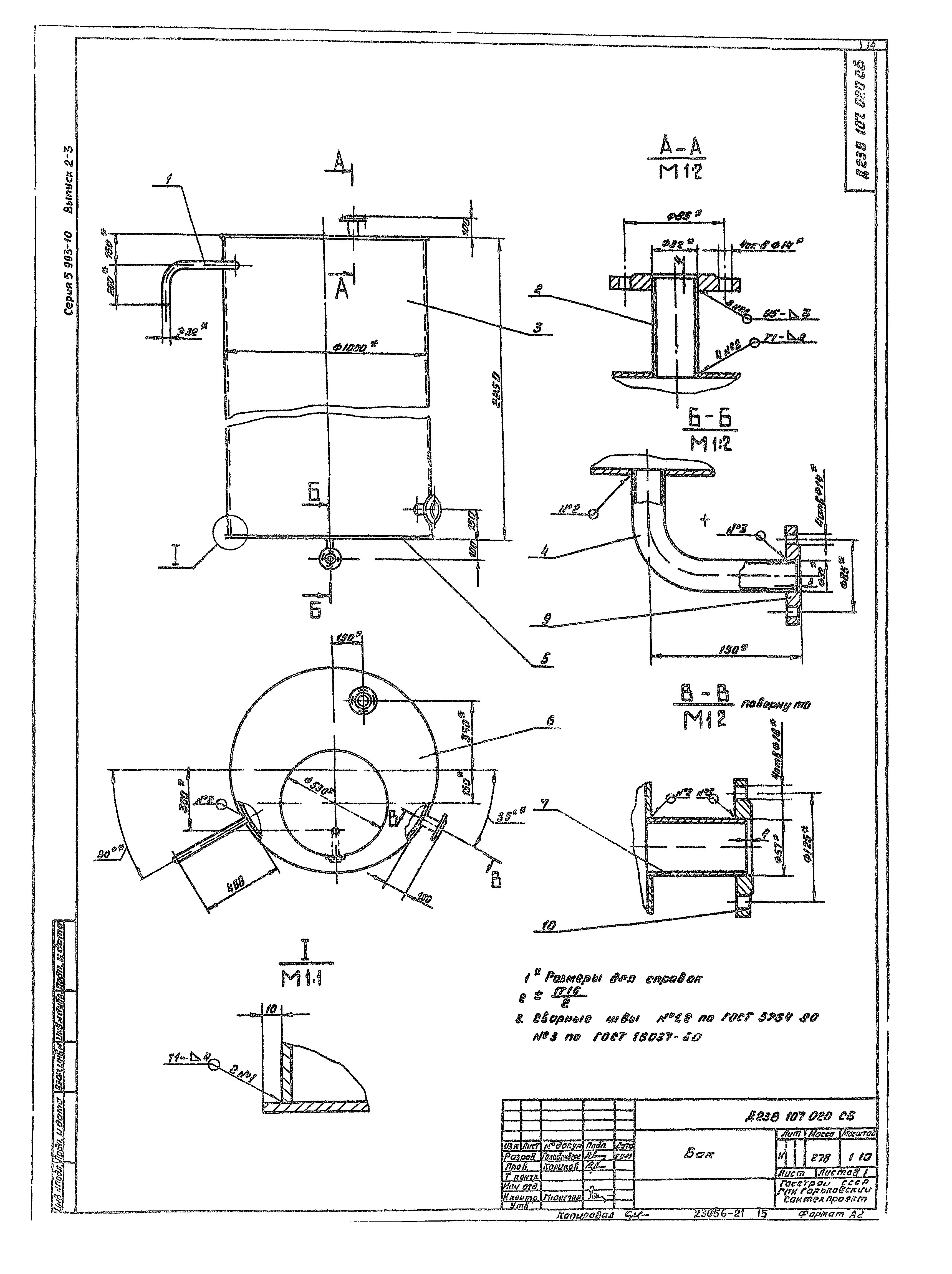
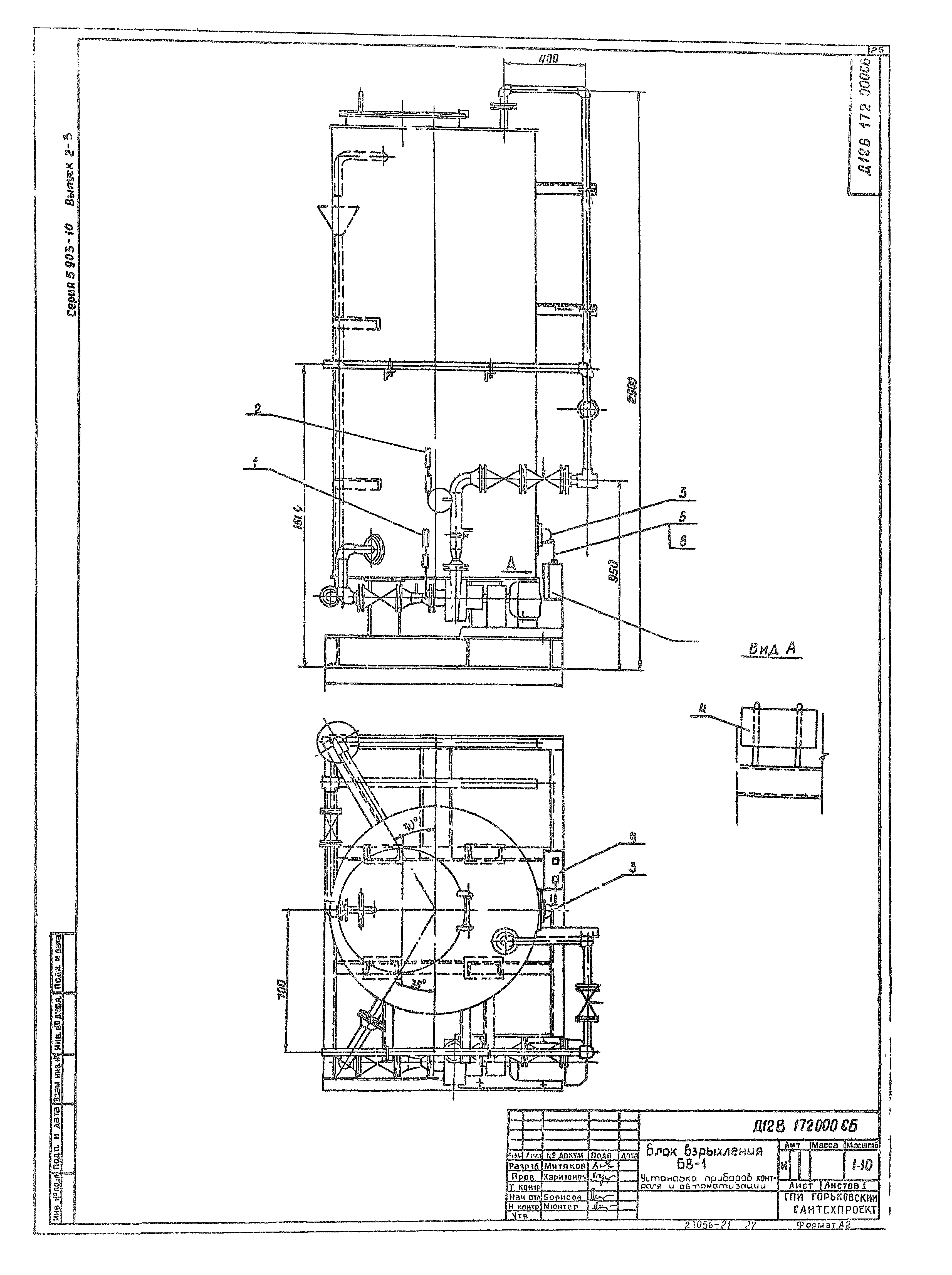
| Оглавление: | Д24В.025.000 Д Технические требования Д24В.025.000 Блок взрыхления БВ1 Д24В.025.001 Уголок Д24В.025.000 ВП Ведомость покупных изделий Д24В.025.000 СБ Блок взрыхления БВ-1 Д24В.024.080 Патрубок Д24В.024.080 СБ Патрубок Д24В.024.045 Конус Д24В.024.048 Фланец Д23В.107.000 Блок взрыхления фильтров диаметр 700 мм, V=1,5 куб. м Д23В.107.010 Люк Д23В.107.001 Крышка Д23В.107.002 Ручка Д23В.107.000 СБ Блок взрыхления фильтров диаметр 700 мм, V=1,5 куб. м Д23В.107.010 СБ Люк Д23В.107.003 Фланец Д23В.107.004 Кронштейн Д23В.107.005 Проушина Д23В.107.006 Ось Д23В.107.007 Прокладка Д23В.107.020 Бак Д23В.107.020 СБ Бак Д23В.107.009 Патрубок Д23В.107.012 Цилиндр Д23В.107.013 Дно Д23В.107.014 Крышка Д24В.025.010 Рама Д24В.025.013 Связь Д24В.025.020 Трубопровод Д24В.025.010 СБ Рама Д24В.025.020 СБ Трубопровод Д24В.025.017 Фланец Д24В.025.030 Трубопровод Д24В.025.040 Трубопровод Д24В.025.030 СБ Трубопровод Д24В.025.040 СБ Трубопровод Д24В.025.050 Трубопровод Д24В.025.060 Трубопровод Д24В.025.050 СБ Трубопровод Д24В.025.060 СБ Трубопровод Д24В.025.070 Трубопровод Д24В.025.031 Воронка Д24В.025.070 СБ Трубопровод Д24В.025.080 Трубопровод Д24В.025.090 Трубопровод Д24В.025.080 СБ Трубопровод Д24В.025.090 СБ Трубопровод Д12В.172.000 Блок взрыхления БВ-1. Установка приборов контроля и автоматизации Д12В.172.000 Блок взрыхления БВ-1. Схема автоматизации Д12В.172.000СБ Блок взрыхления БВ-1. Схема автоматизации Д12В.184.000СБ Блок взрыхления БВ-1. Установка кнопочного управления |
| Разработан: | Сантехпроект Госстроя СССР |
| Утверждён: | 29.11.1989 ГПКНИИ Сантехниипроект (12) |
| Издан: | ЦИТП Госстроя СССР (CITP, Gosstroy (USSR) 1990 г. ) |


























