Скачать Серия 5.903-10 Выпуск 2-3. Альбом 2. Блоки взрыхления и регенерации. Блок взрыхления БВ-2. Рабочие чертежиДата актуализации: 01.01.2021
|
| Обозначение: | Серия 5.903-10 |
| Обозначение англ: | Series 5.903-10 |
| Статус: | не определен законодательством |
| Название рус.: | Выпуск 2-3. Альбом 2. Блоки взрыхления и регенерации. Блок взрыхления БВ-2. Рабочие чертежи |
| Дата добавления в базу: | 01.09.2013 |
| Дата актуализации: | 01.01.2021 |
| Дата введения: | 01.03.1990 |
| Дата окончания срока действия: | 30.06.2003 |
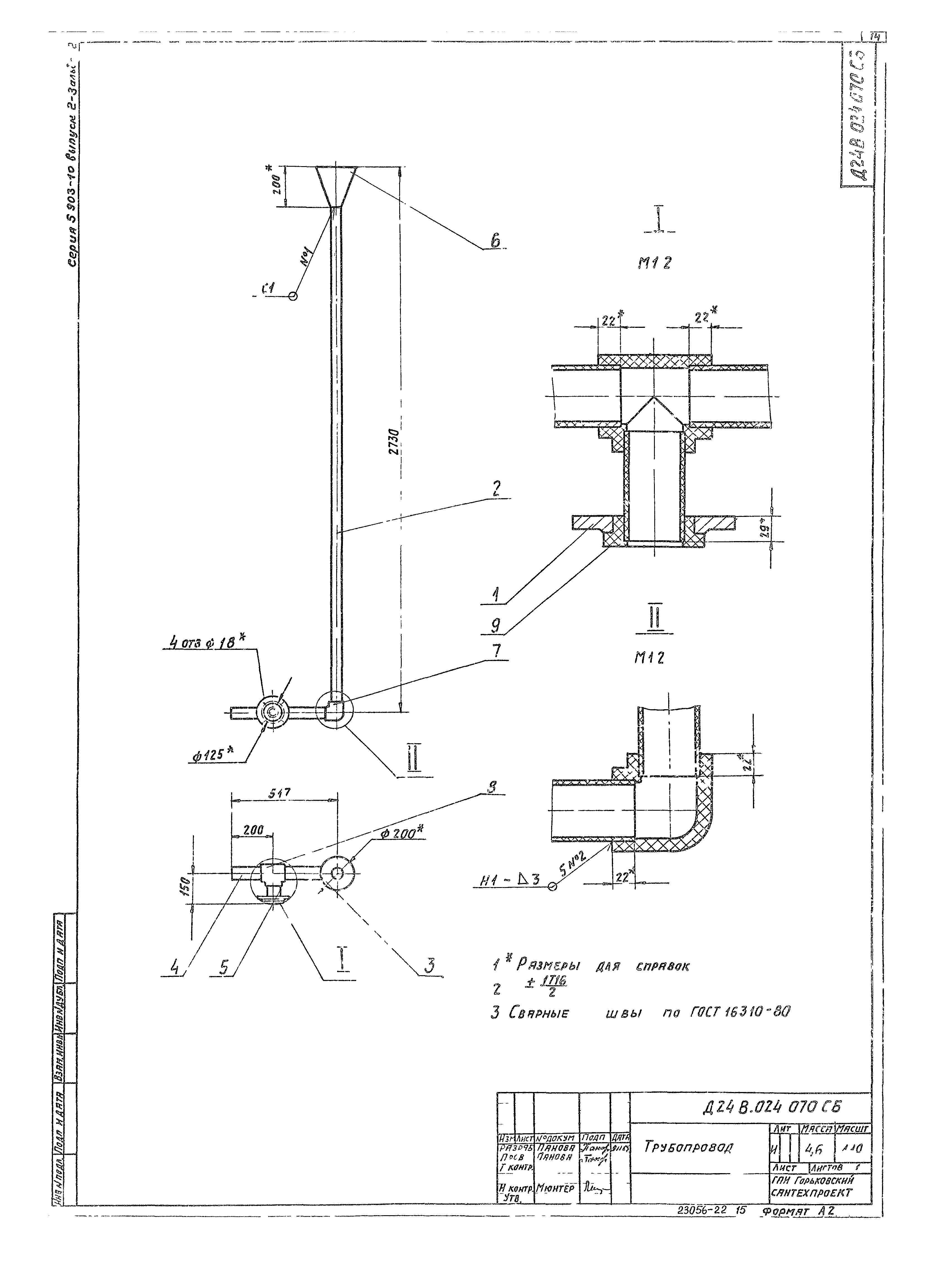
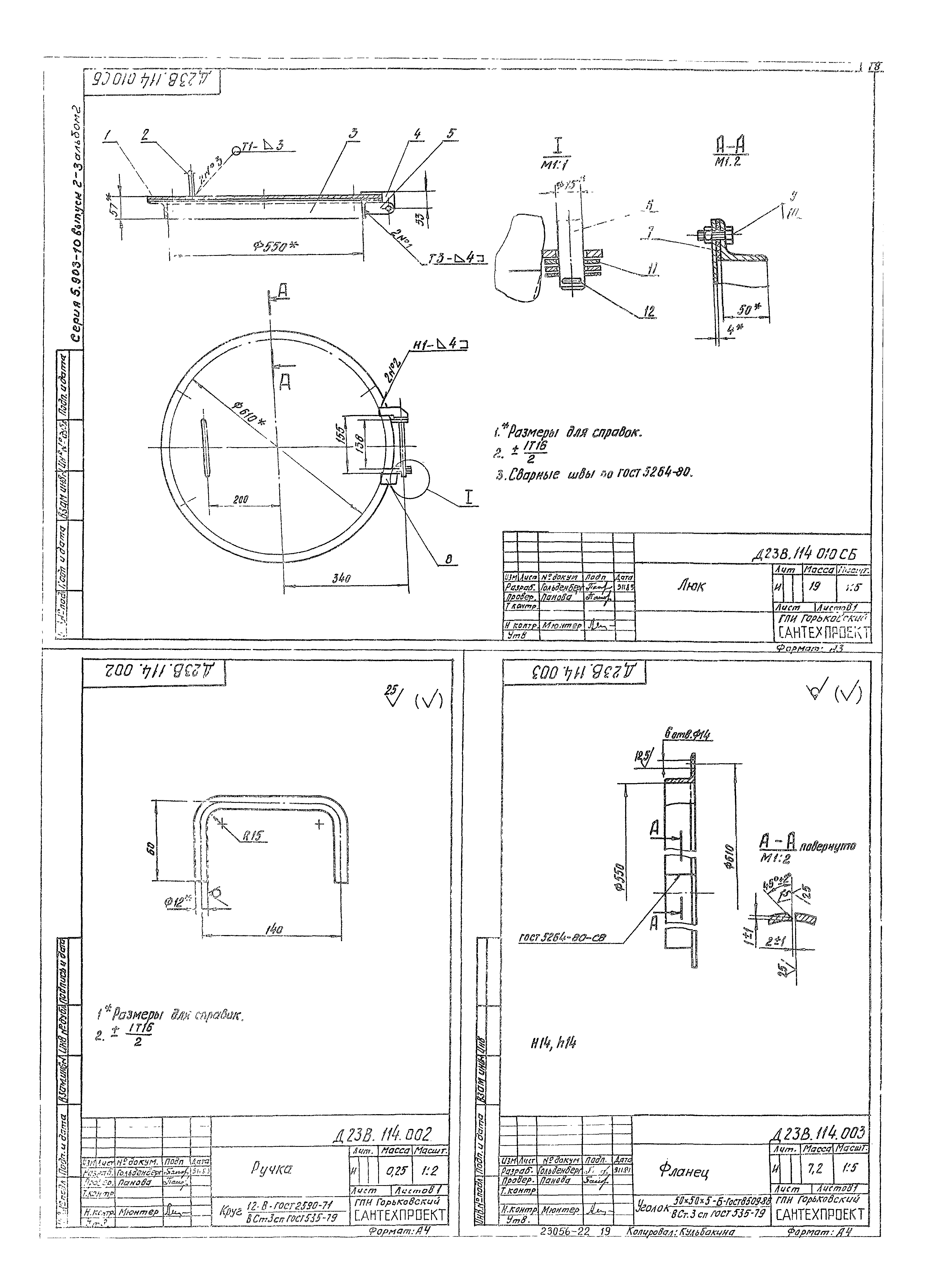
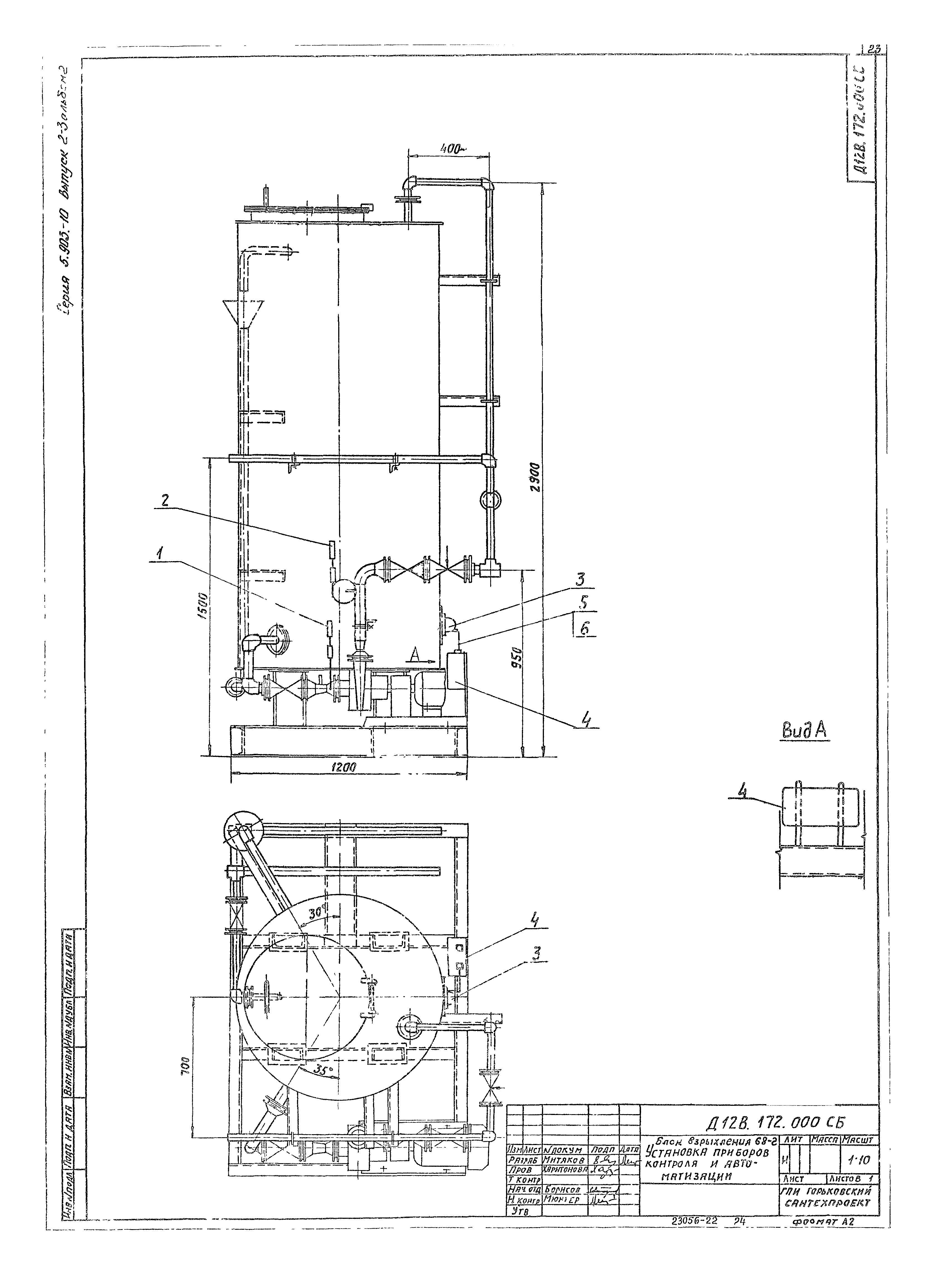
| Оглавление: | Д24В.024.000 Д Технические требования Д24В.024.000 Блок взрыхления БВ-2 Д24В.024.003 Уголок Д24В.024.000 ВП Ведомость покупных изделий Д24В.024.000 СБ Блок взрыхления БВ-2 Д24В.024.010 Рама Д24В.024.020 Трубопровод Д24В.024.010 СБ Рама Д24В.024.020 СБ Трубопровод Д24В.024.018 Фланец Д24В.024.030 Патрубок Д24В.024.030 СБ Патрубок Д24В.024.040 Трубопровод Д24В.024.040 СБ Трубопровод Д24В.024.050 Трубопровод Д24В.024.050 СБ Трубопровод Д24В.024.070 Трубопровод Д24В.024.060 Трубопровод Д24В.024.060 СБ Трубопровод Д24В.024.070 СБ Трубопровод Д24В.024.080 Трубопровод Д24В.024.080 СБ Трубопровод Д24В.024.046 Конус Д24В.024.048 Фланец Д24В.024.044 Воронка Д23В.114.000 Блок взрыхления фильтра диаметр 1000, V=4 куб. м Д23В.114.010 Люк Д23В.114.001 Крышка Д23В.114.000 СБ Блок взрыхления фильтра диаметр 1000, V=4 куб. м Д23В.114.010 СБ Люк Д23В.114.002 Ручка Д23В.114.003 Фланец Д23В.114.004 Кронштейн Д23В.114.005 Проушина Д23В.114.006 Ось Д23В.114.007 Прокладка Д23В.114.020 СБ Бак Д23В.114.020 Бак Д23В.114.009 Крышка Д23В.114.011 Обечайка Д23В.114.017 Дно Д12В.172.000 Установка приборов контроля и автоматизации Д12В.172.000 Э2 Схема автоматизации Д12В.172.000 СБ Установка приборов контроля и автоматизации Д12В.172.000 ЭМ Установка кнопочного поста управления |
| Разработан: | Сантехпроект Госстроя СССР |
| Утверждён: | 29.11.1989 ГПКНИИ Сантехниипроект (12) |
| Издан: | ЦИТП Госстроя СССР (CITP, Gosstroy (USSR) 1990 г. ) |
























