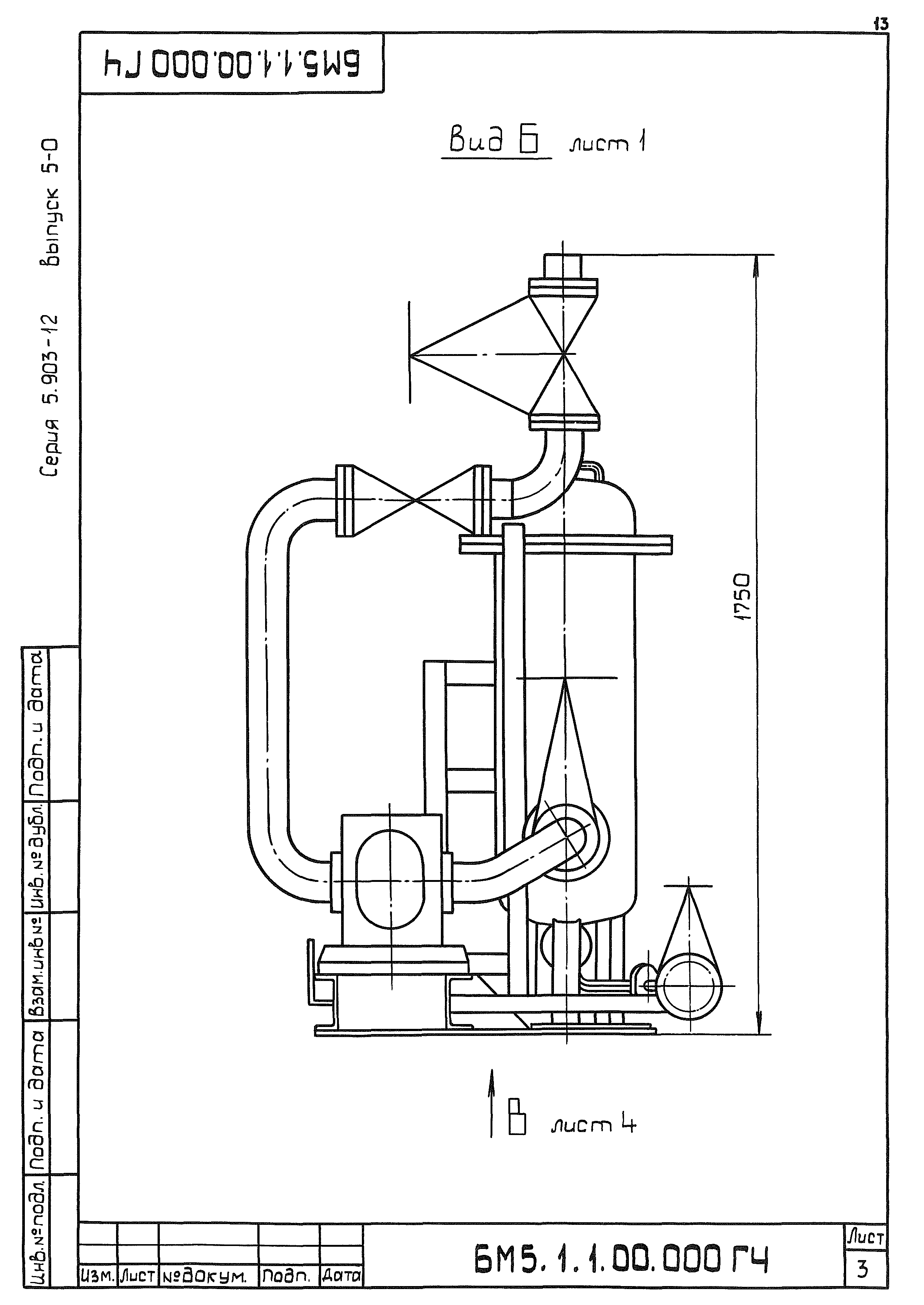
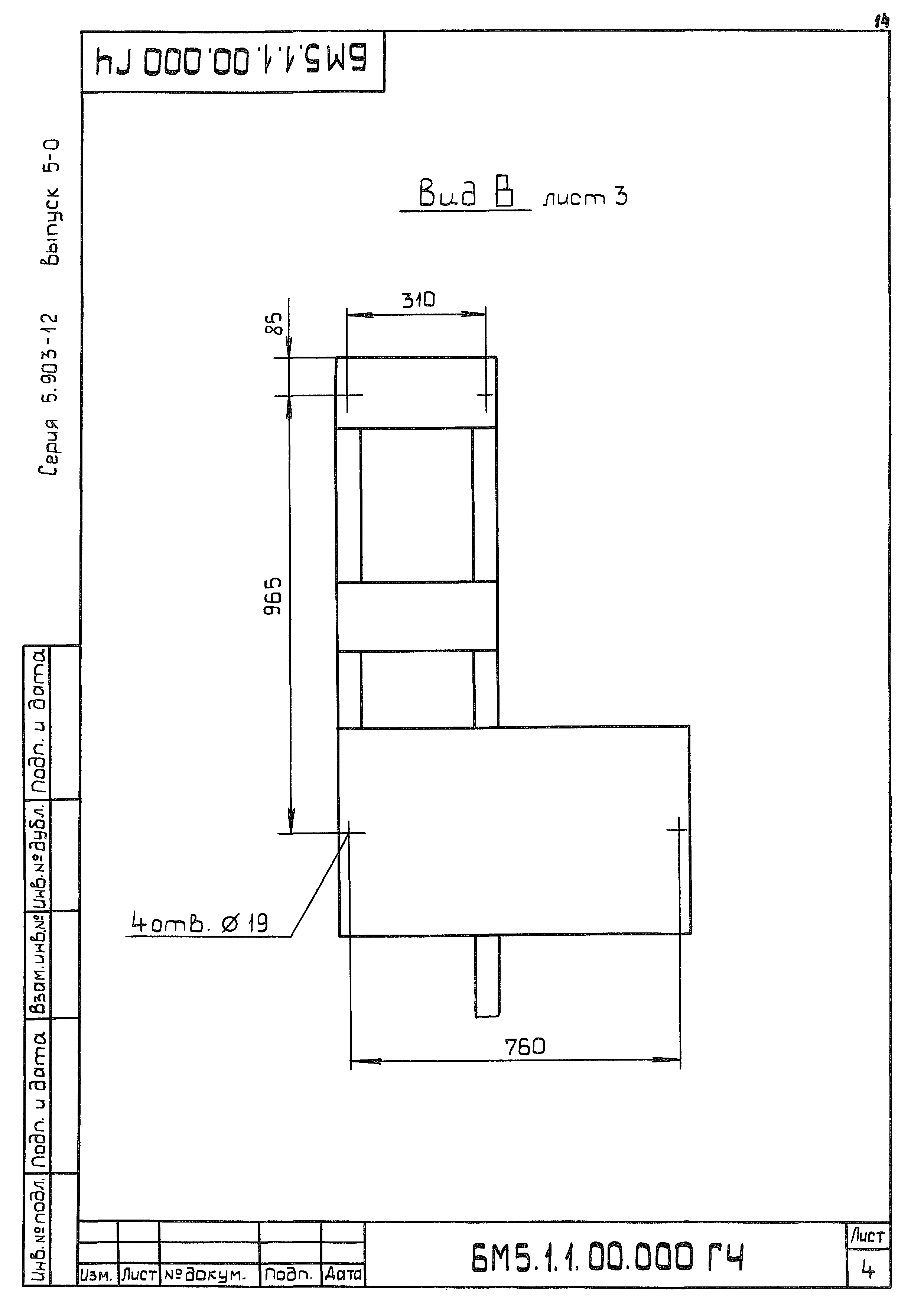
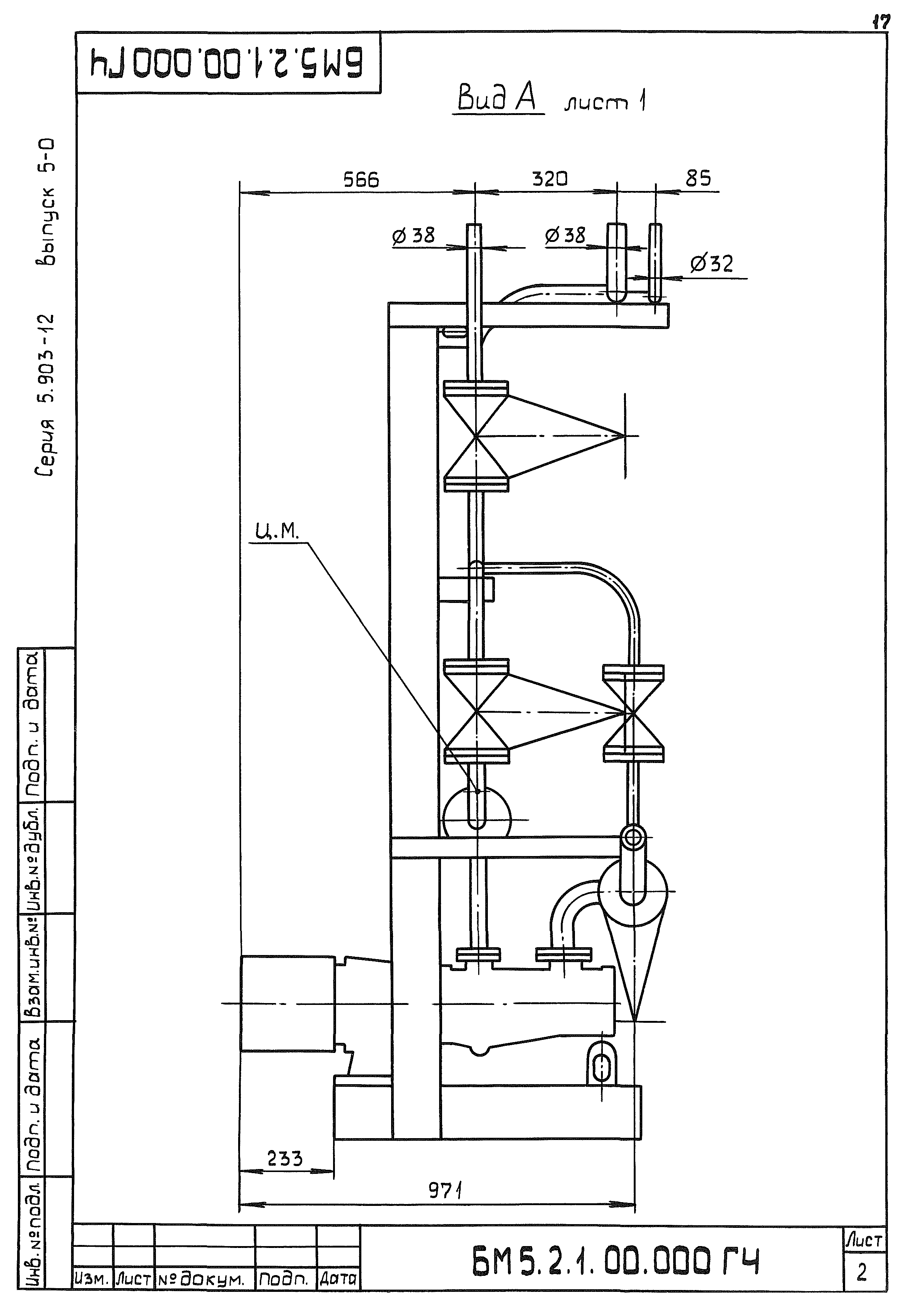
Скачать Серия 5.903-12 Выпуск 5-0. Блоки для установок мазутоснабжения производительностью до 2,6 куб. м/ч с автосливом. Указания по применению, изготовлению и монтажуДата актуализации: 01.01.2021 Серия 5.903-12
Выпуск 5-0. Блоки для установок мазутоснабжения производительностью до 2,6 куб. м/ч с автосливом. Указания по применению, изготовлению и монтажу| Обозначение: | Серия 5.903-12 | | Обозначение англ: | Series 5.903-12 | | Статус: | не определен законодательством | | Название рус.: | Выпуск 5-0. Блоки для установок мазутоснабжения производительностью до 2,6 куб. м/ч с автосливом. Указания по применению, изготовлению и монтажу | | Дата добавления в базу: | 01.09.2013 | | Дата актуализации: | 01.01.2021 | | Дата введения: | 01.03.1990 | | Дата окончания срока действия: | 30.06.2003 | | Разработан: | Горьковский Сантехпроект
| | Утверждён: | 29.11.1989 ГПКНИИ Сантехниипроект (12)
|
                  
|