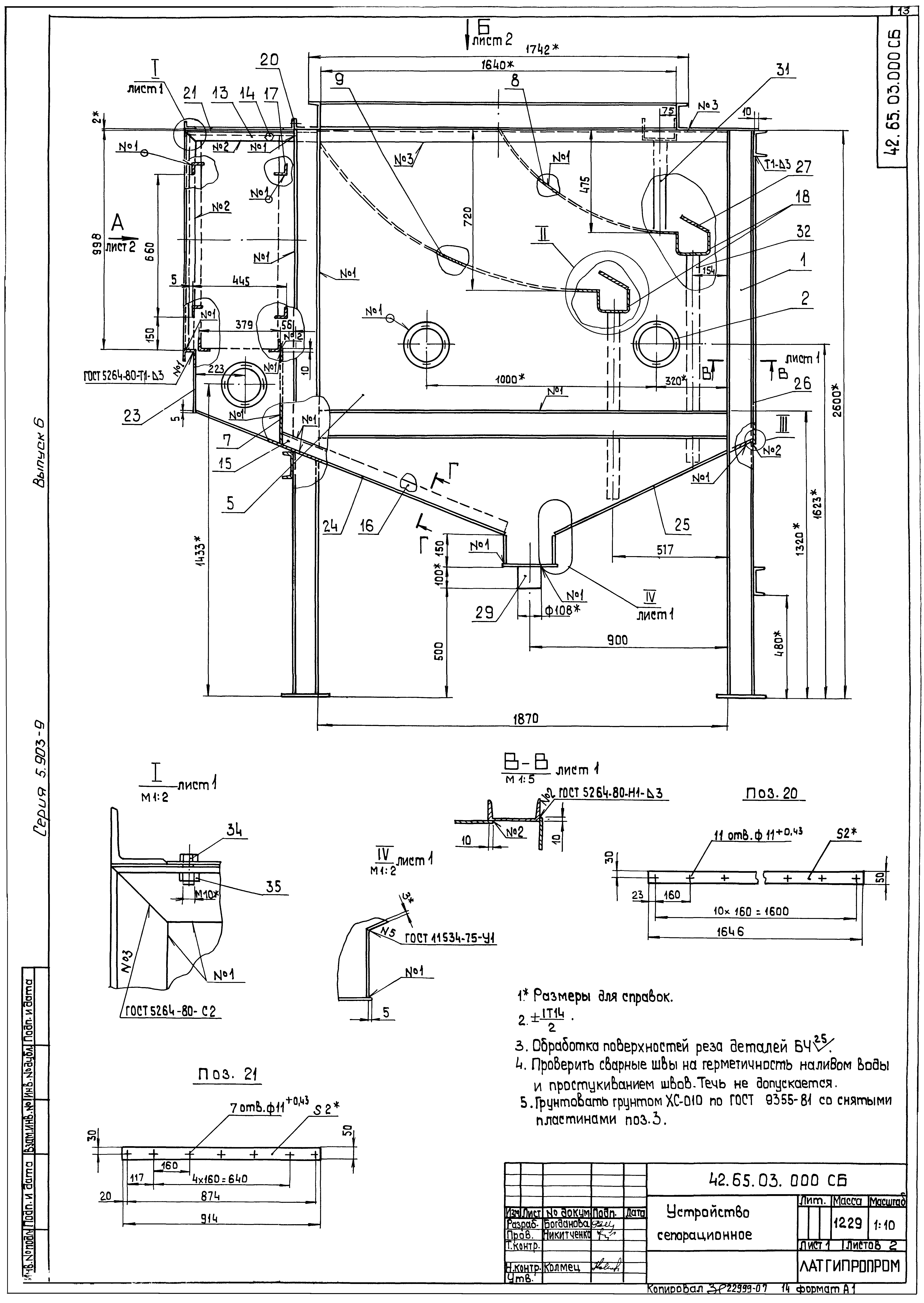
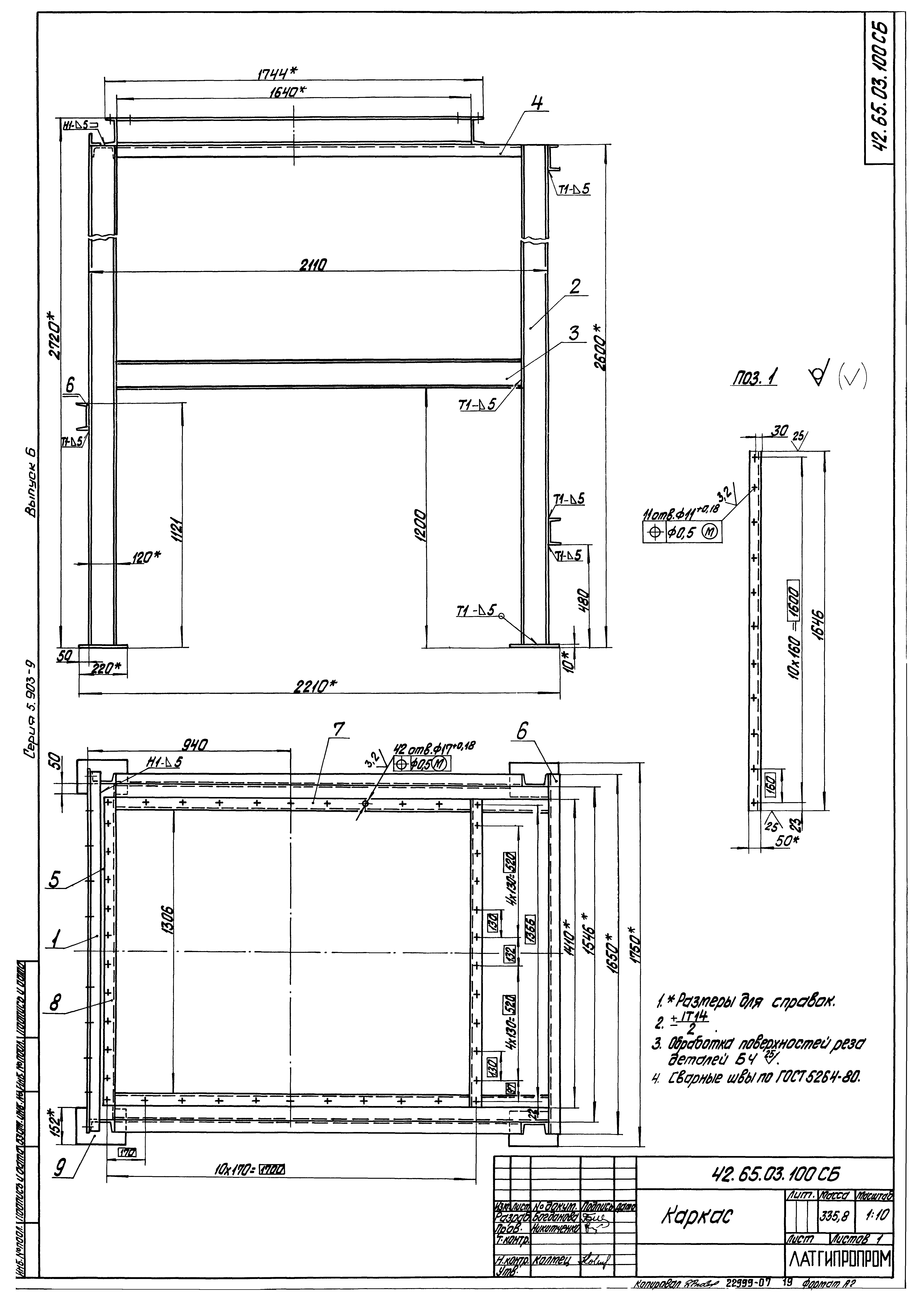
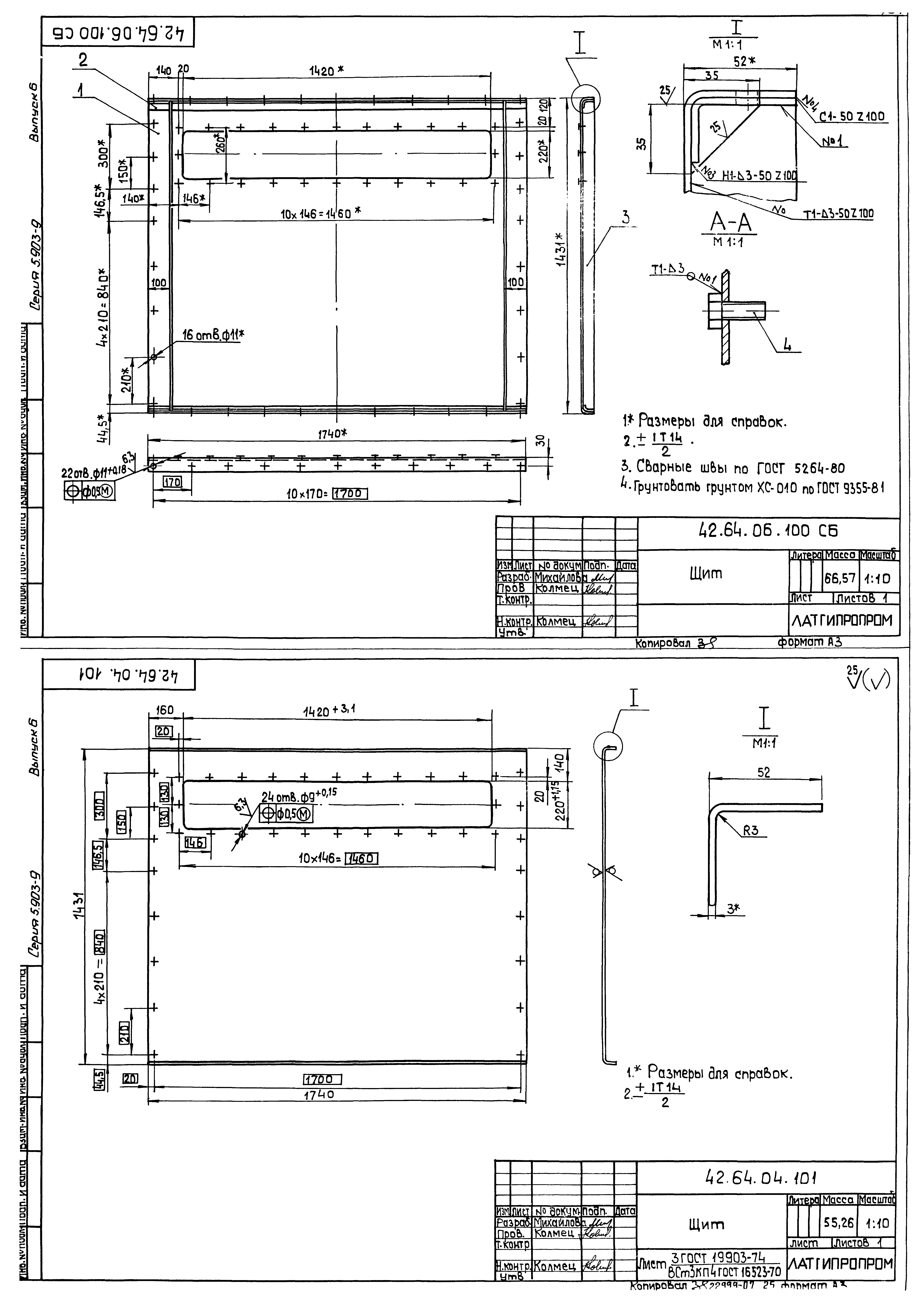
Скачать Серия 5.903-9 Выпуск 6. Теплообменники контактные КТАН-1,5УГ. Рабочие чертежиДата актуализации: 01.01.2021 Серия 5.903-9
Выпуск 6. Теплообменники контактные КТАН-1,5УГ. Рабочие чертежи| Обозначение: | Серия 5.903-9 | | Обозначение англ: | Series 5.903-9 | | Статус: | не определен законодательством | | Название рус.: | Выпуск 6. Теплообменники контактные КТАН-1,5УГ. Рабочие чертежи | | Дата добавления в базу: | 01.09.2013 | | Дата актуализации: | 01.01.2021 | | Дата введения: | 01.04.1988 | | Дата окончания срока действия: | 30.06.2003 | | Разработан: | Латгипропром
| | Утверждён: | 22.01.1988 Госстрой Латвийской ССР (11)
| | Издан: | ЦИТП Госстроя СССР (CITP, Gosstroy (USSR) 1988 г. )
|
                       
|