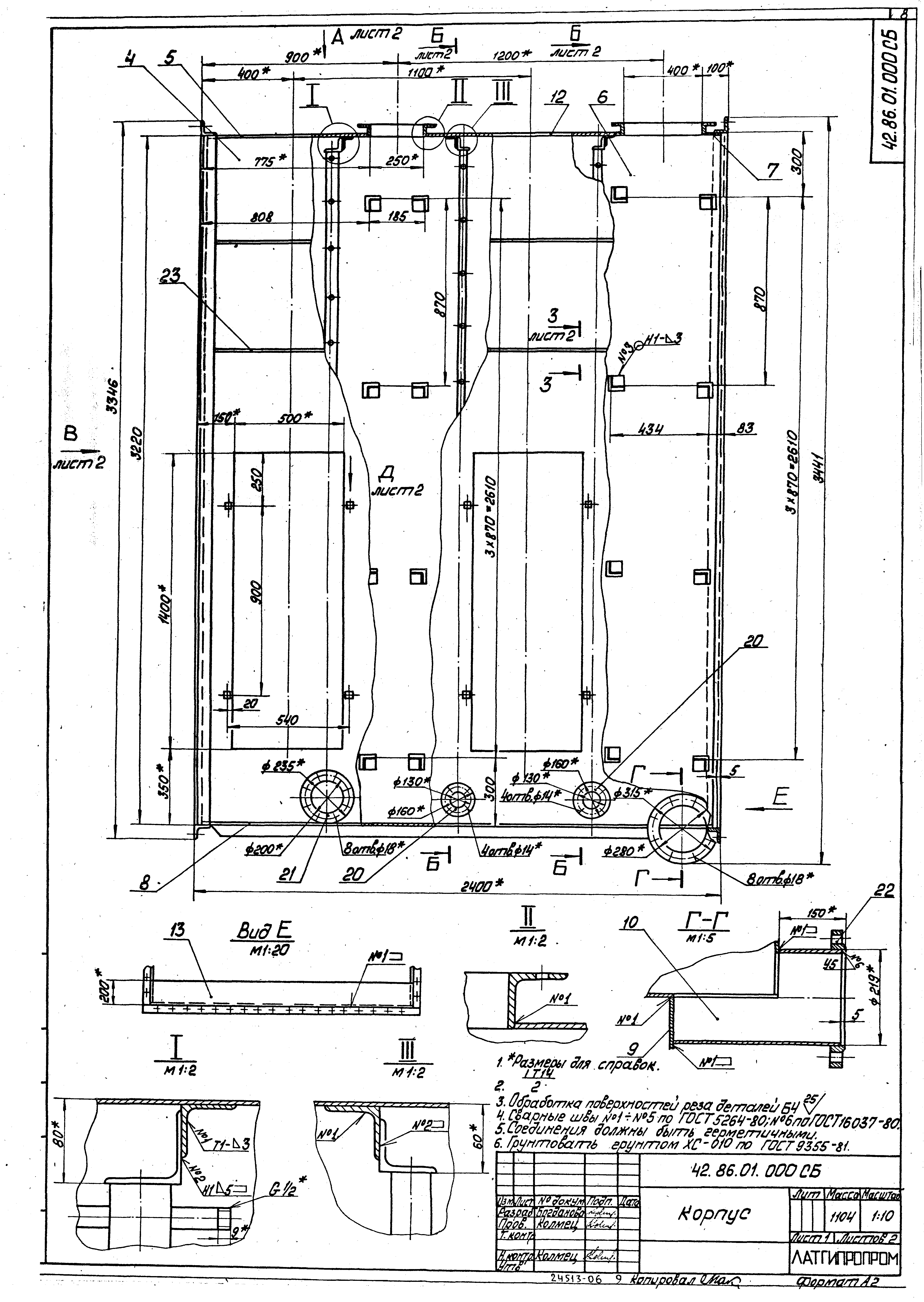
Скачать Серия 5.903-18 Выпуск 5. Контактный тепломассообменник КТМО-70ПДВ. Рабочие чертежиДата актуализации: 01.01.2021
|
| Обозначение: | Серия 5.903-18 |
| Обозначение англ: | Series 5.903-18 |
| Статус: | не определен законодательством |
| Название рус.: | Выпуск 5. Контактный тепломассообменник КТМО-70ПДВ. Рабочие чертежи |
| Дата добавления в базу: | 01.09.2013 |
| Дата актуализации: | 01.01.2021 |
| Дата введения: | 01.01.1991 |
| Дата окончания срока действия: | 30.06.2003 |
| Разработан: | Латгипропром |
| Утверждён: | 17.07.1990 ГПКНИИ Сантехниипроект Госстроя СССР (5) |
| Издан: | ЦИТП Госстроя СССР (CITP, Gosstroy (USSR) 1991 г. ) |





















