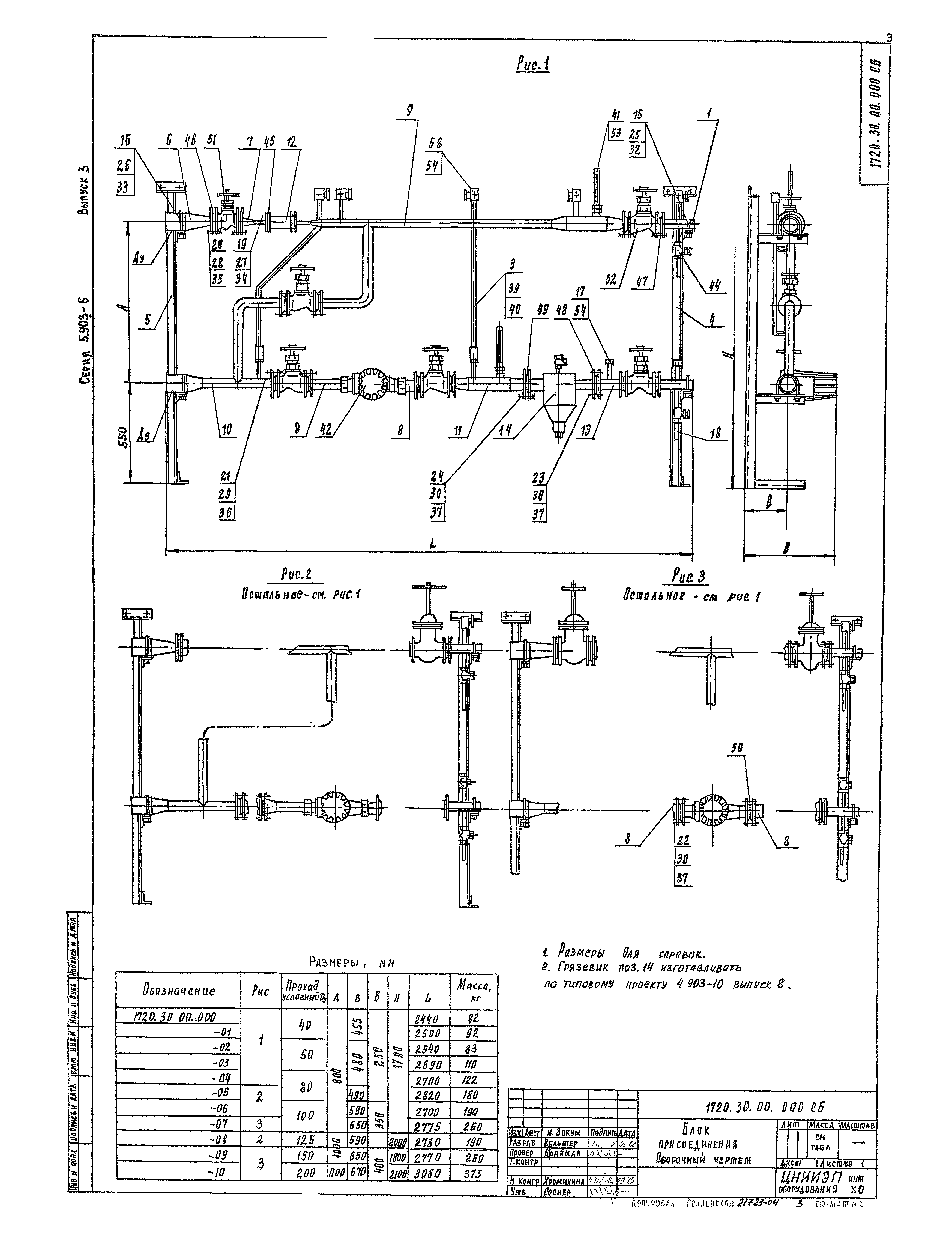
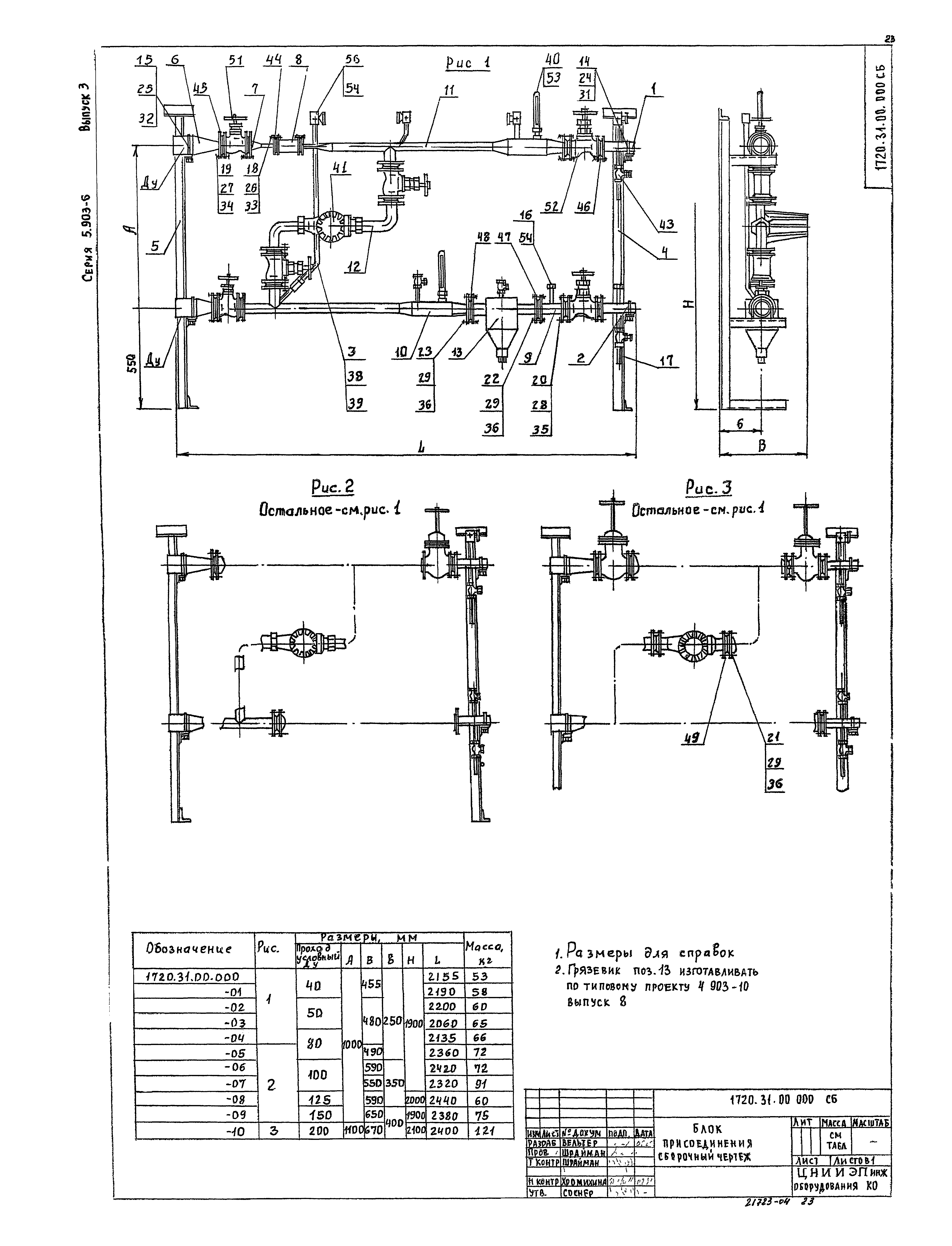
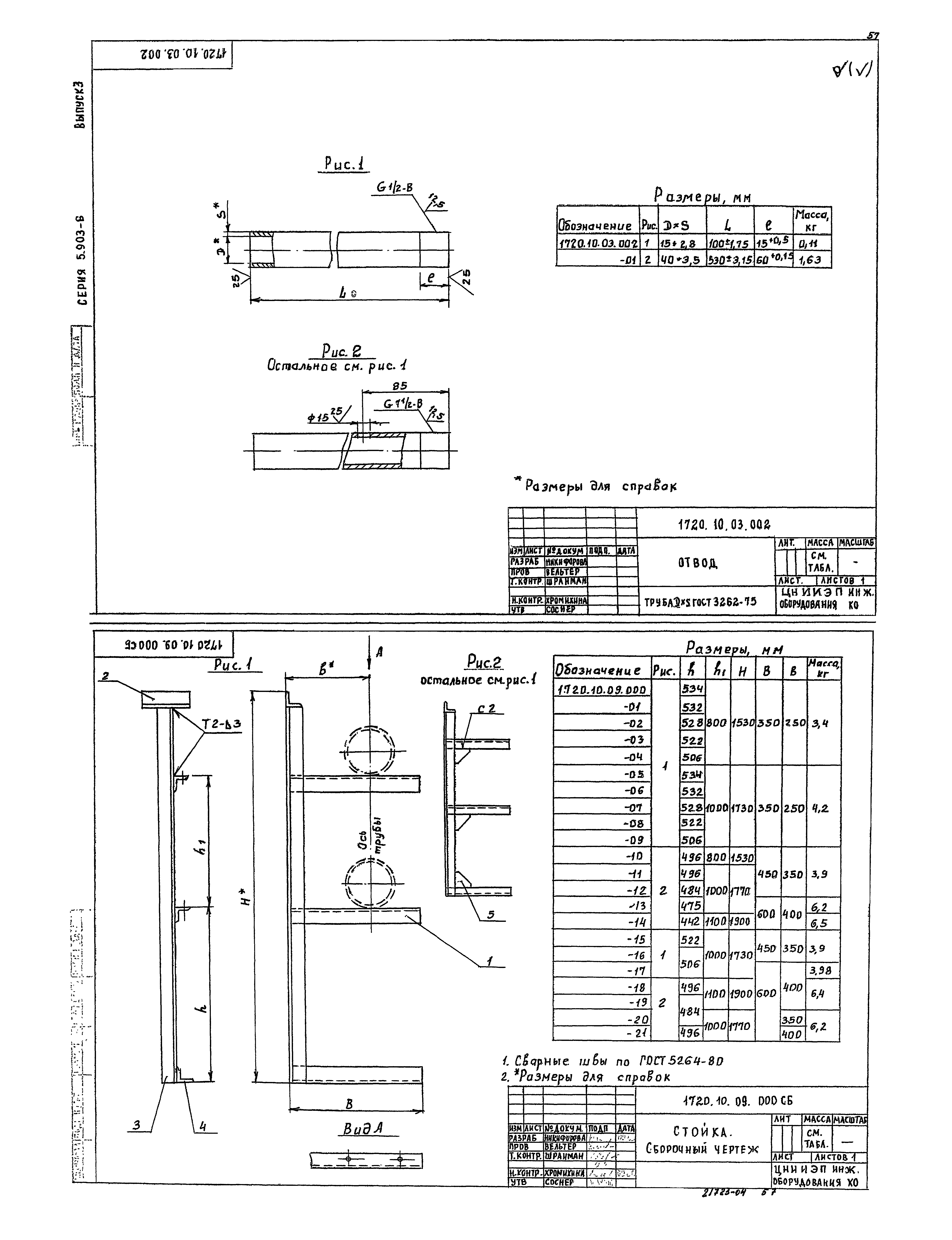
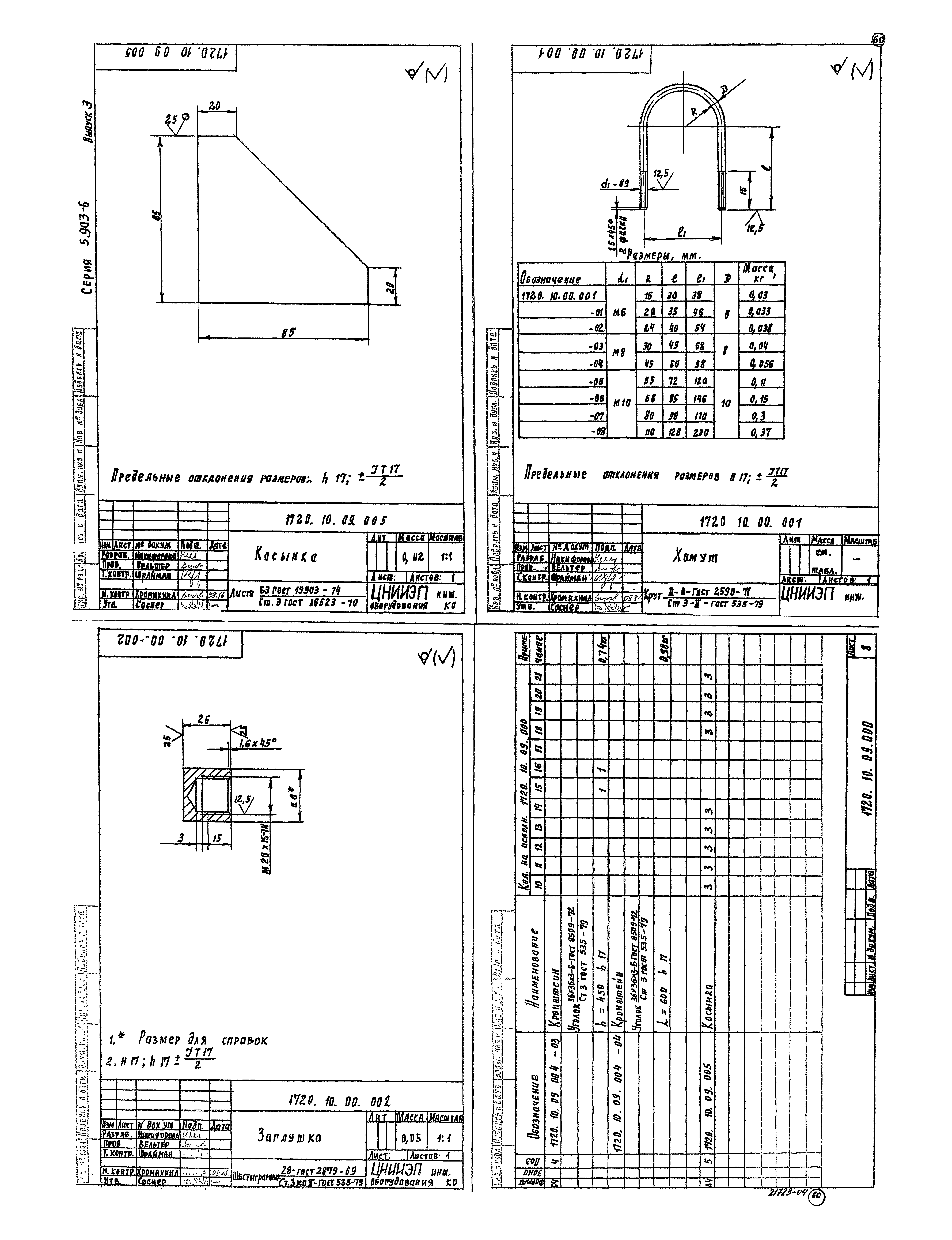
Скачать Серия 5.903-6 Выпуск 3. Блок присоединения систем отопления. Рабочие чертежиДата актуализации: 01.01.2021
|
| Обозначение: | Серия 5.903-6 |
| Обозначение англ: | Series 5.903-6 |
| Статус: | не определен законодательством |
| Название рус.: | Выпуск 3. Блок присоединения систем отопления. Рабочие чертежи |
| Дата добавления в базу: | 01.09.2013 |
| Дата актуализации: | 01.01.2021 |
| Дата введения: | 01.12.1986 |
| Дата окончания срока действия: | 30.06.2003 |
| Разработан: | ЦНИИЭП инженерного оборудования |
| Утверждён: | 07.01.1986 Госгражданстрой (Gosgrazhdanstroy 6) |




























































