Скачать Серия 7.903-1 Выпуск 2. Катодная защита бака-аккумулятора емкостью 400 куб. м КЗБА 400.00. Рабочие чертежиДата актуализации: 01.01.2021
|
| Обозначение: | Серия 7.903-1 |
| Обозначение англ: | Series 7.903-1 |
| Статус: | не определен законодательством |
| Название рус.: | Выпуск 2. Катодная защита бака-аккумулятора емкостью 400 куб. м КЗБА 400.00. Рабочие чертежи |
| Дата добавления в базу: | 01.09.2013 |
| Дата актуализации: | 01.01.2021 |
| Дата введения: | 12.05.1986 |
| Дата окончания срока действия: | 30.06.2003 |
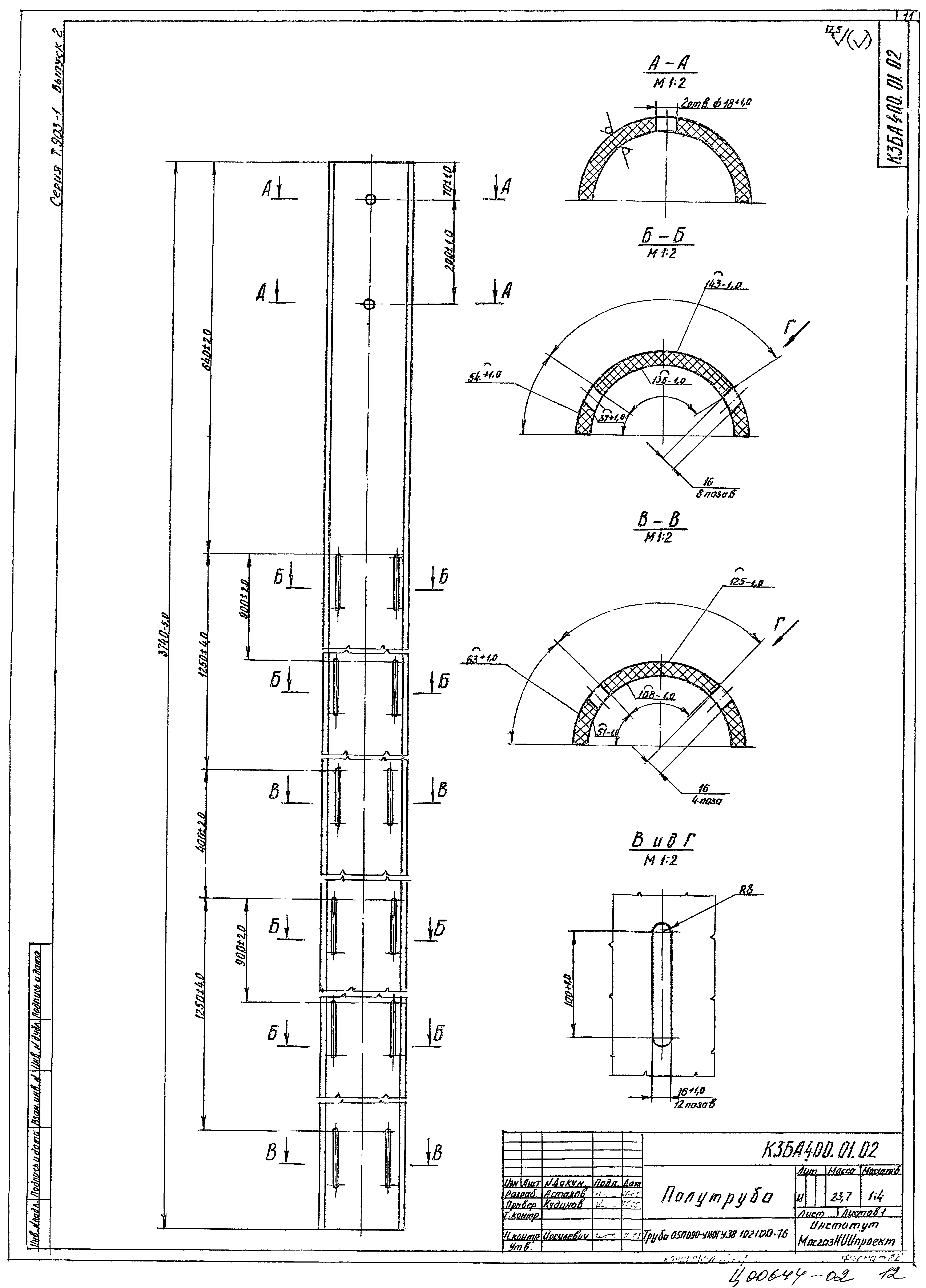
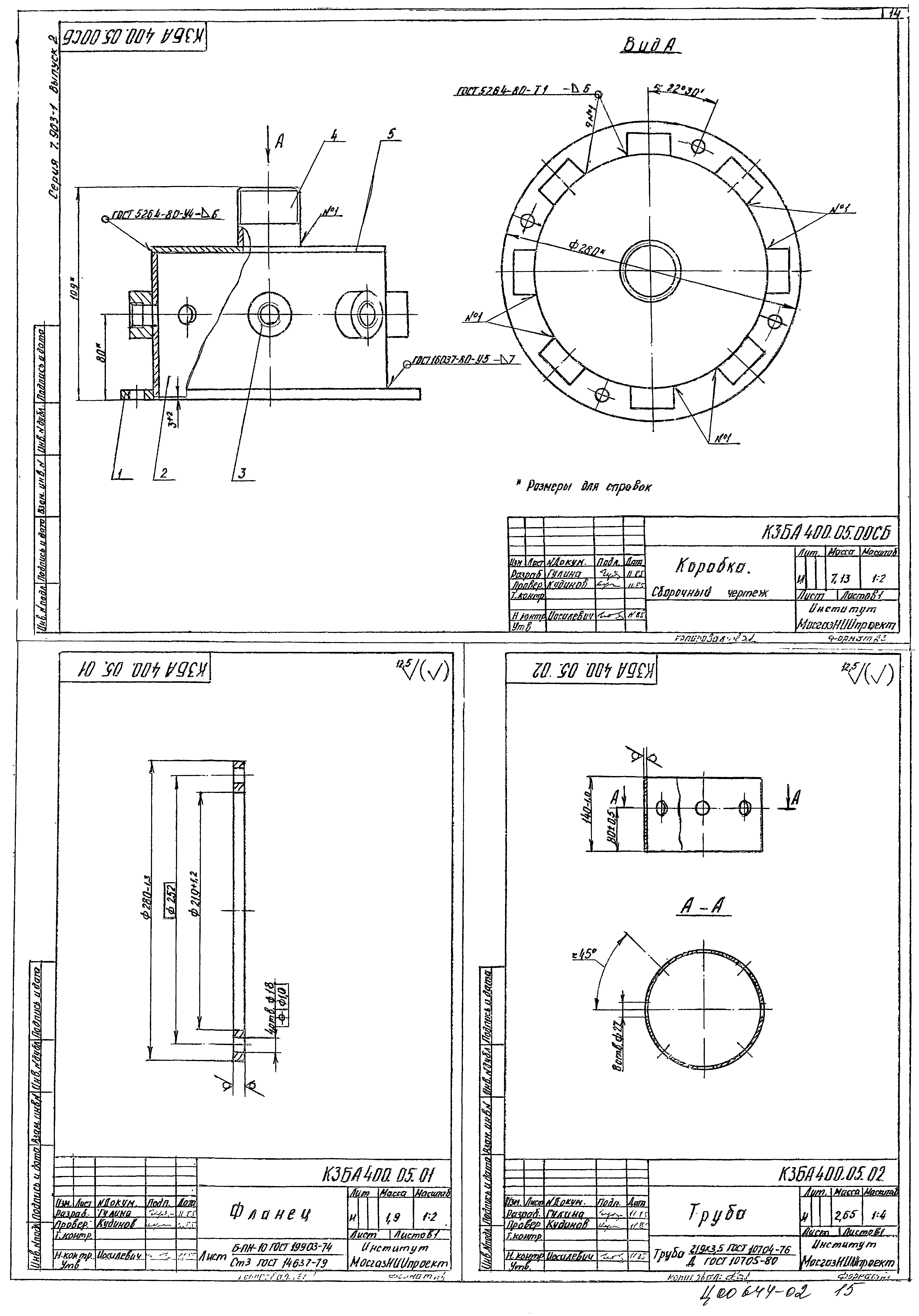
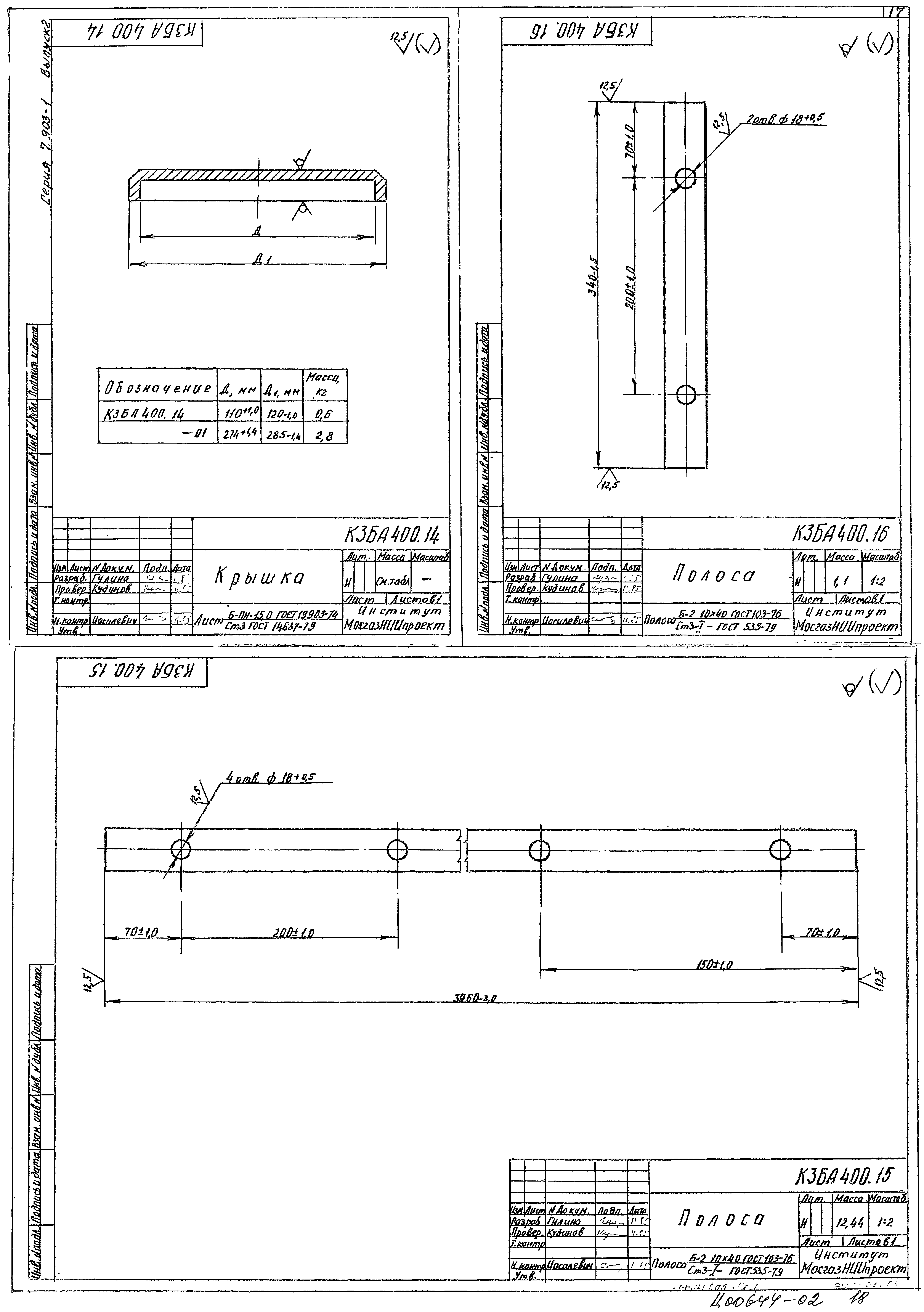
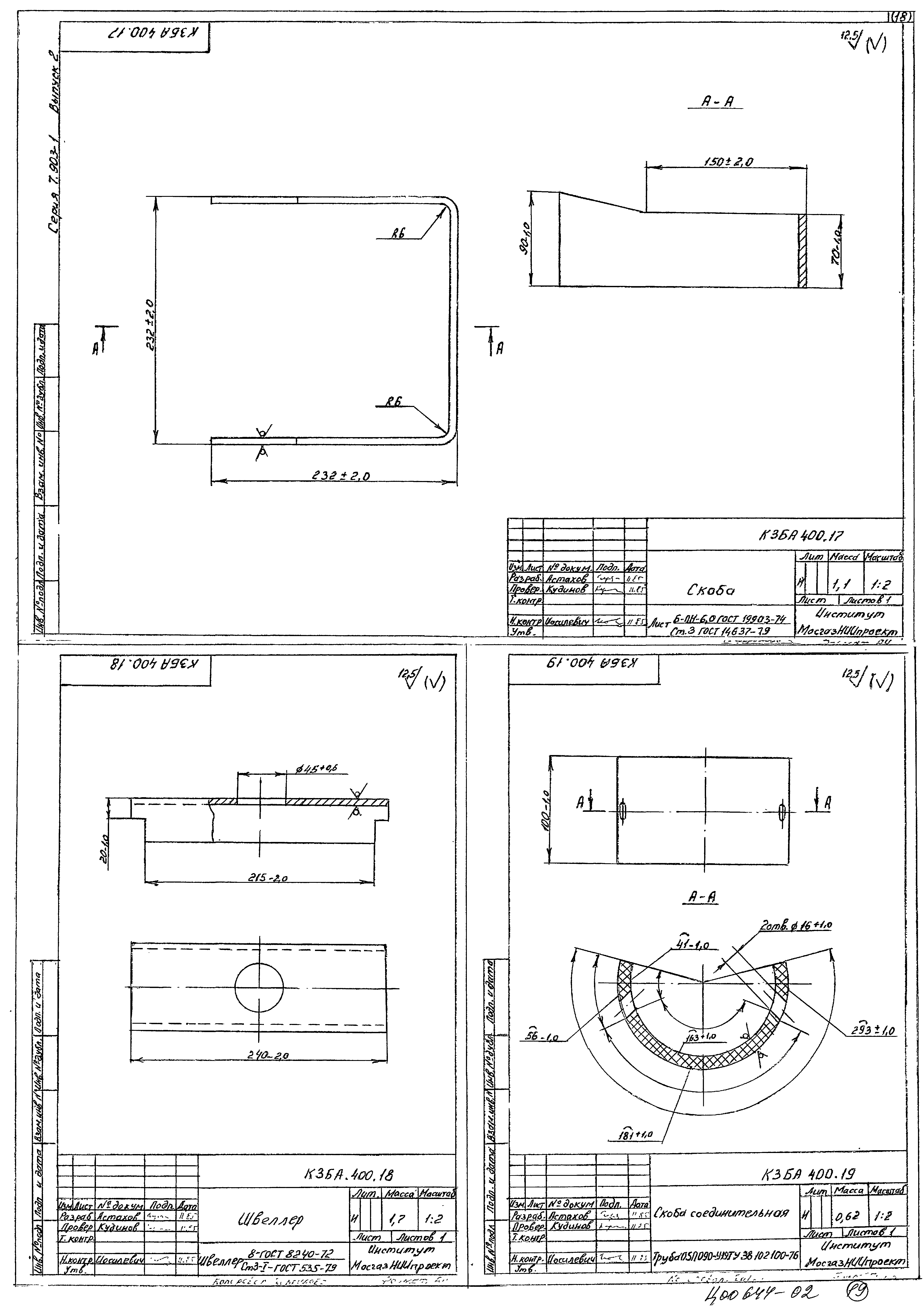
| Оглавление: | К3БА 400.00Д Катодная защита бака-аккумулятора горячей воды емкостью 400 куб. м. Общие указания К3БА 400.00 Катодная защита бака-аккумулятора горячей воды емкостью 400 куб. м. Общие указания К3БА 400.01.00 Кассета К3БА 400.00 СБ Катодная защита бака-аккумулятора горячей воды емкостью 400 куб. м К3БА 400.00 Э6 Катодная защита бака-аккумулятора горячей воды емкостью 400 куб. м К3БА 400.01.00 СБ Кассета К3БА 400.01.01.00 Электрод К3БА 400.01.01.00 СБ Электрод К3БА 400.01.02 Полутруба К3БА 400.01.04 Скоба зажимная К3БА 400.01.05 Скоба опорная К3БА 400.01.06 Защелка К3БА 400.04.00 Подставка К3БА 400.04.00 СБ Подставка К3БА 400.04.01 Днище К3БА 400.04.02 Труба К3БА 400.05.00 Коробка К3БА 400.05.00 СБ Коробка К3БА 400.05.01 Фланец К3БА 400.05.02 Труба К3БА 400.05.03 Штуцер К3БА 400.05.04 Труба К3БА 400.05.05 Крышка К3БА 400.09 Уголок К3БА 400.10 Косынка К3БА 400.11 Труба К3БА 400.12 Труба К3БА 400.13 Труба К3БА 400.14 Крышка К3БА 400.15 Полоса К3БА 400.16 Полоса К3БА 400.17 Скоба К3БА 400.18 Швеллер К3БА 400.19 Скоба соединительная |
| Разработан: | Мосгазниипроект Мосгорисполкома |
| Утверждён: | 04.03.1986 Госстрой СССР (Государственный комитет Совета Министров СССР по делам строительства) (USSR Gosstroy ИИ-7) |


















