Скачать Серия 7.902-9 Выпуск 3. Трубы Вентури Ду 700 - 1000 мм. Рабочие чертежиДата актуализации: 01.01.2021
|
| Обозначение: | Серия 7.902-9 |
| Обозначение англ: | Series 7.902-9 |
| Статус: | не определен законодательством |
| Название рус.: | Выпуск 3. Трубы Вентури Ду 700 - 1000 мм. Рабочие чертежи |
| Дата добавления в базу: | 01.09.2013 |
| Дата актуализации: | 01.01.2021 |
| Дата введения: | 01.09.1989 |
| Дата окончания срока действия: | 30.06.2003 |
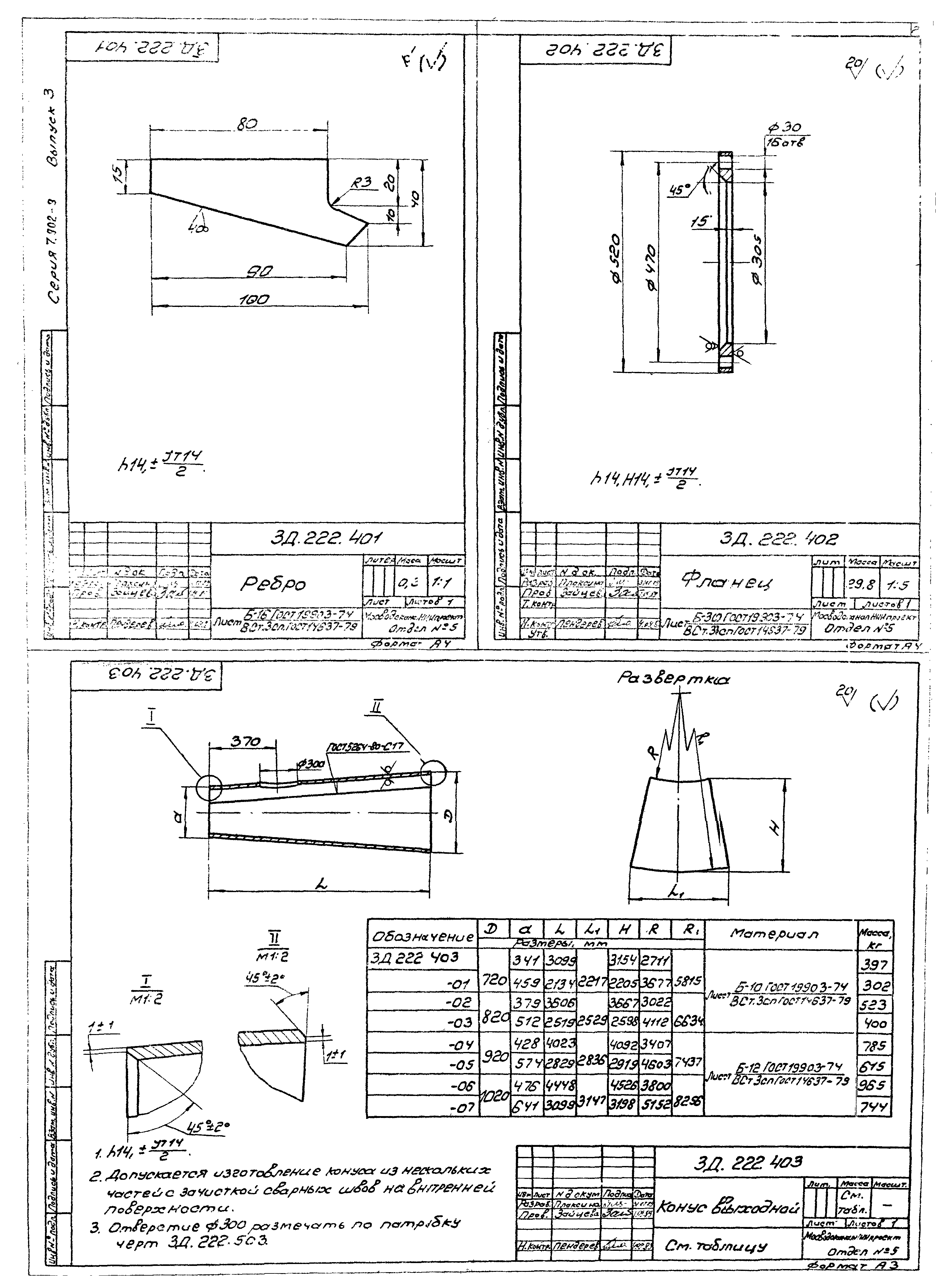
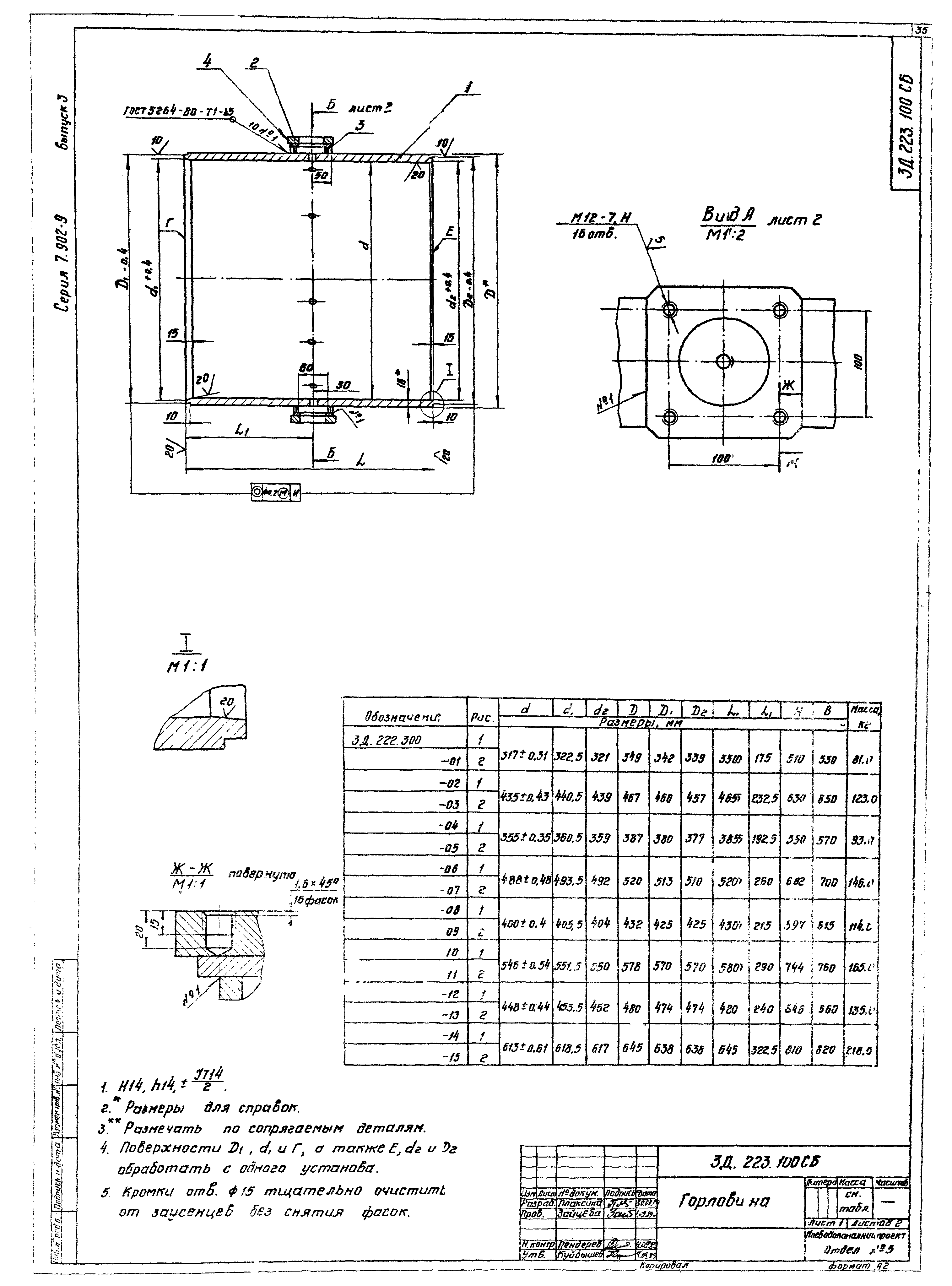
| Оглавление: | 3Д.222.000Д Труба Вентури нормальная. Технические требования 3Д.222.000 Труба Вентури нормальная. Спецификация 3Д.222.100 СБ Фланец в сборе 3Д.222.100 Фланец в сборе. Спецификация 3Д.222.000 СБ Труба Вентури нормальная 3Д.222.101 Фланец 3Д.222.001 Фланец 3Д.222.002 Прокладка 3Д.222.003 Фланец 3Д.222.004 Прокладка 3Д.222.200 Часть входная. Спецификация 3Д.222.200 СБ Часть входная 3Д.222.201 Патрубок 3Д.222.202 Кольцо центрирующее 3Д.222.203 Конус 3Д.222.204 Кольцо 3Д.222.205 Бобышка 3Д.222.206 Бобышка 3Д.222.300 Горловина. Спецификация 3Д.222.302 Бобышка 3Д.222.300 СБ Горловина 3Д.222.303 Кольцо 3Д.222.305 Бобышка 3Д.222.301 Патрубок 3Д.222.304 Обод 3Д.222.400СБ Часть выходная 3Д.222.400 Часть выходная. Спецификация 3Д.222.401 Ребро 3Д.222.402 Фланец 3Д.222.403 Конус выходной 3Д.222.404 Кольцо центрирующее 3Д.222.405 Отросток 3Д.222.406 Патрубок 3Д.222.500 Заглушка. Спецификация 3Д.222.500 СБ Заглушка 3Д.222.501 Фланец 3Д.222.502 Ручка 3Д.222.503 Патрубок 3Д.222.504 Дно 3Д.222.600СБ Прочистка 3Д.222.600 Прочистка 3Д.222.610СБ Штанга 3Д.222.610 Штанга. Спецификация 3Д.222.611 Рукоятка 3Д.222.612 Ось 3Д.222.601 Гайка накидная 3Д.222.602 Сальник 3Д.222.603 Корпус 3Д.222.604 Наконечник 3Д.223.000 Труба Вентури укороченная. Спецификация 3Д.223.201 Фланец 3Д.223.000 СБ Труба Вентури укороченная 3Д.223.100 СБ Горловина 3Д.223.100 Горловина. Спецификация 3Д.223.200 Часть выходная. Спецификация 3Д.223.200 СБ Часть выходная 3Д.223.202 Кольцо центрирующее 3Д.223.203 Конус 3Д.223.205 Фланец 3Д.223.206 Отросток 3Д.223.204 Ребро 3Д.223.207 Патрубок 3Д.223.301 Фланец 3Д.223.300 СБ Заглушка 3Д.223.300 Заглушка. Спецификация 3Д.223.302 Патрубок 3Д.223.303 Дно 3Д.223.001 Прокладка |
| Разработан: | МосводоканалНИИпроект ВНИИ ВОДГЕО Госстроя СССР |
| Утверждён: | 01.09.1989 Мосгорисполком (Mosgorispolkom 36а) |












































