Скачать Серия 7.820-9 Выпуск 4. Затвор щитовой для лотка размером 600х900 мм с ручным приводом. Рабочая документацияДата актуализации: 01.01.2021
|
| Обозначение: | Серия 7.820-9 |
| Обозначение англ: | Series 7.820-9 |
| Статус: | не определен законодательством |
| Название рус.: | Выпуск 4. Затвор щитовой для лотка размером 600х900 мм с ручным приводом. Рабочая документация |
| Дата добавления в базу: | 01.09.2013 |
| Дата актуализации: | 01.01.2021 |
| Дата введения: | 01.04.1990 |
| Дата окончания срока действия: | 30.06.2003 |
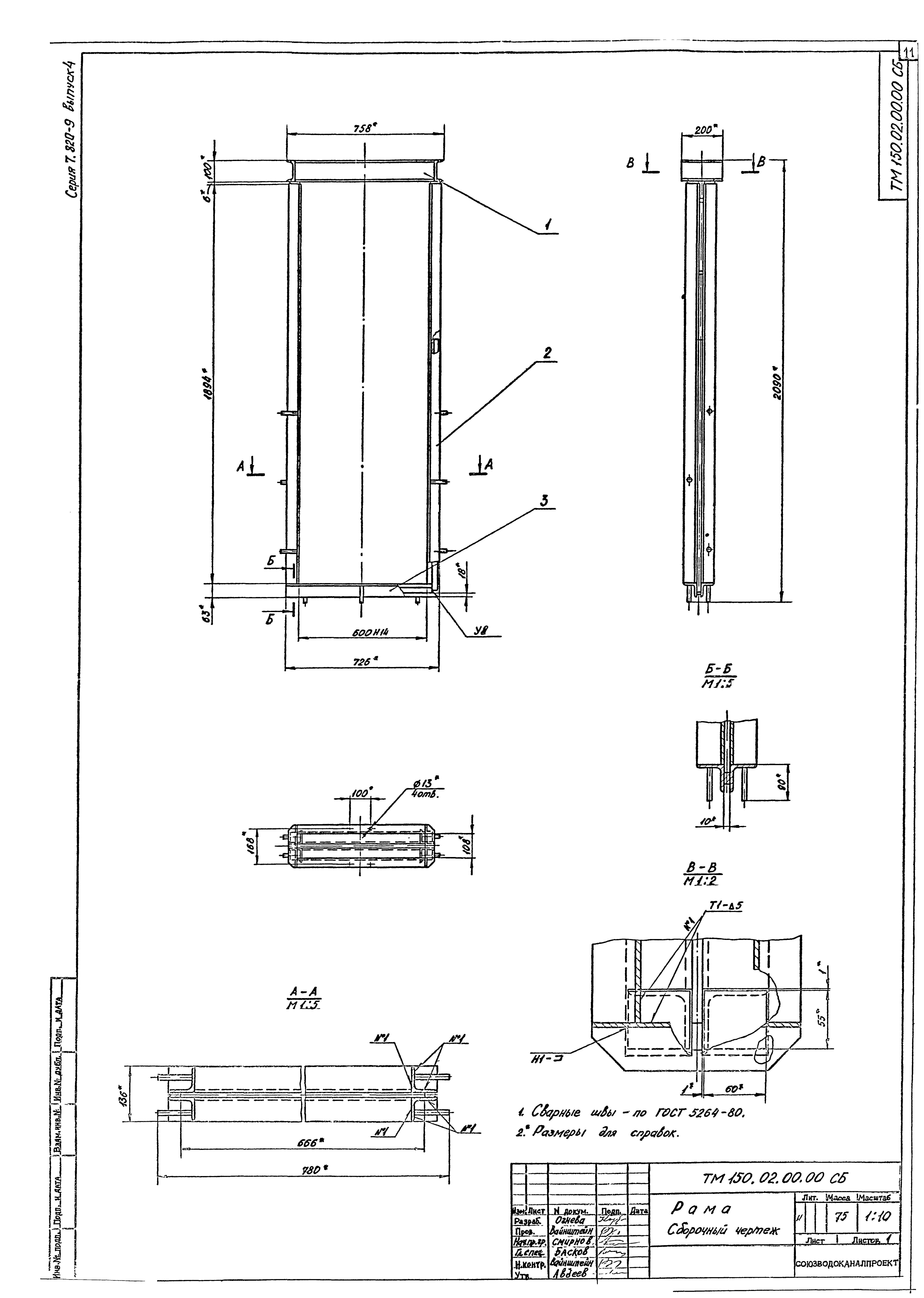
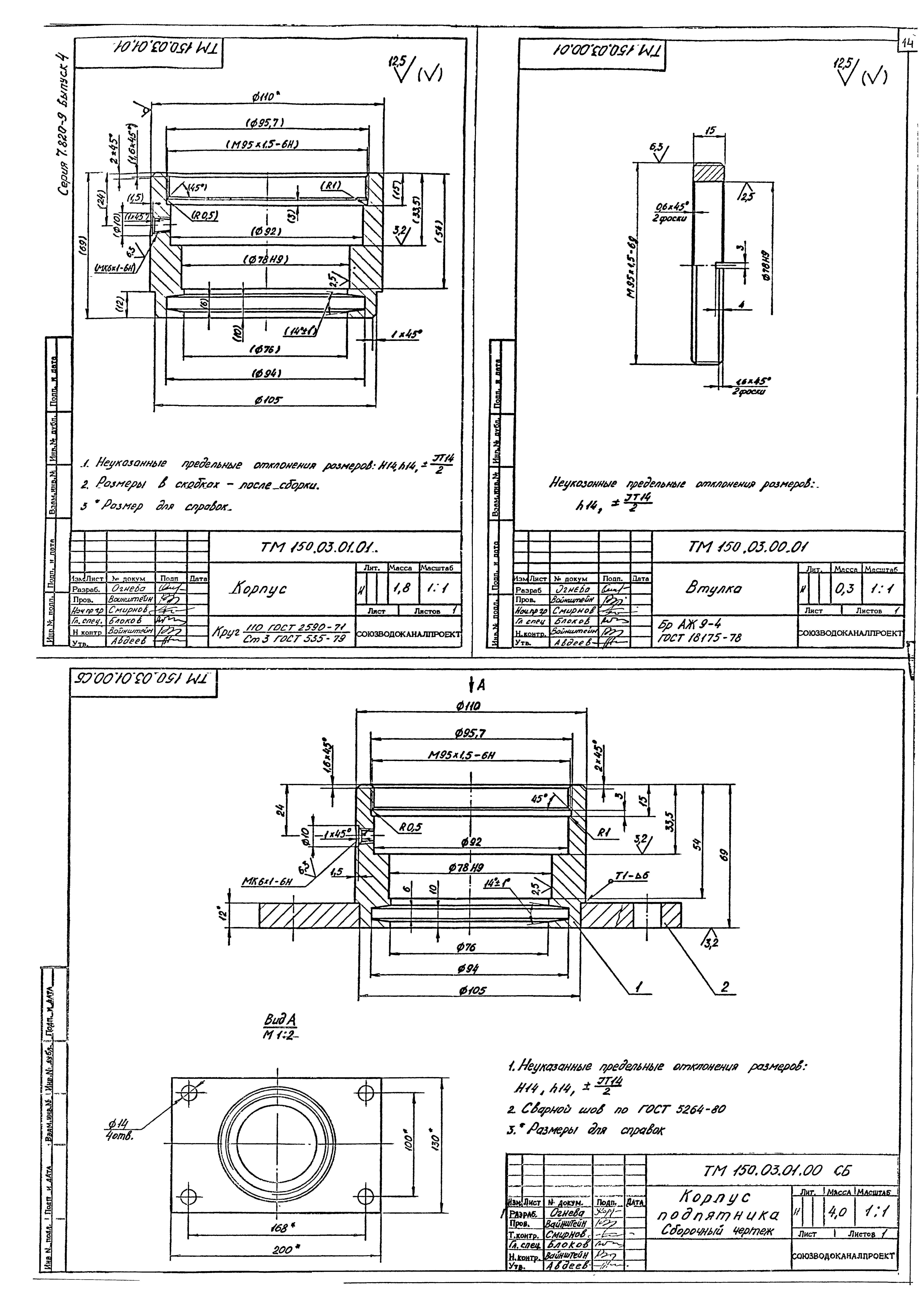
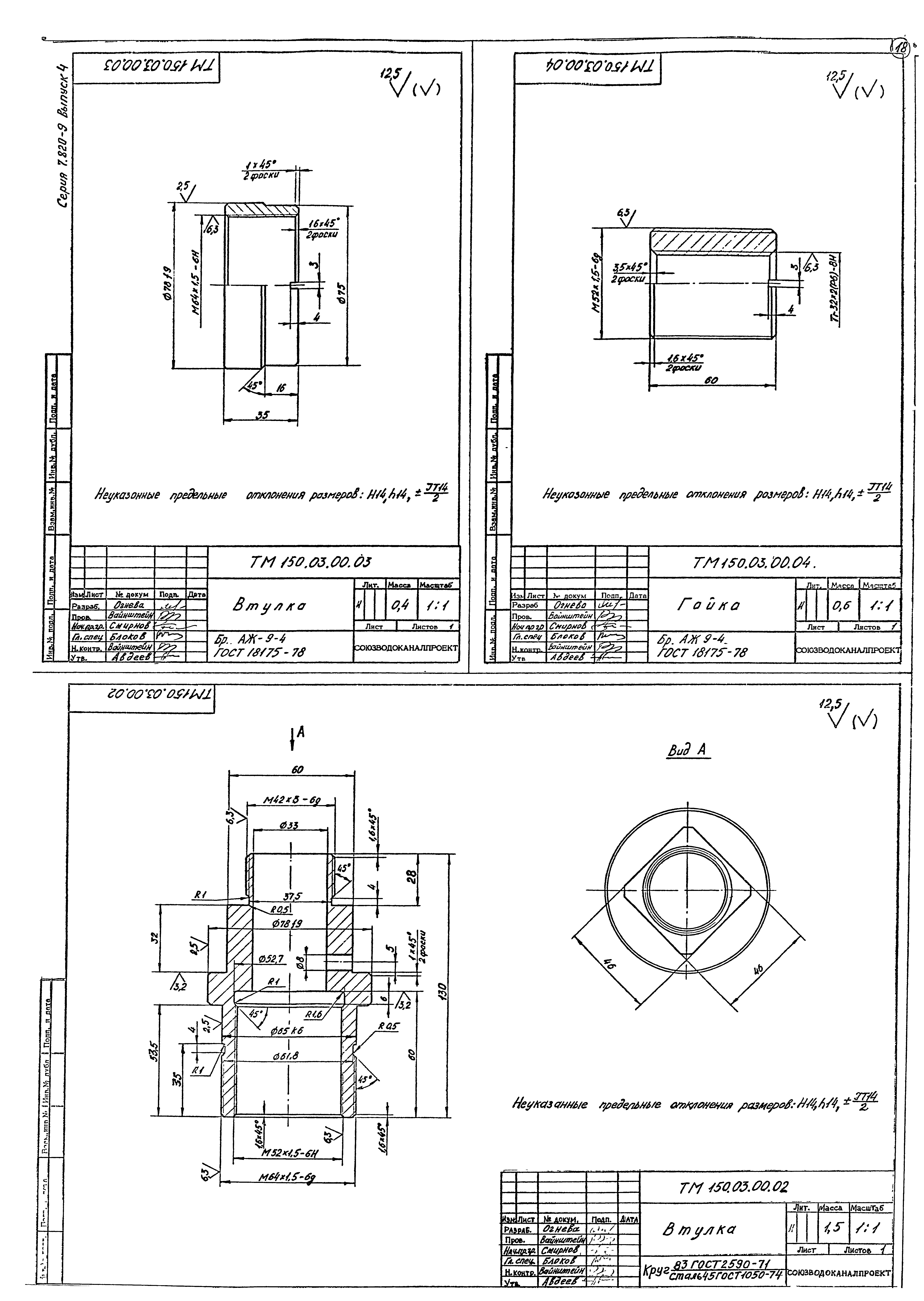
| Оглавление: | ТМ.150. ТУ Затвор щитовой для лотка размером 600х900 с ручным приводом. Технические условия ТМ.150.00.00.00 Затвор щитовой для лотка размером 600х900 с ручным приводом ТМ.150.01.00.00 Щит в сборе ТМ.150.01.01.00 Щит ТМ.150.02.00.00 Рама ТМ.150.02.01.00 Опора ТМ.150.02.02.00 Стойка ТМ.150.02.03.00 Основание ТМ.150.03.00.00 Подпятник ТМ.150.03.01.00 Корпус подпятника ТМ.150.04.00.00 Маховик ТМ.150.00.00.00 СБ Затвор щитовой для лотка размером 600х900 с ручным приводом. Сборочный чертеж ТМ.150.01.00.00 СБ Щит в сборе. Сборочный чертеж ТМ.150.01.01.00 СБ Щит. Сборочный чертеж ТМ.150.04.00.00 СБ Маховик. Сборочный чертеж ТМ.150.04.00.02 Втулка ТМ.150.02.00.00 СБ Рама. Сборочный чертеж ТМ.150.02.01.00 СБ Опора. Сборочный чертеж ТМ.150.02.02.00 СБ Стойка. Сборочный чертеж ТМ.150.02.03.00 СБ Основание. Сборочный чертеж ТМ.150.03.00.00 СБ Подпятник. Сборочный чертеж ТМ.150.03.01.00 СБ Корпус подпятника. Сборочный чертеж ТМ.150.03.01.01 Корпус ТМ.150.03.00.01 Втулка ТМ.150.00.00.01 Винт ТМ.150.00.00.02 Линейка ТМ.150.00.00.03 Прокладка регулировочная ТМ.150.01.00.01 Планка ТМ.150.01.00.02 Уплотнение ТМ.150.01.01.01 Ушко ТМ.150.01.01.02 Стяжка ТМ.150.01.01.03 Стойка ТМ.150.01.01.04 Ребро ТМ.150.01.01.05 Ребро ТМ.150.01.01.06 Обшивка ТМ.150.03.01.02 Фланец ТМ.150.03.00.02 Втулка ТМ.150.03.00.03 Втулка ТМ.150.03.00.04 Гайка |
| Разработан: | Союзводоканалпроект |
| Утверждён: | 23.11.1989 Союзводоканалпроект (Soyuzvodokanalproject 103) |


















