Скачать Серия 5.001-1 Выпуск 3. Пружинные виброизоляторы с упором. Рабочие чертежиДата актуализации: 01.01.2021
|
| Обозначение: | Серия 5.001-1 |
| Обозначение англ: | Series 5.001-1 |
| Статус: | не определен законодательством |
| Название рус.: | Выпуск 3. Пружинные виброизоляторы с упором. Рабочие чертежи |
| Дата добавления в базу: | 01.09.2013 |
| Дата актуализации: | 01.01.2021 |
| Дата введения: | 01.01.1990 |
| Дата окончания срока действия: | 30.06.2003 |
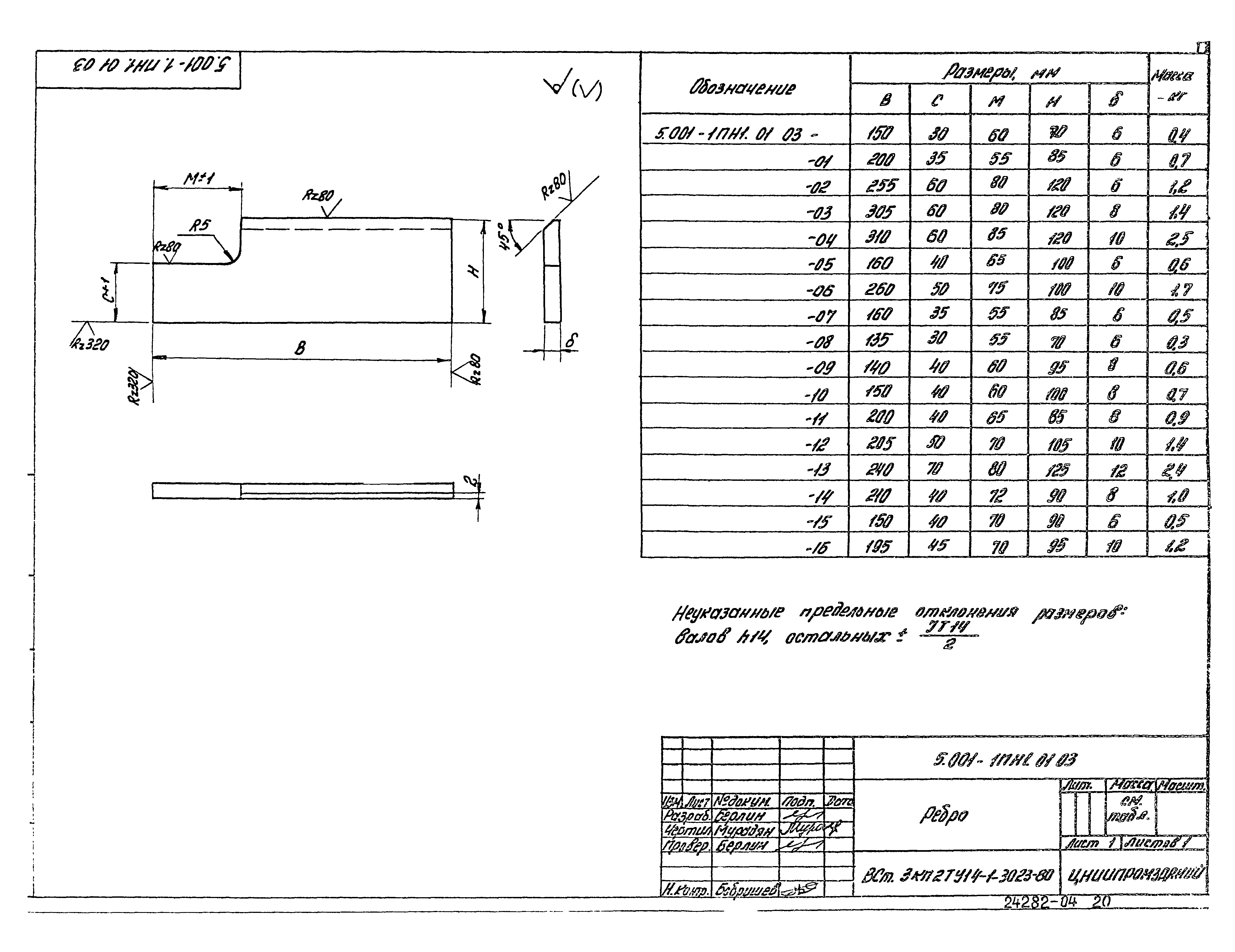
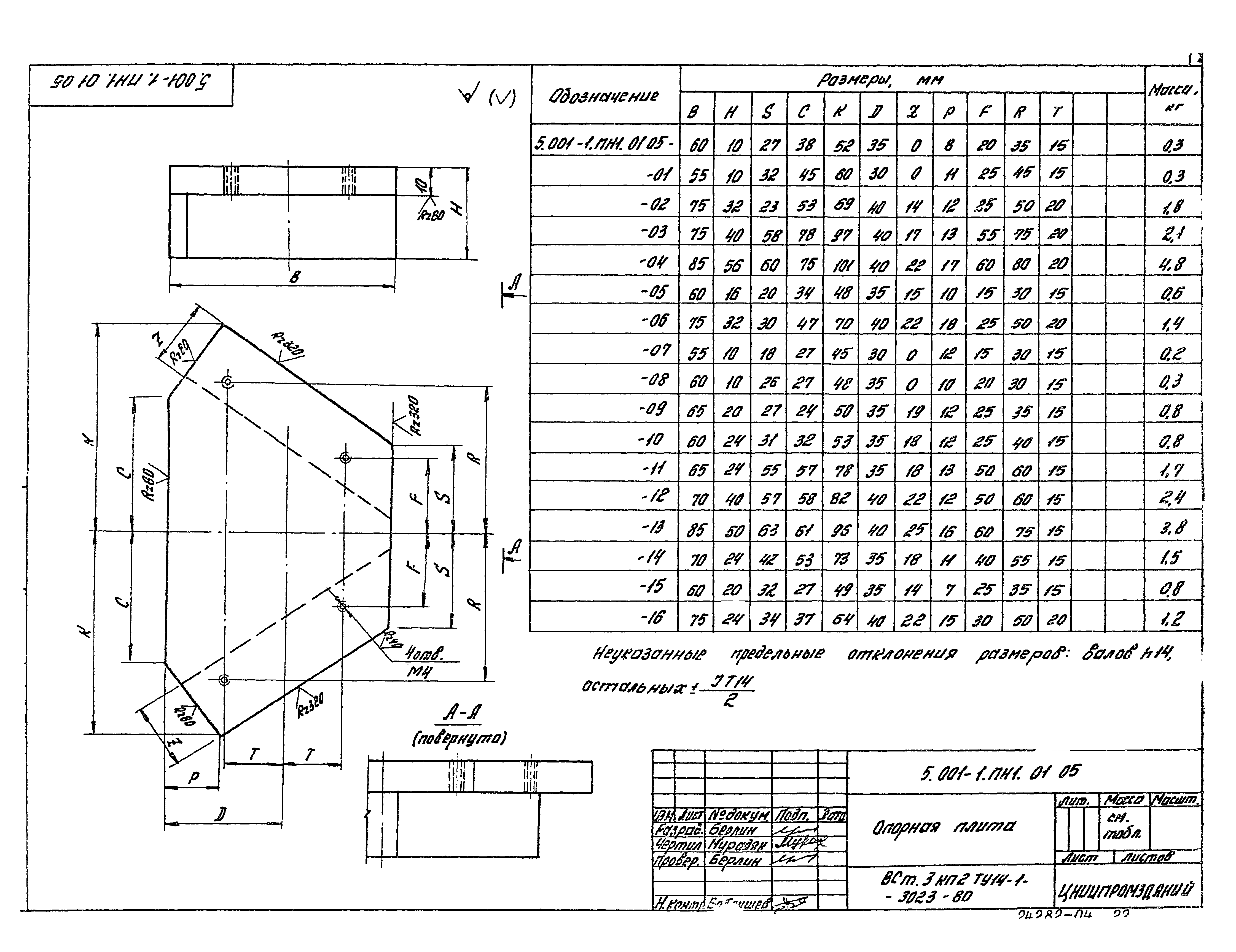
| Оглавление: | 5.001-1.ПН1.00.00 Виброизоляторы пружинные ПН-1…ПН-20 5.001-1.ПН1.00.00 СБ Виброизоляторы пружинные ПН-1…ПН-20. Сборочный чертеж 5.001-1.ПН1.01.00 Траверса 5.001-1.ПН1.01.00 СБ Траверса. Сборочный чертеж 5.001-1.ПН1.01.01 Опорный лист 5.001-1.ПН1.01.02 Ребро 5.001-1.ПН1.01.03 Ребро 5.001-1.ПН1.01.04 Ребро 5.001-1.ПН1.01.05 Опорная плита 5.001-1.ПН1.01.06 Ребро 5.001-1.ПН1.02.00 Траверса 5.001-1.ПН1.02.00 СБ Траверса. Сборочный чертеж 5.001-1.ПН1.02.01 Опорная плита 5.001-1.ПН1.03.00 Стяжка 5.001-1.ПН1.03.00 СБ Стяжка. Сборочный чертеж 5.001-1.ПН1.03.02 Шайба 5.001-1.ПН1.03.01 Болт 5.001-1.ПН1.00.01 Прокладка 5.001-1.ПН1.00.02 Пластинка 5.001-1.ПН1.00.03 Пружина |
| Разработан: | Ленинградский Промстройпроект АО ЦНИИпромзданий |
| Утверждён: | 27.11.1989 Госстрой СССР (Государственный комитет Совета Министров СССР по делам строительства) (USSR Gosstroy 4/5-1456) |






































