Скачать Типовой проект 801-2-39.84 Альбом I. Архитектурно-строительные решения. Конструкции металлическиеДата актуализации: 01.01.2021
|
| Обозначение: | Типовой проект 801-2-39.84 |
| Обозначение англ: | 801-2-39.84 |
| Статус: | не определен законодательством |
| Название рус.: | Альбом I. Архитектурно-строительные решения. Конструкции металлические |
| Дата добавления в базу: | 01.09.2013 |
| Дата актуализации: | 01.01.2021 |
| Дата введения: | 10.11.1983 |
| Дата окончания срока действия: | 30.06.2003 |
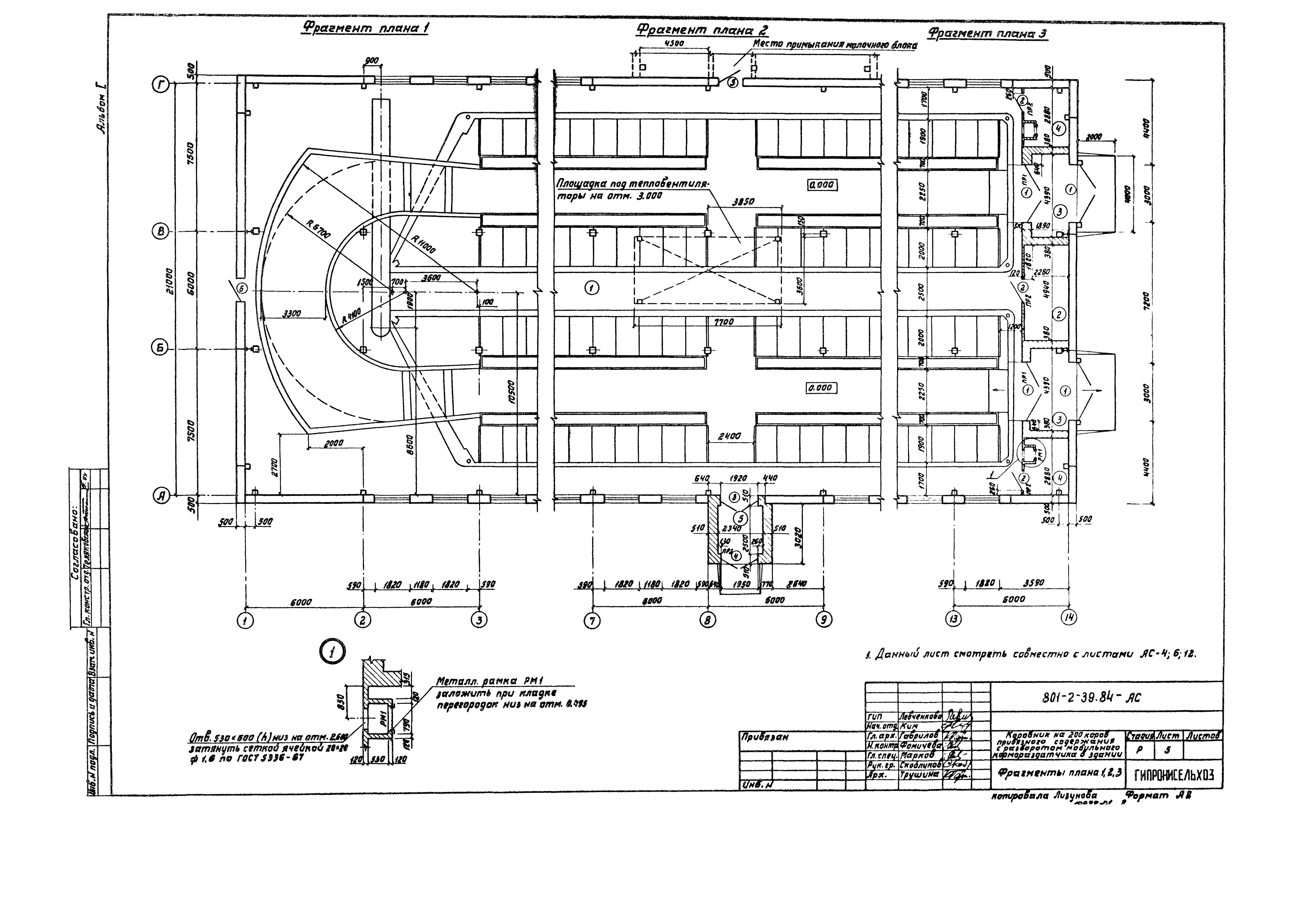
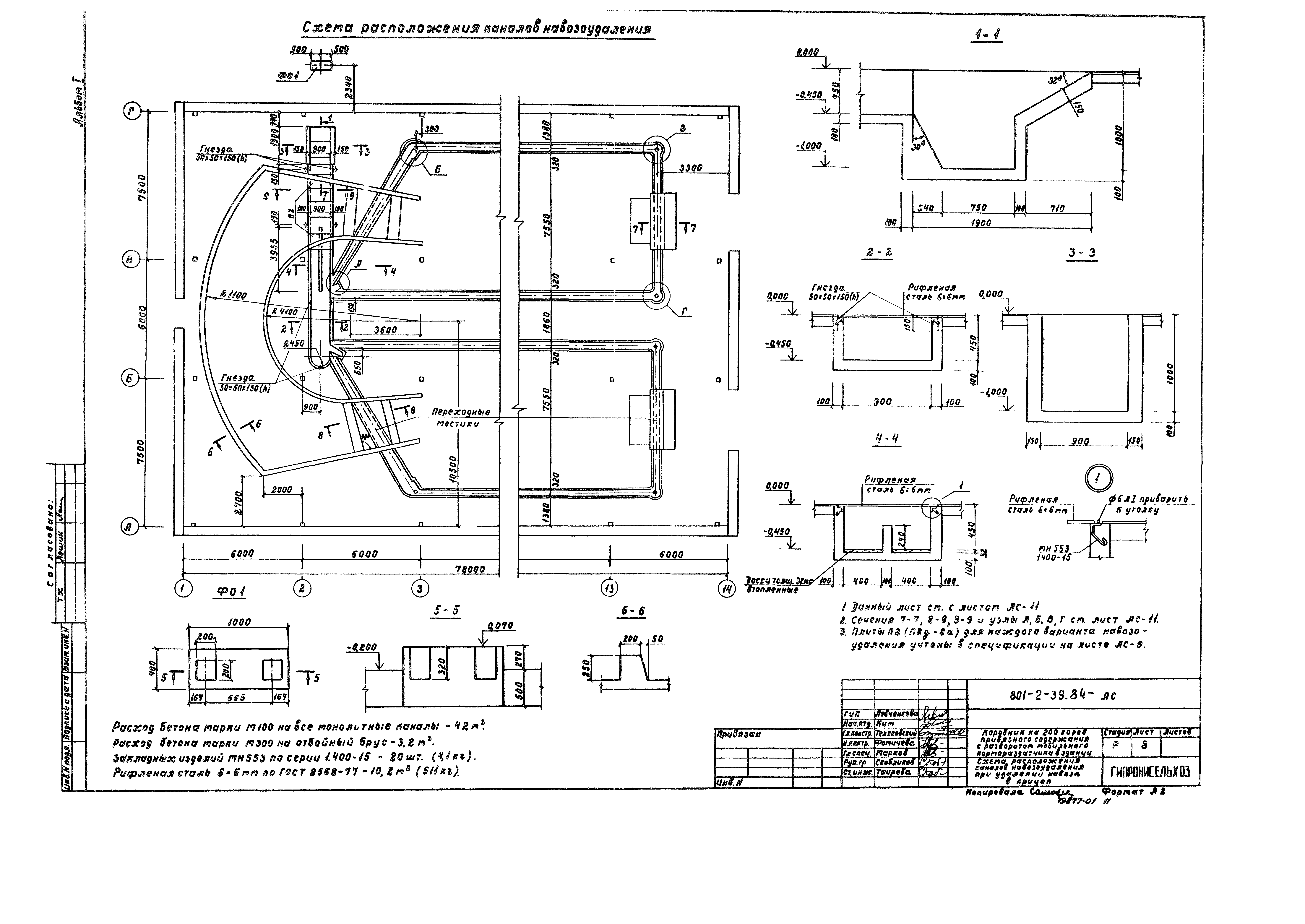
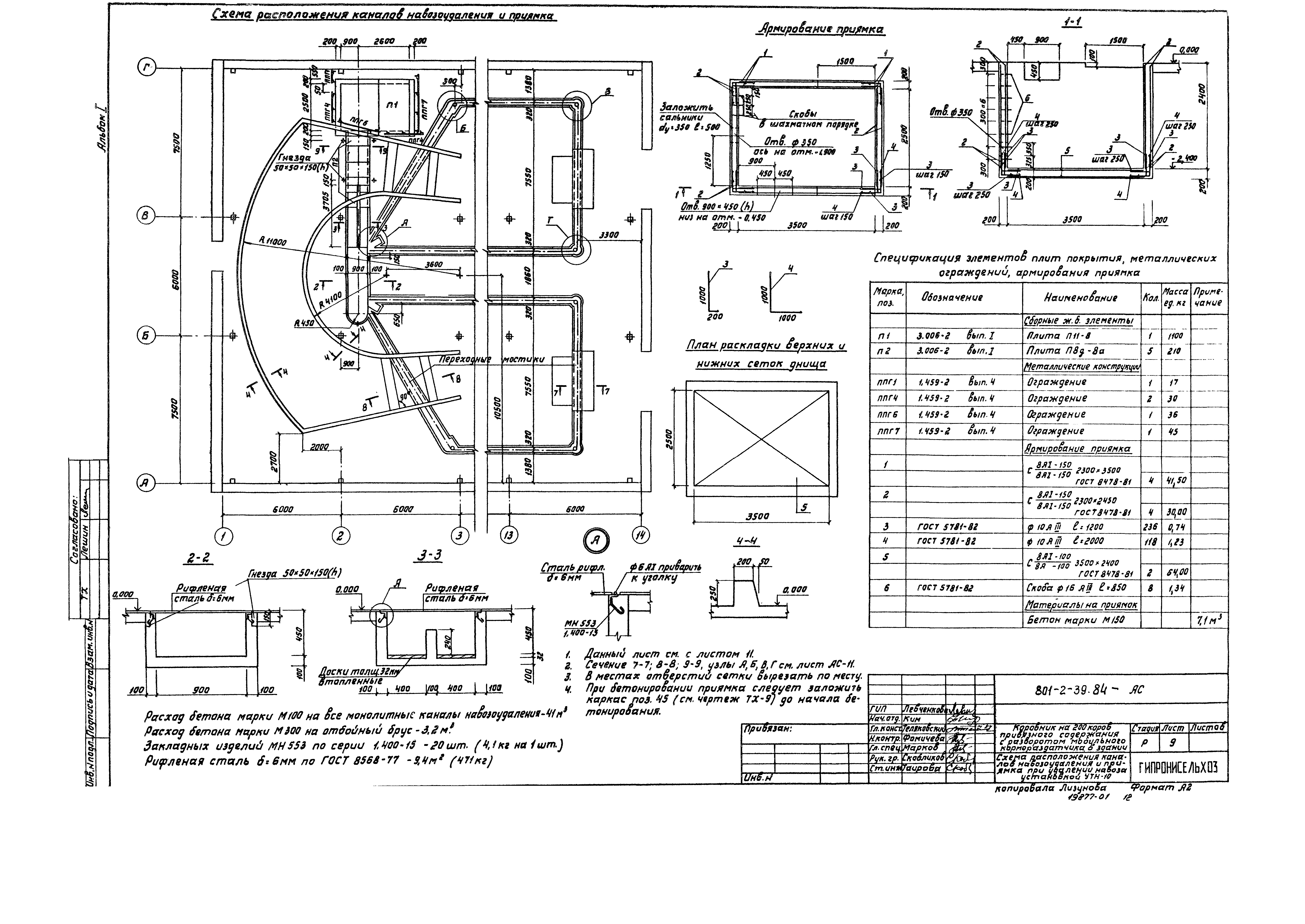
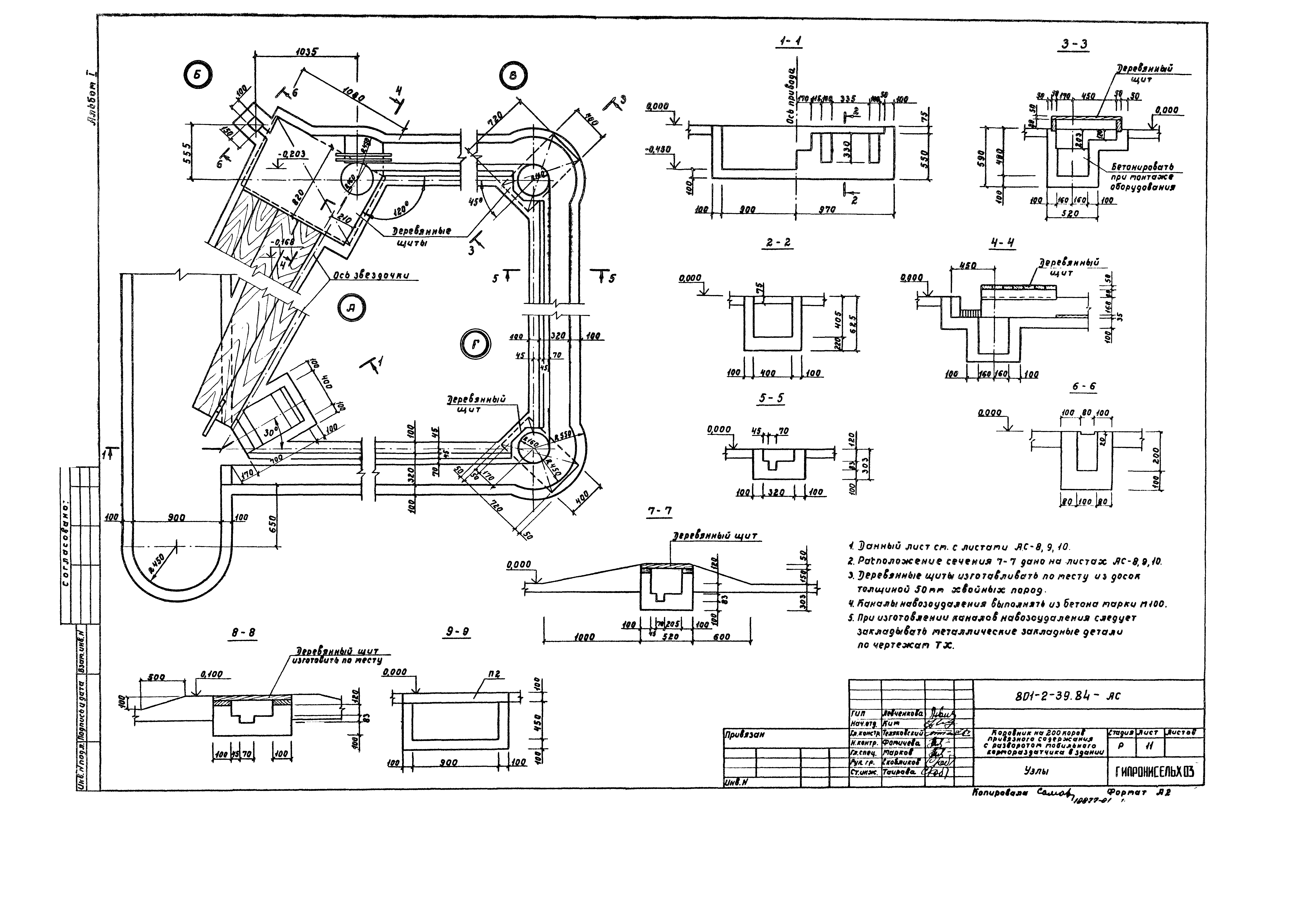
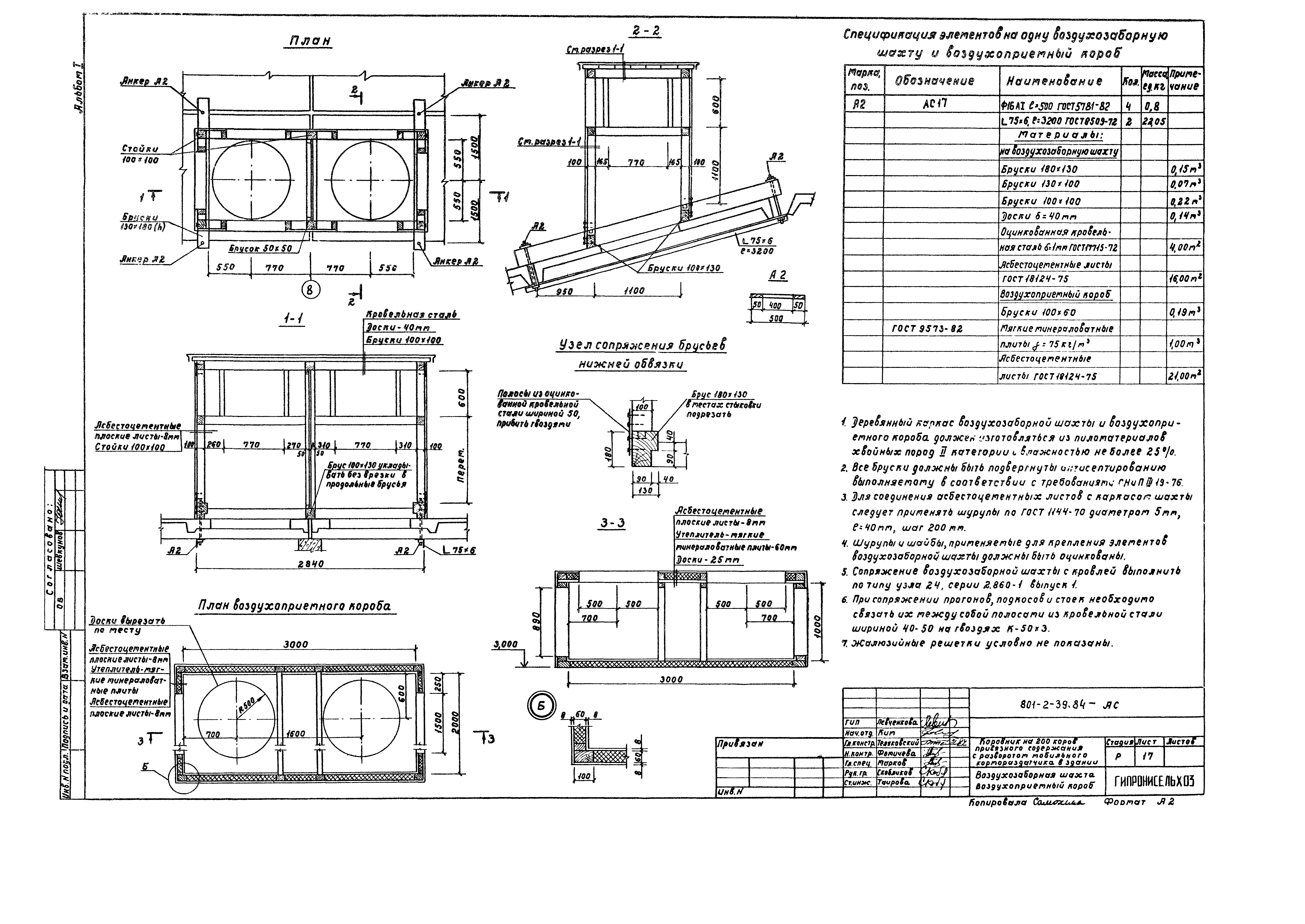
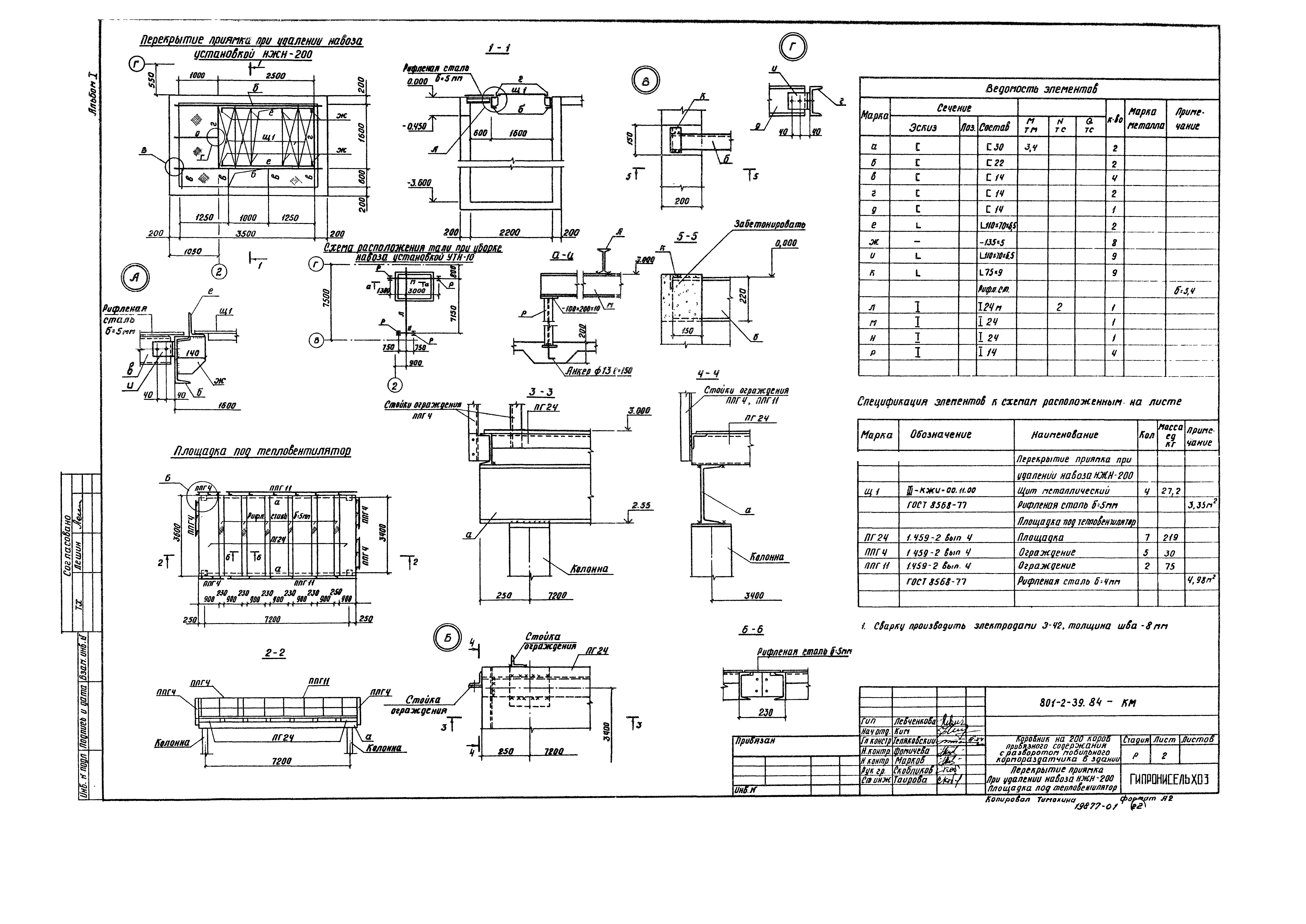
| Оглавление: | Основной комплект рабочих чертежей марки АС Общие данные (начало) Общие данные (окончание) Фасады План на отм. 0.000. Разрез 1-1 Фрагменты плана 1, 2, 3 Разрезы 2-2; 3-3. Узлы Схема расположения кормушек. План полов. Устройство выравнивания потенциалов. План кровли Схема расположения каналов навозоудаления при удалении навоза в прицеп Схема расположения каналов навозоудаления при удалении навоза установкой УТН-10 Схема расположения каналов навозоудаления при удалении навоза установкой НЖН-200 Узлы Схема расположения фундаментов и фундаментных балок Узлы и сечения фундаментов Схемы расположения колонн, балок, ферм, стоек фахверка, плит покрытия Схемы расположения панелей стен Спецификация элементов панелей стен Воздухозаборная шахта. Воздухоприемный короб Основной комплект рабочих чертежей марки КМ Общие данные Перекрытие приямка при удалении навоза НЖН-200. Площадка под тепловентилятор |
| Разработан: | Институт Гипронисельхоз |
| Утверждён: | 07.07.1983 Главсельстройпроект Минсельхоза СССР (Glavselstroyproject, USSR Minselkhoz 68) |





















