Скачать Типовой проект 801-2-39.84 Альбом II. Пояснительная записка. Технология производства. Внутренние водопровод и канализация. Отопление и вентиляция. Электротехнические чертежи. Автоматизация санитарно-технических системДата актуализации: 01.01.2021
|
| Обозначение: | Типовой проект 801-2-39.84 |
| Обозначение англ: | 801-2-39.84 |
| Статус: | не определен законодательством |
| Название рус.: | Альбом II. Пояснительная записка. Технология производства. Внутренние водопровод и канализация. Отопление и вентиляция. Электротехнические чертежи. Автоматизация санитарно-технических систем |
| Дата добавления в базу: | 01.09.2013 |
| Дата актуализации: | 01.01.2021 |
| Дата введения: | 10.11.1983 |
| Дата окончания срока действия: | 30.06.2003 |
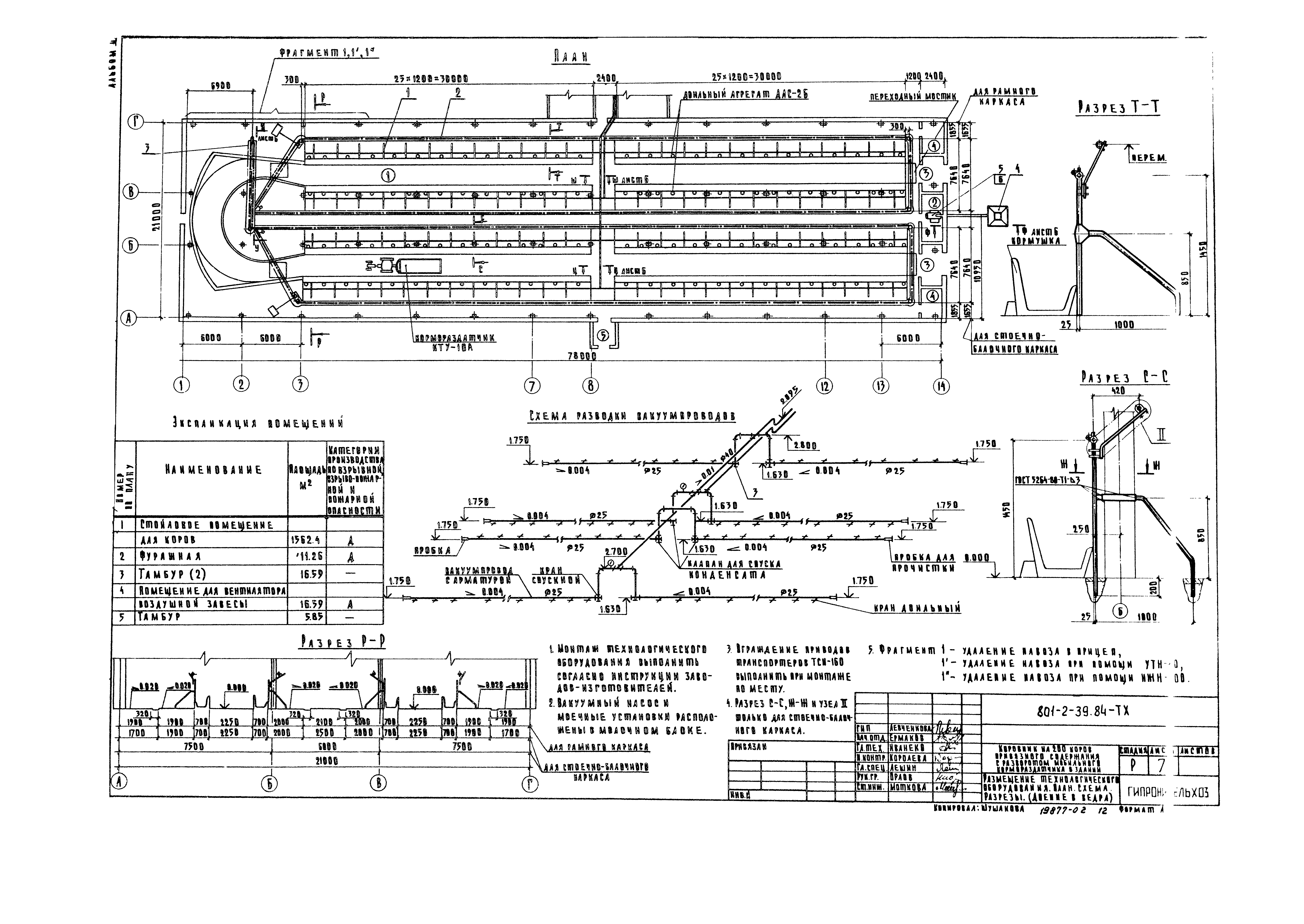
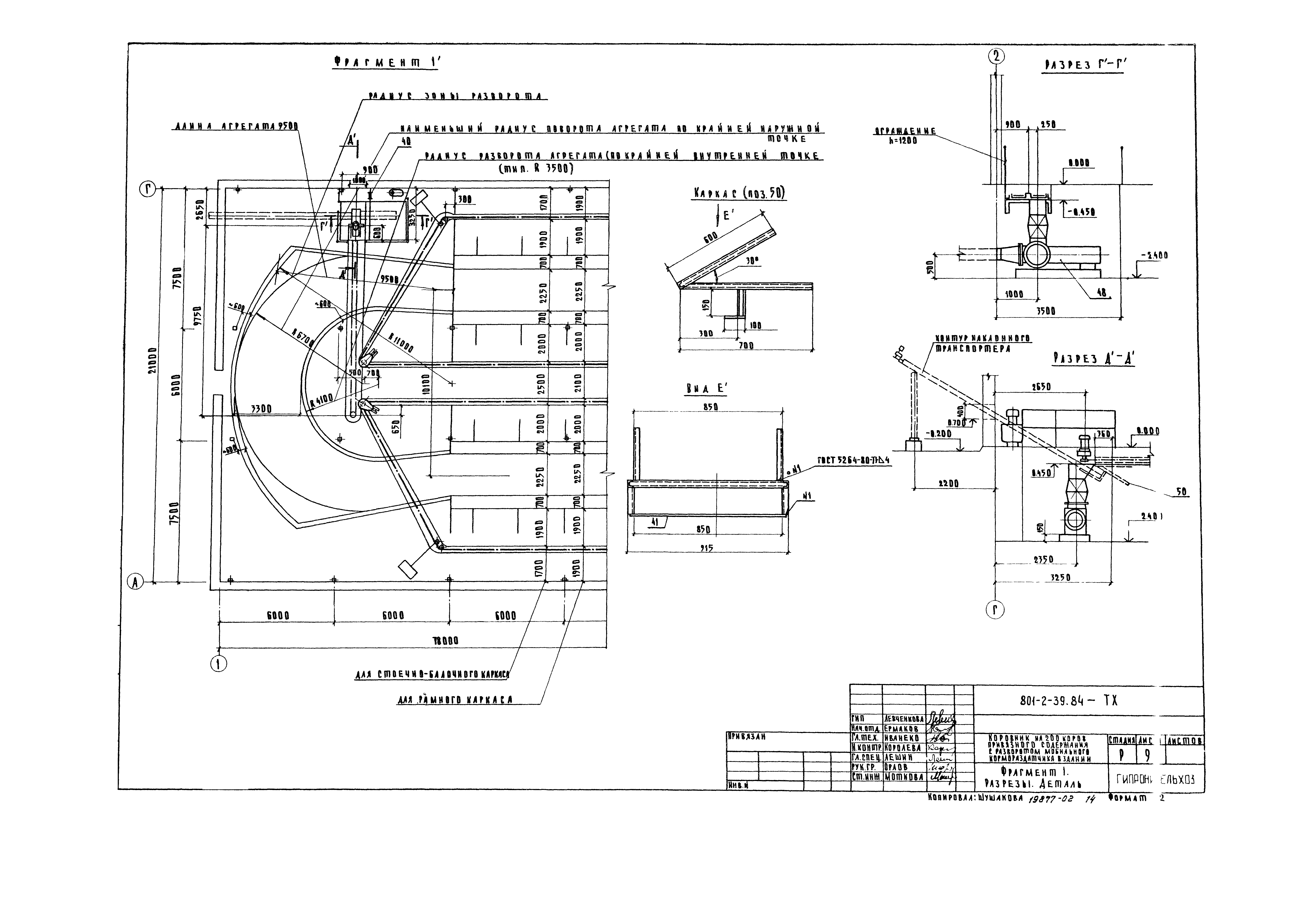
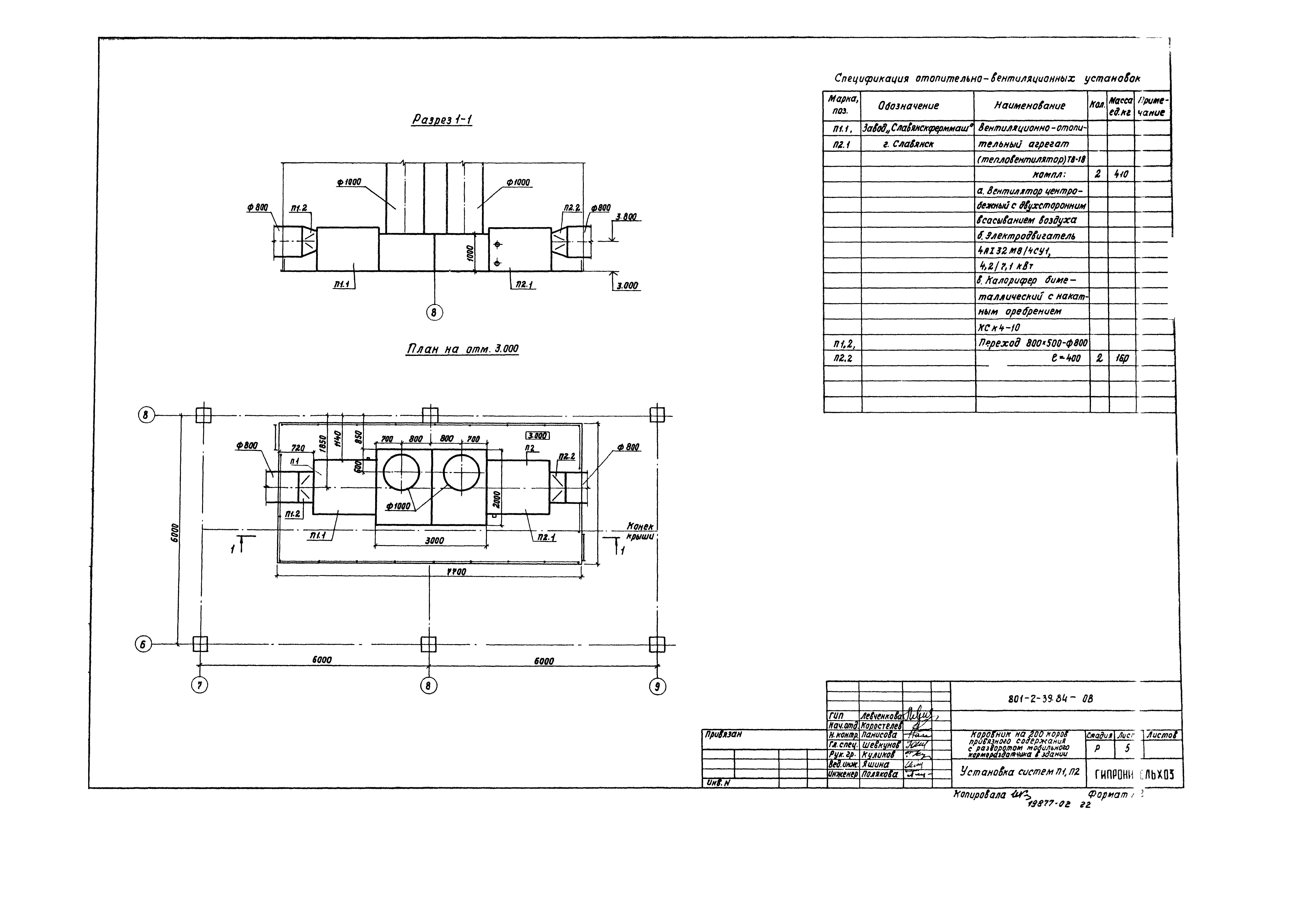
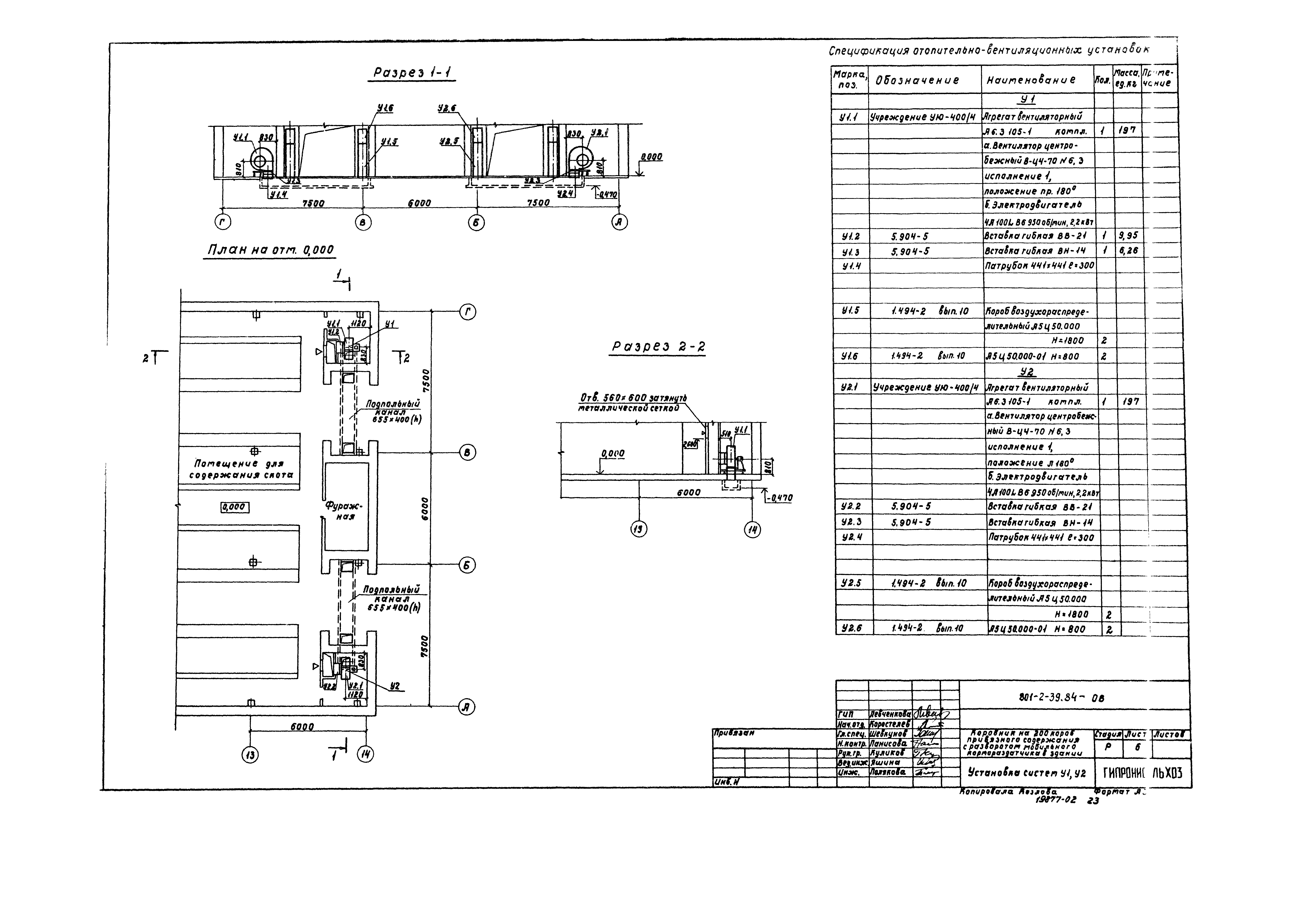
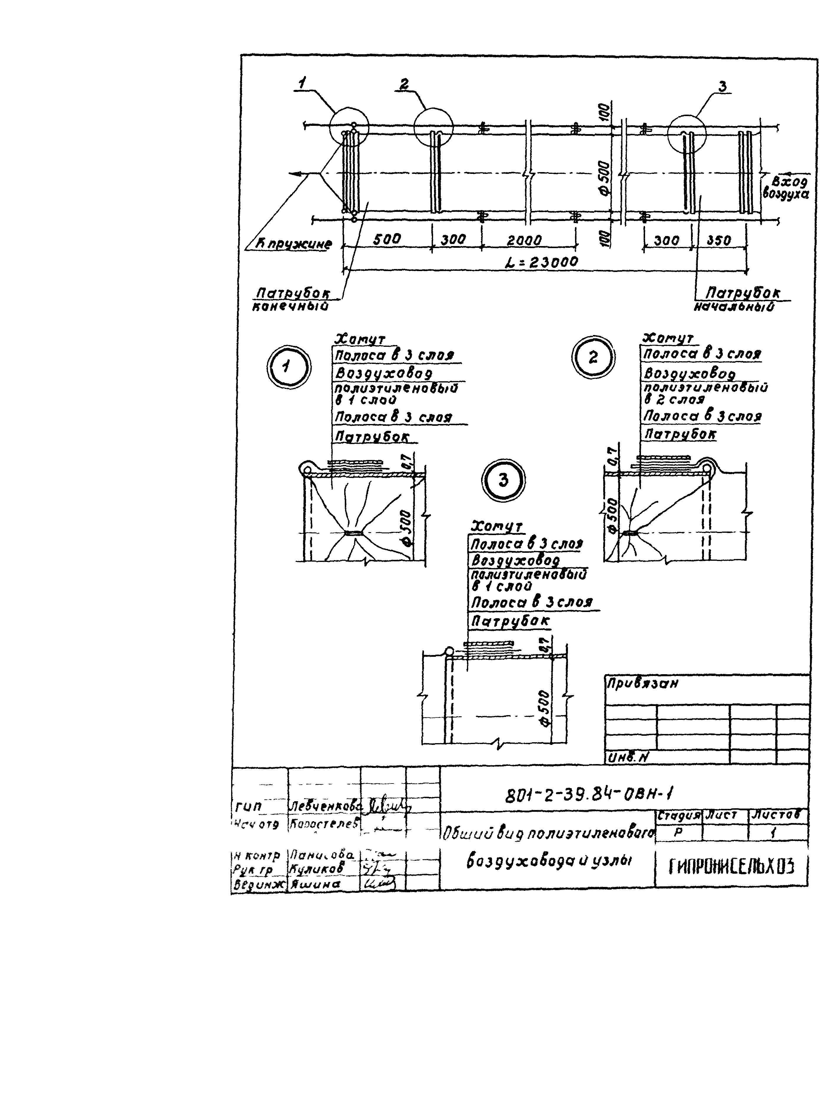
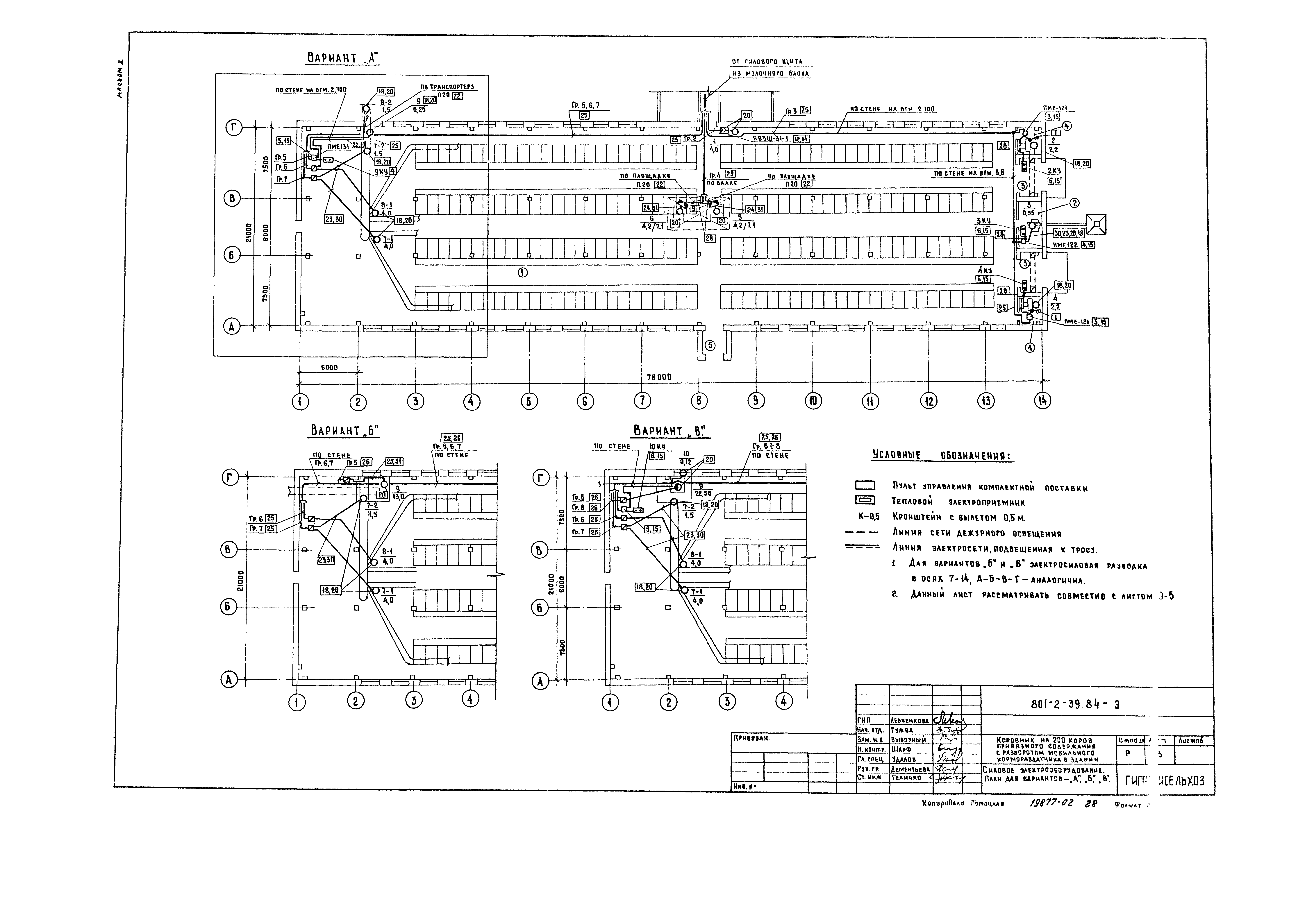
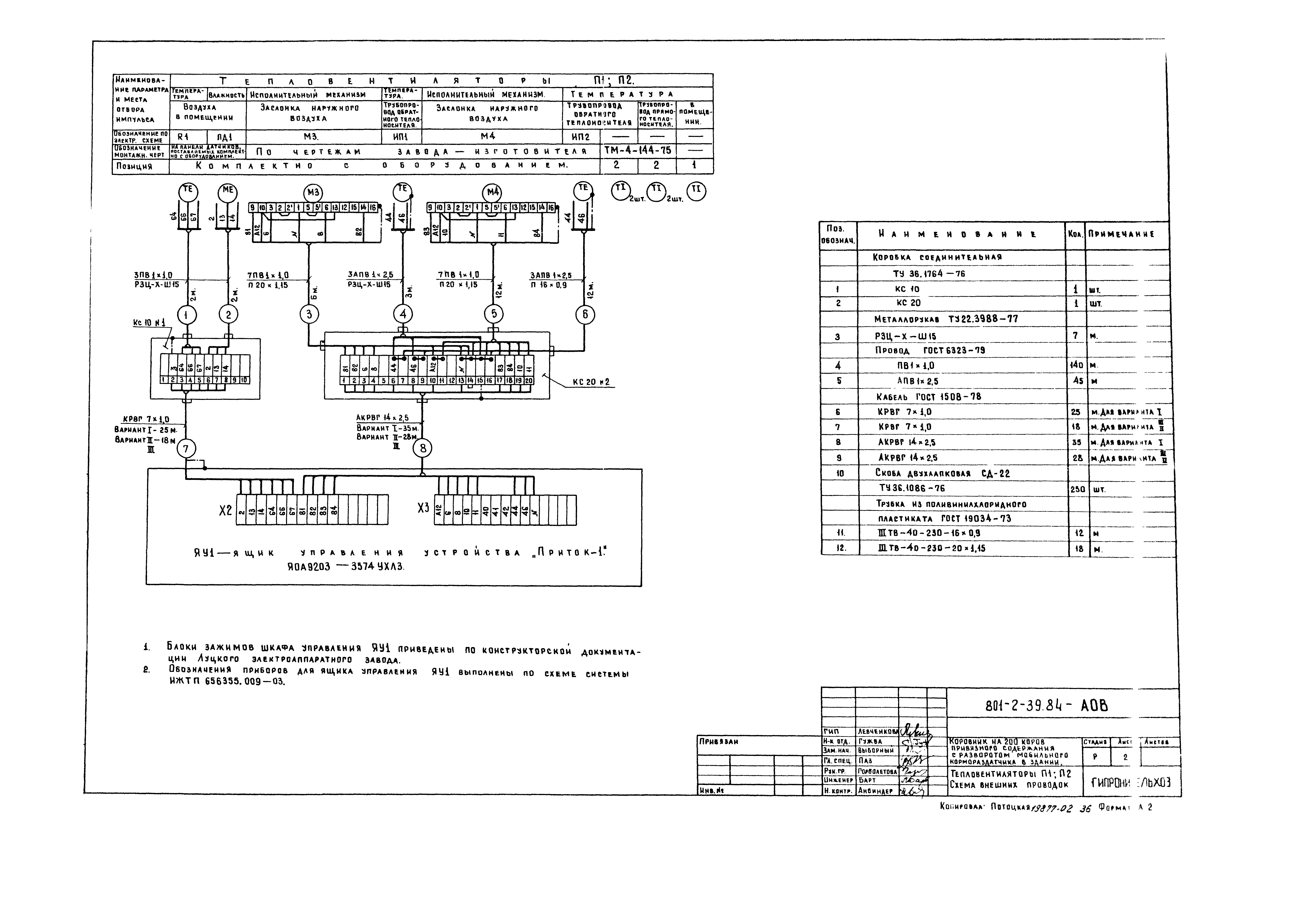
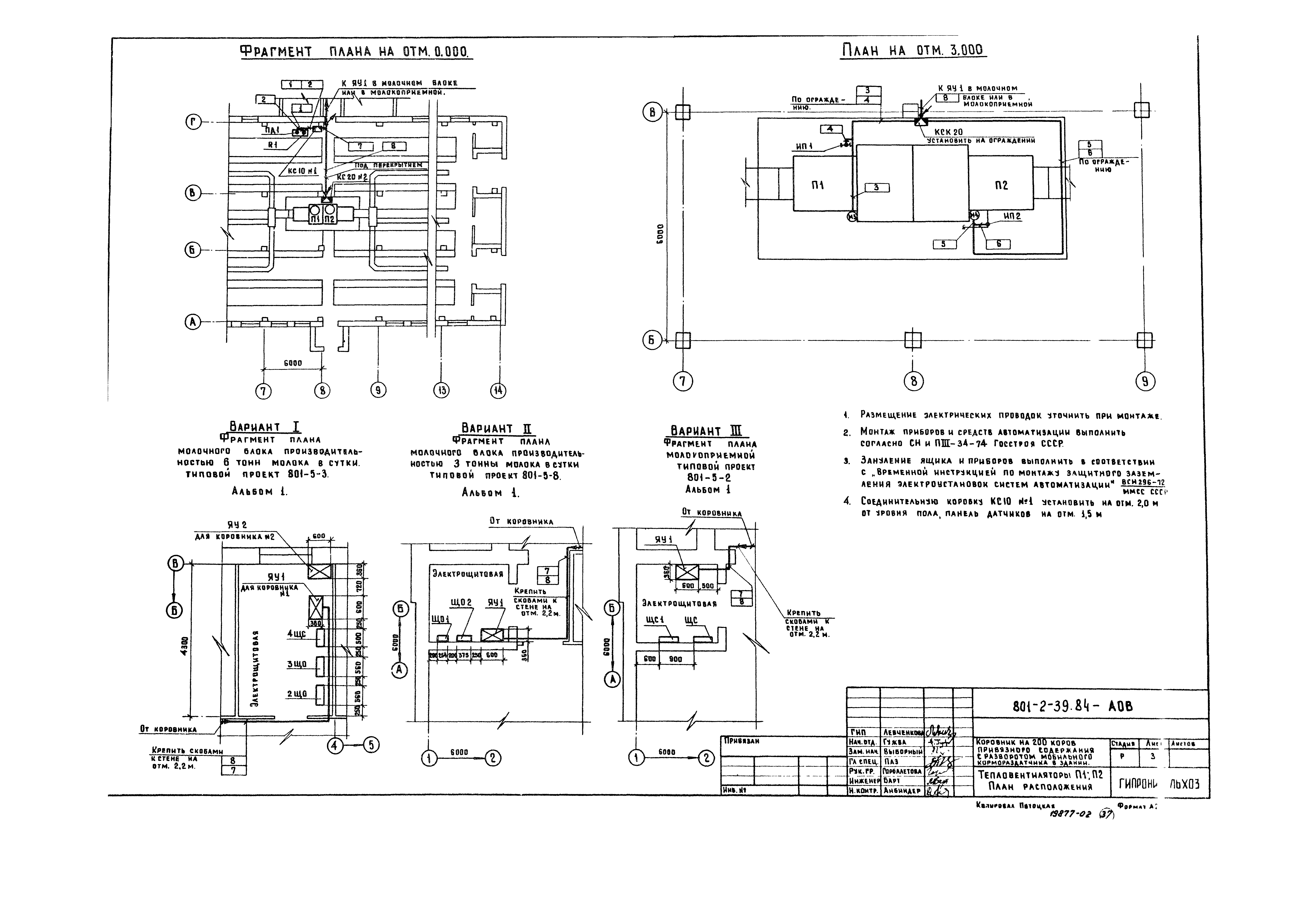
| Оглавление: | Пояснительная записка Основной комплект рабочих чертежей марки ТХ 1 Общие данные (начало) 2 Общие данные (окончание) 3 Спецификация 4 Размещение технологического оборудования. План. Схема. Разрез. Узел (Доение в молокопровод) 5 Разрезы. Узлы 6 Разрезы. Виды. Узлы 7 Размещение технологического оборудования. План. Схема. Разрезы (Доение в ведра) 8 Фрагмент 1 Разрезы. Узел 9 Фрагмент 1' Разрезы. Деталь 10 Фрагмент 1'' Разрезы Основной комплект рабочих чертежей марки ВК 1 Общие данные 2 План на отм. 0.000. Схемы систем ВО, ТЗ1, ТЗ Основной комплект рабочих чертежей марки ОВ 1 Общие данные (начало) 2 Общие данные (окончание) 3 План на отм. 0.000. План между осями 2-3 и Г-В. Разрезы 101; 2-2; 3-3 4 Схема систем П1, П2. Схема системы теплоснабжения установок П1, П2 5 Установка системы П1, П2 6 Установка системы У1, У2 Общий вид полиэтиленового воздуховода и узлы Общий вид с разметкой перфорацией на воздуховоде Ограждение отверстия воздуховода сеткой Основной комплект рабочих чертежей марки Э 1 Общие данные (начало) 2 Общие данные (окончание) 3 Силовое электрооборудование. План для вариантов "А", "Б", "В" 4 Силовое электрооборудование. Спецификация 5 Электроосвещение. План. Силовое электрооборудование. Фрагменты планов коровника и электрощитовых молочных блоков 6 Электроосвещение. Спецификация 7 Силовое электрооборудование. Расчетная схема сети 380/220 В для варианта "А" 8 Силовое электрооборудование. Расчетная схема сети 380/220 В для варианта "Б" 9 Силовое электрооборудование. Расчетная схема сети 380/220 В для варианта "В" Основной комплект рабочих чертежей марки АОВ 1 Общие данные. Тепловентиляторы П1; П2. Схема функциональная 2 Тепловентиляторы П1; П2. Схема внешних проводок 3 Тепловентиляторы П1; П2. План расположения |
| Разработан: | Институт Гипронисельхоз |
| Утверждён: | 07.07.1983 Главсельстройпроект Минсельхоза СССР (Glavselstroyproject, USSR Minselkhoz 68) |






































